Скачать Сборник 12. Реставрация и воссоздание архитектурно-лепного декора. Отраслевые единичные расценки на ремонтно-реставрационные работы по памятникам истории и культуры

Дата актуализации: 01.01.2021

Сборник 12. Реставрация и воссоздание архитектурно-лепного декора. Отраслевые единичные расценки на ремонтно-реставрационные работы по памятникам истории и культуры

Статус:действует
Название рус.:Сборник 12. Реставрация и воссоздание архитектурно-лепного декора. Отраслевые единичные расценки на ремонтно-реставрационные работы по памятникам истории и культуры
Дата добавления в базу:01.01.2018
Дата актуализации:01.01.2021
Дата введения:31.07.2017
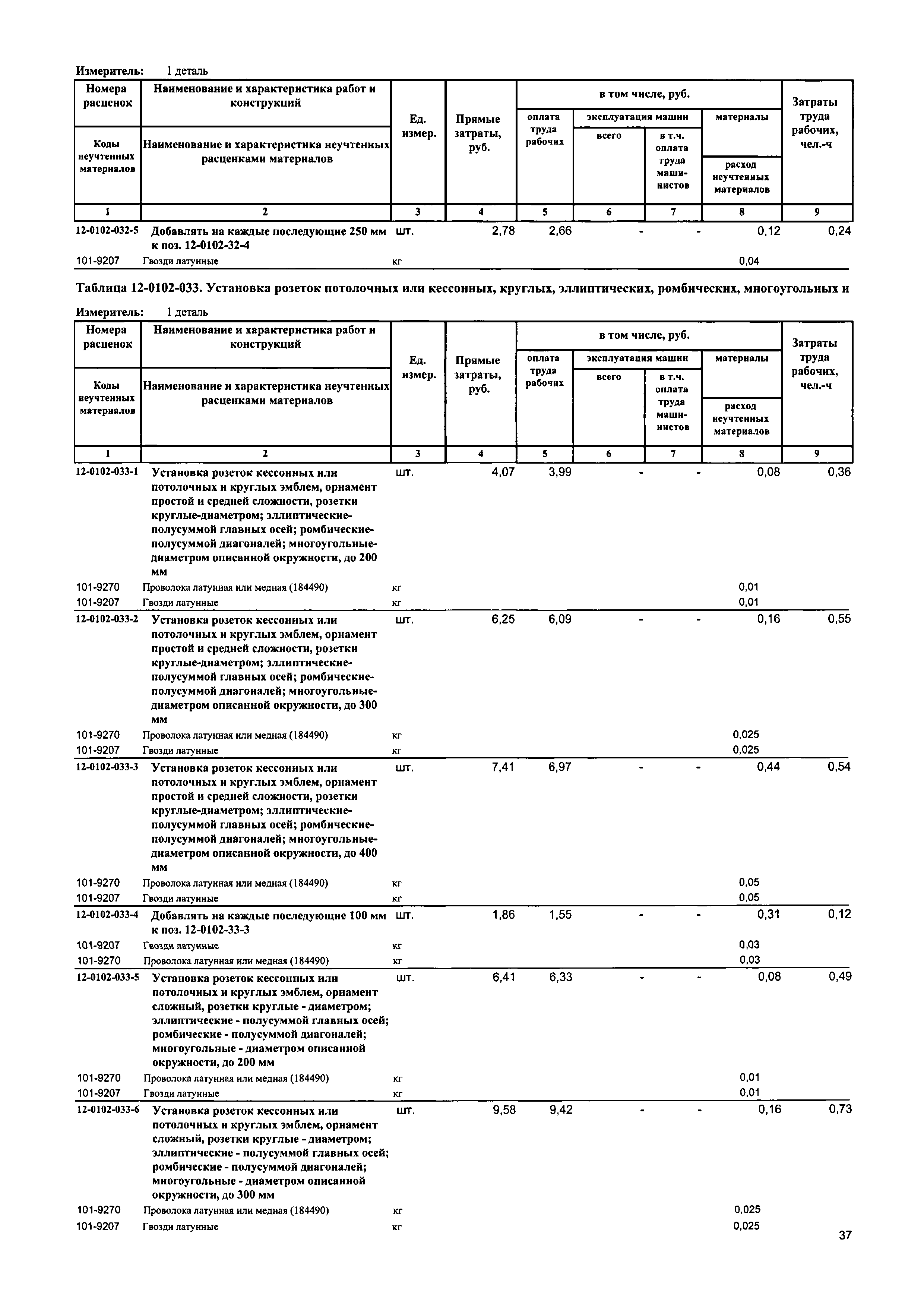
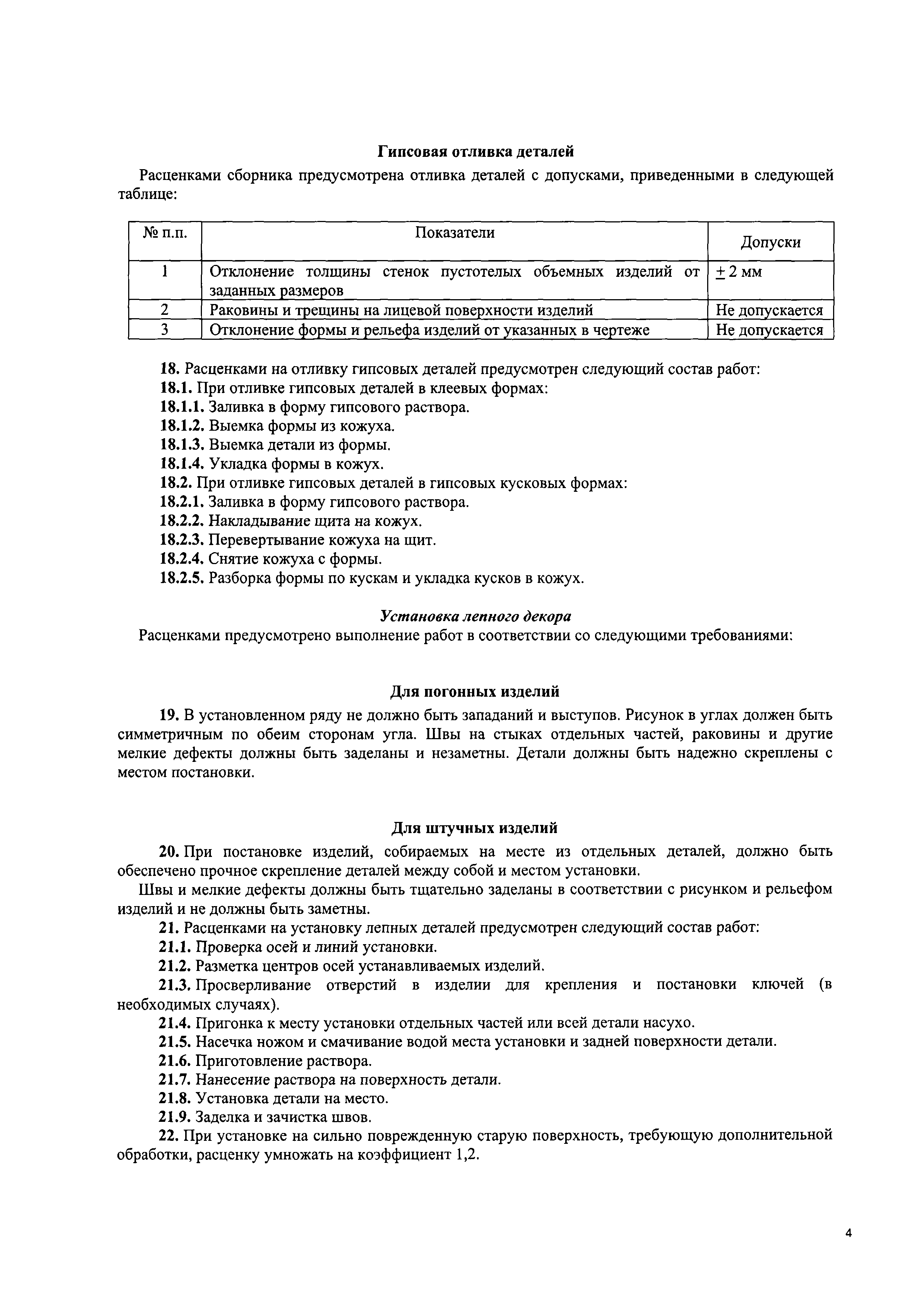
Область применения:Сборником предусмотрены расценки на реставрацию и воссоздание гипсового архитектурно-лепного декора в интерьерах или на фасадах памятников архитектуры, охраняемых государством.
Оглавление:Техническая часть
Раздел 1. Реставрация лепного декора
Раздел 2. Воссоздание лепного декора
Утверждён:31.07.2017 Минстрой России (Russian Federation Minstroy 1062/пр)
Издан: С сайта: (2017 г. )
Нормативные ссылки: