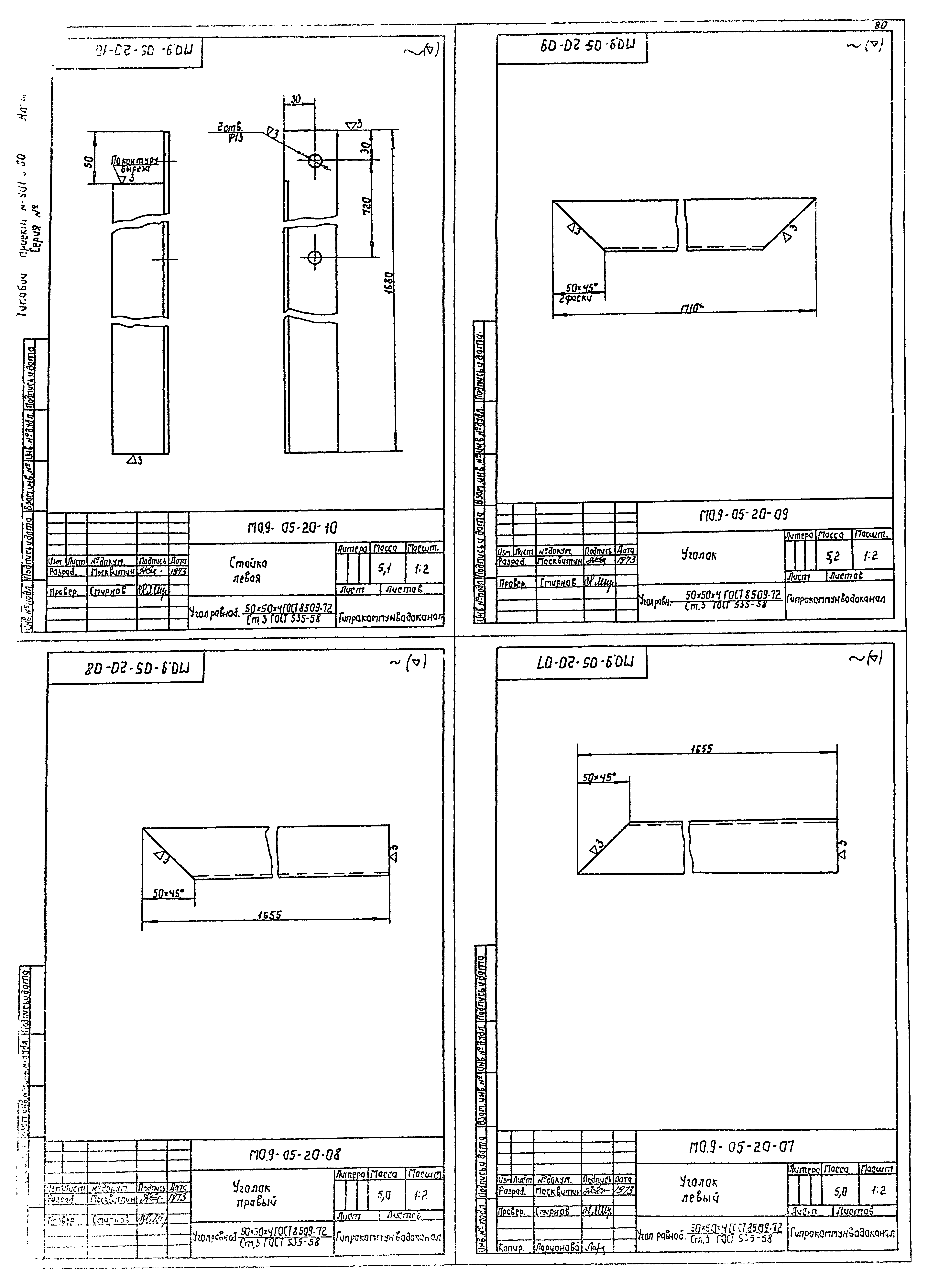
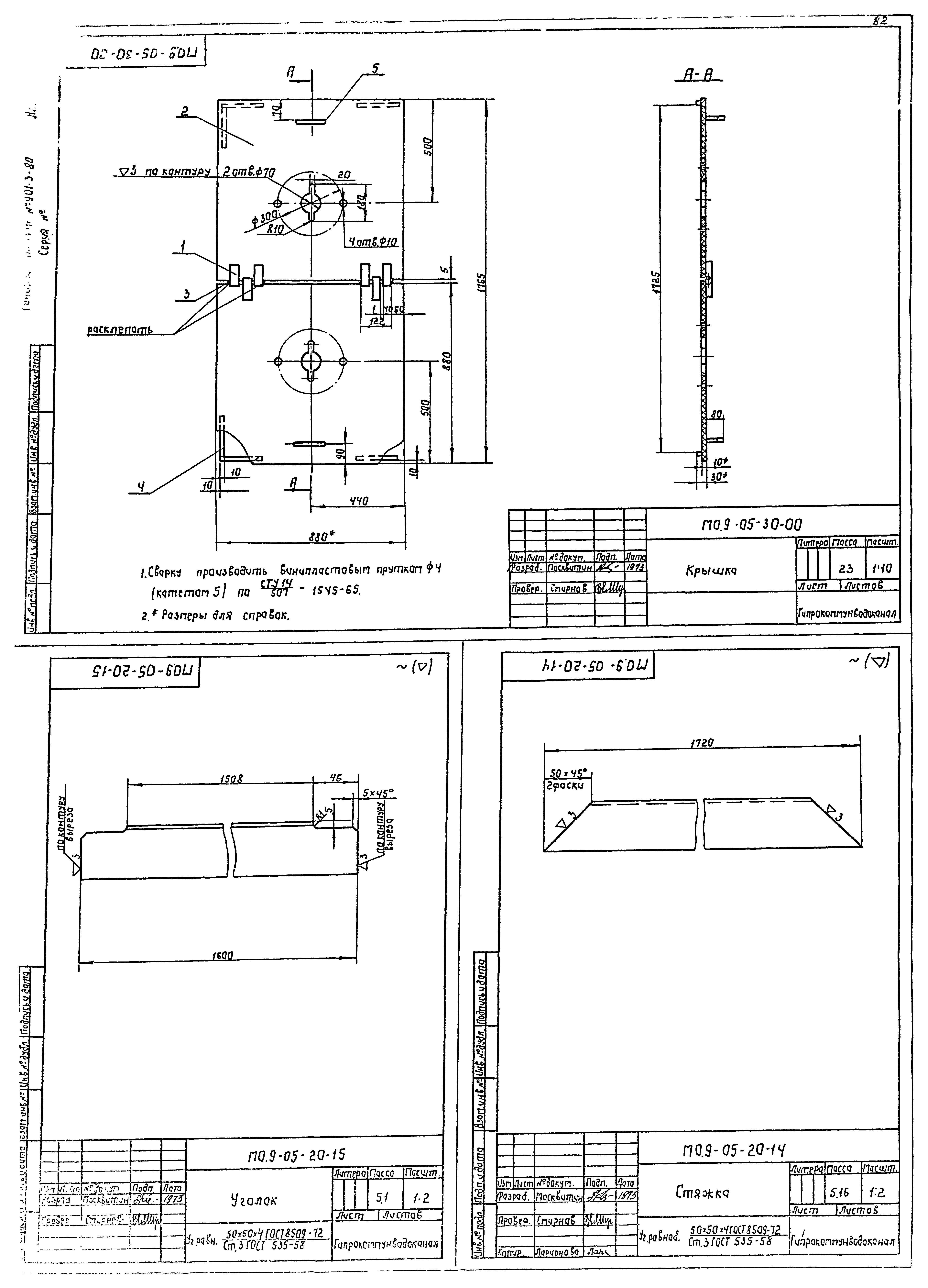
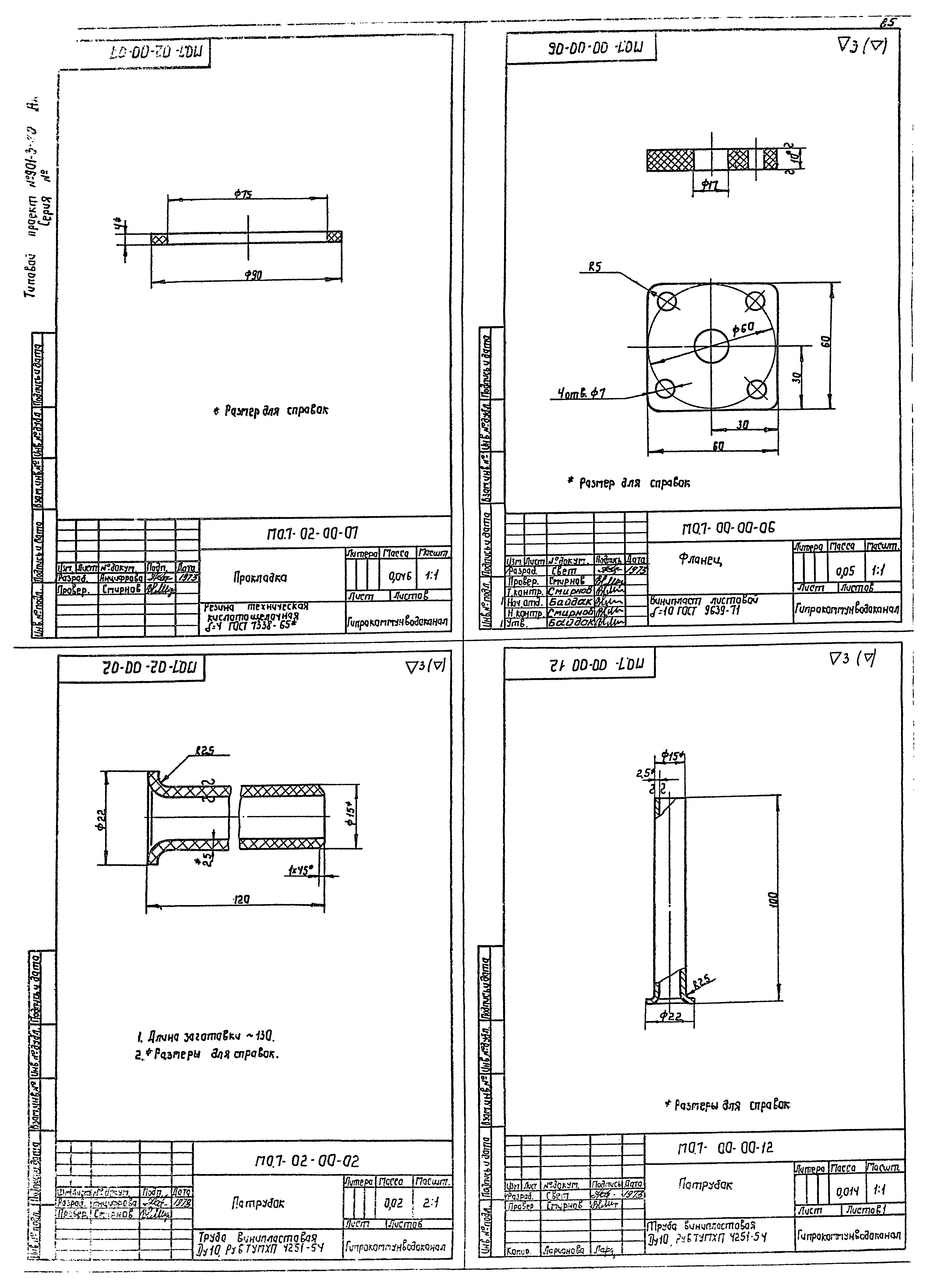
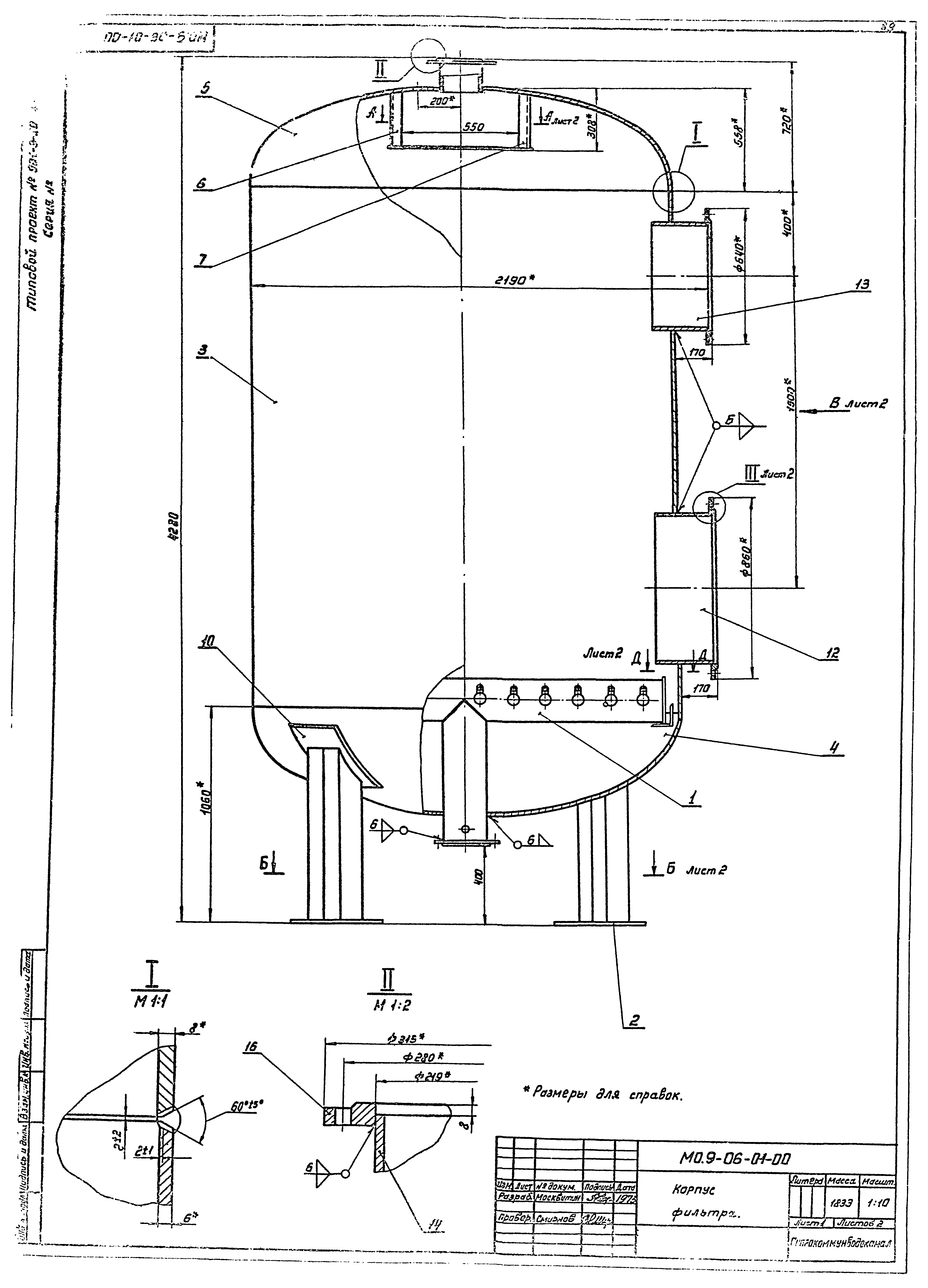
Скачать Типовой проект 901-3-80 Альбом III. Нестандартизированное оборудованиеДата актуализации: 01.01.2021
|
| Обозначение: | Типовой проект 901-3-80 |
| Обозначение англ: | 901-3-80 |
| Статус: | заменен |
| Название рус.: | Альбом III. Нестандартизированное оборудование |
| Дата добавления в базу: | 01.01.2018 |
| Дата актуализации: | 01.01.2021 |
| Дата введения: | 14.10.1974 |
| Дата окончания срока действия: | 01.07.1986 |
| Разработан: | Гипрокоммунводоканал Минжилкомхоза РСФСР |
| Утверждён: | 14.10.1974 МЖКХ РСФСР (23ТД) |
| Чем заменён: |
|











































































































