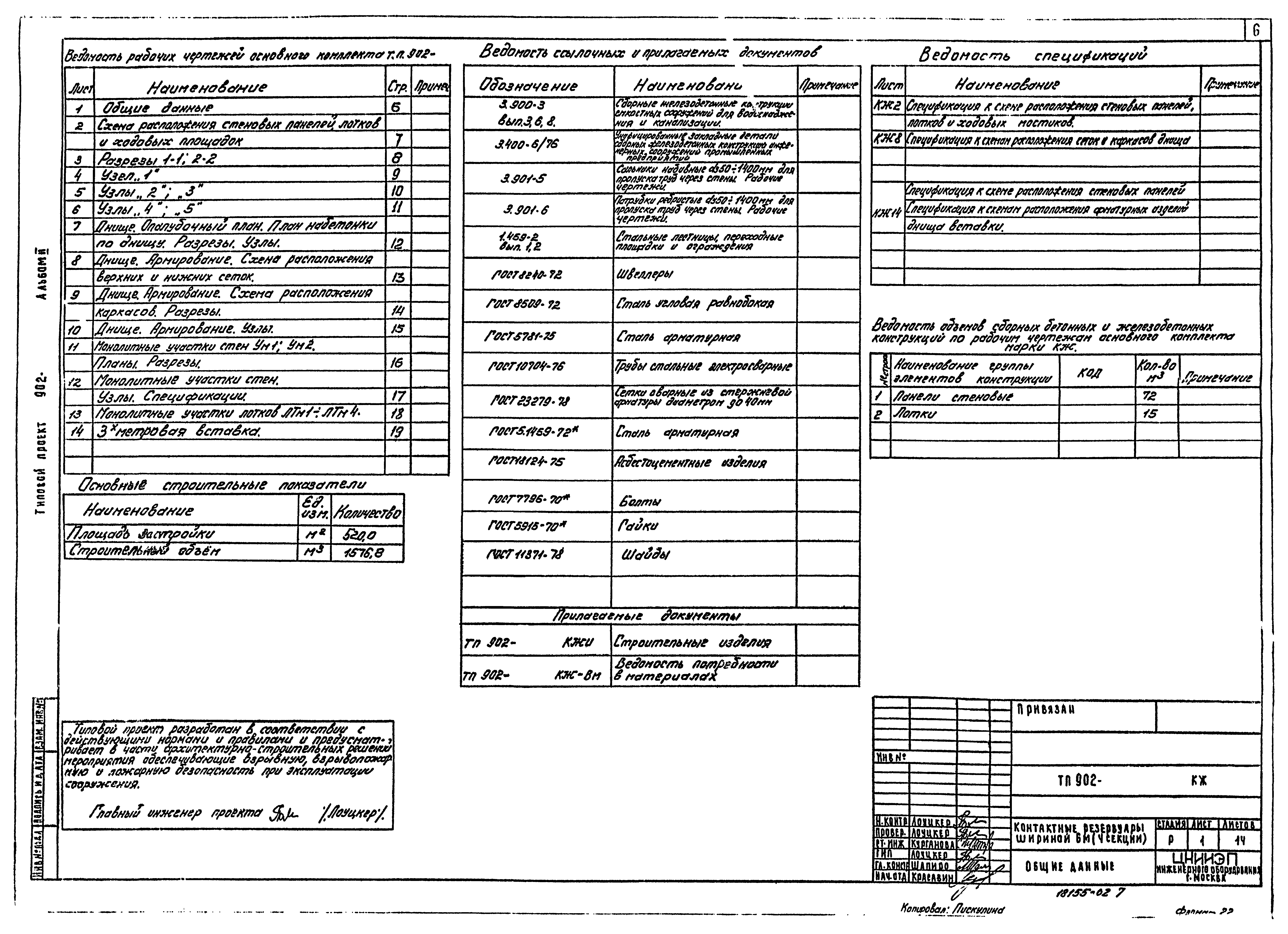
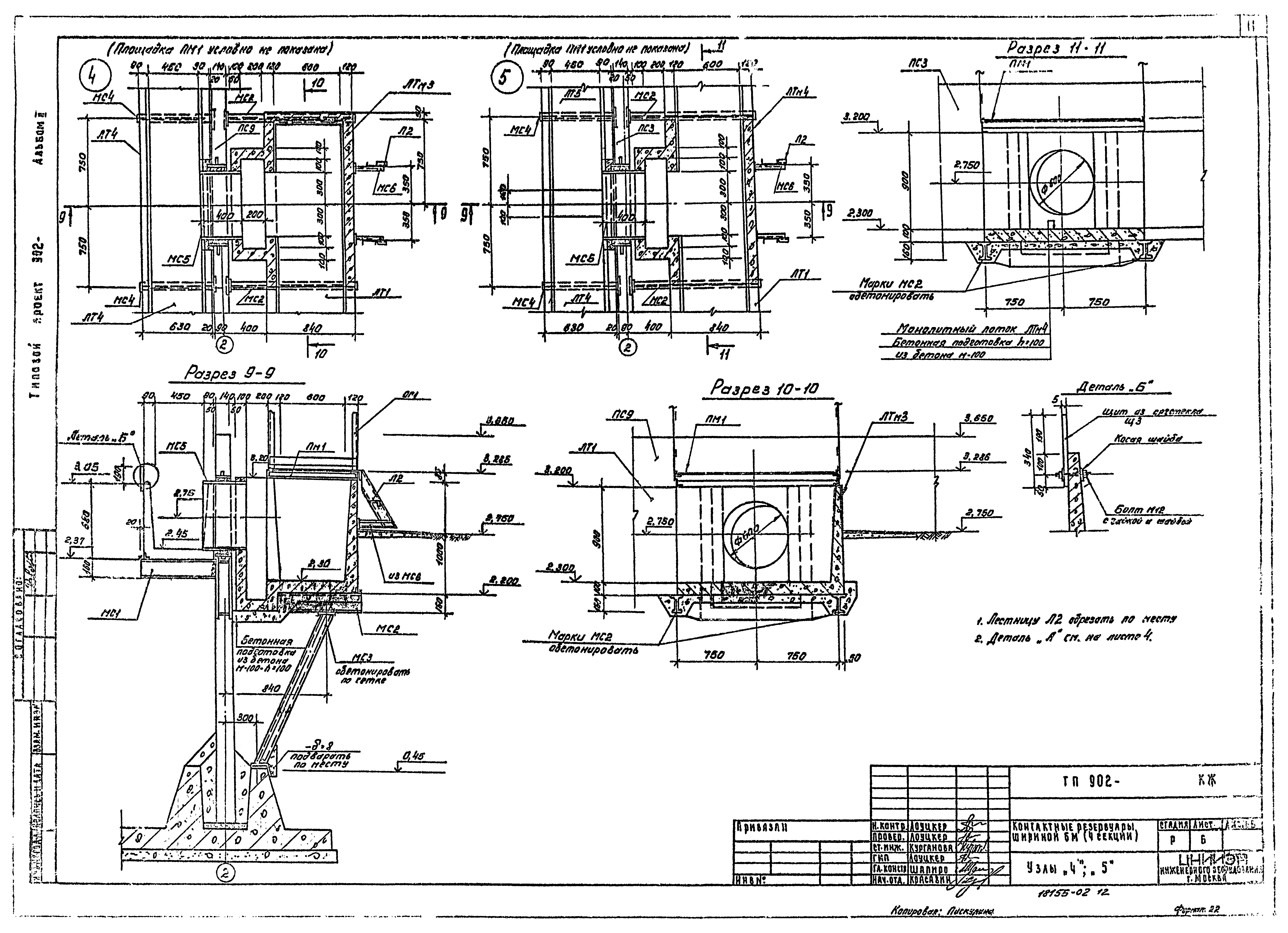
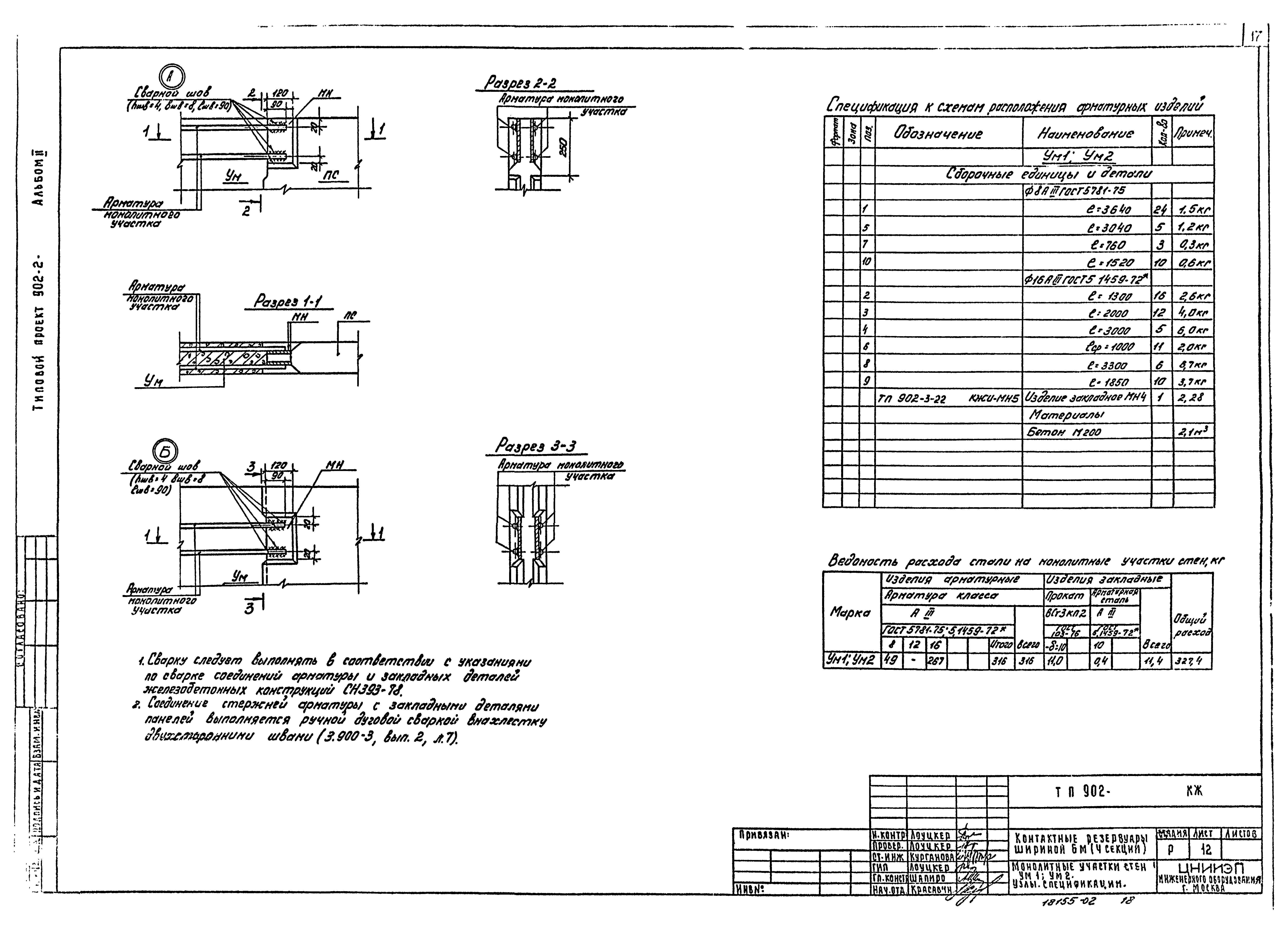
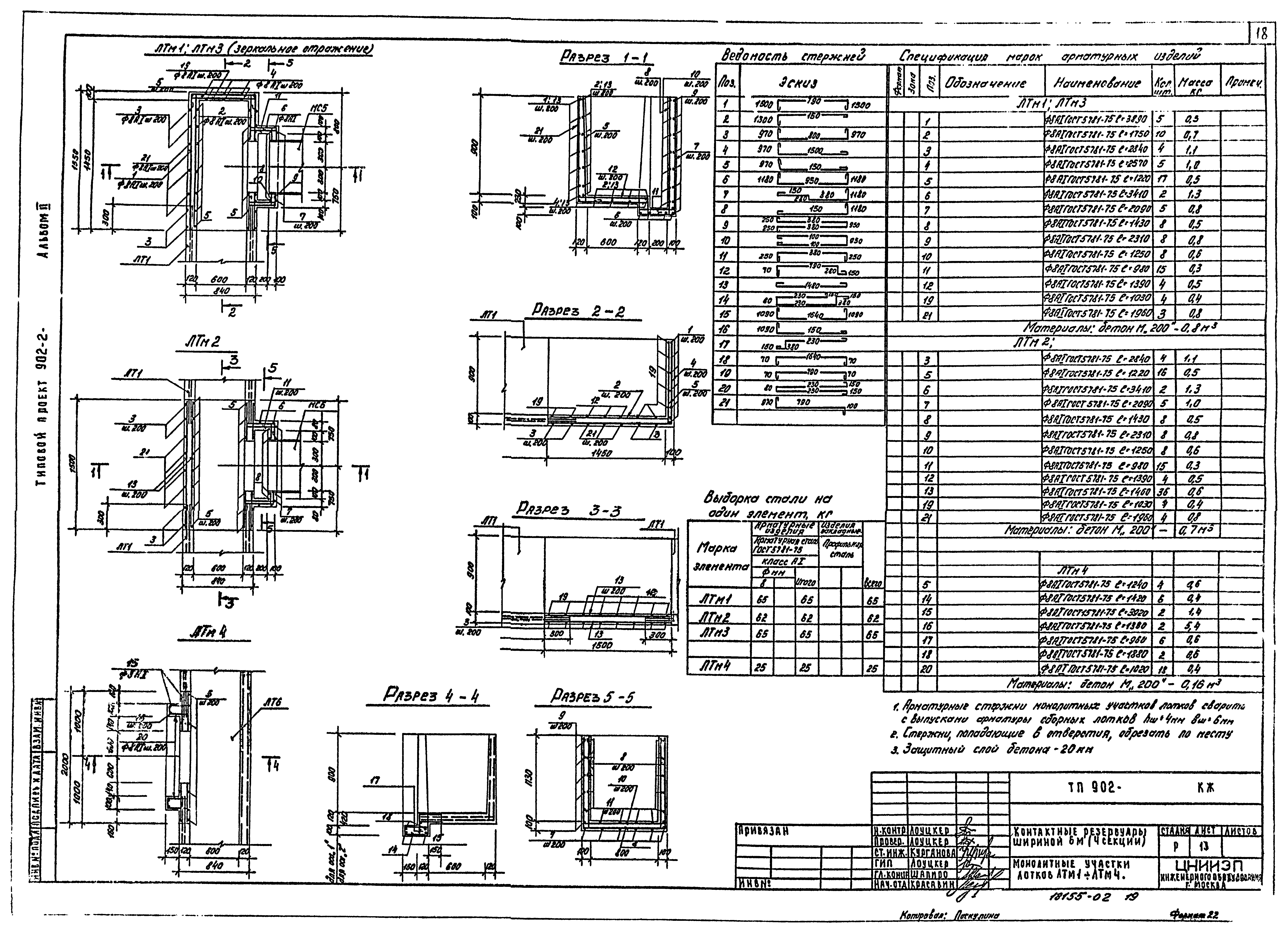
Скачать Типовой проект 902-3-22 Альбом II. Технологическая, строительная части. Заказная спецификацияДата актуализации: 01.01.2021 Типовой проект 902-3-22
Альбом II. Технологическая, строительная части. Заказная спецификация| Обозначение: | Типовой проект 902-3-22 | | Обозначение англ: | 902-3-22 | | Статус: | не определен законодательством | | Название рус.: | Альбом II. Технологическая, строительная части. Заказная спецификация | | Дата добавления в базу: | 01.01.2018 | | Дата актуализации: | 01.01.2021 | | Дата введения: | 24.03.1982 | | Дата окончания срока действия: | 30.06.2003 | | Разработан: | ЦНИИЭП
| | Утверждён: | 22.07.1974 Госгражданстрой (Gosgrazhdanstroy 164)
| | Издан: | ЦИТП Госстроя СССР (CITP, Gosstroy (USSR) 1983 г. )
| | Заменяет собой: | |
                      
|