Скачать Типовой проект 903-1-129/77 Альбом I. Тепломеханическая часть, электротехническая часть, регулирование и контрольДата актуализации: 01.01.2021 Типовой проект 903-1-129/77
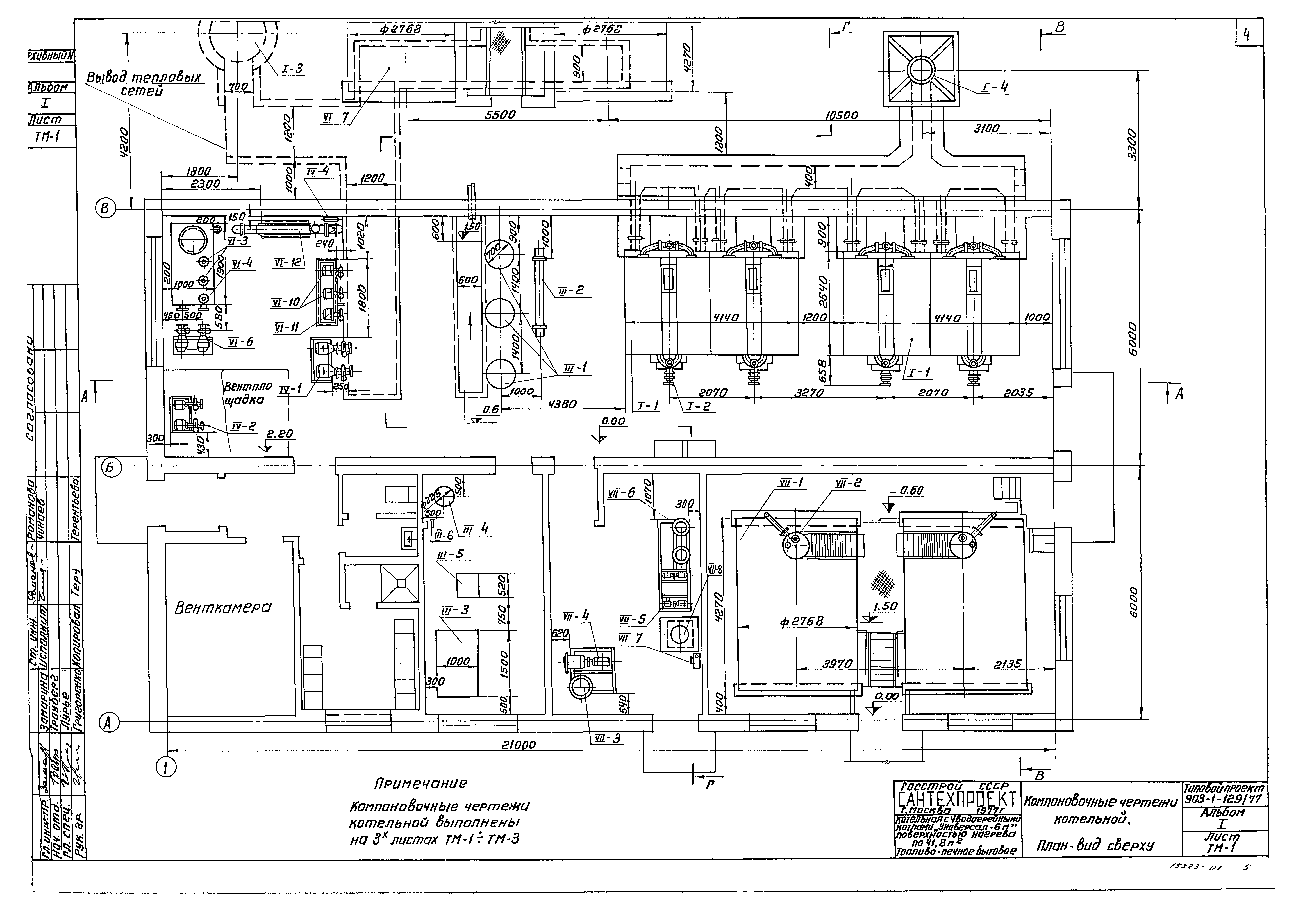
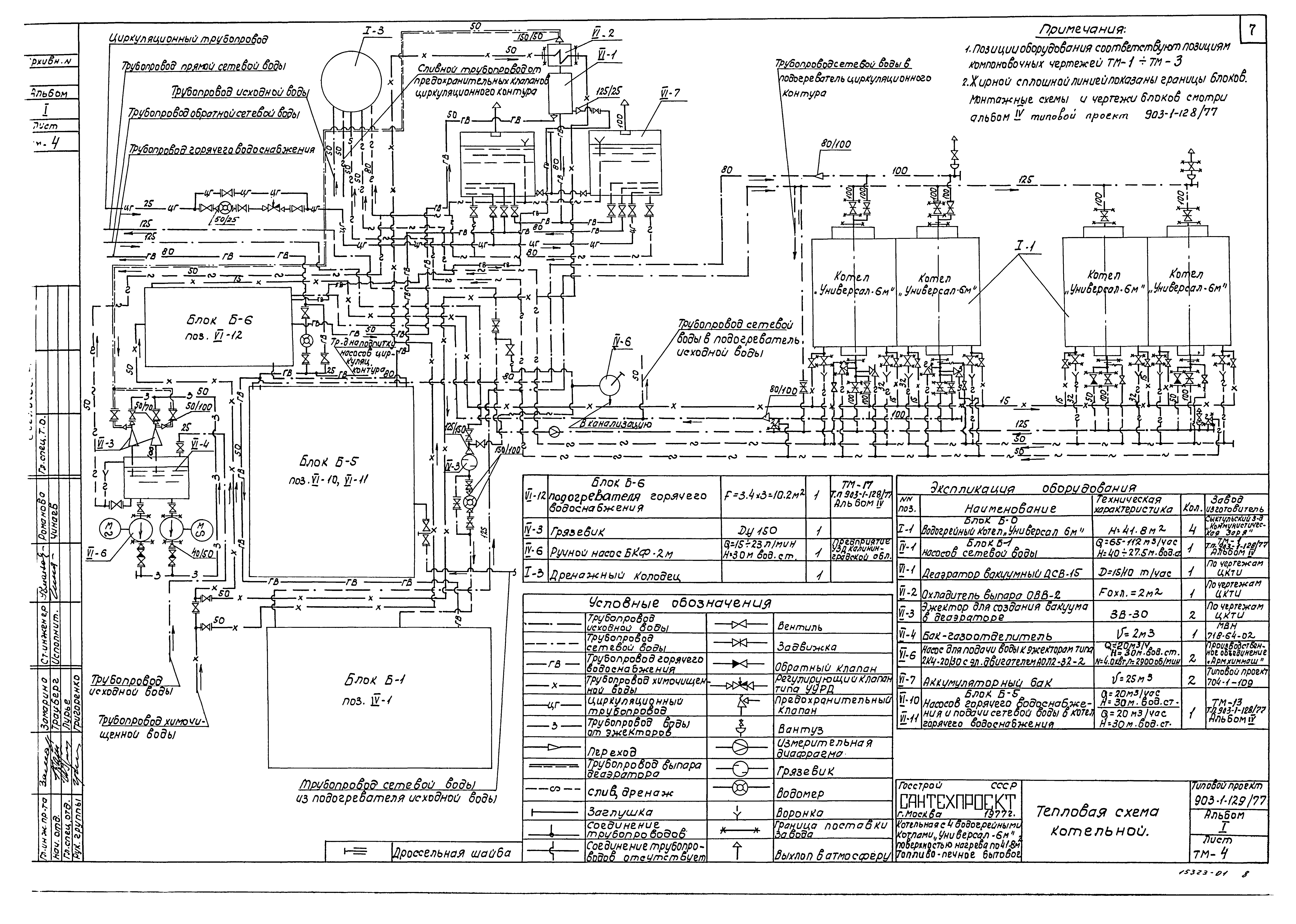
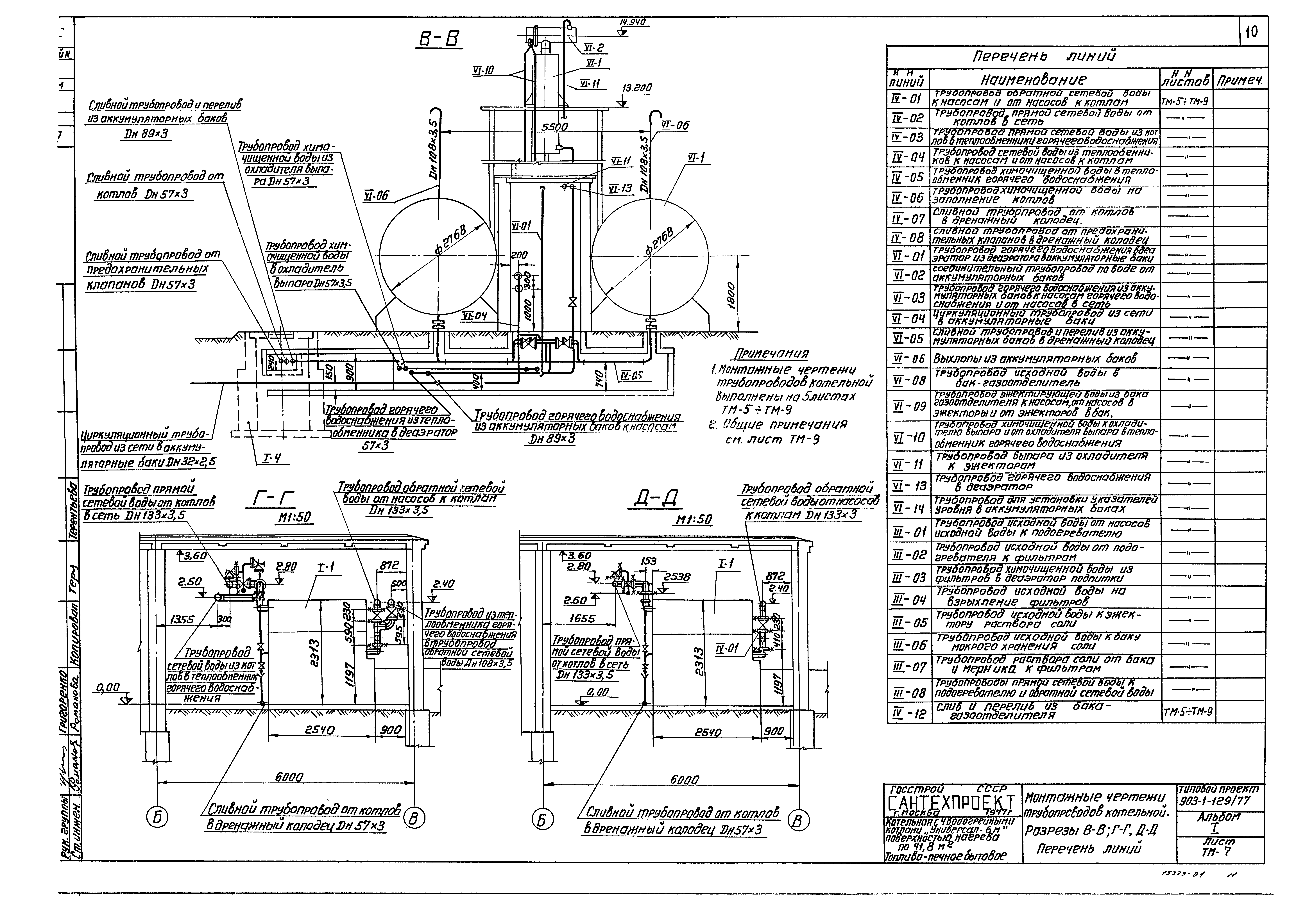
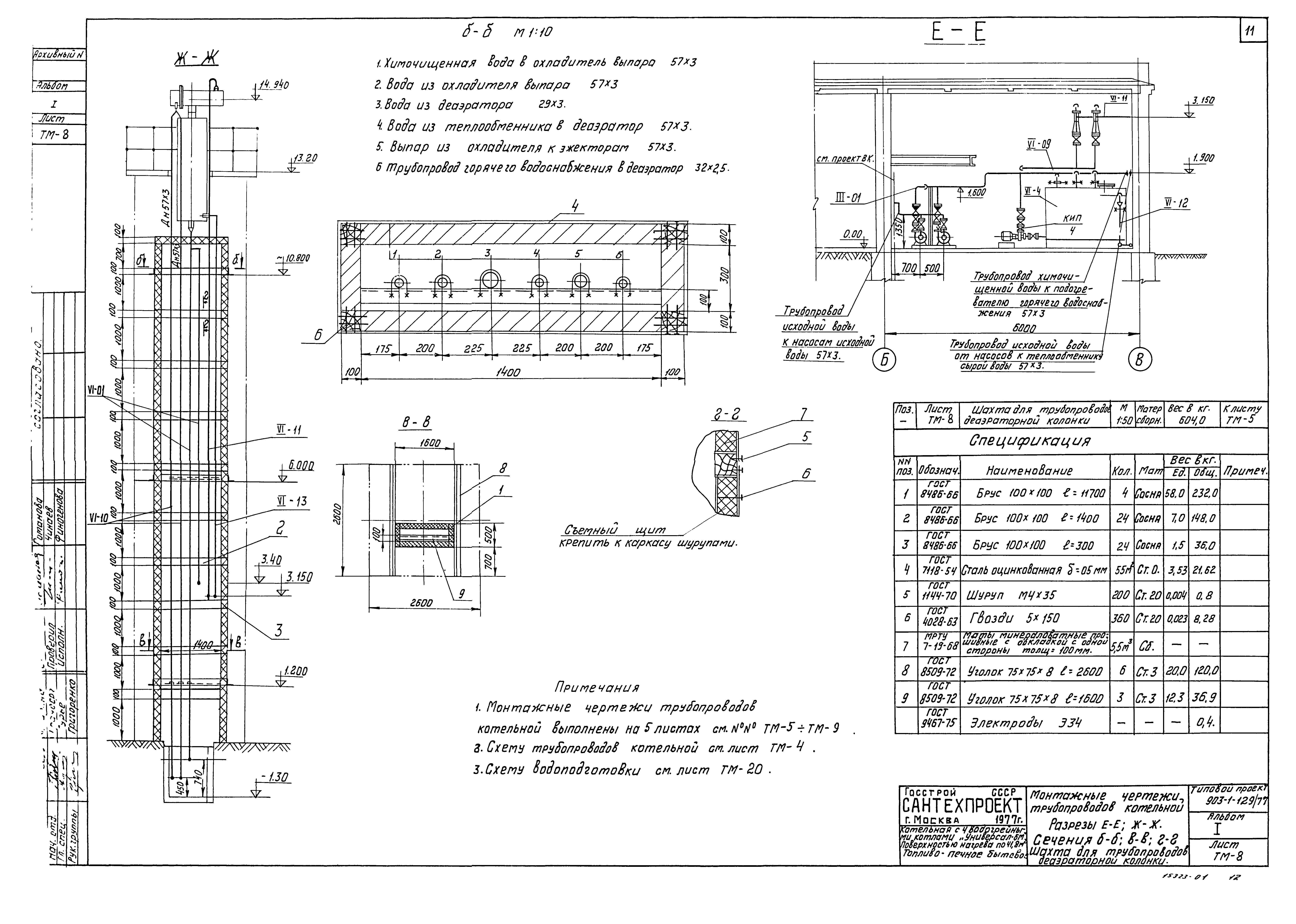
Альбом I. Тепломеханическая часть, электротехническая часть, регулирование и контроль| Обозначение: | Типовой проект 903-1-129/77 | | Обозначение англ: | 903-1-129/77 | | Статус: | отменен | | Название рус.: | Альбом I. Тепломеханическая часть, электротехническая часть, регулирование и контроль | | Дата добавления в базу: | 01.01.2018 | | Дата актуализации: | 01.01.2021 | | Дата введения: | 21.03.1978 | | Дата окончания срока действия: | 01.02.1984 | | Разработан: | ГПИ Сантехпроект Госстроя СССР
| | Утверждён: | 21.03.1978 ГПИ Сантехпроект (35)
| | Издан: | ЦИТП Госстроя СССР (CITP, Gosstroy (USSR) 1979 г. )
| | Заменяет собой: | | | Нормативные ссылки: | |
                                            
|