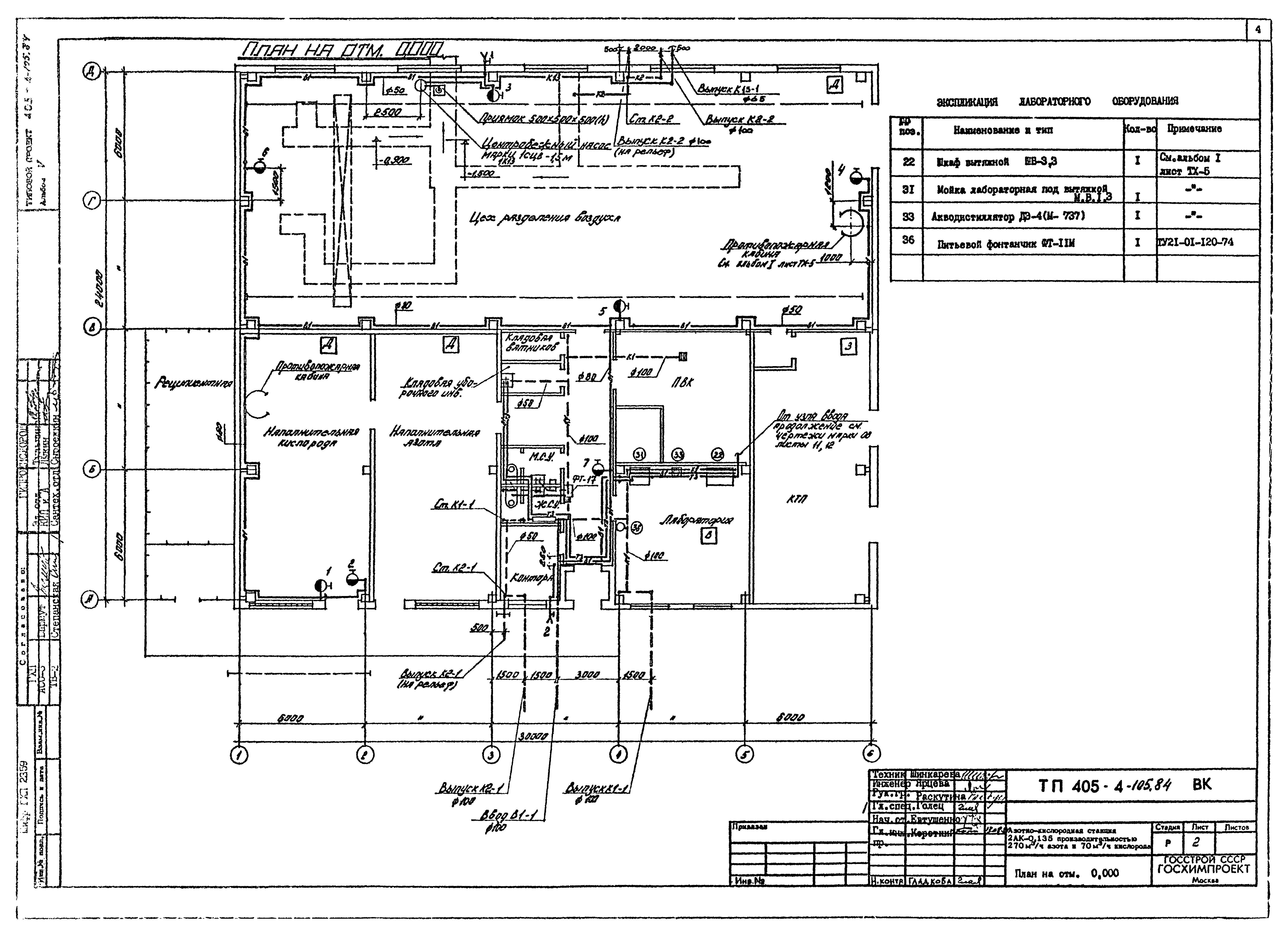
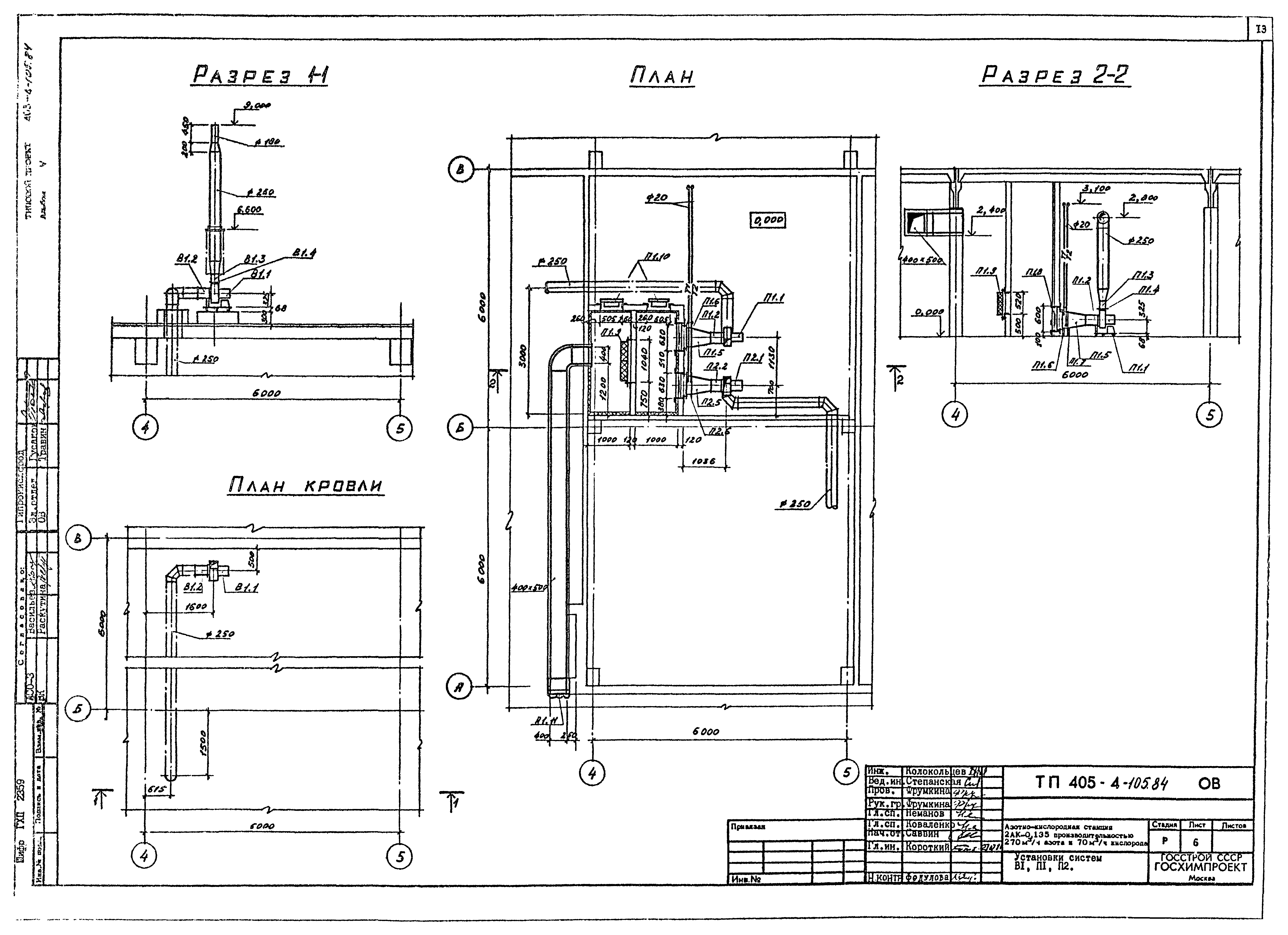
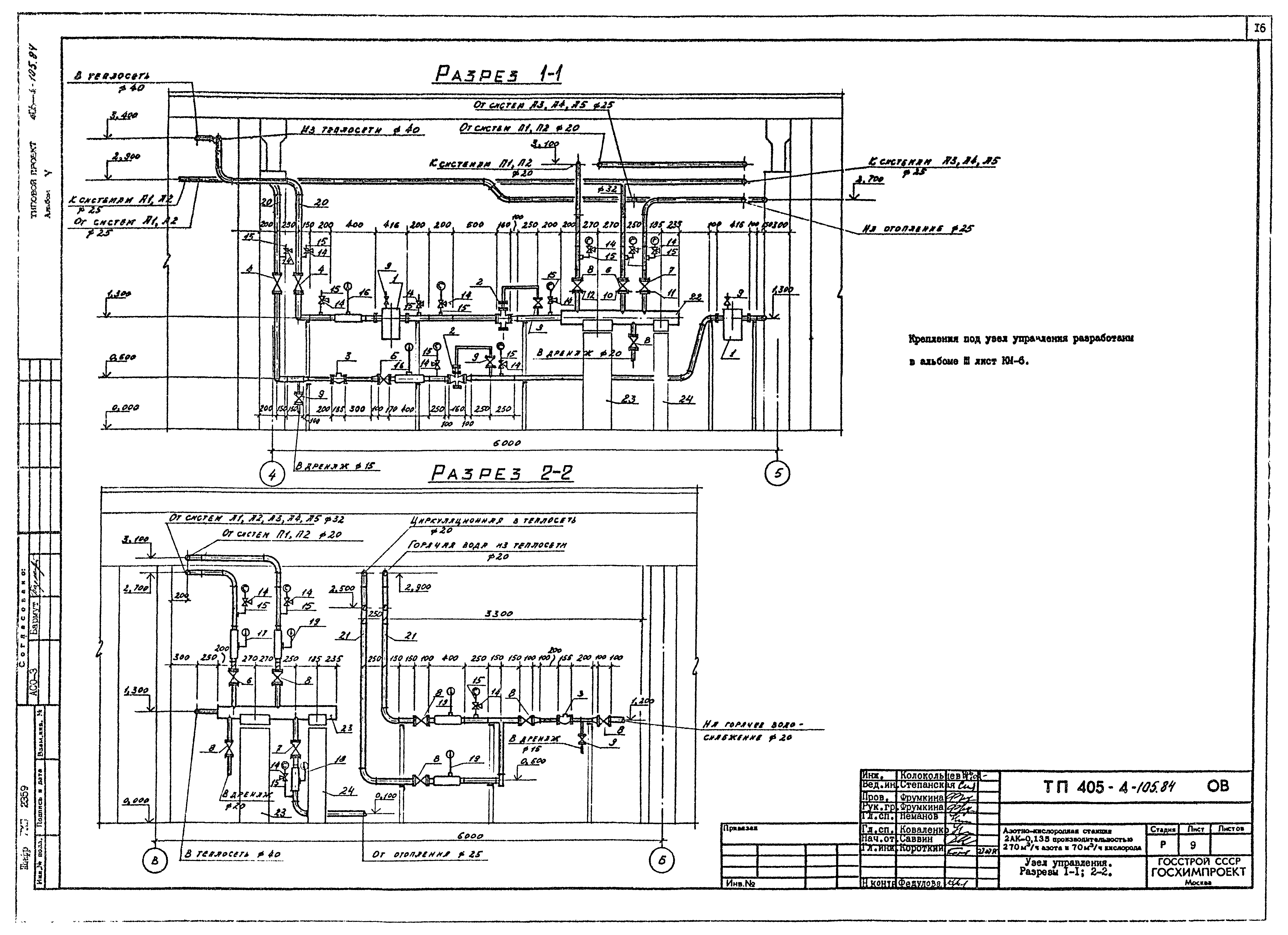
Скачать Типовой проект 405-4-105.84 Альбом V. Внутренний водопровод и канализация. Отопление и вентиляцияДата актуализации: 01.01.2021
|
| Обозначение: | Типовой проект 405-4-105.84 |
| Обозначение англ: | 405-4-105.84 |
| Статус: | отменен |
| Название рус.: | Альбом V. Внутренний водопровод и канализация. Отопление и вентиляция |
| Дата добавления в базу: | 01.01.2018 |
| Дата актуализации: | 01.01.2021 |
| Дата введения: | 27.11.1984 |
| Дата окончания срока действия: | 01.02.1987 |
| Разработан: | Гипрокислород Минхимпрома СССР |
| Утверждён: | 11.05.1984 Минхимпром (42-1449а) |
| Издан: | ЦИТП Госстроя СССР (CITP, Gosstroy (USSR) 1985 г. ) |
| Заменяет собой: |
|
| Нормативные ссылки: |




















