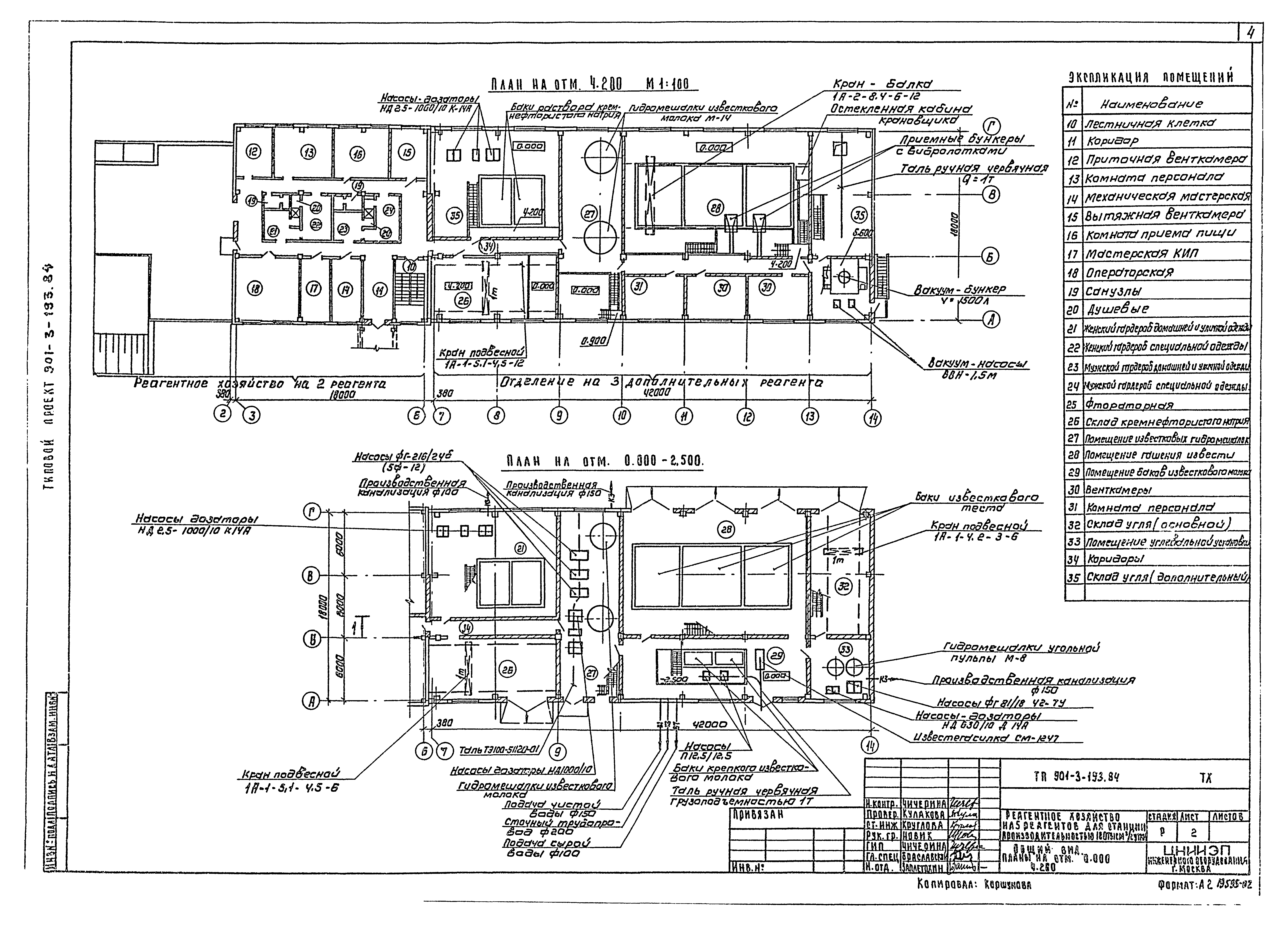
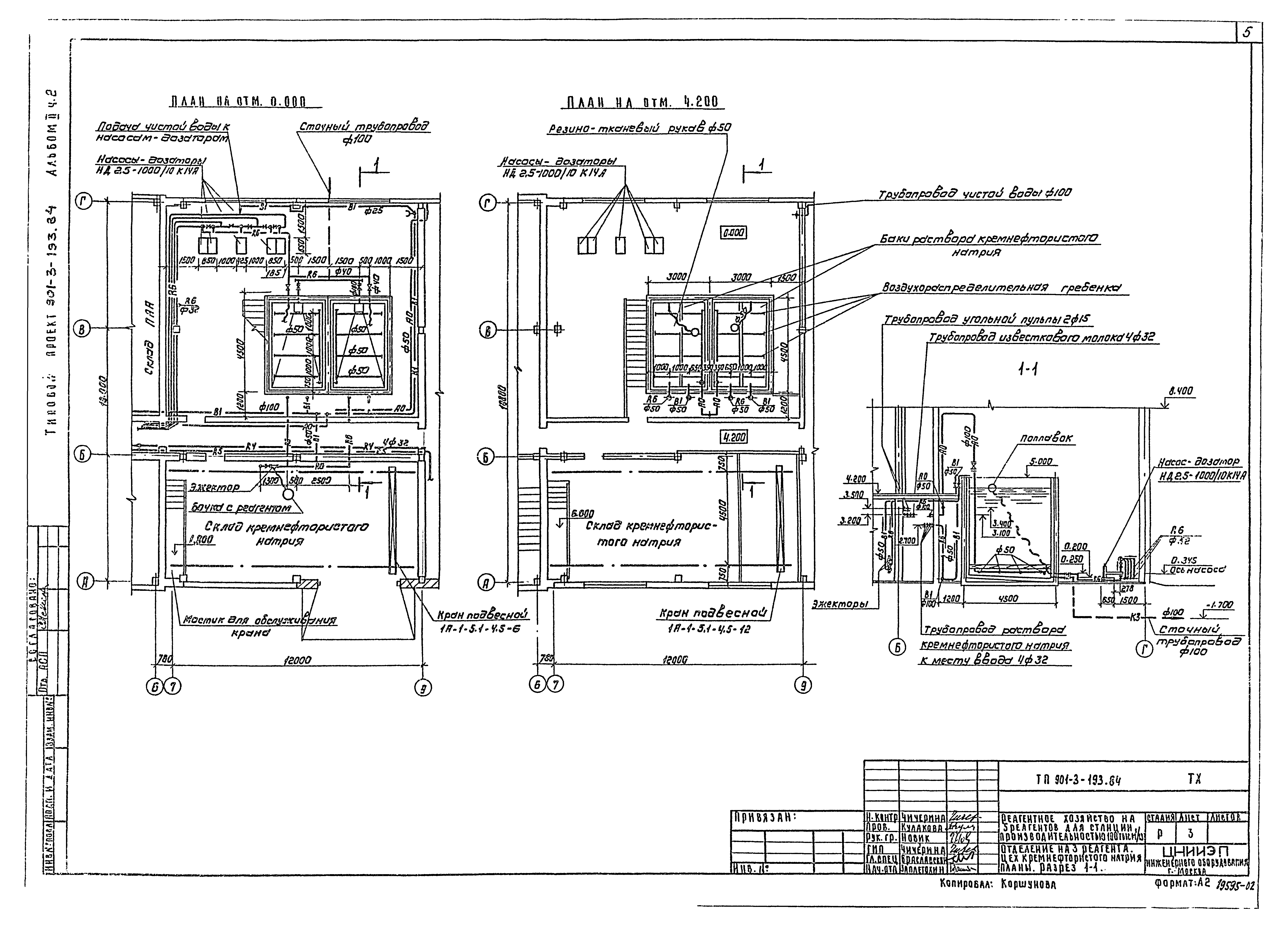
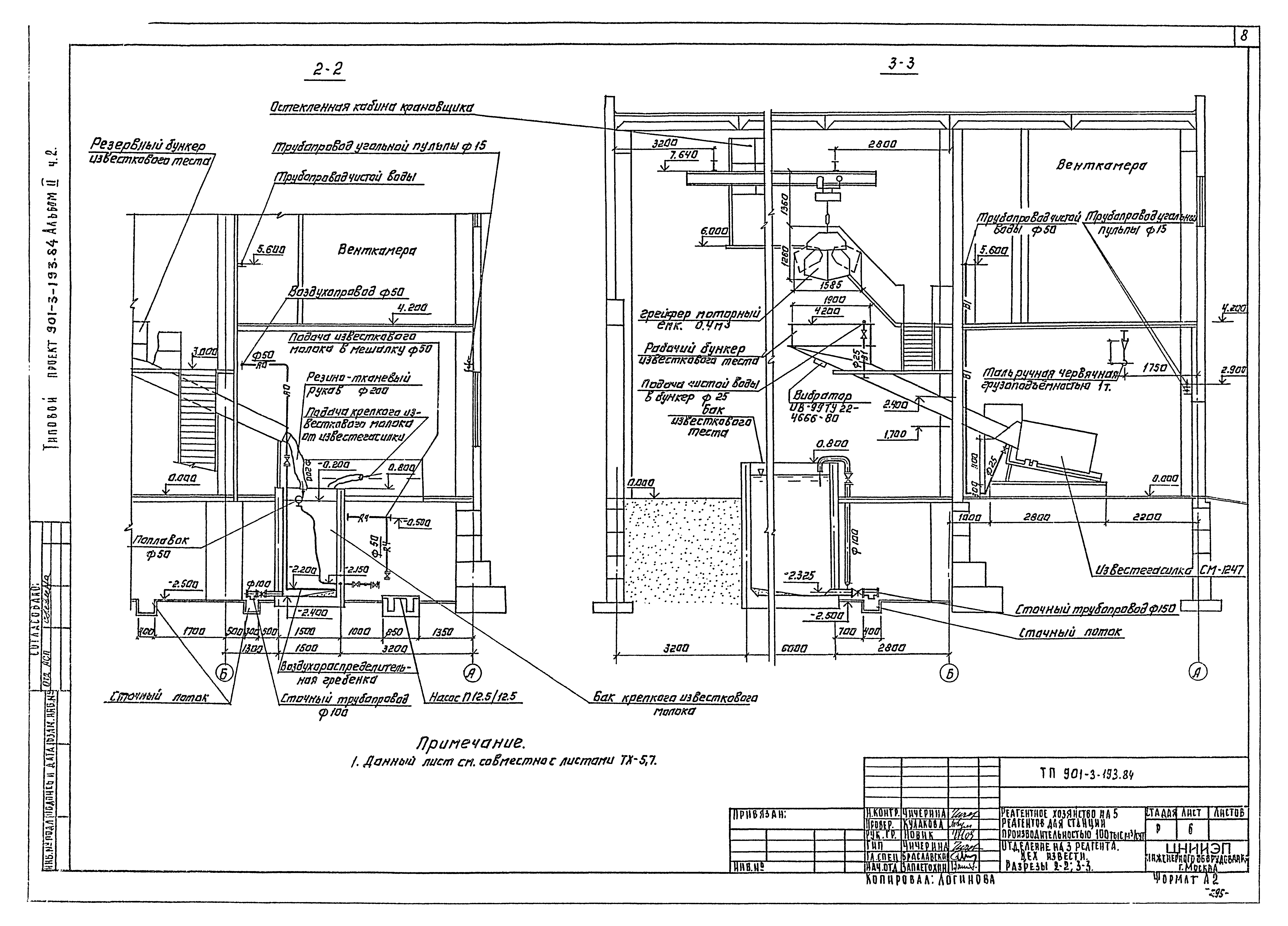
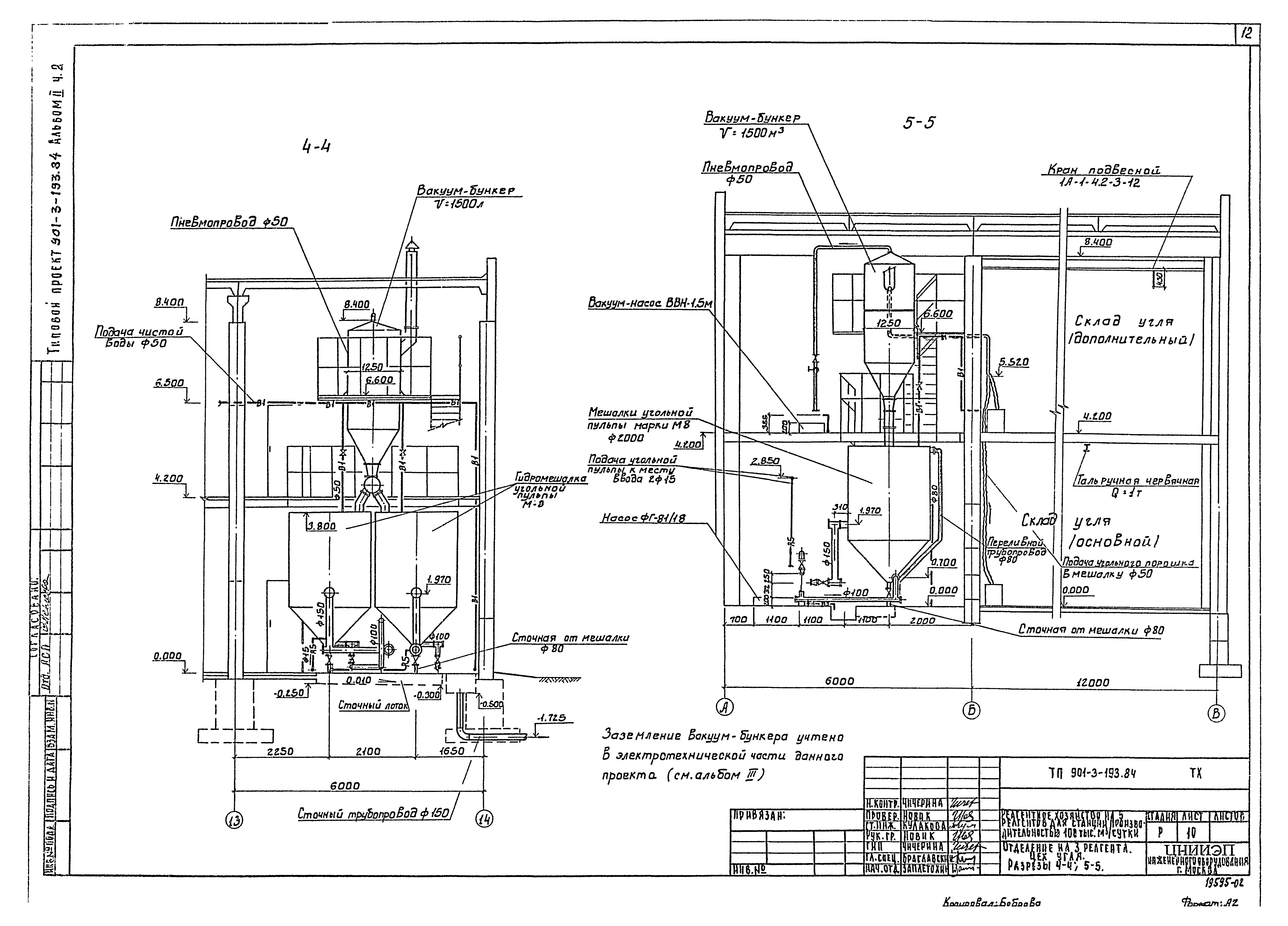
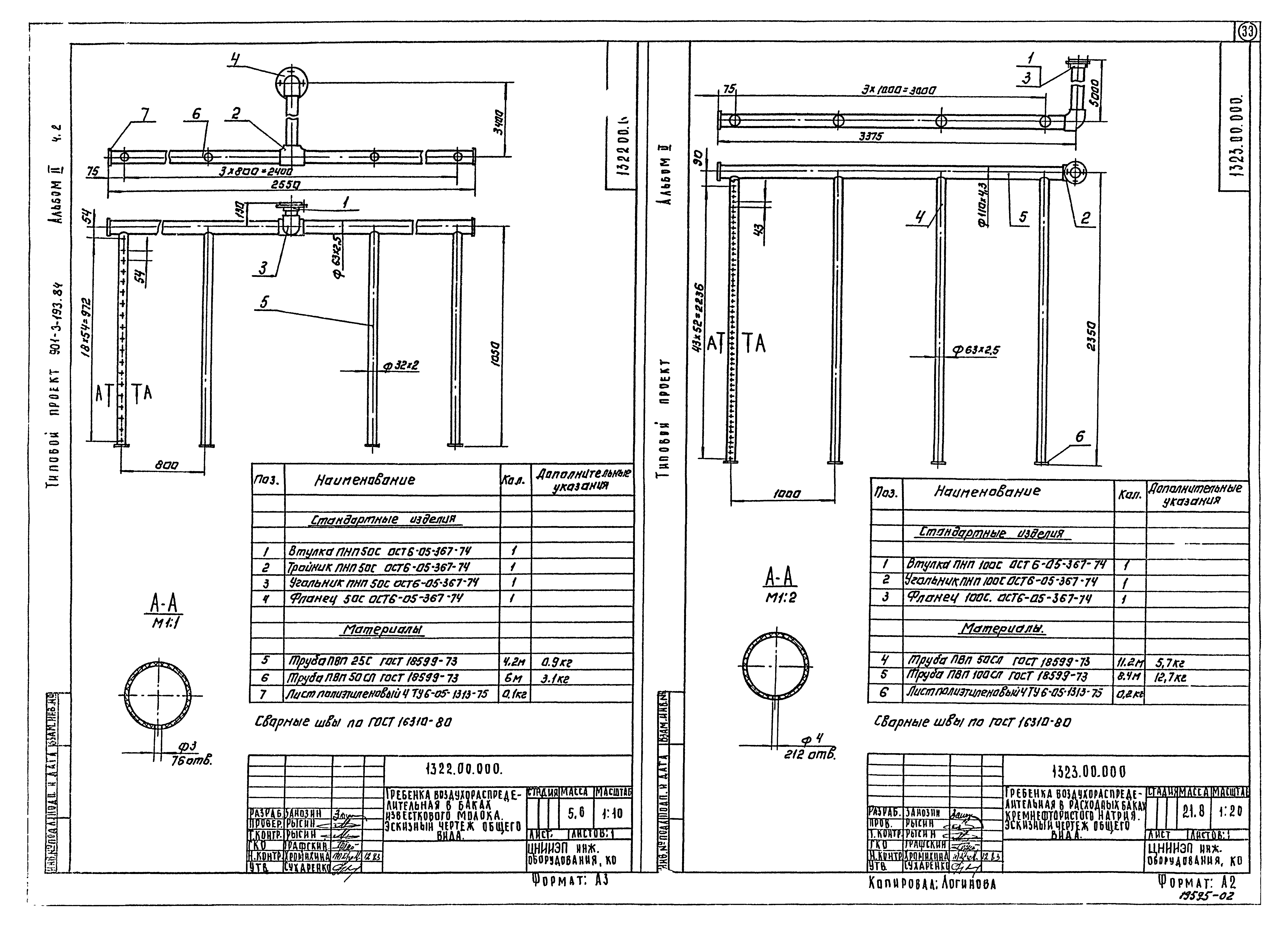
Скачать Типовой проект 901-3-193.84 Альбом II. Часть II. Технологическая, санитарно-техническая части, нестандартизированное оборудование. Отделение реагентного хозяйства на 3 дополнительных реагентаДата актуализации: 01.01.2021 Типовой проект 901-3-193.84
Альбом II. Часть II. Технологическая, санитарно-техническая части, нестандартизированное оборудование. Отделение реагентного хозяйства на 3 дополнительных реагента| Обозначение: | Типовой проект 901-3-193.84 | | Обозначение англ: | 901-3-193.84 | | Статус: | не определен законодательством | | Название рус.: | Альбом II. Часть II. Технологическая, санитарно-техническая части, нестандартизированное оборудование. Отделение реагентного хозяйства на 3 дополнительных реагента | | Дата добавления в базу: | 01.01.2018 | | Дата актуализации: | 01.01.2021 | | Дата введения: | 23.12.1983 | | Дата окончания срока действия: | 30.06.2003 | | Разработан: | ЦНИИЭП инженерного оборудования
| | Утверждён: | 31.10.1980 Госгражданстрой (Gosgrazhdanstroy 297)
| | Издан: | ЦИТП Госстроя СССР (CITP, Gosstroy (USSR) 1984 г. )
|
                                 
|