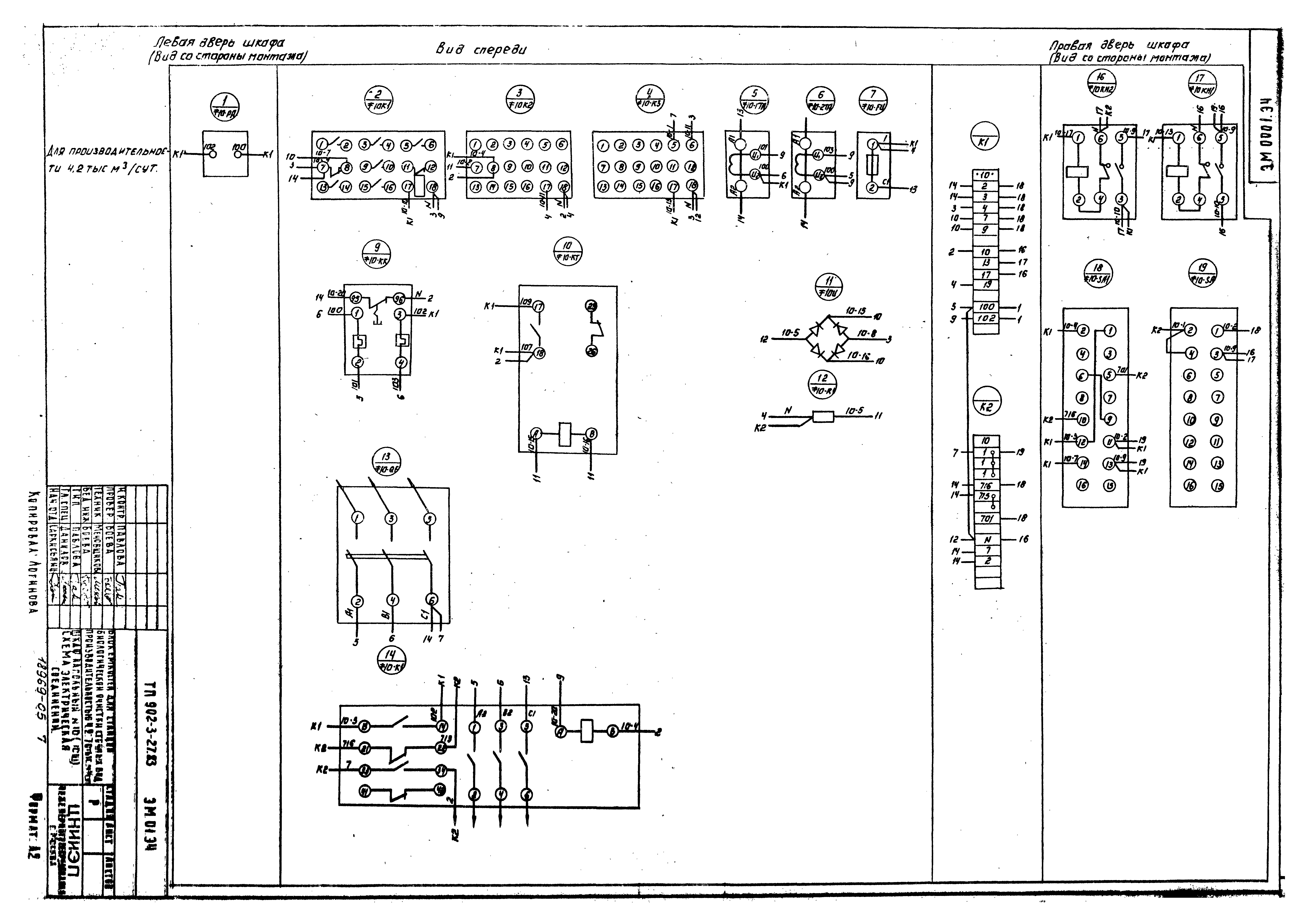
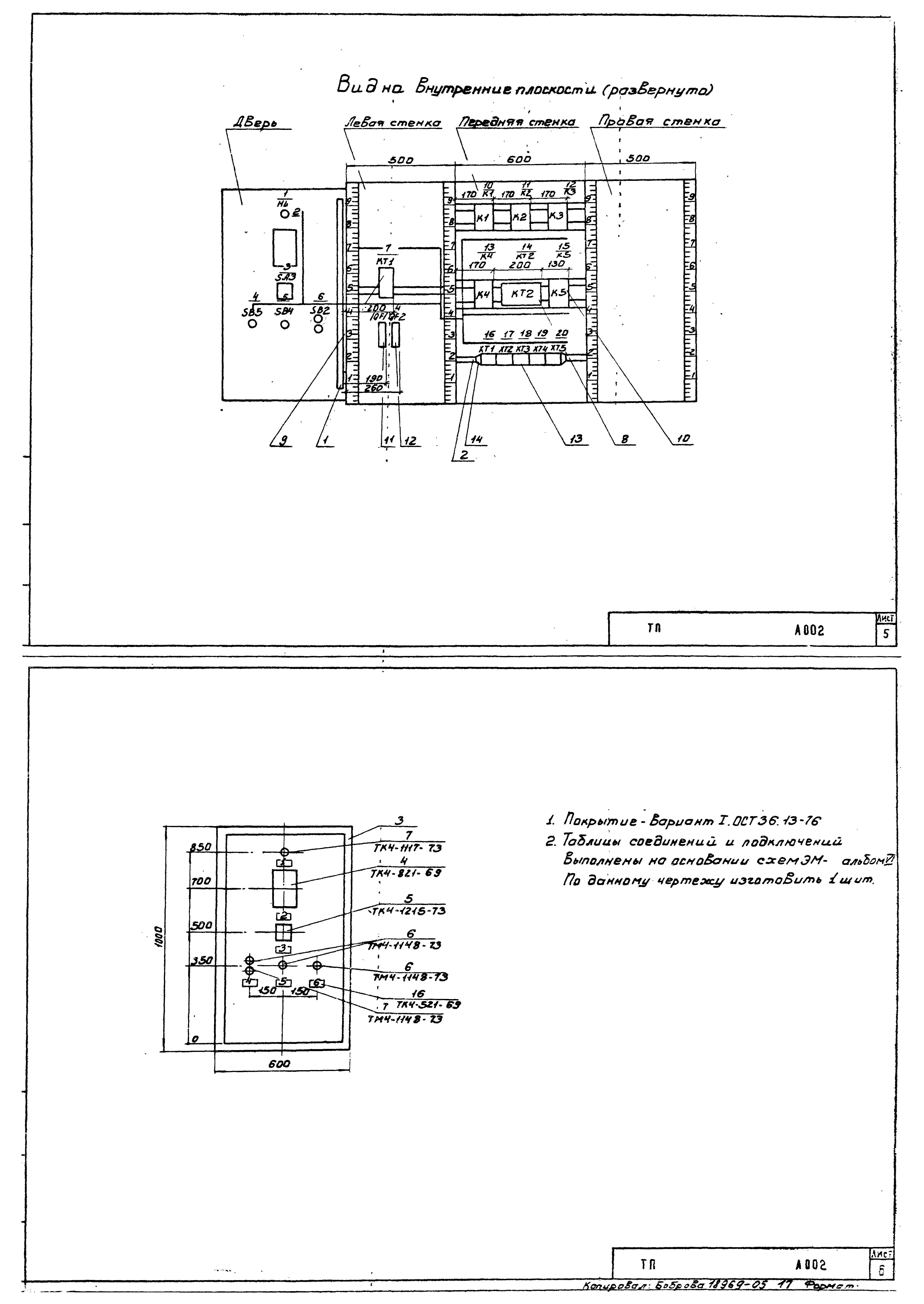
Скачать Типовой проект 902-3-29м.83 Альбом VI. Электротехническая часть. Задание заводам-изготовителям (из ТП 902-3-27.83)Дата актуализации: 01.01.2021
|
| Обозначение: | Типовой проект 902-3-29м.83 |
| Обозначение англ: | 902-3-29м.83 |
| Статус: | не определен законодательством |
| Название рус.: | Альбом VI. Электротехническая часть. Задание заводам-изготовителям (из ТП 902-3-27.83) |
| Дата добавления в базу: | 01.01.2018 |
| Дата актуализации: | 01.01.2021 |
| Дата введения: | 11.05.1983 |
| Дата окончания срока действия: | 30.06.2003 |
| Разработан: | ЦНИИЭП |
| Утверждён: | 14.02.1983 Госгражданстрой (Gosgrazhdanstroy 49) |
| Издан: | ЦИТП Госстроя СССР (CITP, Gosstroy (USSR) 1984 г. ) |



















