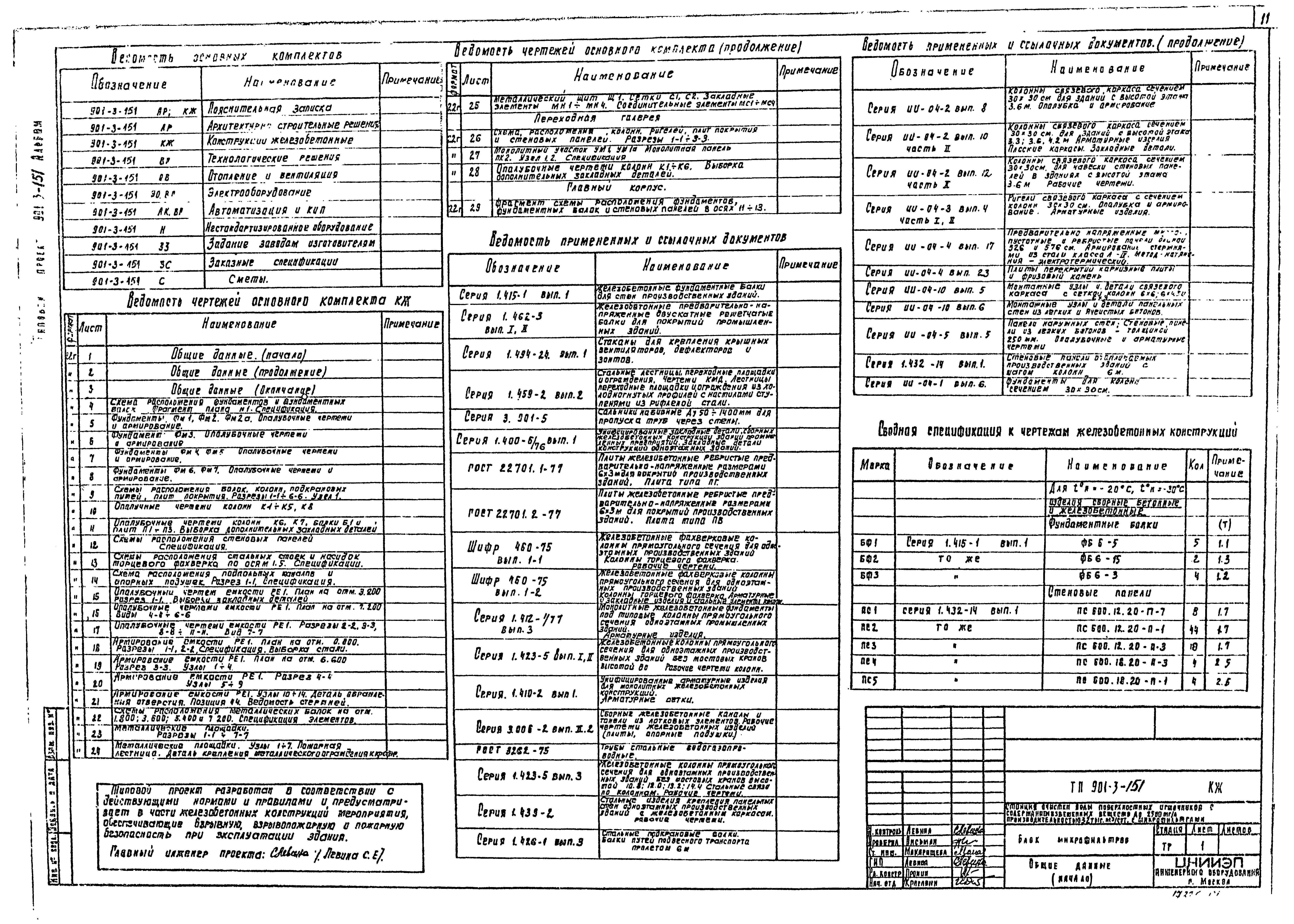
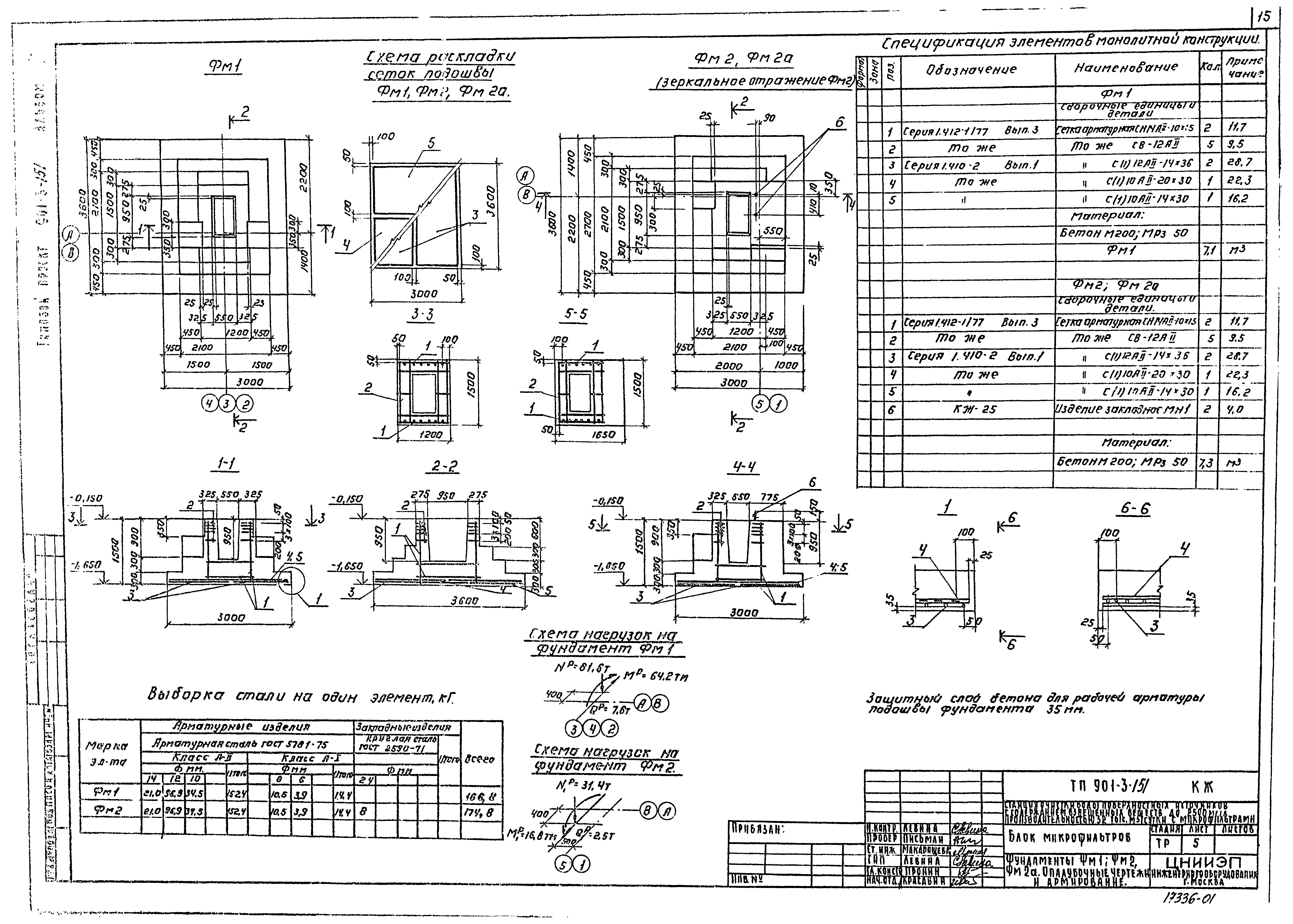
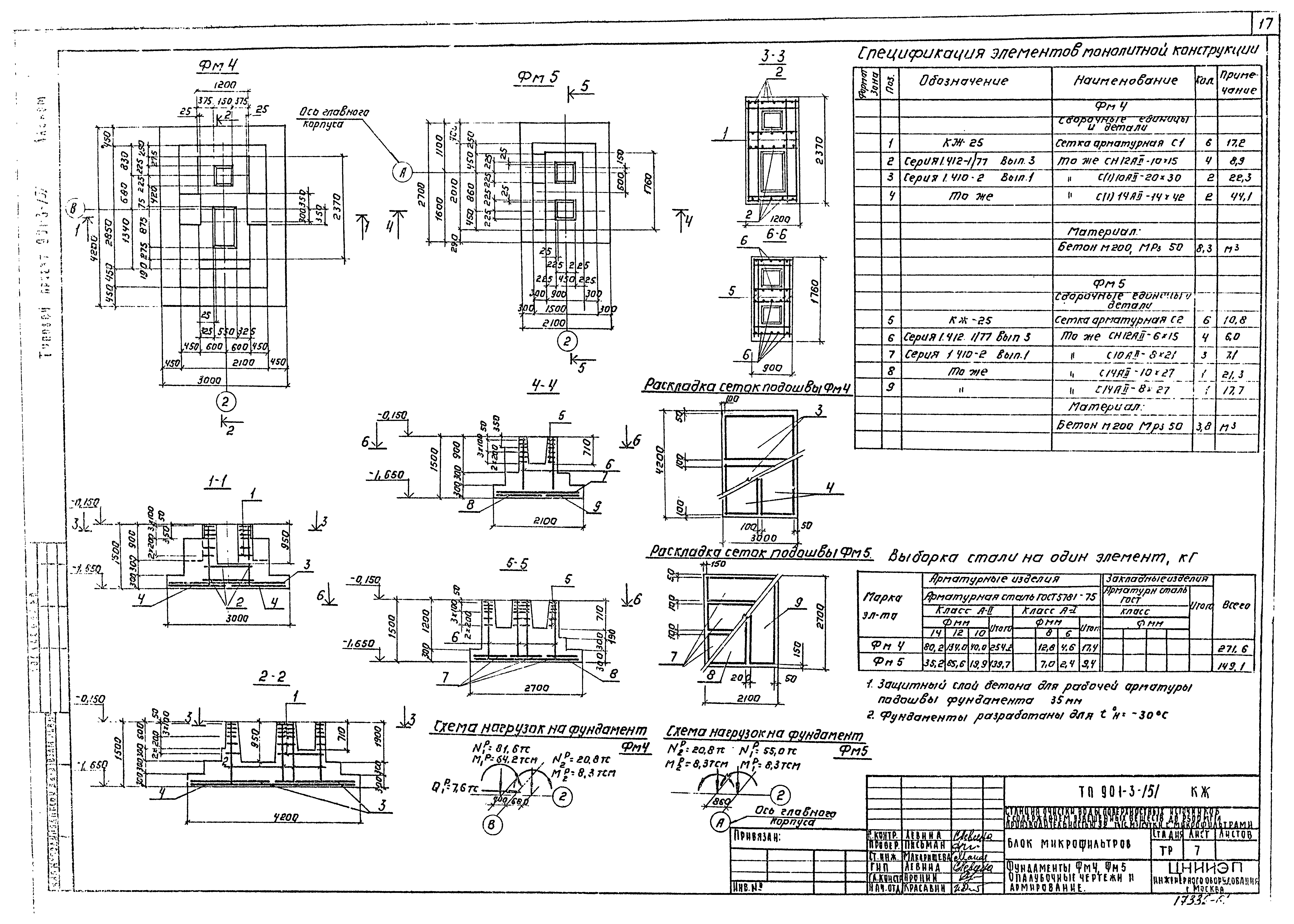
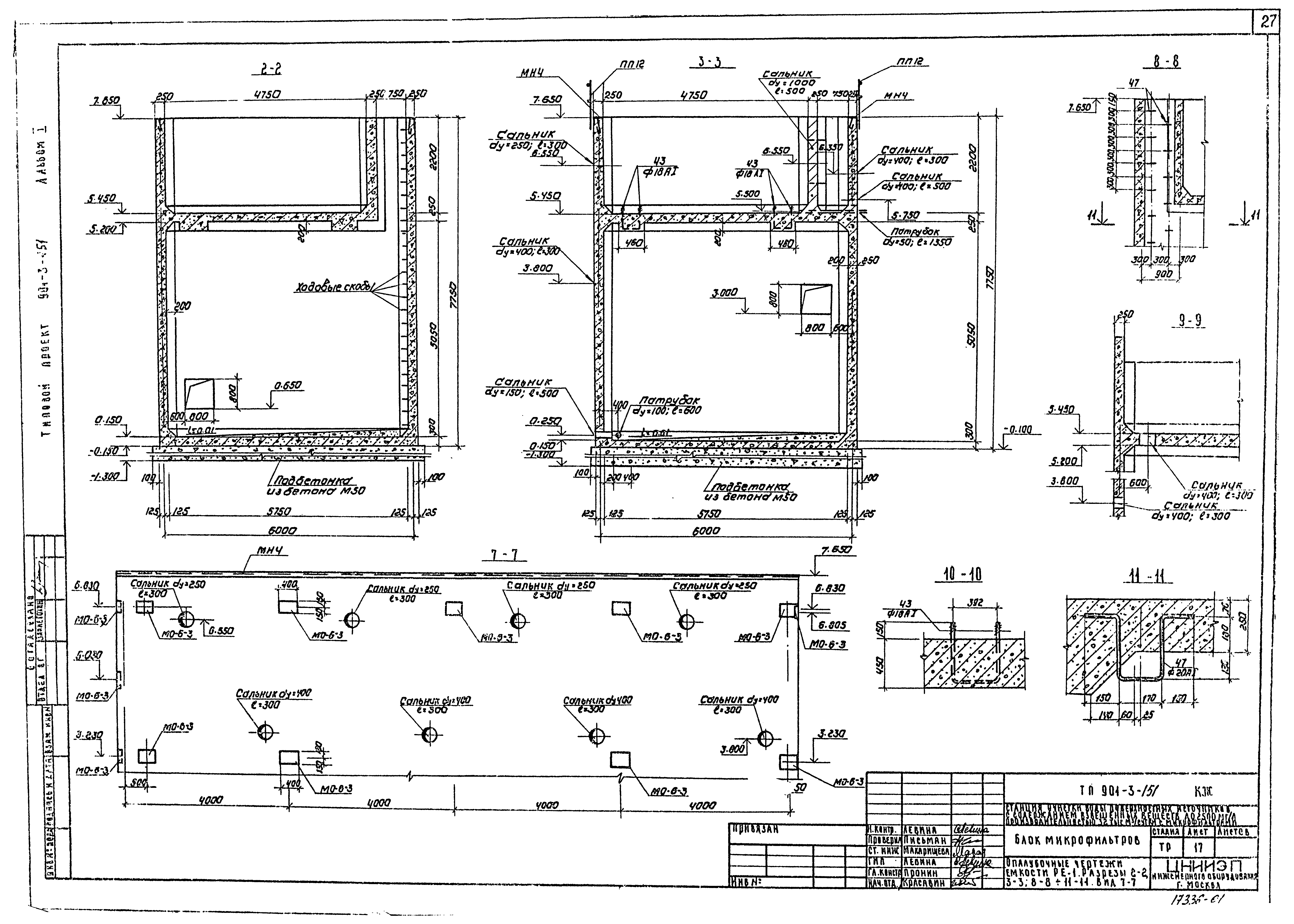
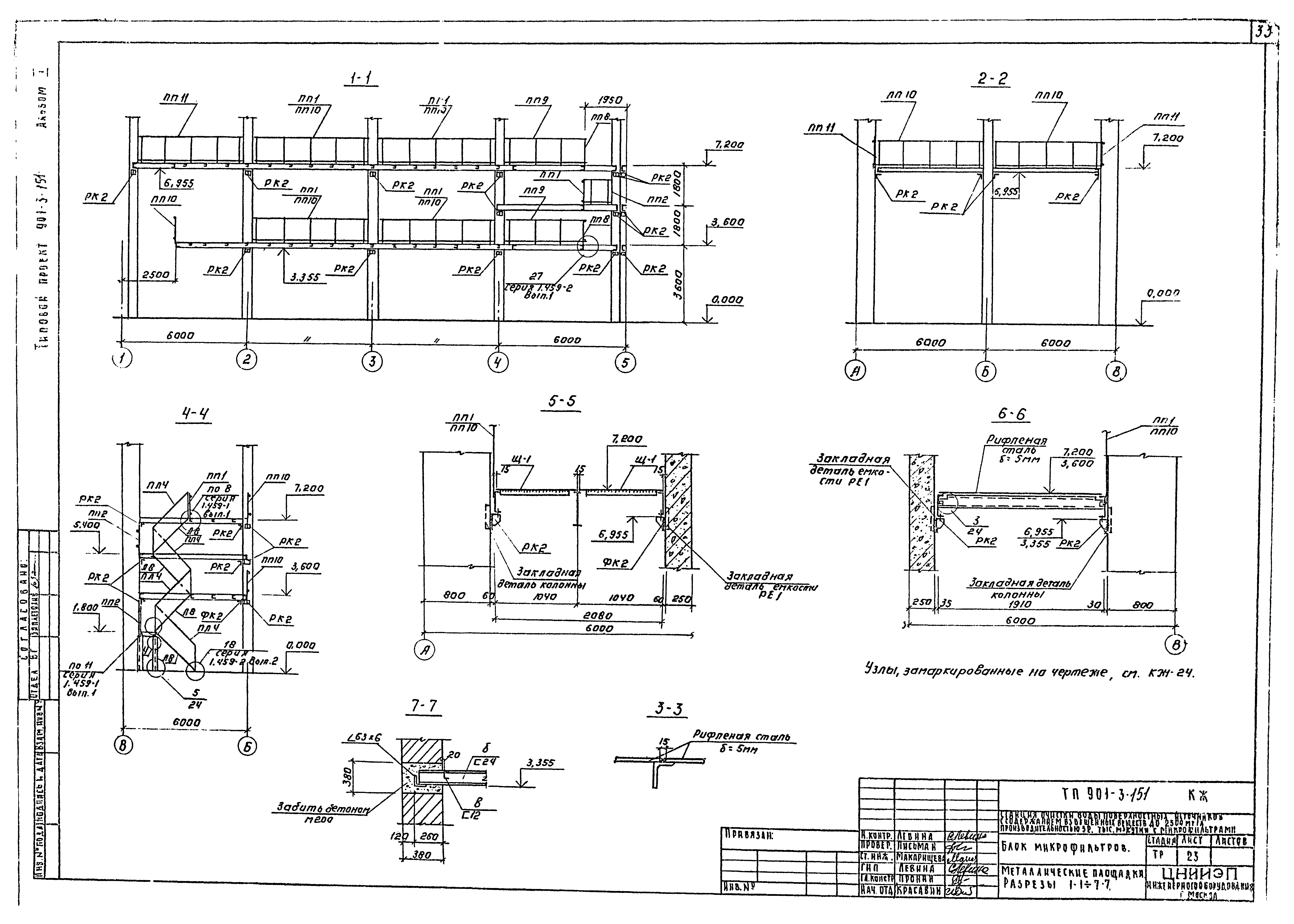
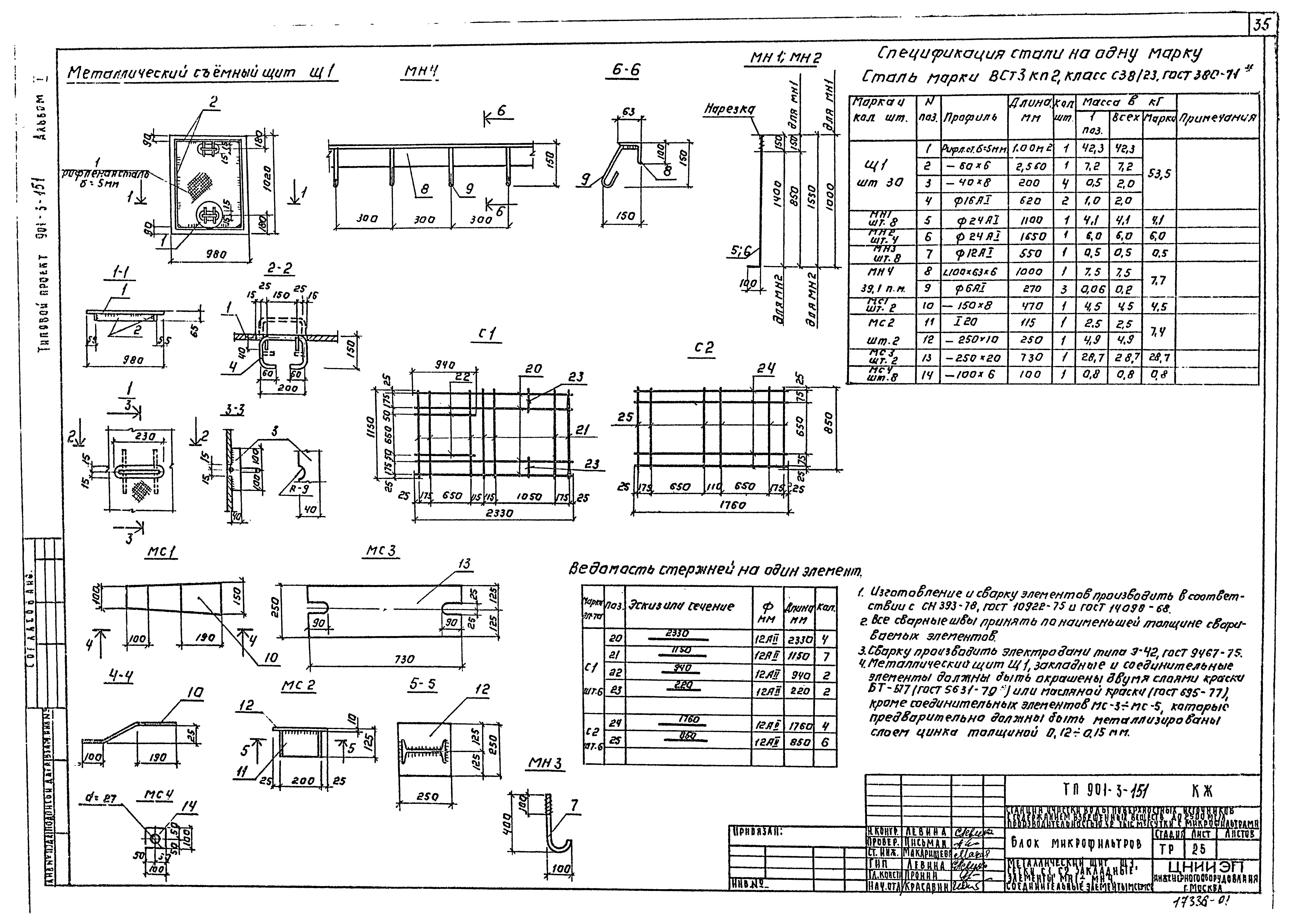
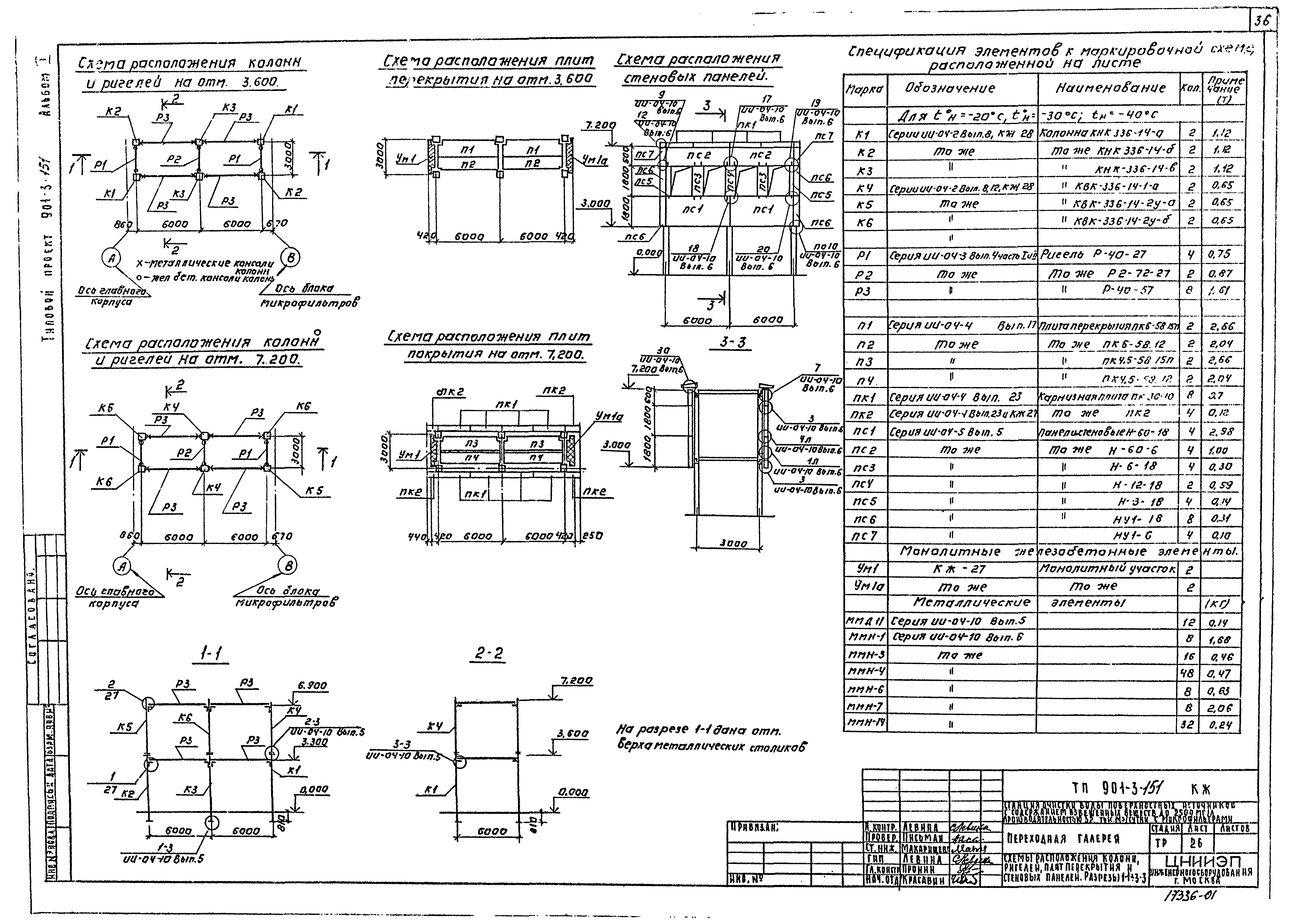
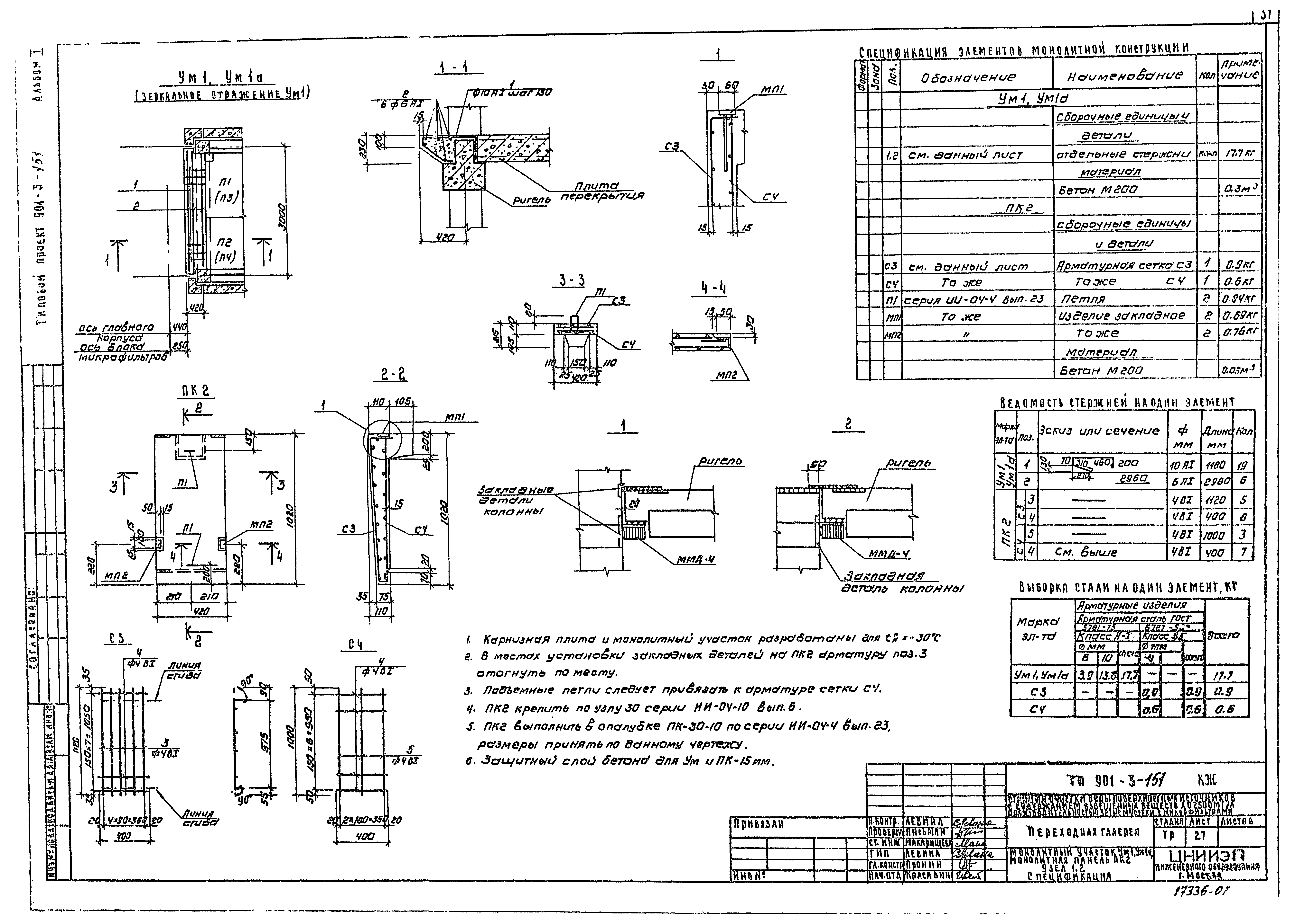
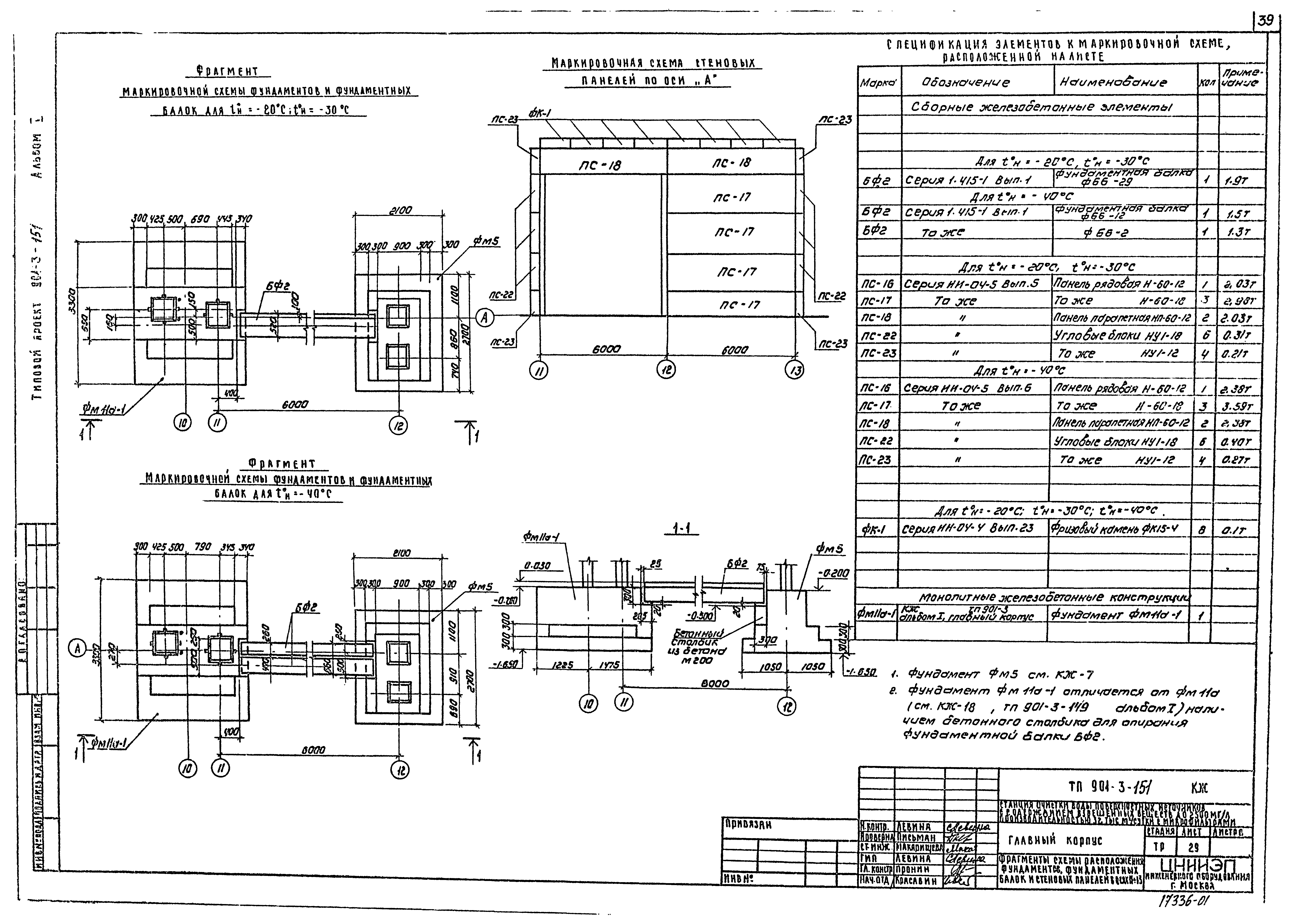
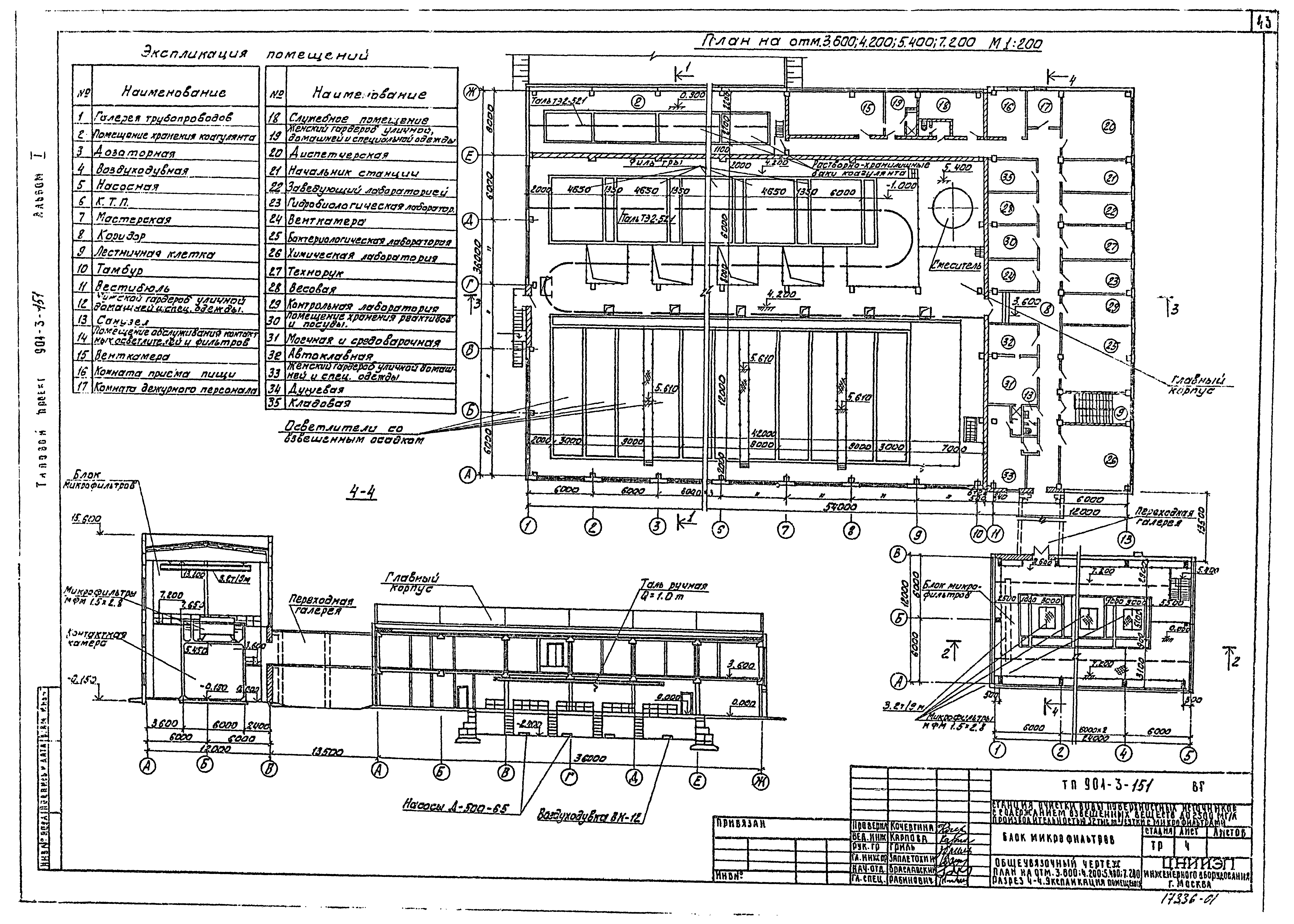
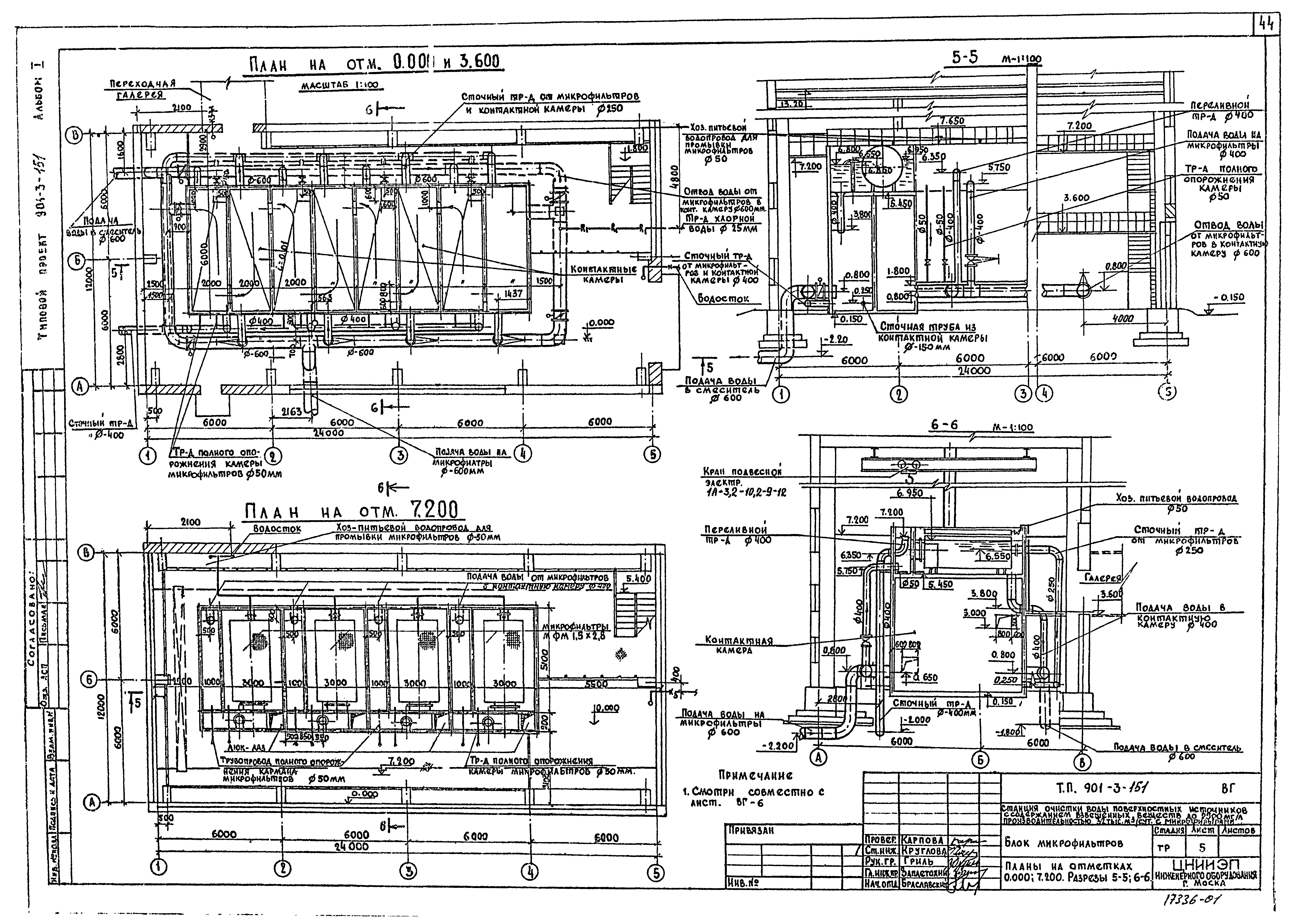
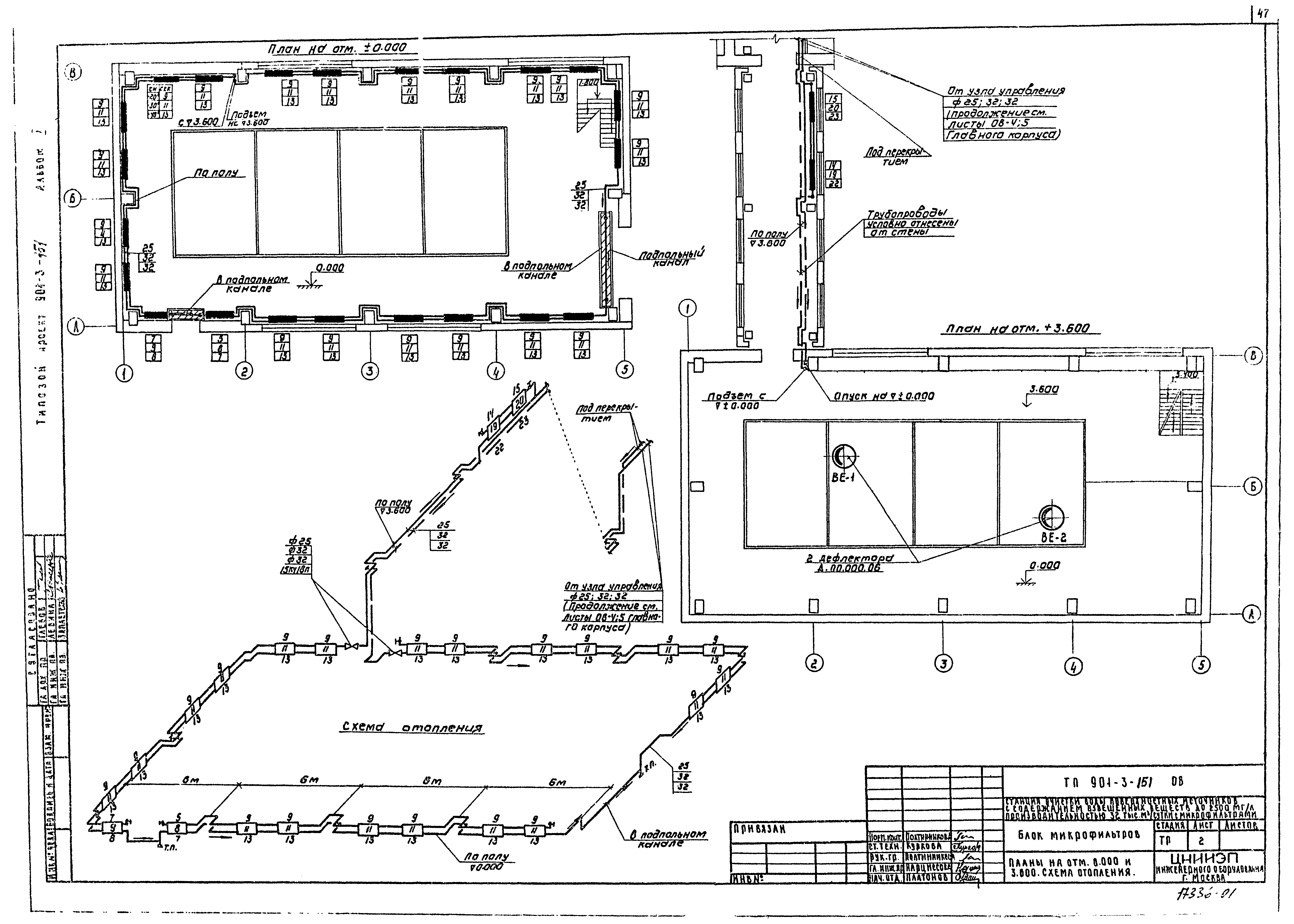
Скачать Типовой проект 901-3-151 Альбом I. Архитектурно-строительная, технологическая, санитарно-техническая, электротехническая частиДата актуализации: 01.01.2021 Типовой проект 901-3-151
Альбом I. Архитектурно-строительная, технологическая, санитарно-техническая, электротехническая части| Обозначение: | Типовой проект 901-3-151 | | Обозначение англ: | 901-3-151 | | Статус: | заменен | | Название рус.: | Альбом I. Архитектурно-строительная, технологическая, санитарно-техническая, электротехническая части | | Дата добавления в базу: | 01.01.2018 | | Дата актуализации: | 01.01.2021 | | Дата введения: | 16.12.1980 | | Дата окончания срока действия: | 01.08.1989 | | Разработан: | ЦНИИЭП инженерного оборудования
| | Утверждён: | 01.08.1980 Госгражданстрой (Gosgrazhdanstroy 198)
| | Издан: | ЦИТП Госстроя СССР (CITP, Gosstroy (USSR) 1981 г. )
| | Чем заменён: | |
                                                      
|