Скачать ГОСТ Р ИСО 22475-1-2017 Геотехнические исследования и испытания. Методы отбора проб и измерения подземных вод. Часть 1. Технические принципы для выполненияДата актуализации: 01.01.2021
|
| Обозначение: | ГОСТ Р ИСО 22475-1-2017 |
| Обозначение англ: | GOST R ISO 22475-1-2017 |
| Статус: | принят |
| Название рус.: | Геотехнические исследования и испытания. Методы отбора проб и измерения подземных вод. Часть 1. Технические принципы для выполнения |
| Название англ.: | Geotechnical investigation and testing. Sampling methods and groundwater measurements. Part 1. Technical principles for execution |
| Дата добавления в базу: | 01.01.2019 |
| Дата актуализации: | 01.01.2021 |
| Дата введения: | 01.01.2022 |
| Область применения: | Стандарт устанавливает технические принципы отбора проб грунта, скальной породы и подземной воды, а также измерений подземных вод в контексте геотехнического исследования и испытания, согласно EН 1997-1 и EН 1997-2. Выделяют следующие цели таких инженерно-геологических изысканий: a) отбор проб грунтов и скальных пород качества, достаточного для того, чтобы оценивать общее состояние рабочей площадки для геотехнических инженерных целей и устанавливать необходимые характеристики грунтов и скальных пород в лаборатории; b) получения информации о последовательности, мощности и ориентации пластов, а также о системе трещин и разломов; c) определение типа, состава и состояния пластов; d) получения информации о режиме подземных вод и отбор проб воды для оценки взаимодействия подземных вод, грунта, скальной породы и строительного материала. На качество пробы влияют геологические и гидрологические условия, отбор и выполнение бурения и/или метод взятия проб, обращение с пробами, их транспортирование и хранение. Стандарт не устанавливает требования к отбору проб для целей сельскохозяйственного и экологического исследования почвы. |
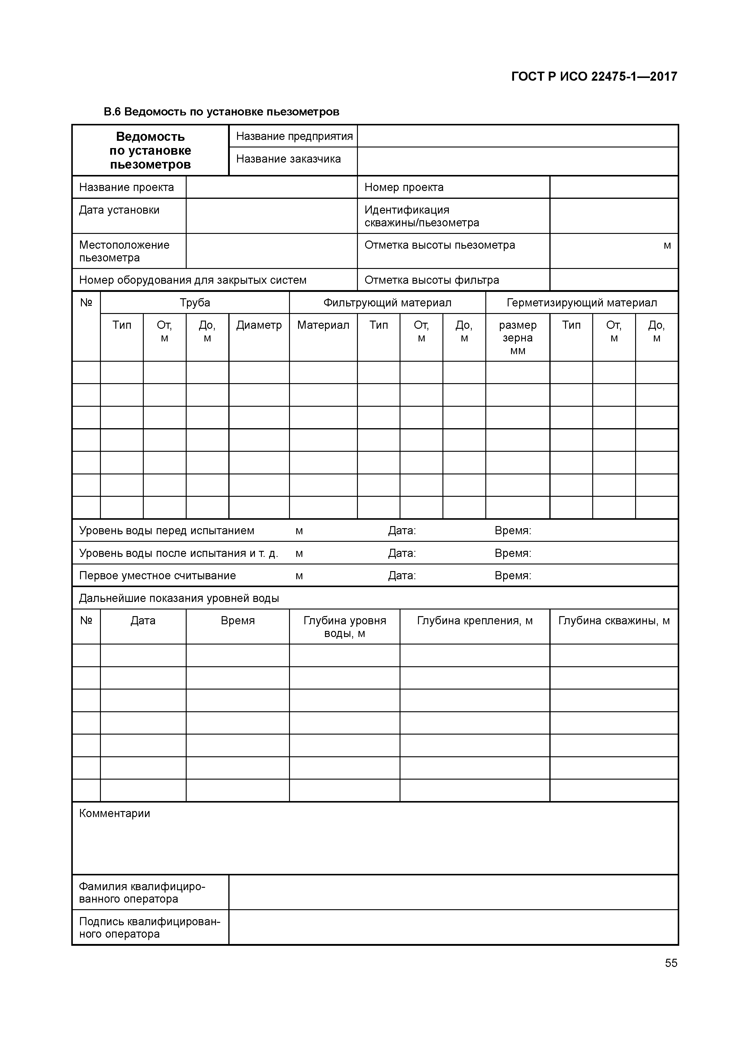
| Оглавление: | 1 Область применения 2 Нормативные ссылки 3 Термины и определения 3.1 Методы исследования на рабочей площадке 3.2 Буровые установки и оборудование 3.3 Отбор проб 3.4 Измерения подземных вод 4 Буровые установки и вспомогательное оборудование 4.1 Общие положения 4.2 Требования для буровых установок и оборудования 4.3 Область применения оборудования 5 Общие требования до начала отбора проб и измерений подземных вод 5.1 Общие положения 5.2 Выбор технических приемов и методов 5.3 Требования по исследованию грунтов на рабочих площадках и в точках отбора 5.4 Предварительная информация, необходимая перед началом отбора проб и измерений подземных вод 5.5 Обратная засыпка и оставление рабочей площадки 5.6 Безопасность и специальные требования 6 Методы отбора проб грунтов 6.1 Общие положения 6.2 Категории методов отбора проб грунтов 6.3 Отбор проб грунта путем бурения (непрерывный отбор проб) 6.4 Отбор проб с использованием специальных устройств 6.5 Отбор пробы в виде монолита 7 Методы отбора проб скальных пород 7.1 Общие положения 7.2 Категории методов отбора скальных пород 7.3 Отбор проб бурением 7.4 Отбор пробы в виде глыбы 7.5 Отбор цельной пробы 8 Методы отбора подземных вод для геотехнических целей 8.1 Общие положения 8.2 Оборудование 8.3 Технические приемы отбора проб грунтовых вод 9 Станции измерения подземных вод и пьезометры 9.1 Общие положения 9.2 Пьезометры 9.3 Установка пьезометров 9.4 Техническое обслуживание 9.5 Вывод из эксплуатации 10 Измерения подземных вод 10.1 Калибровка 10.2 Выполнение измерений 11 Обращение с пробами, их транспортирование и хранение 11.1 Общие положения 11.2 Предохраняющие материалы и контейнеры для проб 11.3 Обращение с пробами 11.4 Нанесение этикеток на пробы 11.5 Транспортирование проб 11.6 Подготовка, хранение и транспортная тара ящиков для керна 11.7 Хранение проб 12 Отчет 12.1 Полевой отчет 12.2 Итоговый отчет Приложение A (справочное) Пример формы для предварительной информации о планируемом отборе проб и измерениях подземных вод Приложение B (справочное) Полевые отчеты Приложение C (справочное) Оборудование для бурения и отбора проб грунта и скальной породы Приложение D (справочное) Вакуумные сосуды для отбора проб подземных вод Приложение E (справочное) Меры защиты пьезометров Приложение ДА (справочное) Сведения о соответствии ссылочных международных и европейских стандартов национальным и действующим в этом качестве межгосударственным стандартам Библиография |
| Разработан: | НИИОСП им. Н.М. Герсеванова АО НИЦ Строительство |
| Утверждён: | 16.11.2017 Федеральное агентство по техническому регулированию и метрологии (1754-ст) |
| Издан: | Стандартинформ (2017 г. ) |
| Нормативные ссылки: |













































































































