Скачать Типовой проект 503-269 Альбом II. Архитектурно-строительные чертежи. Чертежи железобетонных конструкций. Чертежи металлоконструкцийДата актуализации: 01.01.2021 Типовой проект 503-269
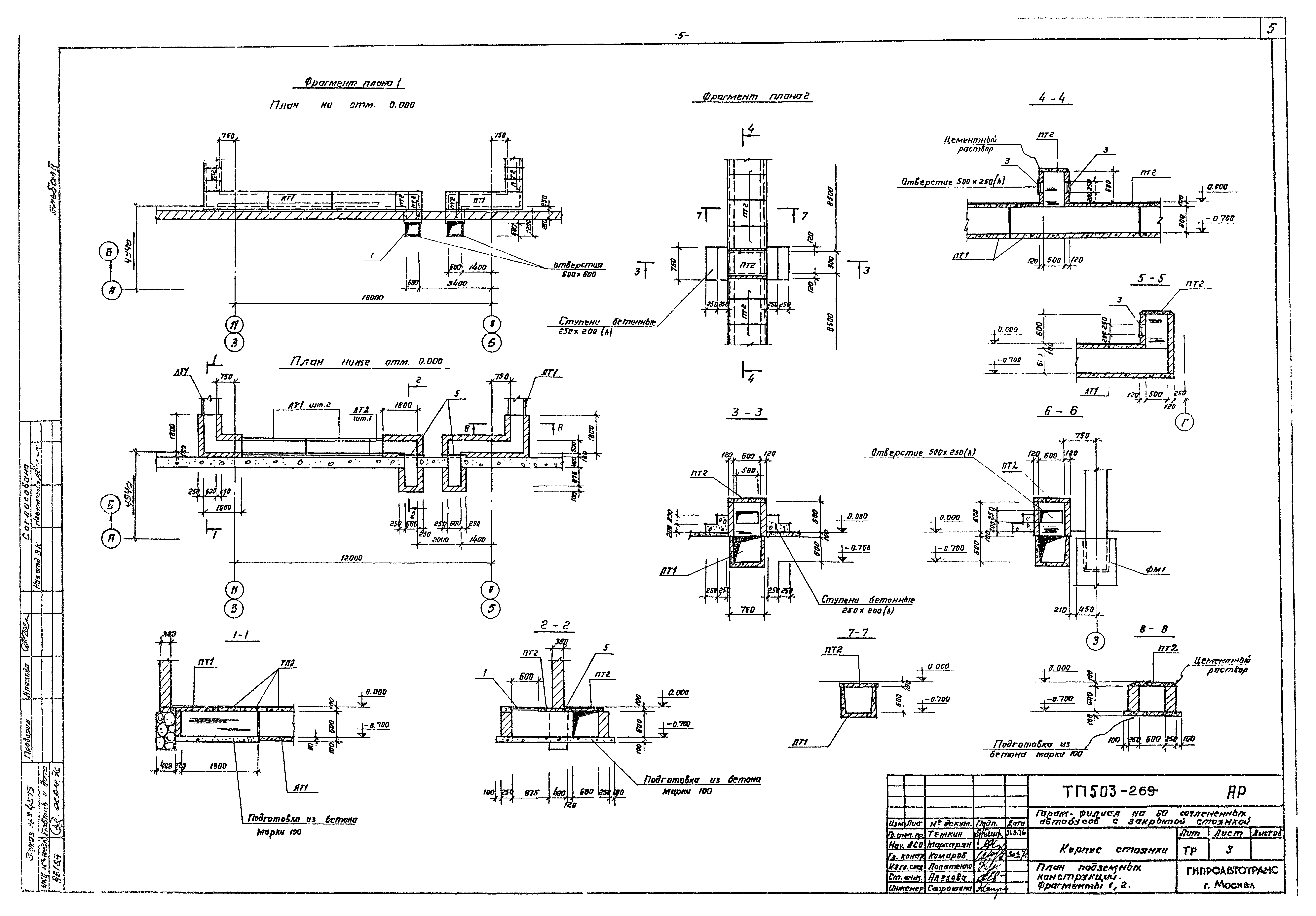
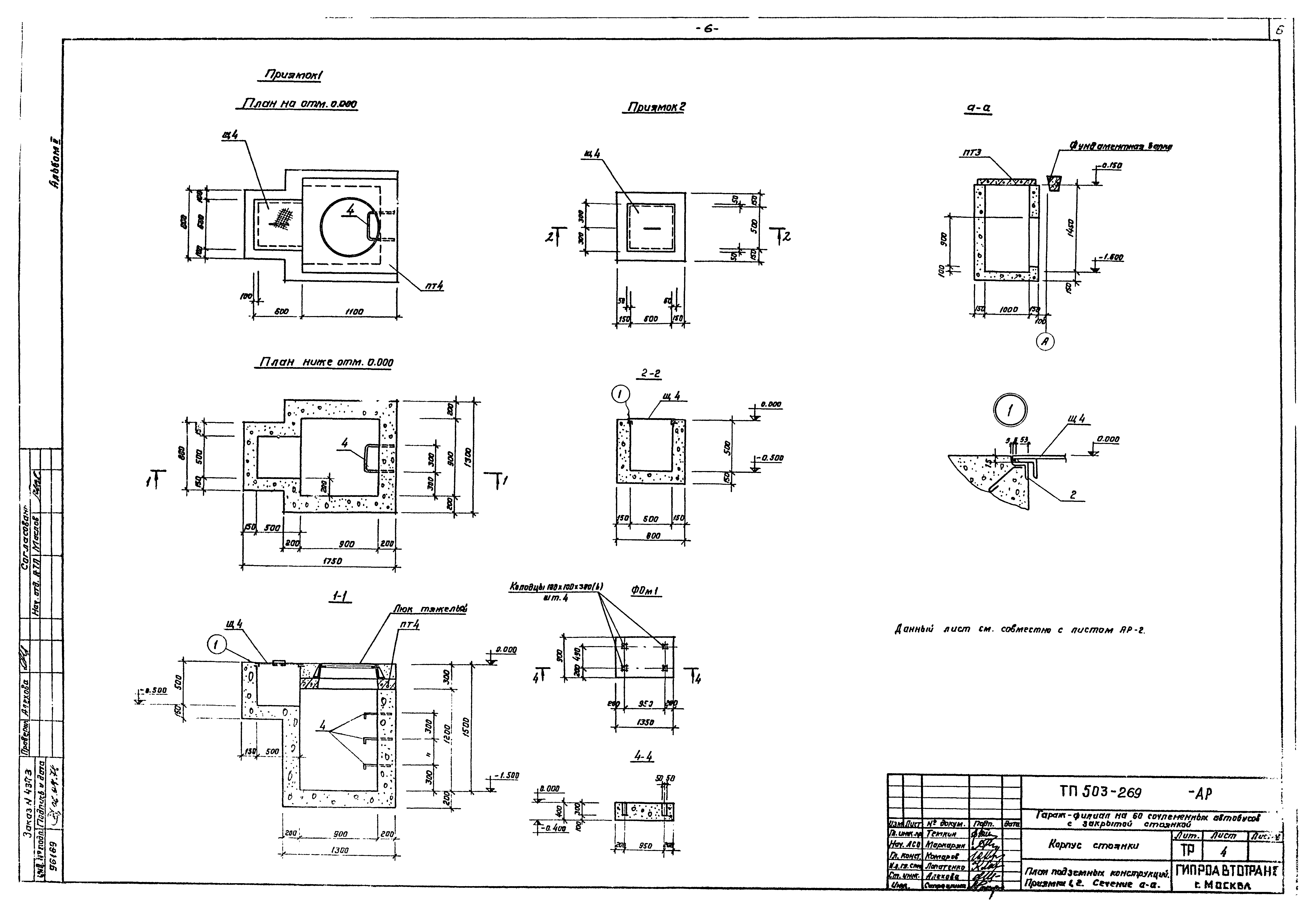
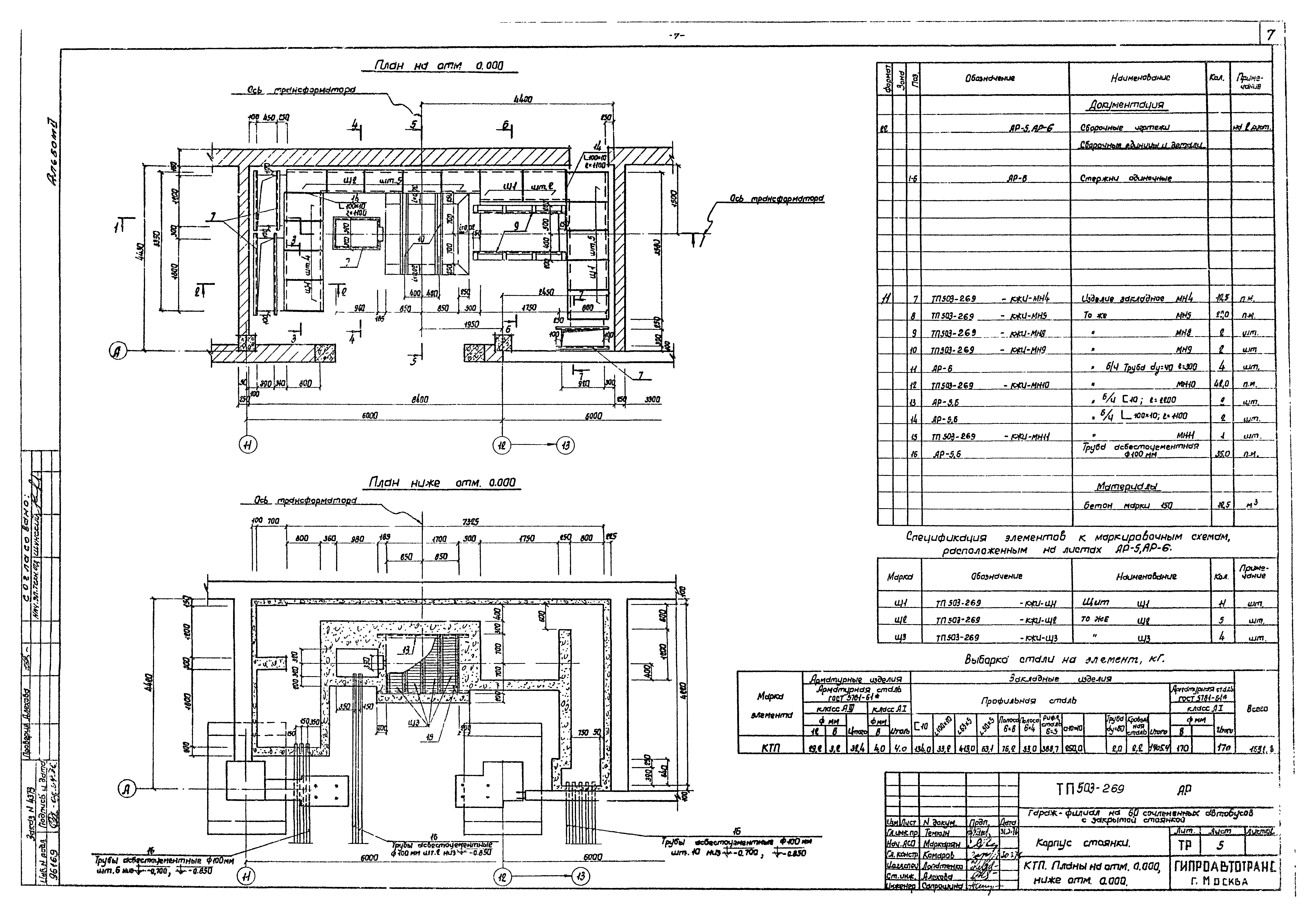
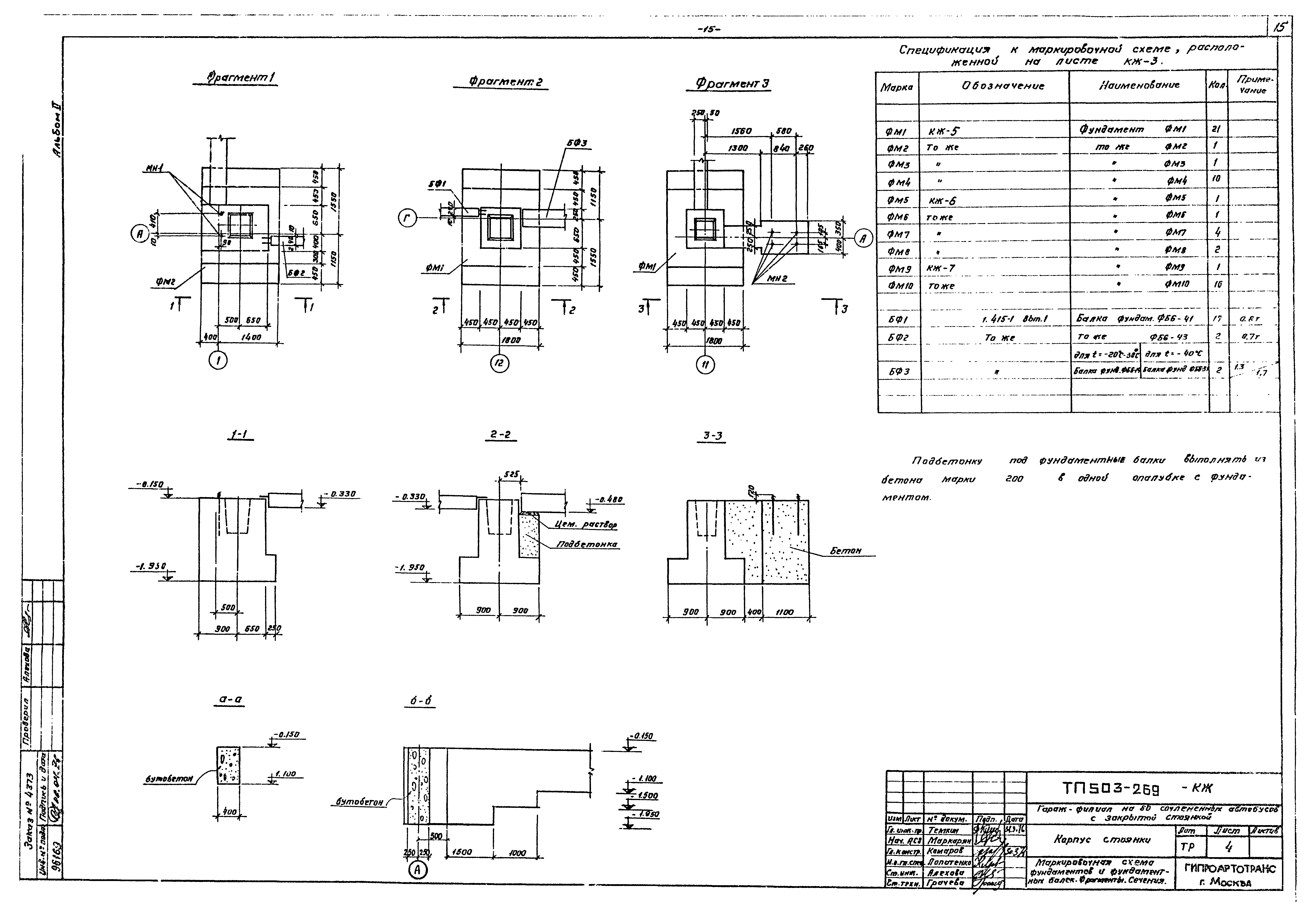
Альбом II. Архитектурно-строительные чертежи. Чертежи железобетонных конструкций. Чертежи металлоконструкций| Обозначение: | Типовой проект 503-269 | | Обозначение англ: | 503-269 | | Статус: | действует | | Название рус.: | Альбом II. Архитектурно-строительные чертежи. Чертежи железобетонных конструкций. Чертежи металлоконструкций | | Дата добавления в базу: | 01.01.2018 | | Дата актуализации: | 01.01.2021 | | Дата введения: | 15.06.1977 | | Разработан: | Гипроавтотранс
| | Утверждён: | 15.06.1977 Минавтотранс РСФСР (Russian Federation Minavtotrans 103)
| | Издан: | ЦИТП Госстроя СССР (CITP, Gosstroy (USSR) 1978 г. )
| | Нормативные ссылки: | |
                           
|