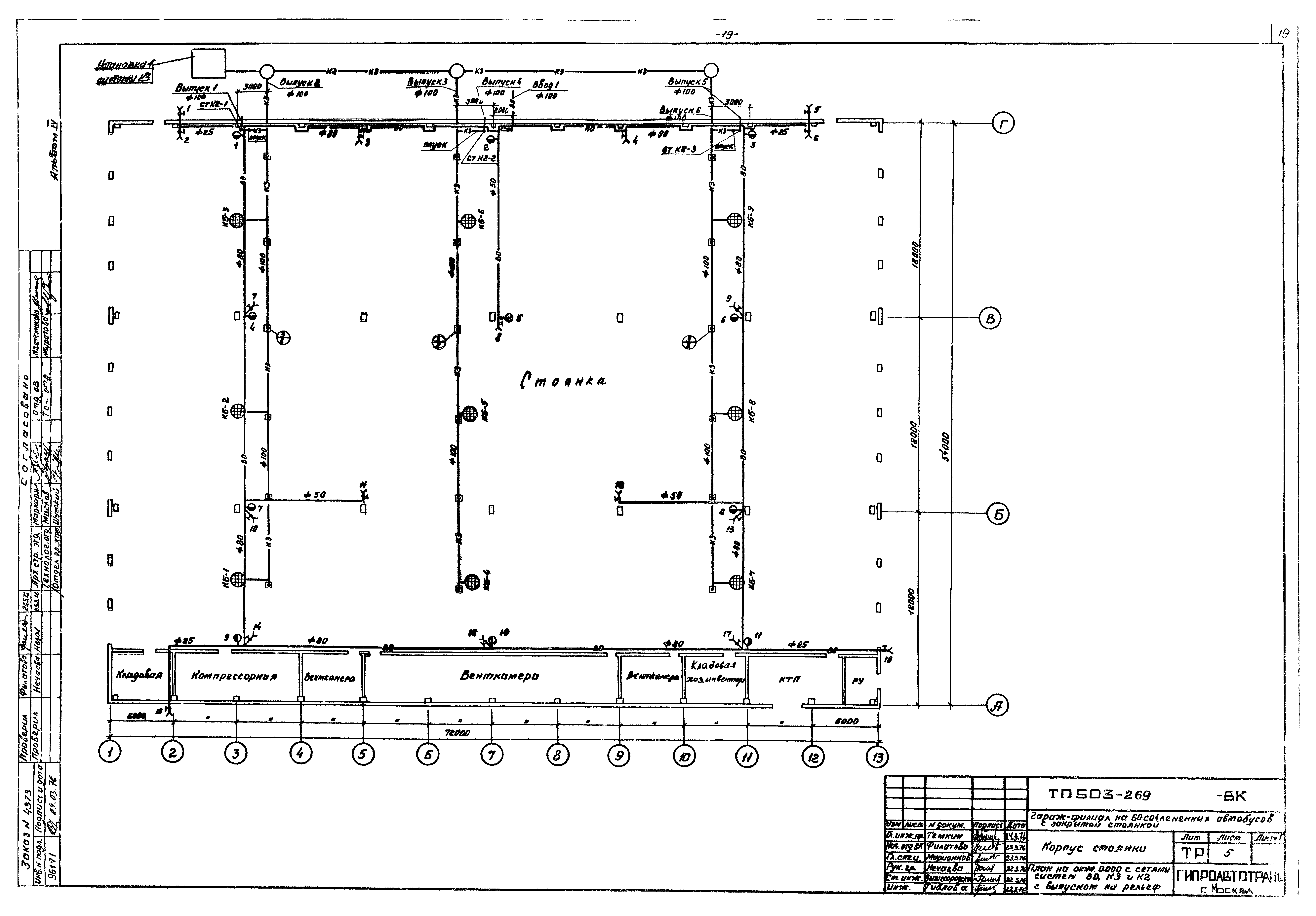
Скачать Типовой проект 503-269 Альбом IV. Чертежи по отоплению и вентиляции, внутреннему водопроводу и канализацииДата актуализации: 01.01.2021 Типовой проект 503-269
Альбом IV. Чертежи по отоплению и вентиляции, внутреннему водопроводу и канализации| Обозначение: | Типовой проект 503-269 | | Обозначение англ: | 503-269 | | Статус: | действует | | Название рус.: | Альбом IV. Чертежи по отоплению и вентиляции, внутреннему водопроводу и канализации | | Дата добавления в базу: | 01.01.2018 | | Дата актуализации: | 01.01.2021 | | Дата введения: | 15.06.1977 | | Разработан: | Гипроавтотранс
| | Утверждён: | 15.06.1977 Минавтотранс РСФСР (Russian Federation Minavtotrans 103)
| | Издан: | ЦИТП Госстроя СССР (CITP, Gosstroy (USSR) 1978 г. )
| | Нормативные ссылки: | |
                      
|