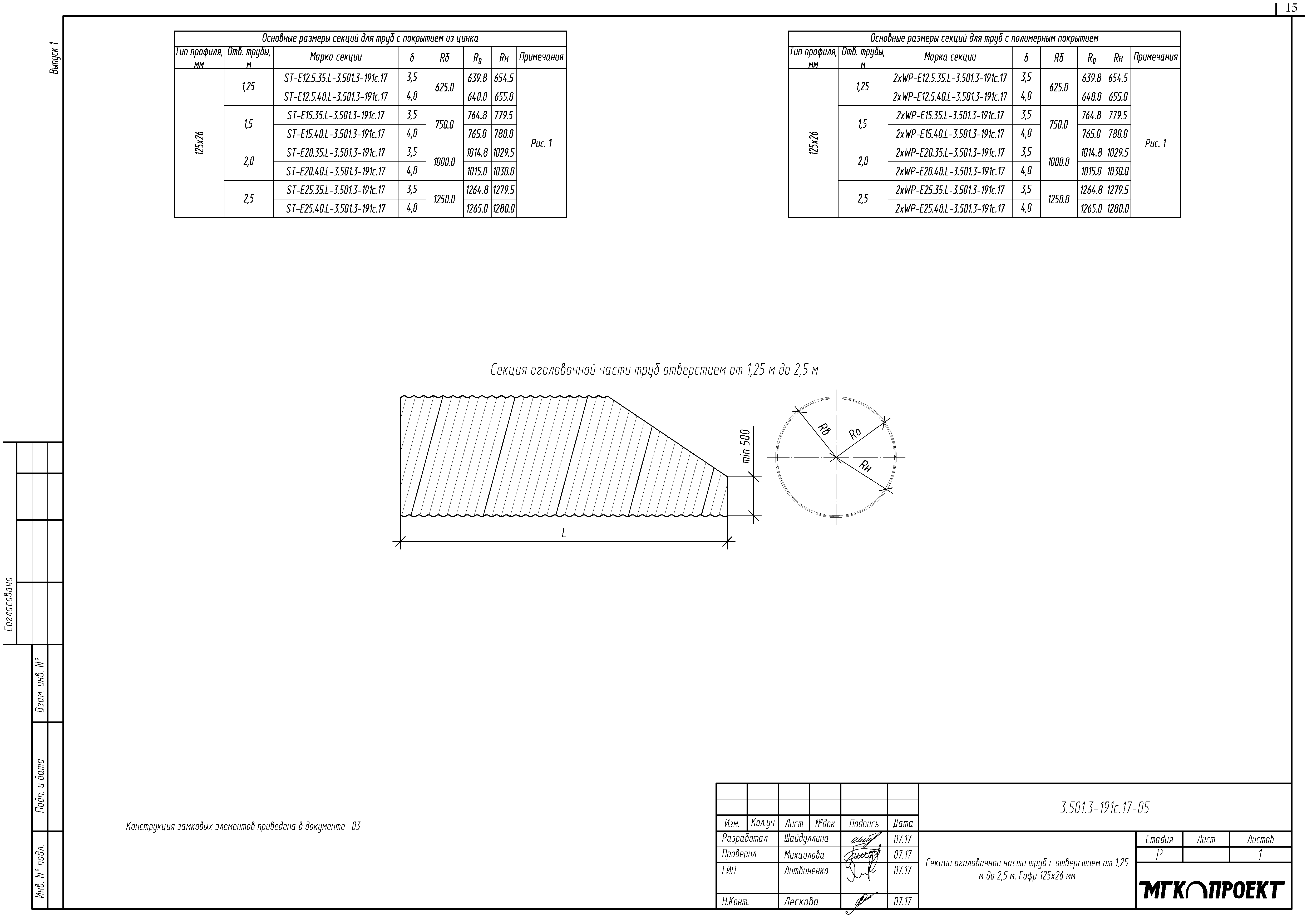
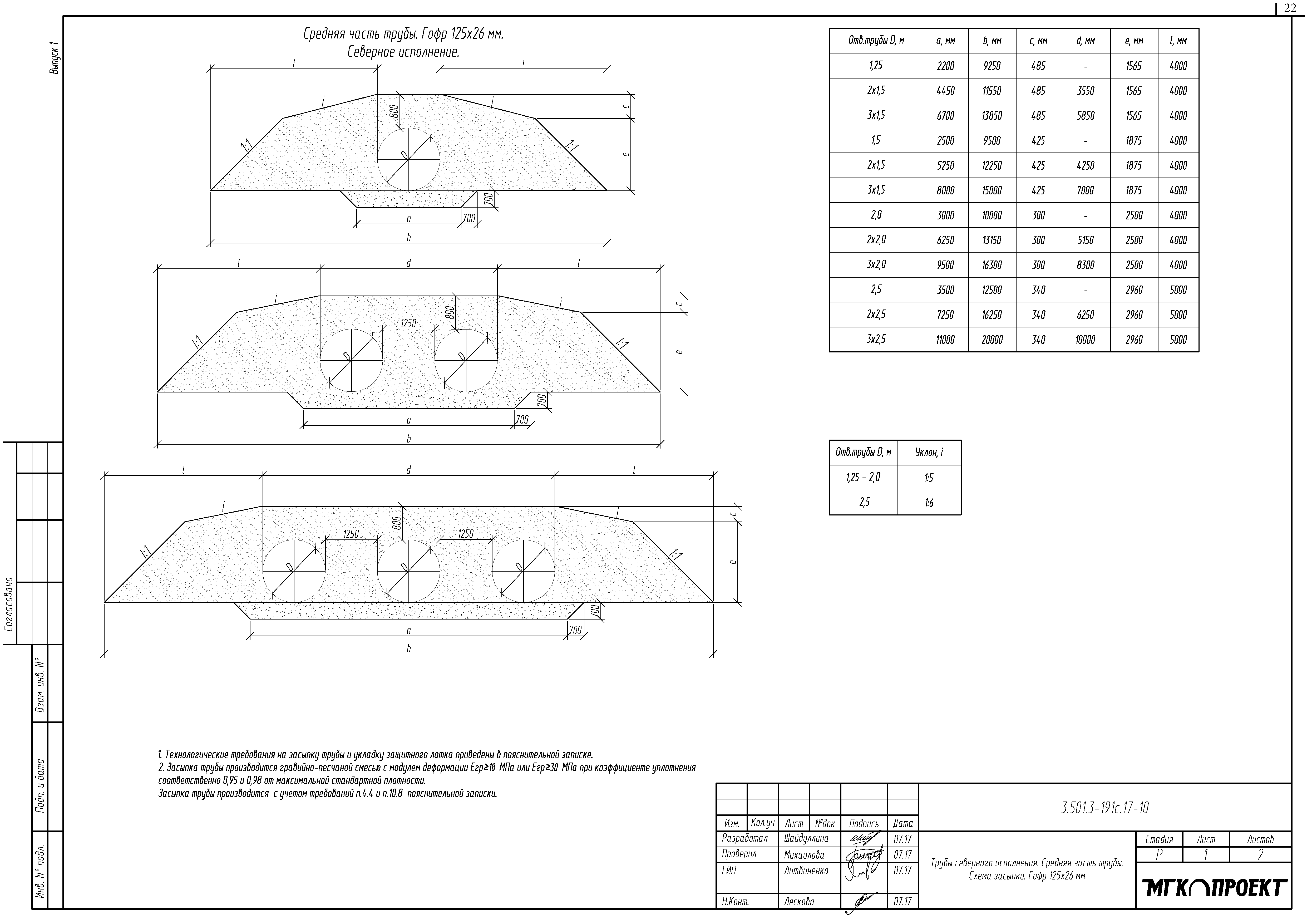
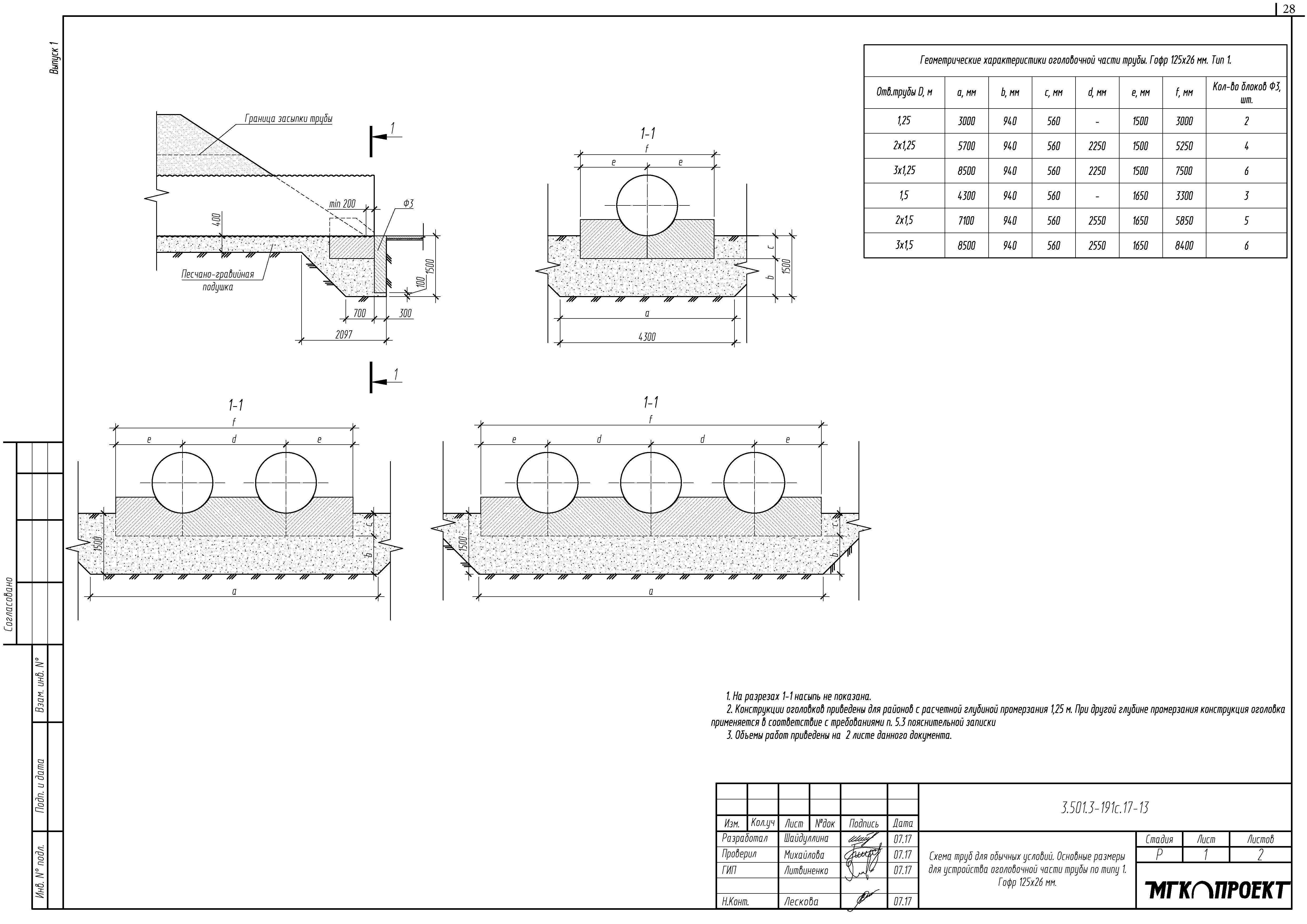
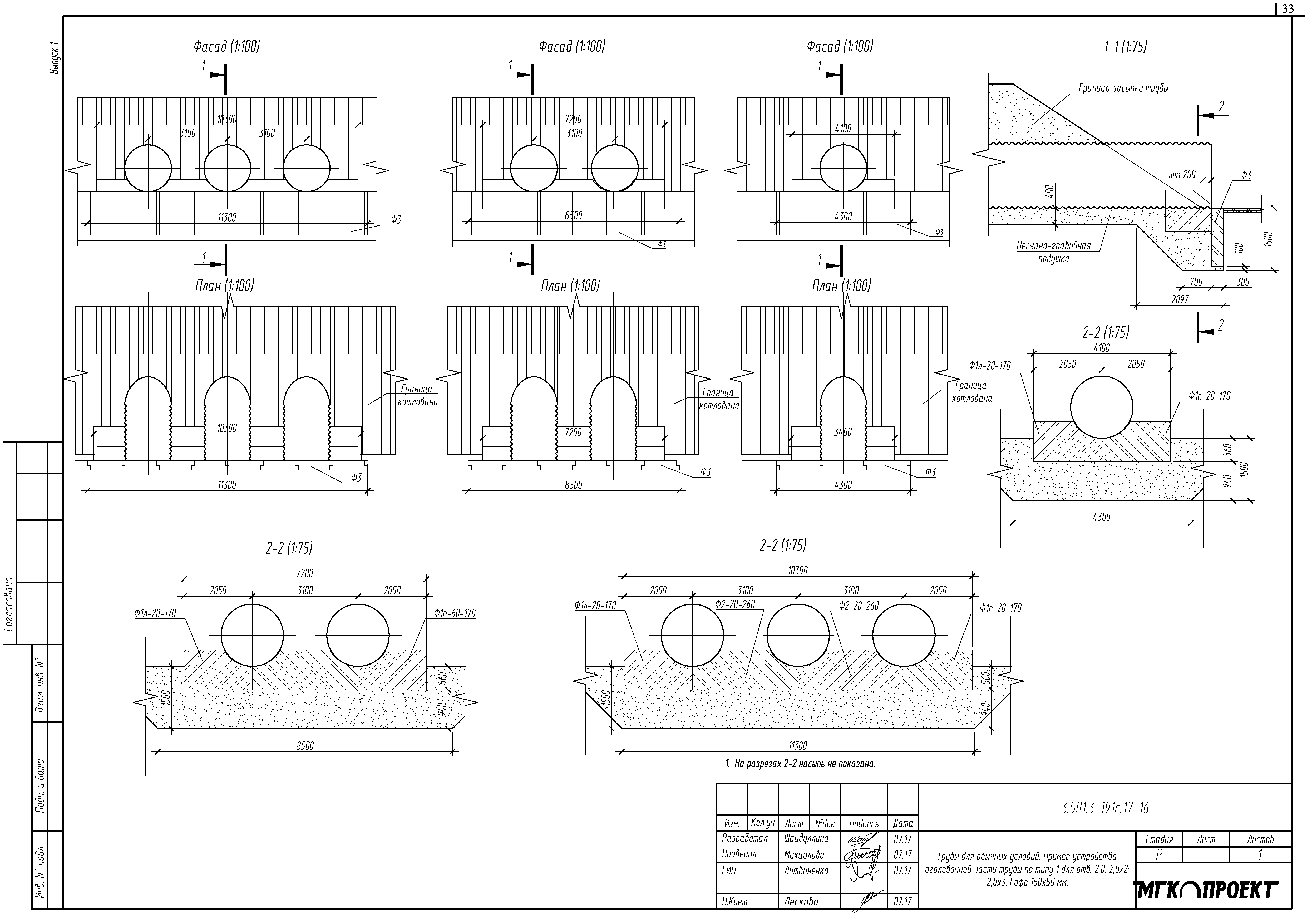
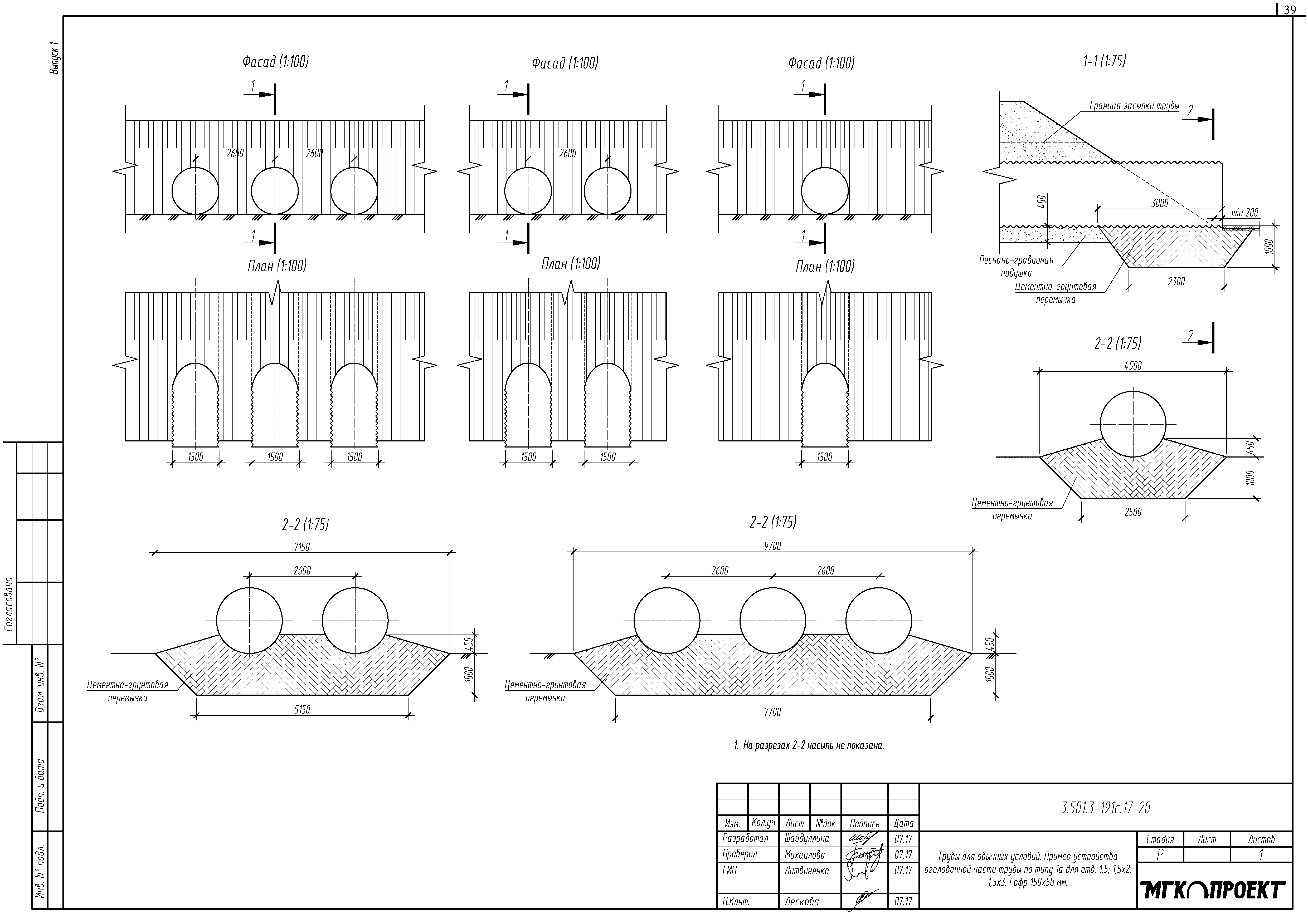
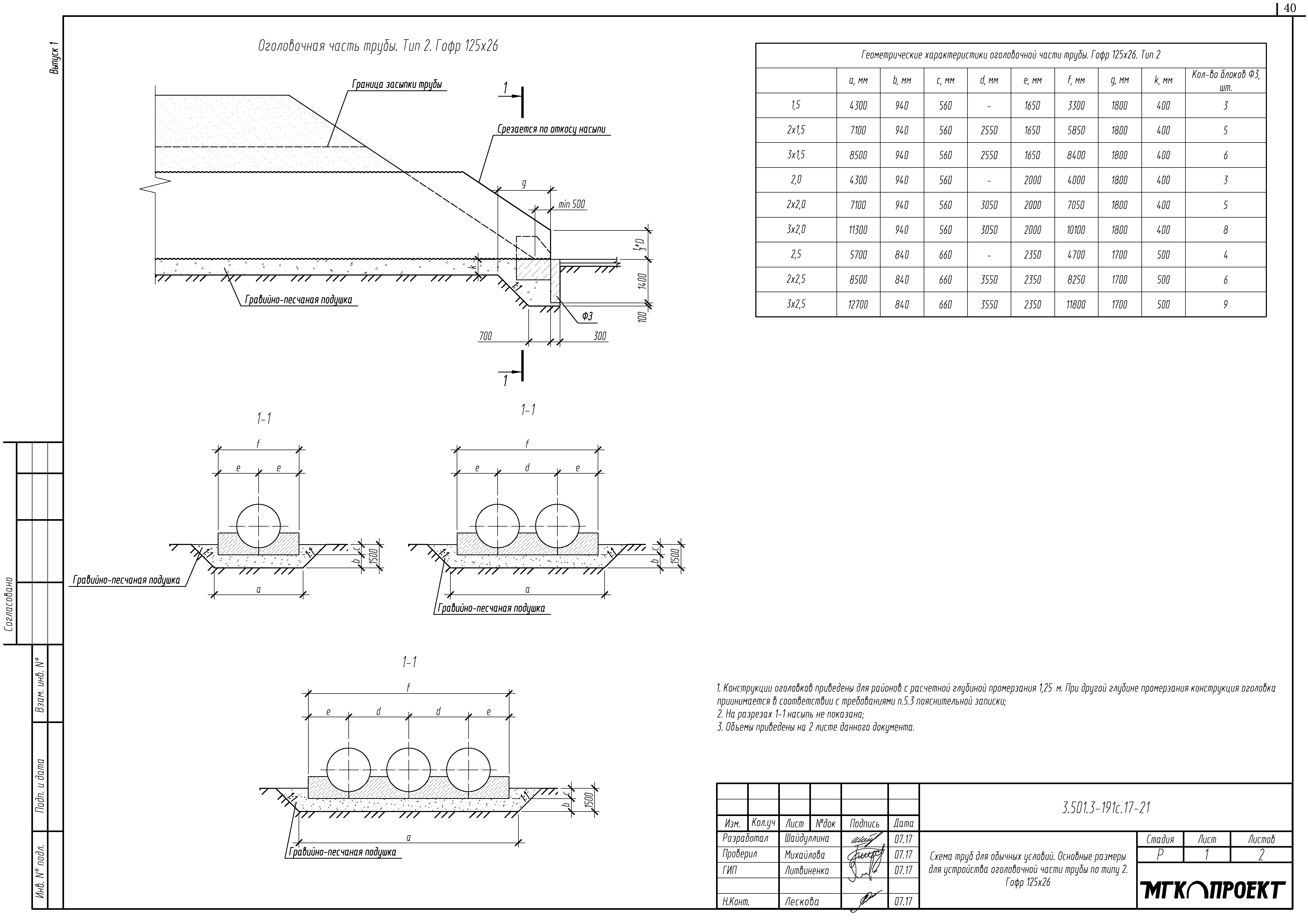
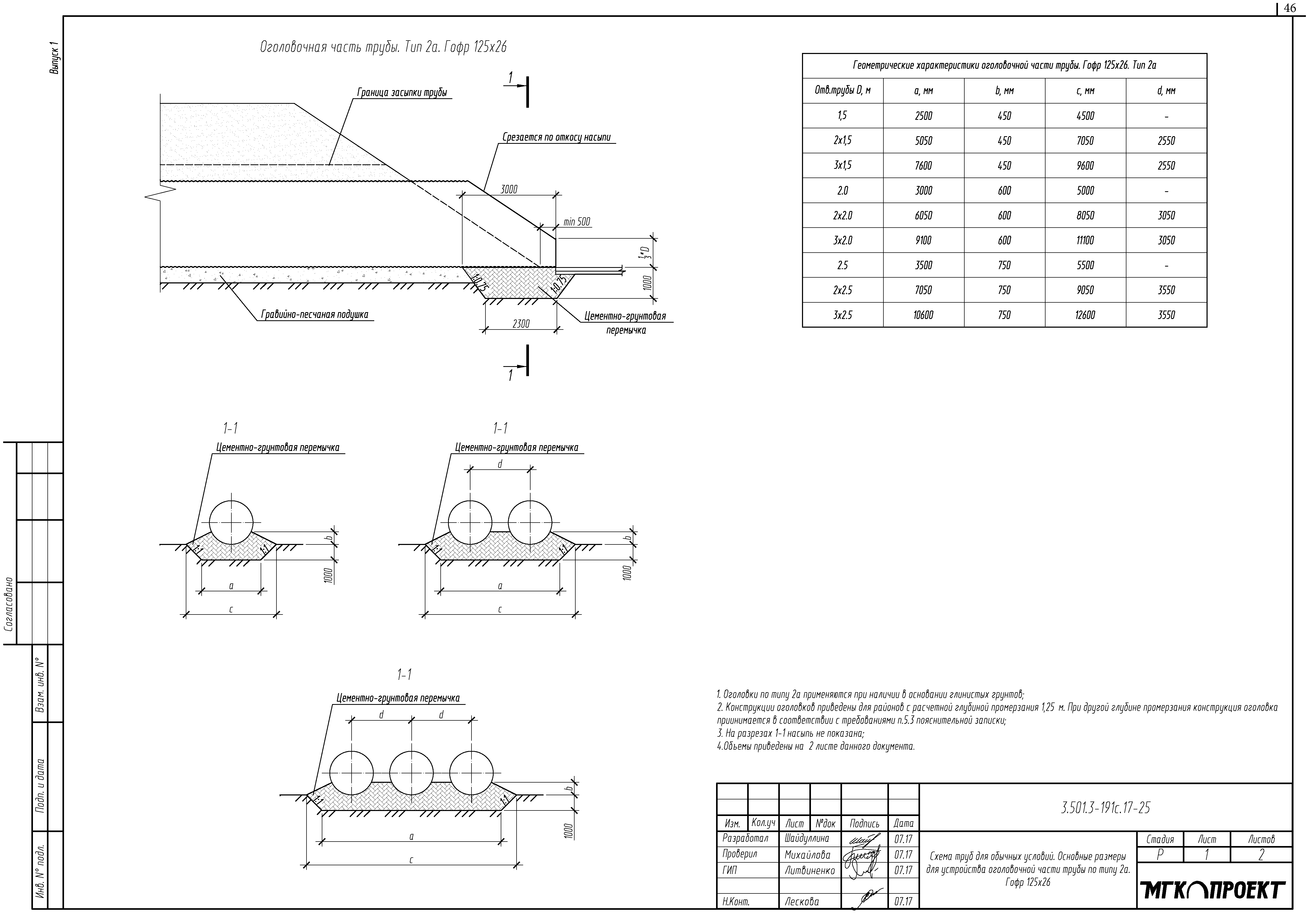
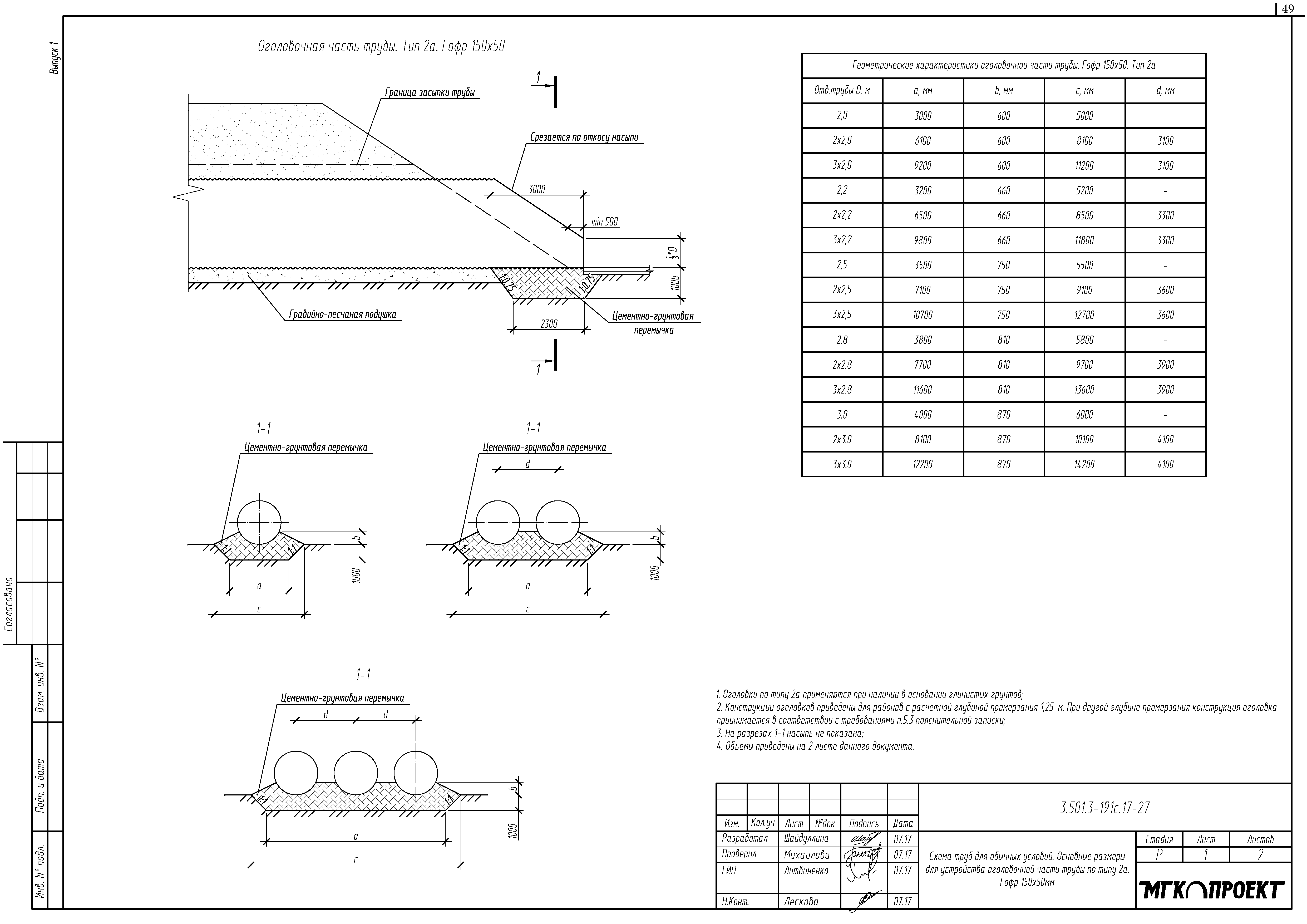
Скачать Серия 3.501.3-191с.17 Выпуск 1. Рабочие чертежиДата актуализации: 01.01.2021 Серия 3.501.3-191с.17
Выпуск 1. Рабочие чертежи| Обозначение: | Серия 3.501.3-191с.17 | | Обозначение англ: | Series 3.501.3-191с.17 | | Статус: | не определен законодательством | | Название рус.: | Выпуск 1. Рабочие чертежи | | Дата добавления в базу: | 01.01.2019 | | Дата актуализации: | 01.01.2021 | | Дата введения: | 22.08.2017 | | Разработан: | ООО МГК Проект
| | Утверждён: | 22.08.2017 ООО МГК (5)
| | Издан: | Информационный бюллетень о нормативной, методической и типовой проектной документации (2017 г. (10))
|
                                                                              
|