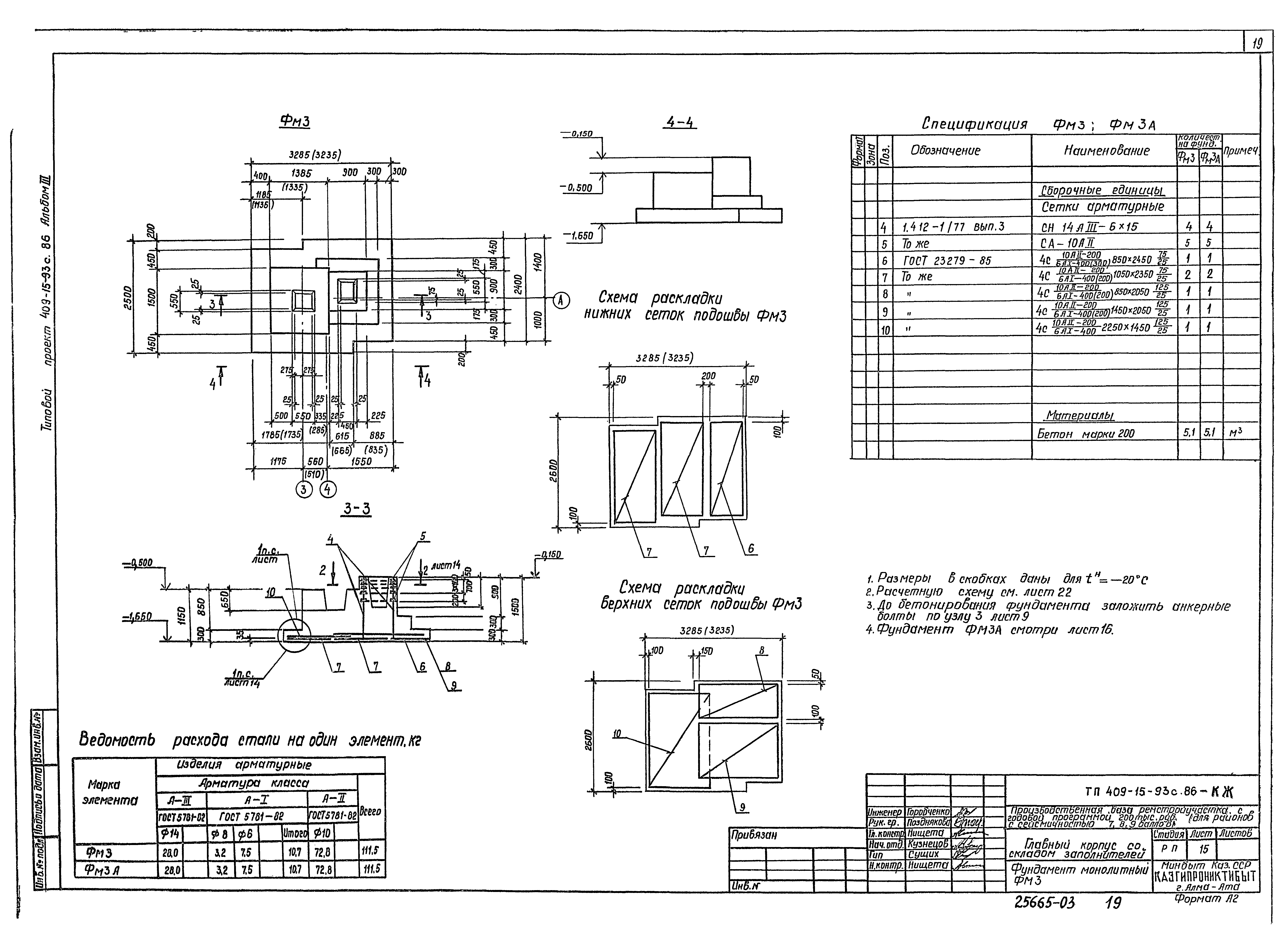
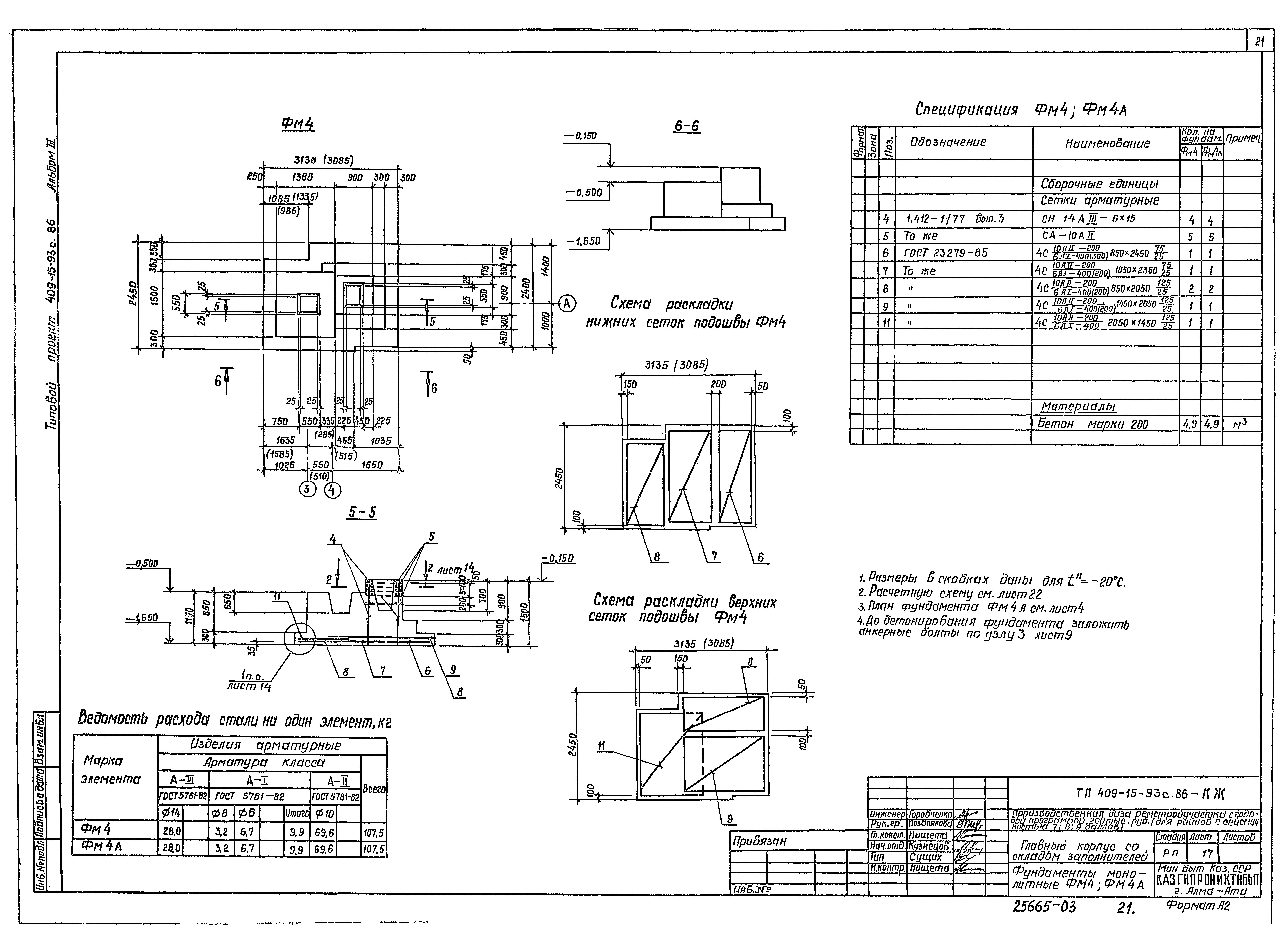
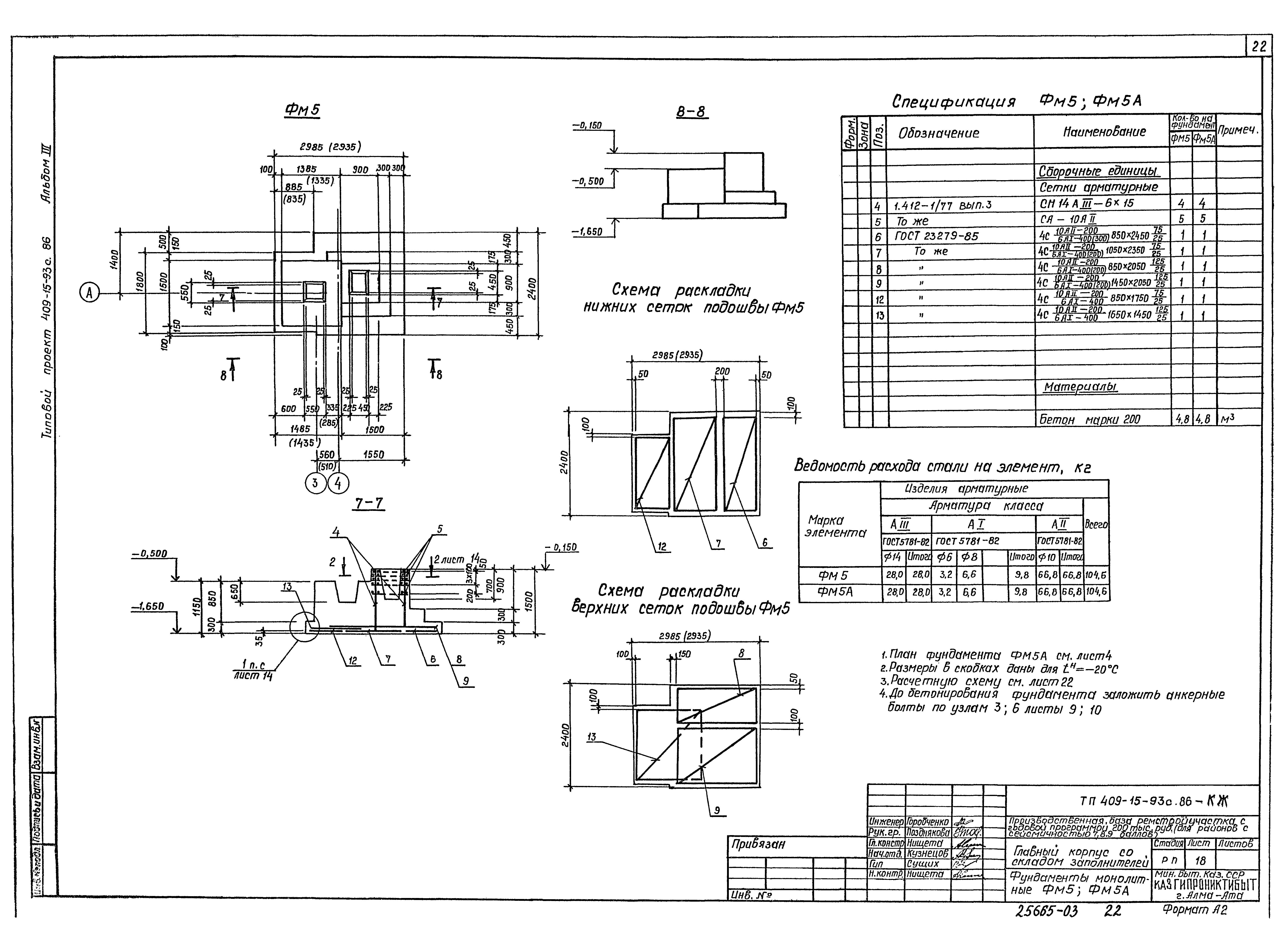
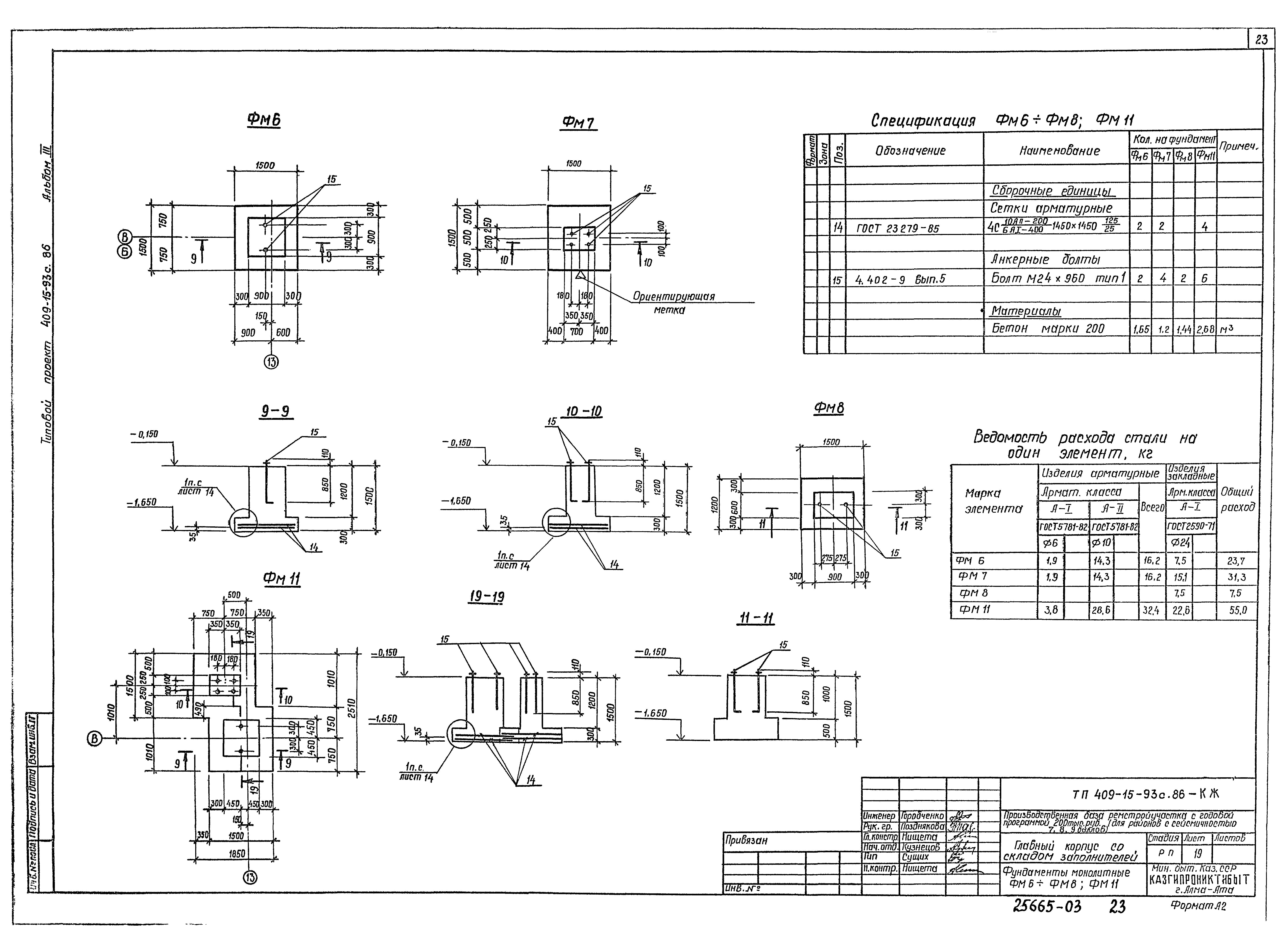
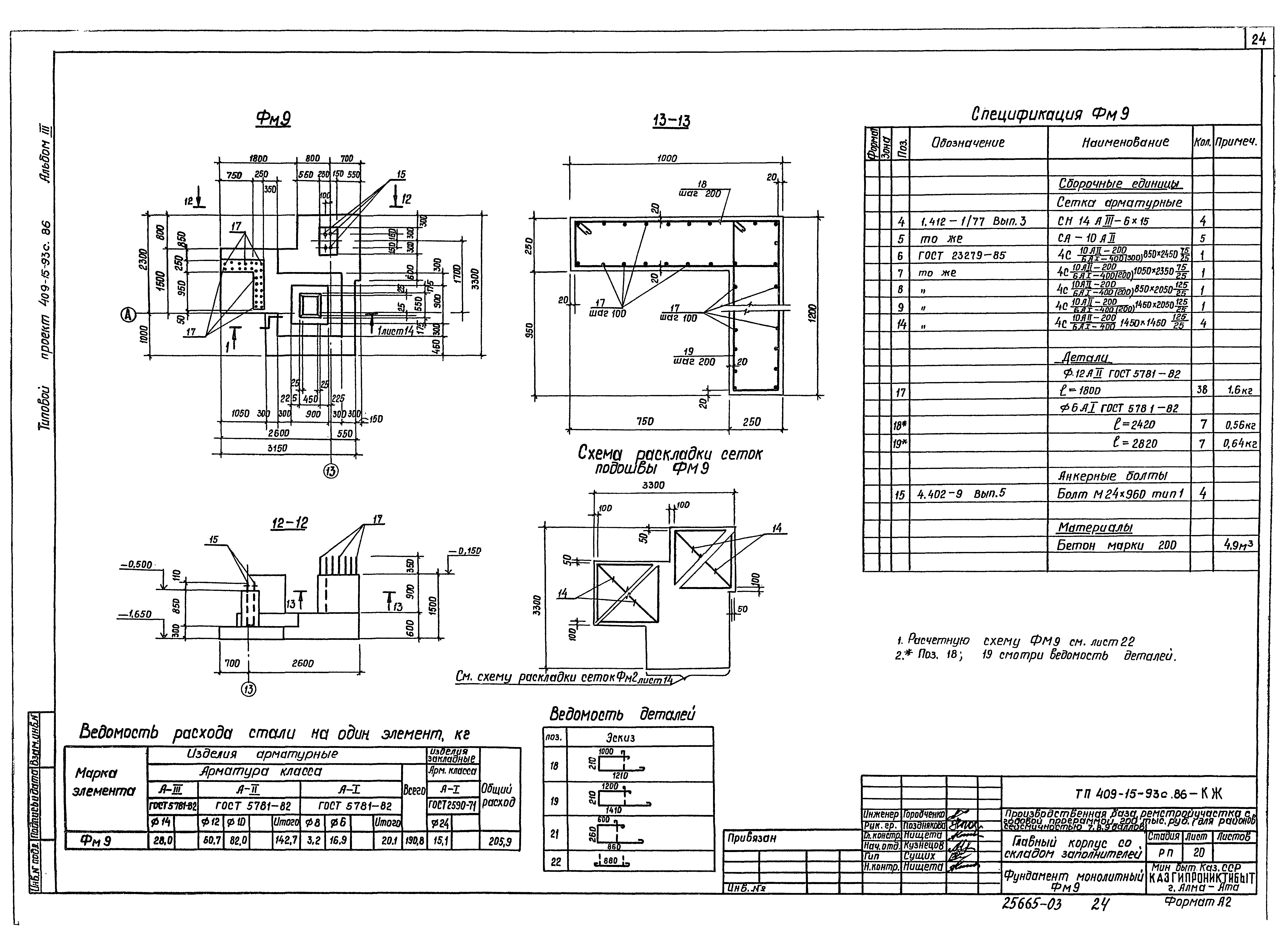
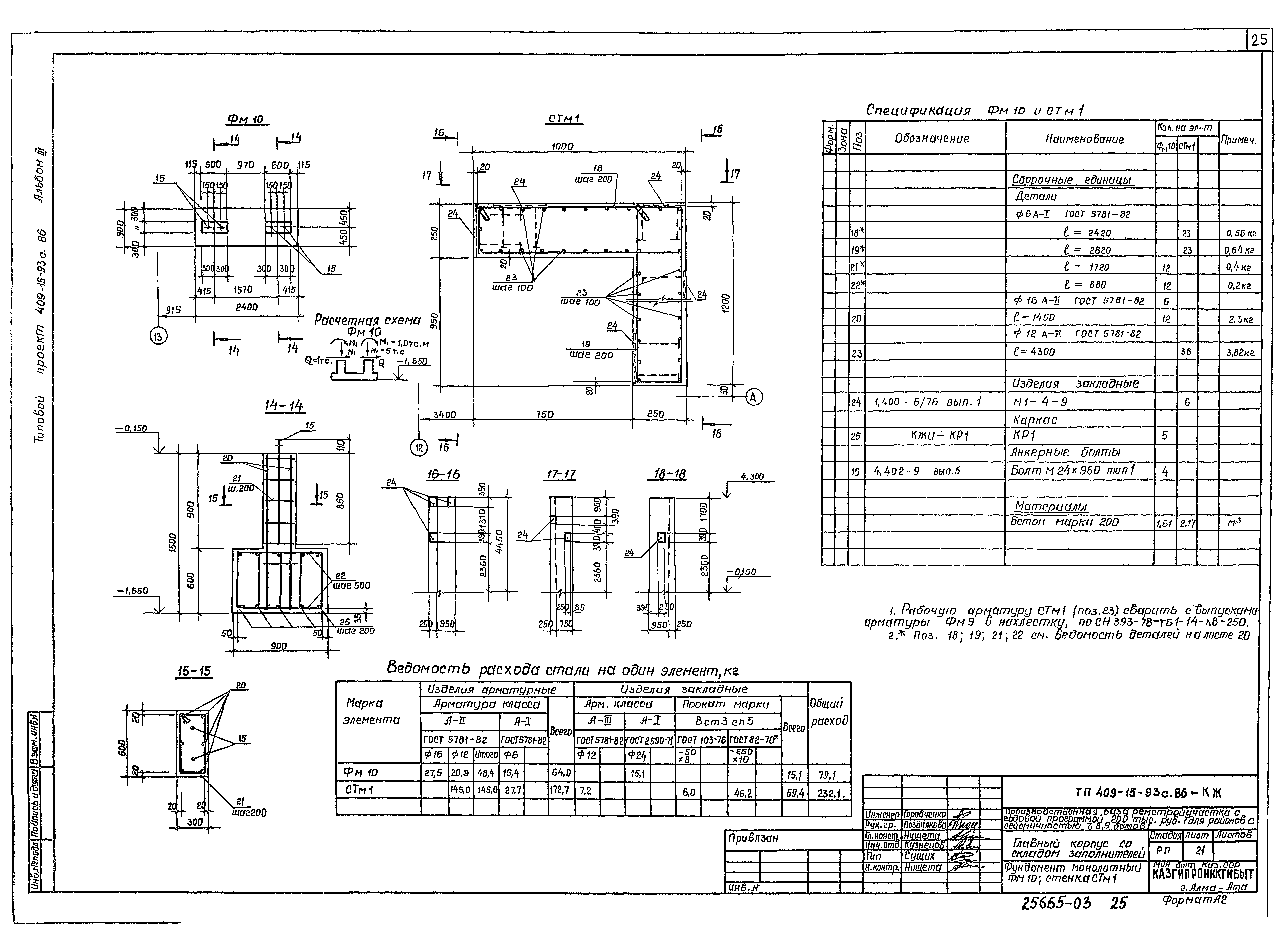
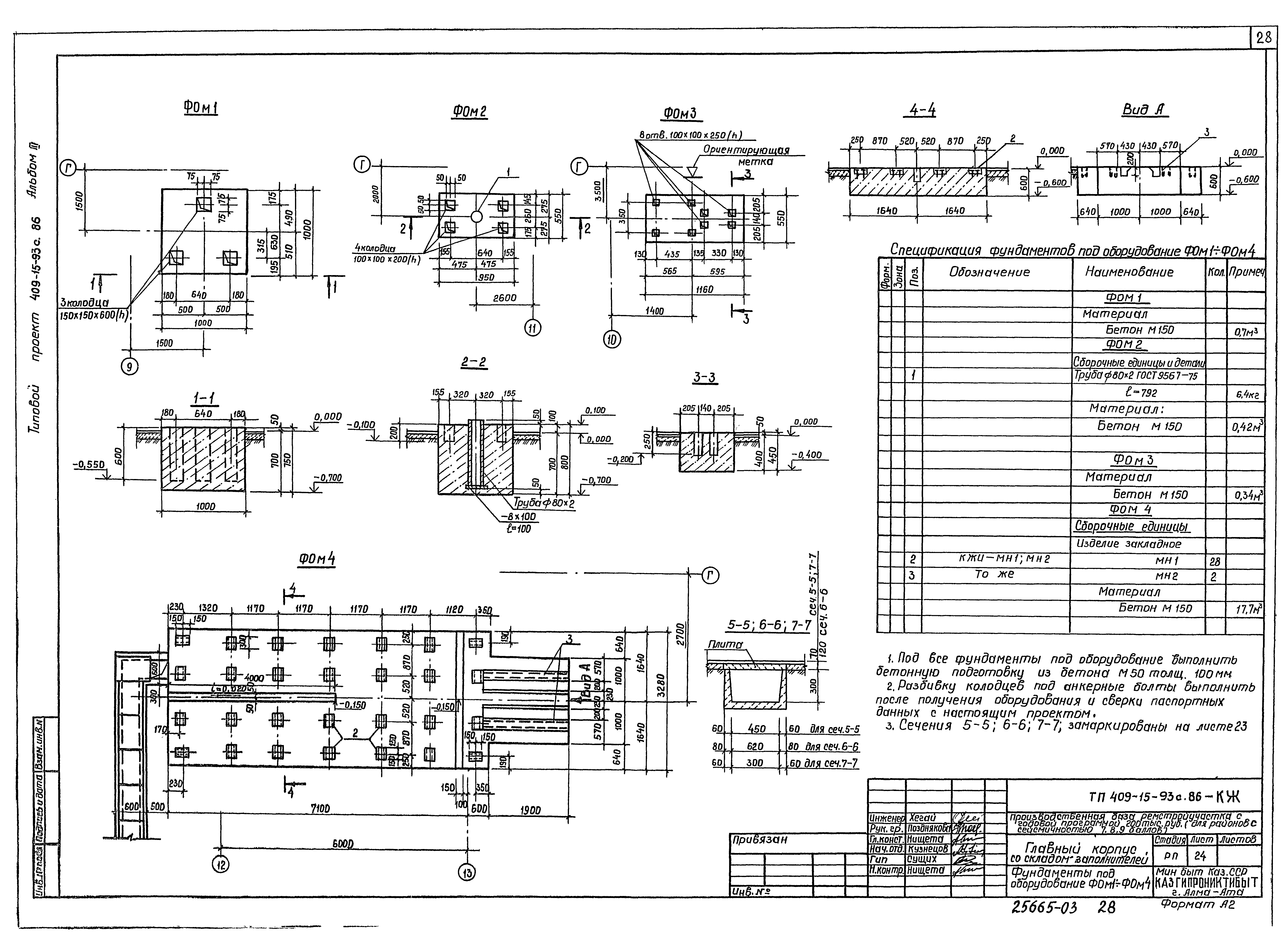
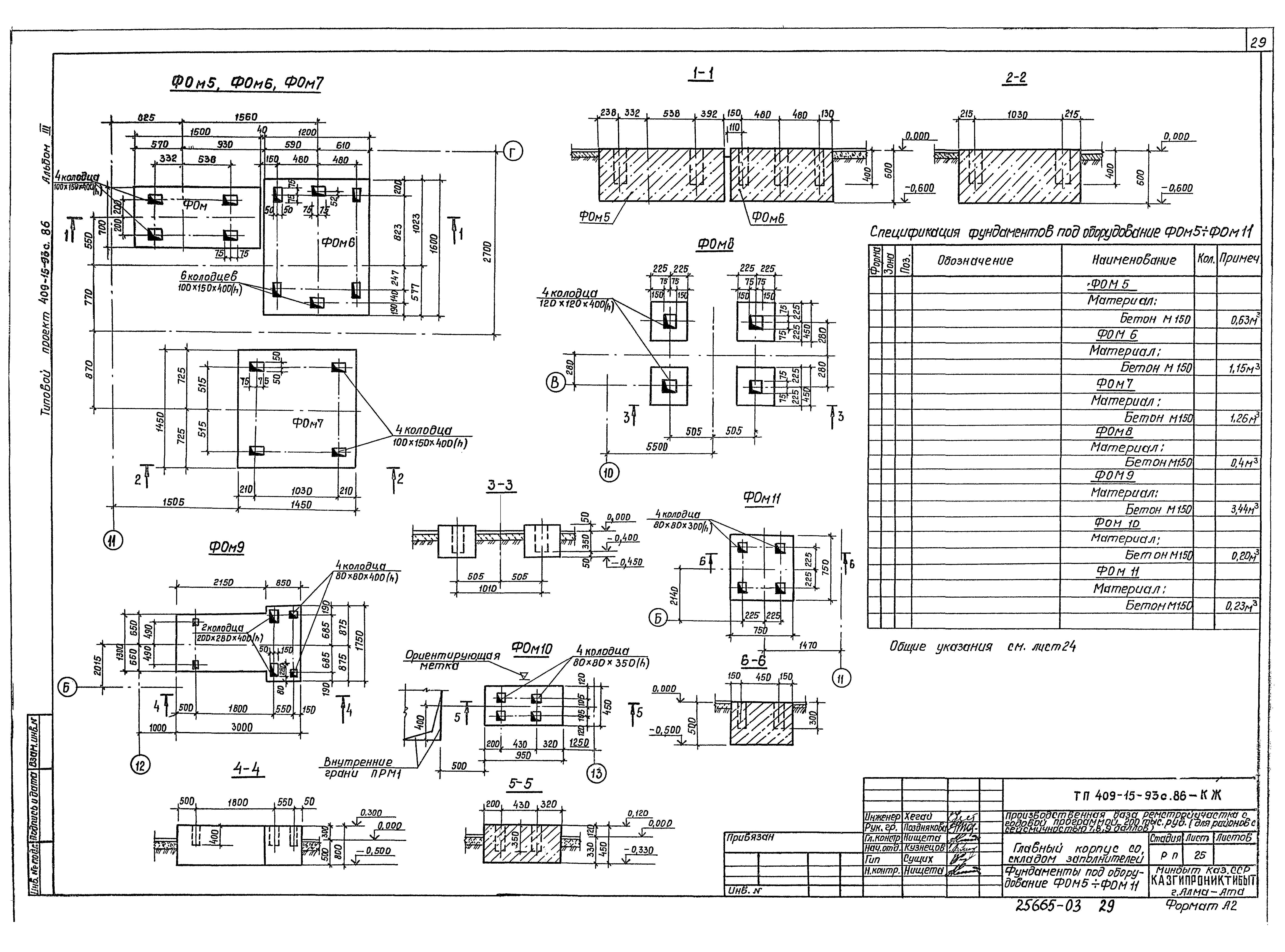
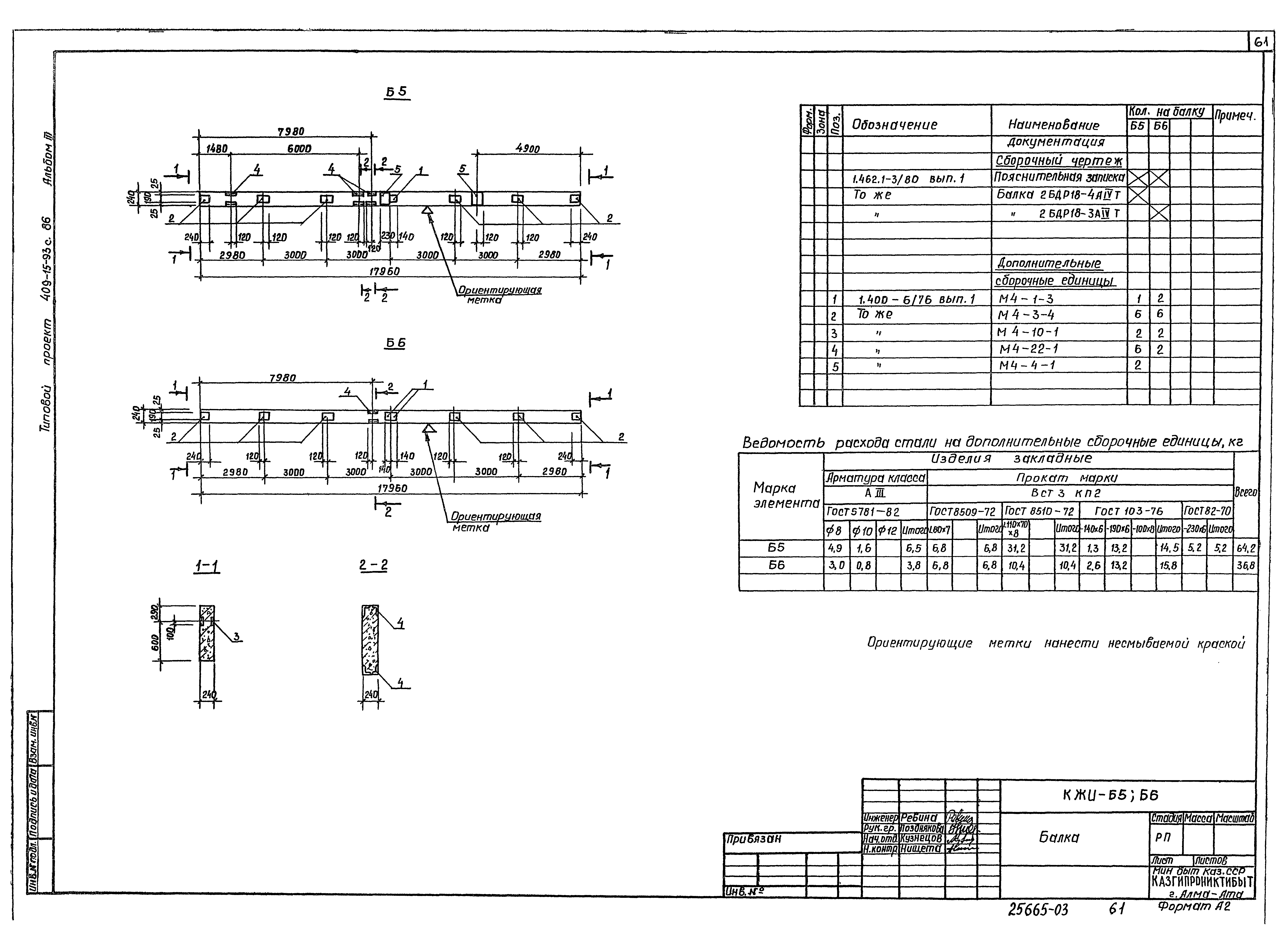
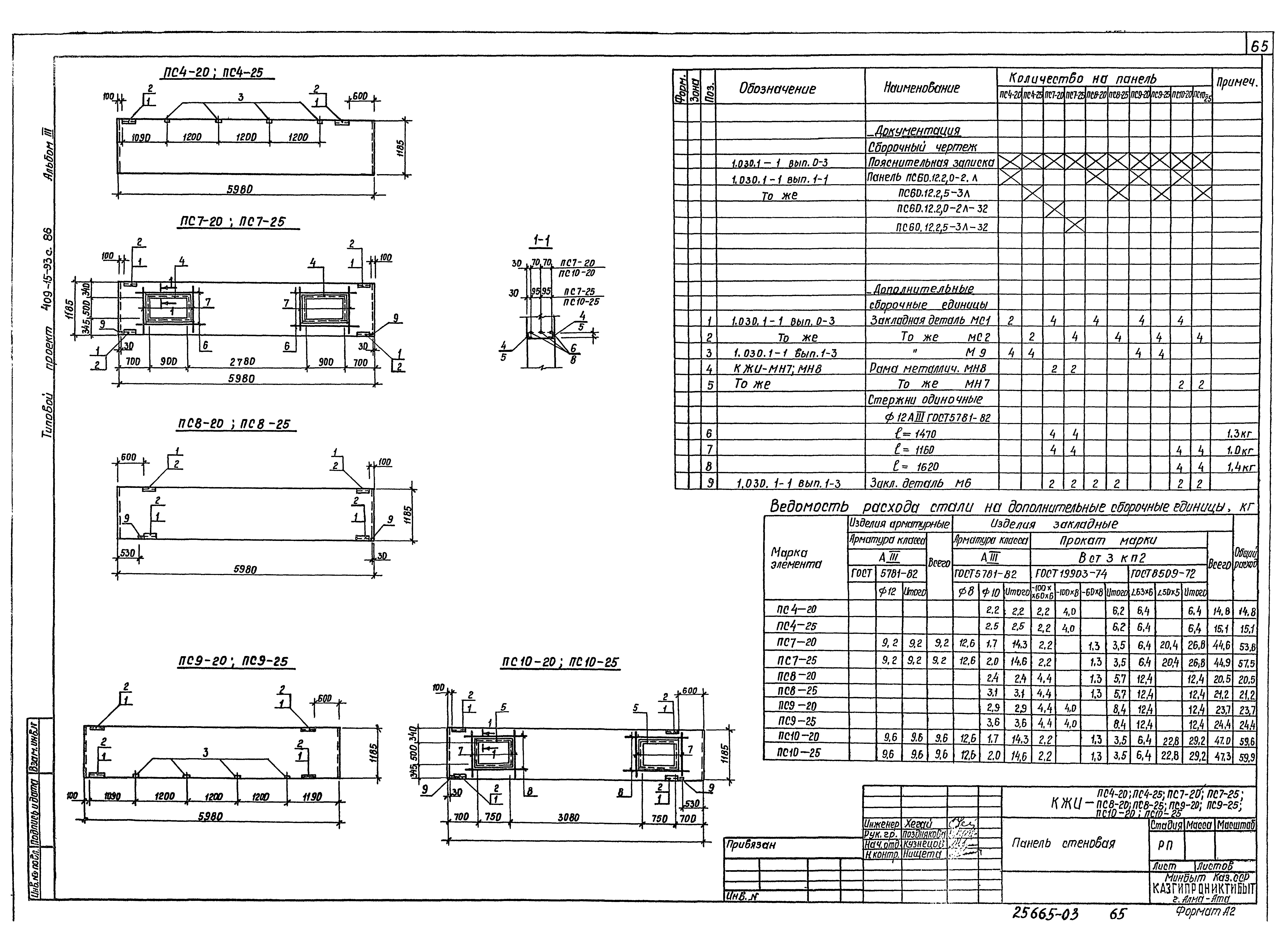
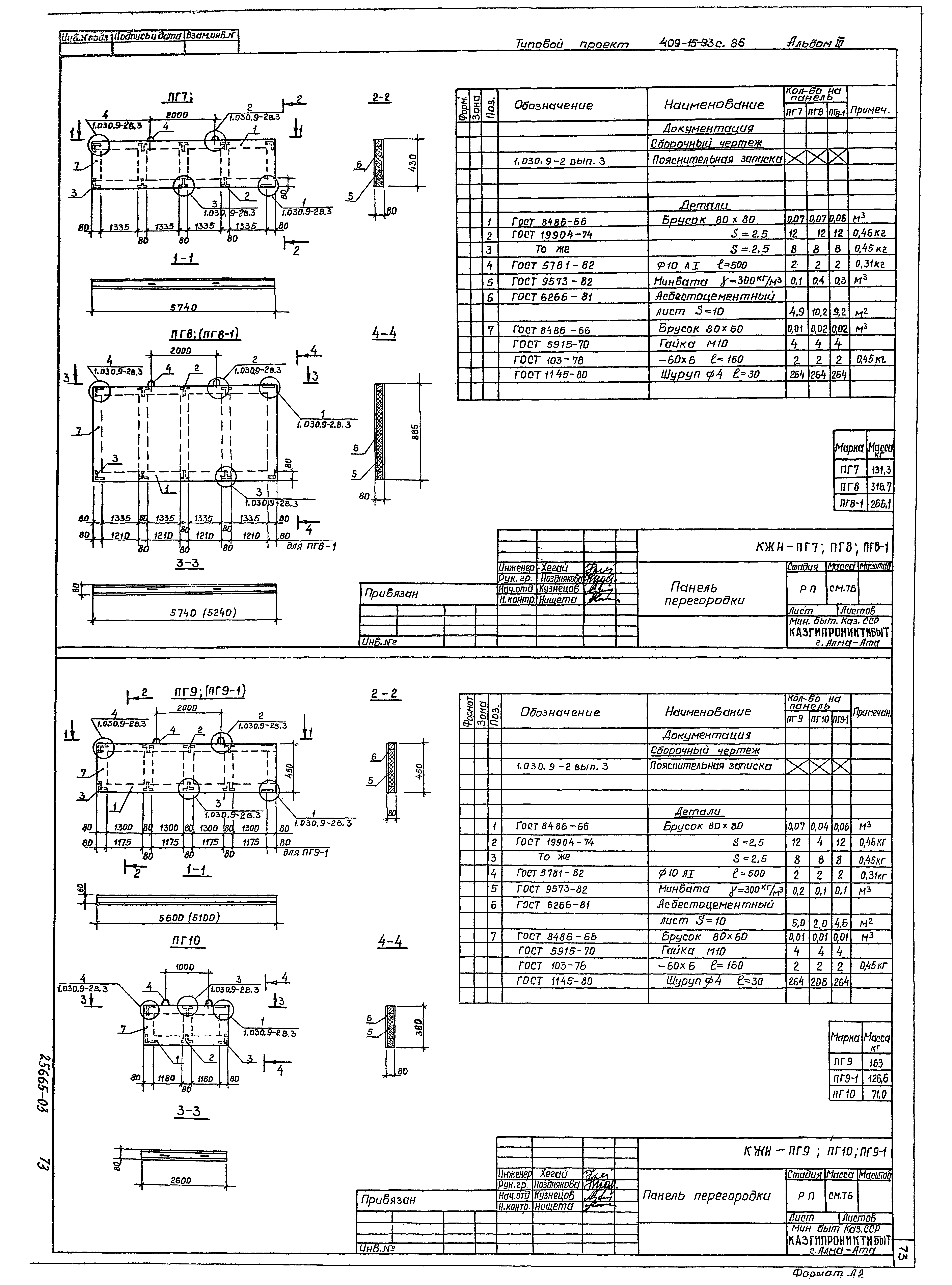
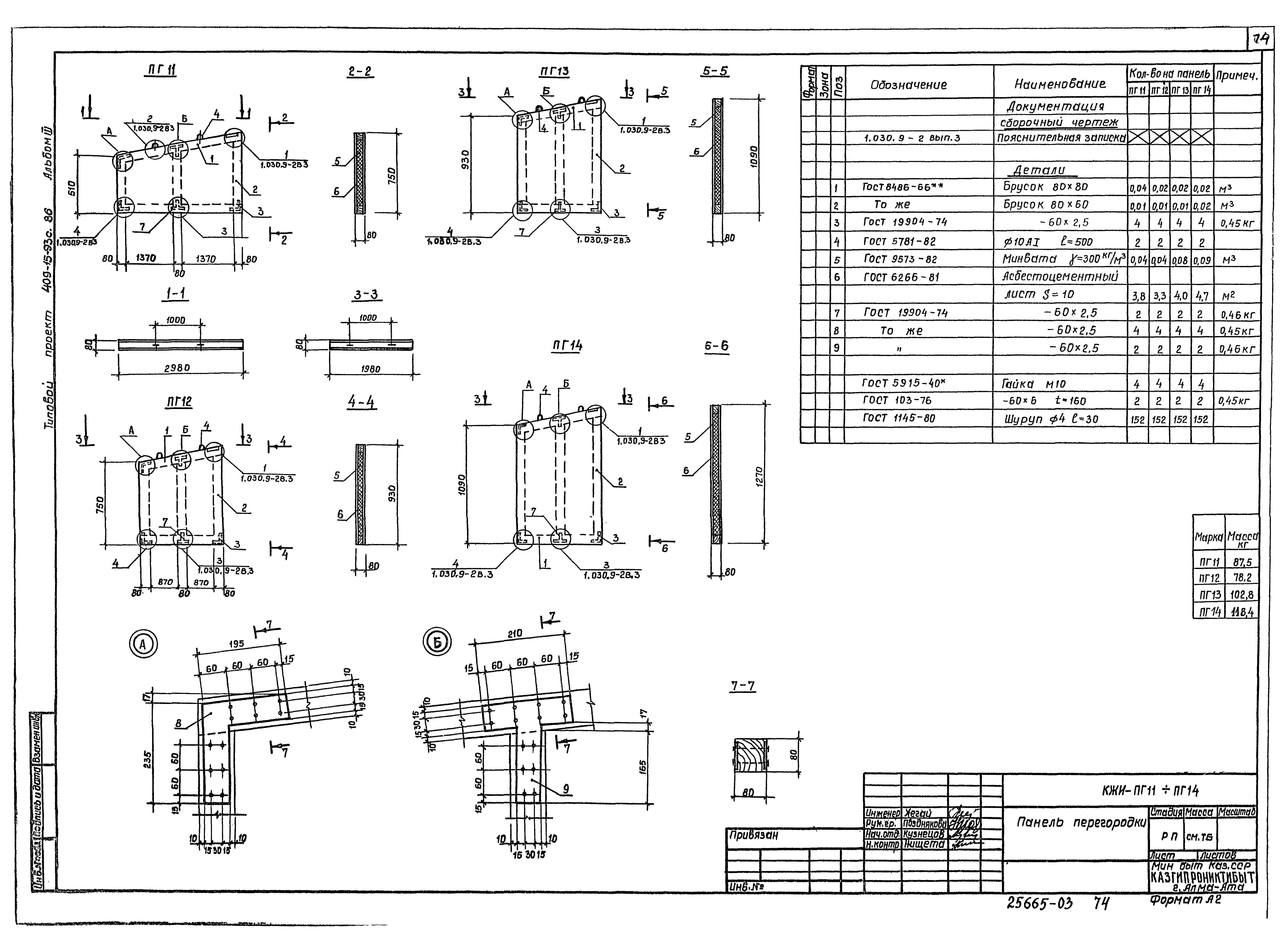
Скачать Типовой проект 409-15-93с.86 Альбом III. Конструкции железобетонныеДата актуализации: 01.01.2021
|
| Обозначение: | Типовой проект 409-15-93с.86 |
| Обозначение англ: | 409-15-93с.86 |
| Статус: | не определен законодательством |
| Название рус.: | Альбом III. Конструкции железобетонные |
| Дата добавления в базу: | 01.01.2018 |
| Дата актуализации: | 01.01.2021 |
| Дата введения: | 05.12.1986 |
| Дата окончания срока действия: | 30.06.2003 |
| Разработан: | КазгипроНИКТИбыт |
| Утверждён: | 28.11.1986 Госстрой Казахской ССР (258) |


















































































