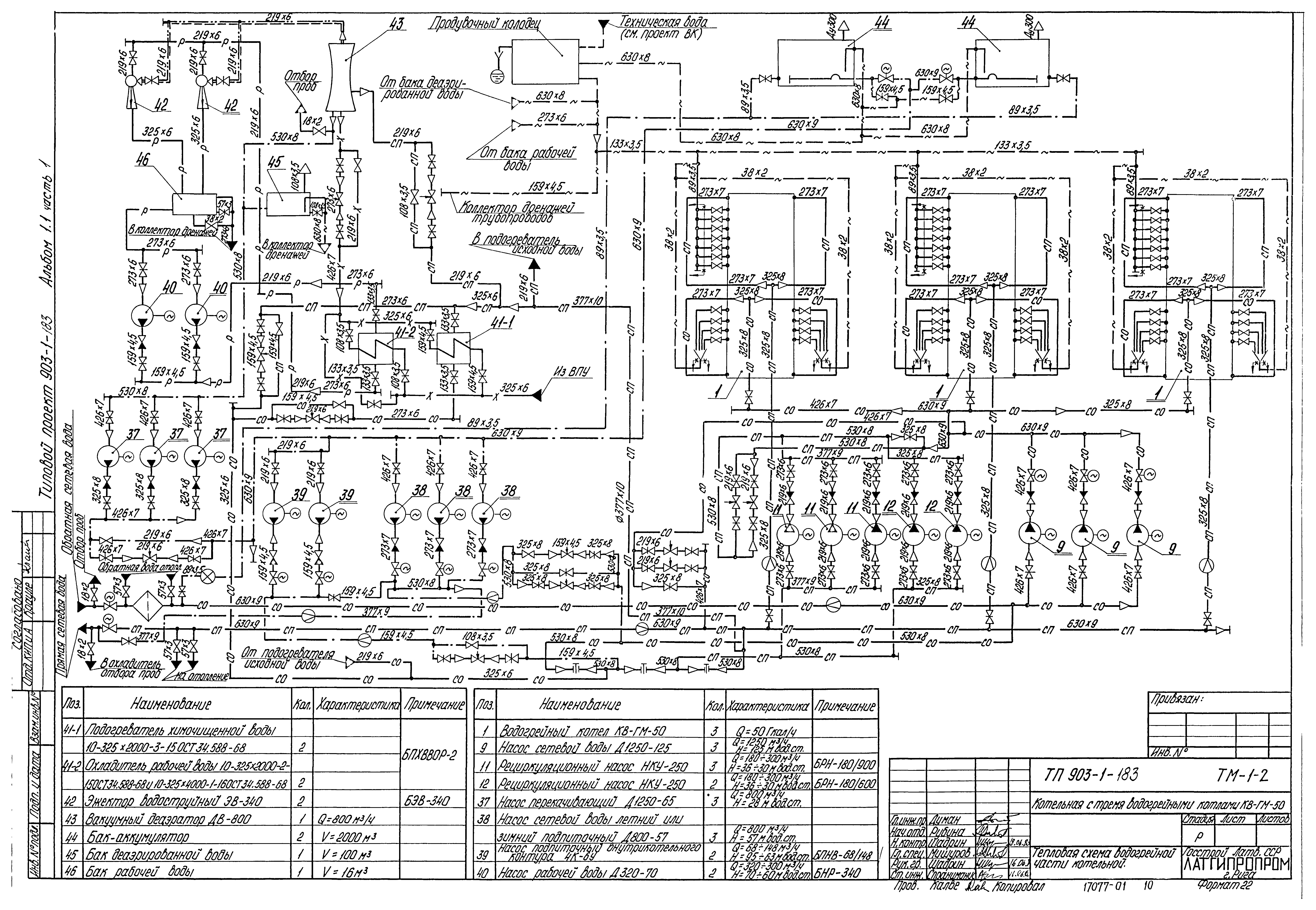
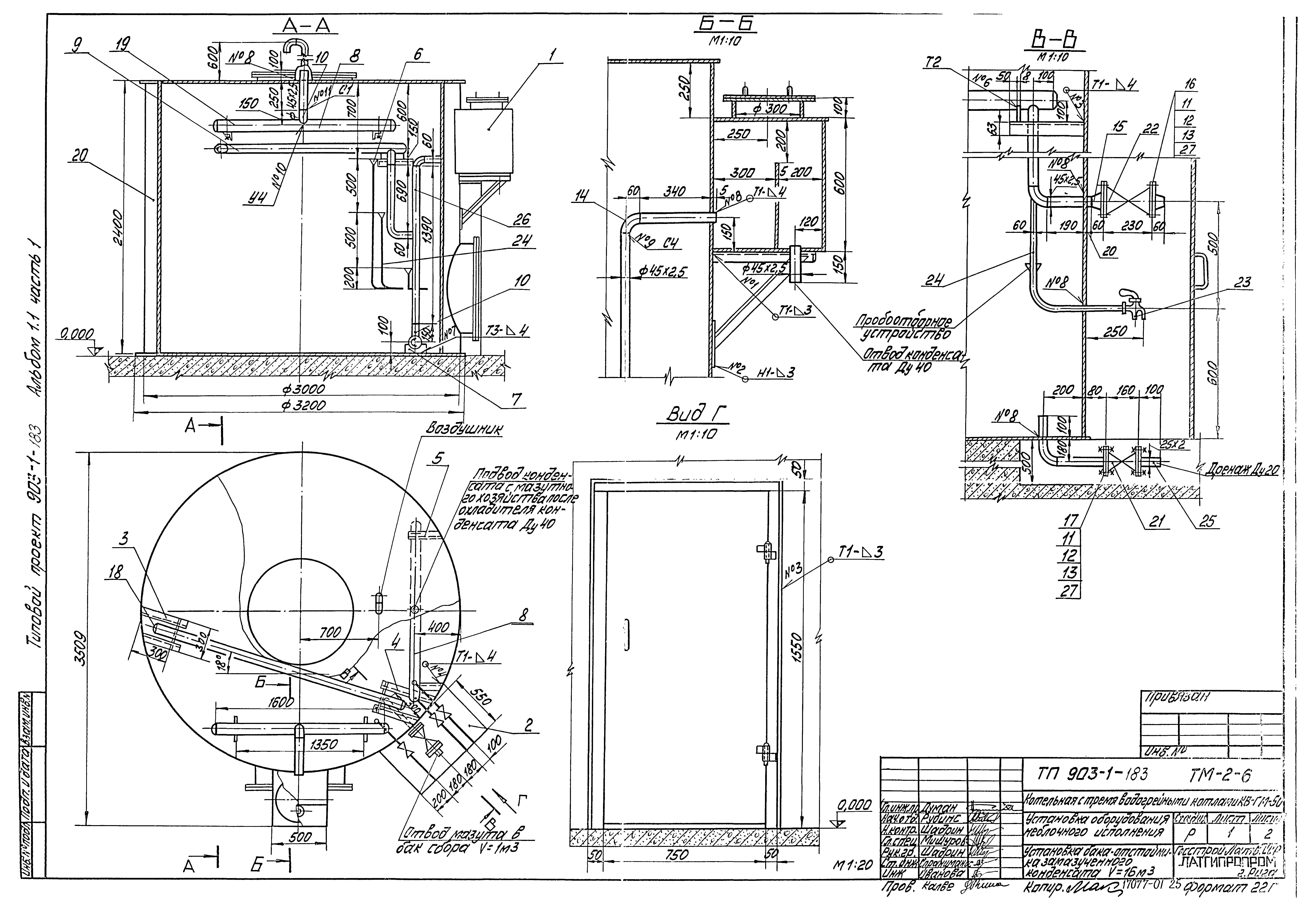
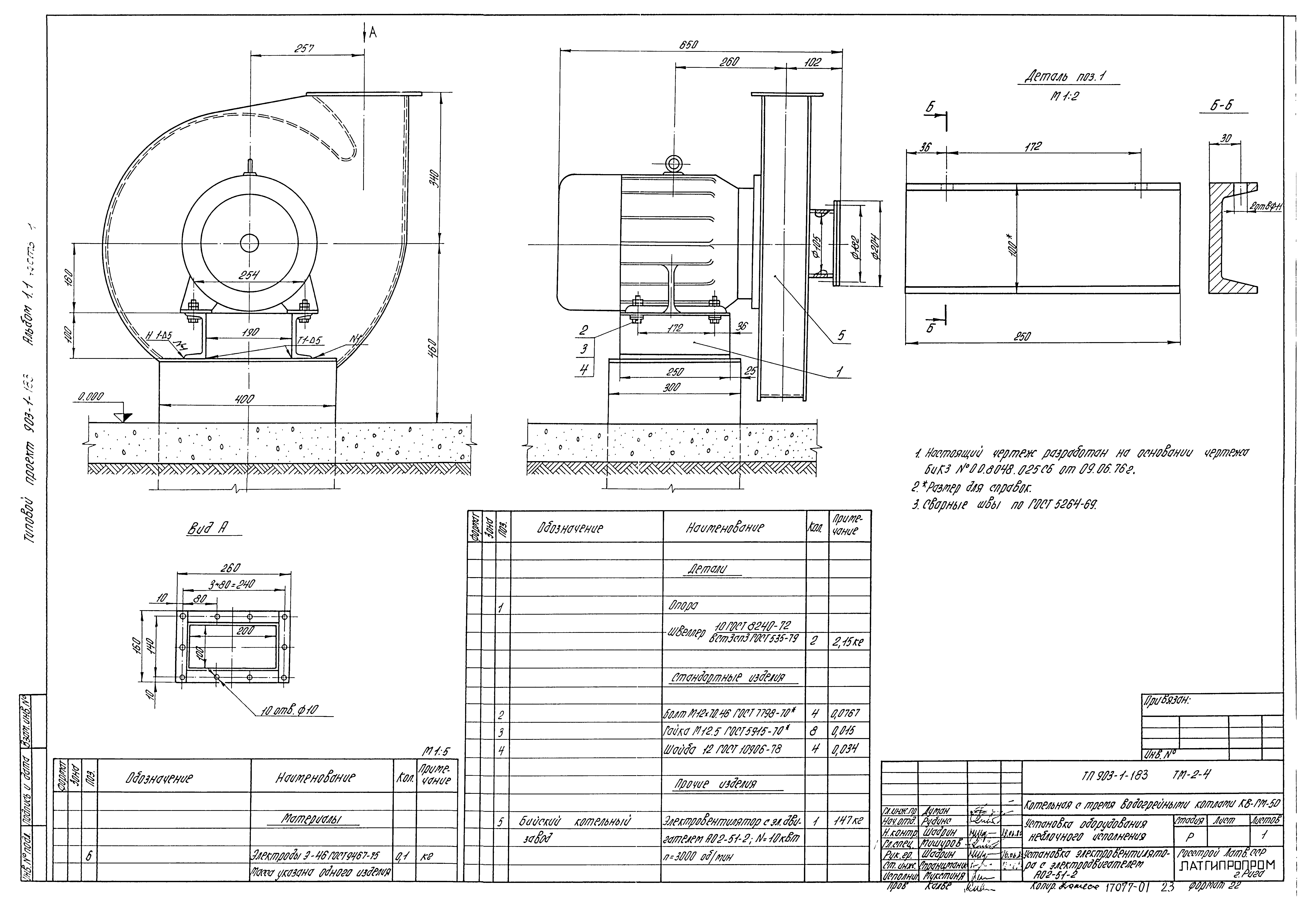
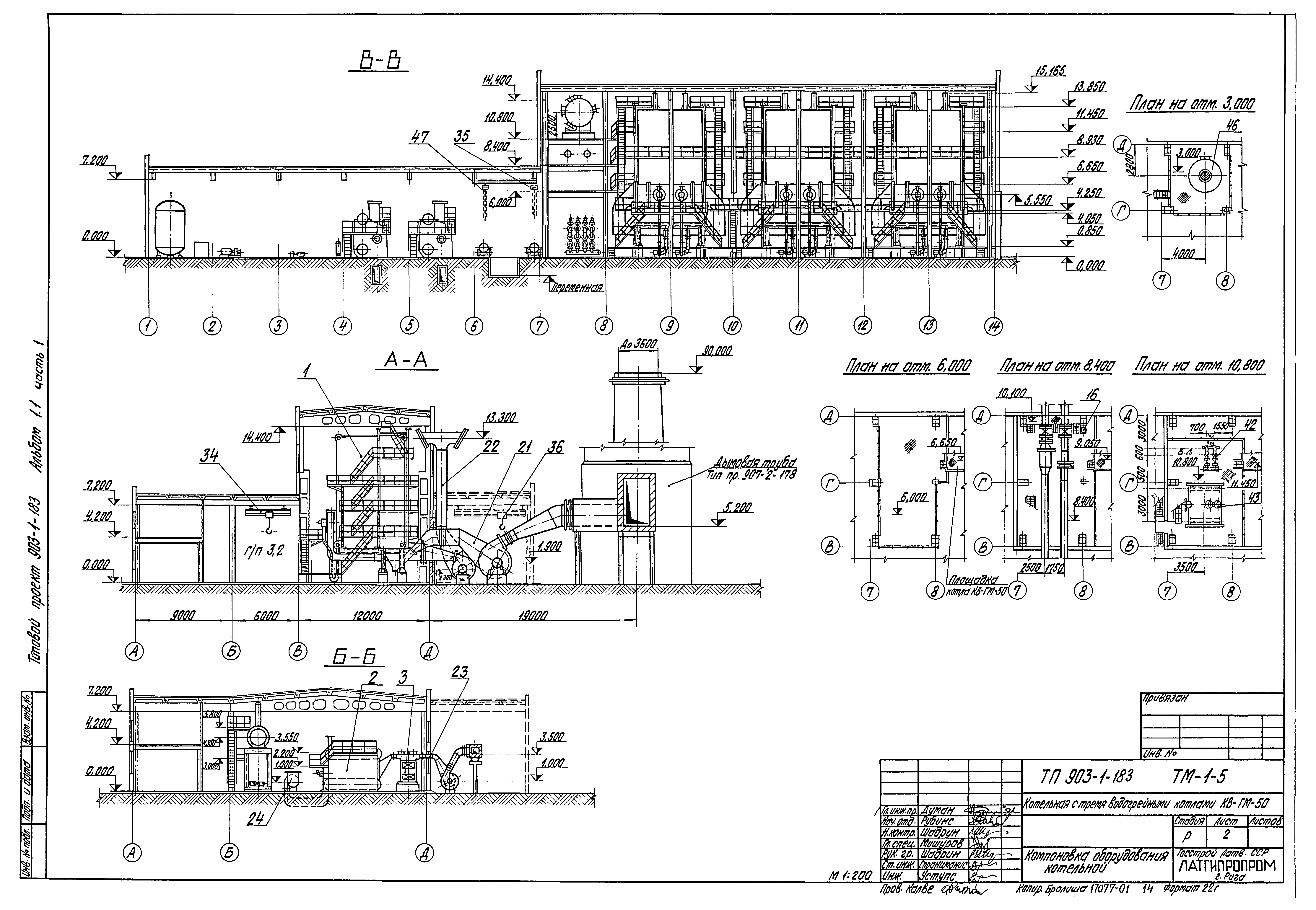
Скачать Типовой проект 903-1-183 Альбом 1.1. Часть 1. Тепломеханическая часть. Компоновка котельной. Установка оборудования неблочного исполнения (вариант для открытой системы теплоснабжения)

Дата актуализации: 01.01.2021

Типовой проект 903-1-183

Альбом 1.1. Часть 1. Тепломеханическая часть. Компоновка котельной. Установка оборудования неблочного исполнения (вариант для открытой системы теплоснабжения)

Обозначение: Типовой проект 903-1-183
Обозначение англ: 903-1-183
Статус:отменен
Название рус.:Альбом 1.1. Часть 1. Тепломеханическая часть. Компоновка котельной. Установка оборудования неблочного исполнения (вариант для открытой системы теплоснабжения)
Дата добавления в базу:01.01.2018
Дата актуализации:01.01.2021
Дата введения:25.08.1980
Дата окончания срока действия:01.02.1987
Разработан: Латгипропром
Утверждён:25.08.1980 Латгипропром (207)
Издан: ЦИТП Госстроя СССР (CITP, Gosstroy (USSR) 1983 г. )
Заменяет собой:
  • Типовой проект 903-1-117
  • Типовой проект 903-1-118
  • Типовой проект 903-1-144
Типовой проект 903-1-183Типовой проект 903-1-183Типовой проект 903-1-183Типовой проект 903-1-183Типовой проект 903-1-183Типовой проект 903-1-183Типовой проект 903-1-183Типовой проект 903-1-183Типовой проект 903-1-183Типовой проект 903-1-183Типовой проект 903-1-183Типовой проект 903-1-183Типовой проект 903-1-183Типовой проект 903-1-183Типовой проект 903-1-183Типовой проект 903-1-183Типовой проект 903-1-183Типовой проект 903-1-183Типовой проект 903-1-183Типовой проект 903-1-183Типовой проект 903-1-183Типовой проект 903-1-183Типовой проект 903-1-183Типовой проект 903-1-183Типовой проект 903-1-183Типовой проект 903-1-183Типовой проект 903-1-183Типовой проект 903-1-183Типовой проект 903-1-183