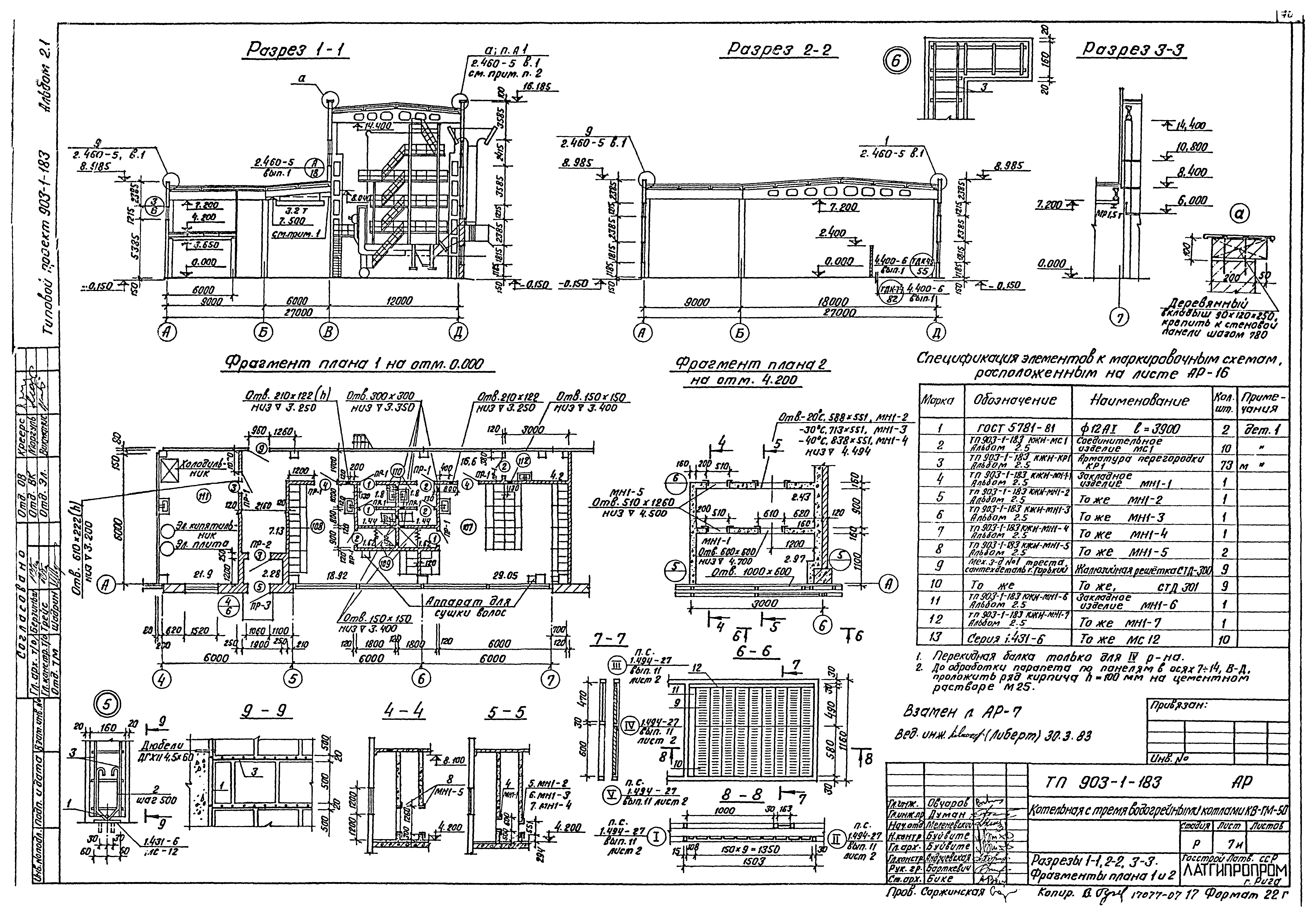
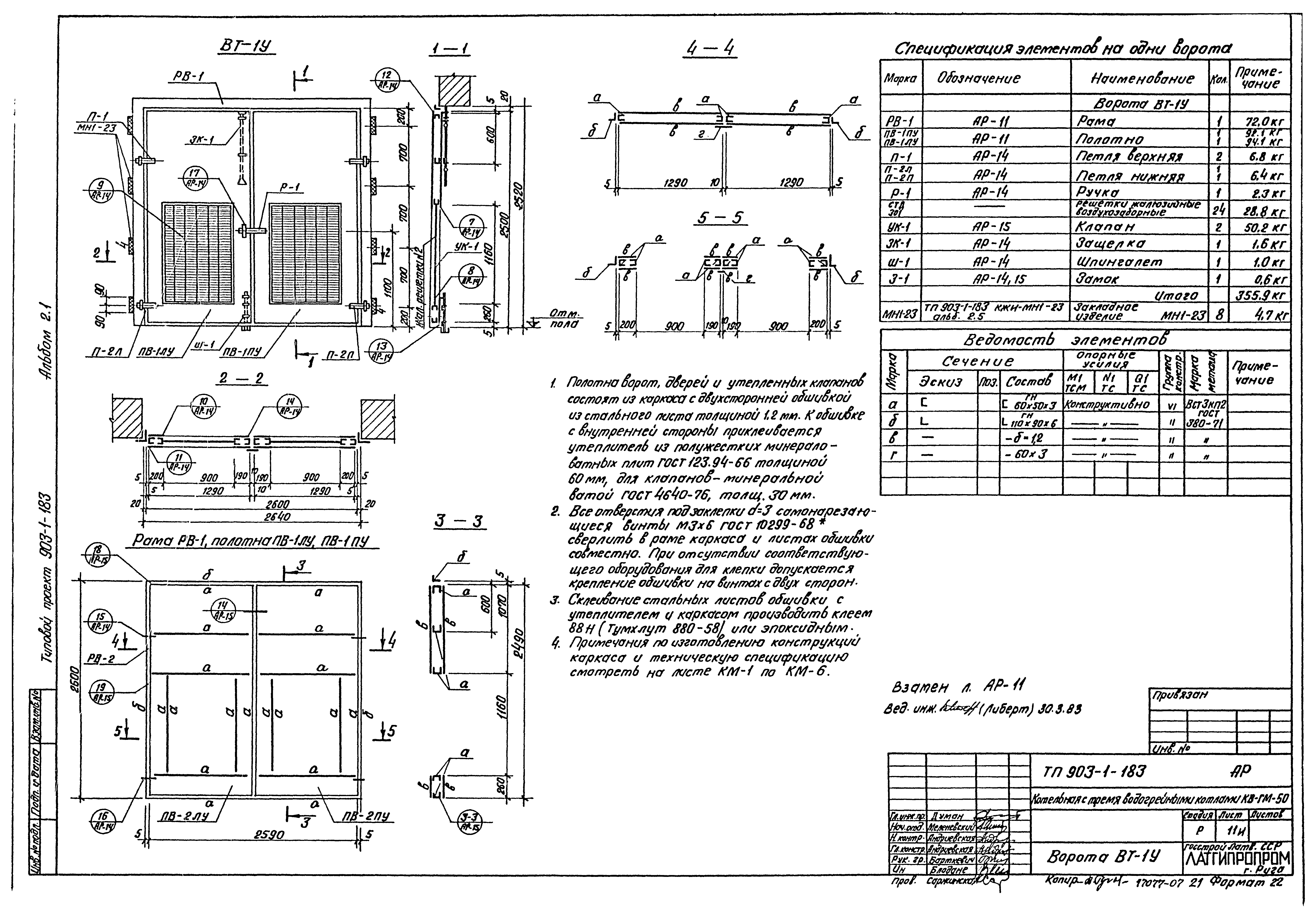
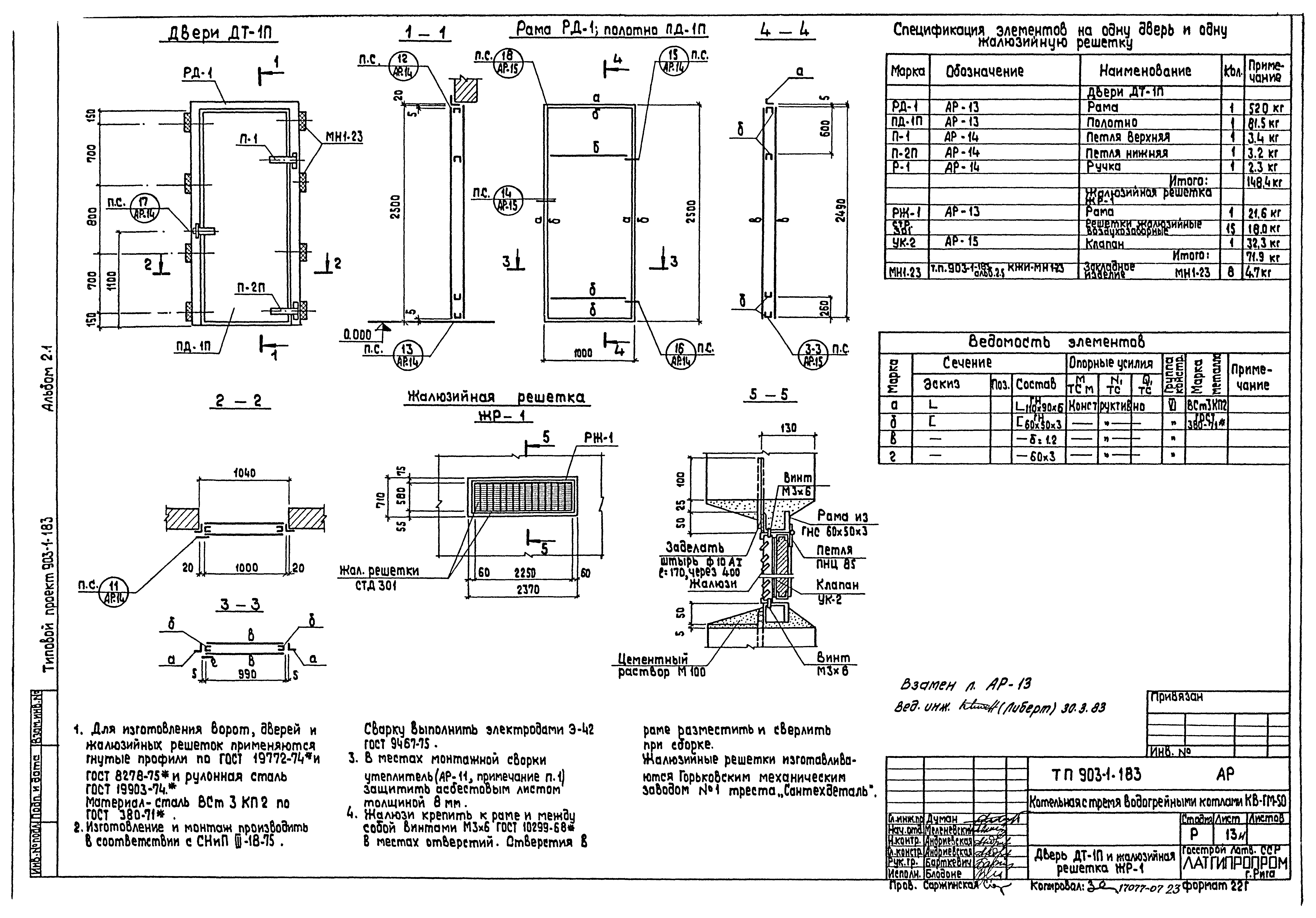
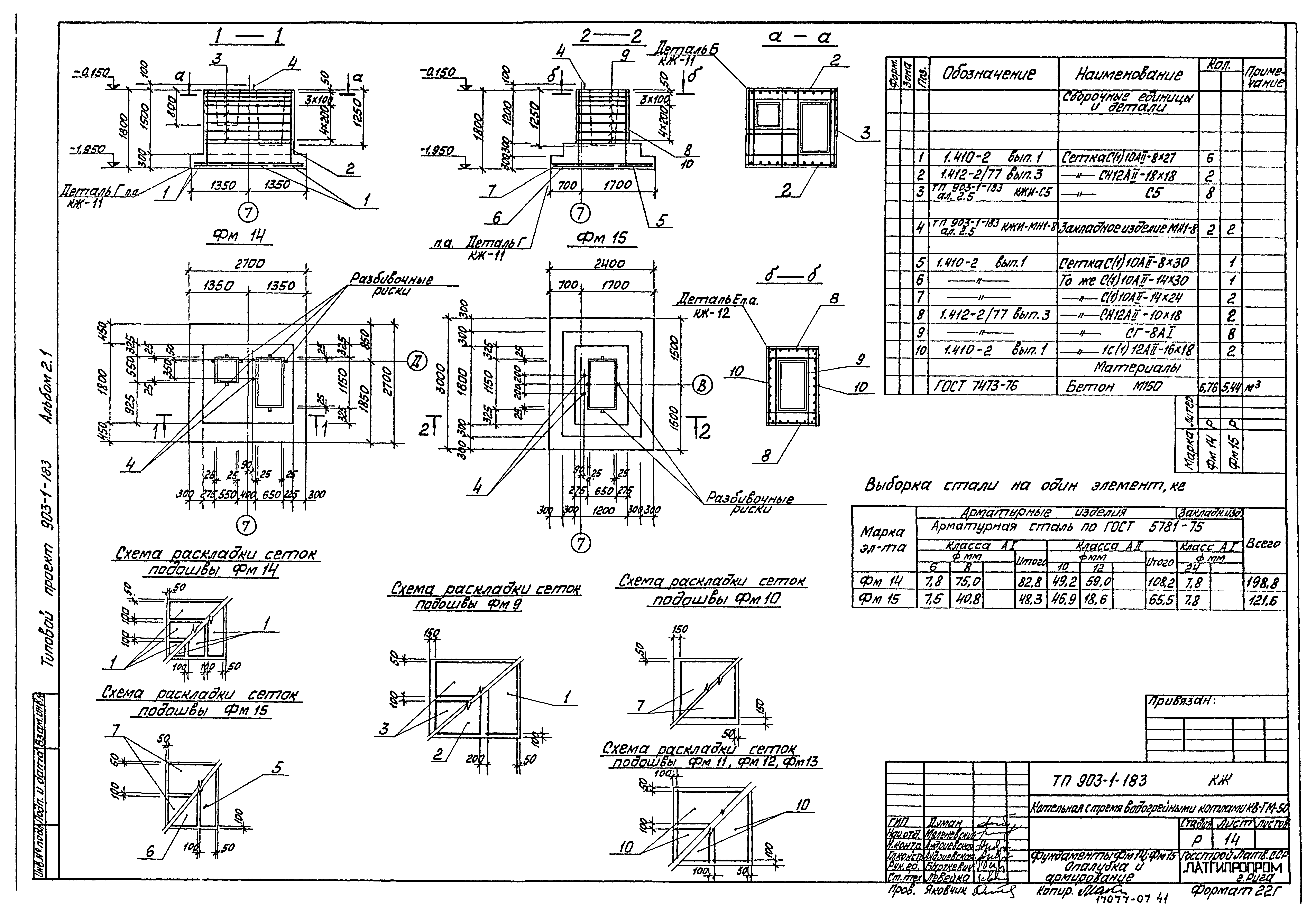
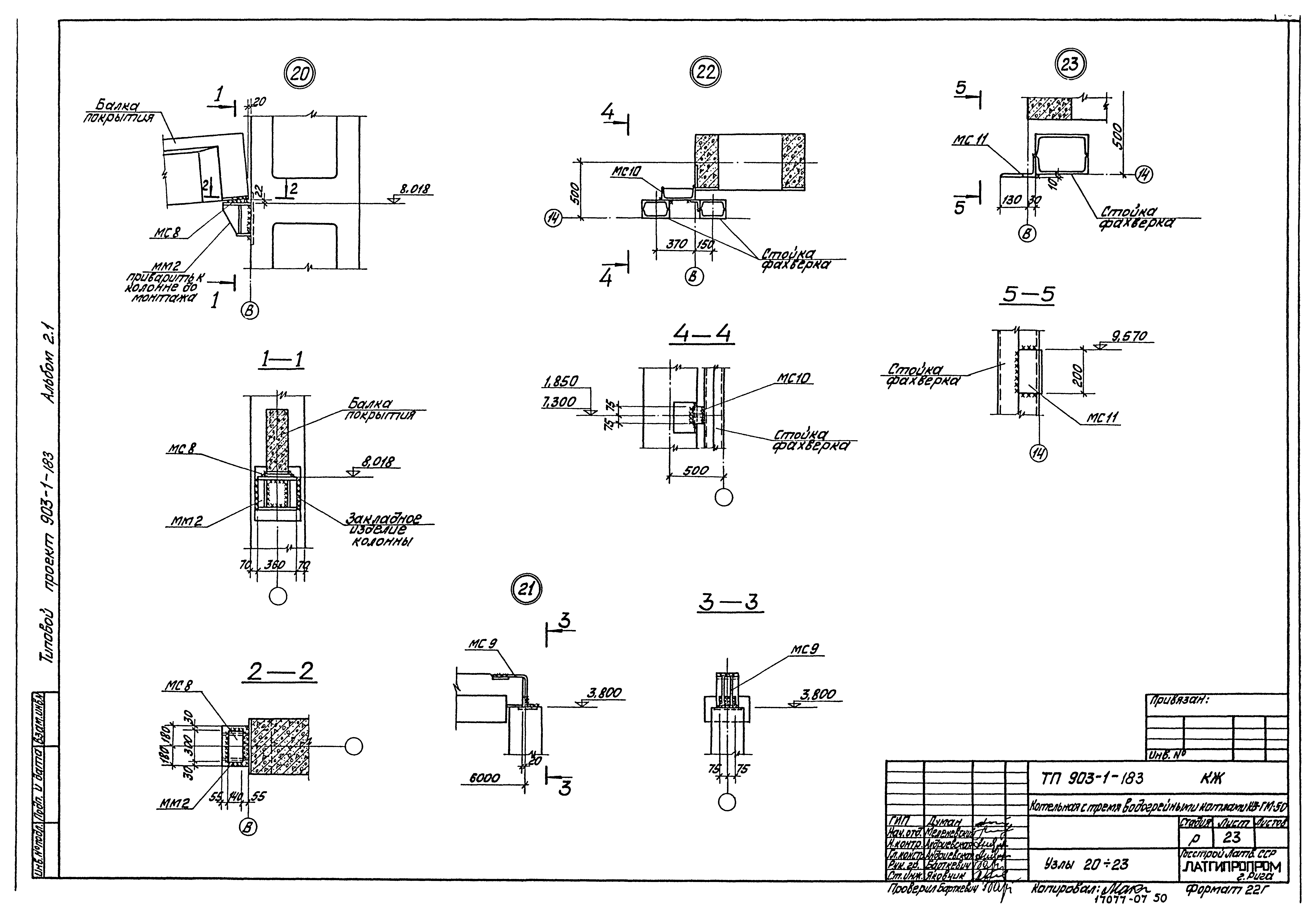
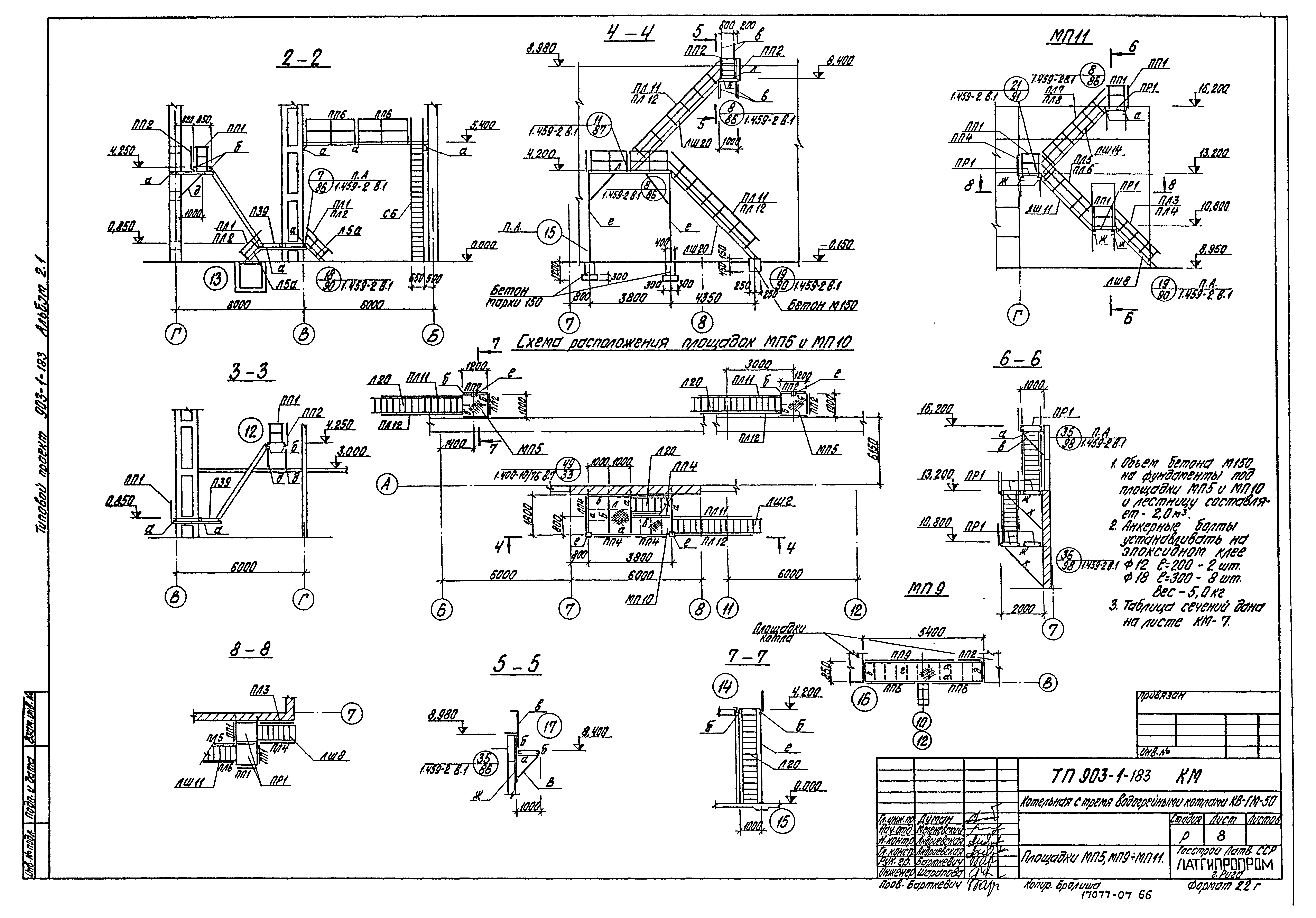
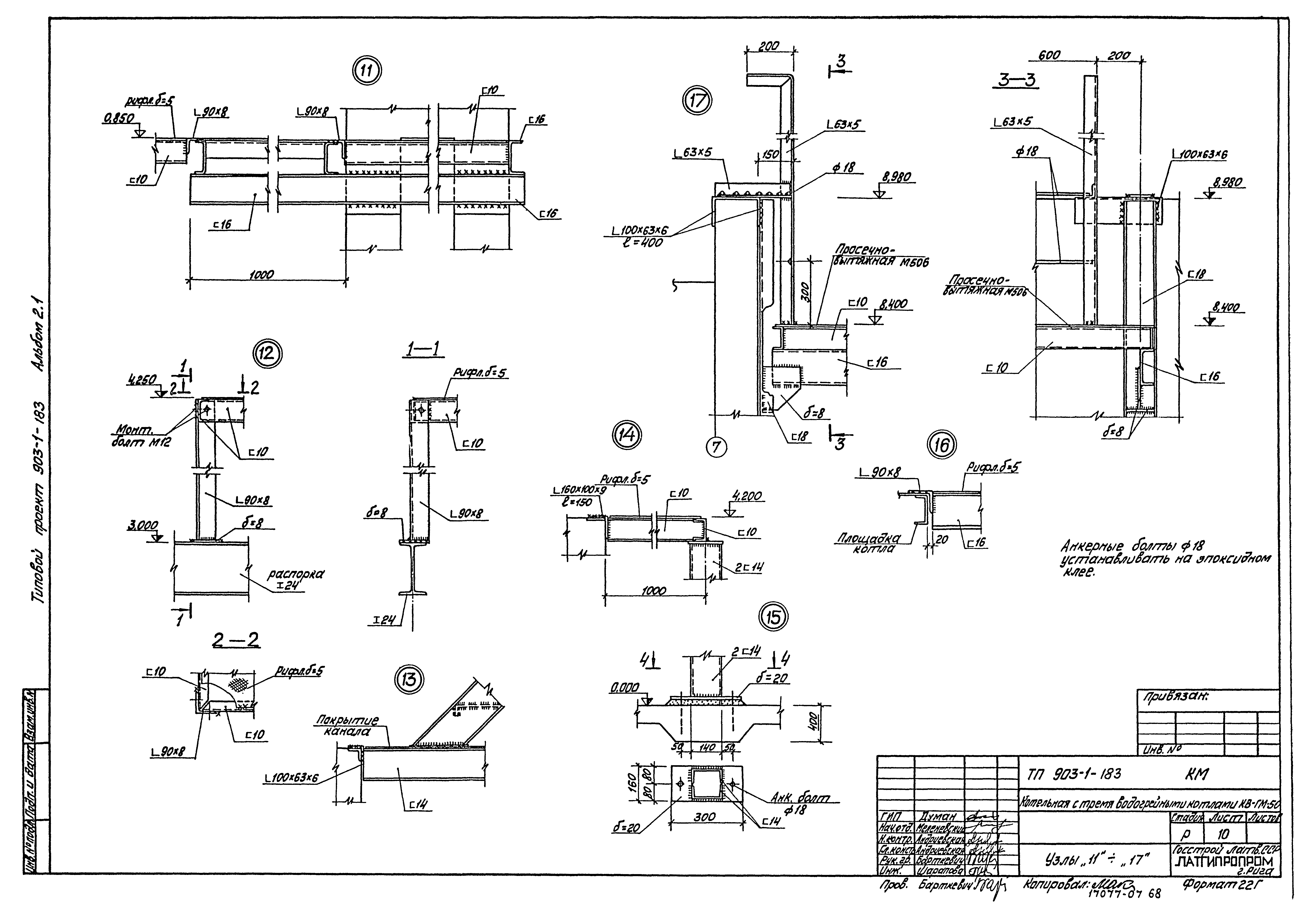
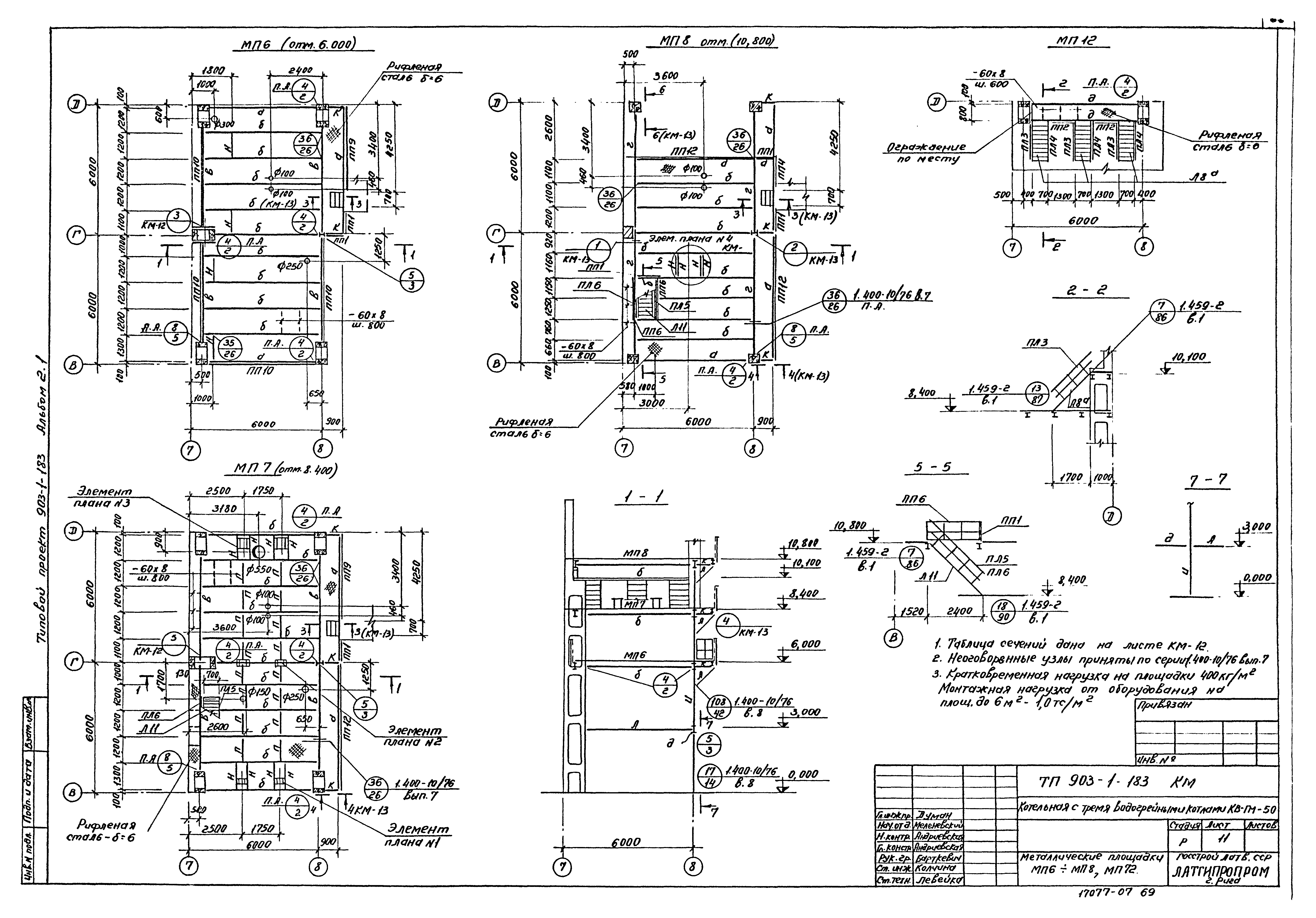
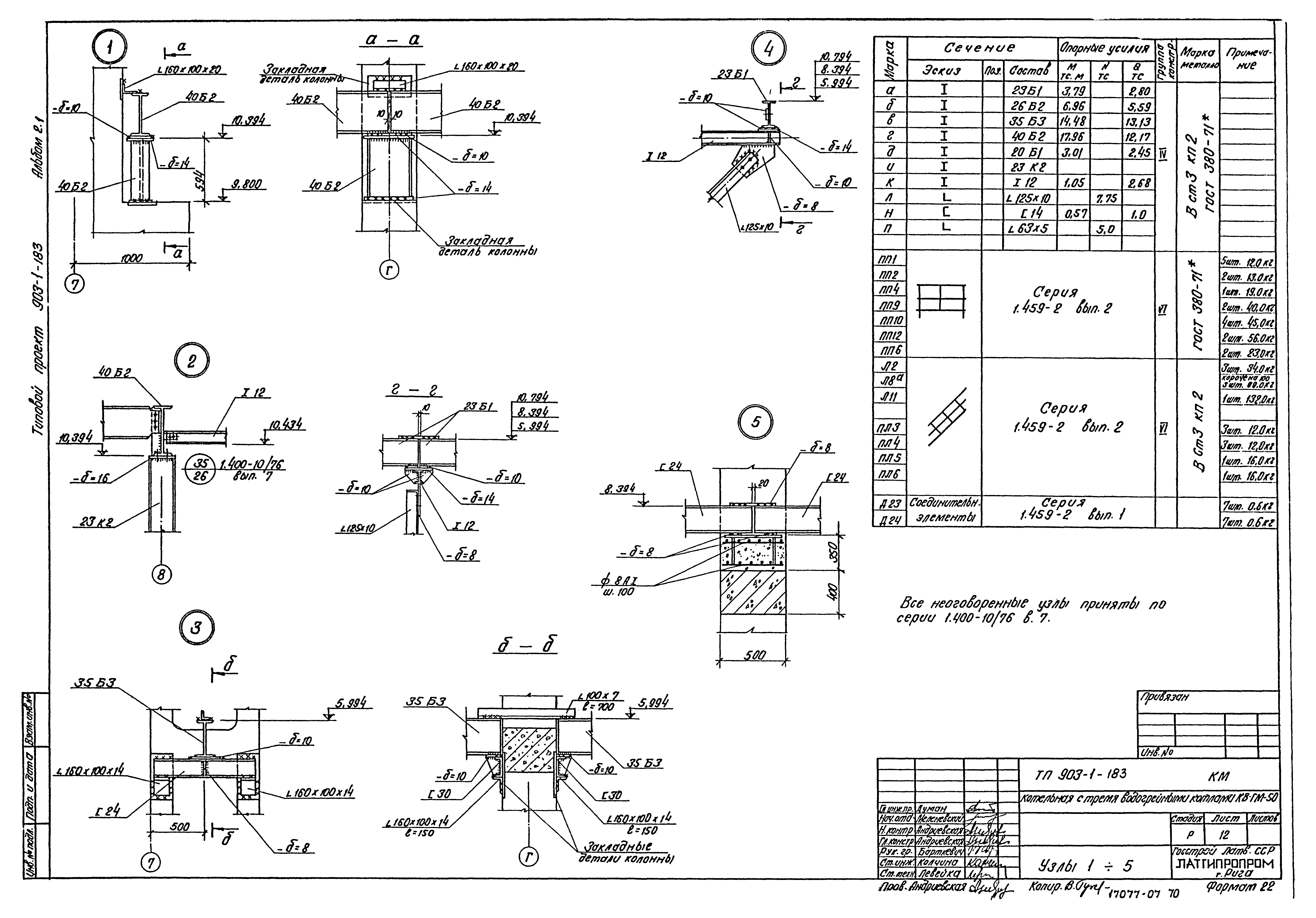
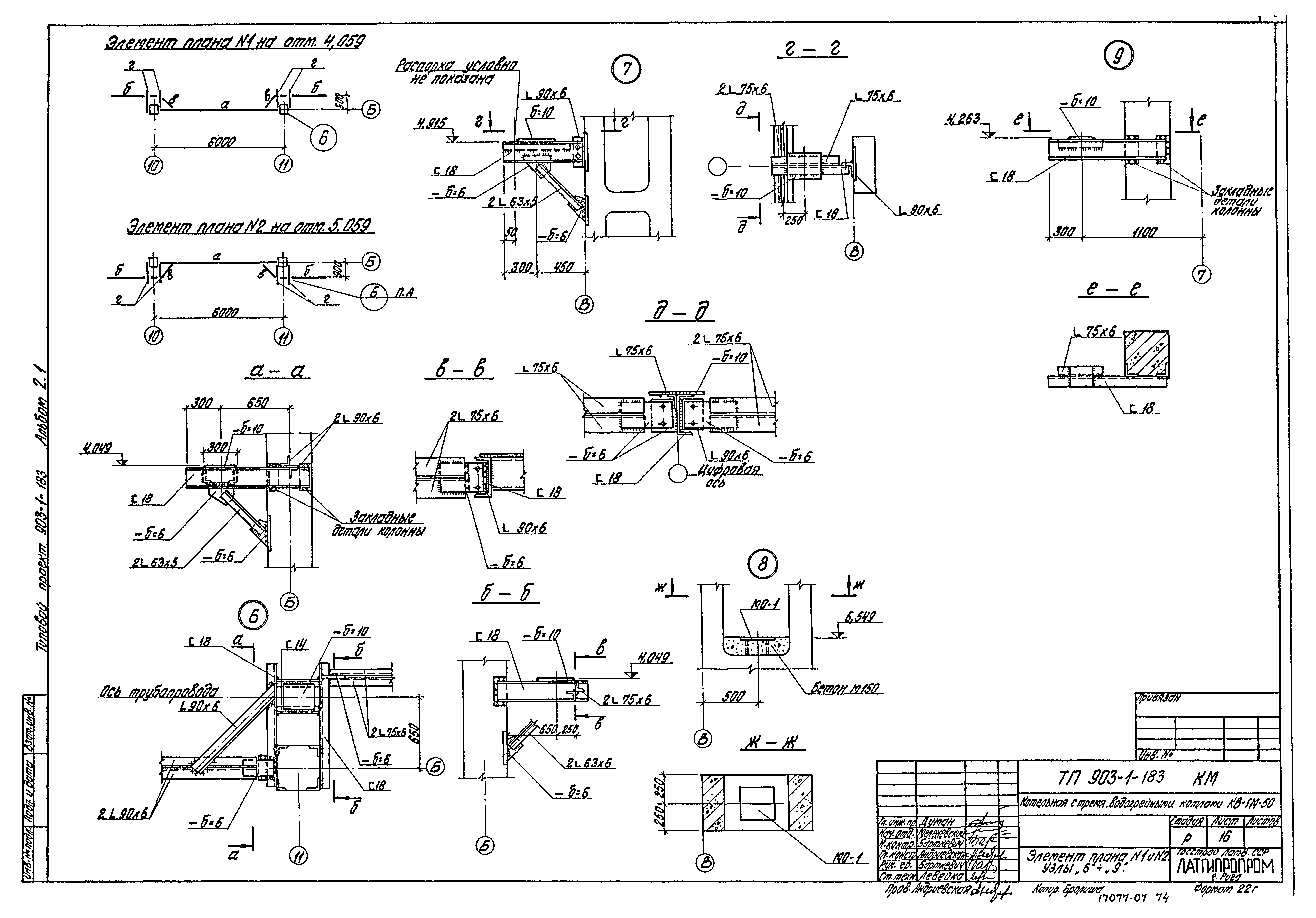
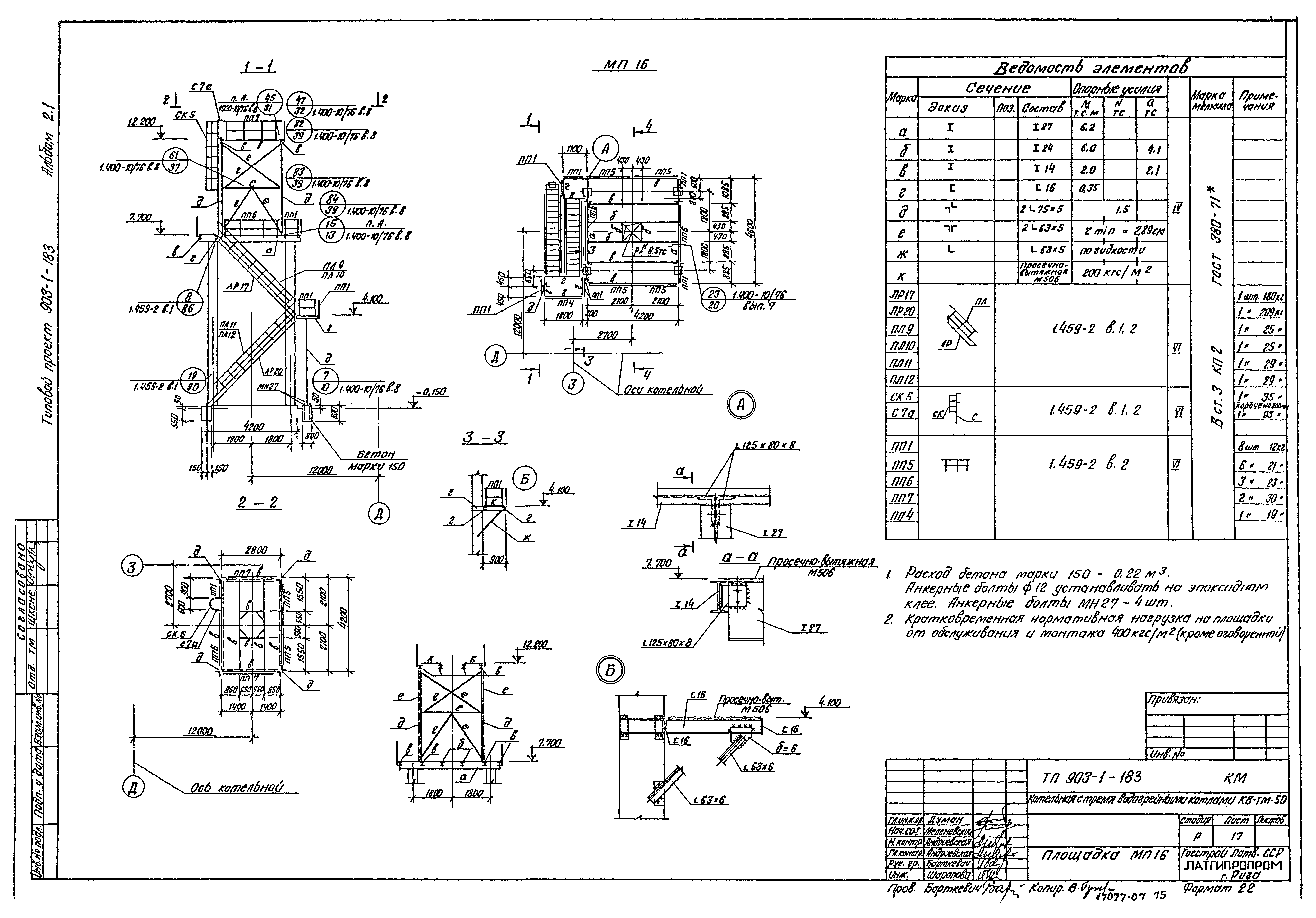
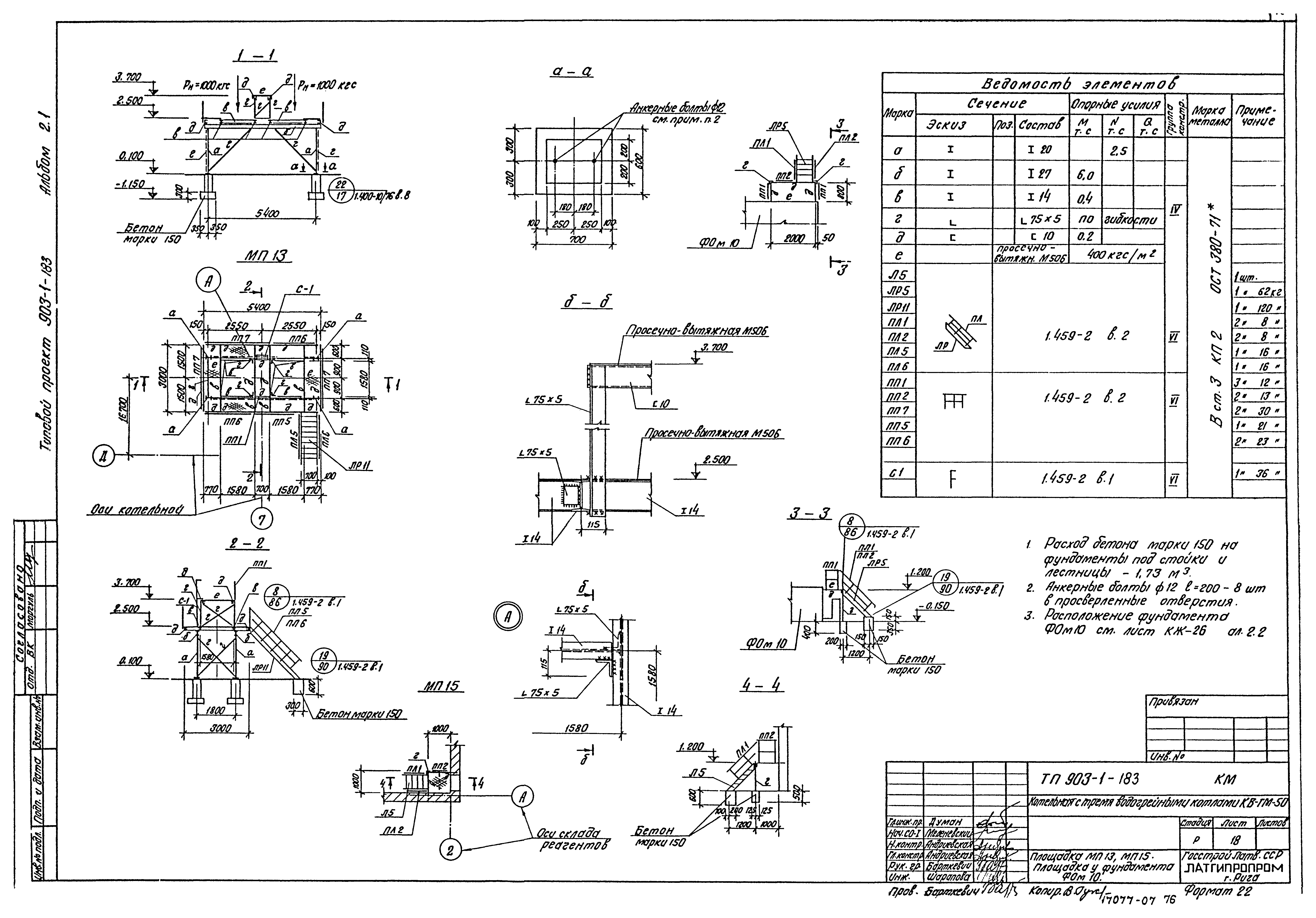
Скачать Типовой проект 903-1-183 Альбом 2.1. Архитектурно-строительная часть. Общие чертежиДата актуализации: 01.01.2021
|
| Обозначение: | Типовой проект 903-1-183 |
| Обозначение англ: | 903-1-183 |
| Статус: | отменен |
| Название рус.: | Альбом 2.1. Архитектурно-строительная часть. Общие чертежи |
| Дата добавления в базу: | 01.01.2018 |
| Дата актуализации: | 01.01.2021 |
| Дата введения: | 25.08.1980 |
| Дата окончания срока действия: | 01.02.1987 |
| Разработан: | Латгипропром |
| Утверждён: | 25.08.1980 Латгипропром (207) |
| Издан: | ЦИТП Госстроя СССР (CITP, Gosstroy (USSR) 1983 г. ) |
| Заменяет собой: |
|














































































