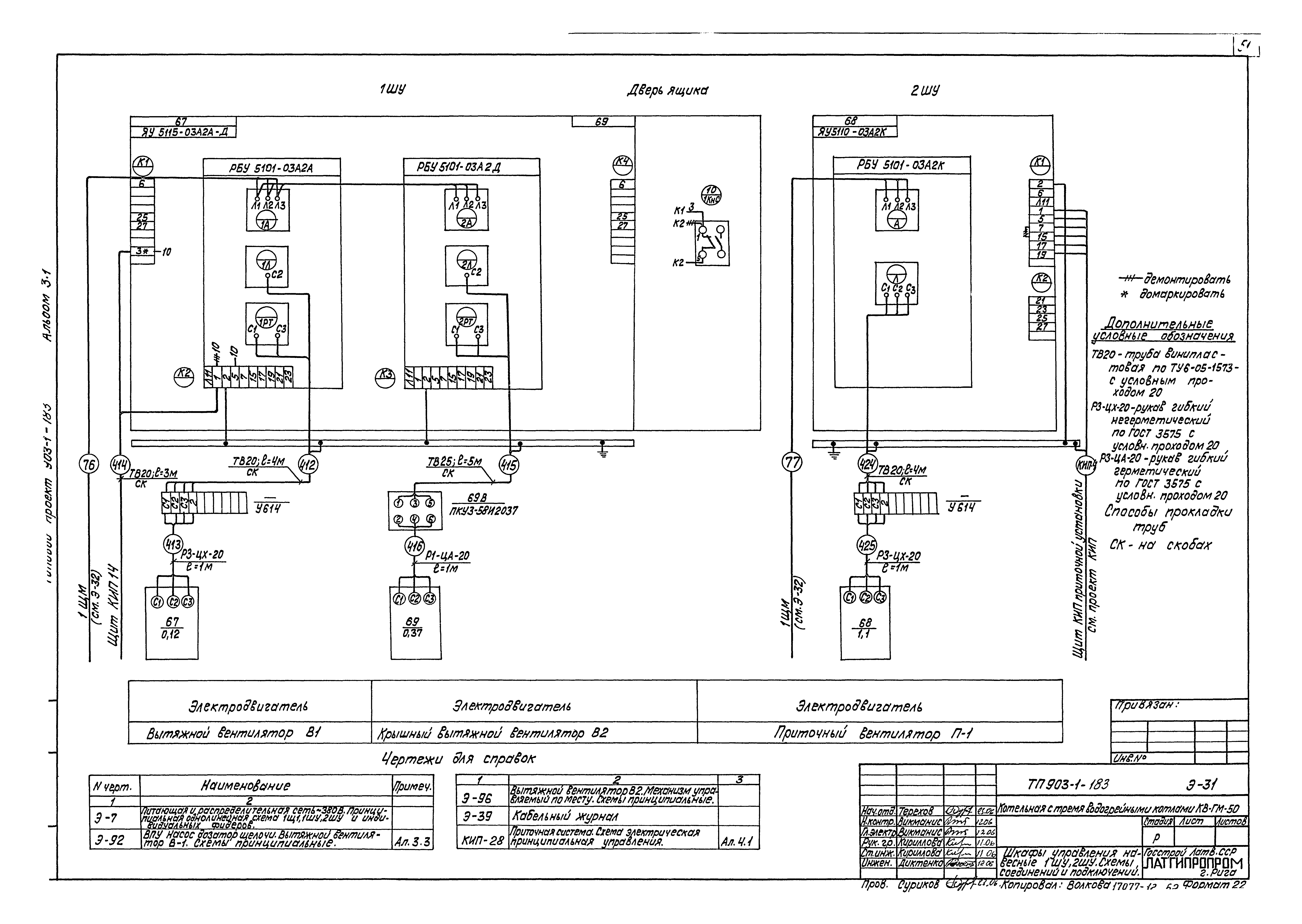
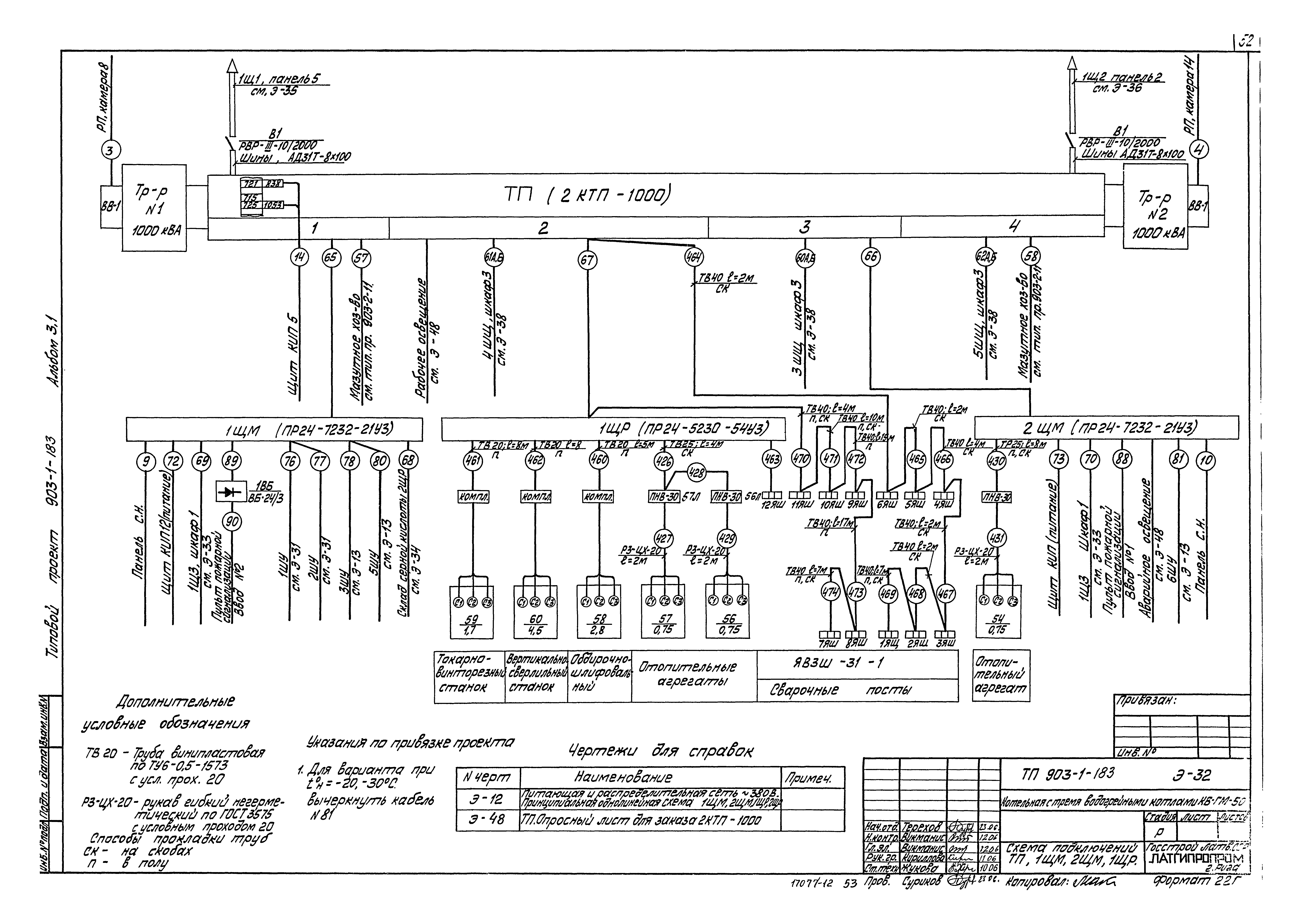
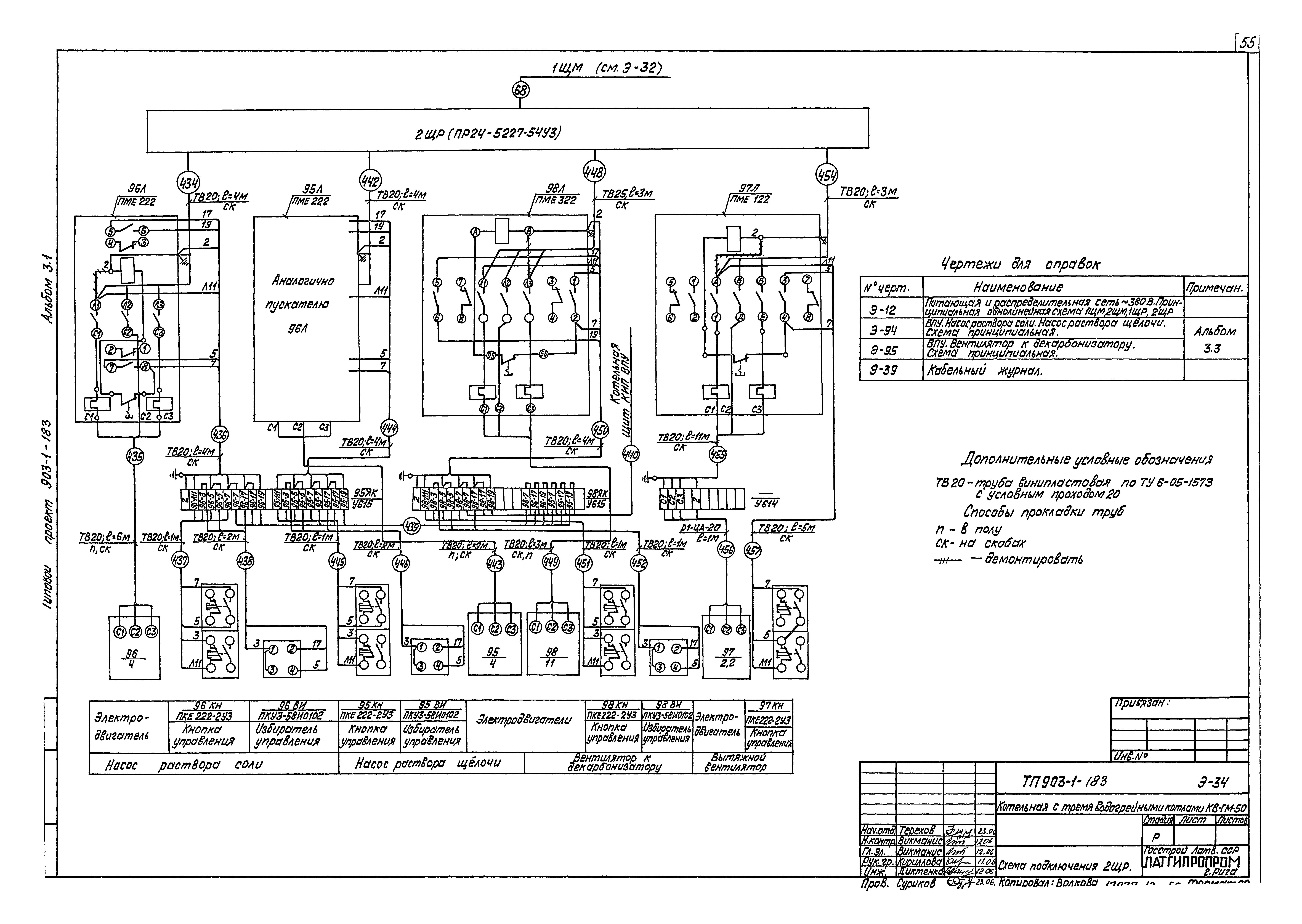
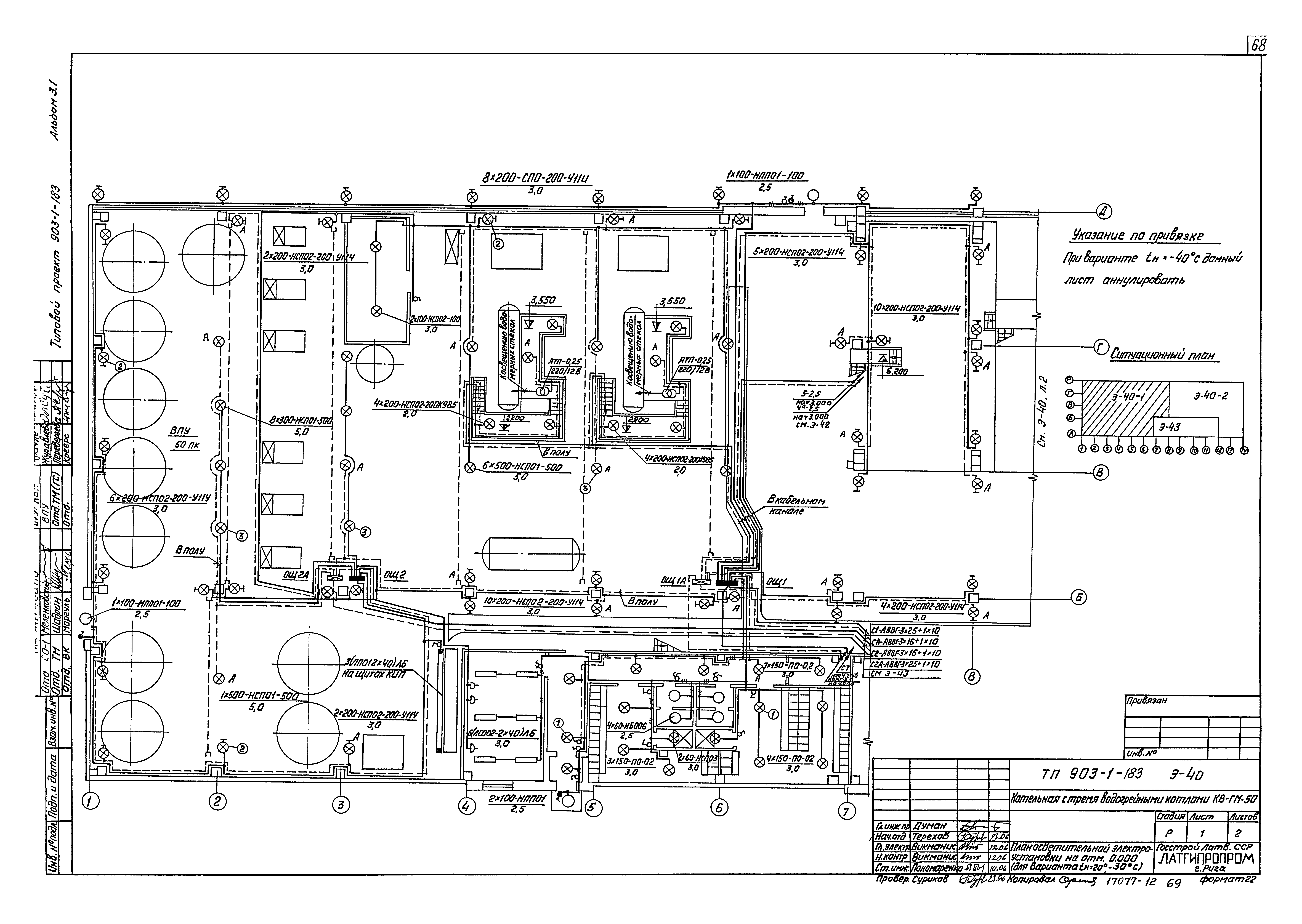
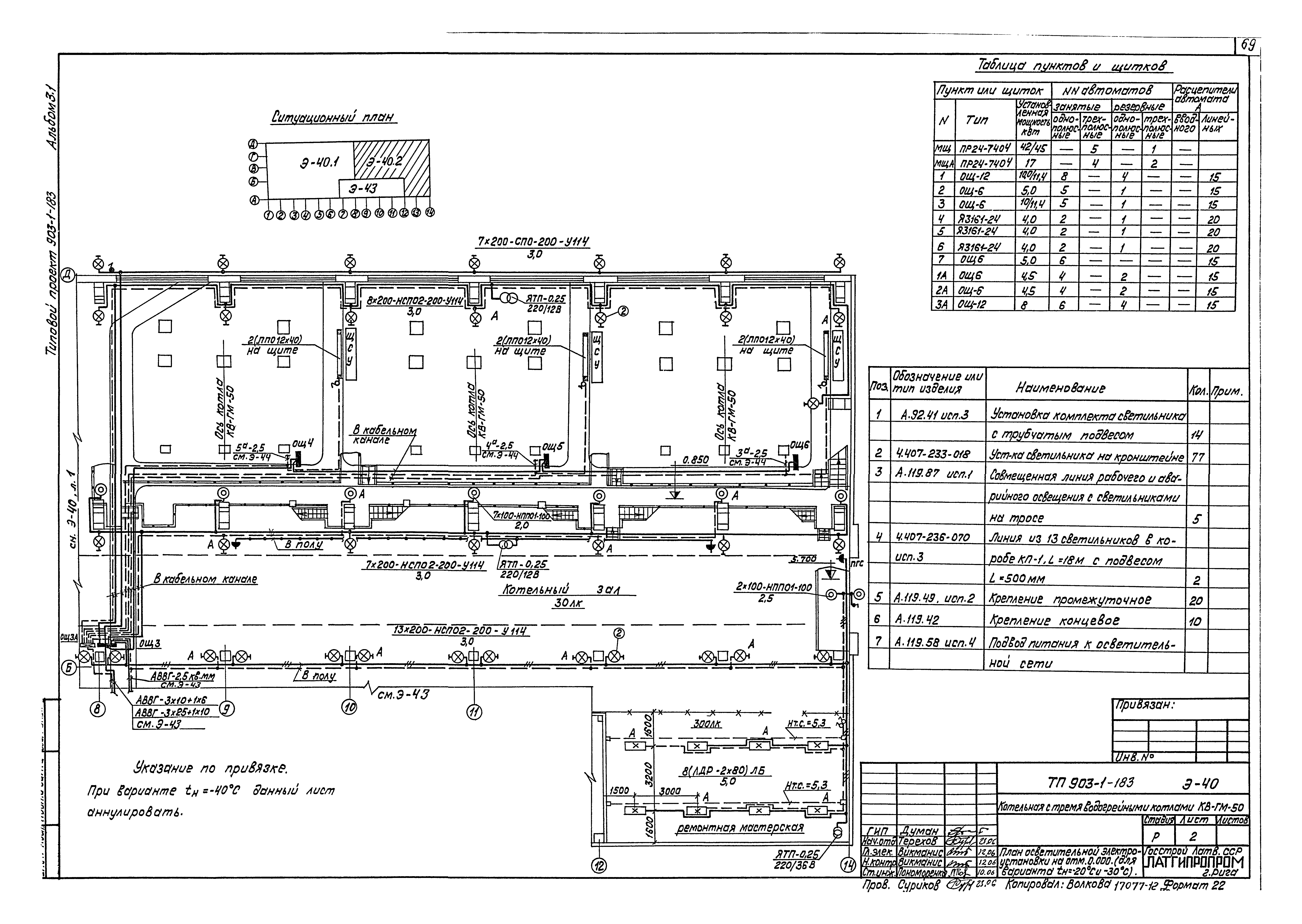
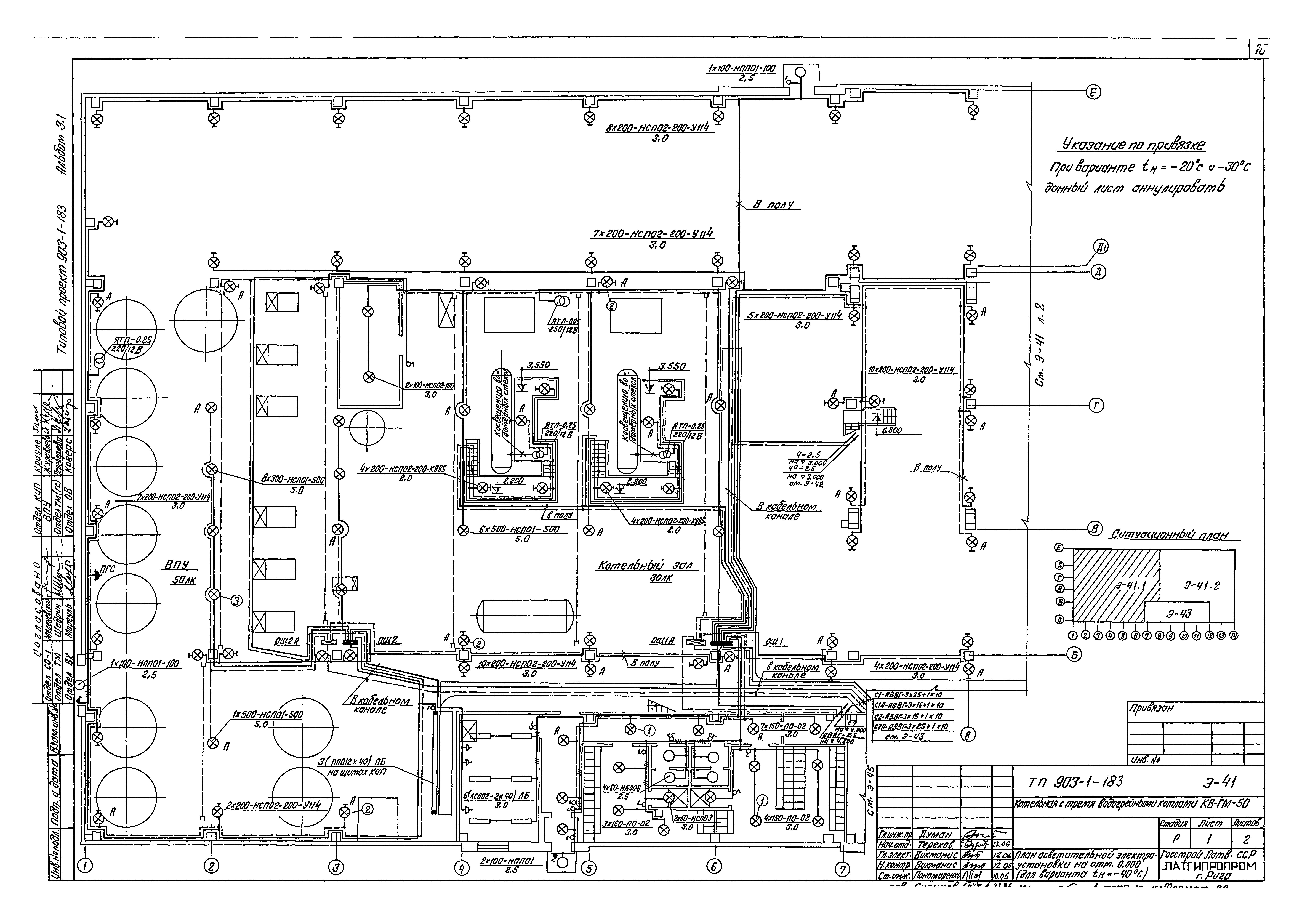
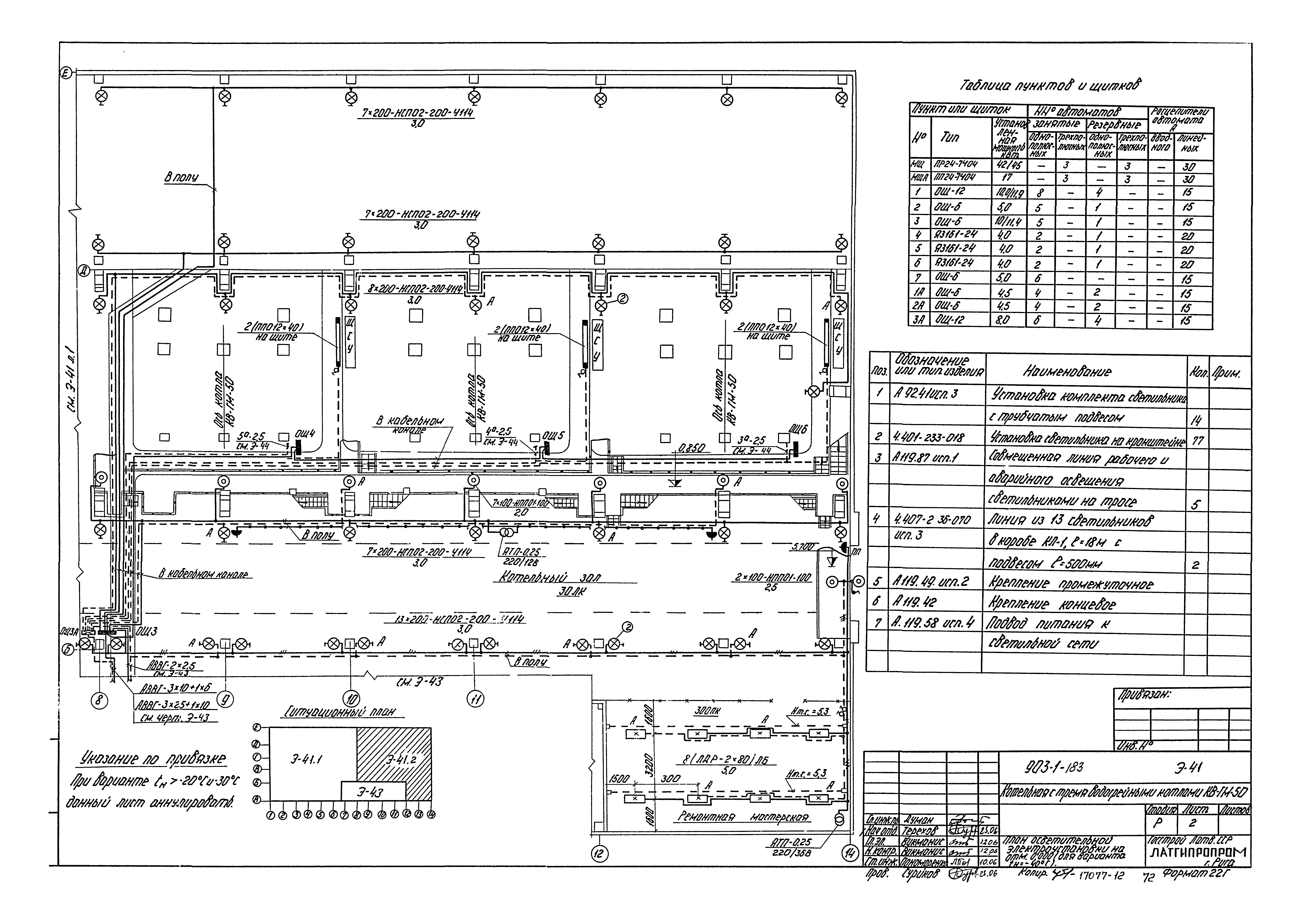
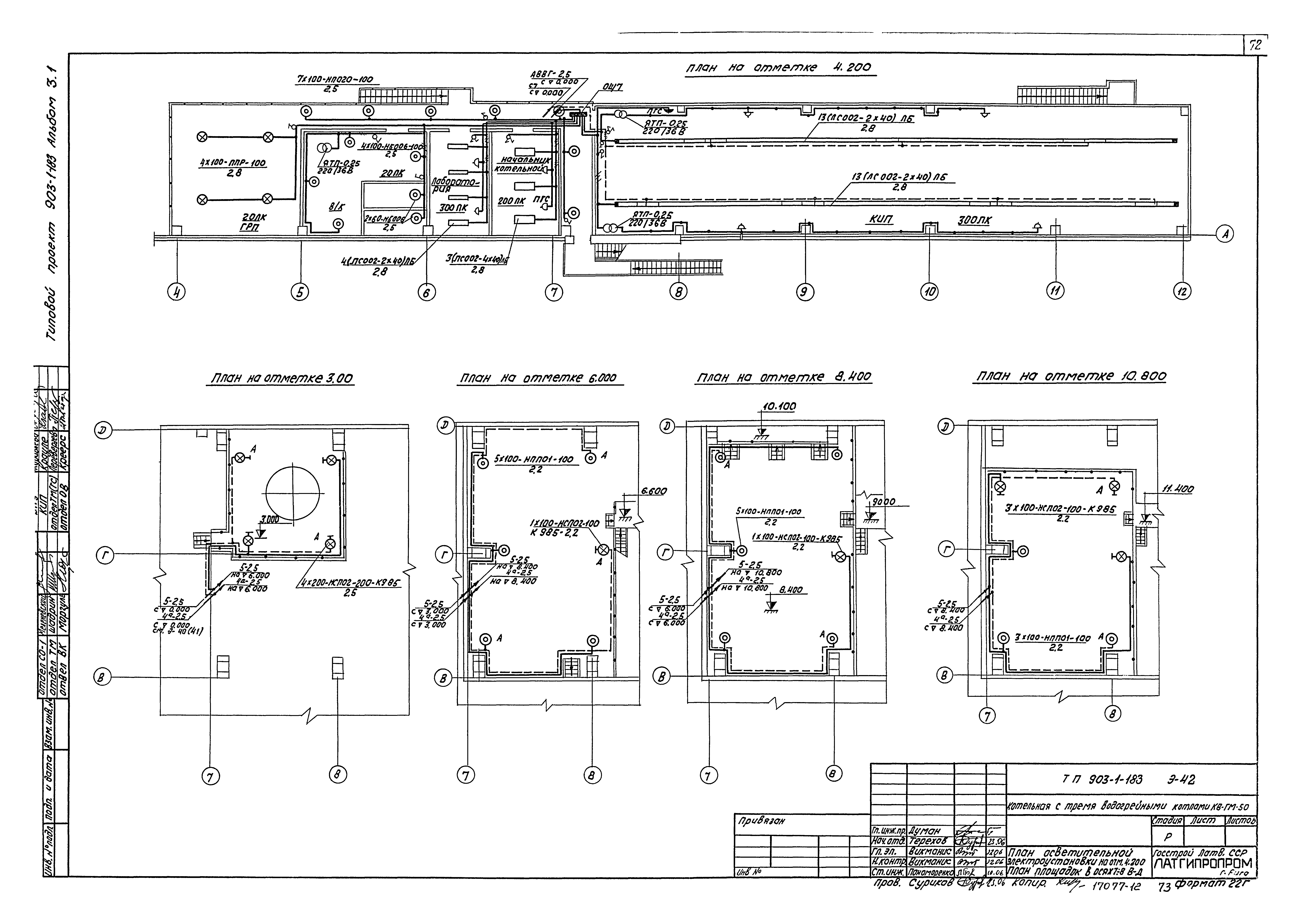
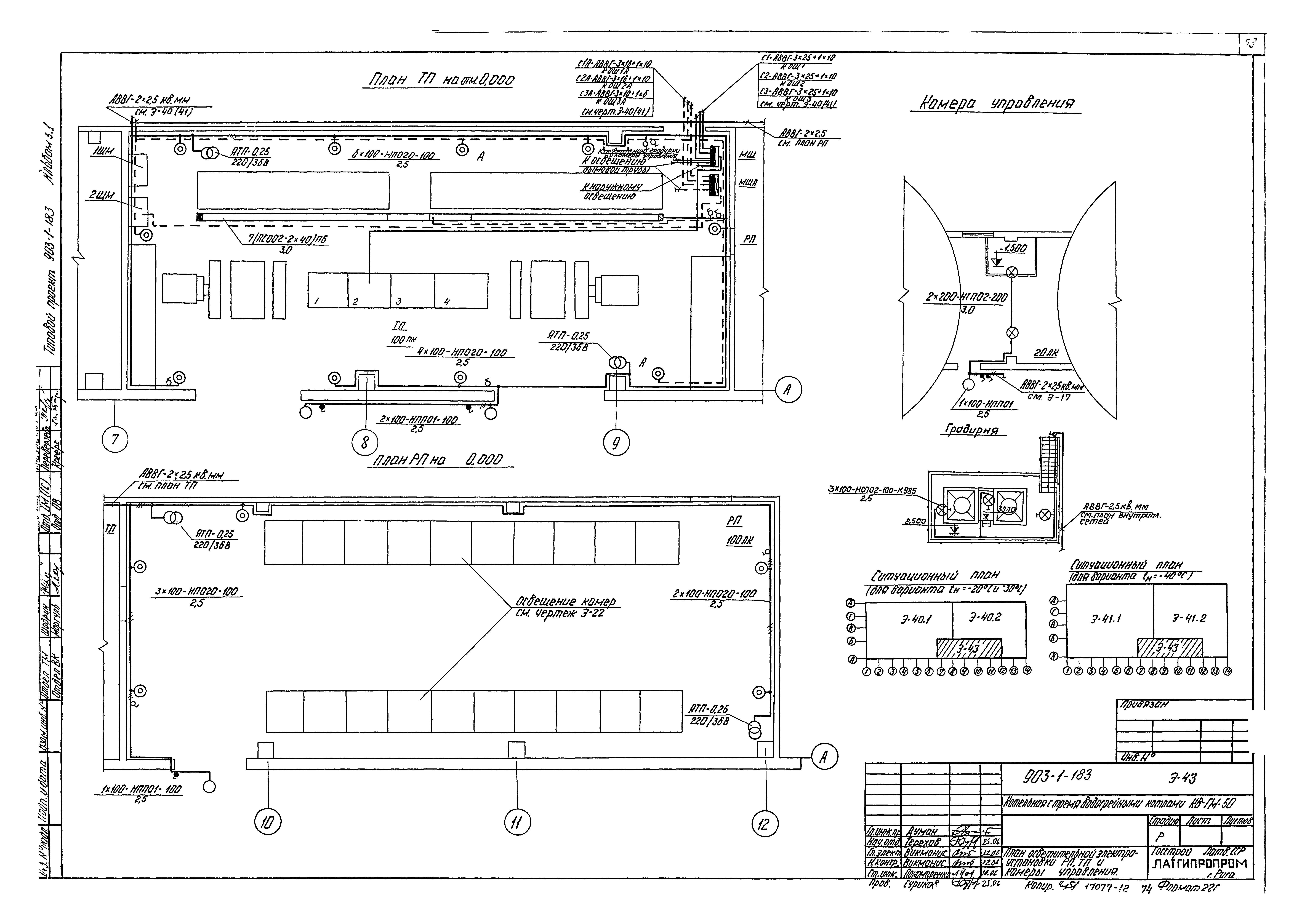
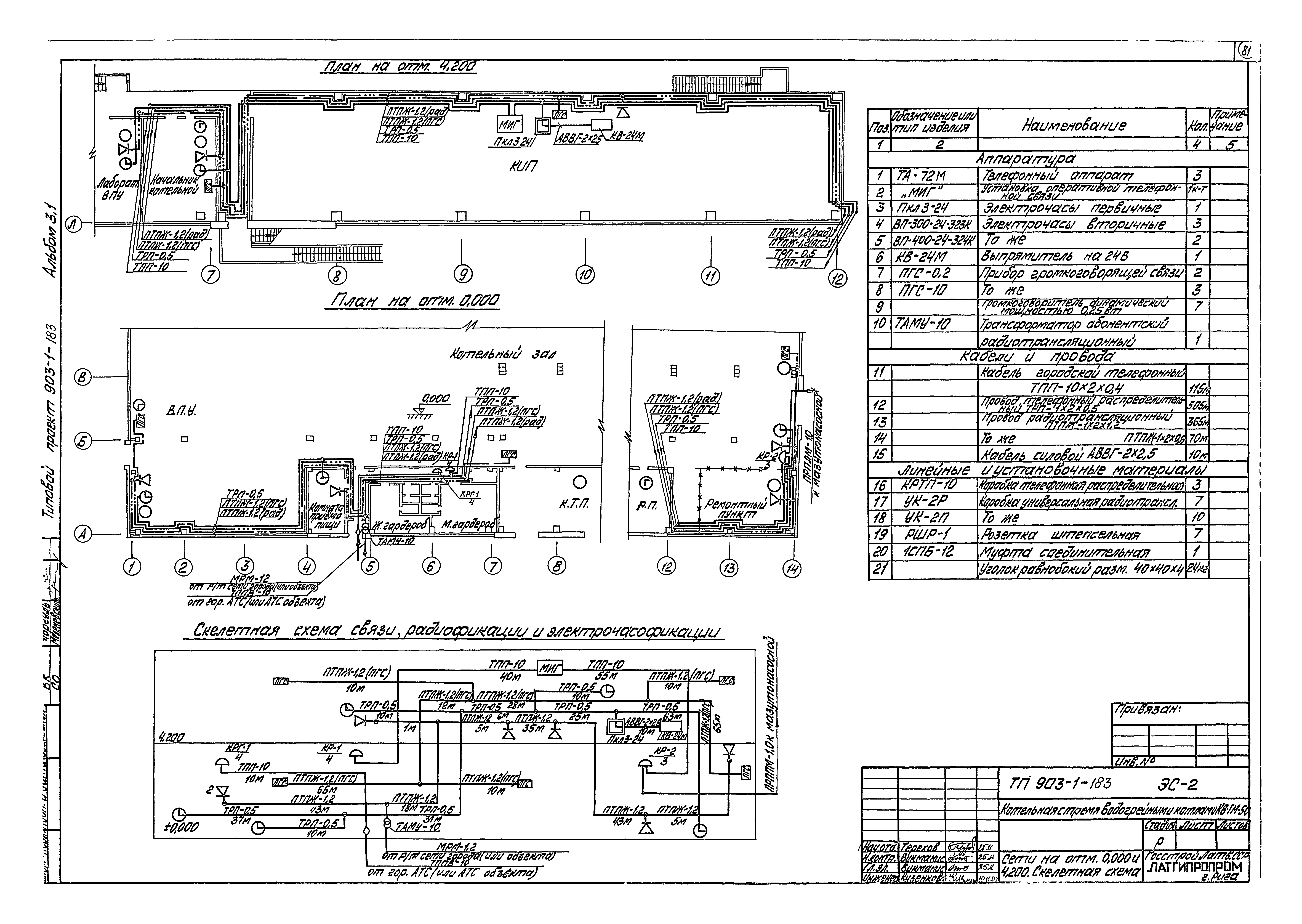
Скачать Типовой проект 903-1-183 Альбом 3.1. Электротехническая часть, связь и сигнализация. Чертежи монтажной зоны (вариант для открытой системы теплоснабжения)Дата актуализации: 01.01.2021 Типовой проект 903-1-183
Альбом 3.1. Электротехническая часть, связь и сигнализация. Чертежи монтажной зоны (вариант для открытой системы теплоснабжения)| Обозначение: | Типовой проект 903-1-183 | | Обозначение англ: | 903-1-183 | | Статус: | отменен | | Название рус.: | Альбом 3.1. Электротехническая часть, связь и сигнализация. Чертежи монтажной зоны (вариант для открытой системы теплоснабжения) | | Дата добавления в базу: | 01.01.2018 | | Дата актуализации: | 01.01.2021 | | Дата введения: | 25.08.1980 | | Дата окончания срока действия: | 01.02.1987 | | Разработан: | Латгипропром
| | Утверждён: | 25.08.1980 Латгипропром (207)
| | Издан: | ЦИТП Госстроя СССР (CITP, Gosstroy (USSR) 1983 г. )
| | Заменяет собой: | - Типовой проект 903-1-117
- Типовой проект 903-1-118
- Типовой проект 903-1-144
|
                                                                               
|