Скачать ГОСТ Р 57905-2017 Двигатели дизельные. Топливные рядные насосы и насосы высокого давления для аккумуляторных топливных систем CR, устанавливаемые на основание. Габаритные и присоединительные размерыДата актуализации: 01.01.2021
|
| Обозначение: | ГОСТ Р 57905-2017 |
| Обозначение англ: | GOST R 57905-2017 |
| Статус: | введен впервые |
| Название рус.: | Двигатели дизельные. Топливные рядные насосы и насосы высокого давления для аккумуляторных топливных систем CR, устанавливаемые на основание. Габаритные и присоединительные размеры |
| Название англ.: | Diesel engines. Base-mounted in-line fuel injection pumps and high-pressure supply pumps for common rail fuel injection systems. Overall and, mounting dimensions |
| Дата добавления в базу: | 01.01.2019 |
| Дата актуализации: | 01.01.2021 |
| Дата введения: | 01.07.2018 |
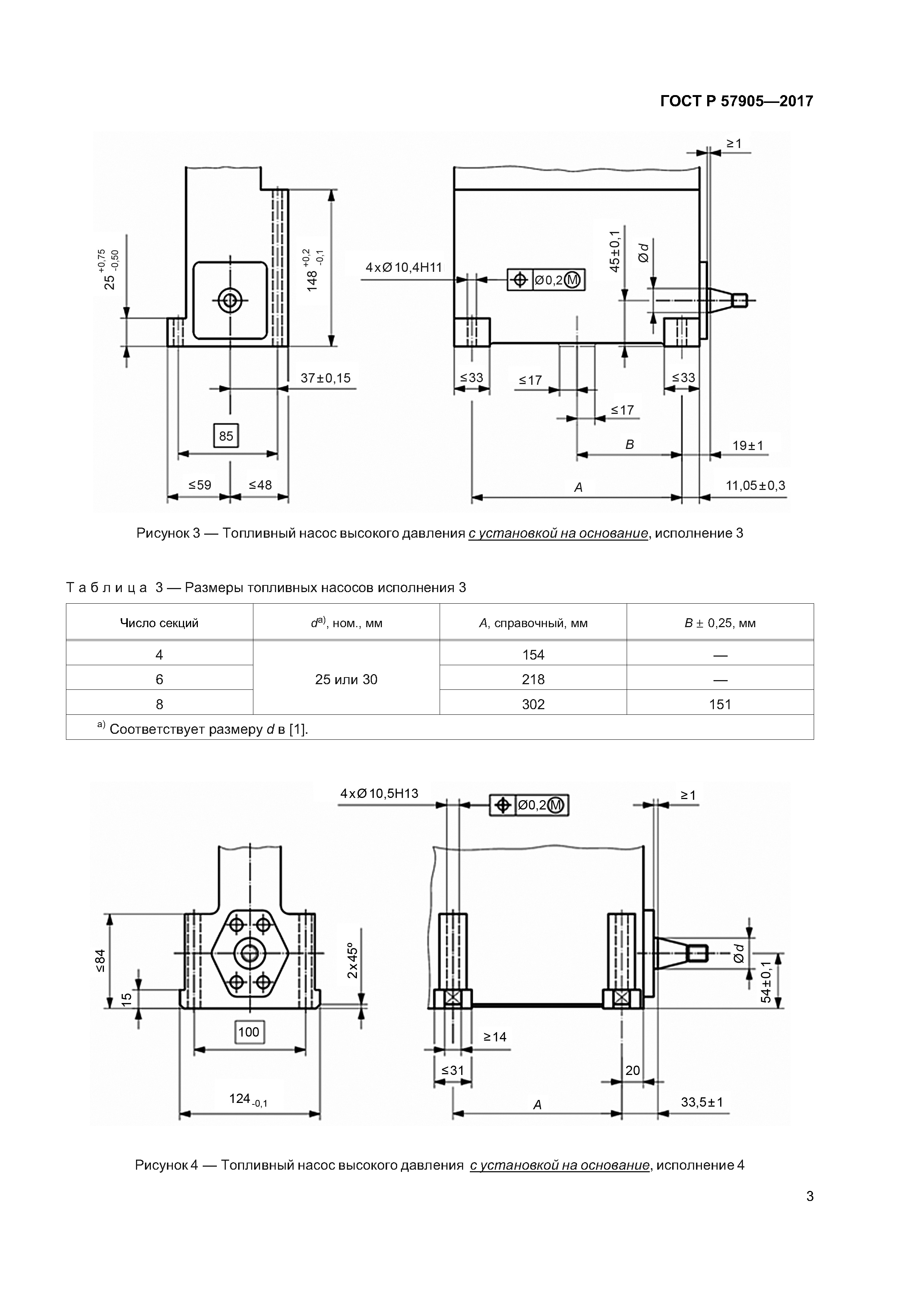
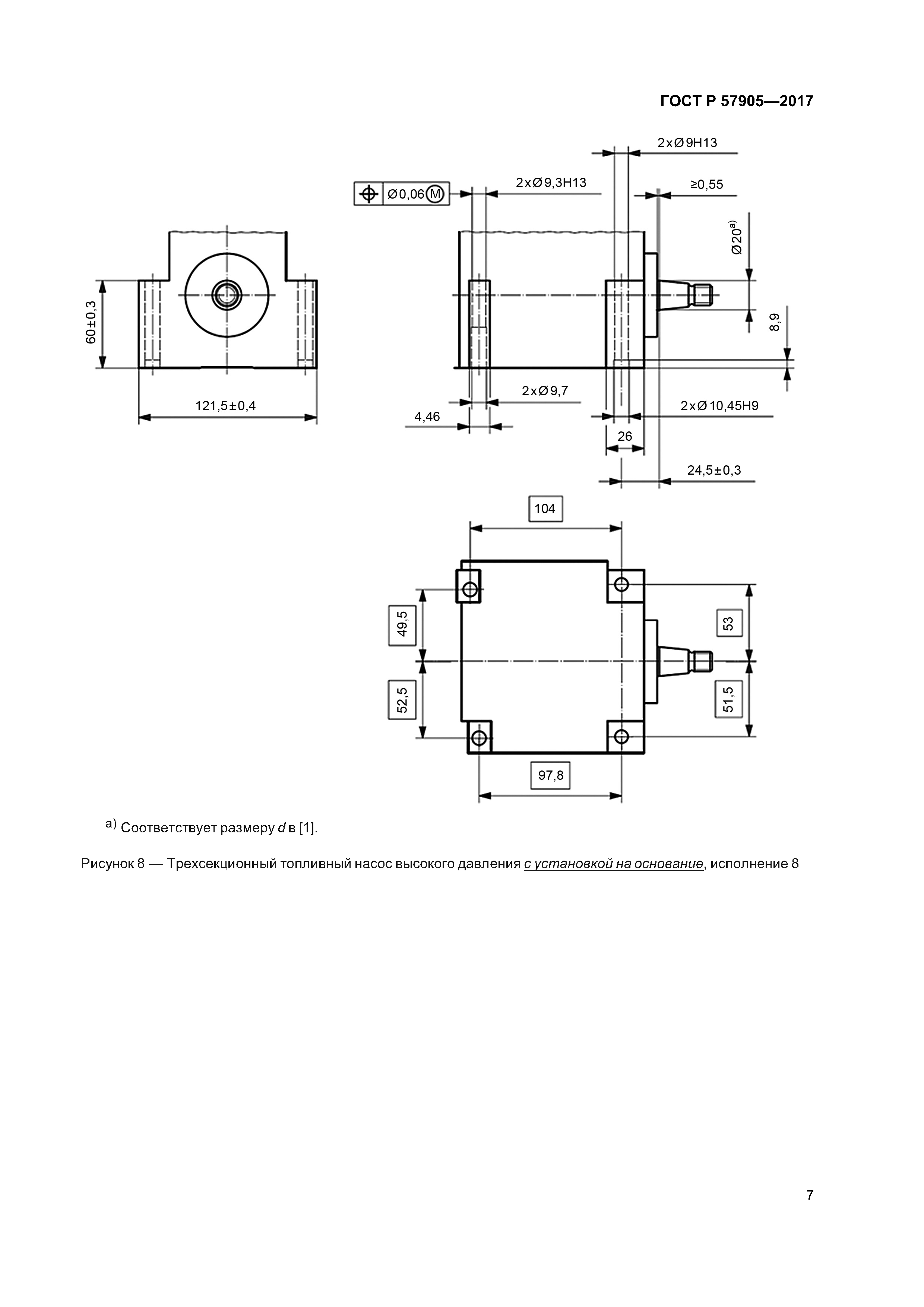
| Область применения: | Стандарт определяет требования к размерам устанавливаемых на основание рядных топливных насосов высокого давления и насосов высокого давления аккумуляторных топливных систем Common Rail (CR) дизельных двигателей. |
| Оглавление: | 1 Область применения 2 Габаритные и присоединительные размеры Библиография |
| Разработан: | ФГУП НАМИ |
| Утверждён: | 07.11.2017 Федеральное агентство по техническому регулированию и метрологии (1659-ст) |
| Издан: | Стандартинформ (2017 г. ) |











