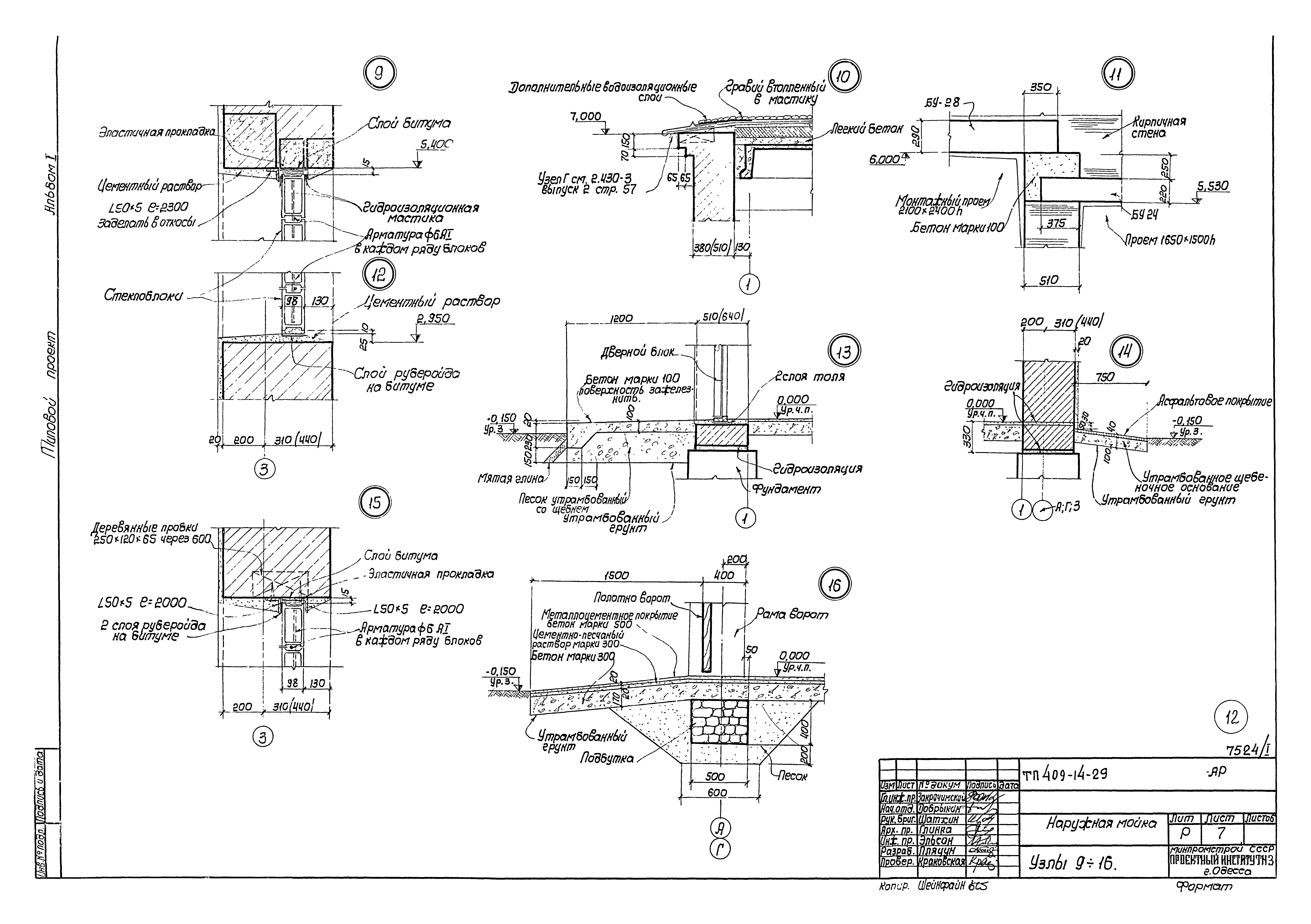
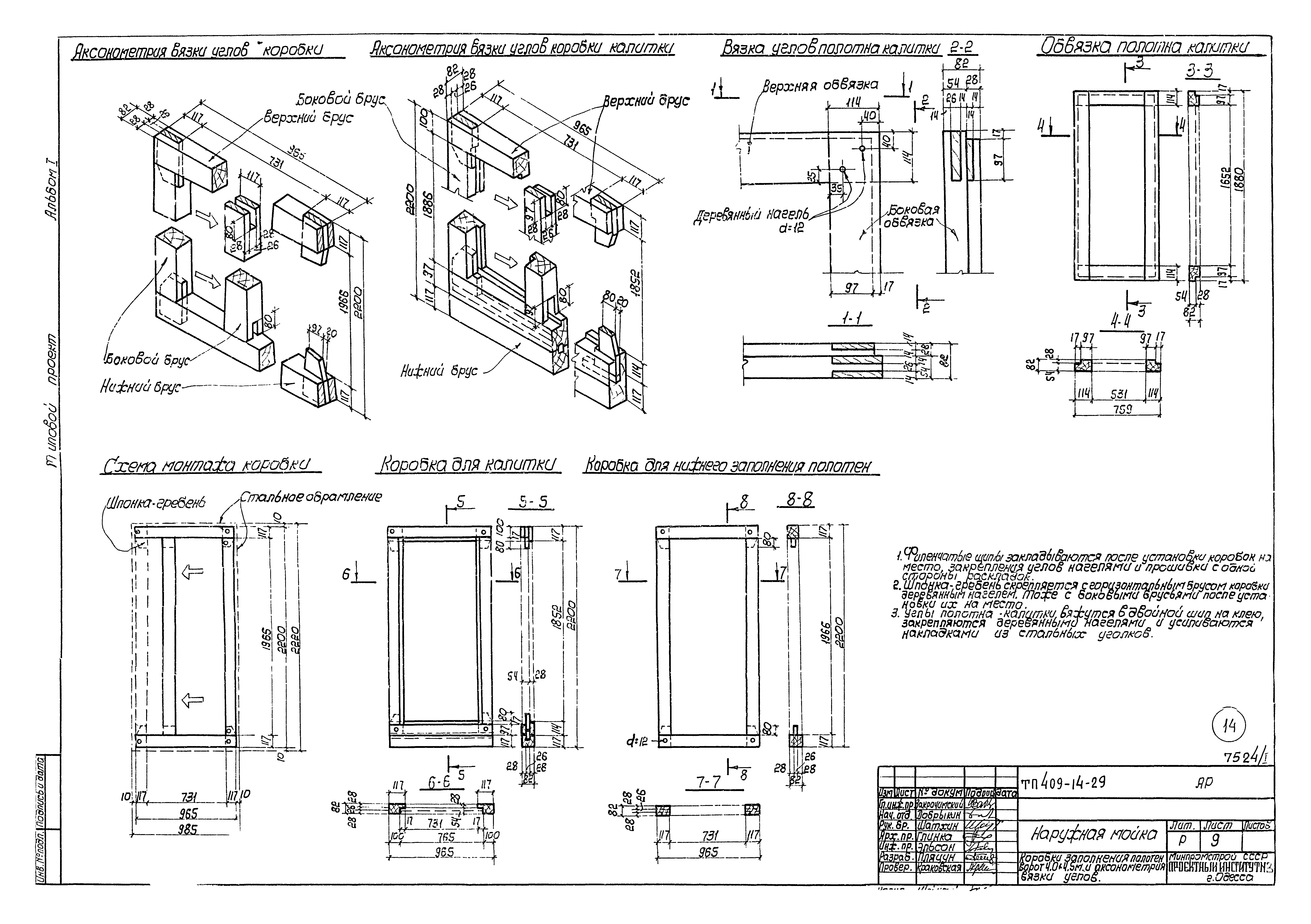
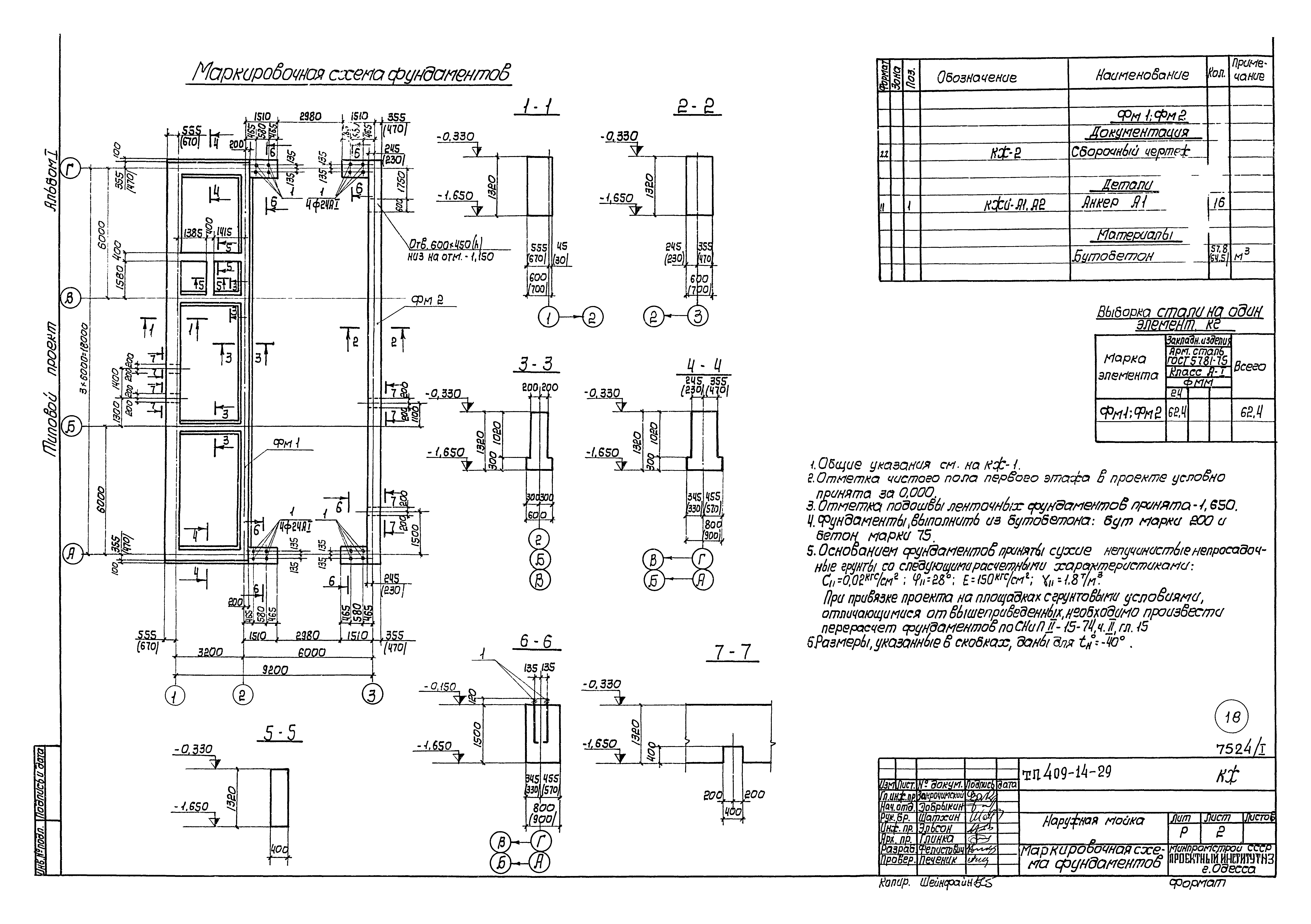
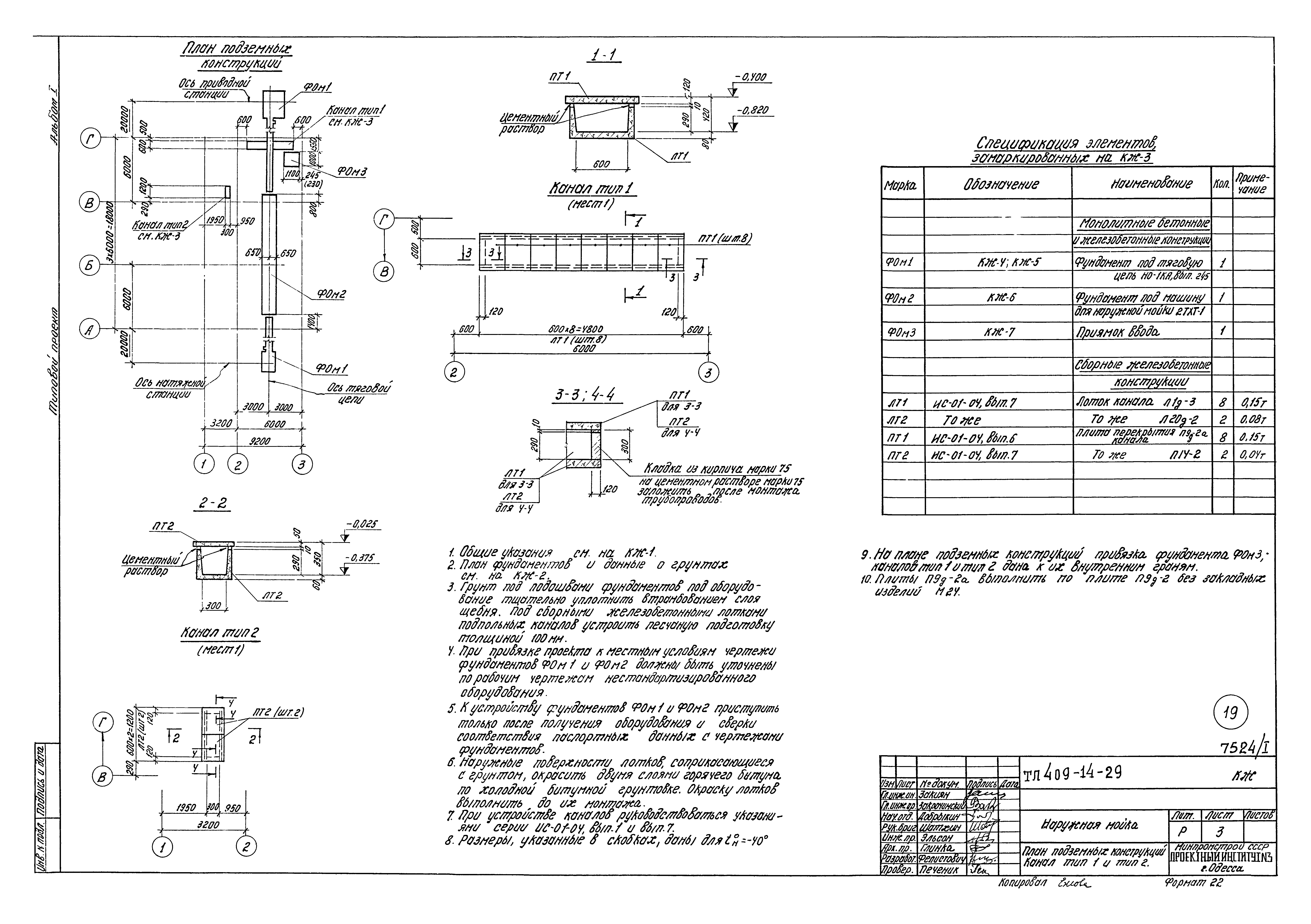
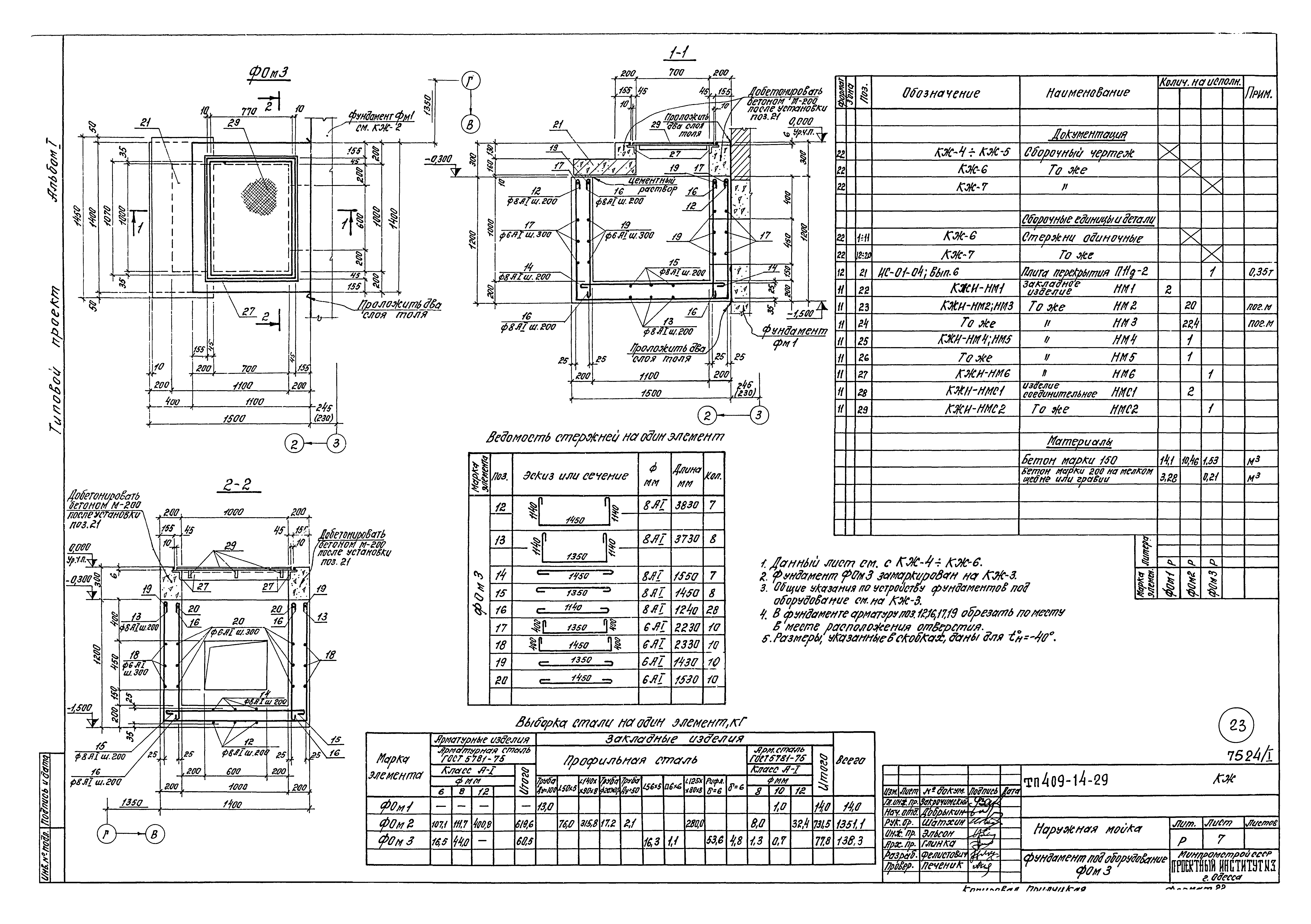
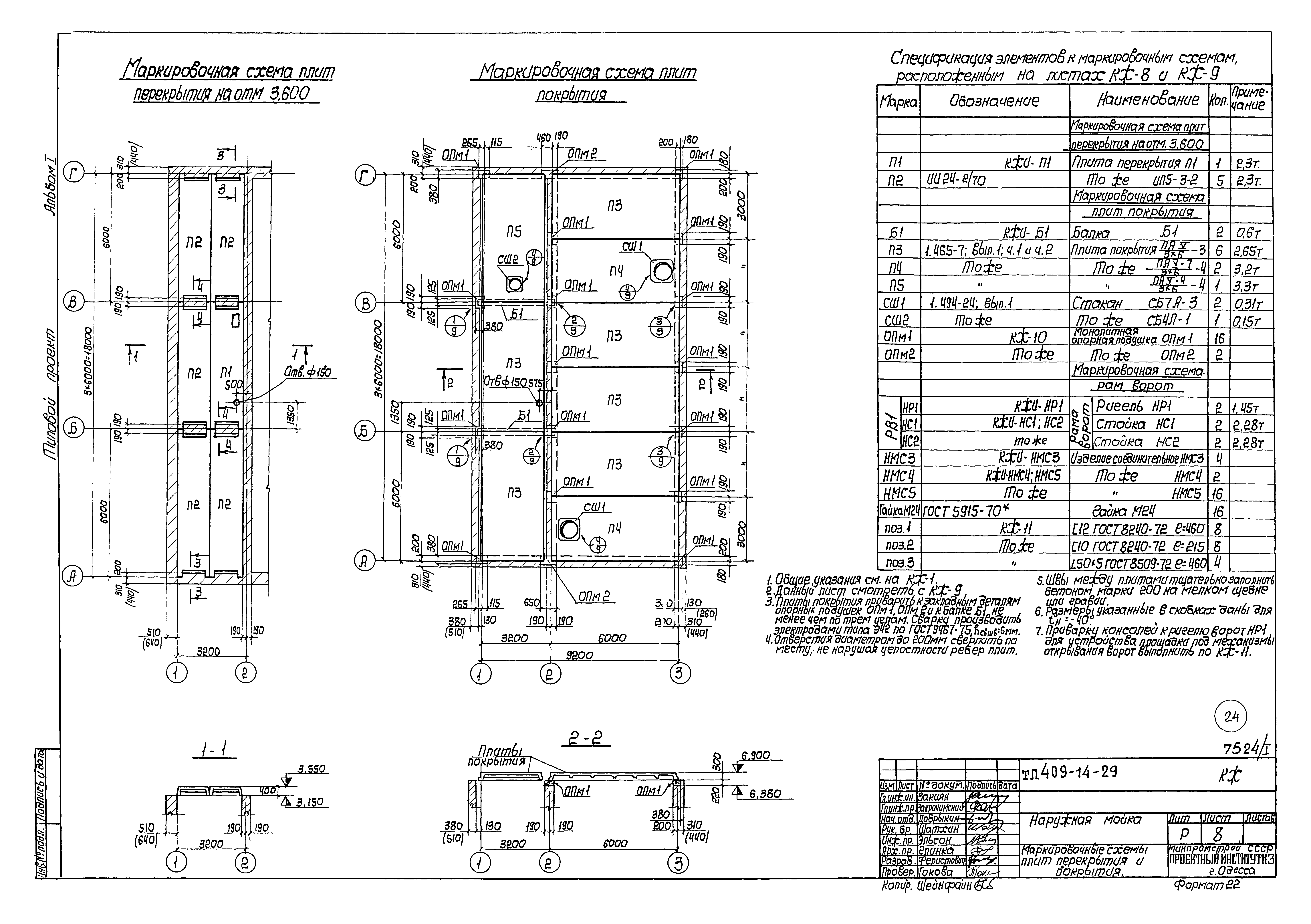
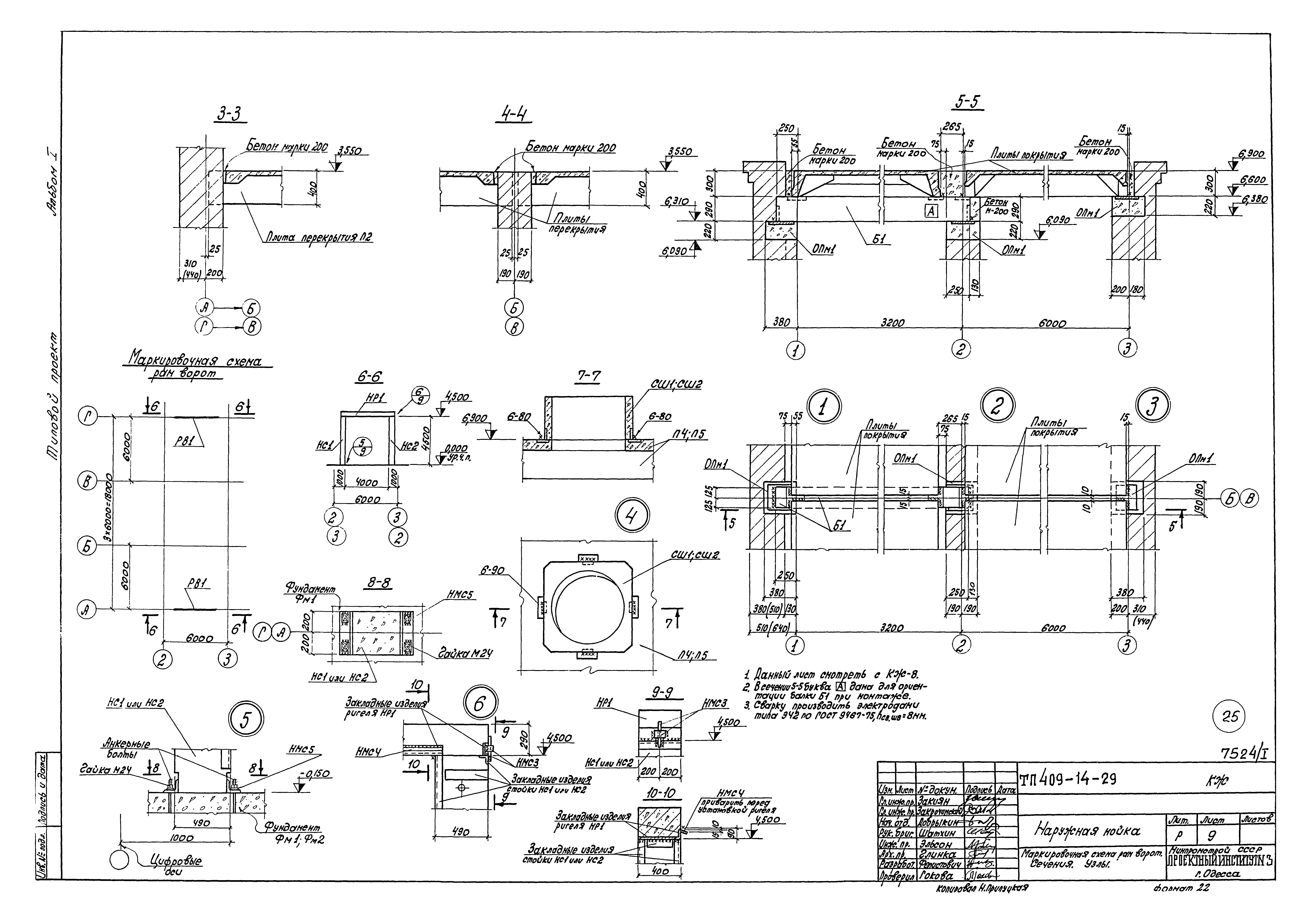
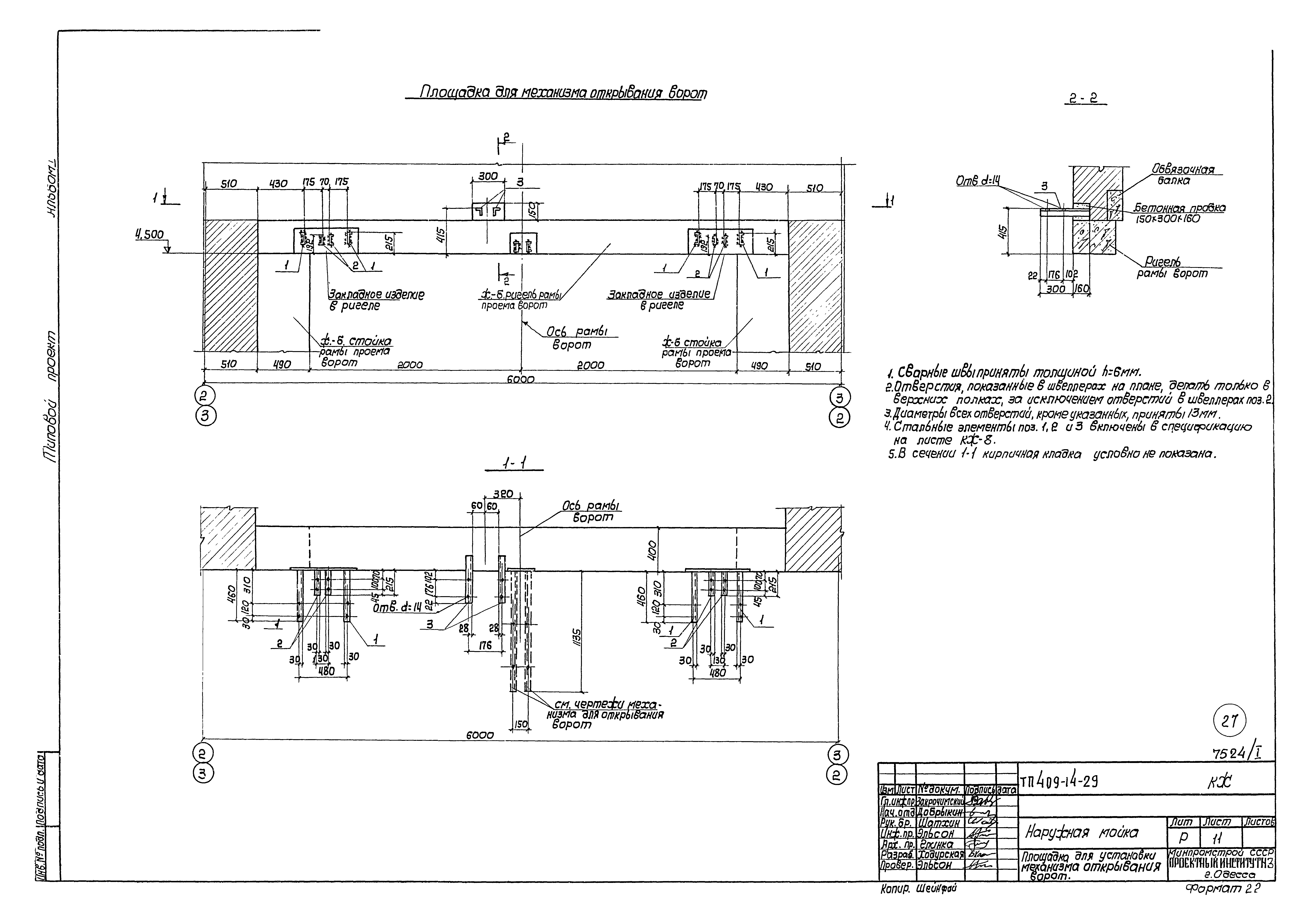
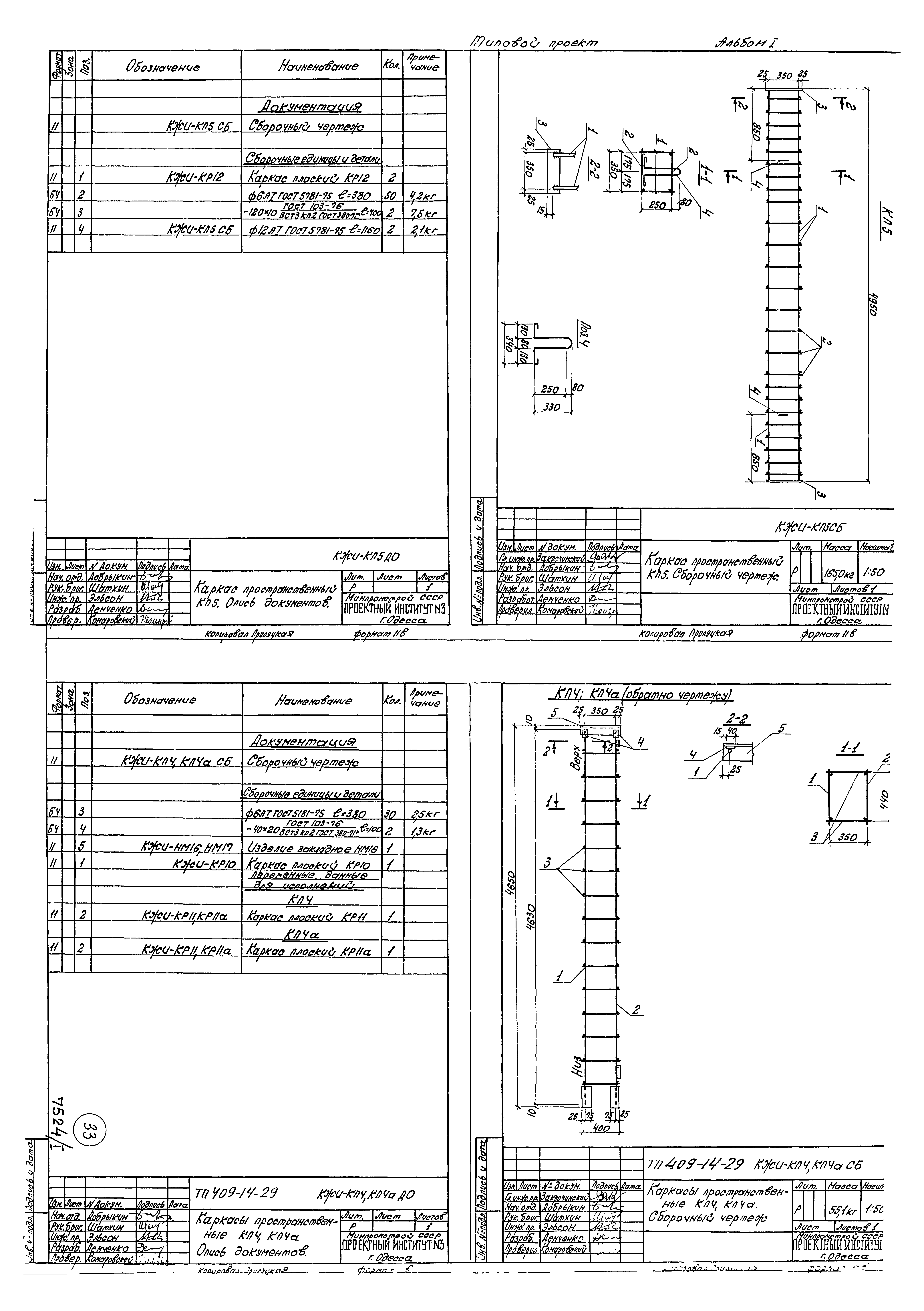
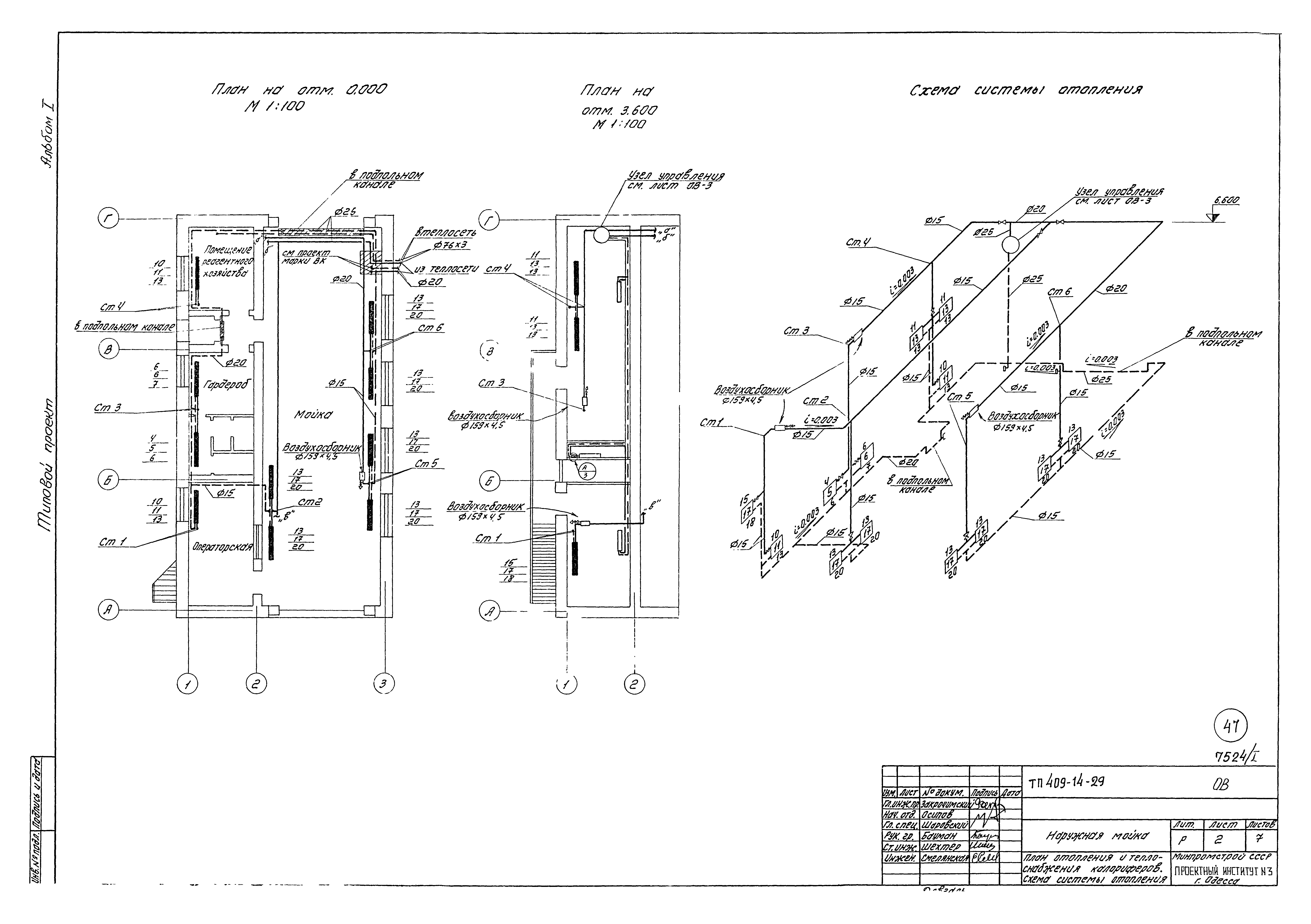
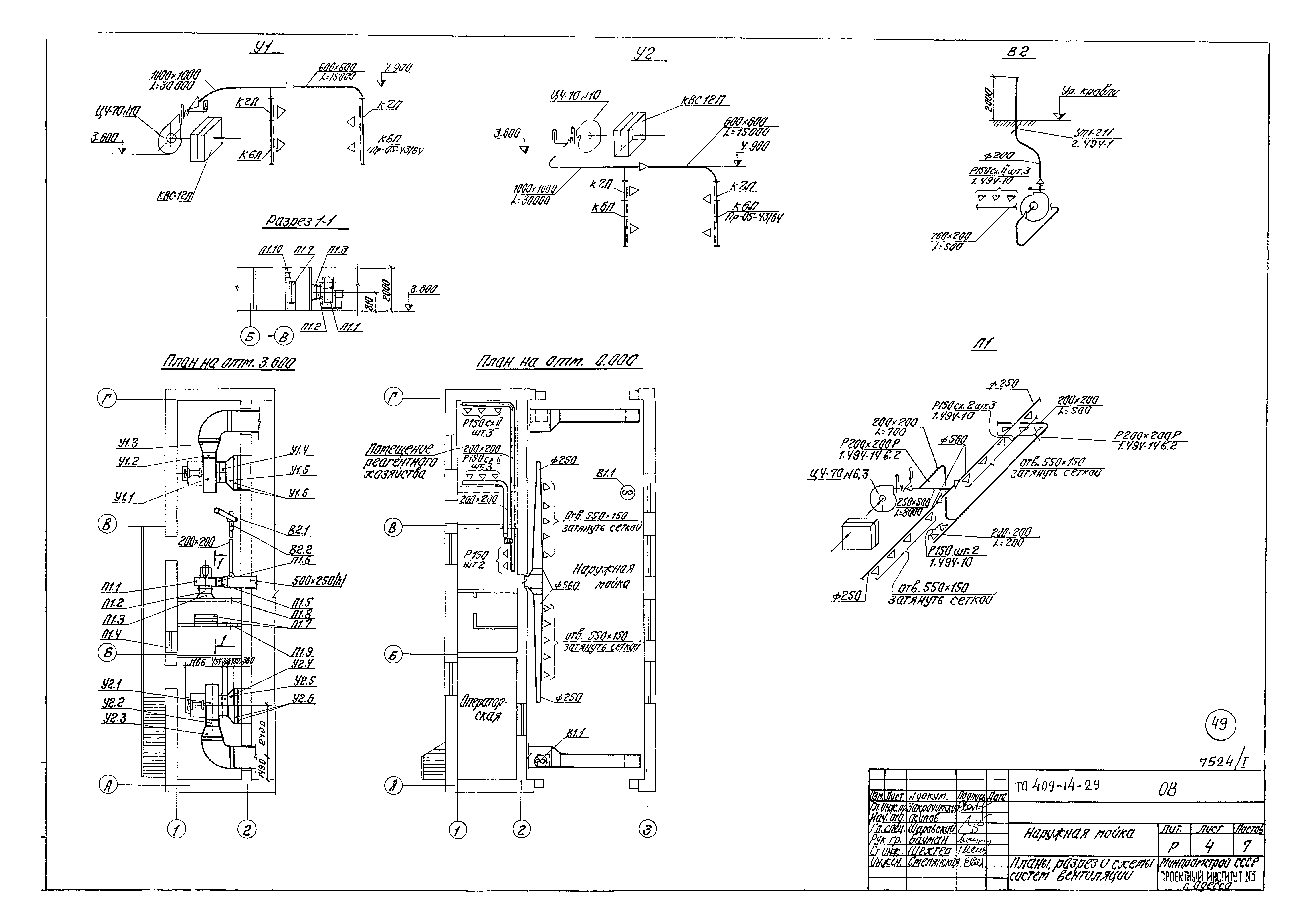
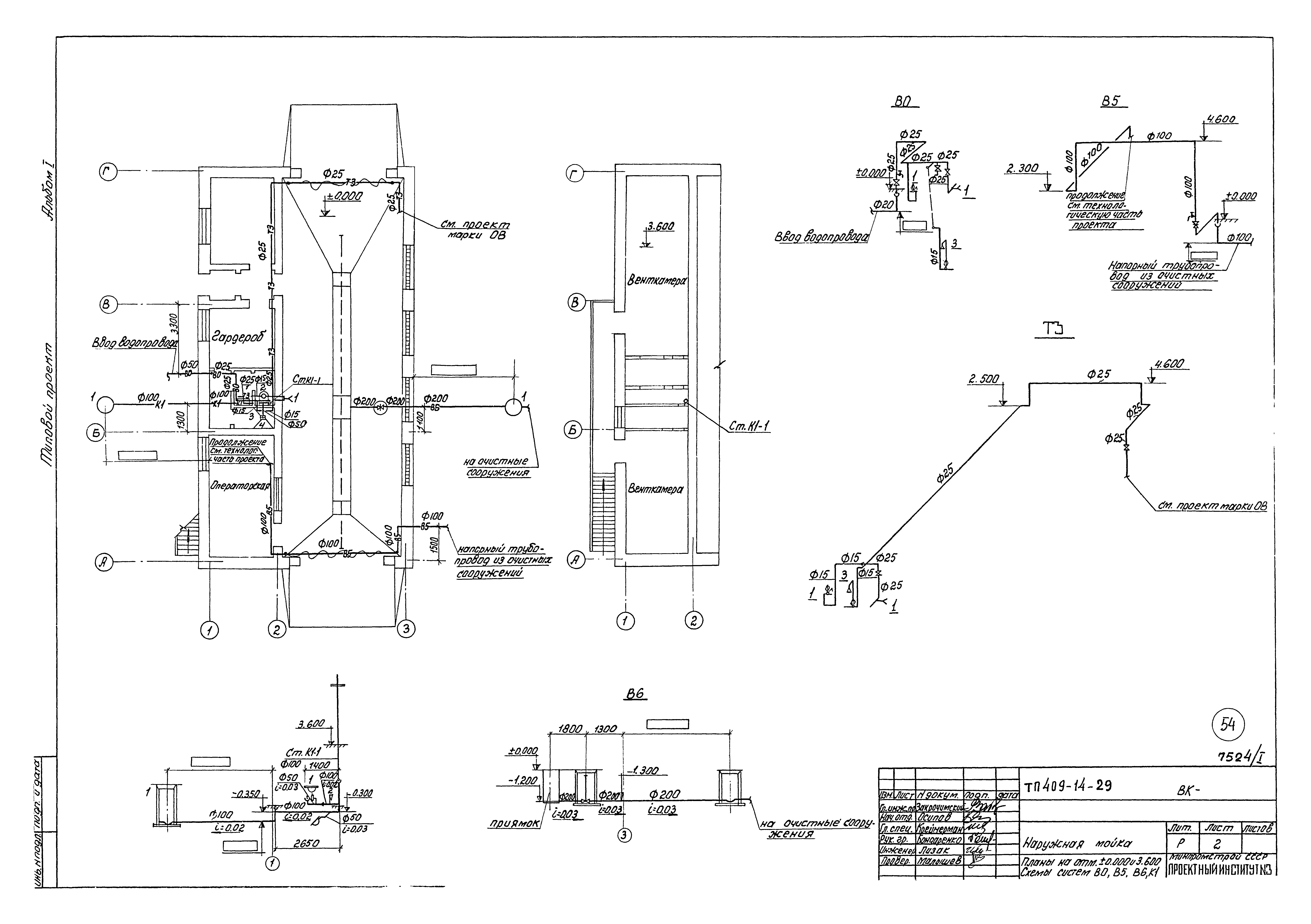
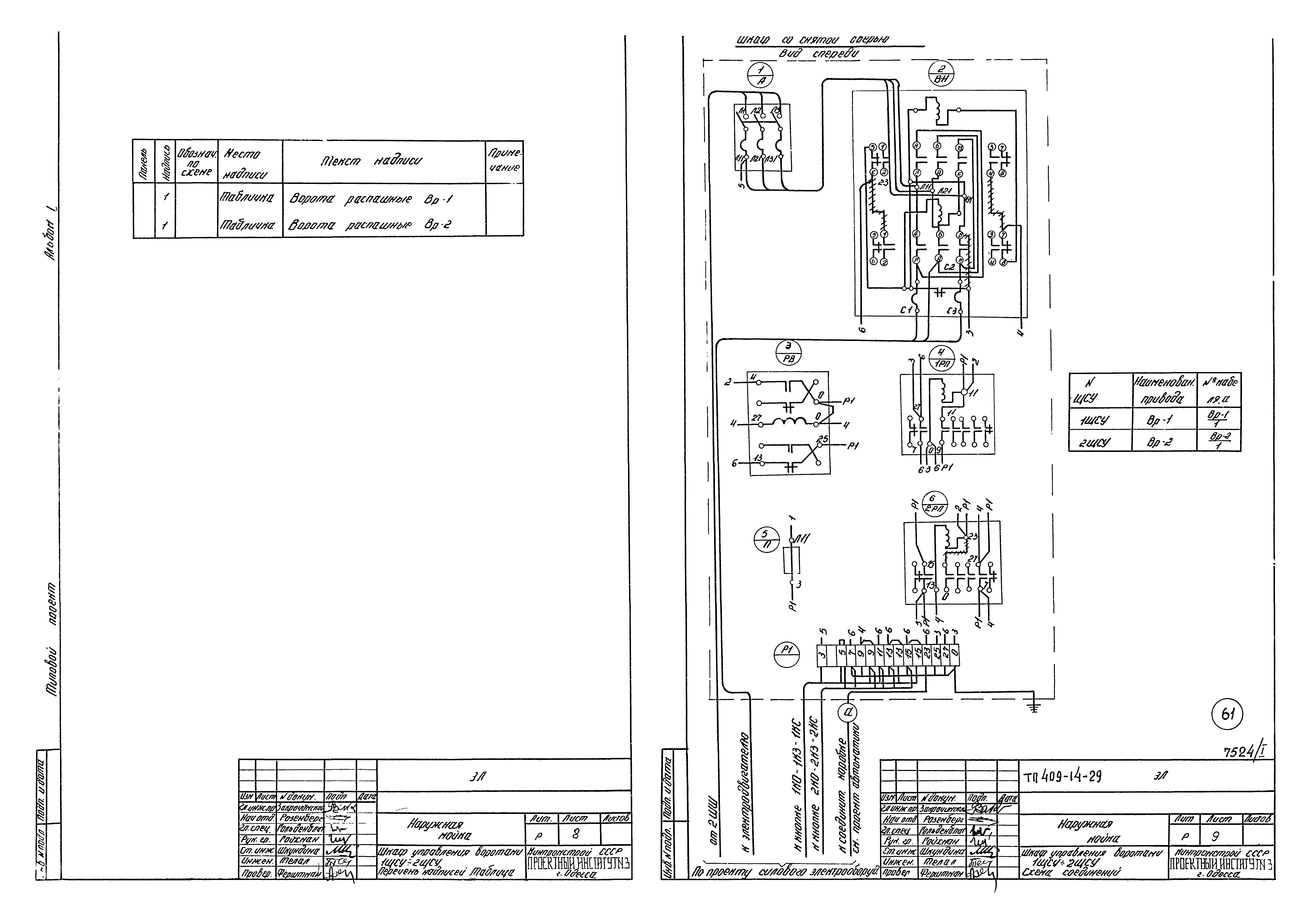
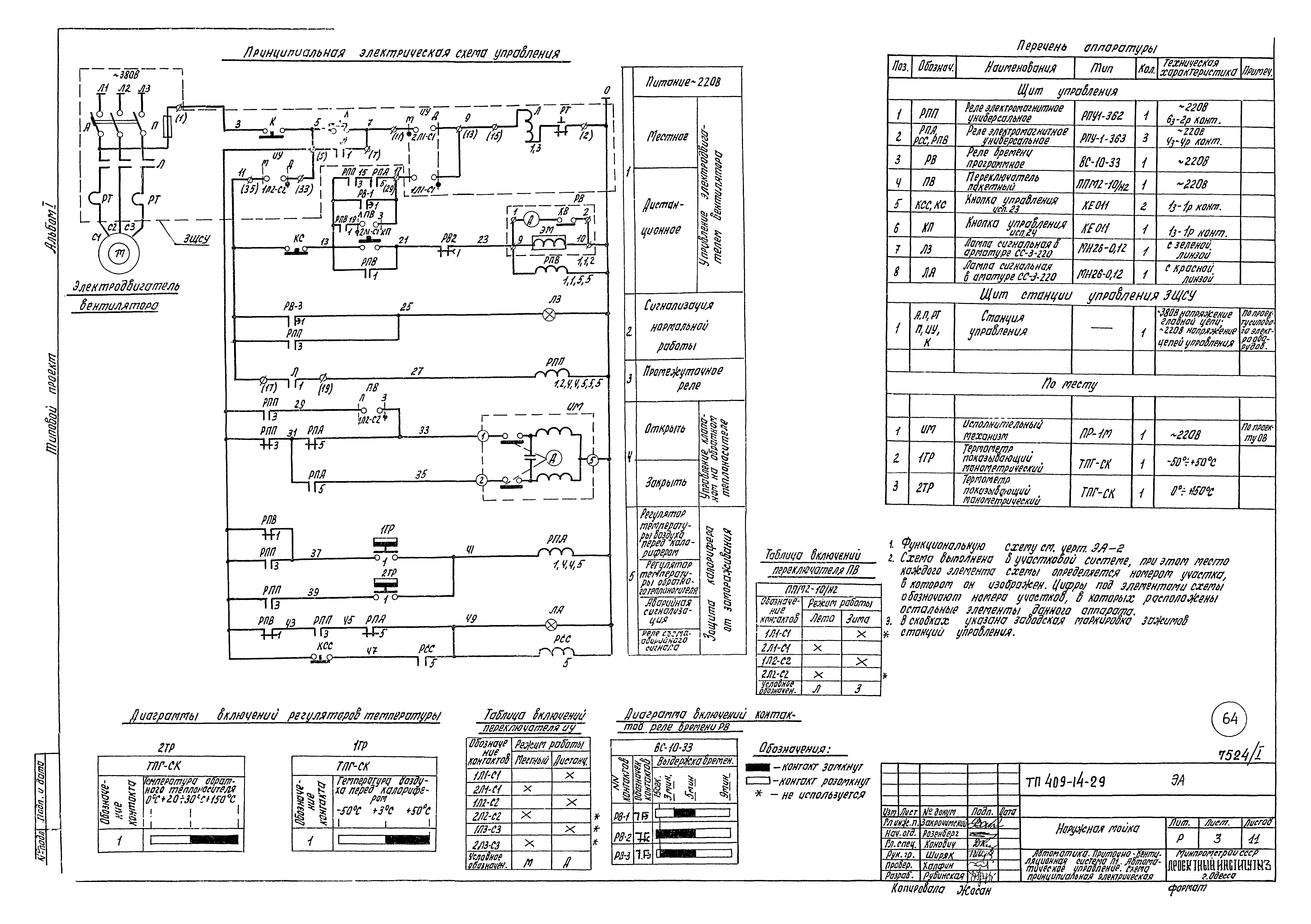
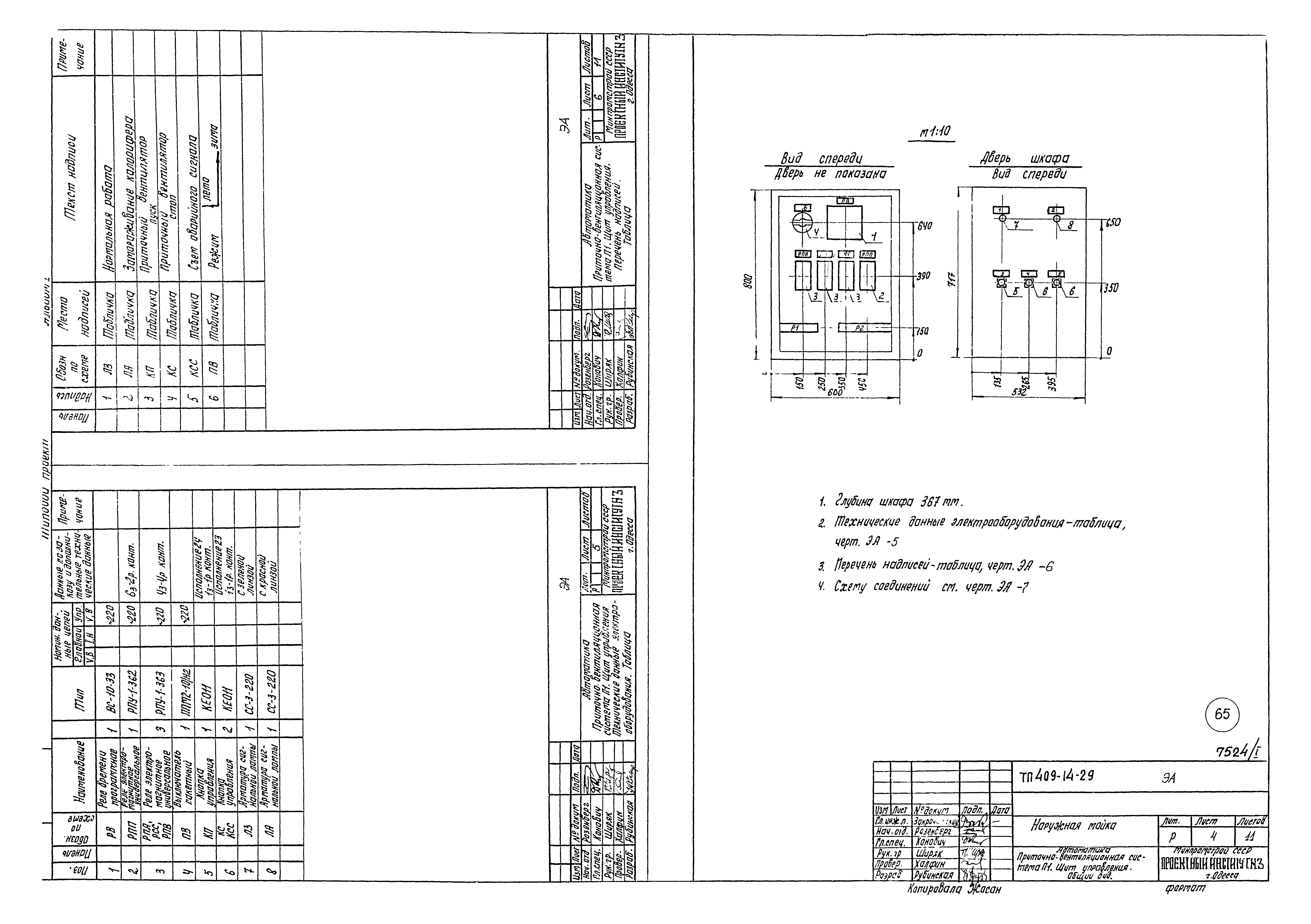
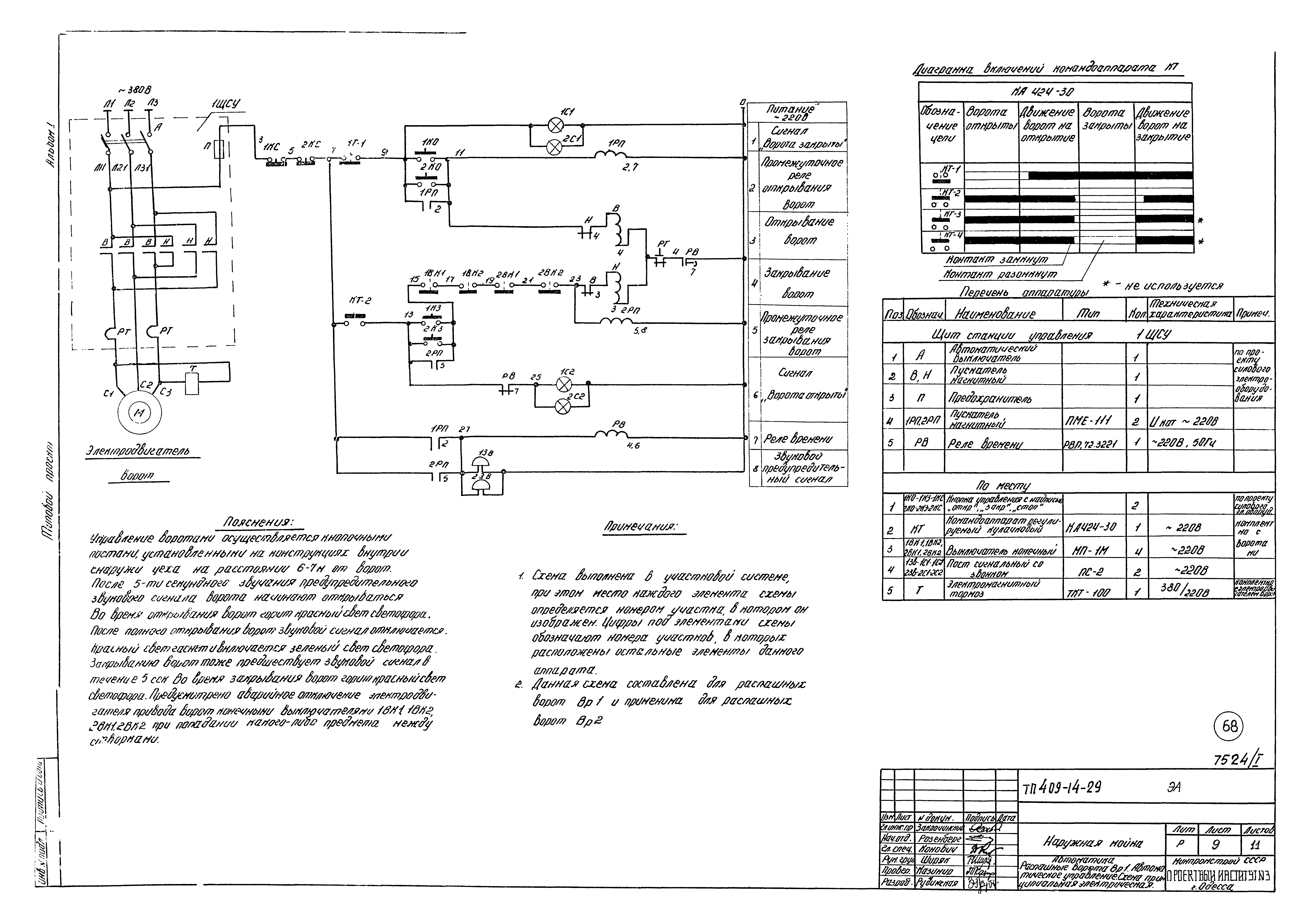
Скачать Типовой проект 409-14-29 Альбом I. Архитектурно-строительные и технологические решения, отопление и вентиляция, внутренний водопровод и канализация, электроснабжение и автоматикаДата актуализации: 01.01.2021 Типовой проект 409-14-29
Альбом I. Архитектурно-строительные и технологические решения, отопление и вентиляция, внутренний водопровод и канализация, электроснабжение и автоматика| Обозначение: | Типовой проект 409-14-29 | | Обозначение англ: | 409-14-29 | | Статус: | не действует | | Название рус.: | Альбом I. Архитектурно-строительные и технологические решения, отопление и вентиляция, внутренний водопровод и канализация, электроснабжение и автоматика | | Дата добавления в базу: | 01.01.2018 | | Дата актуализации: | 01.01.2021 | | Дата введения: | 01.01.1979 | | Дата окончания срока действия: | 01.01.1986 | | Разработан: | Проектный институт №3 Минпромстроя СССР
| | Утверждён: | 24.06.1977 Госстрой СССР
|
                                                                      
|