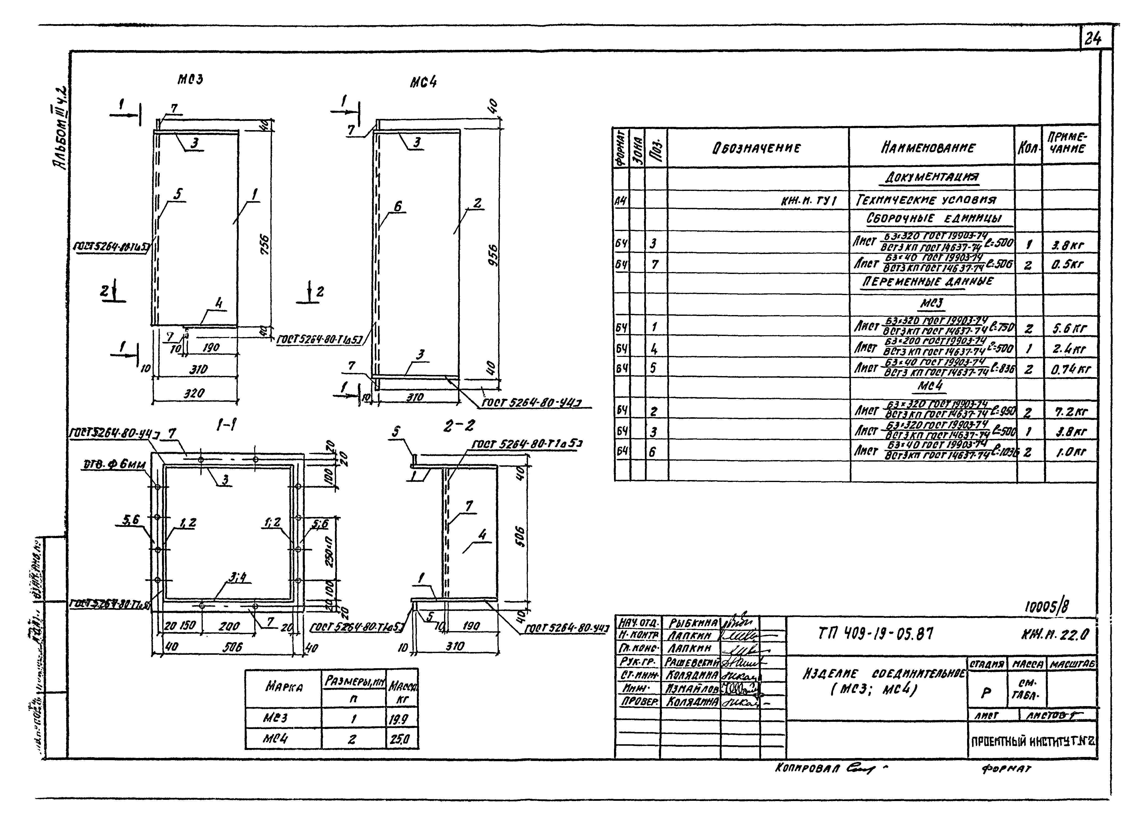
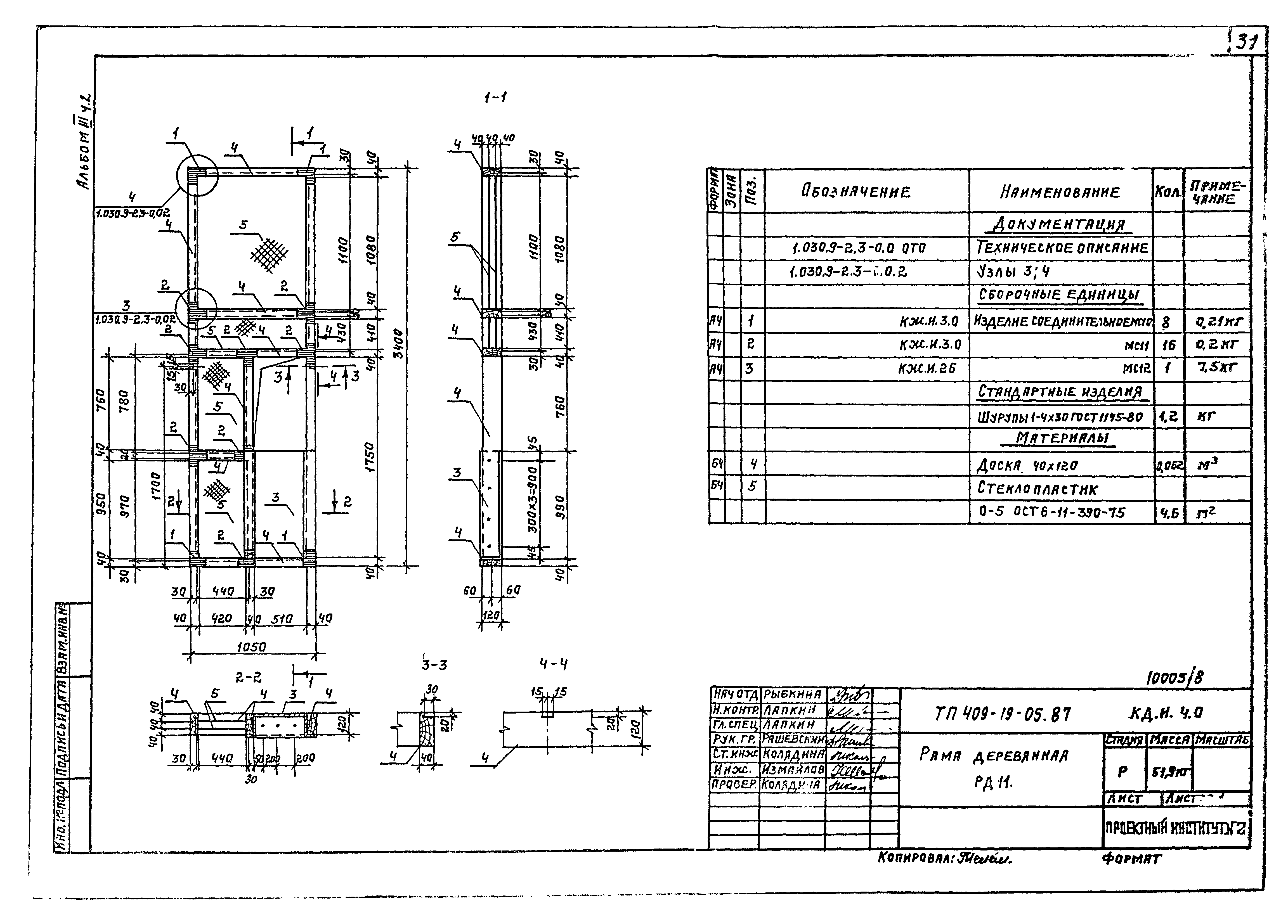
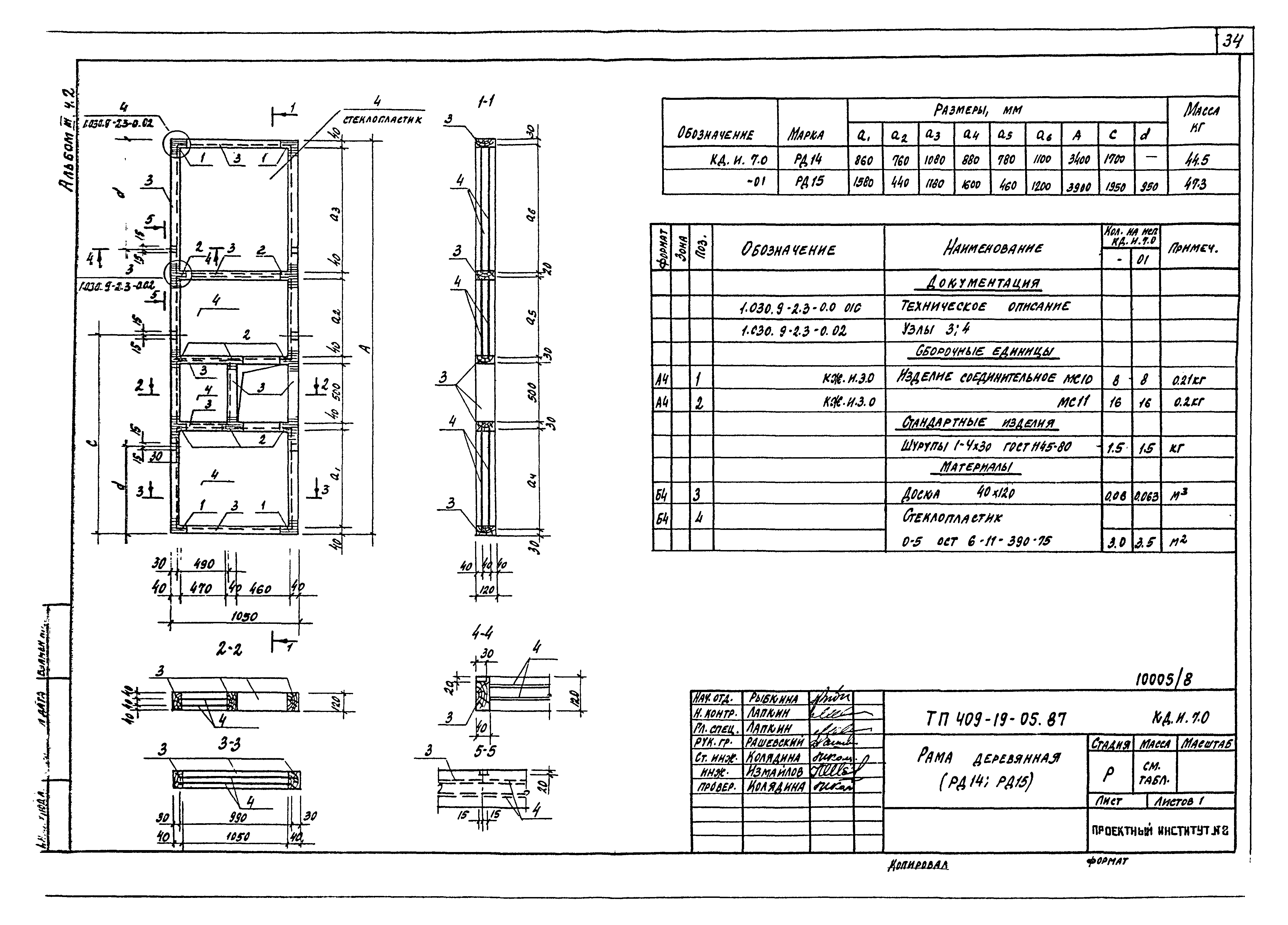
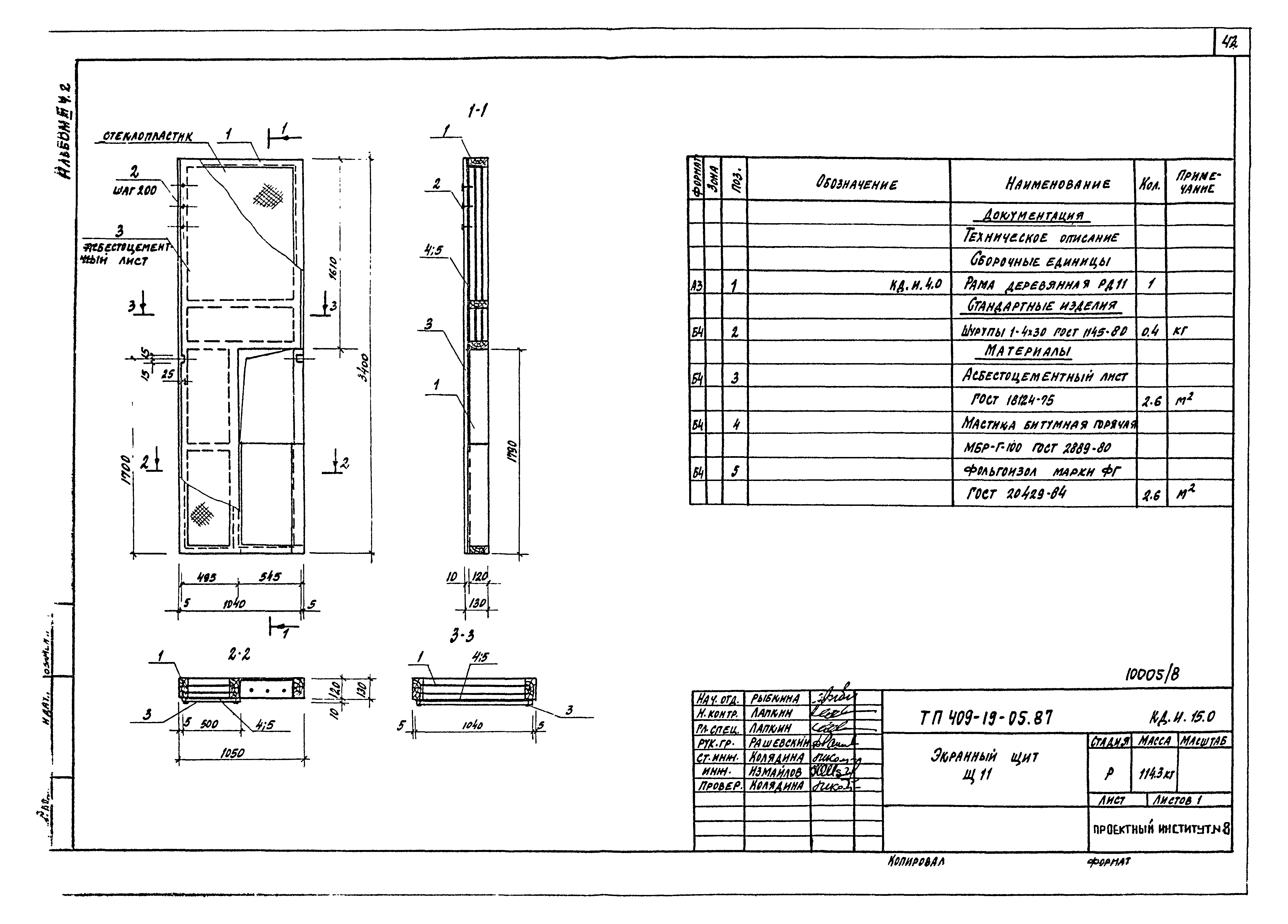
Скачать Типовые проектные решения 409-19-05.87 Альбом III. Часть 2. Строительные изделия. Вариант в сборном керамзитобетонеДата актуализации: 01.01.2021
|
| Обозначение: | Типовые проектные решения 409-19-05.87 |
| Обозначение англ: | 409-19-05.87 |
| Статус: | справочные материалы, мп, тпр |
| Название рус.: | Альбом III. Часть 2. Строительные изделия. Вариант в сборном керамзитобетоне |
| Дата добавления в базу: | 01.01.2018 |
| Дата актуализации: | 01.01.2021 |
| Дата окончания срока действия: | 22.10.1987 |
| Разработан: | Гипростроммаш |
| Утверждён: | 14.10.1987 Минстройдормаш (Minstroydormash 42А) |
| Издан: | ЦИТП Госстроя СССР (CITP, Gosstroy (USSR) 1988 г. ) |
| Нормативные ссылки: |


















































