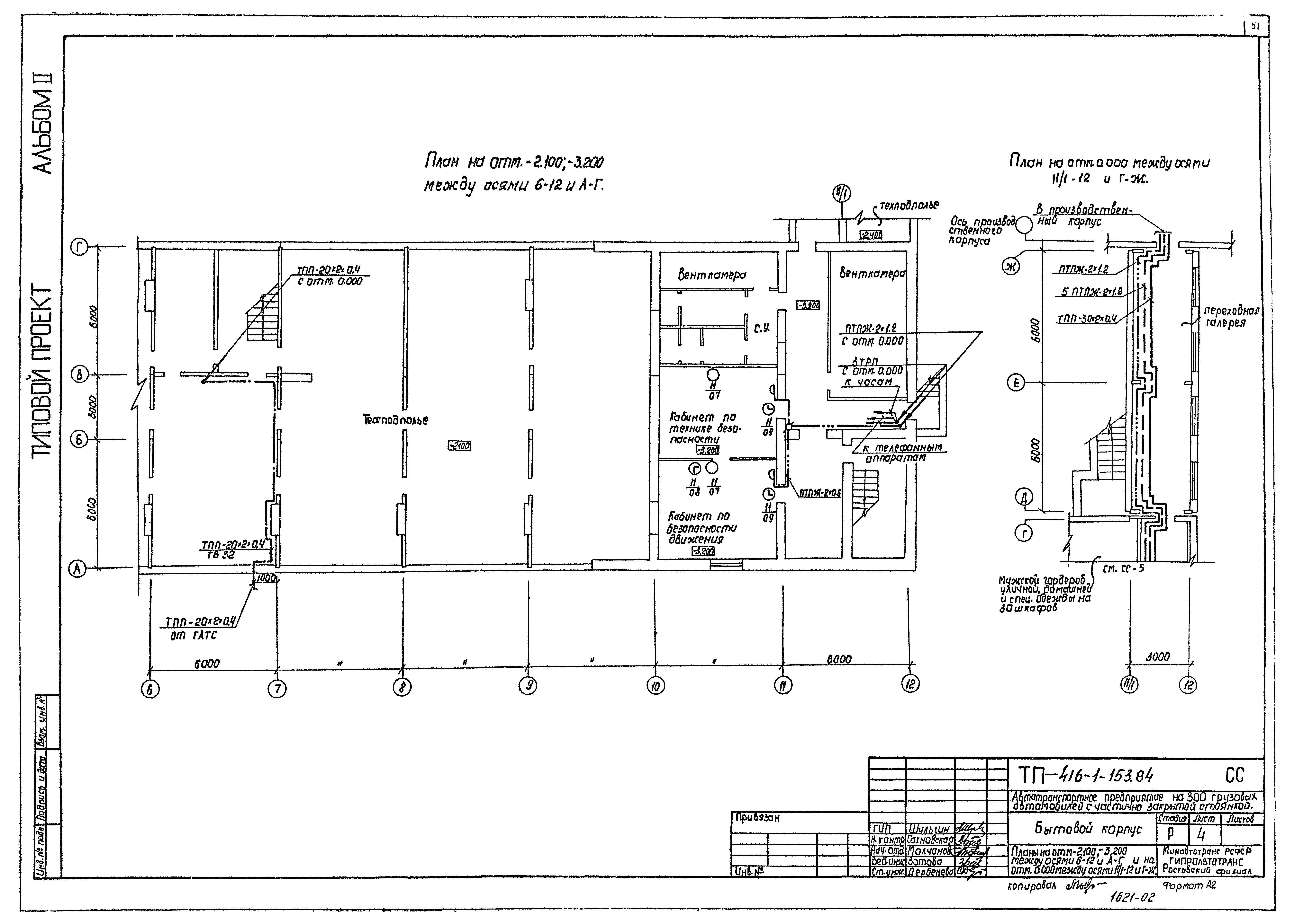
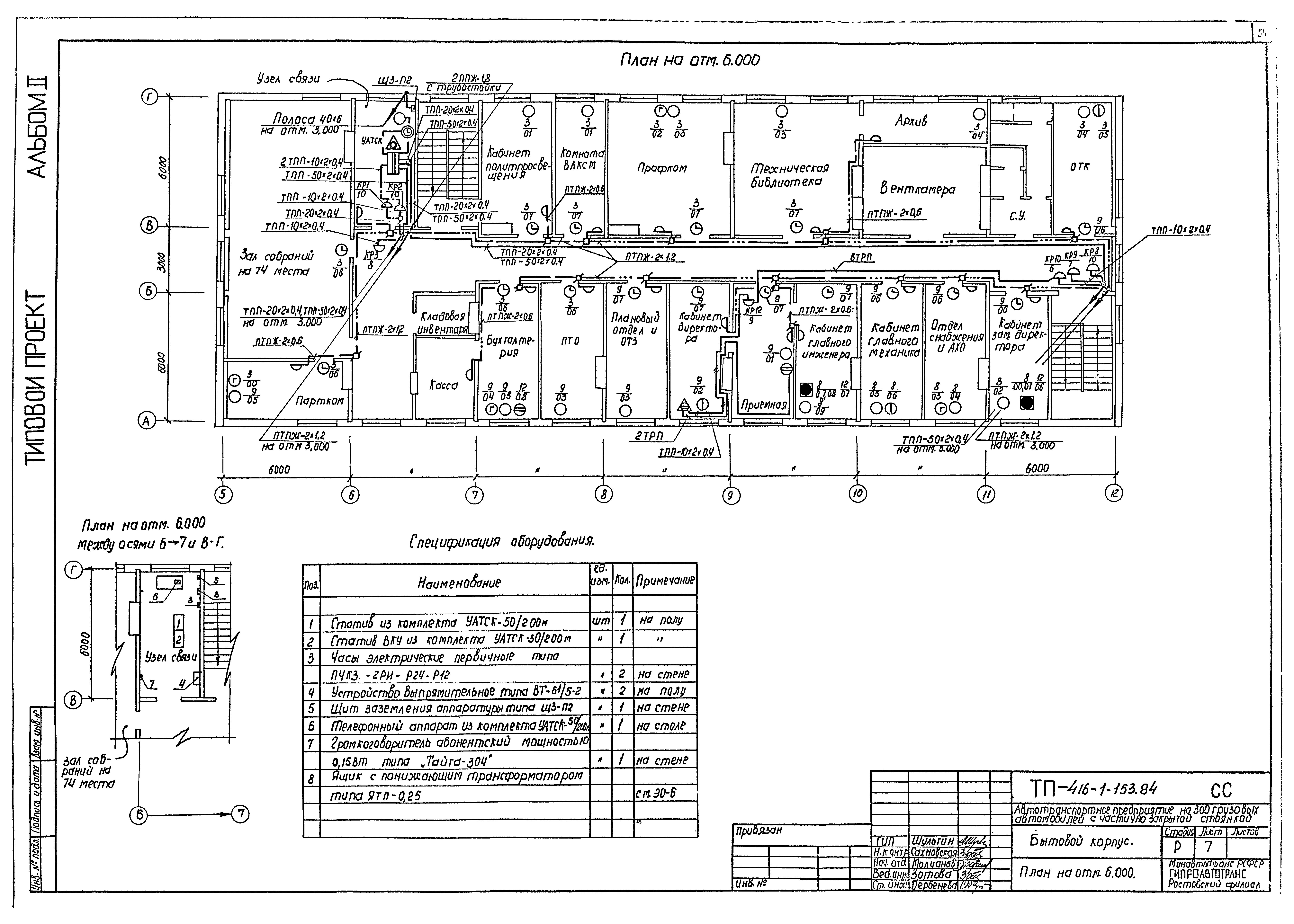
Скачать Типовой проект 416-1-153.84 Альбом II. Сантехнические и электротехнические чертежиДата актуализации: 01.01.2021
|
| Обозначение: | Типовой проект 416-1-153.84 |
| Обозначение англ: | 416-1-153.84 |
| Статус: | отменен |
| Название рус.: | Альбом II. Сантехнические и электротехнические чертежи |
| Дата добавления в базу: | 01.01.2019 |
| Дата актуализации: | 01.01.2021 |
| Дата введения: | 01.09.1984 |
| Дата окончания срока действия: | 01.01.1990 |
| Разработан: | ЦНИИпромзданий Гипроавтотранс |
| Утверждён: | 21.04.1984 Минавтотранс РСФСР (Russian Federation Minavtotrans 21) |
| Издан: | ЦИТП Госстроя СССР (CITP, Gosstroy (USSR) 1986 г. ) |
| Заменяет собой: |
|

























































