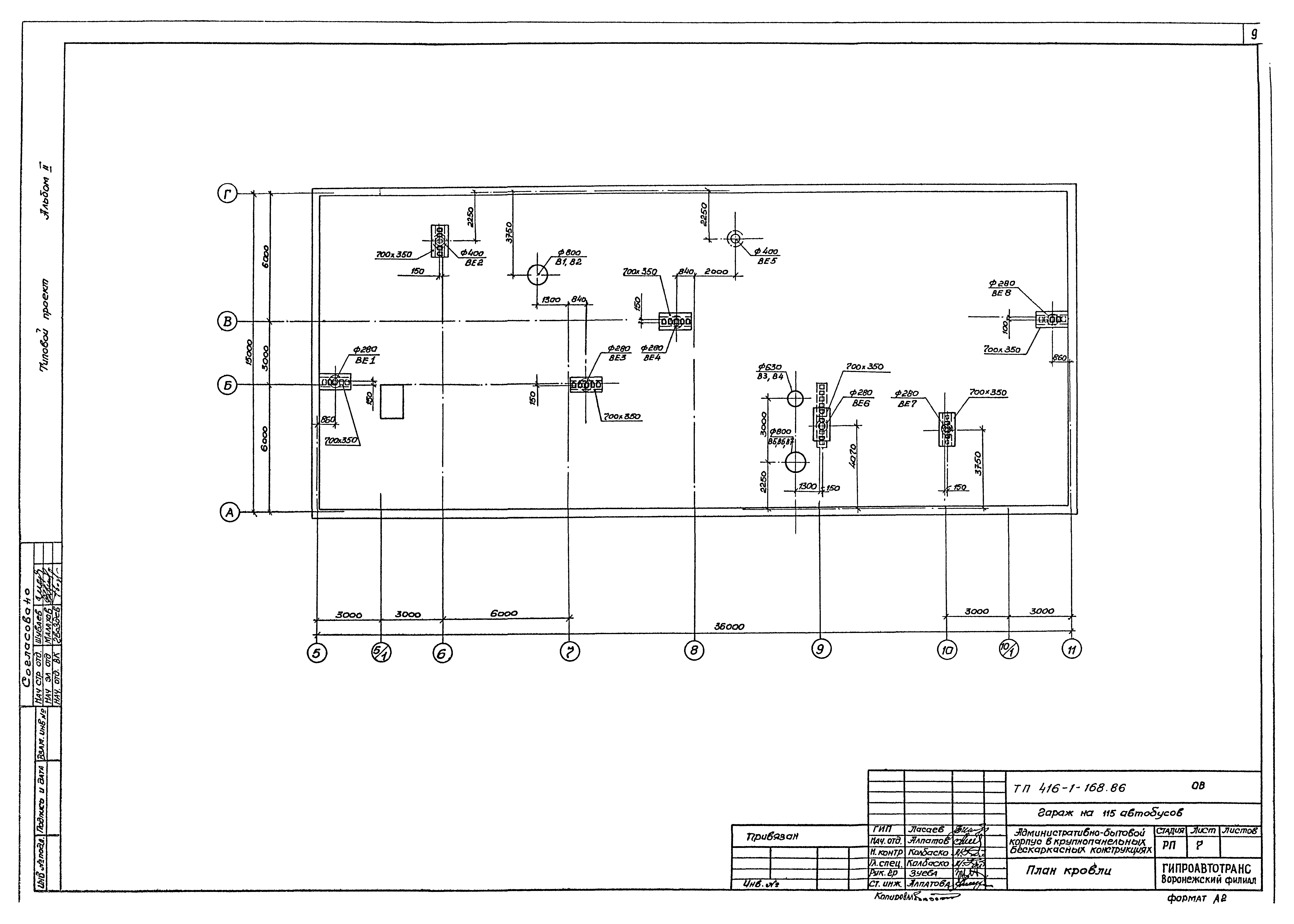
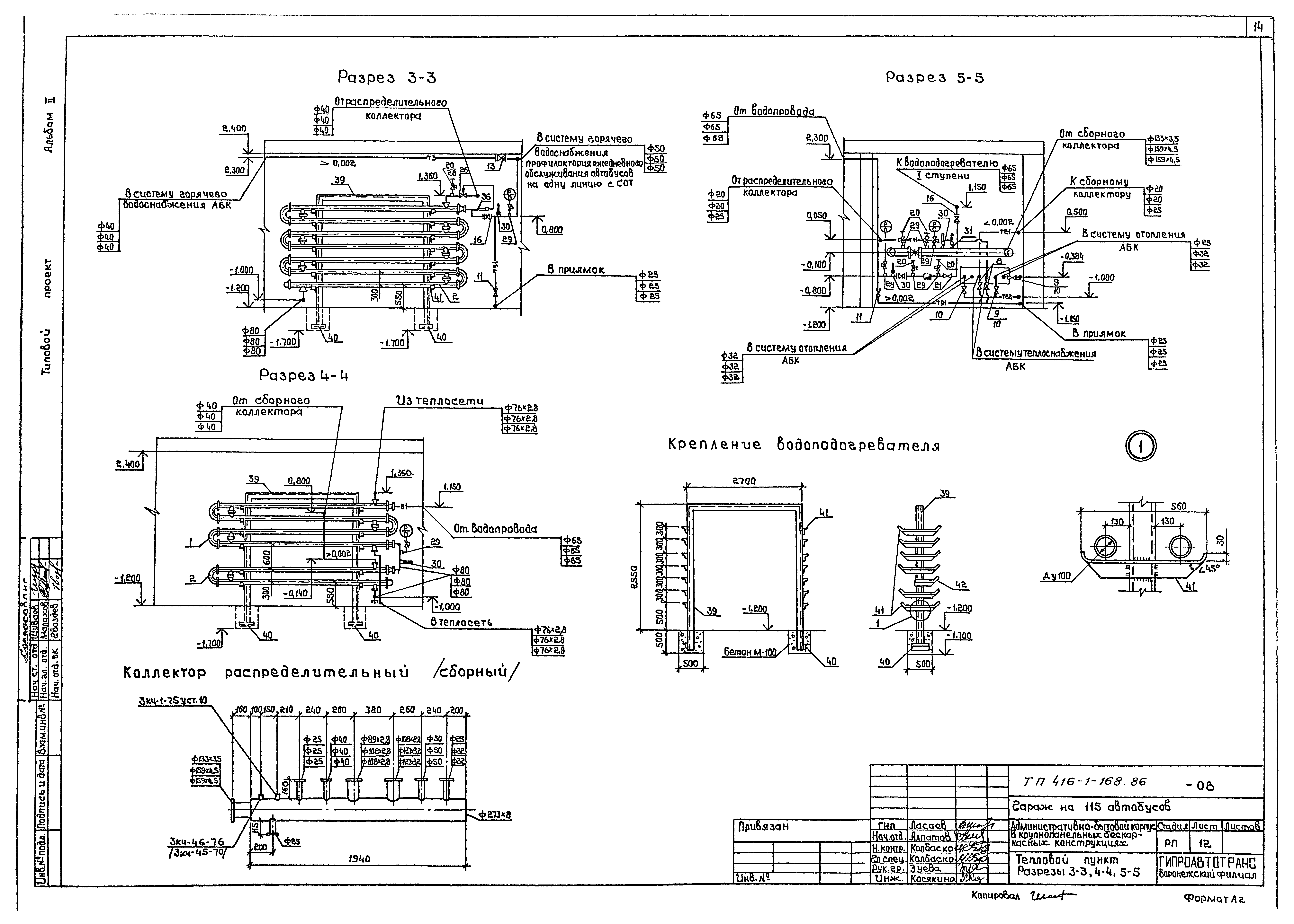
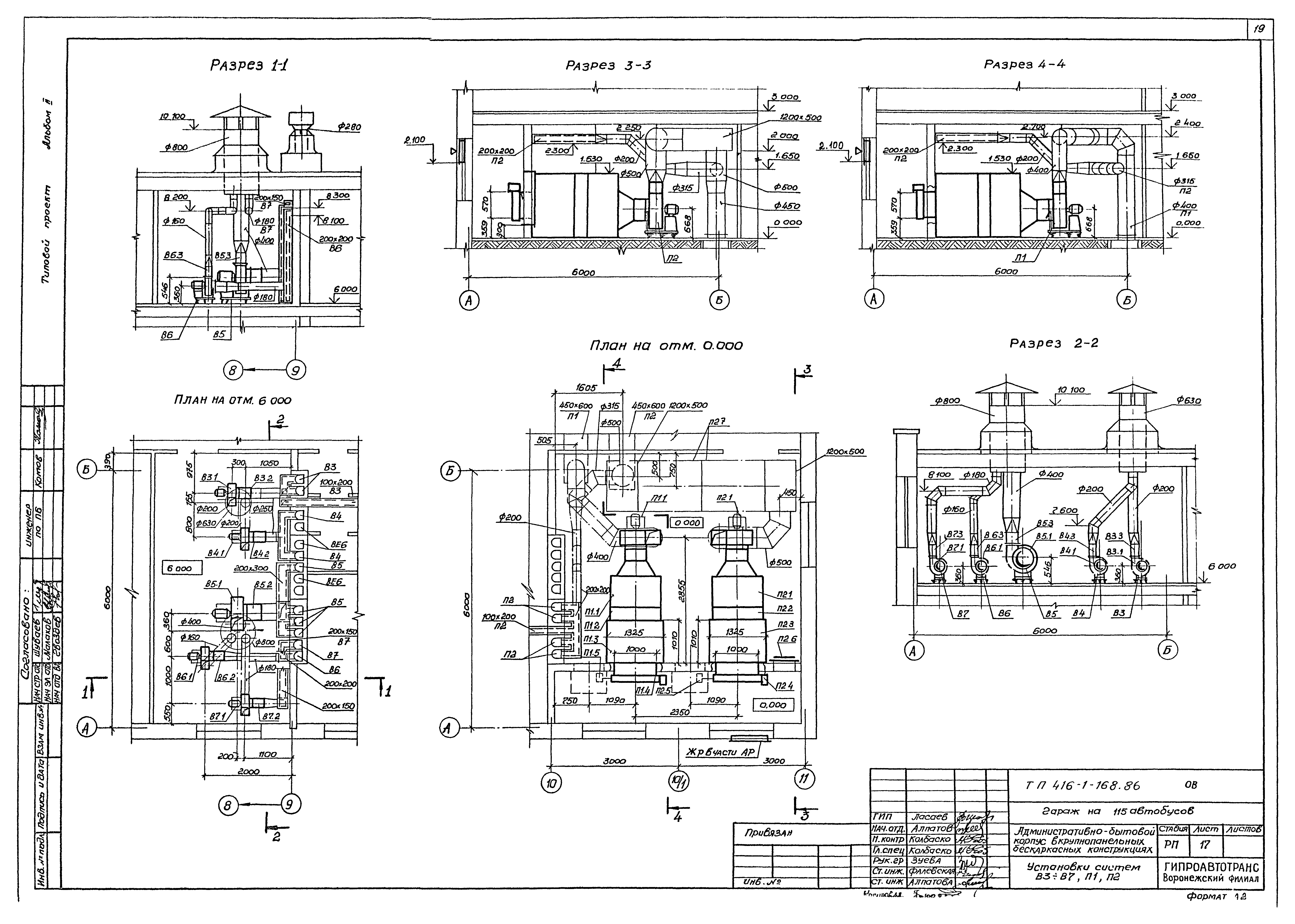
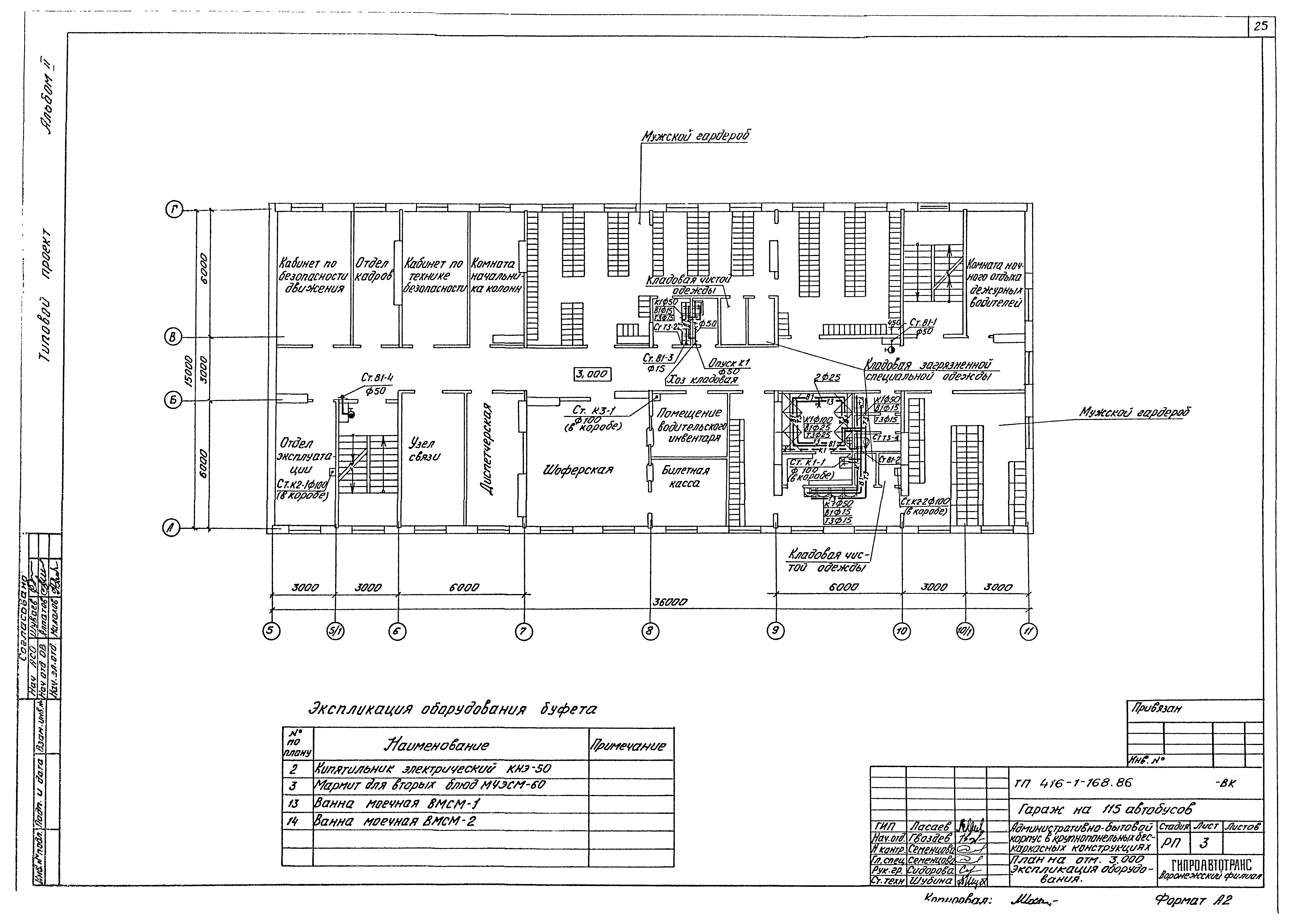
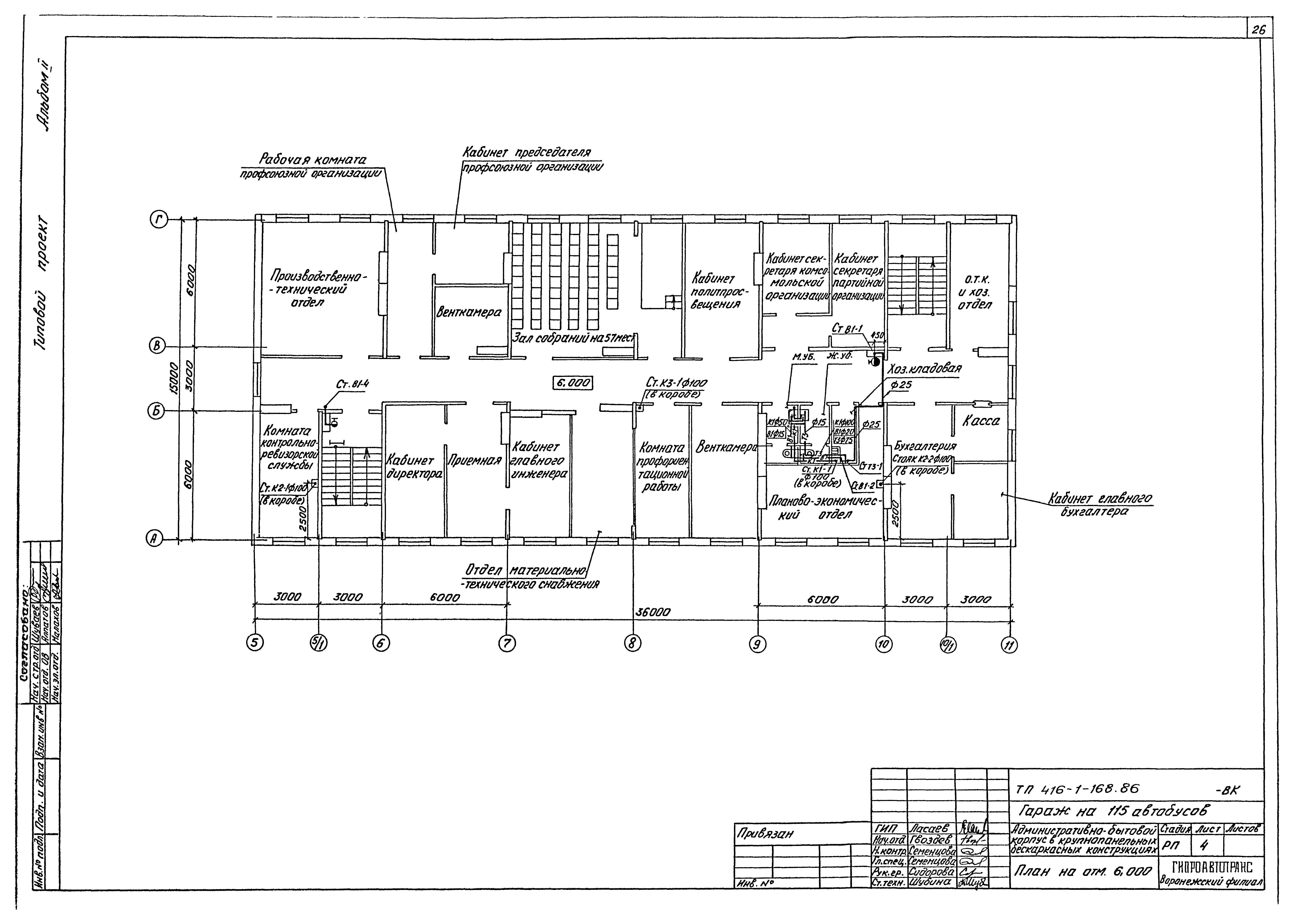
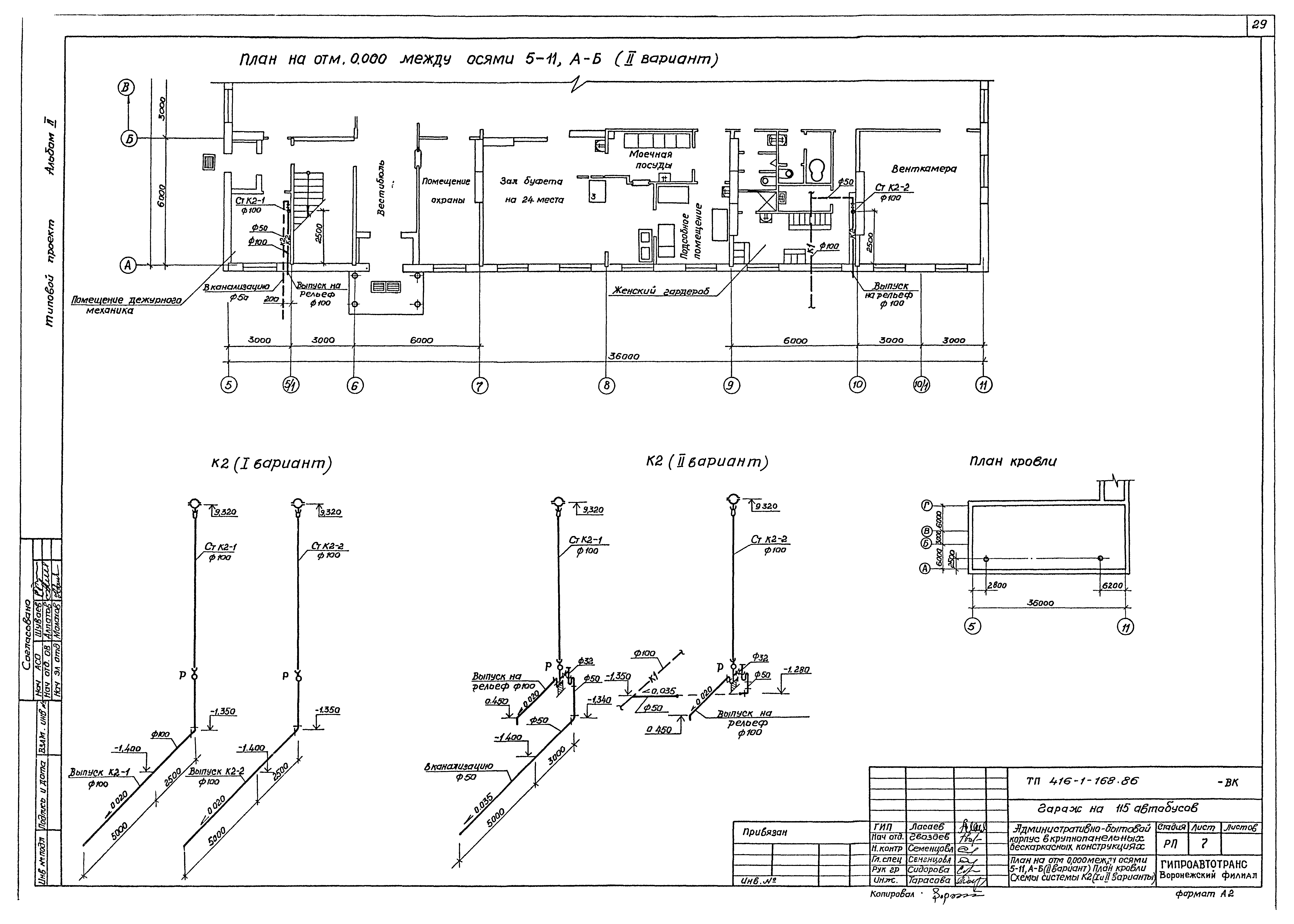
Скачать Типовой проект 416-1-168.86 Альбом II. Отопление и вентиляция, внутренний водопровод и канализацияДата актуализации: 01.01.2021 Типовой проект 416-1-168.86
Альбом II. Отопление и вентиляция, внутренний водопровод и канализация| Обозначение: | Типовой проект 416-1-168.86 | | Обозначение англ: | 416-1-168.86 | | Статус: | не определен законодательством | | Название рус.: | Альбом II. Отопление и вентиляция, внутренний водопровод и канализация | | Дата добавления в базу: | 01.01.2019 | | Дата актуализации: | 01.01.2021 | | Дата введения: | 25.03.1985 | | Дата окончания срока действия: | 30.06.2003 | | Разработан: | Гипроавтотранс
| | Утверждён: | 25.03.1985 Минавтотранс РСФСР (Russian Federation Minavtotrans 17)
| | Издан: | ЦИТП Госстроя СССР (CITP, Gosstroy (USSR) 1987 г. )
| | Заменяет собой: | |
                              
|