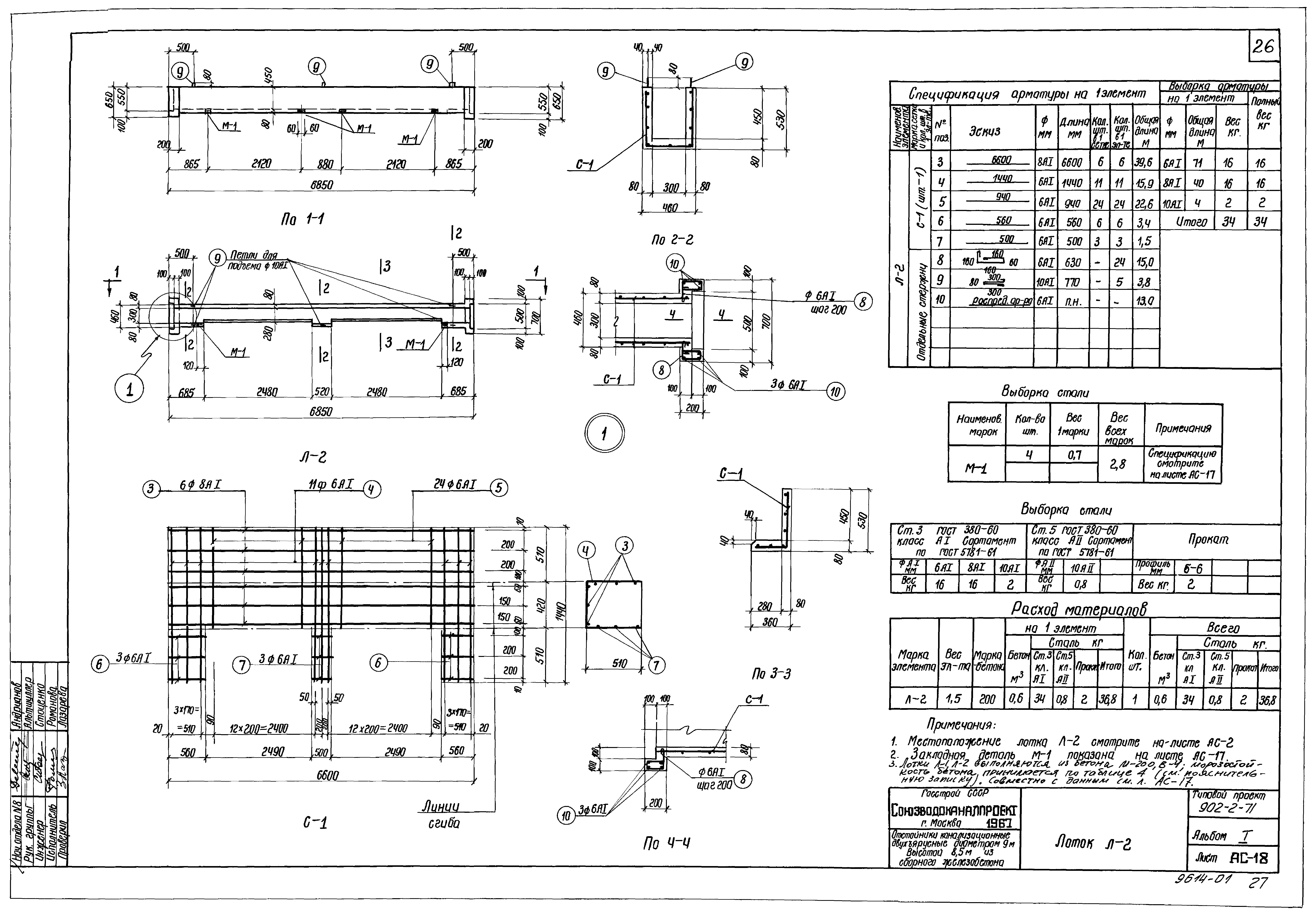
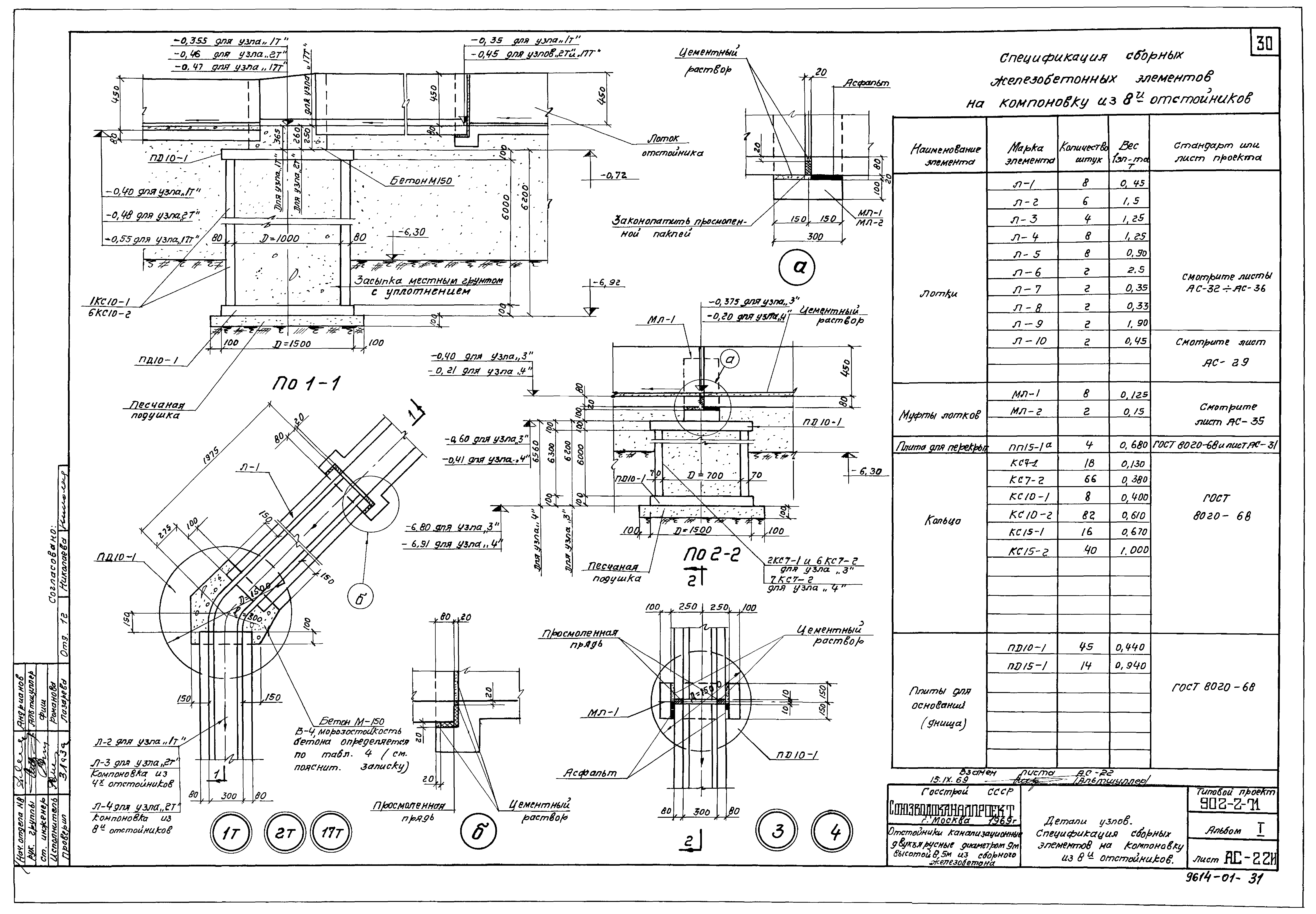
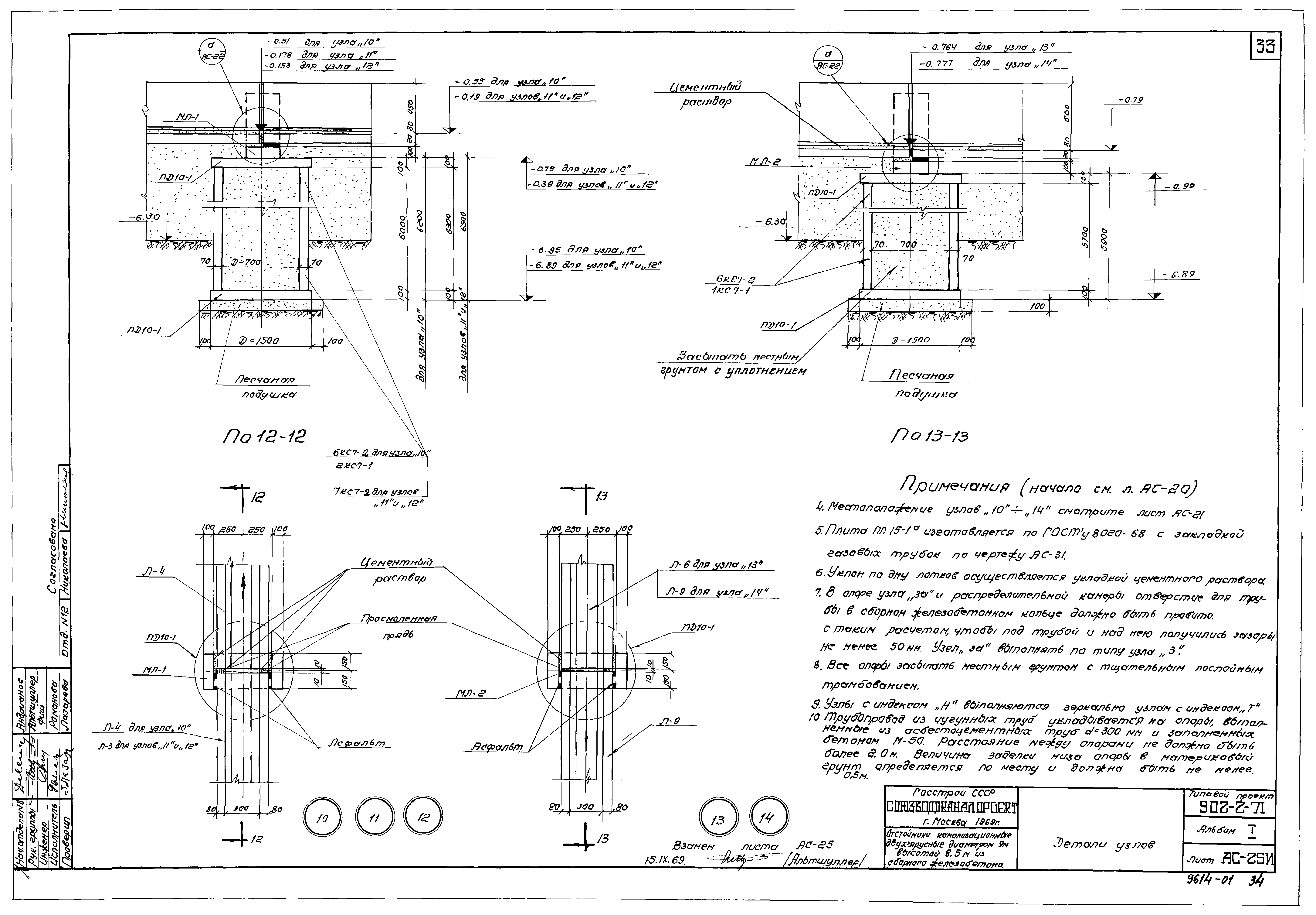
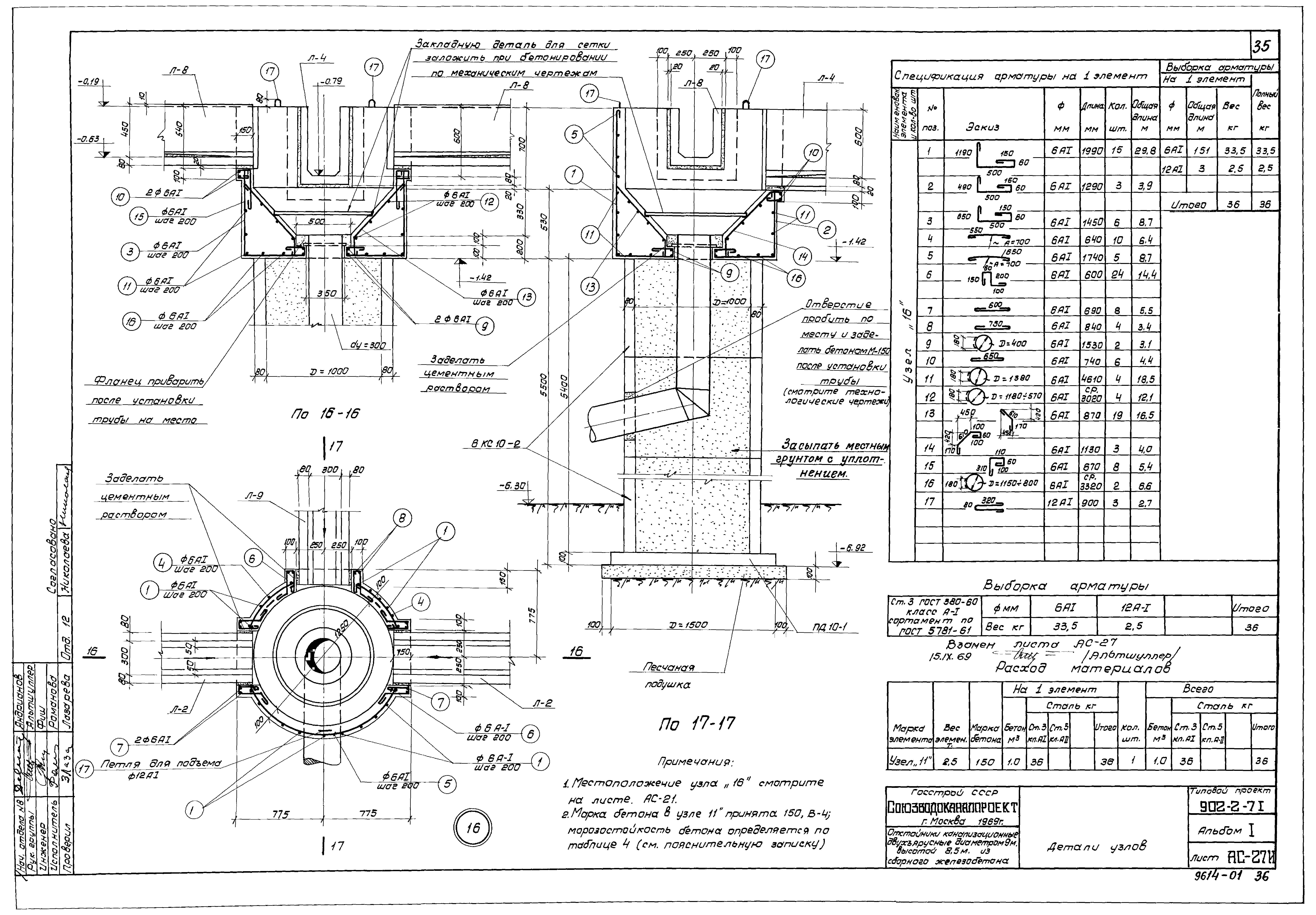
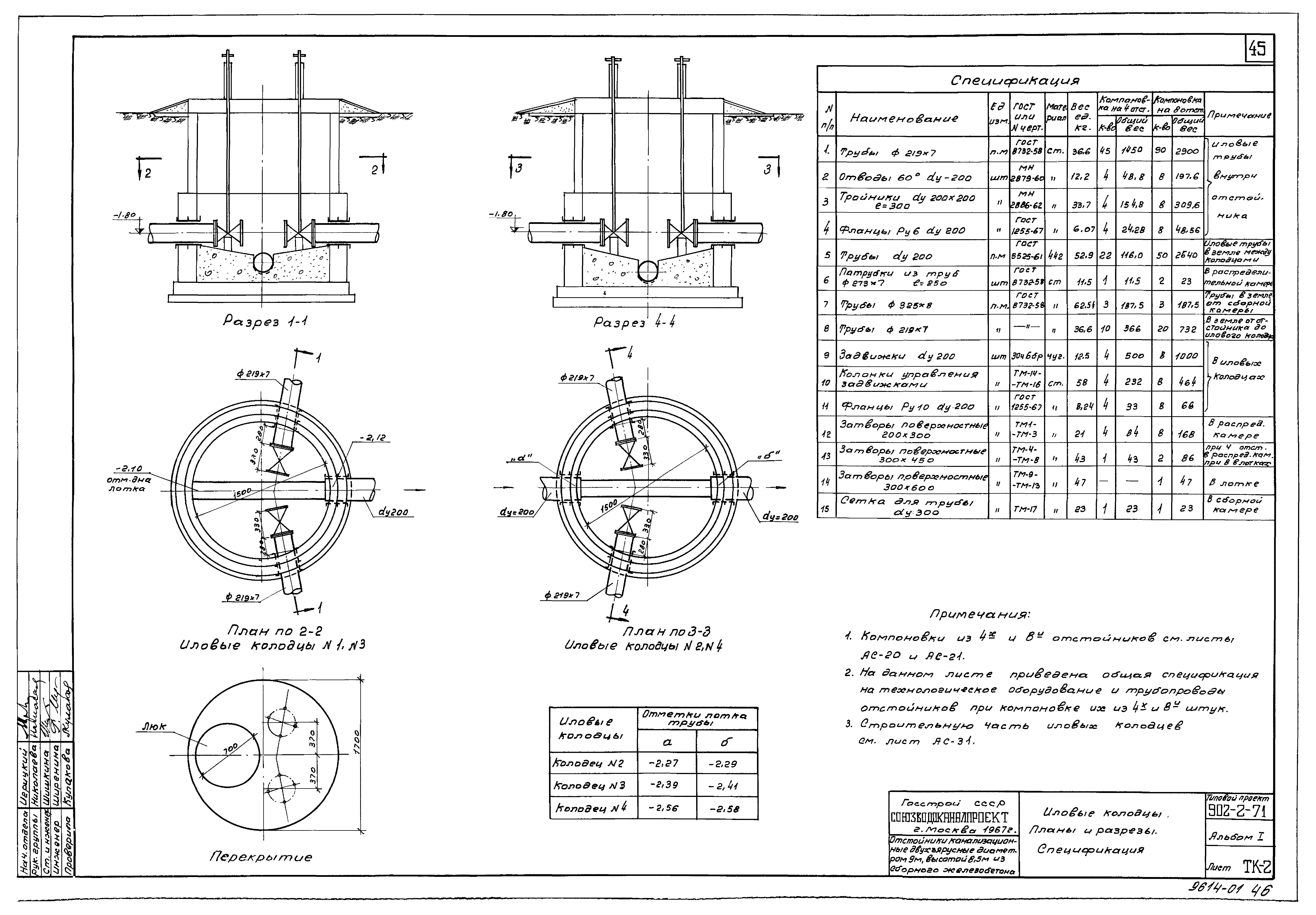
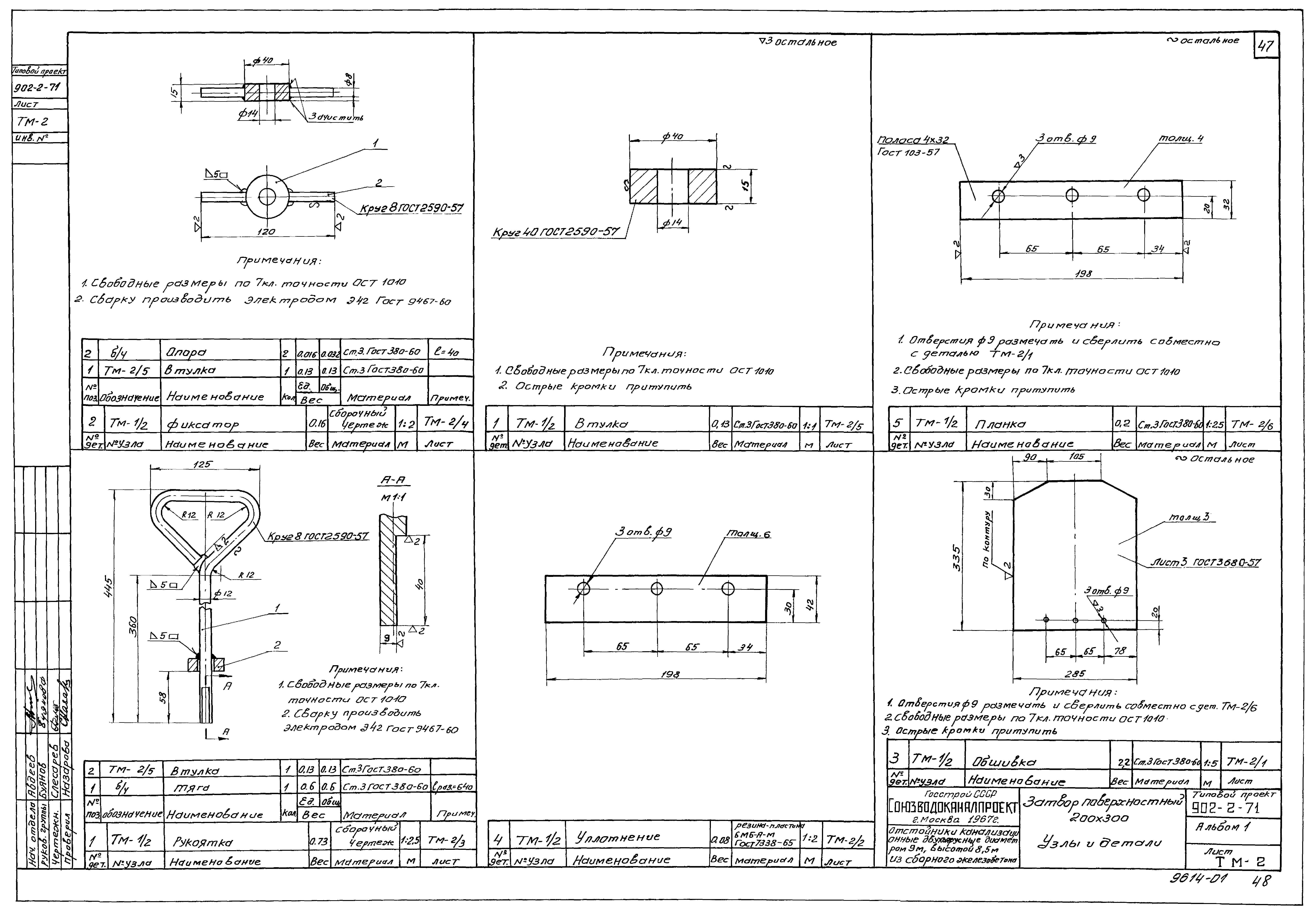
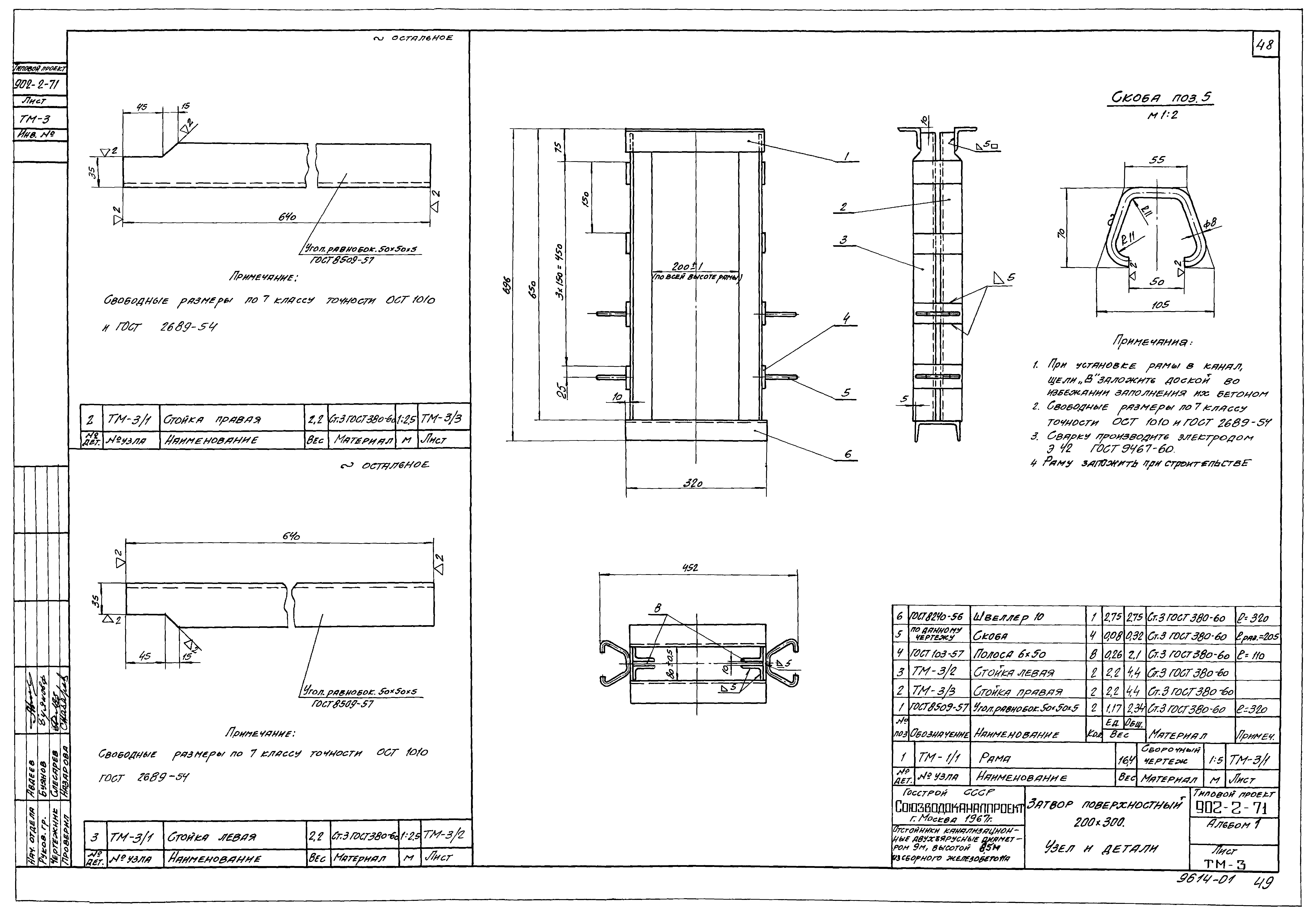
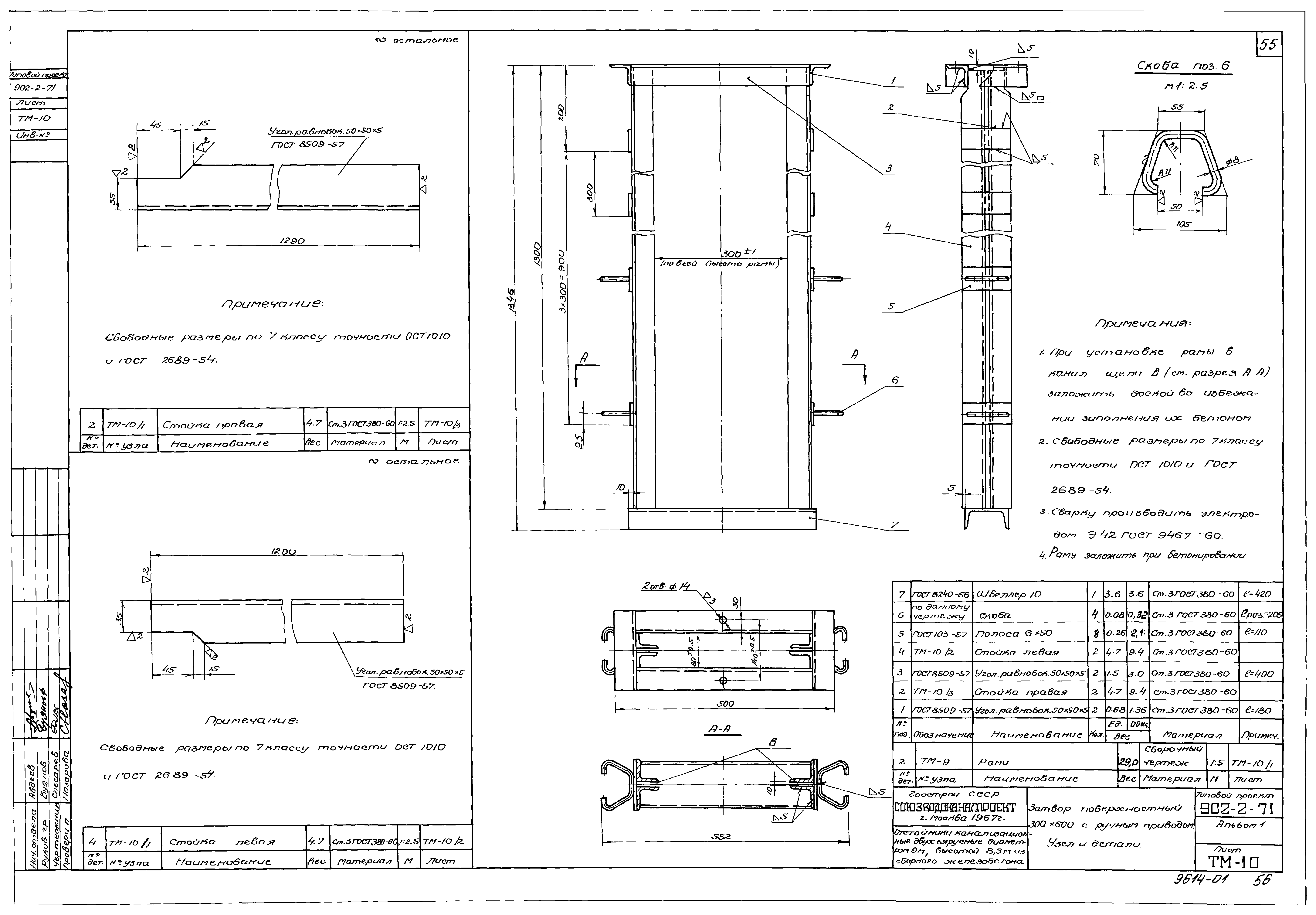
Скачать Типовой проект 902-2-71 Альбом I. Пояснительная записка и чертежиДата актуализации: 01.01.2021 Типовой проект 902-2-71
Альбом I. Пояснительная записка и чертежи| Обозначение: | Типовой проект 902-2-71 | | Обозначение англ: | 902-2-71 | | Статус: | заменен | | Название рус.: | Альбом I. Пояснительная записка и чертежи | | Дата добавления в базу: | 01.01.2019 | | Дата актуализации: | 01.01.2021 | | Дата введения: | 18.12.1967 | | Дата окончания срока действия: | 01.04.1974 | | Разработан: | Союзводоканалпроект
| | Утверждён: | 18.12.1967 Союзводоканалпроект (Soyuzvodokanalproject 260)
| | Чем заменён: | |
                                                              
|