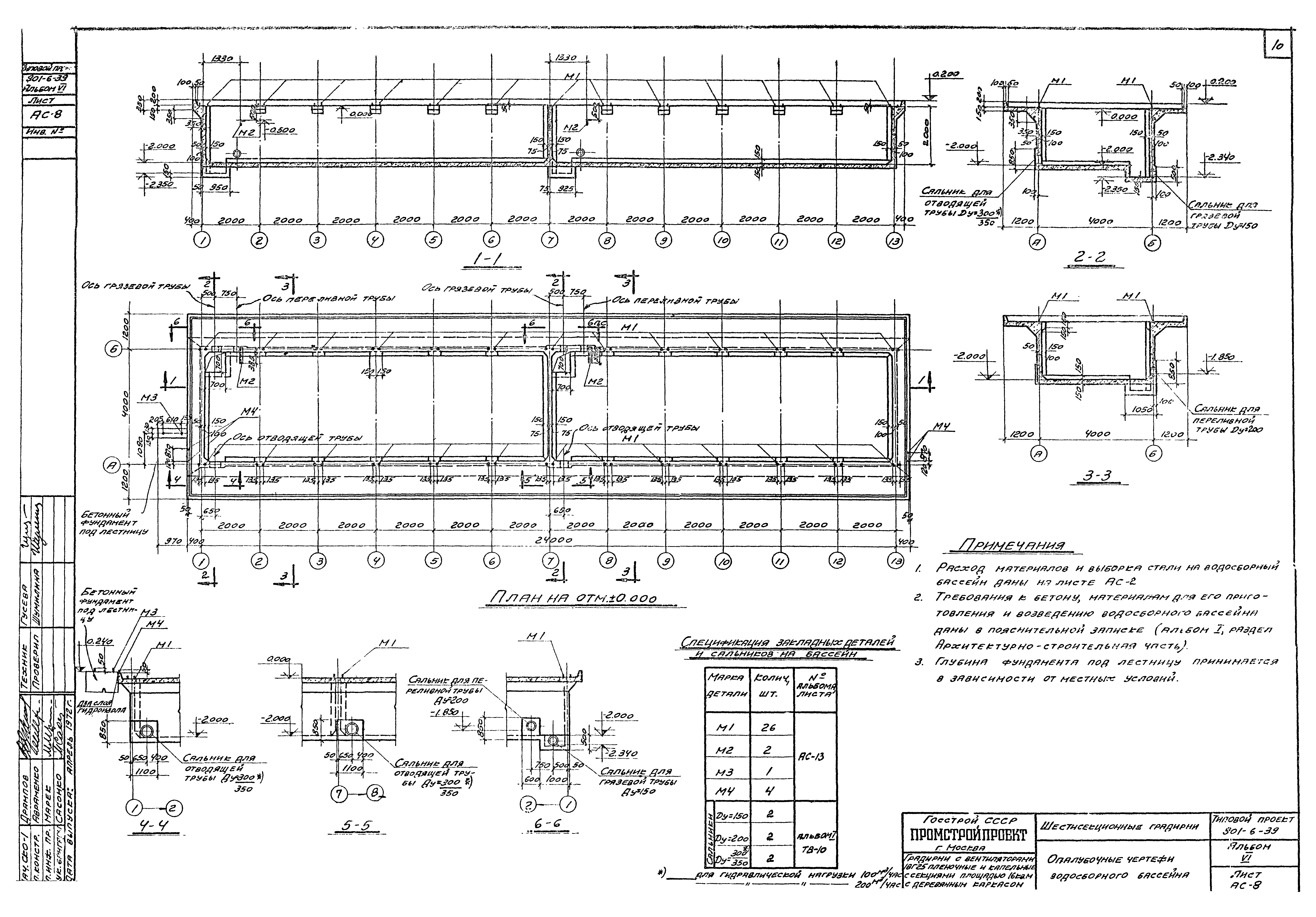
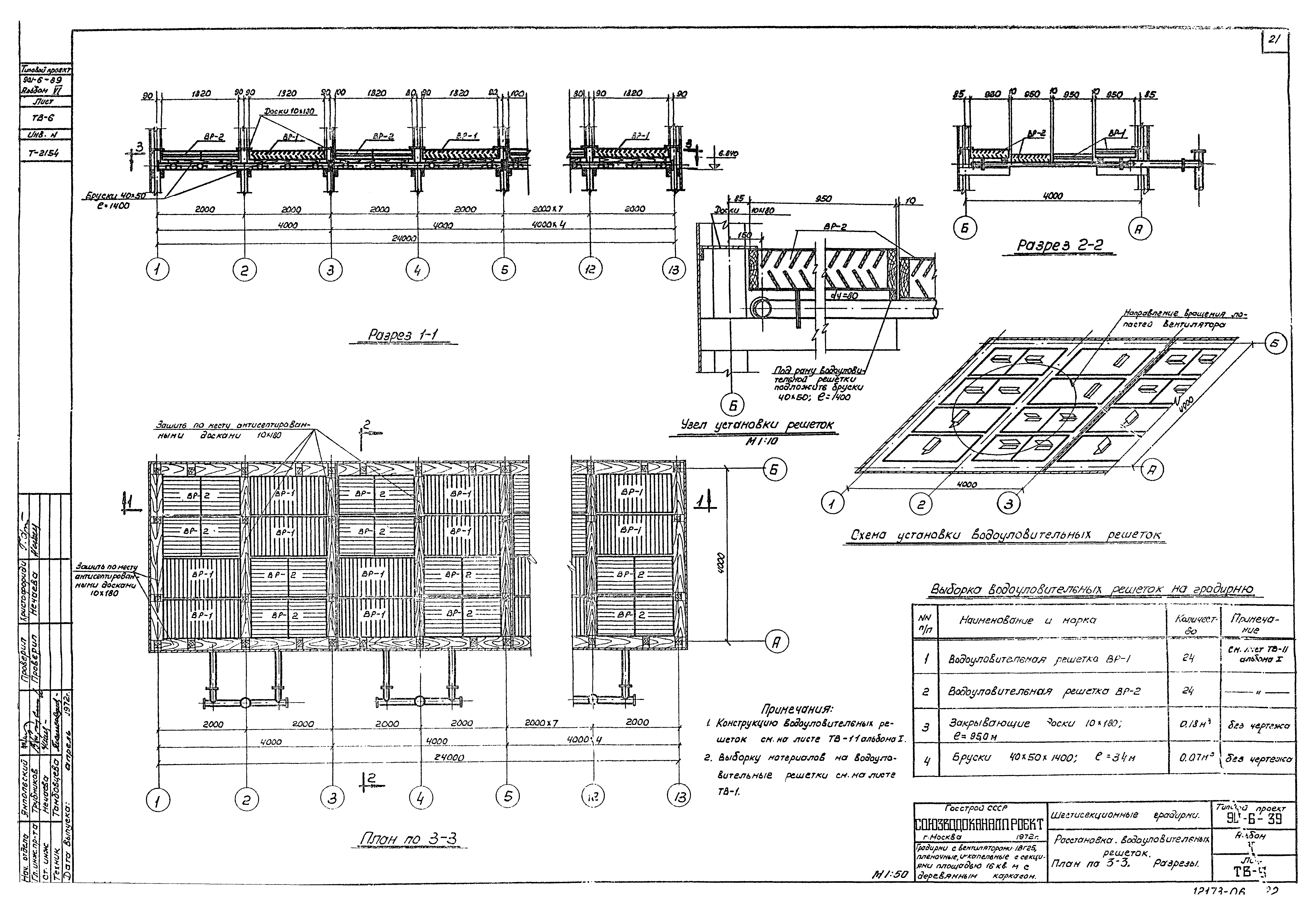
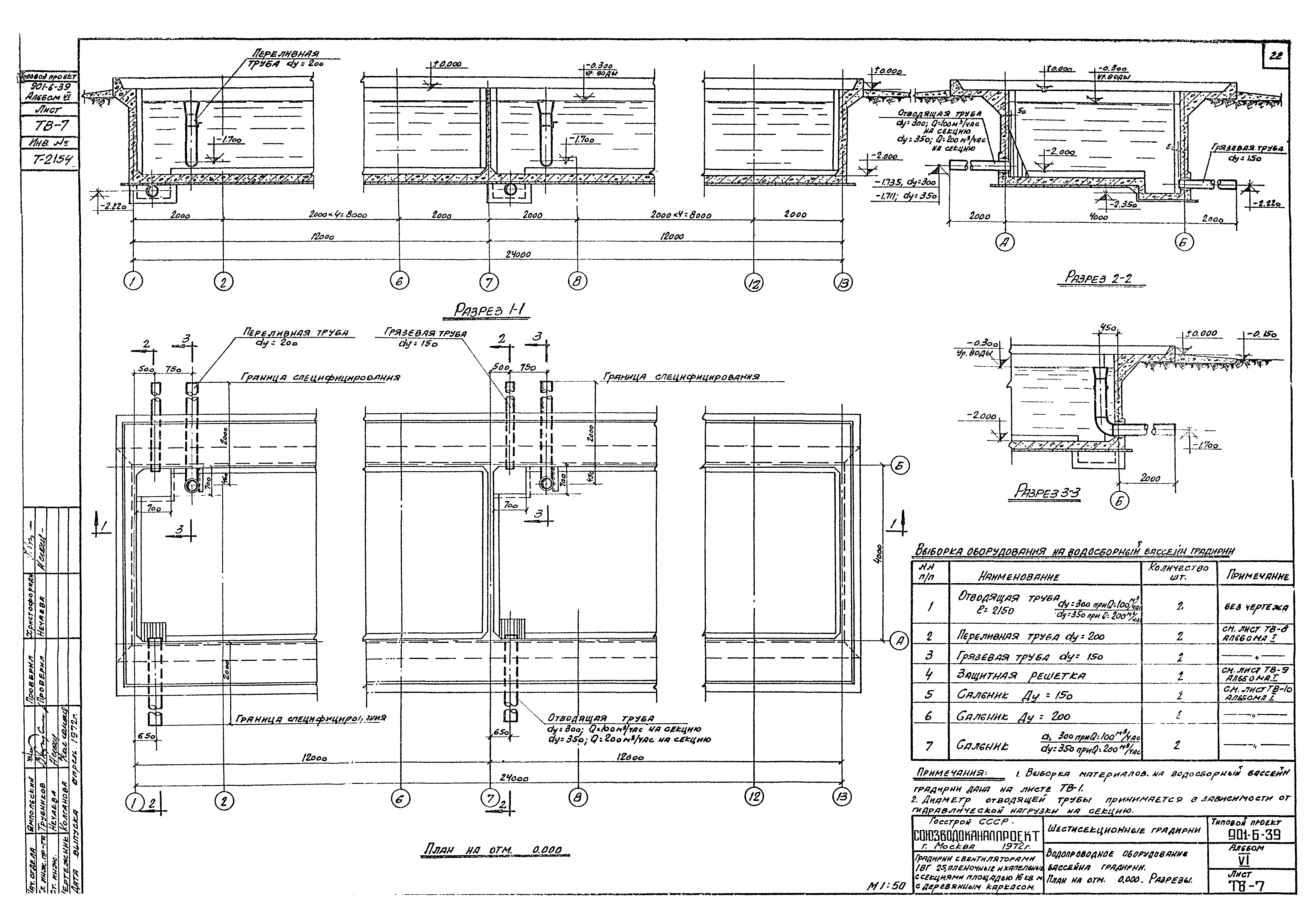
Скачать Типовой проект 901-6-39 Альбом VI. Шестисекционные градирниДата актуализации: 01.01.2021
|
| Обозначение: | Типовой проект 901-6-39 |
| Обозначение англ: | 901-6-39 |
| Статус: | не действует |
| Название рус.: | Альбом VI. Шестисекционные градирни |
| Дата добавления в базу: | 01.01.2019 |
| Дата актуализации: | 01.01.2021 |
| Дата введения: | 12.01.1973 |
| Дата окончания срока действия: | 01.04.1984 |
| Разработан: | Союзводоканалпроект |
| Утверждён: | 12.01.1973 СоюзводоканалНИИпроект (SoyuzvodokanalNIIproject 9) |
| Издан: | ЦИТП Госстроя СССР (CITP, Gosstroy (USSR) 1977 г. ) |
| Заменяет собой: |
|

























