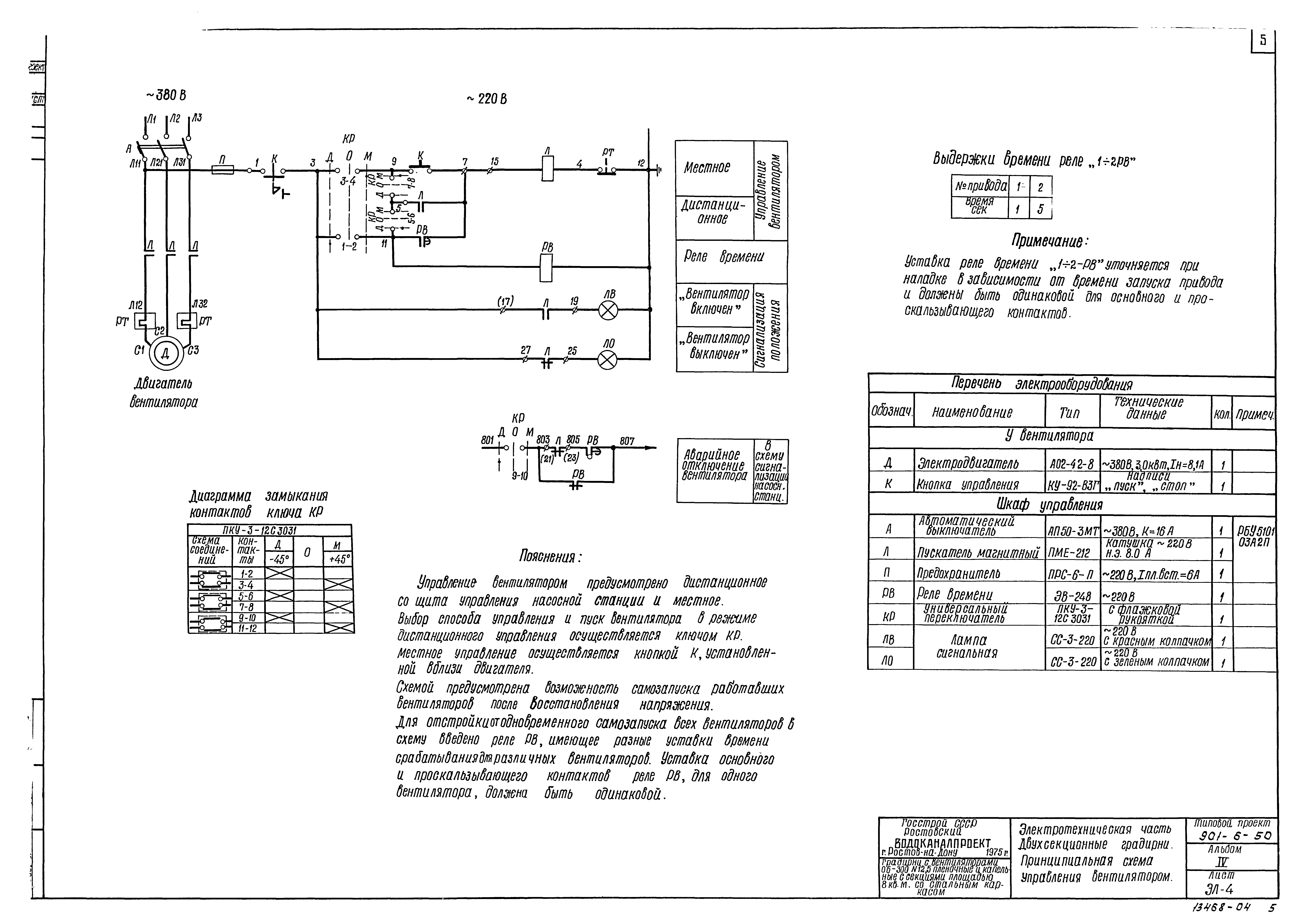
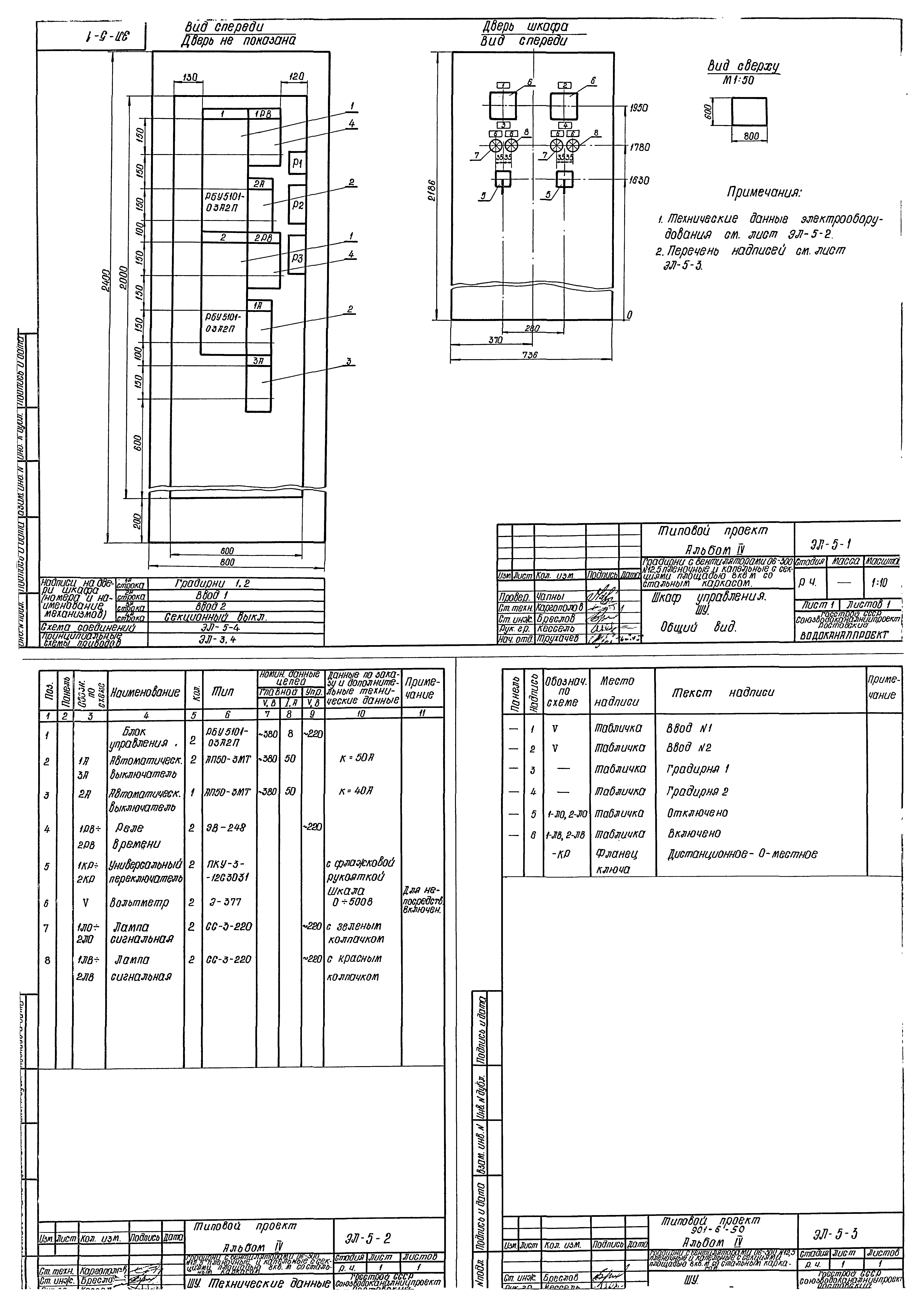
Скачать Типовой проект 901-6-50 Альбом IV. Электротехническая часть. Двухсекционные градирниДата актуализации: 01.01.2021 Типовой проект 901-6-50
Альбом IV. Электротехническая часть. Двухсекционные градирни| Обозначение: | Типовой проект 901-6-50 | | Обозначение англ: | 901-6-50 | | Статус: | отменен | | Название рус.: | Альбом IV. Электротехническая часть. Двухсекционные градирни | | Дата добавления в базу: | 01.01.2019 | | Дата актуализации: | 01.01.2021 | | Дата введения: | 05.06.1975 | | Дата окончания срока действия: | 01.01.1997 | | Разработан: | Союзводоканалпроект
| | Утверждён: | 05.06.1975 СоюзводоканалНИИпроект (SoyuzvodokanalNIIproject 125)
| | Издан: | ЦИТП Госстроя СССР (CITP, Gosstroy (USSR) 1976 г. )
| | Заменяет собой: | |
        
|