Скачать ГОСТ Р ИСО 11003-2-2017 Клеи. Определение свойств конструкционных клеев при сдвиге. Часть 2. Метод испытания на растяжение металлических образцов, склеенных внахлесткуДата актуализации: 01.01.2021
|
| Обозначение: | ГОСТ Р ИСО 11003-2-2017 |
| Обозначение англ: | GOST R ISO 11003-2-2017 |
| Статус: | принят |
| Название рус.: | Клеи. Определение свойств конструкционных клеев при сдвиге. Часть 2. Метод испытания на растяжение металлических образцов, склеенных внахлестку |
| Название англ.: | Adhesives. Determination of shear behaviour of structural adhesives. Part 2. Tensile test method for metallic standards with the use of thick adherends |
| Дата добавления в базу: | 01.01.2019 |
| Дата актуализации: | 01.01.2021 |
| Дата введения: | 01.01.2022 |
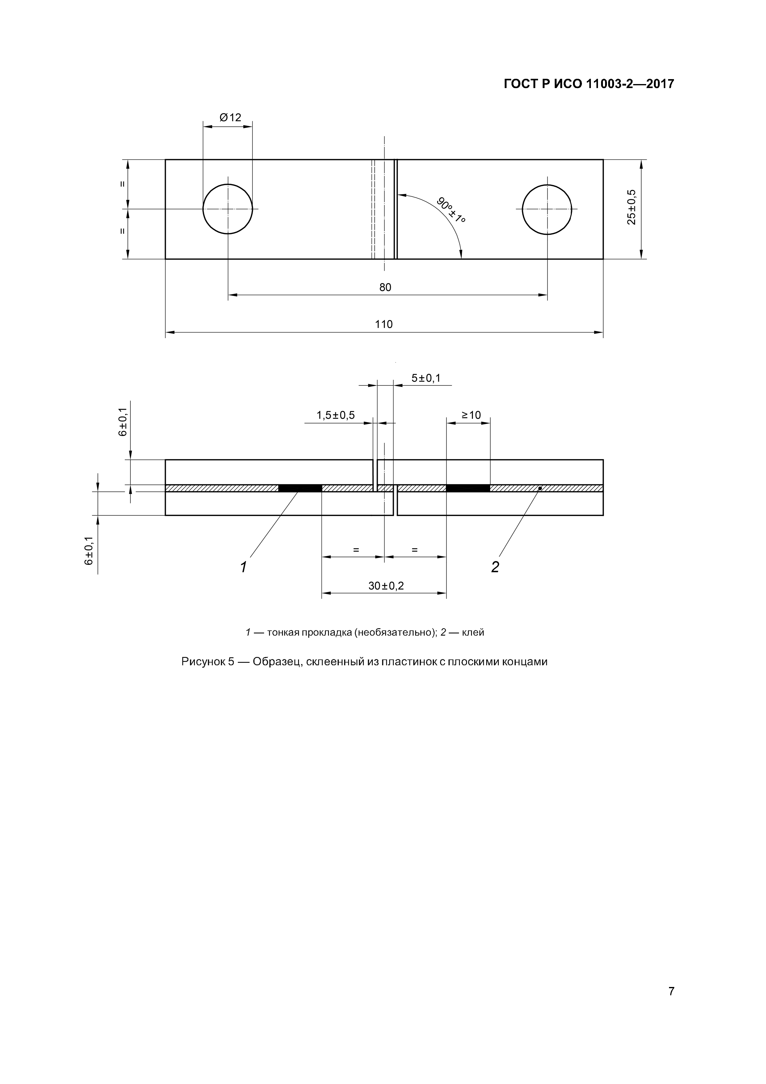
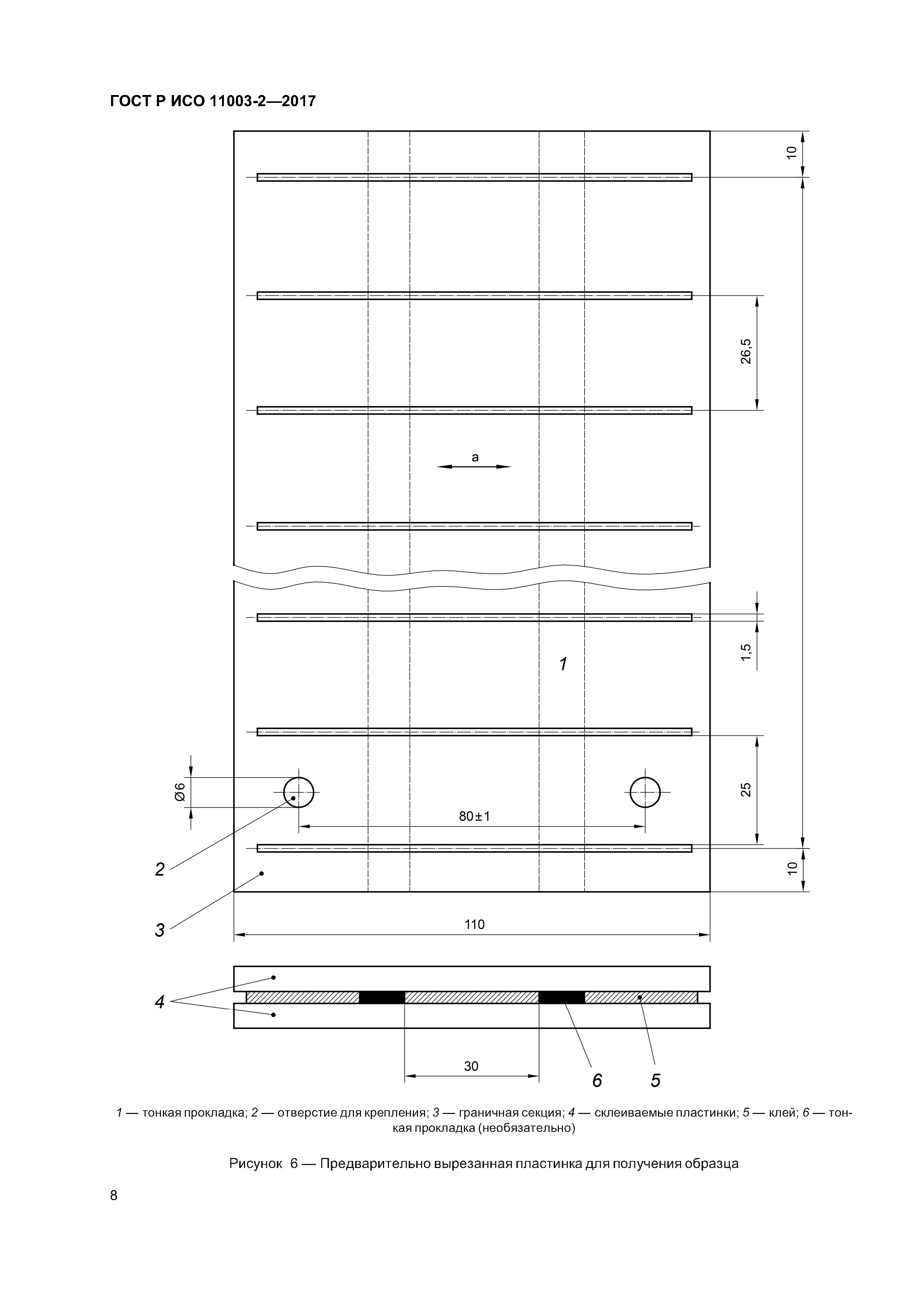
| Область применения: | Стандарт устанавливает метод определения свойств при сдвиге клея на образце клеевого соединения внахлестку при приложении растягивающей нагрузки. Испытание выполняют на образцах, составленных из толстых жестких склеиваемых деталей при небольшой длине нахлестки, чтобы получить наиболее равномерное распределение возможных напряжений сдвига и свести к минимуму другие напряженные состояния, инициирующие напряжение. Данный метод можно использовать, чтобы определить: - кривую зависимости «напряжение-деформация» при сдвиге до разрушения клеевого шва; - модуль сдвига клея в клеевом соединении; - другие свойства, которые можно вывести по кривой напряжение-деформация, например, секущий или касательный модуль сдвига и максимальное напряжение сдвига; - влияние температуры, окружающей среды, скорости испытания и т.д., на эти свойства. |
| Оглавление: | 1 Область применения 2 Нормативные ссылки 3 Сущность метода 4 Аппаратура 5 Образцы 6 Образцы для испытания 7 Проведение испытания 8 Расчеты 9 Объективность метода 10 Протокол испытания Приложение А (справочное) Подходящая конструкция экстензометра Приложение ДА (справочное) Сведения о соответствии ссылочных международных стандартов межгосударственным стандартам |
| Разработан: | ФГУП СТАНДАРТИНФОРМ АО НИЦ Строительство - ЦНИИСК им. В.А. Кучеренко |
| Утверждён: | 19.12.2017 Федеральное агентство по техническому регулированию и метрологии (2021-ст) |
| Издан: | Стандартинформ (2018 г. ) |
| Нормативные ссылки: |

















