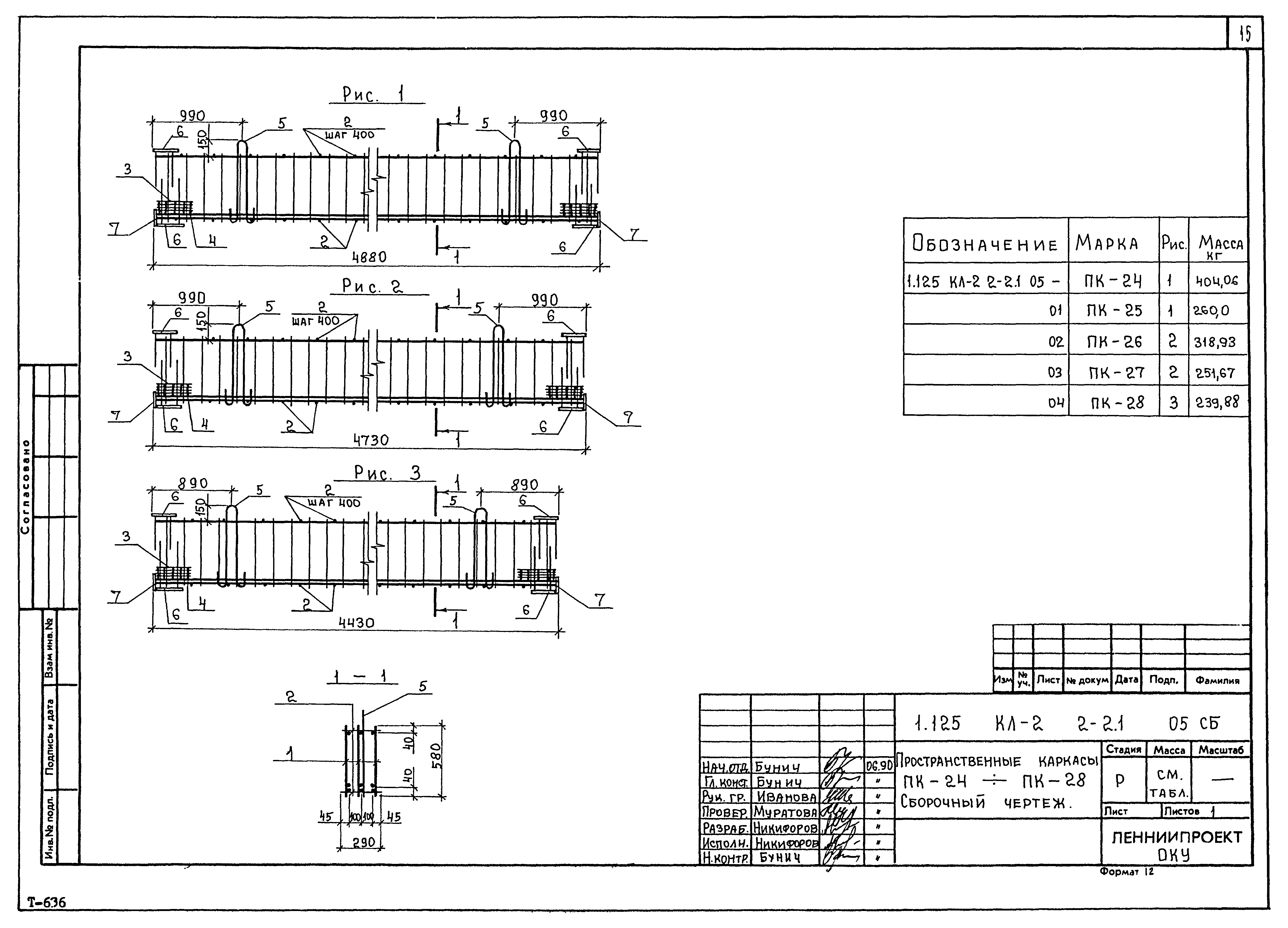
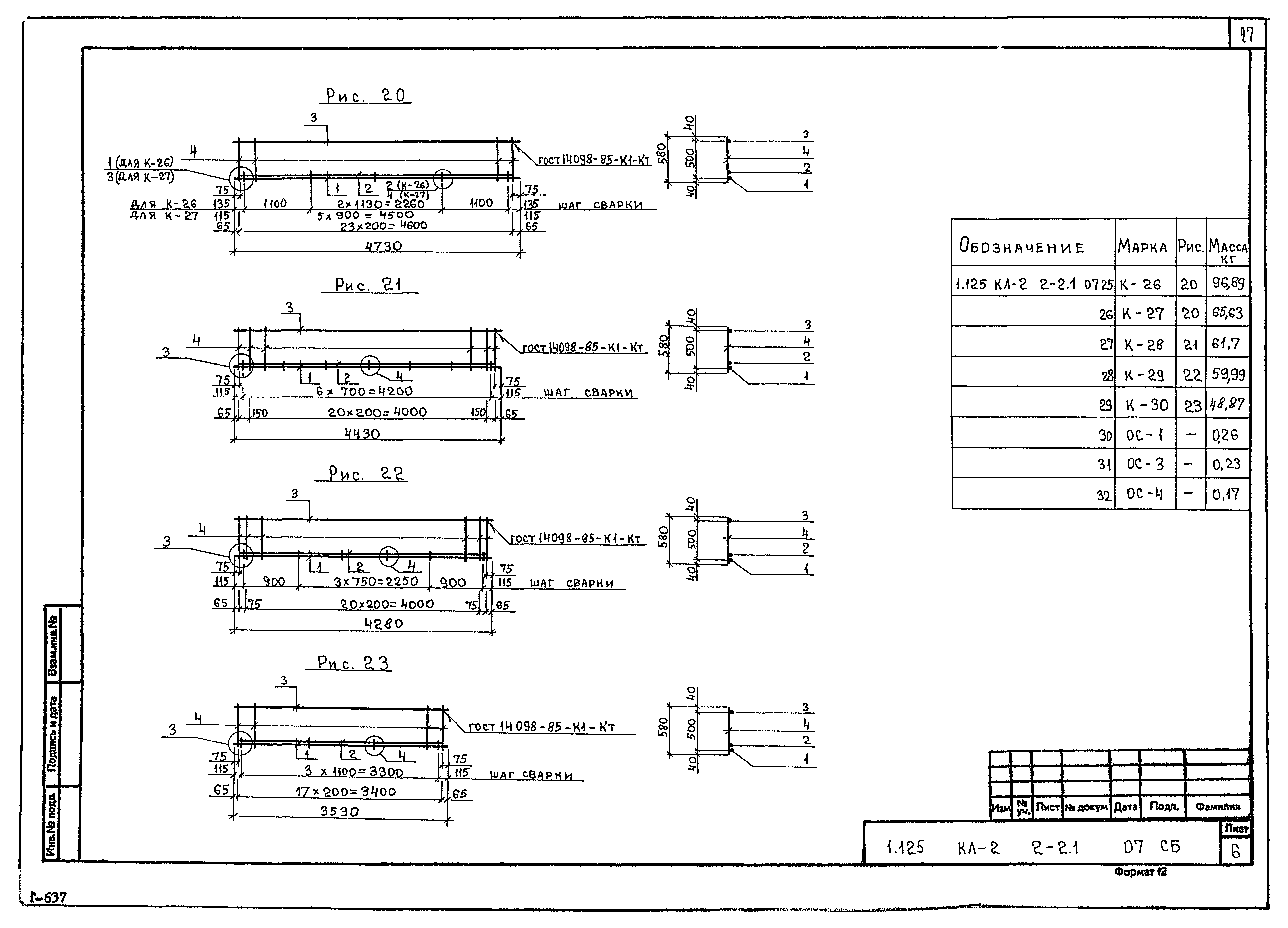
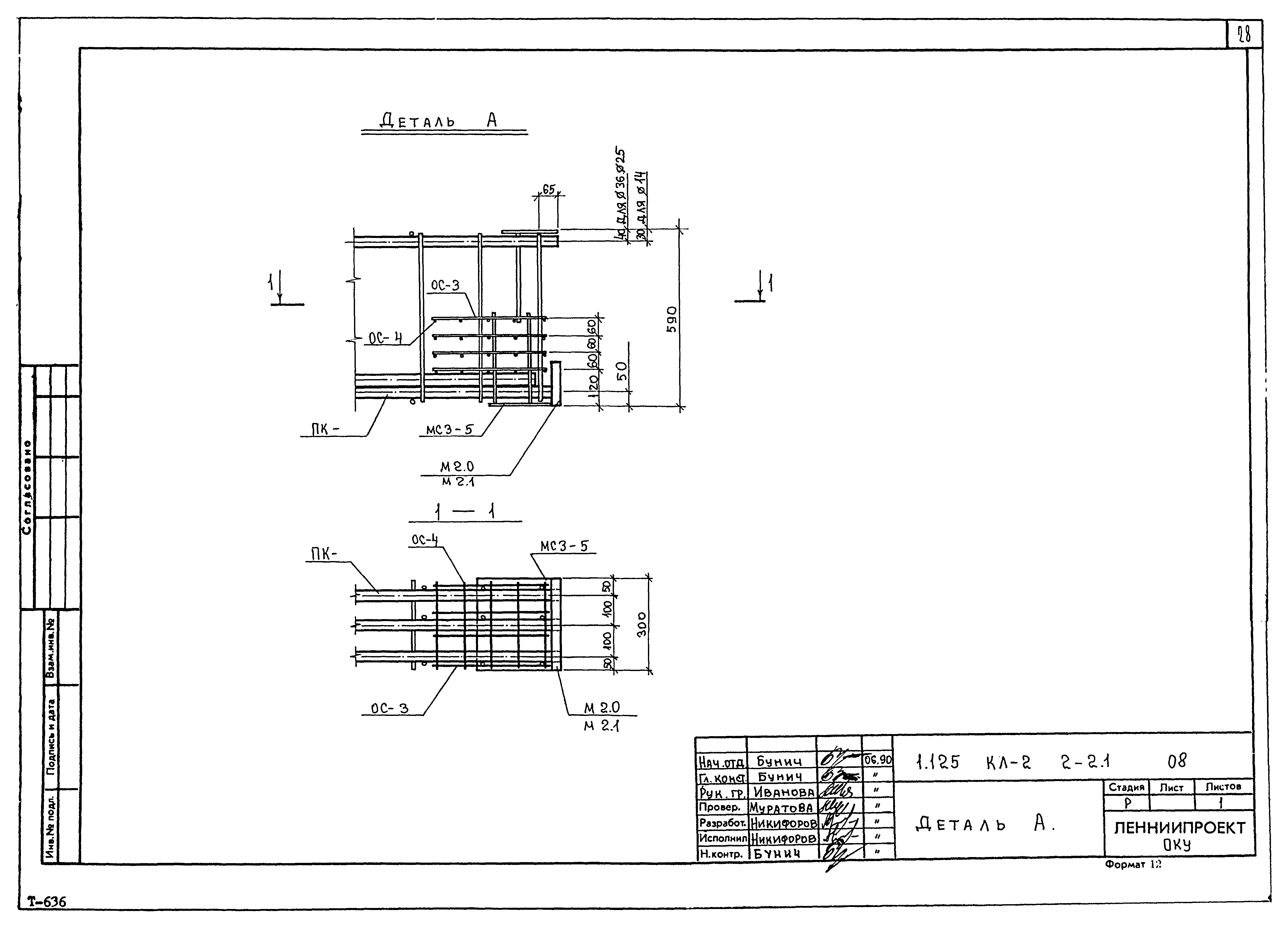
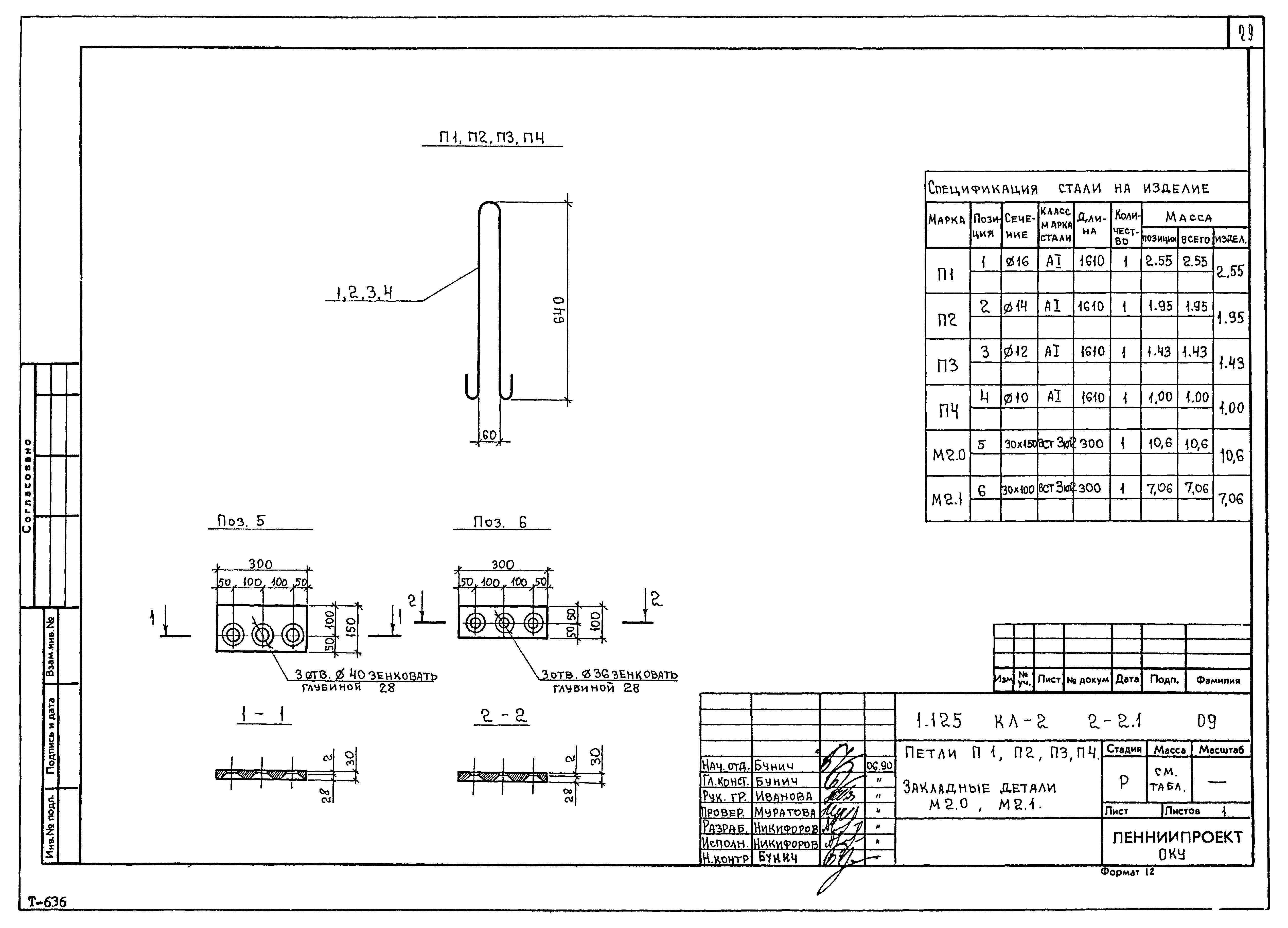
Скачать Серия 1.125 КЛ-2 Выпуск 2-2.1. Арматурные изделия балок подстенных сечением 30х60 см с рабочей арматурой Ф25АIII, Ф32АIII, Ф36АIIIДата актуализации: 01.01.2021 Серия 1.125 КЛ-2
Выпуск 2-2.1. Арматурные изделия балок подстенных сечением 30х60 см с рабочей арматурой Ф25АIII, Ф32АIII, Ф36АIII| Обозначение: | Серия 1.125 КЛ-2 | | Обозначение англ: | Series 1.125 КЛ-2 | | Статус: | действует | | Название рус.: | Выпуск 2-2.1. Арматурные изделия балок подстенных сечением 30х60 см с рабочей арматурой Ф25АIII, Ф32АIII, Ф36АIII | | Дата добавления в базу: | 01.01.2019 | | Дата актуализации: | 01.01.2021 | | Дата введения: | 20.06.1990 | | Разработан: | Ленниипроект
| | Утверждён: | 20.06.1990 Ленниипроект (59-у)
|
                            
|