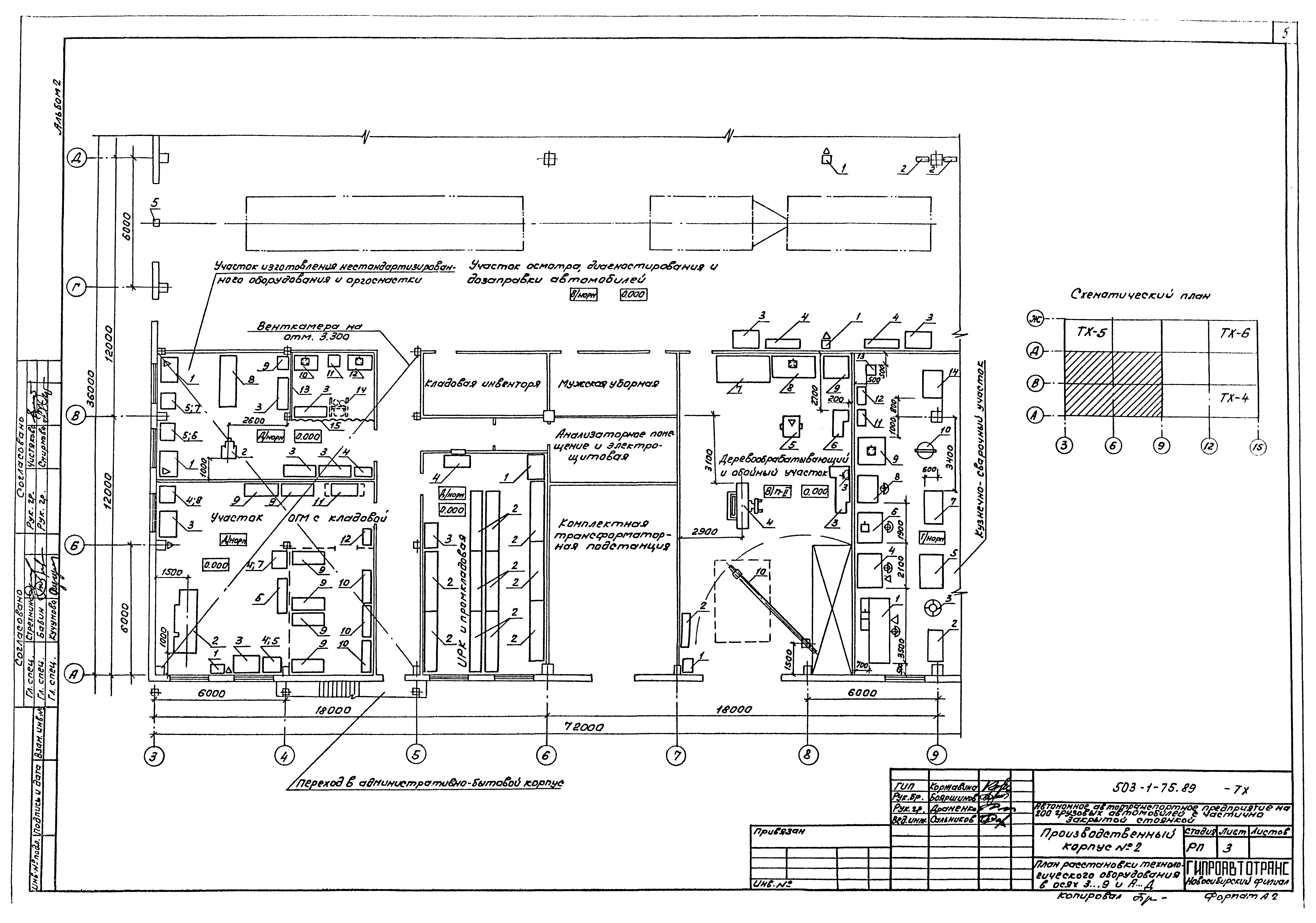
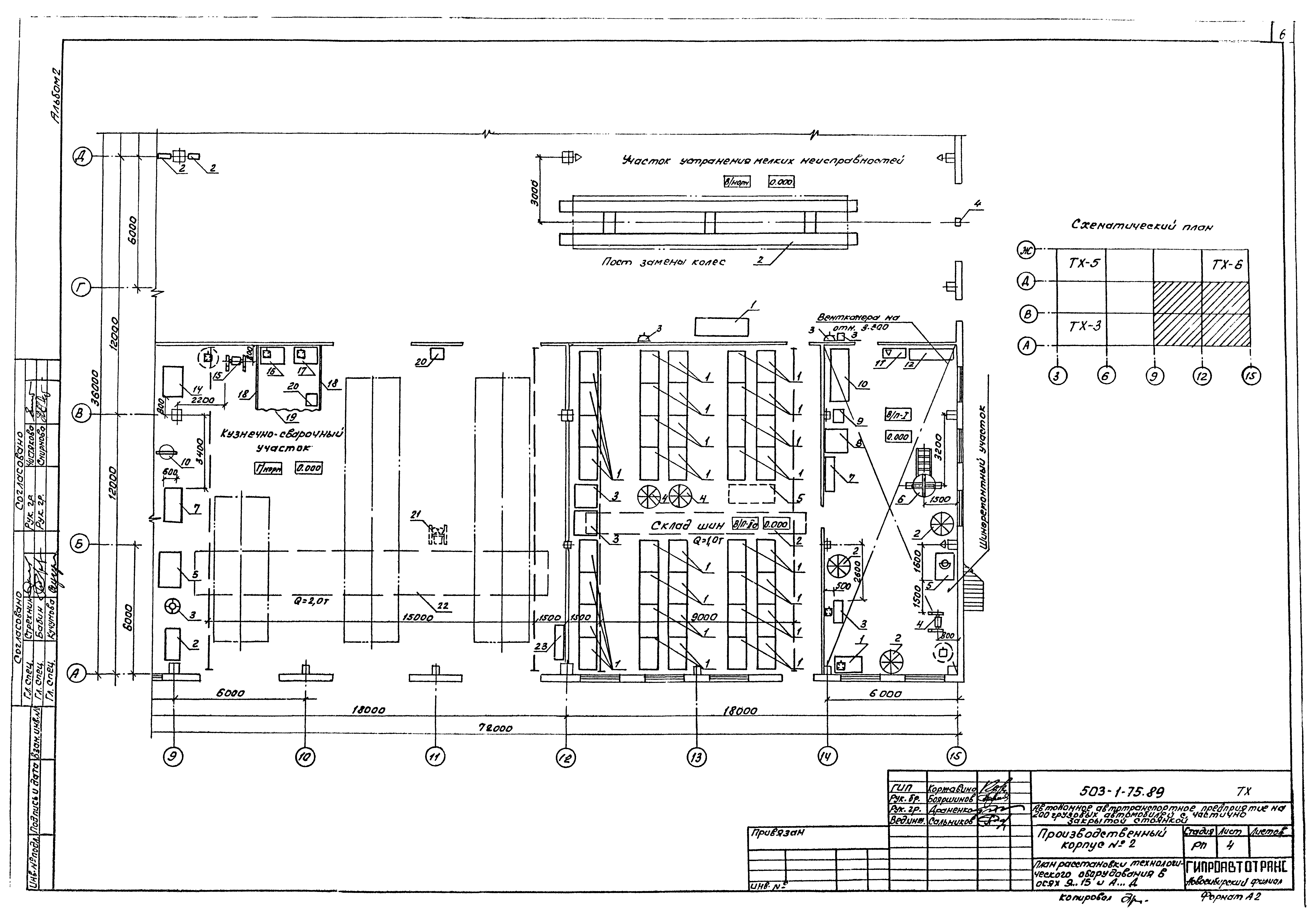
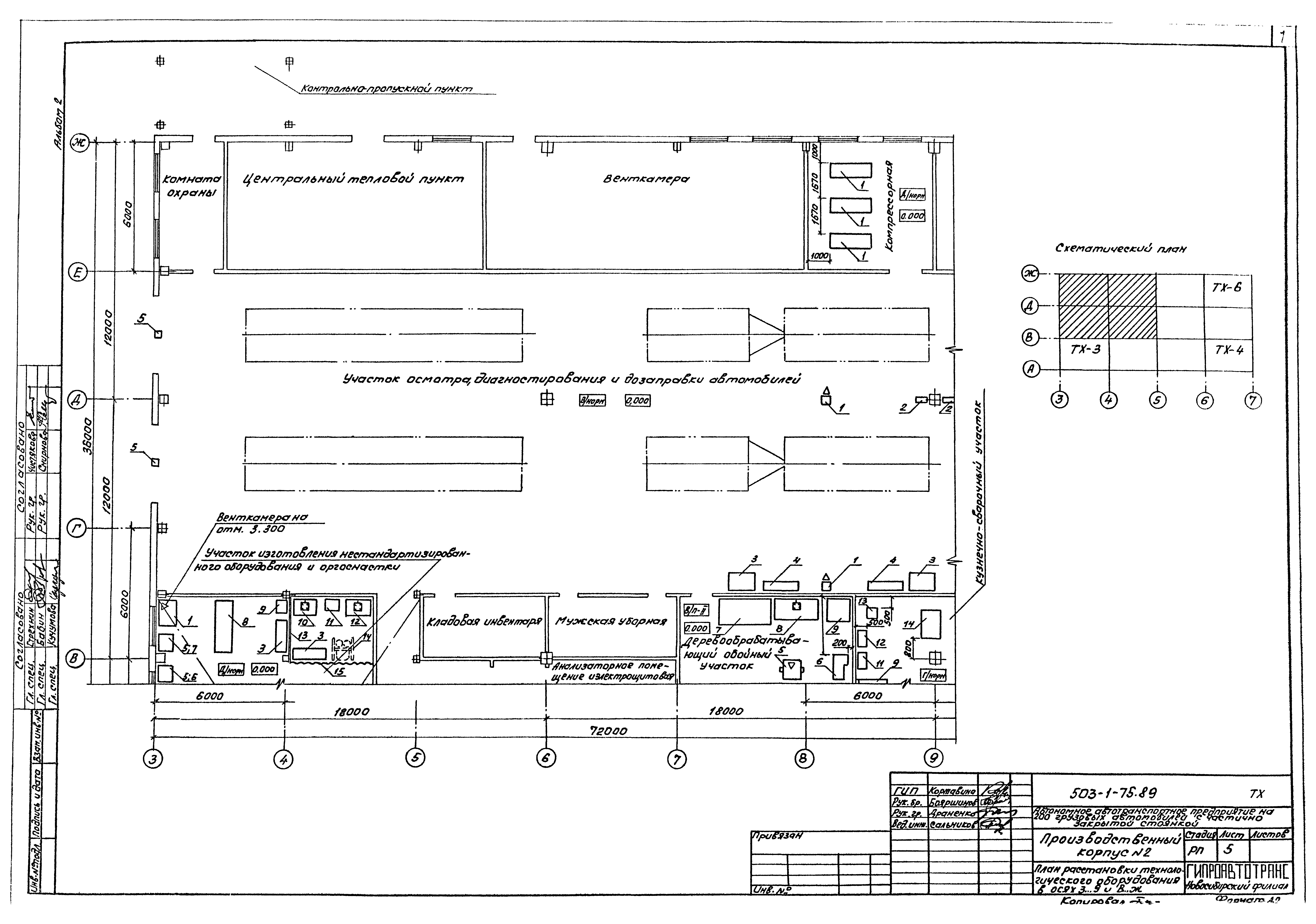
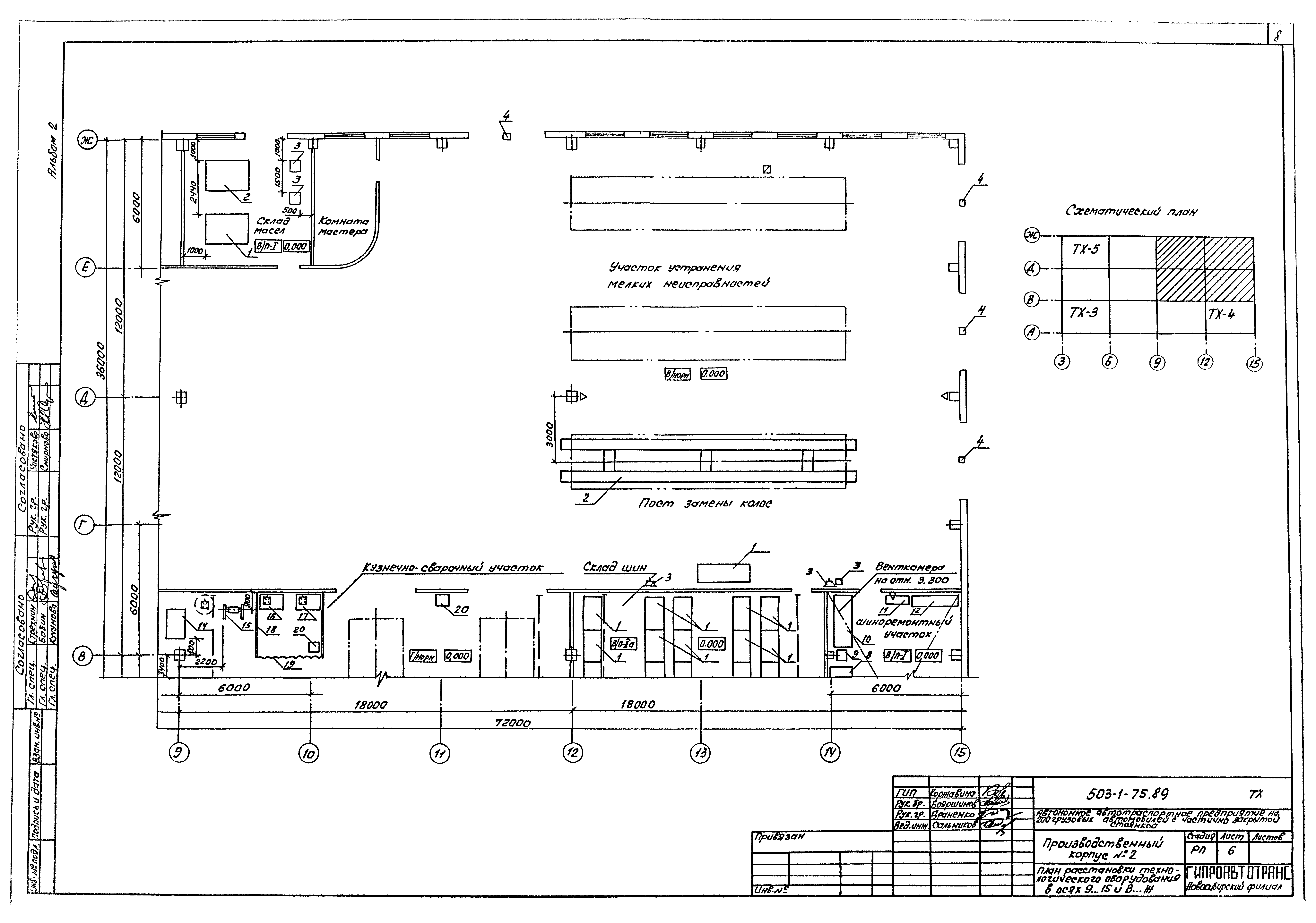
Скачать Типовой проект 503-1-75.89 Альбом 2. Технология производства. Силовое электрооборудование. Электрическое освещение. Связь и сигнализация. Автоматическая пожарная сигнализацияДата актуализации: 01.01.2021 Типовой проект 503-1-75.89
Альбом 2. Технология производства. Силовое электрооборудование. Электрическое освещение. Связь и сигнализация. Автоматическая пожарная сигнализация| Обозначение: | Типовой проект 503-1-75.89 | | Обозначение англ: | 503-1-75.89 | | Статус: | действует | | Название рус.: | Альбом 2. Технология производства. Силовое электрооборудование. Электрическое освещение. Связь и сигнализация. Автоматическая пожарная сигнализация | | Дата добавления в базу: | 01.01.2019 | | Дата актуализации: | 01.01.2021 | | Дата введения: | 27.02.1989 | | Разработан: | Гипроавтотранс
| | Утверждён: | 27.02.1989 Минавтотранс РСФСР (Russian Federation Minavtotrans 2)
| | Издан: | ЦИТП Госстроя СССР (CITP, Gosstroy (USSR) 1990 г. )
|
                                                 
|