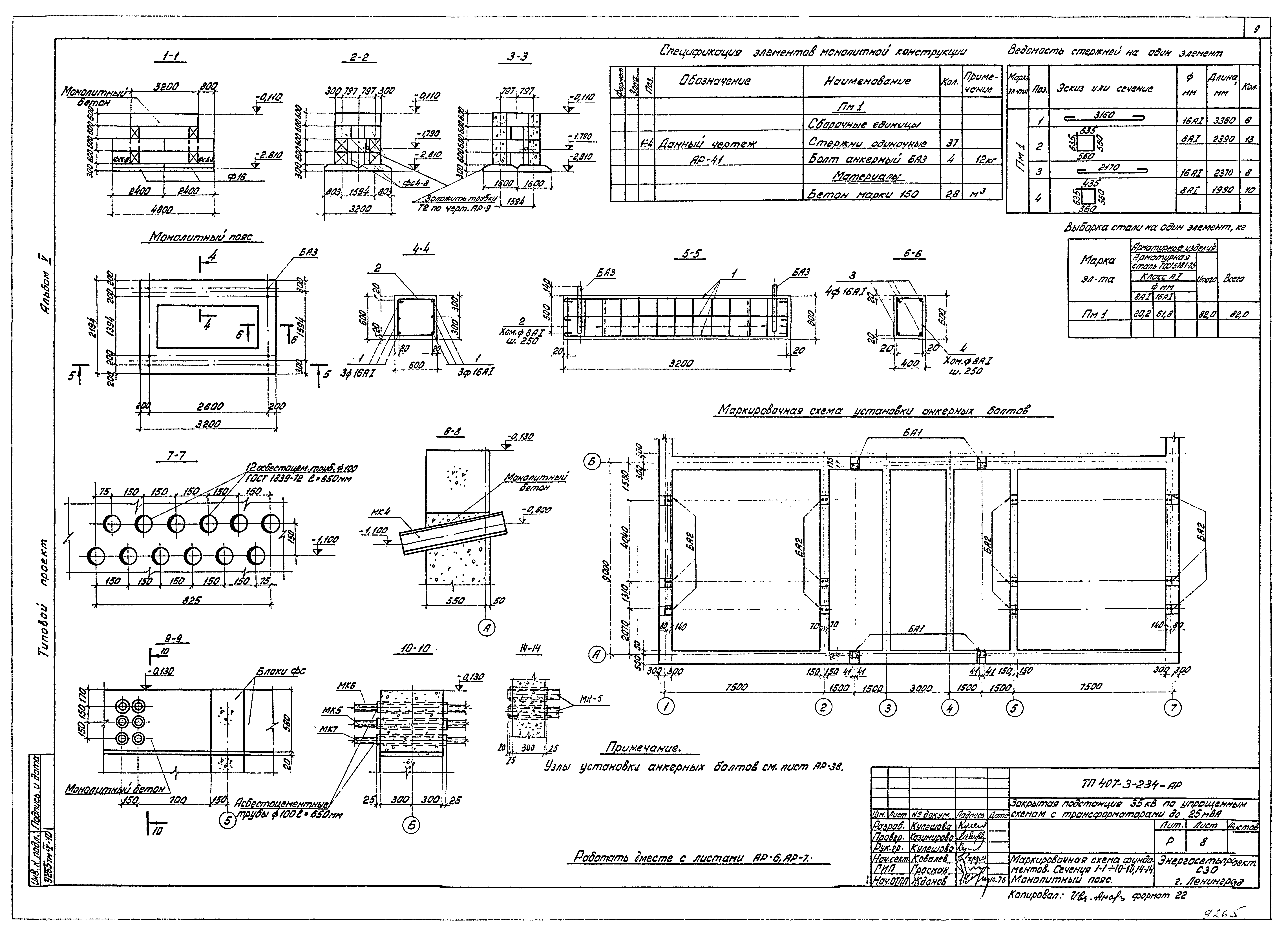
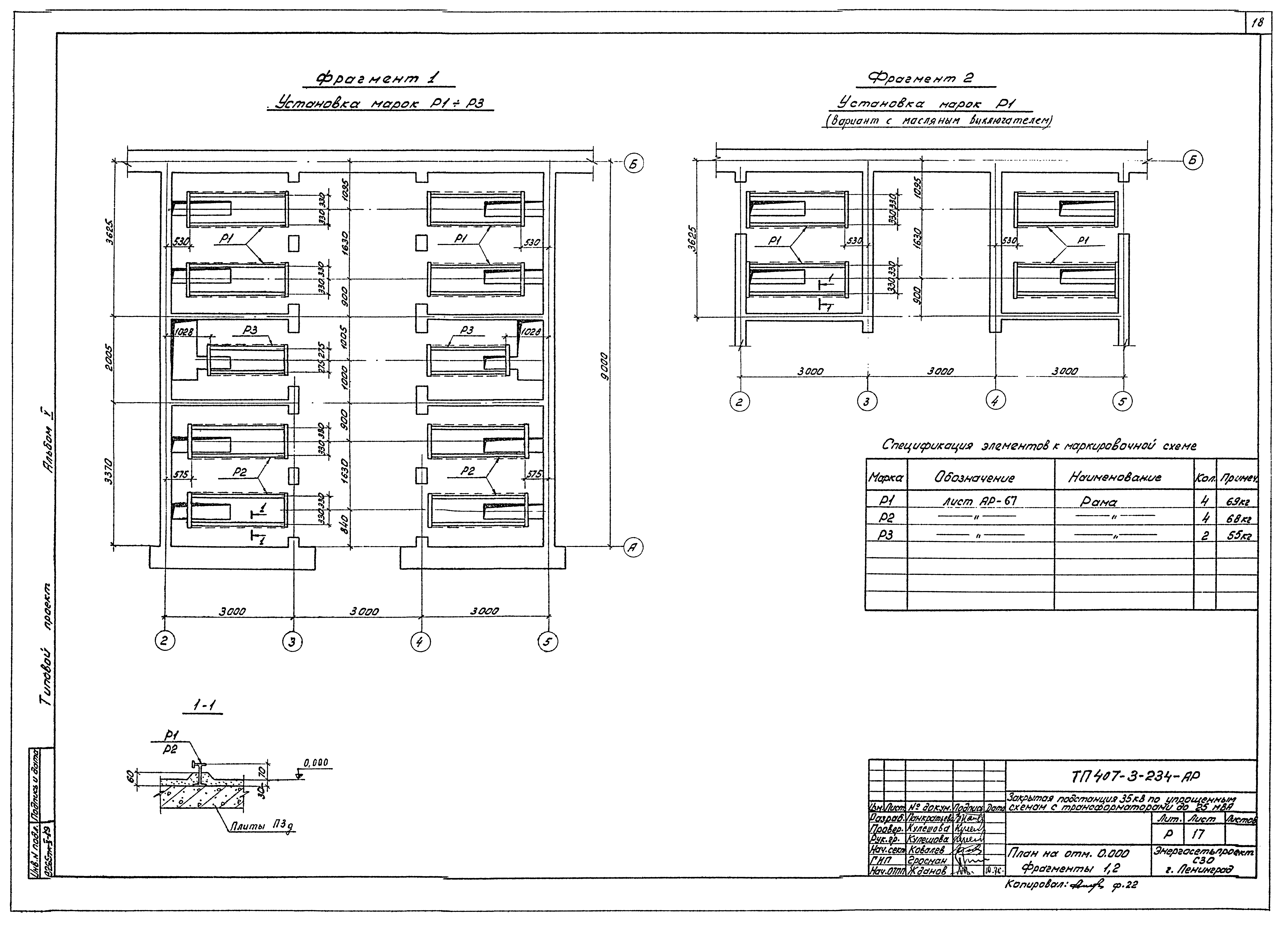
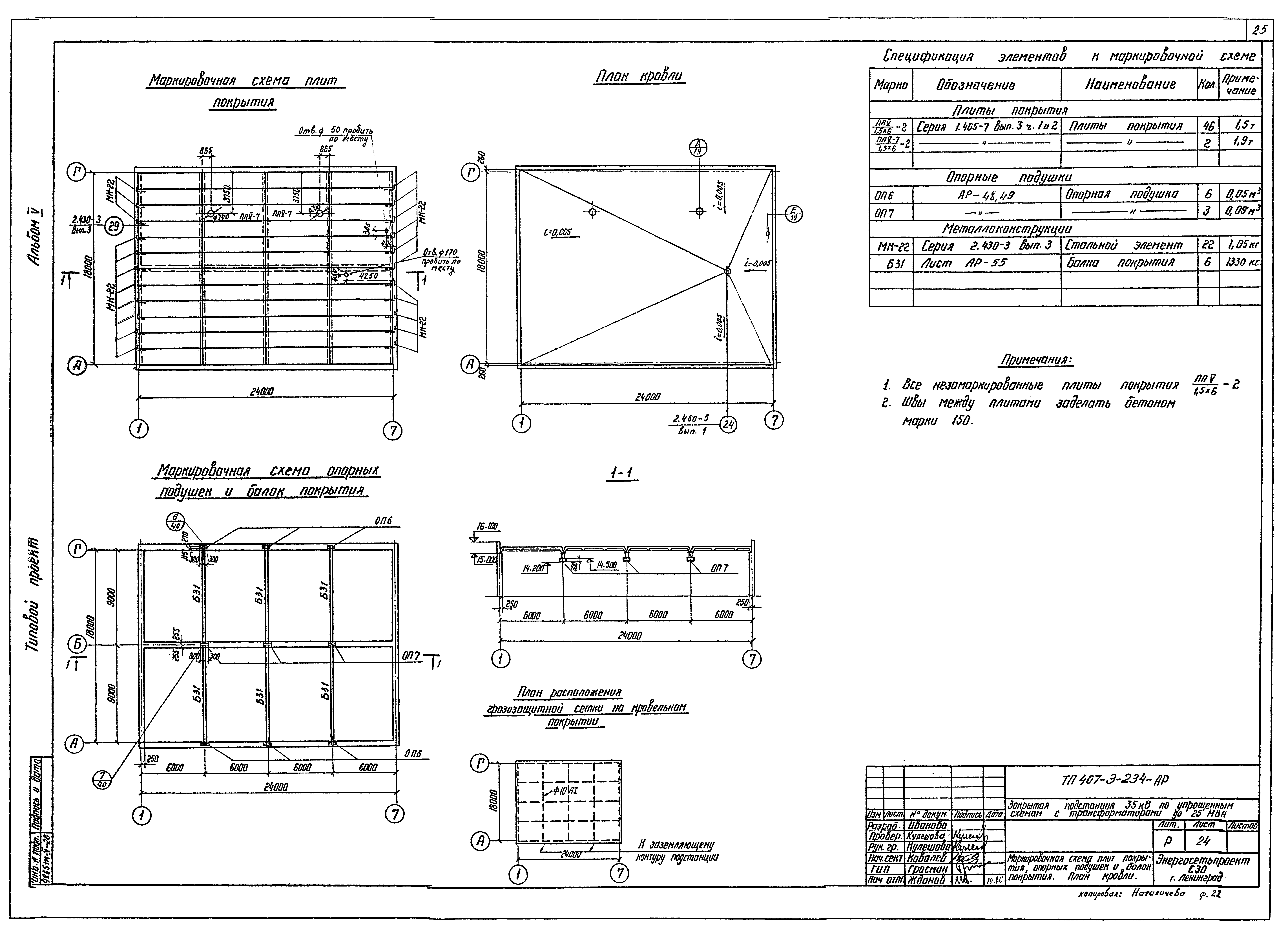
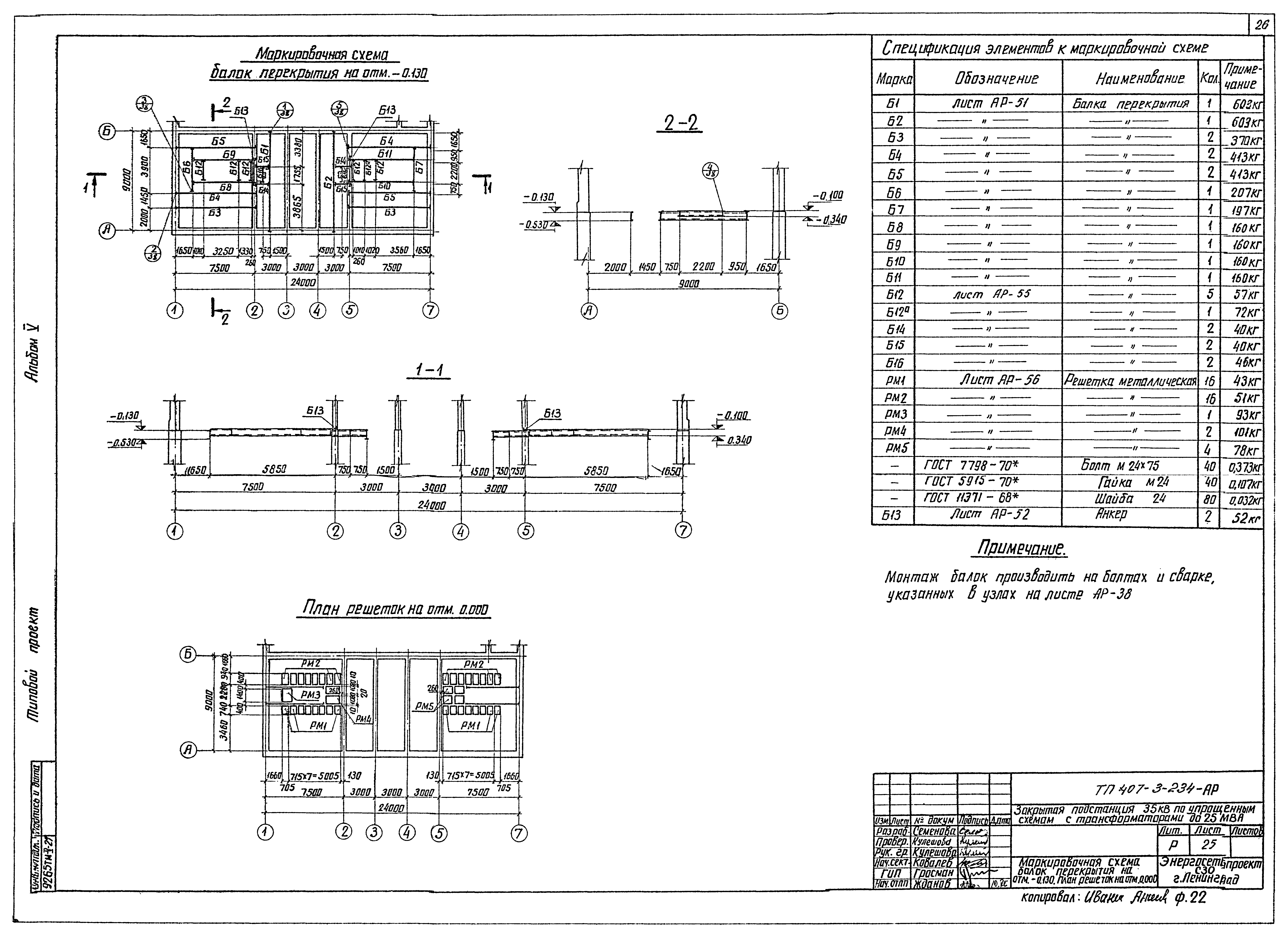
Скачать Типовой проект 407-3-234 Альбом V. Архитектурно-строительная и сантехническая частиДата актуализации: 01.01.2021 Типовой проект 407-3-234
Альбом V. Архитектурно-строительная и сантехническая части| Обозначение: | Типовой проект 407-3-234 | | Обозначение англ: | 407-3-234 | | Статус: | отменен | | Название рус.: | Альбом V. Архитектурно-строительная и сантехническая части | | Дата добавления в базу: | 01.01.2019 | | Дата актуализации: | 01.01.2021 | | Дата введения: | 12.09.1977 | | Дата окончания срока действия: | 01.01.1986 | | Разработан: | Северо-западное отделение института Энергосетьпроект
| | Утверждён: | 15.04.1976 Минэнерго СССР (USSR Minenergo 87)
|
                                                                                                   
|