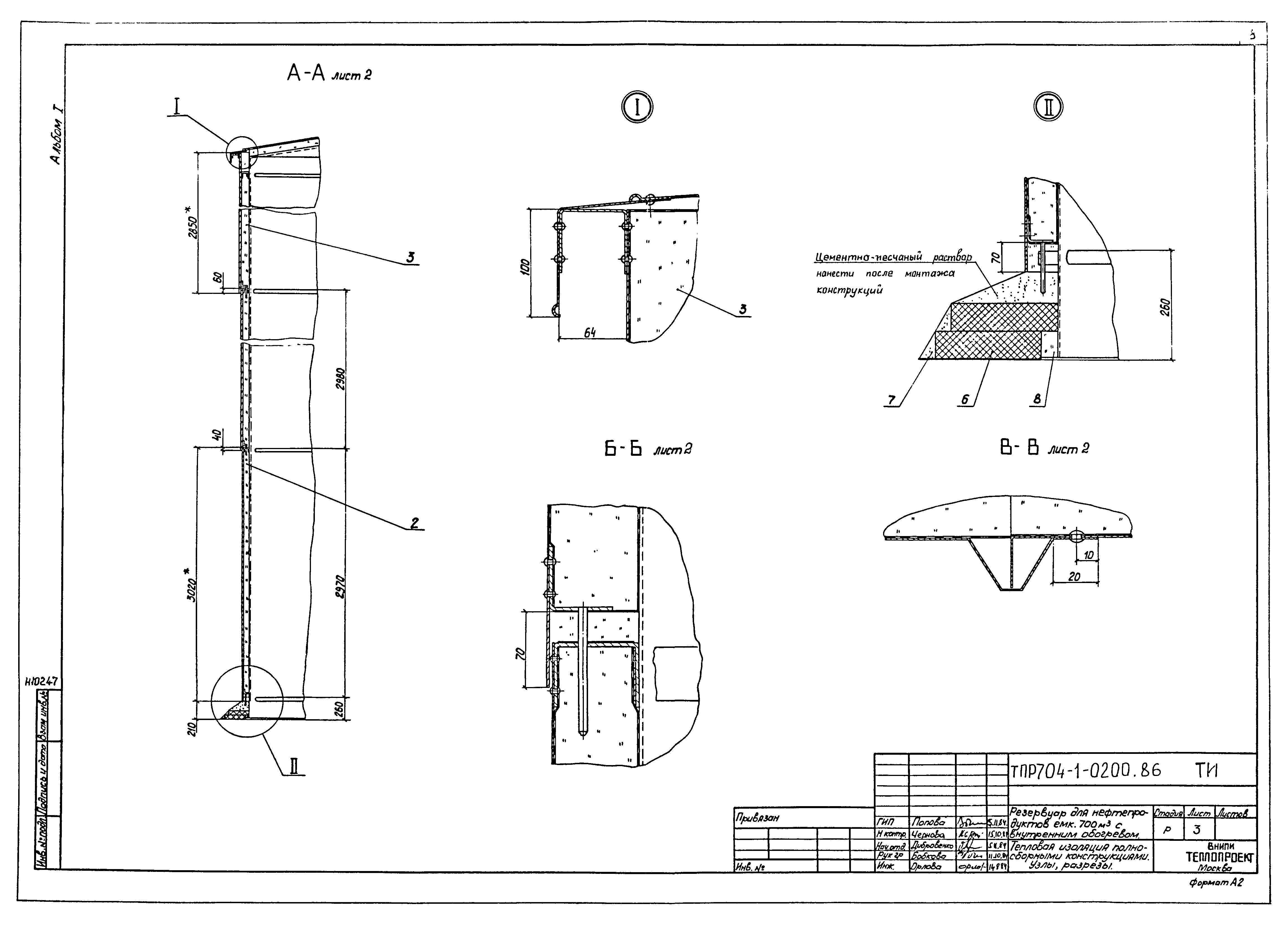
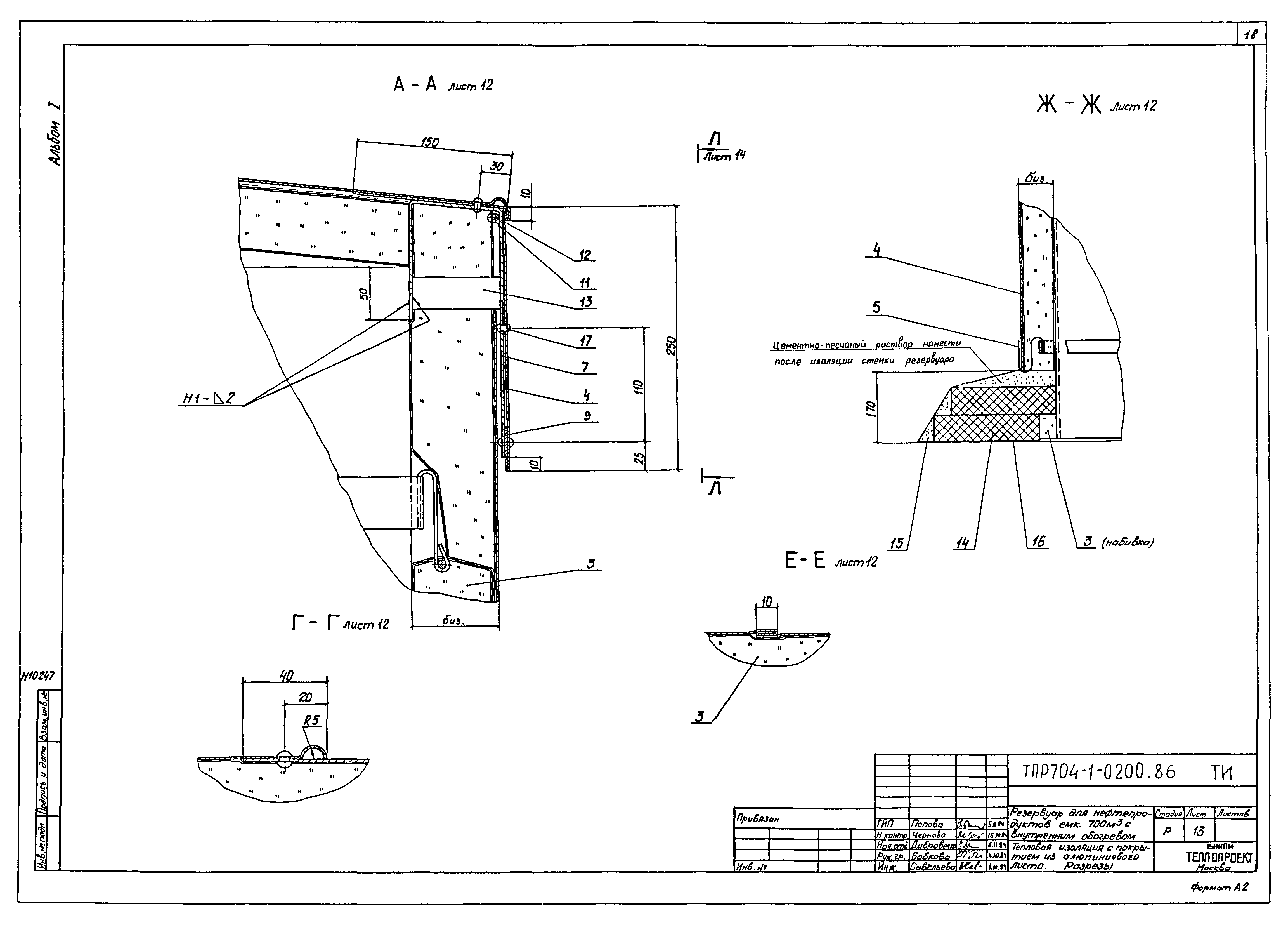
Скачать Типовые проектные решения 704-1-0200.86 Альбом I. Пояснительная записка. Рабочие чертежиДата актуализации: 01.01.2021
|
| Обозначение: | Типовые проектные решения 704-1-0200.86 |
| Обозначение англ: | 704-1-0200.86 |
| Статус: | действует |
| Название рус.: | Альбом I. Пояснительная записка. Рабочие чертежи |
| Дата добавления в базу: | 01.01.2019 |
| Дата актуализации: | 01.01.2021 |
| Дата введения: | 21.05.1985 |
| Разработан: | ВНИПИТеплопроект |
| Утверждён: | 21.05.1985 Минмонтажспецстрой СССР (USSR Minmontazhspetsstroy ) |
| Издан: | ЦИТП Госстроя СССР (CITP, Gosstroy (USSR) 1987 г. ) |
| Заменяет собой: |
|
| Нормативные ссылки: |



























