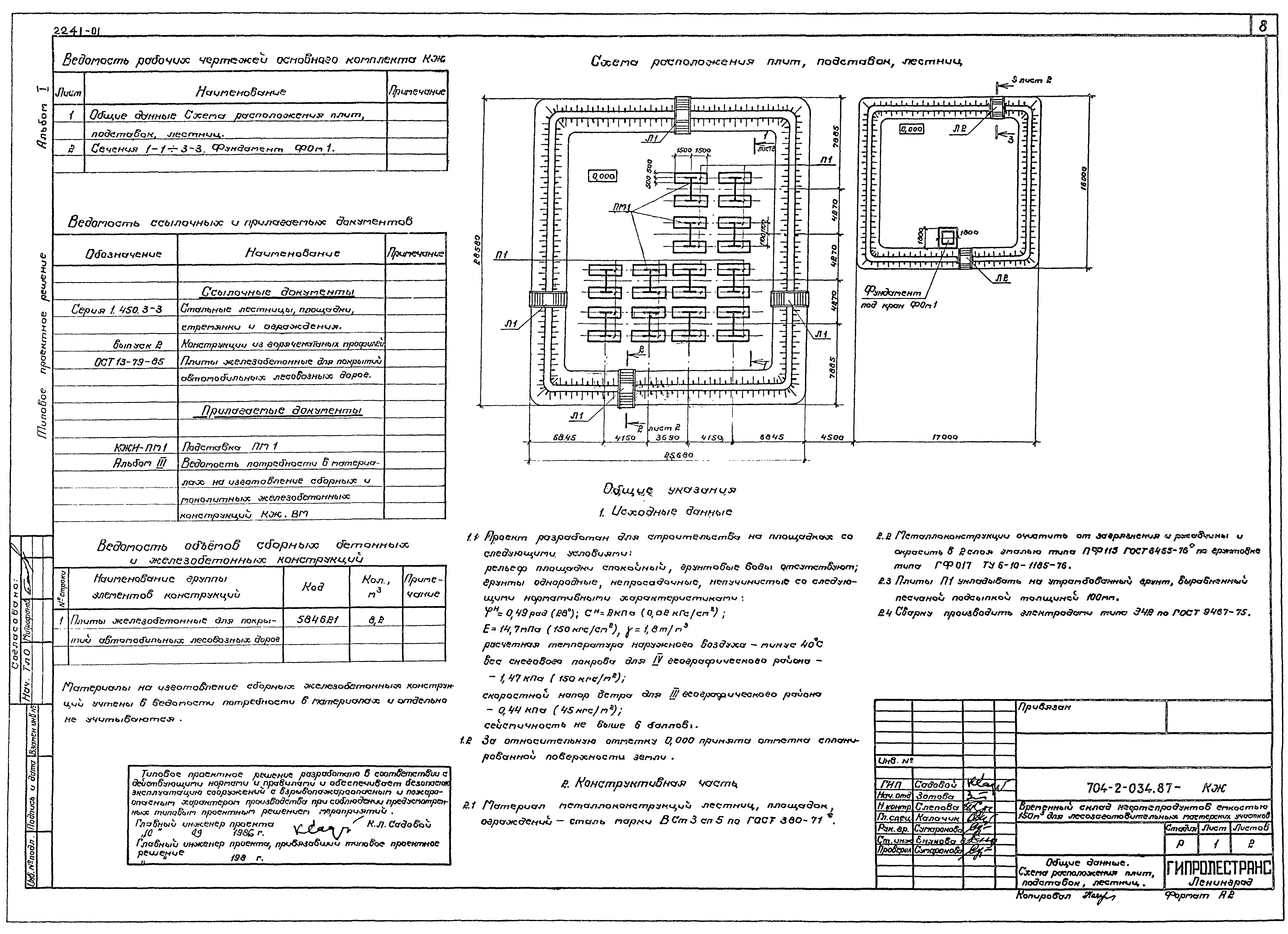
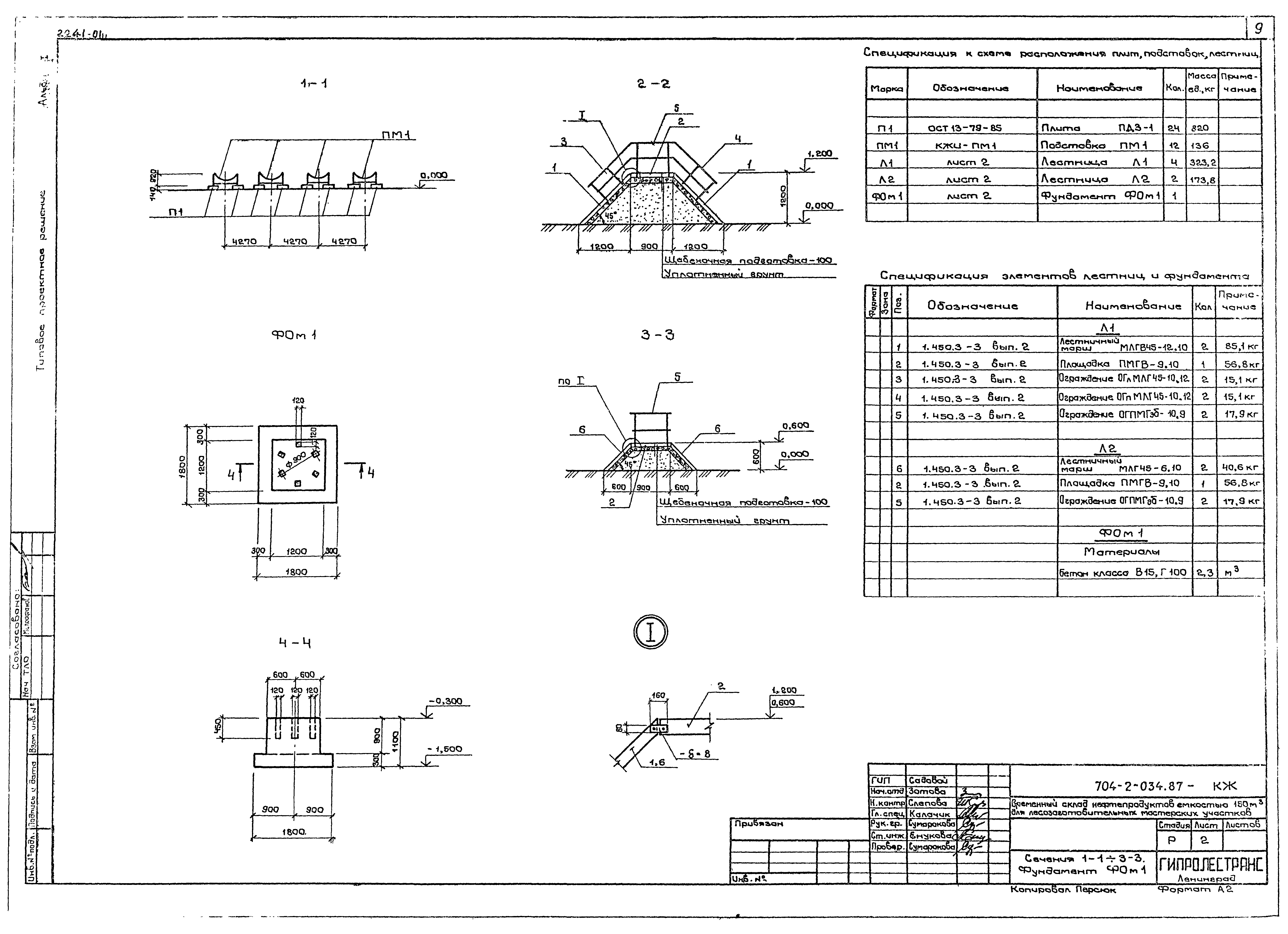
Скачать Типовые проектные решения 704-2-034.87 Альбом I. Пояснительная записка. Технологическая, строительная и электротехническая части, сигнализация. ЧертежиДата актуализации: 01.01.2021 Типовые проектные решения 704-2-034.87
Альбом I. Пояснительная записка. Технологическая, строительная и электротехническая части, сигнализация. Чертежи| Обозначение: | Типовые проектные решения 704-2-034.87 | | Обозначение англ: | 704-2-034.87 | | Статус: | действует | | Название рус.: | Альбом I. Пояснительная записка. Технологическая, строительная и электротехническая части, сигнализация. Чертежи | | Дата добавления в базу: | 01.01.2019 | | Дата актуализации: | 01.01.2021 | | Дата введения: | 05.01.1987 | | Разработан: | Гипролестранс
| | Утверждён: | 23.12.1986 Минлесбумпром СССР (USSR Minlesbumprom 221)
| | Издан: | ЦИТП Госстроя СССР (CITP, Gosstroy (USSR) 1988 г. )
| | Заменяет собой: | - Типовой проект 704-01-139
| | Нормативные ссылки: | |
              
|