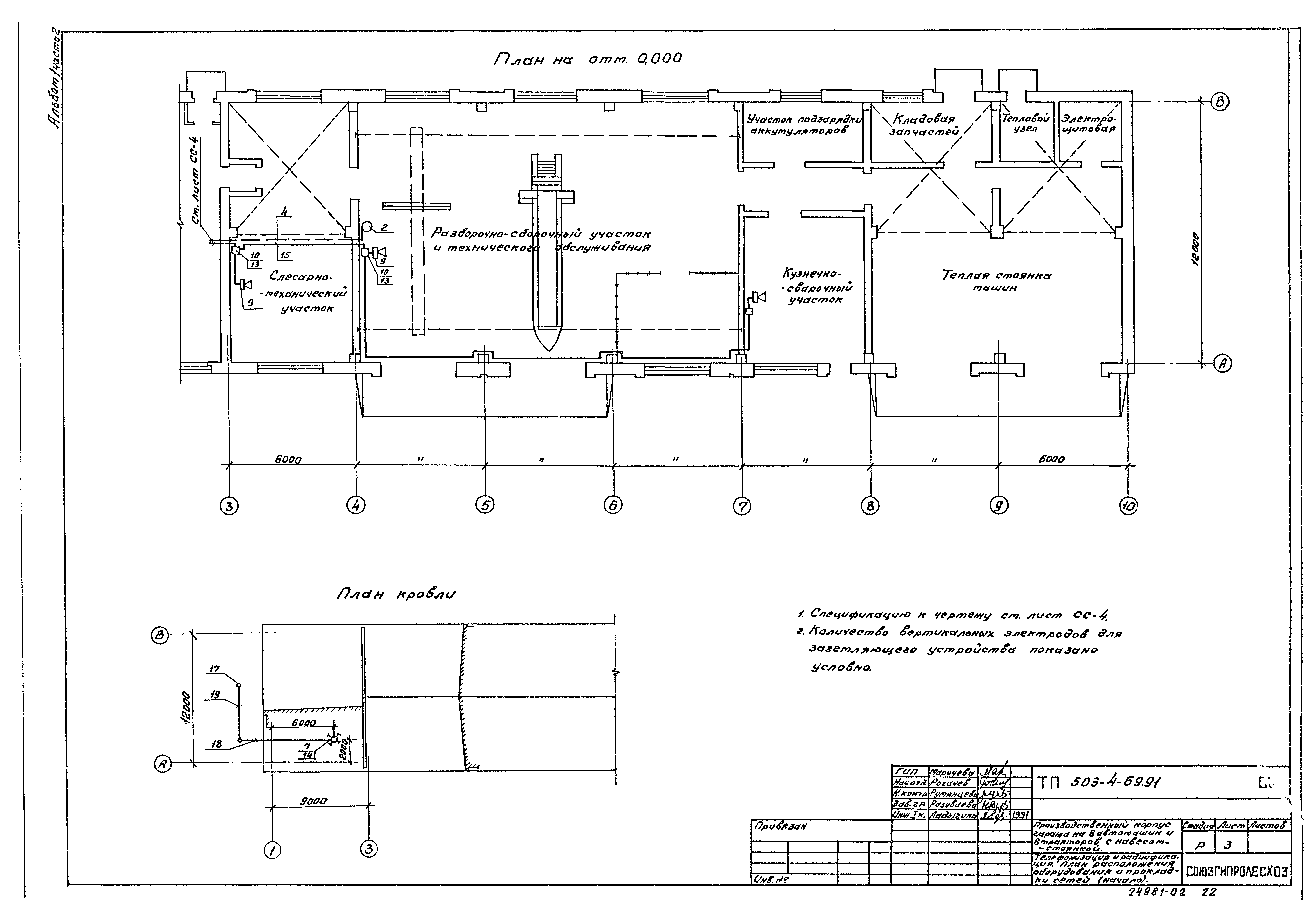
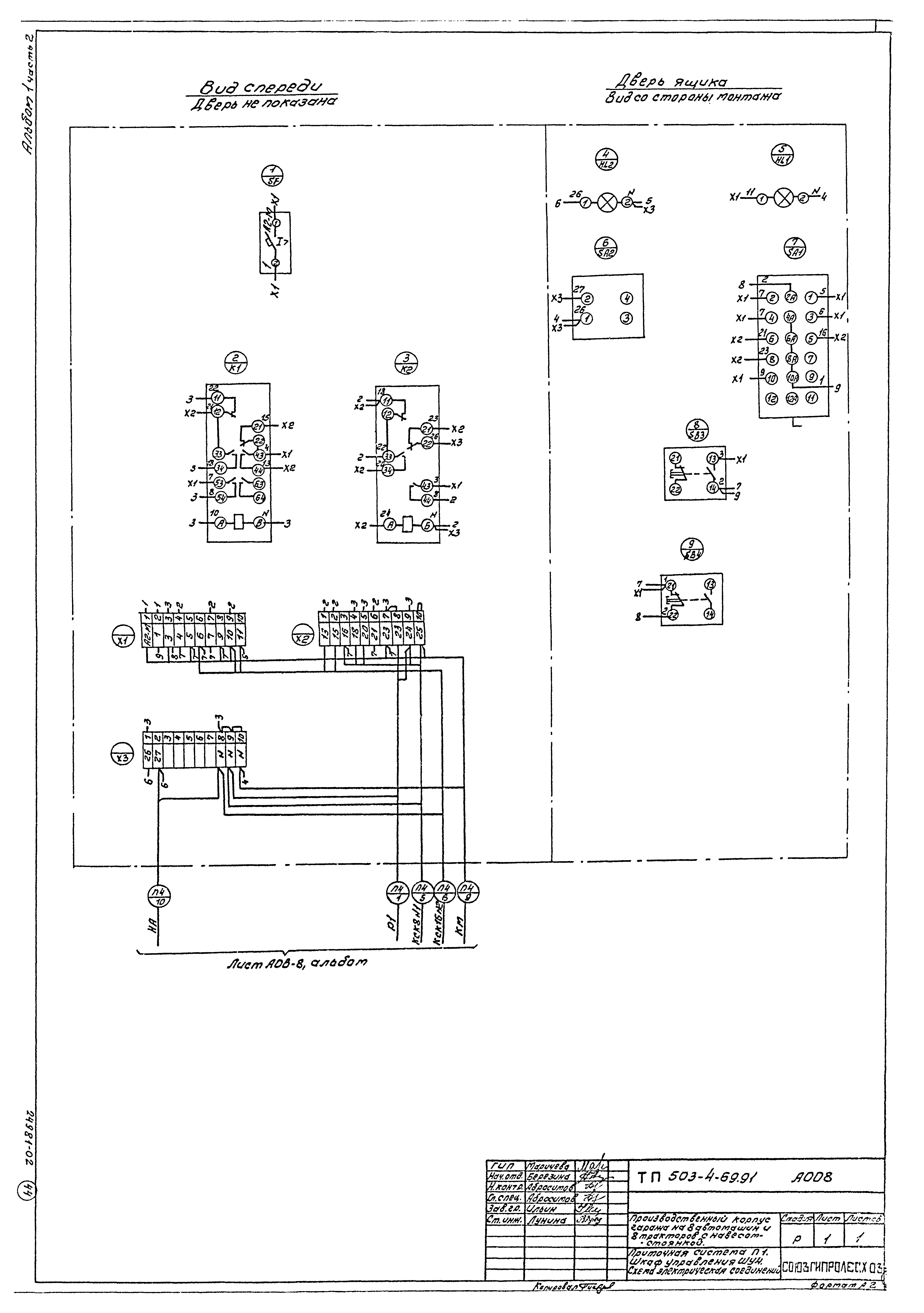
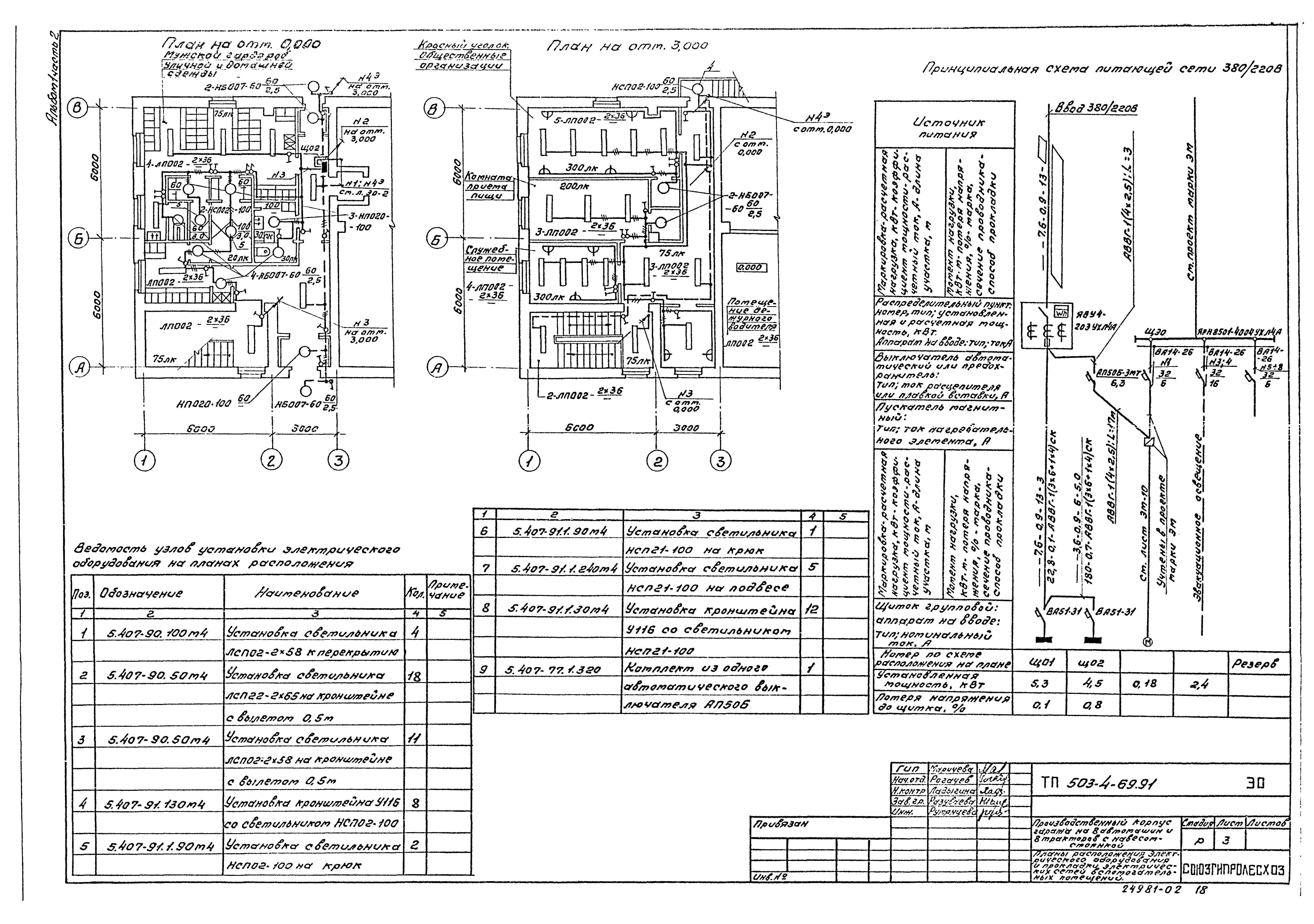
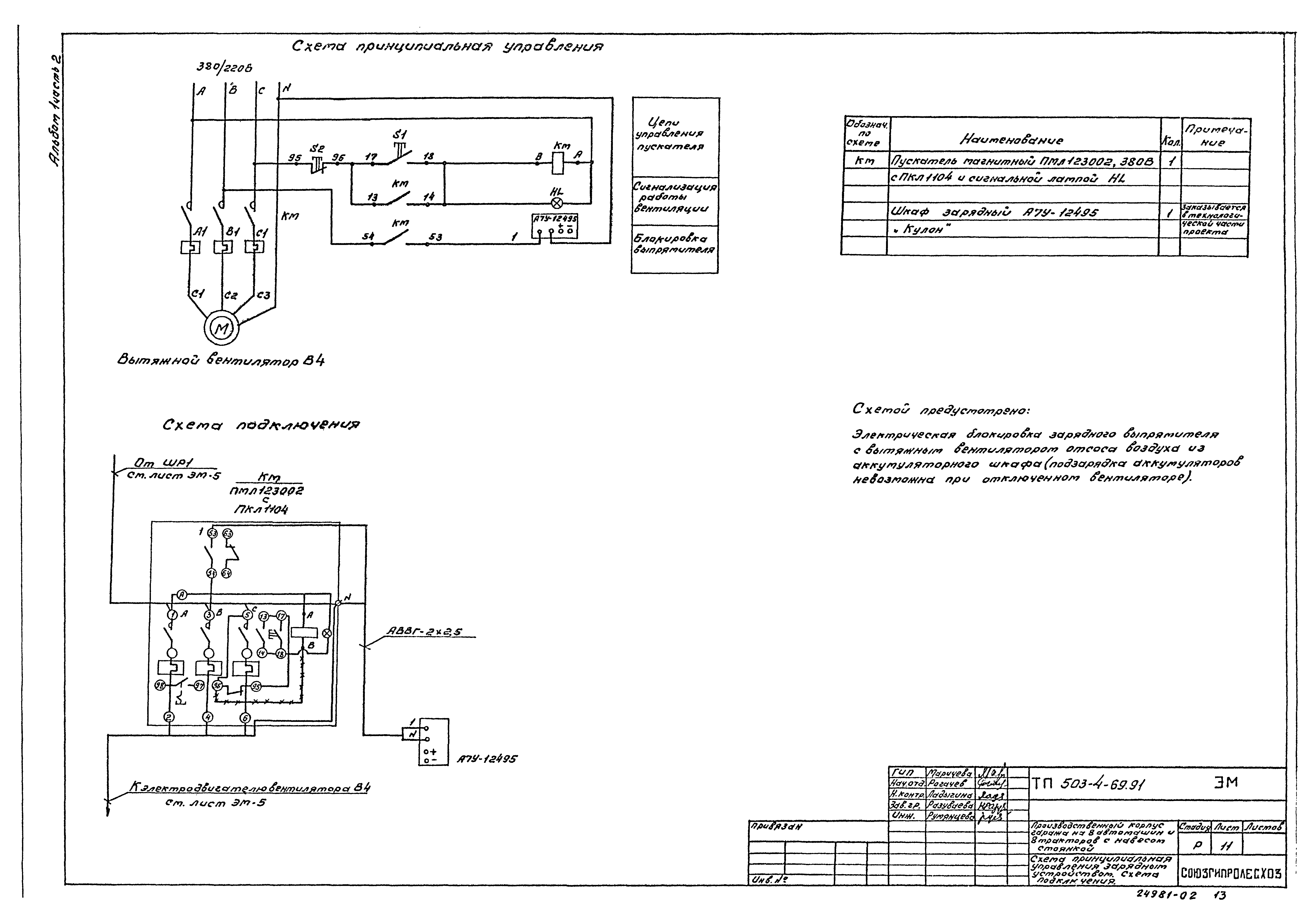
Скачать Типовой проект 503-4-69.91 Альбом 1. Часть 2. Пояснительная записка. Силовое электрооборудование. Электрическое освещение. Связь и сигнализация. Автоматизация санитарно-технических систем. Чертежи заданий заводам-изготовителям

Дата актуализации: 01.01.2021

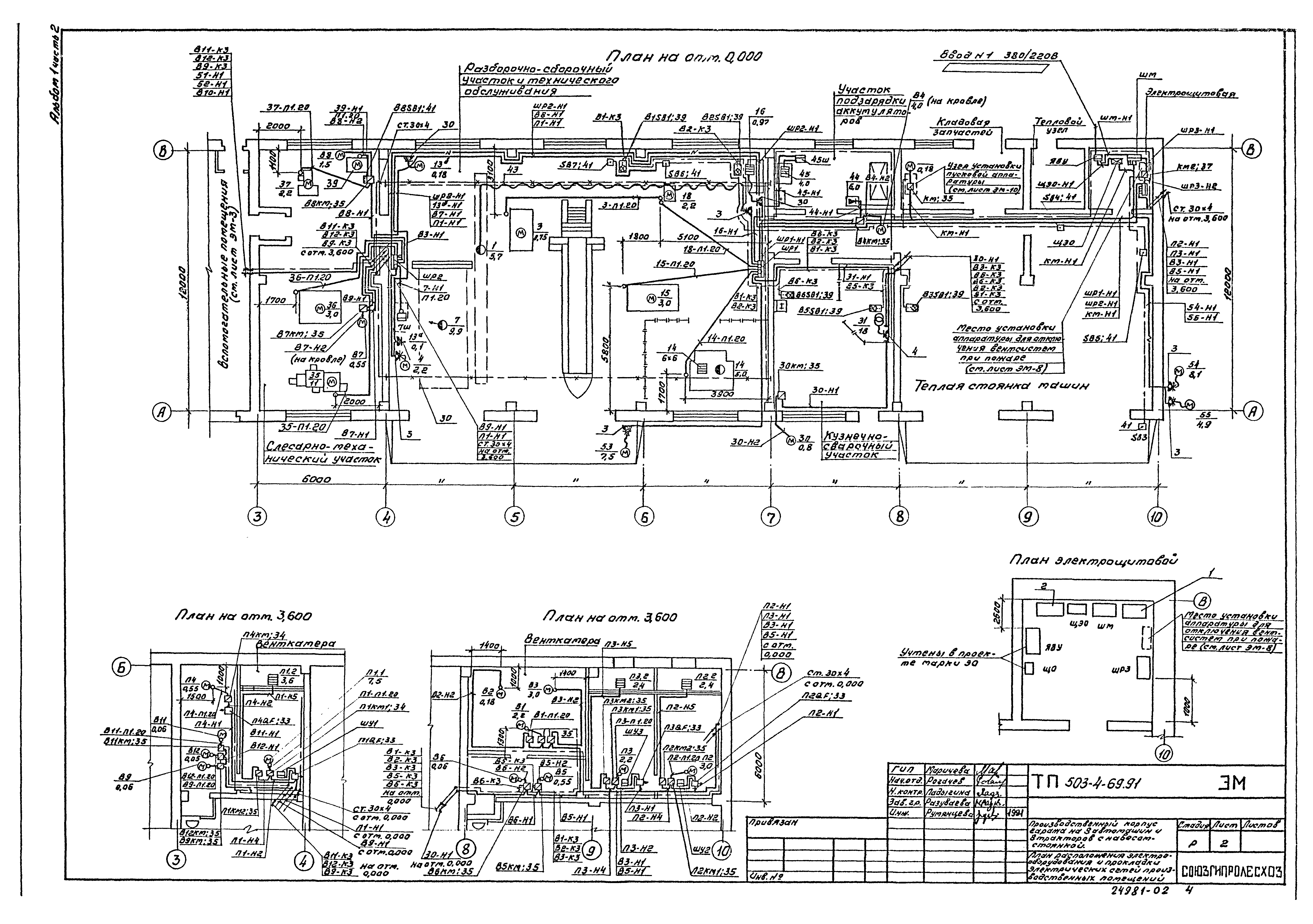
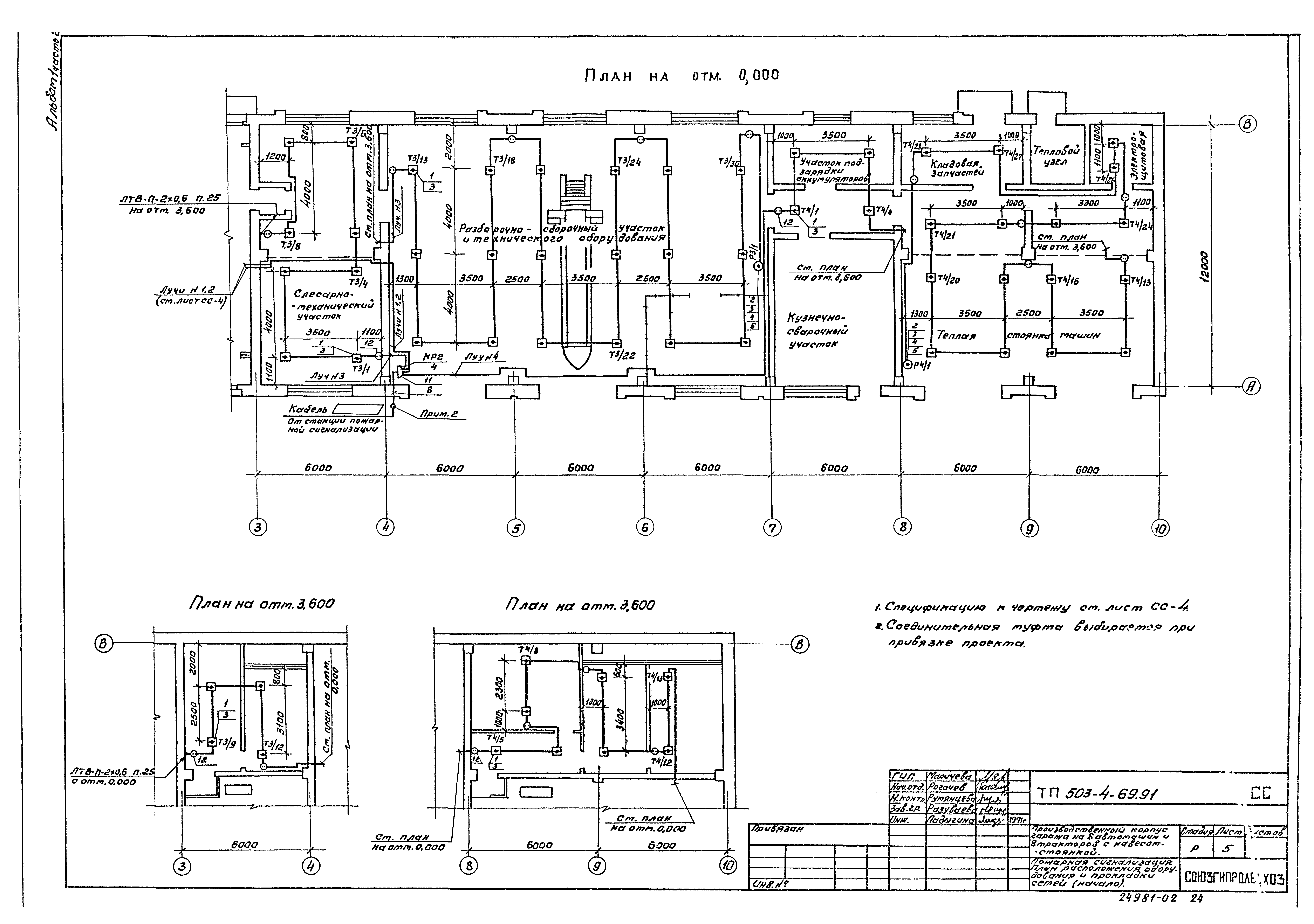
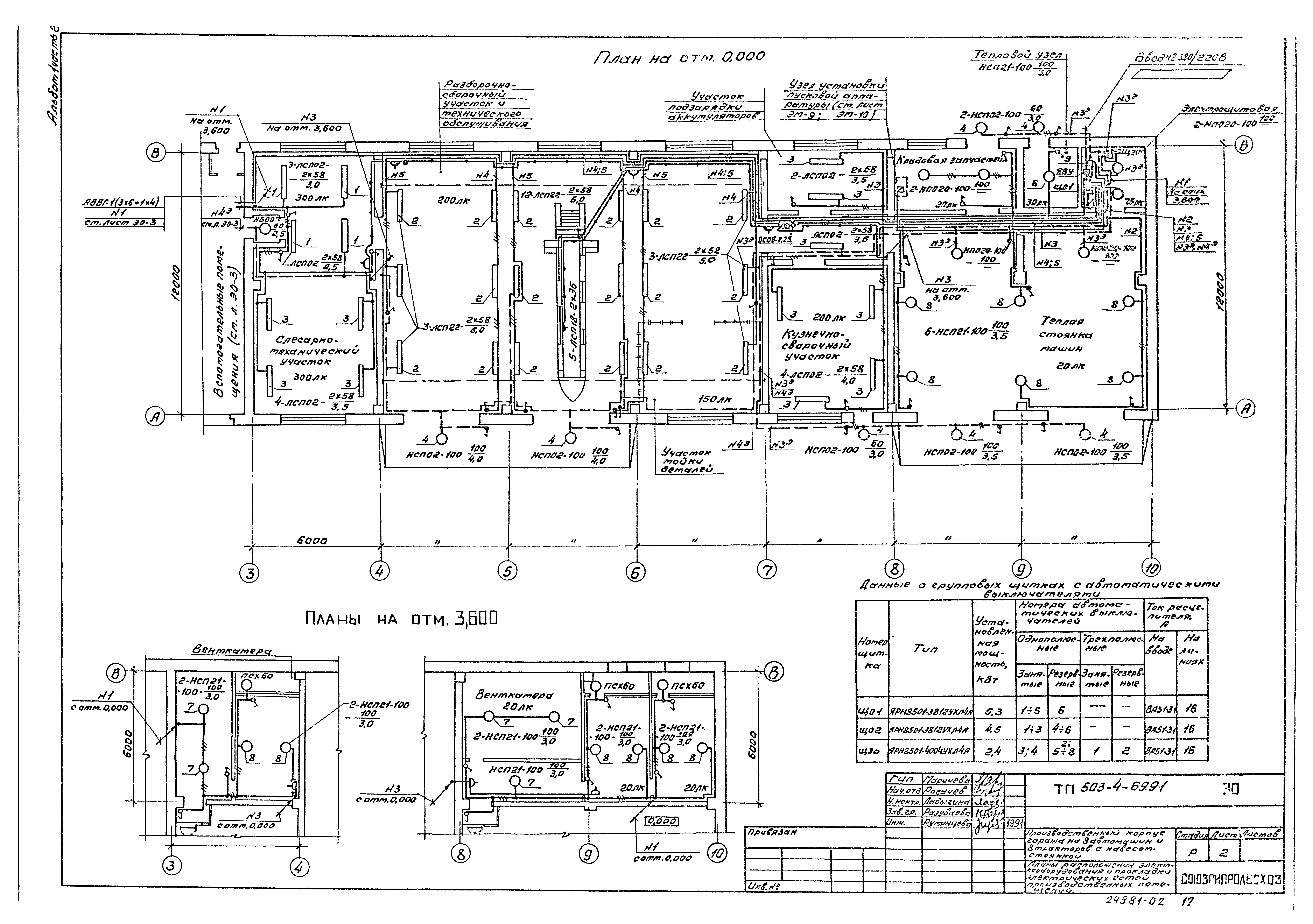
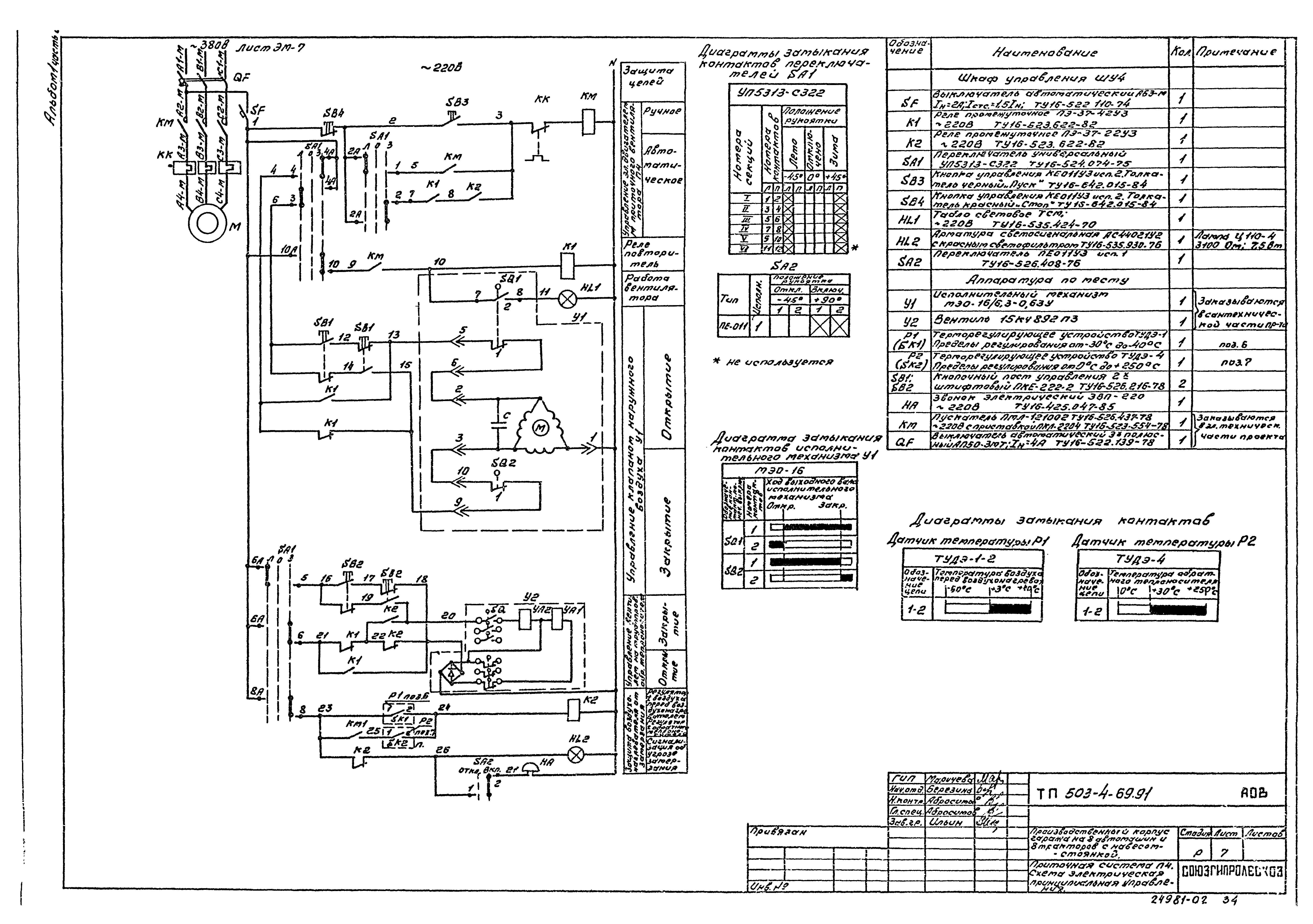
Типовой проект 503-4-69.91

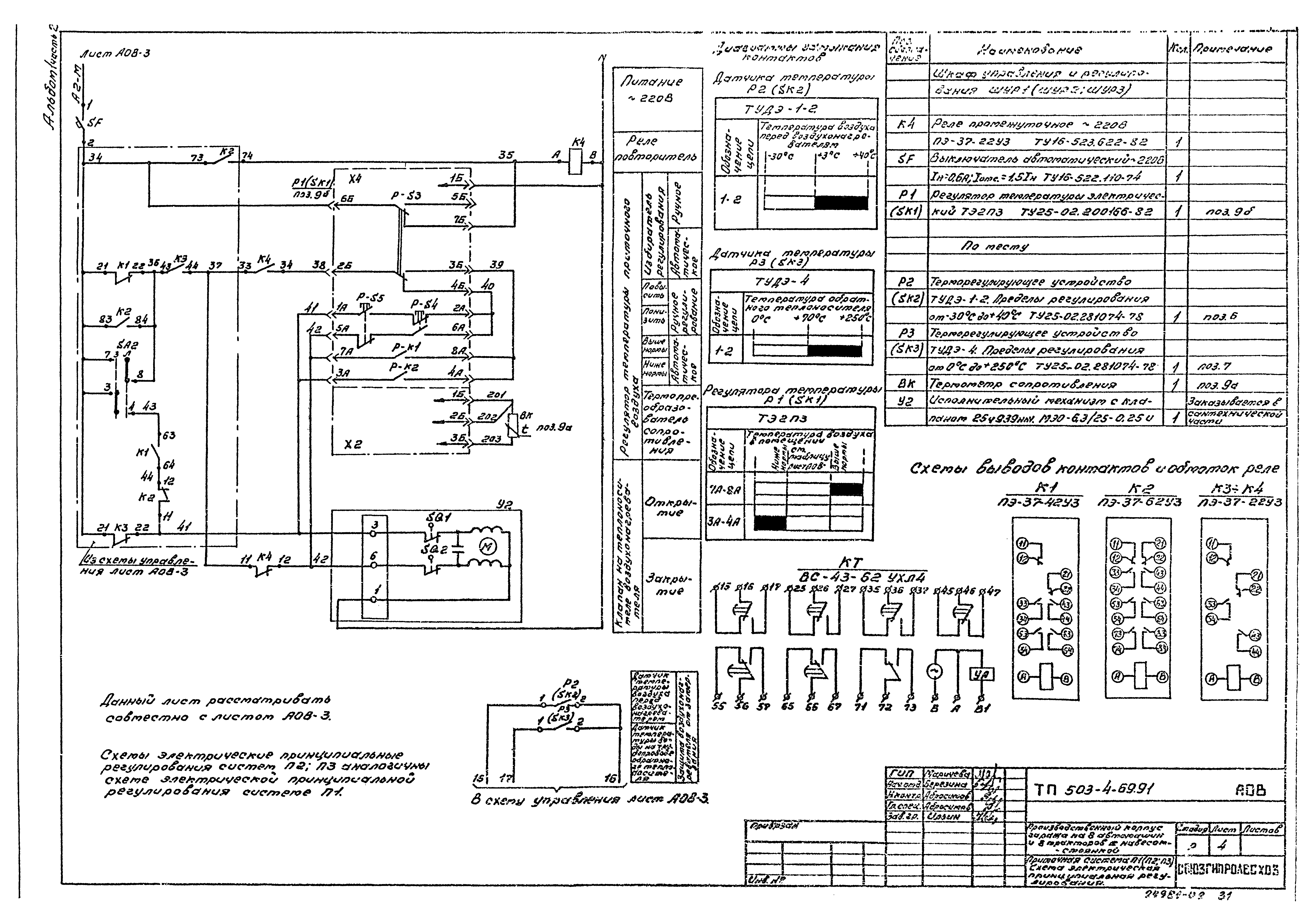
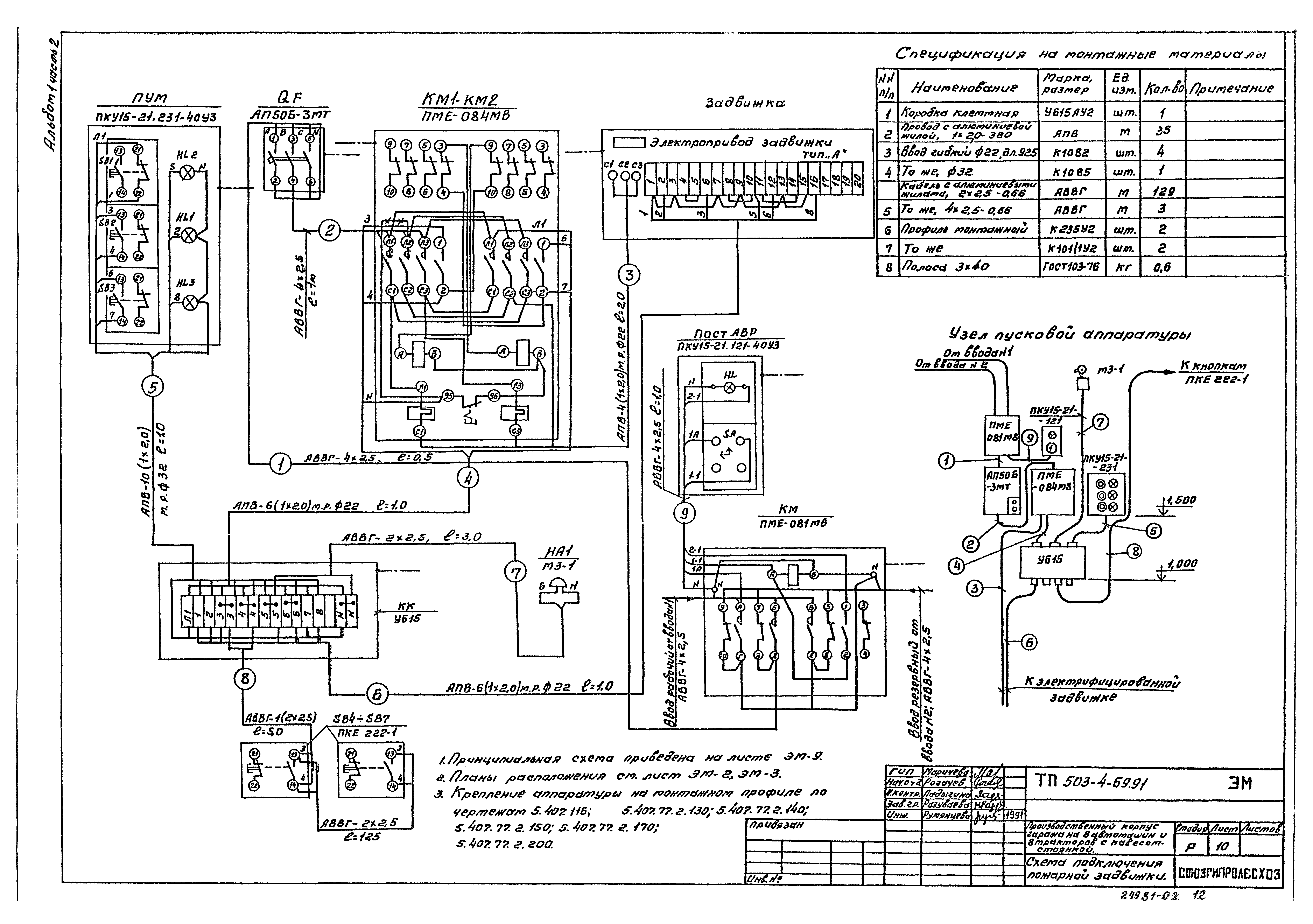
Альбом 1. Часть 2. Пояснительная записка. Силовое электрооборудование. Электрическое освещение. Связь и сигнализация. Автоматизация санитарно-технических систем. Чертежи заданий заводам-изготовителям

Обозначение: Типовой проект 503-4-69.91
Обозначение англ: 503-4-69.91
Статус:не определен законодательством
Название рус.:Альбом 1. Часть 2. Пояснительная записка. Силовое электрооборудование. Электрическое освещение. Связь и сигнализация. Автоматизация санитарно-технических систем. Чертежи заданий заводам-изготовителям
Дата добавления в базу:01.01.2019
Дата актуализации:01.01.2021
Дата введения:05.07.1991
Дата окончания срока действия:30.06.2003
Разработан: Союзгипролесхоз
Утверждён:28.06.1991 Госкомлес СССР (USSR Goskomles 5)
Издан: ЦИТП Госстроя СССР (CITP, Gosstroy (USSR) 1992 г. )
Заменяет собой:
Типовой проект 503-4-69.91Типовой проект 503-4-69.91Типовой проект 503-4-69.91Типовой проект 503-4-69.91Типовой проект 503-4-69.91Типовой проект 503-4-69.91Типовой проект 503-4-69.91Типовой проект 503-4-69.91Типовой проект 503-4-69.91Типовой проект 503-4-69.91Типовой проект 503-4-69.91Типовой проект 503-4-69.91Типовой проект 503-4-69.91Типовой проект 503-4-69.91Типовой проект 503-4-69.91Типовой проект 503-4-69.91Типовой проект 503-4-69.91Типовой проект 503-4-69.91Типовой проект 503-4-69.91Типовой проект 503-4-69.91Типовой проект 503-4-69.91Типовой проект 503-4-69.91Типовой проект 503-4-69.91Типовой проект 503-4-69.91Типовой проект 503-4-69.91Типовой проект 503-4-69.91Типовой проект 503-4-69.91Типовой проект 503-4-69.91Типовой проект 503-4-69.91Типовой проект 503-4-69.91Типовой проект 503-4-69.91Типовой проект 503-4-69.91Типовой проект 503-4-69.91Типовой проект 503-4-69.91Типовой проект 503-4-69.91Типовой проект 503-4-69.91Типовой проект 503-4-69.91Типовой проект 503-4-69.91Типовой проект 503-4-69.91Типовой проект 503-4-69.91Типовой проект 503-4-69.91Типовой проект 503-4-69.91Типовой проект 503-4-69.91Типовой проект 503-4-69.91