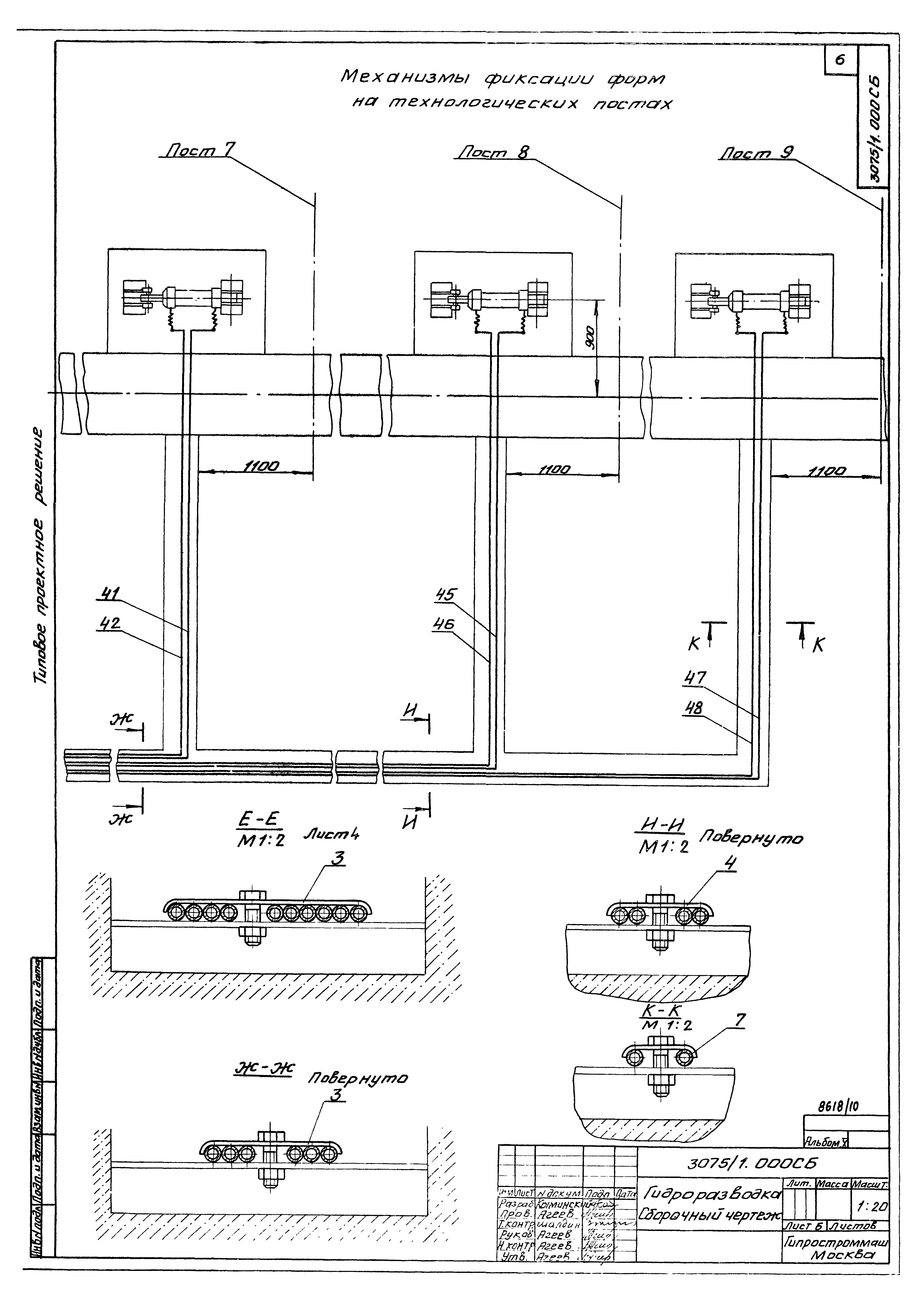
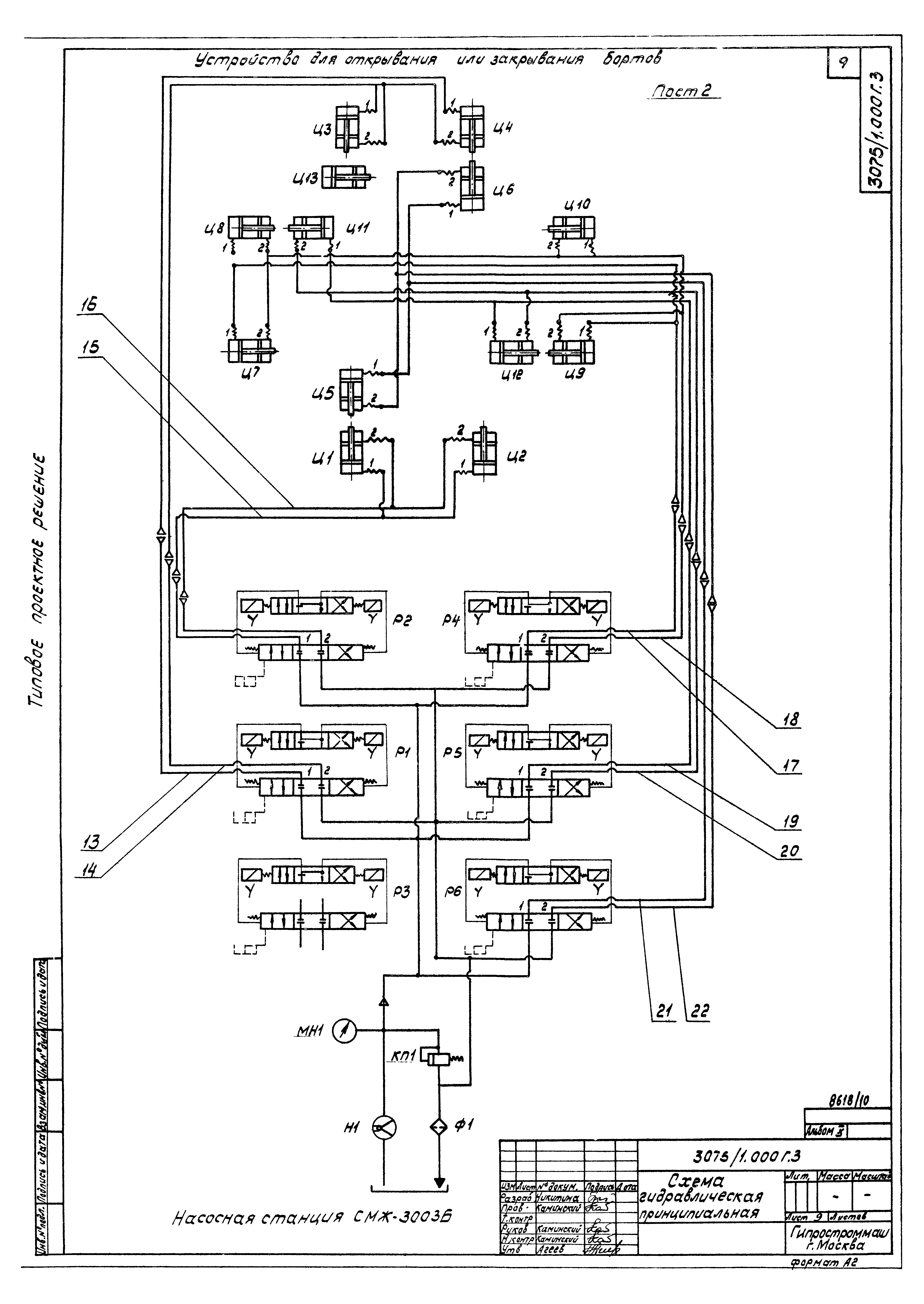
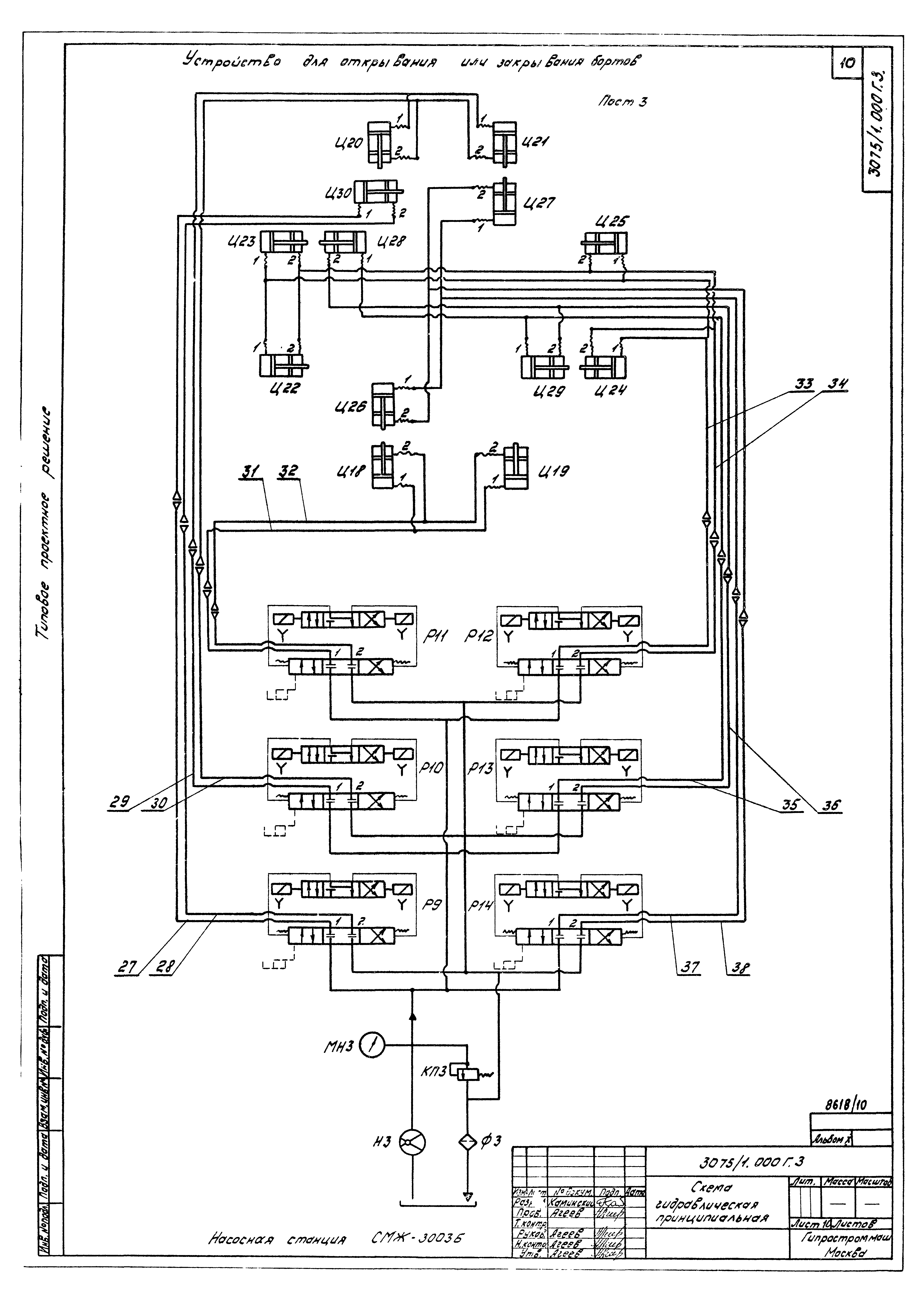
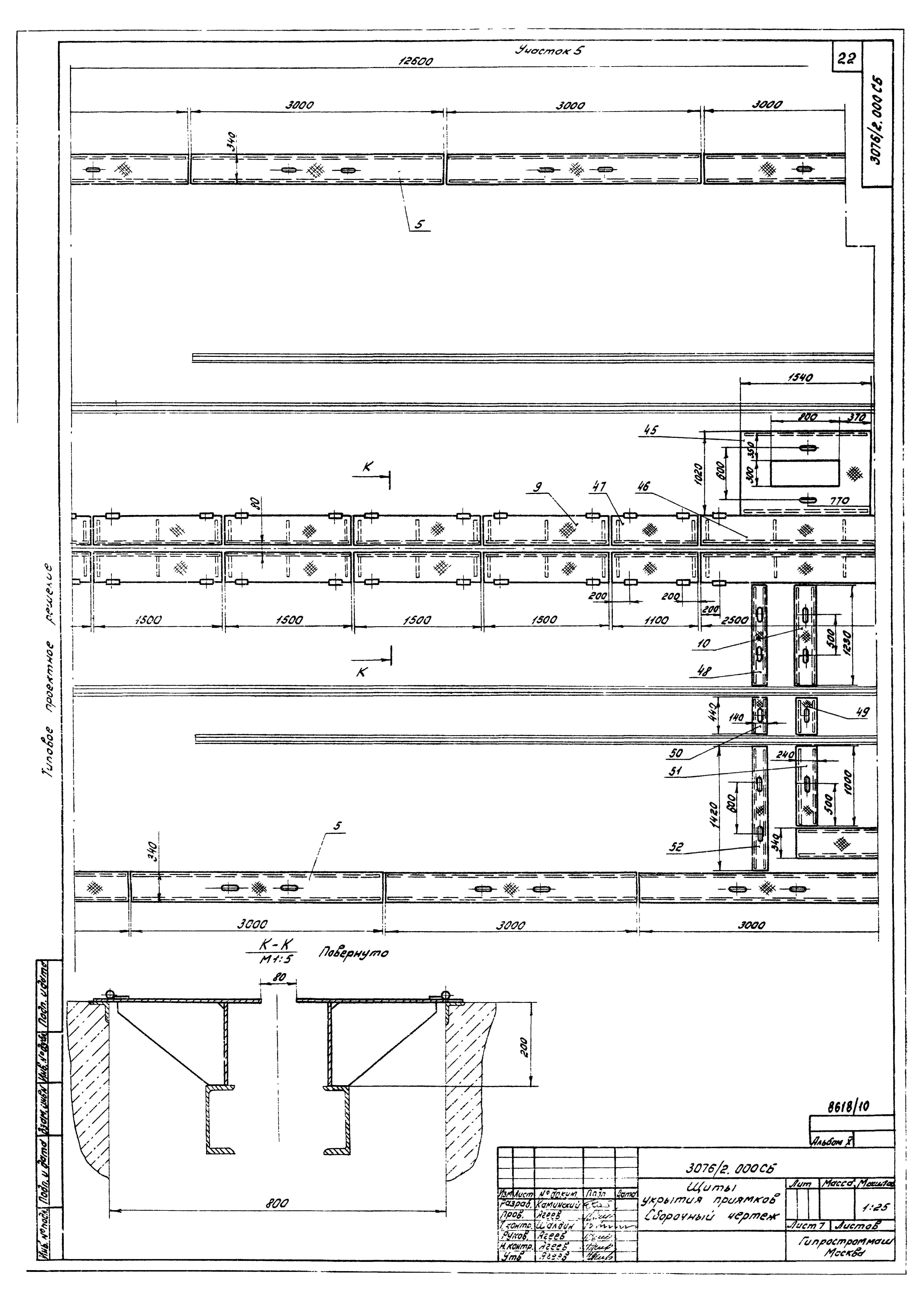
Скачать Типовые проектные решения 409-013-12.83 Альбом X. Нестандартизированное оборудованиеДата актуализации: 01.01.2021 Типовые проектные решения 409-013-12.83
Альбом X. Нестандартизированное оборудование| Обозначение: | Типовые проектные решения 409-013-12.83 | | Обозначение англ: | 409-013-12.83 | | Статус: | справочные материалы, мп, тпр | | Название рус.: | Альбом X. Нестандартизированное оборудование | | Дата добавления в базу: | 01.01.2019 | | Дата актуализации: | 01.01.2021 | | Дата введения: | 25.01.1983 | | Разработан: | Гипростроммаш
| | Утверждён: | 25.02.1982 Госгражданстрой (Gosgrazhdanstroy )
| | Издан: | ЦИТП Госстроя СССР (CITP, Gosstroy (USSR) 1988 г. )
|
                                                                 
|