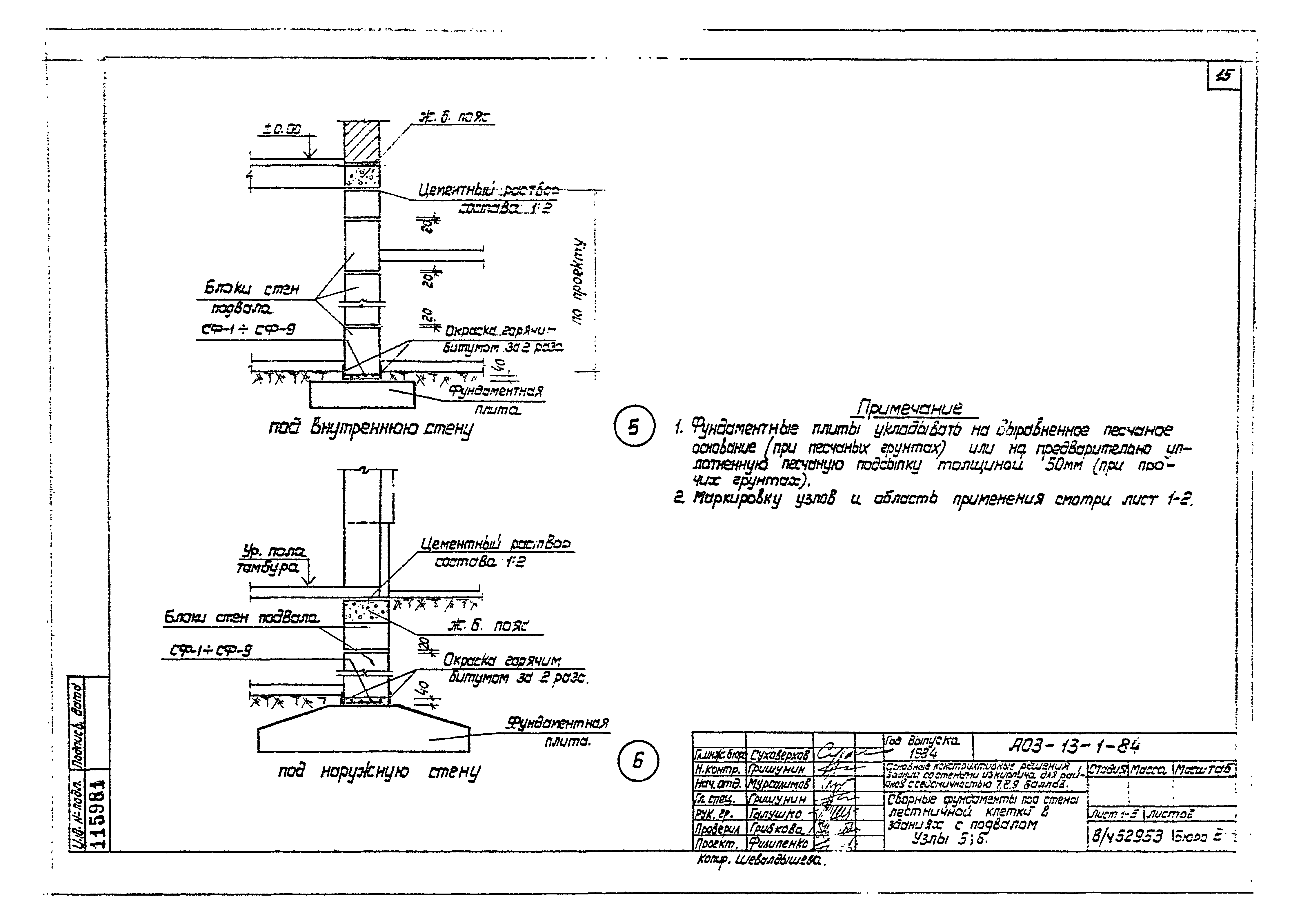
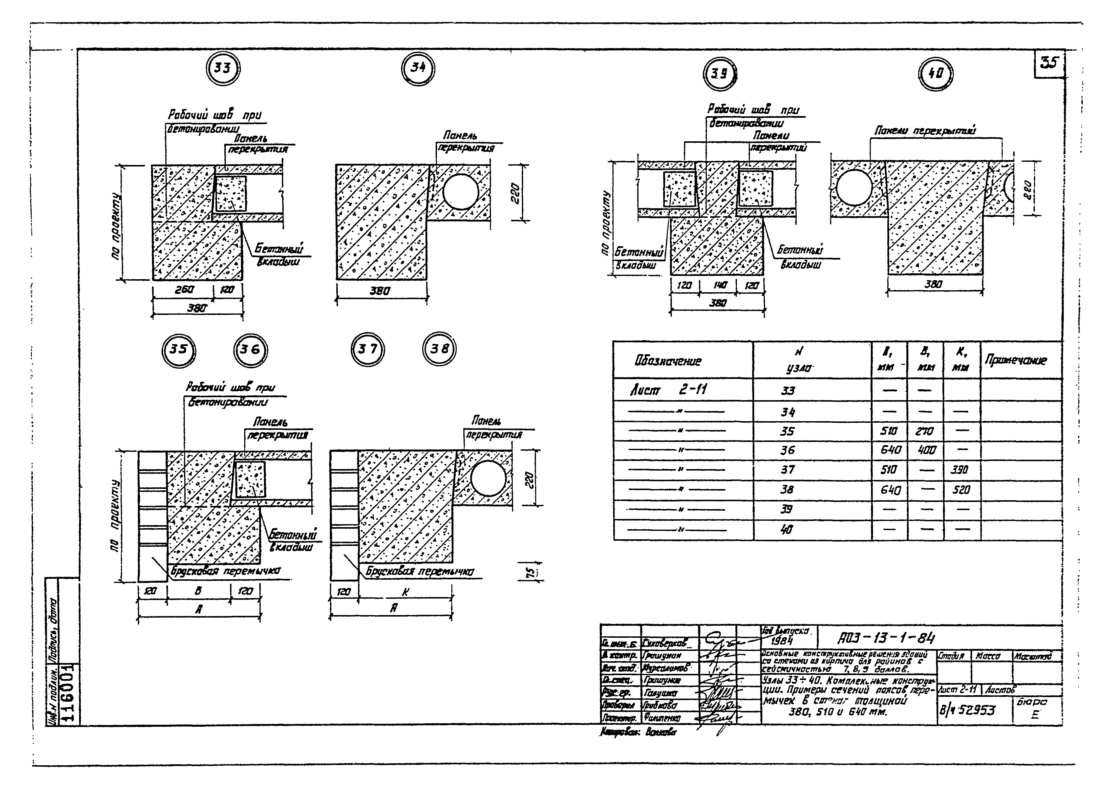
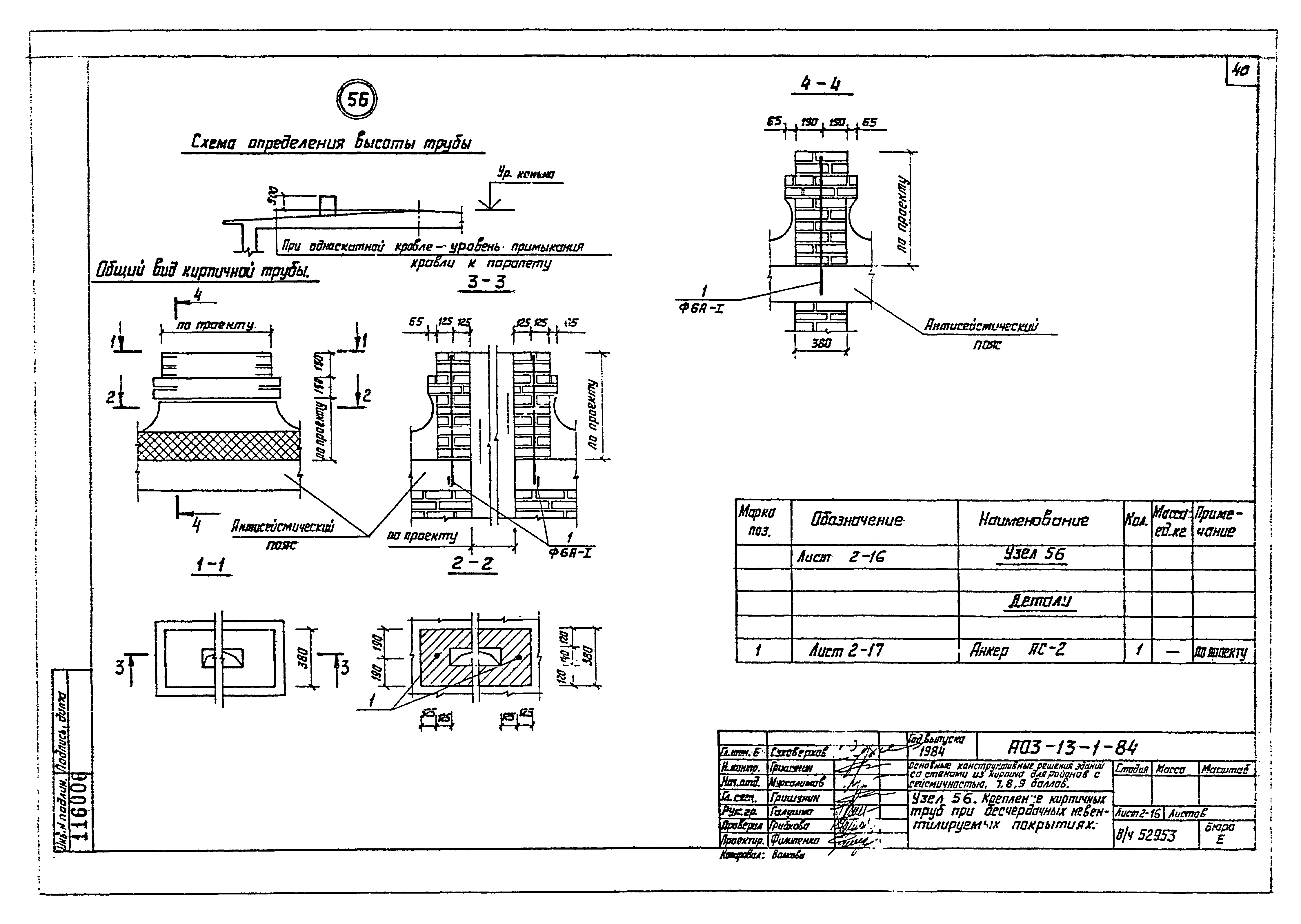
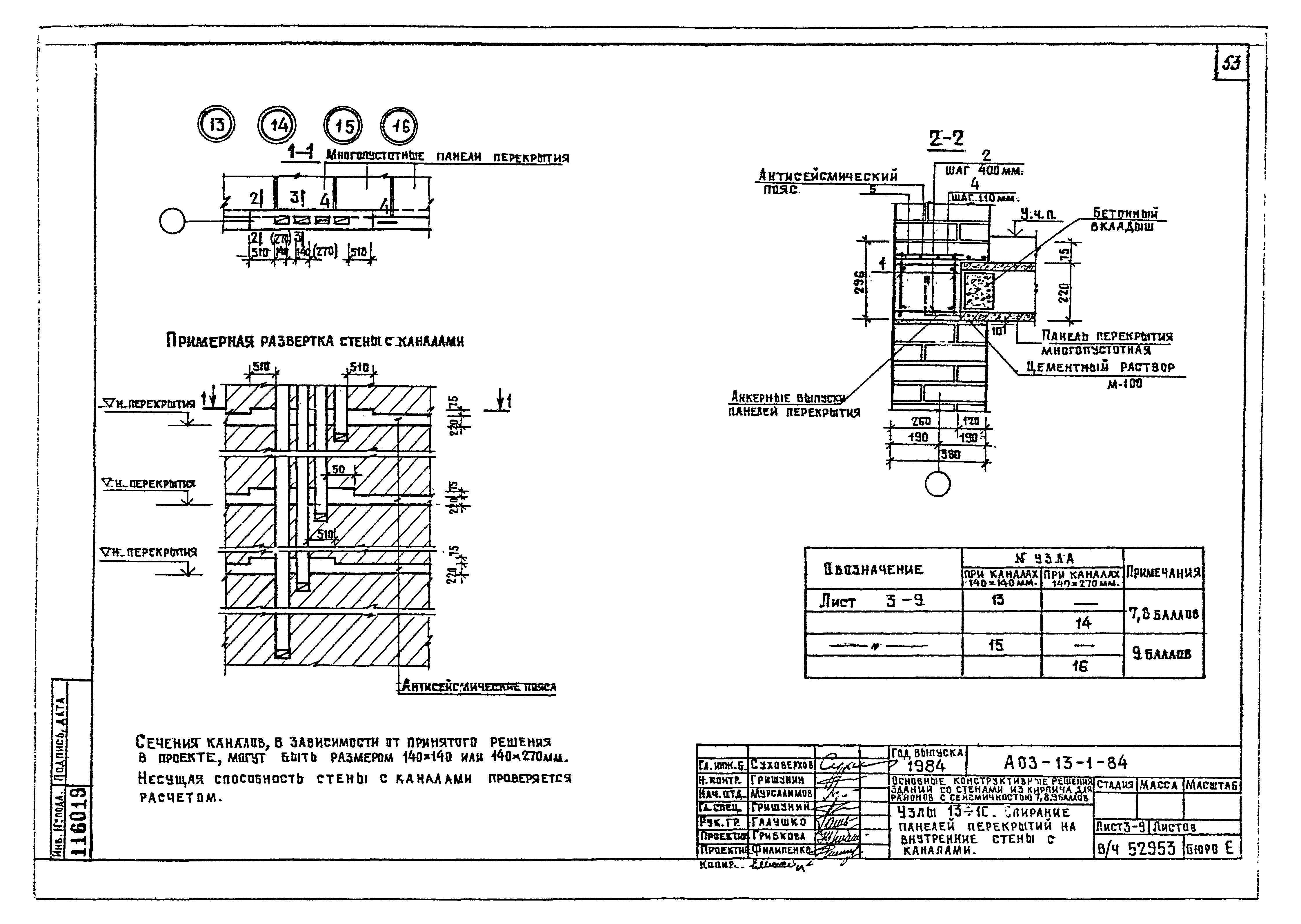
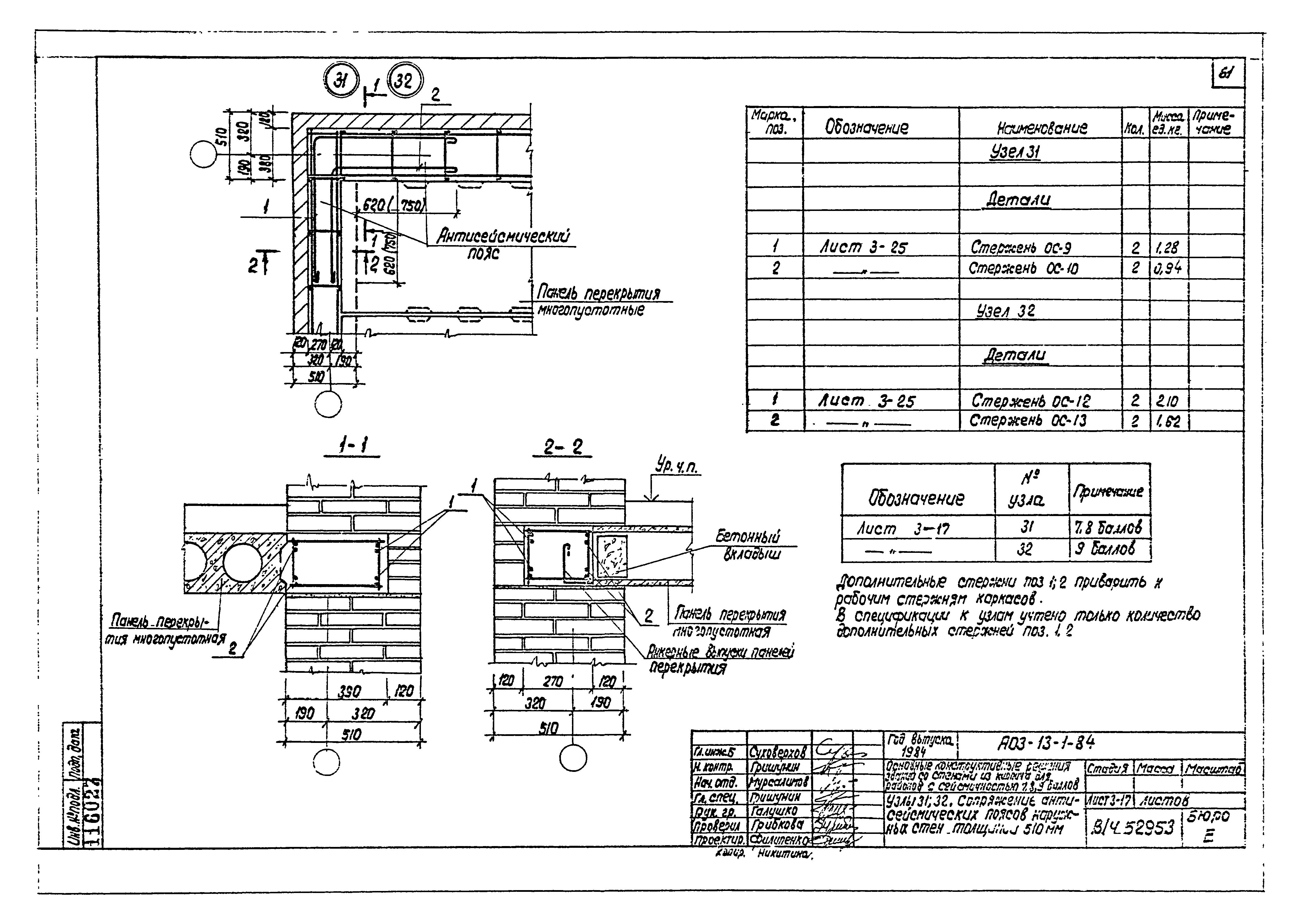
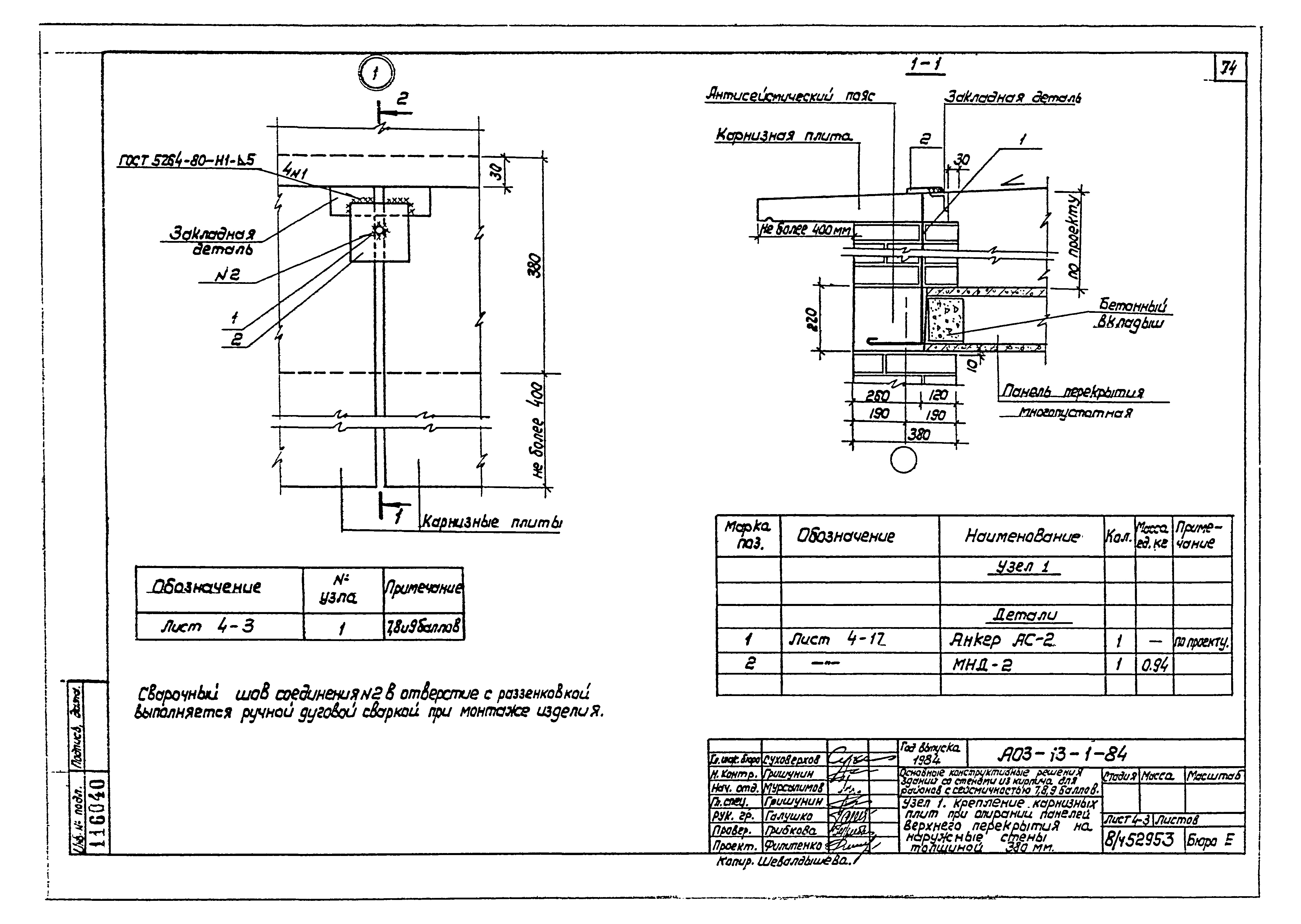
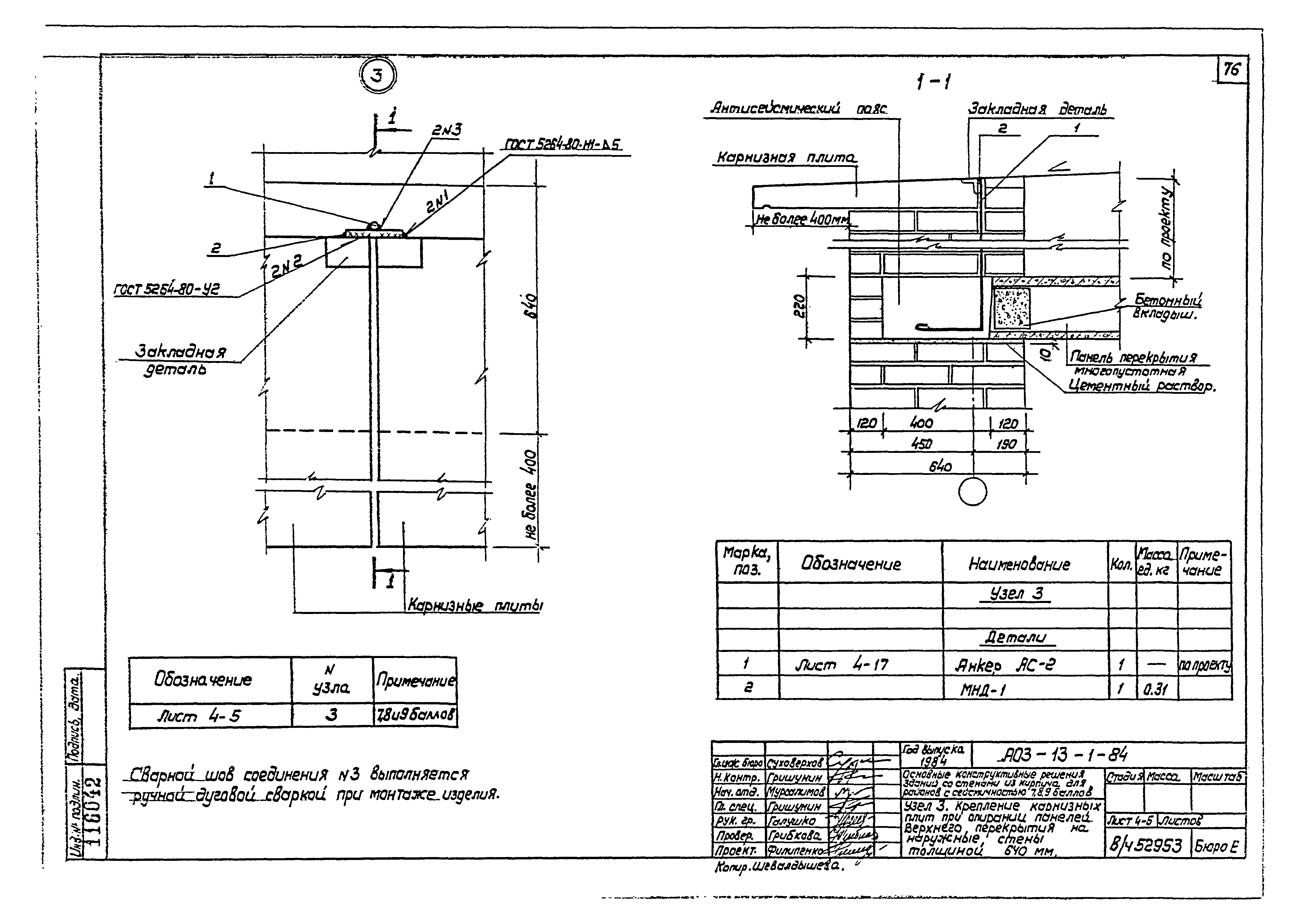
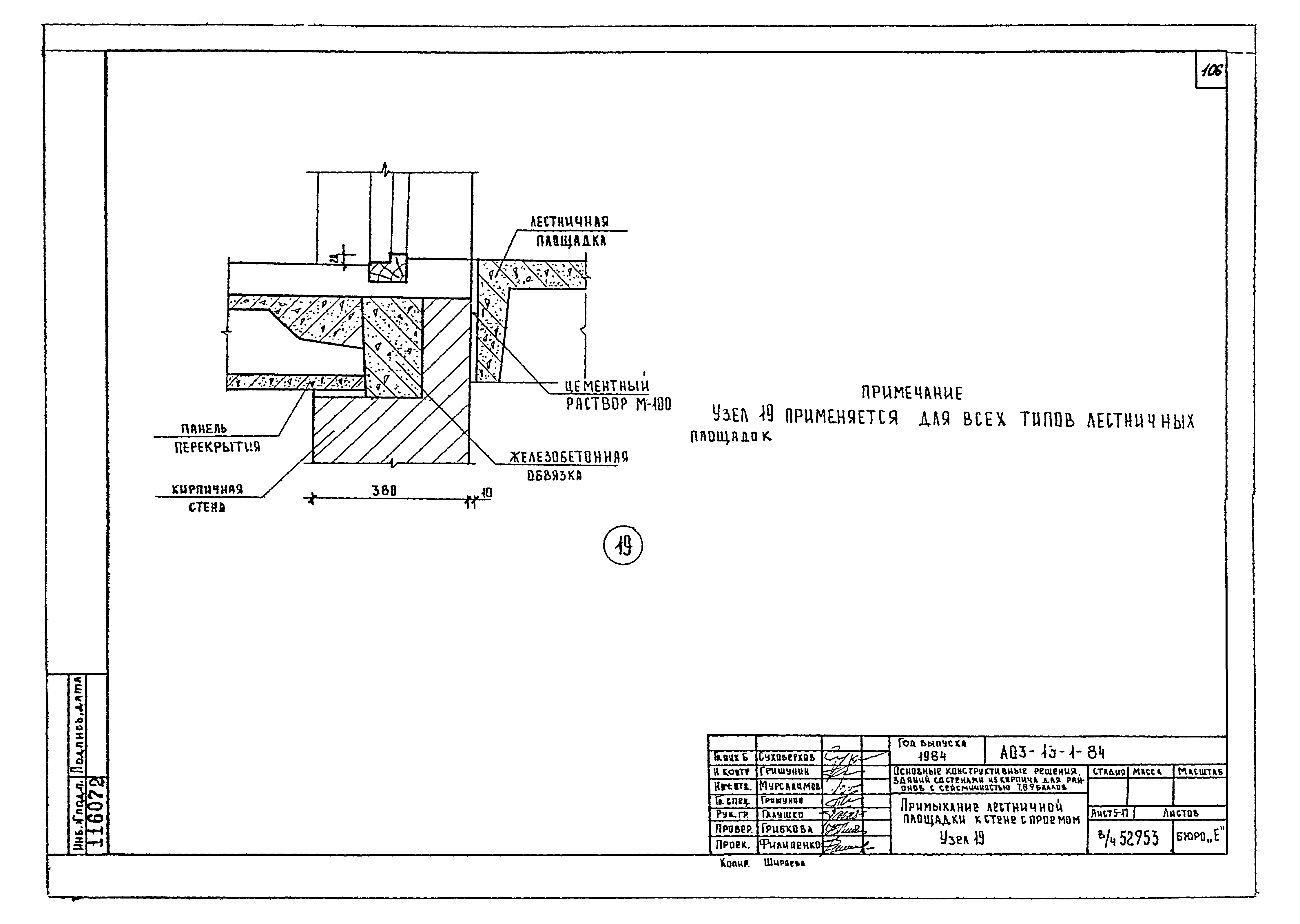
Скачать Серия АОЗ-13-1-84 Альбом архитектурно-строительных конструкций и инженерного оборудования общевойсковых зданий. Выпуск АО3-13-1-84. Конструктивные элементы, детали и узлы для сейсмических районов. Основные конструктивные решения зданий со стенами из кирпича для районов с сейсмичностью 7, 8, 9 балловДата актуализации: 01.01.2021 Серия АОЗ-13-1-84
Альбом архитектурно-строительных конструкций и инженерного оборудования общевойсковых зданий. Выпуск АО3-13-1-84. Конструктивные элементы, детали и узлы для сейсмических районов. Основные конструктивные решения зданий со стенами из кирпича для районов с сейсмичностью 7, 8, 9 баллов| Обозначение: | Серия АОЗ-13-1-84 | | Обозначение англ: | Series АОЗ-13-1-84 | | Статус: | не определен законодательством | | Название рус.: | Альбом архитектурно-строительных конструкций и инженерного оборудования общевойсковых зданий. Выпуск АО3-13-1-84. Конструктивные элементы, детали и узлы для сейсмических районов. Основные конструктивные решения зданий со стенами из кирпича для районов с сейсмичностью 7, 8, 9 баллов | | Дата добавления в базу: | 01.01.2019 | | Дата актуализации: | 01.01.2021 | | Дата введения: | 20.11.1984 | | Дата окончания срока действия: | 30.06.2003 | | Разработан: | В/ч 52953
| | Утверждён: | 20.11.1984 В.ч. 52953 (472)
|
                                                                                                            
|