Скачать Типовой проект 902-1-19 Альбом 3. Архитектурно-строительная часть при глубине заложения подводящего коллектора 7,0 мДата актуализации: 01.01.2021 Типовой проект 902-1-19
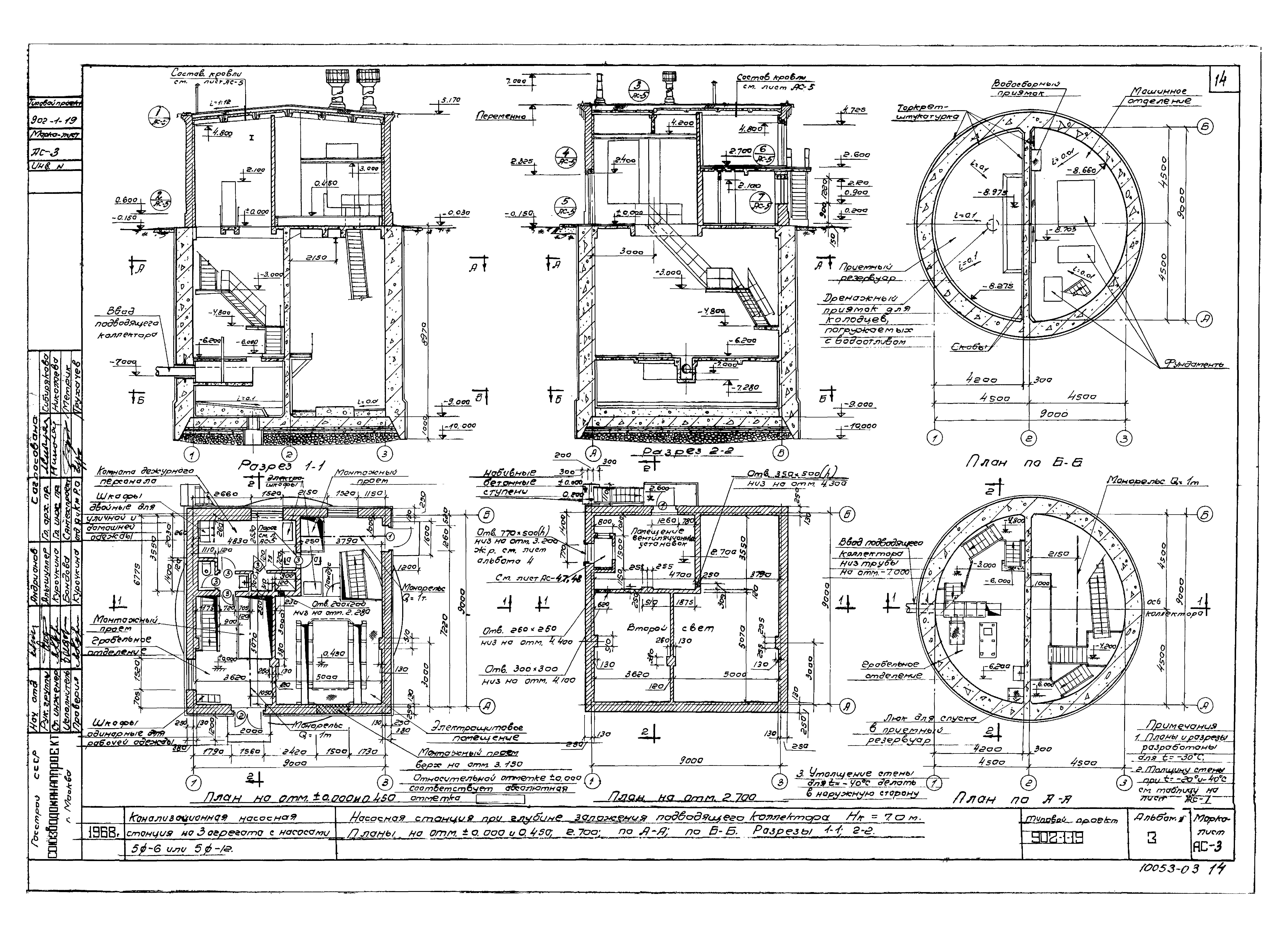
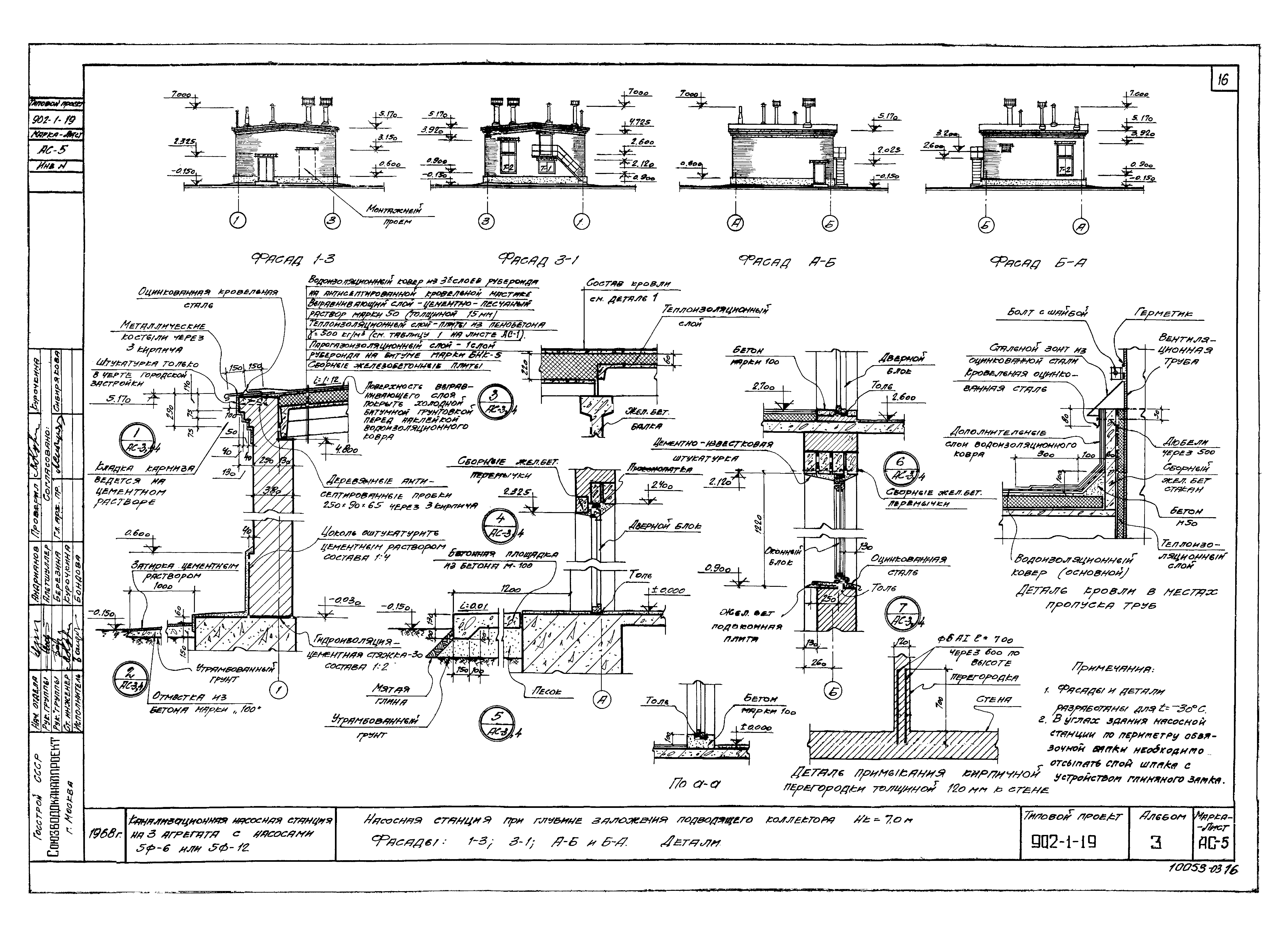
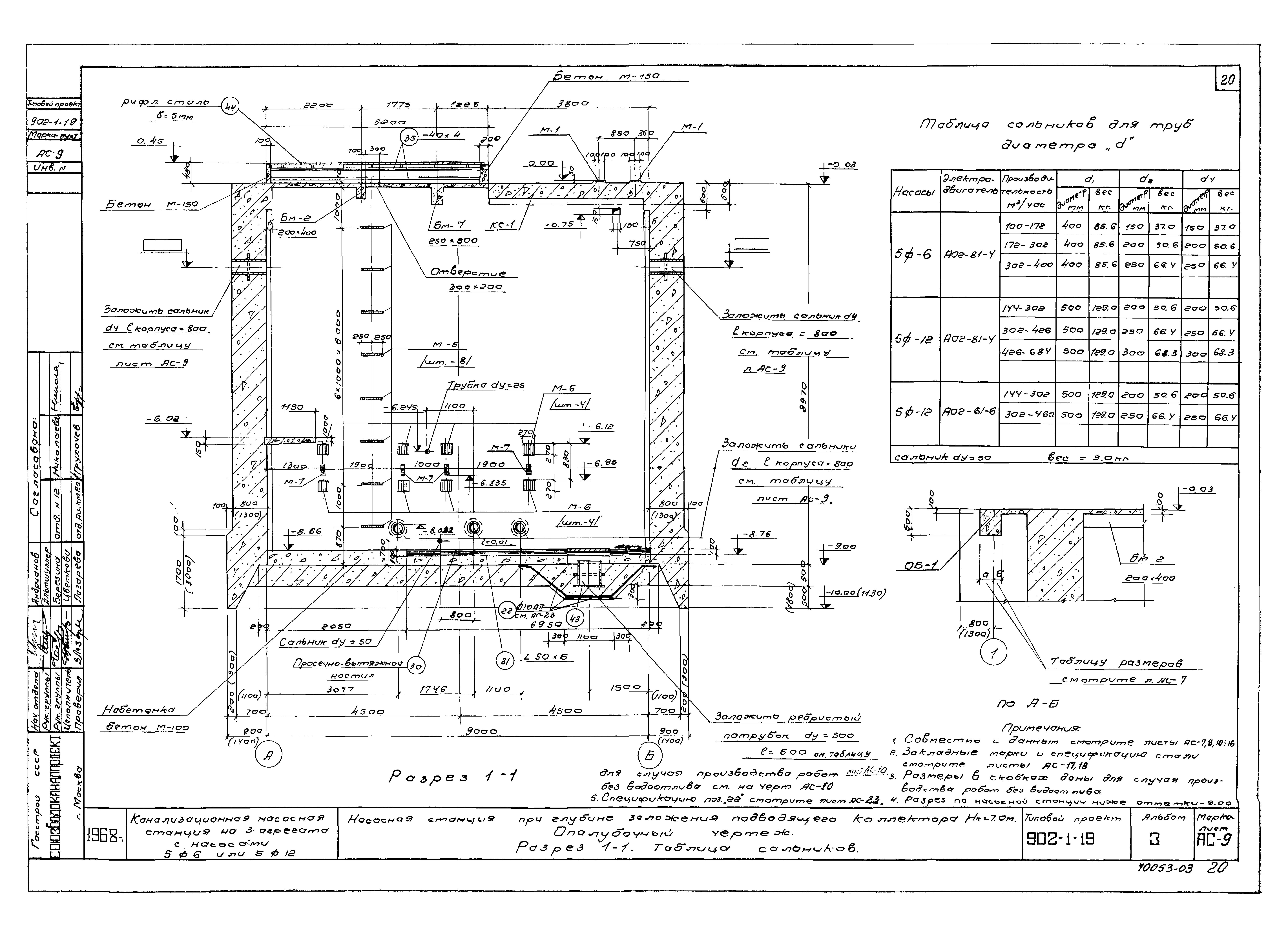
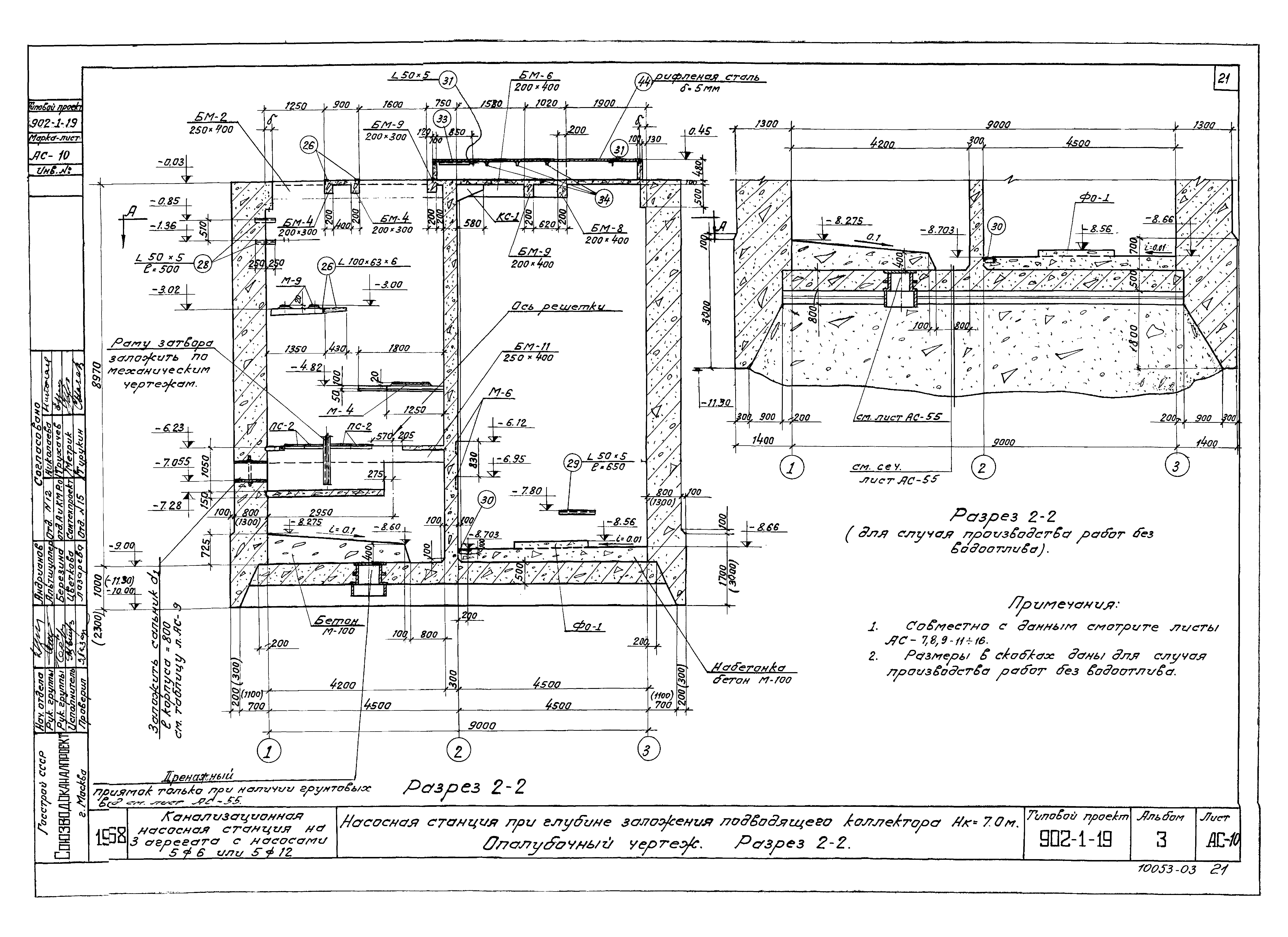
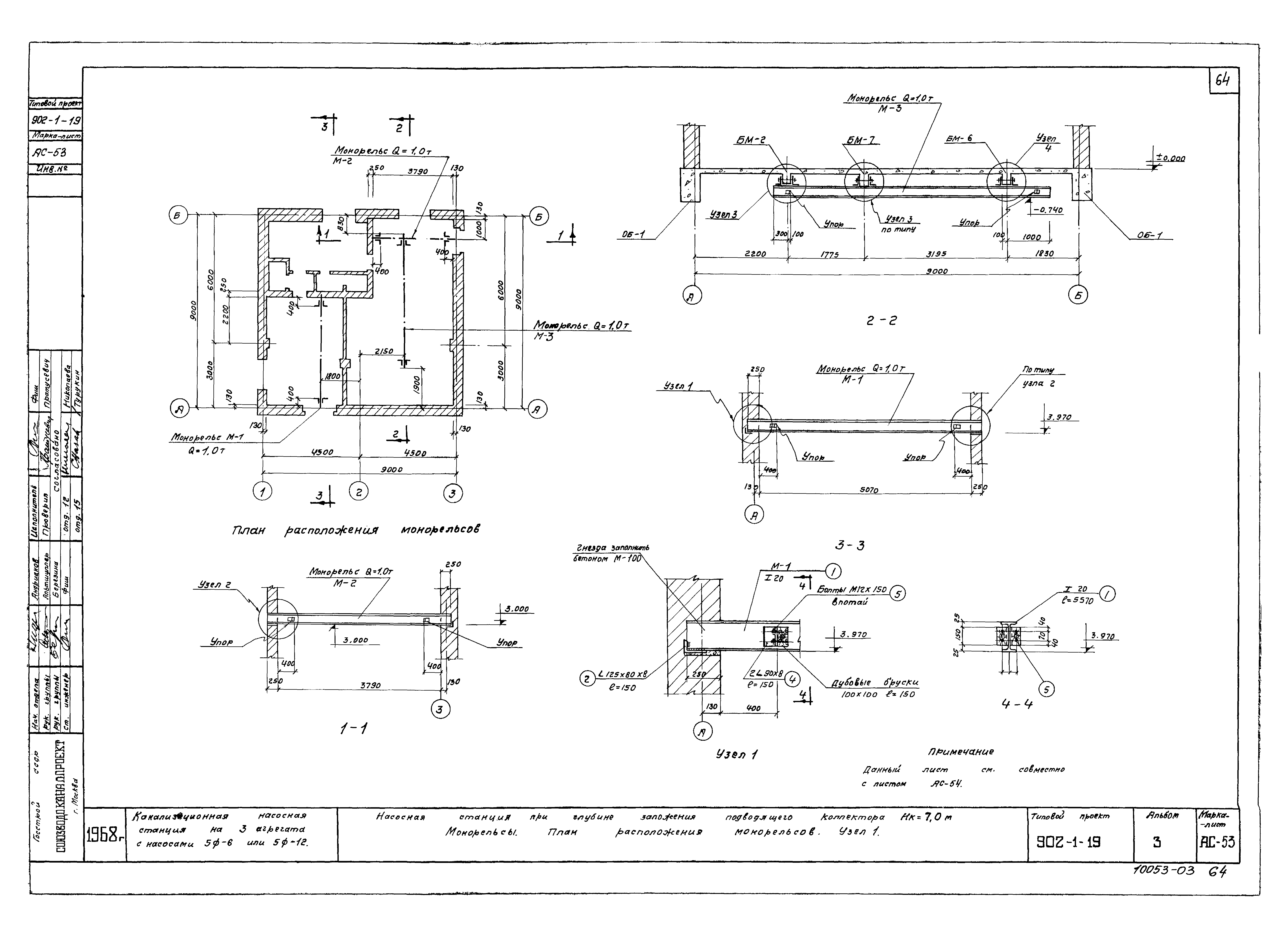
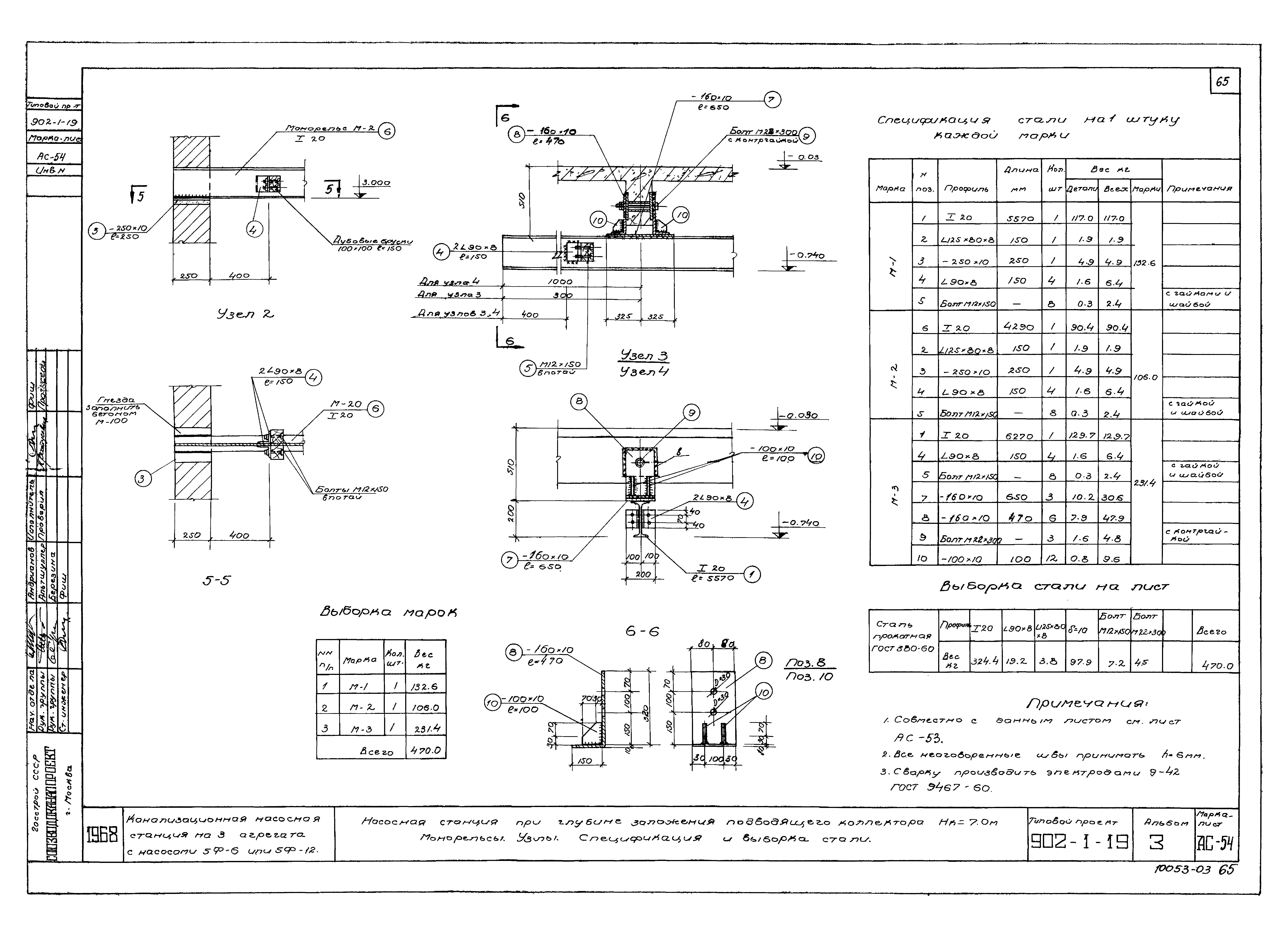
Альбом 3. Архитектурно-строительная часть при глубине заложения подводящего коллектора 7,0 м| Обозначение: | Типовой проект 902-1-19 | | Обозначение англ: | 902-1-19 | | Статус: | заменен | | Название рус.: | Альбом 3. Архитектурно-строительная часть при глубине заложения подводящего коллектора 7,0 м | | Дата добавления в базу: | 01.01.2019 | | Дата актуализации: | 01.01.2021 | | Дата введения: | 21.04.1970 | | Дата окончания срока действия: | 01.09.1974 | | Разработан: | Союзводоканалпроект
| | Утверждён: | 21.04.1970 Союзводоканалпроект (Soyuzvodokanalproject 67)
| | Чем заменён: | |
                                                                 
|