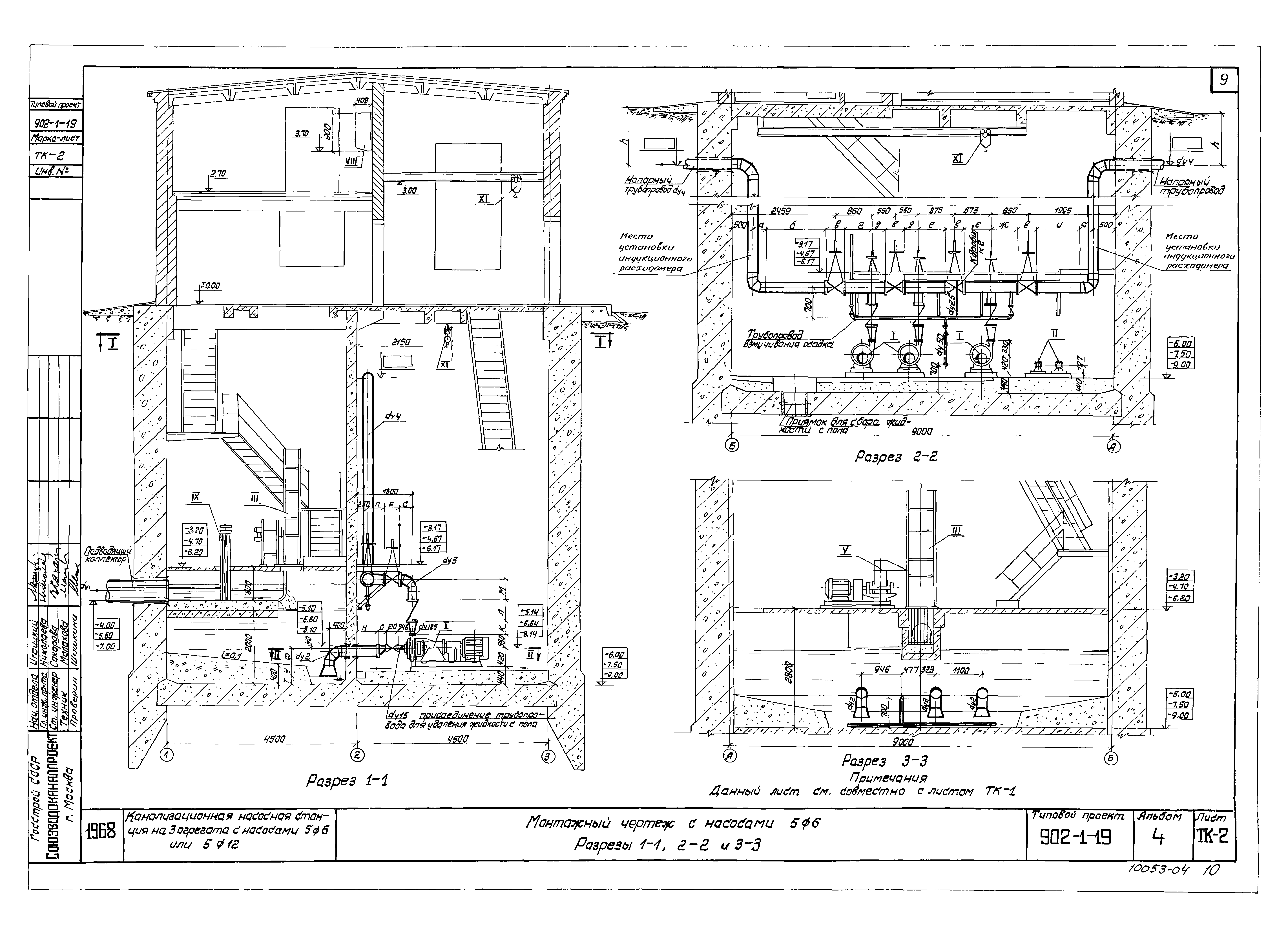
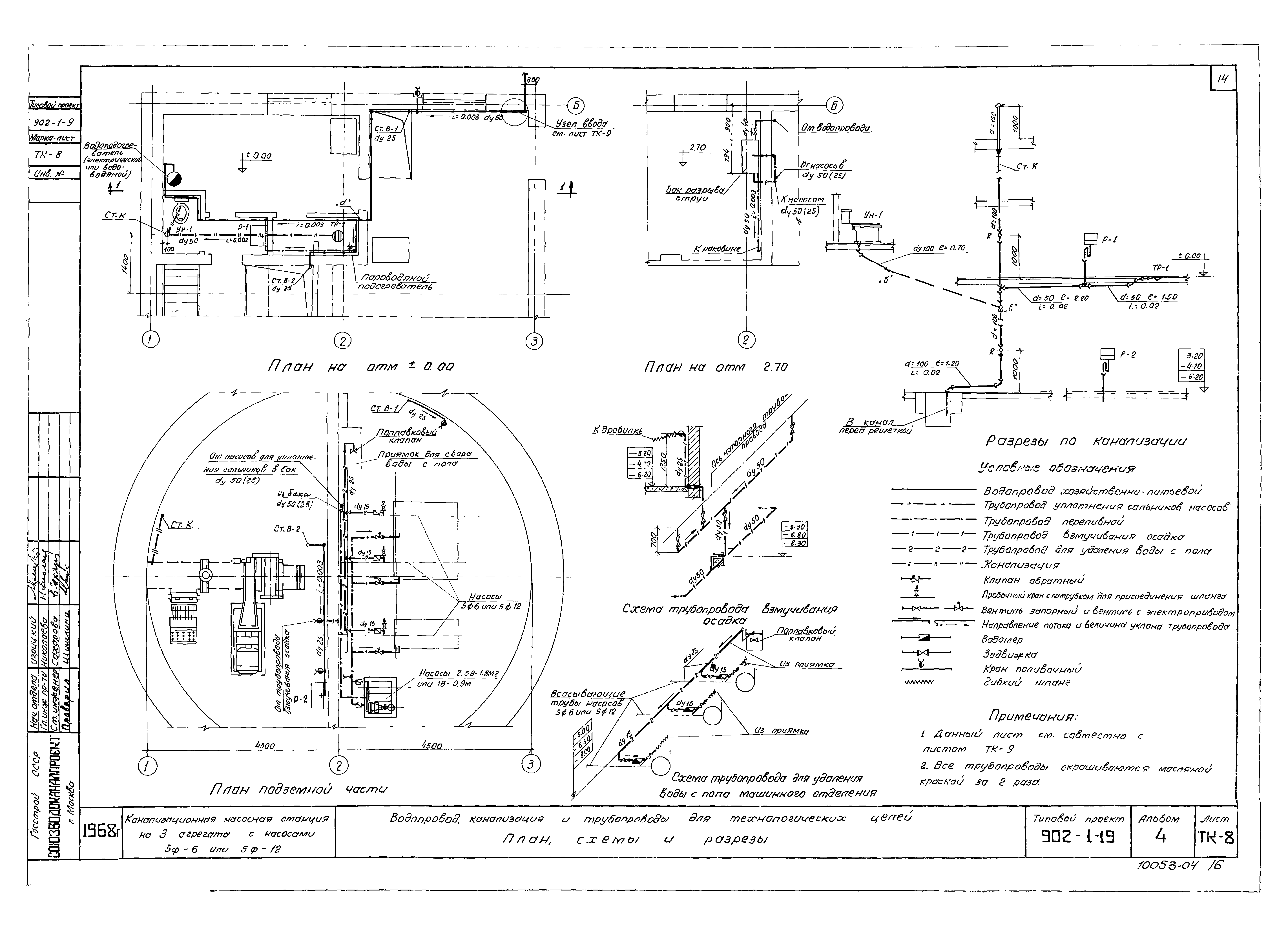
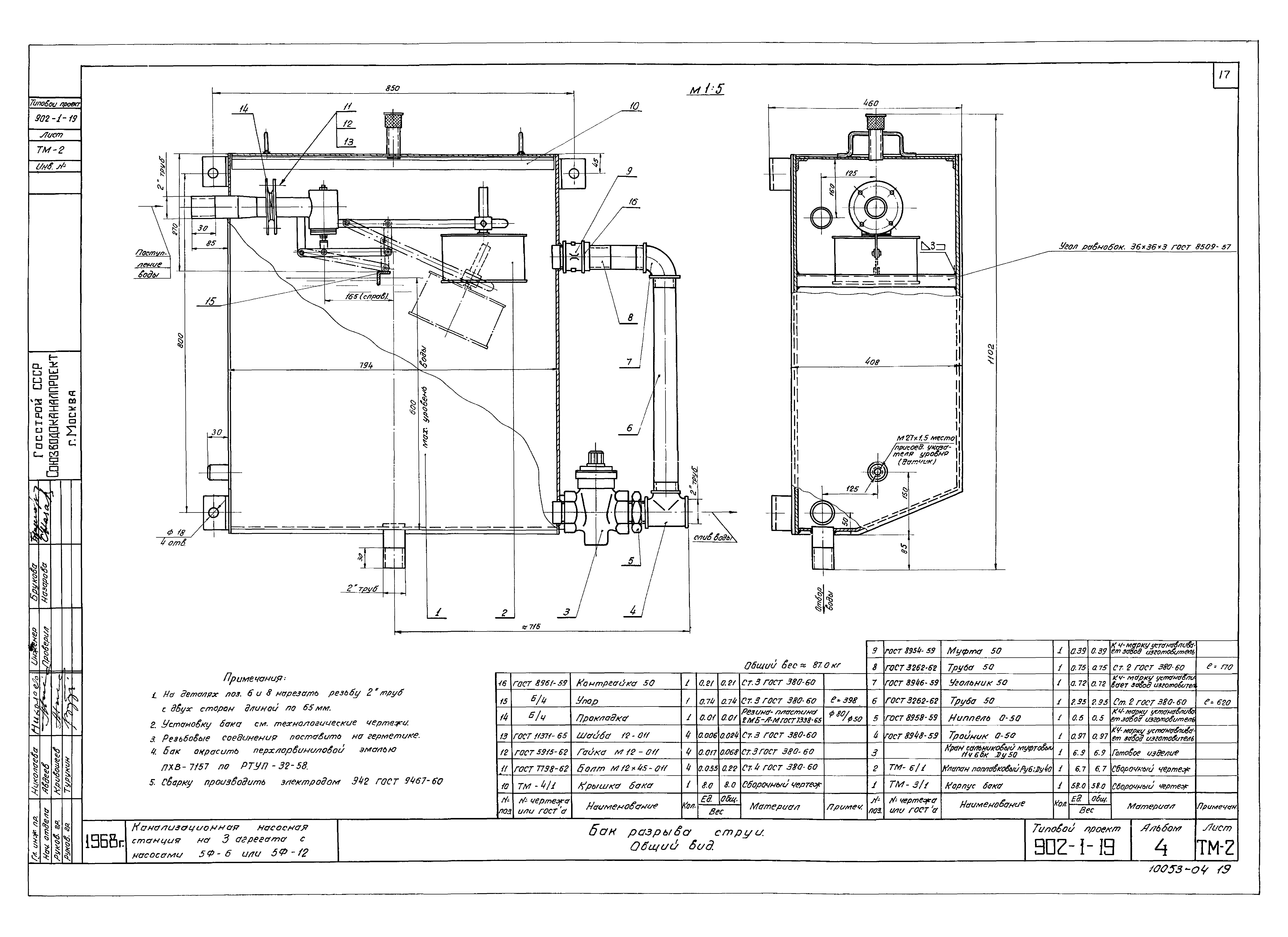
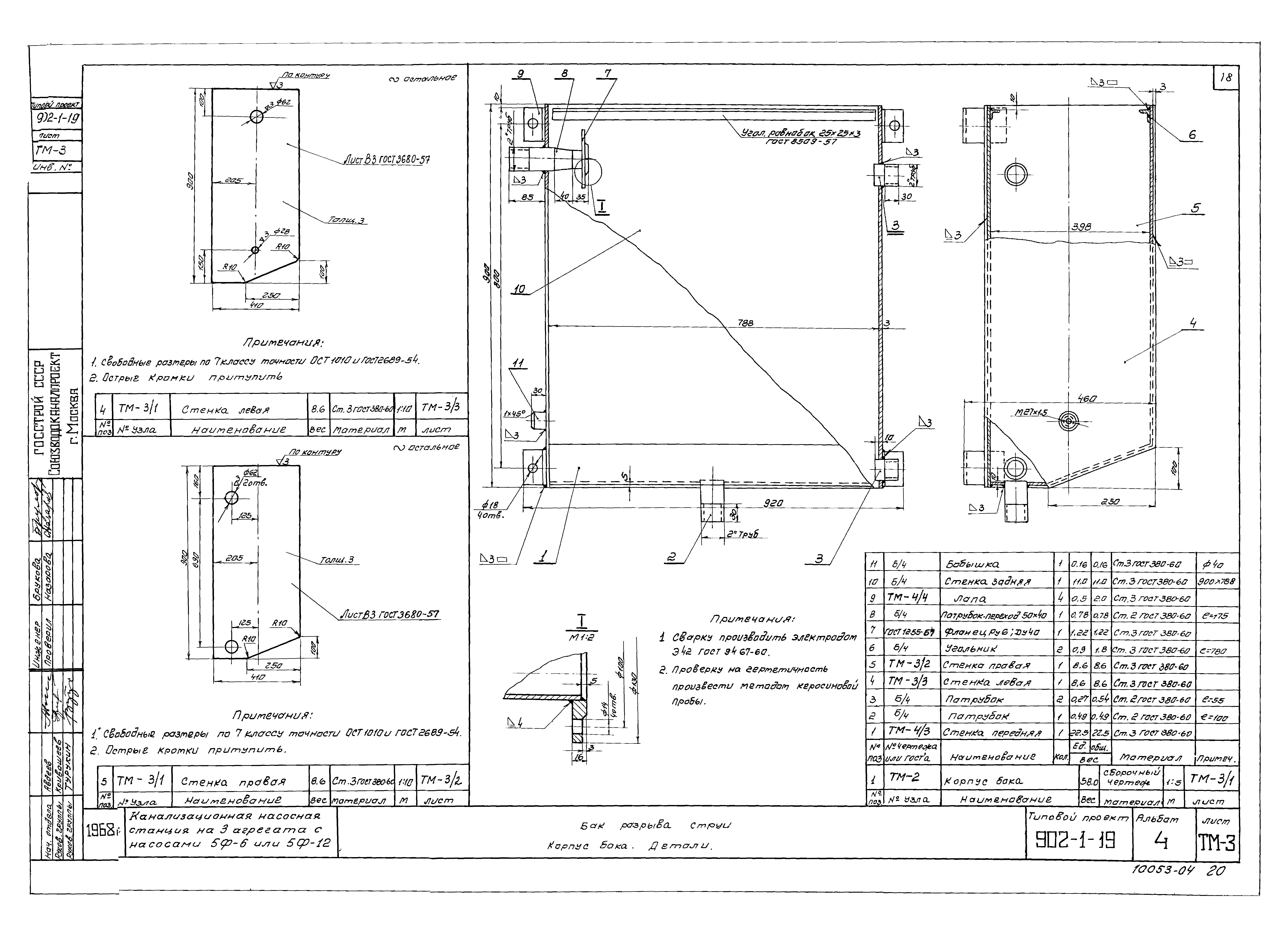
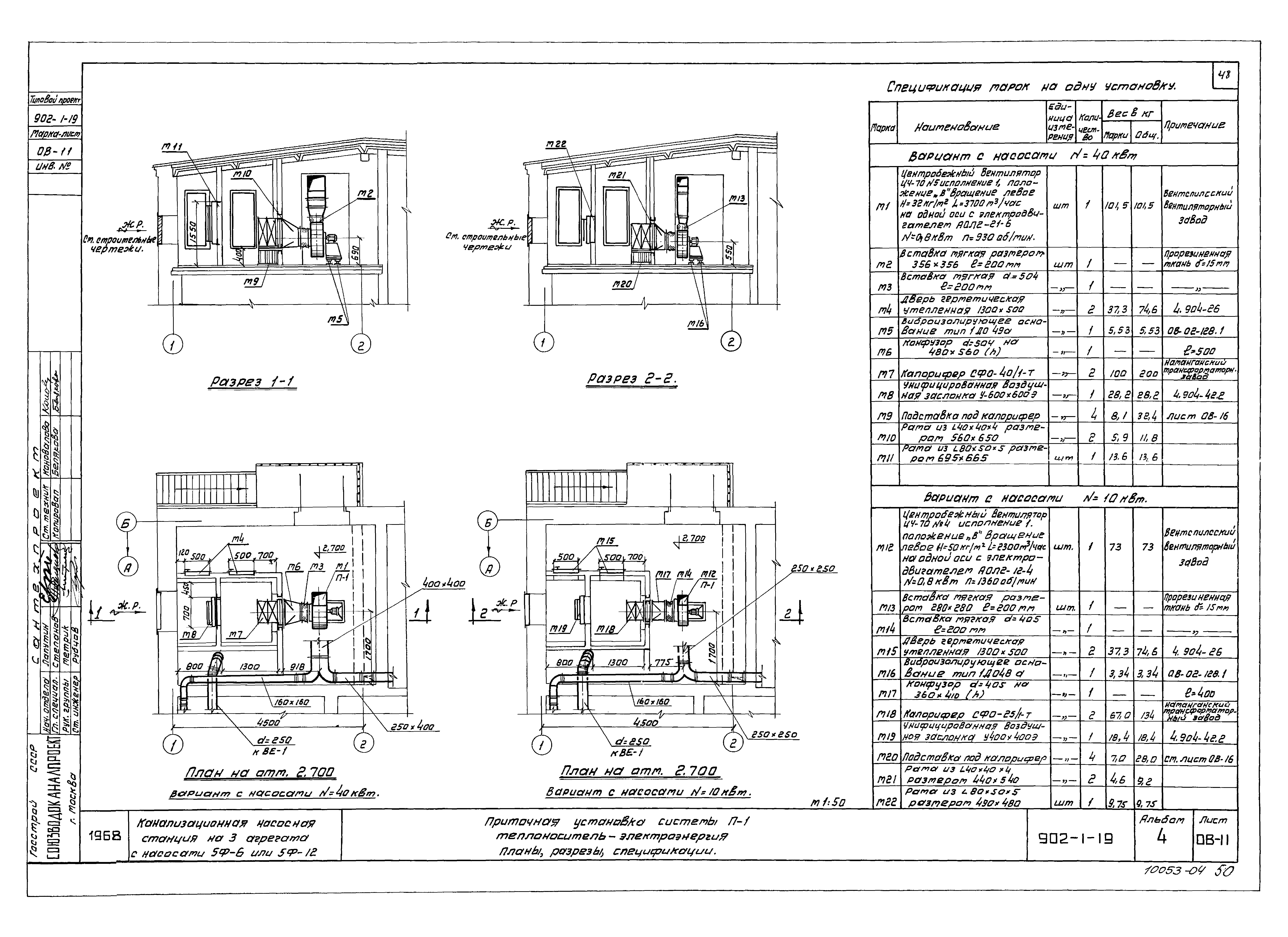
Скачать Типовой проект 902-1-19 Альбом 4. Технологическая, механическая и санитарно-техническая части при глубине заложения подводящего коллектора 4,0; 5,5 и 7,0 мДата актуализации: 01.01.2021 Типовой проект 902-1-19
Альбом 4. Технологическая, механическая и санитарно-техническая части при глубине заложения подводящего коллектора 4,0; 5,5 и 7,0 м| Обозначение: | Типовой проект 902-1-19 | | Обозначение англ: | 902-1-19 | | Статус: | заменен | | Название рус.: | Альбом 4. Технологическая, механическая и санитарно-техническая части при глубине заложения подводящего коллектора 4,0; 5,5 и 7,0 м | | Дата добавления в базу: | 01.01.2019 | | Дата актуализации: | 01.01.2021 | | Дата введения: | 21.04.1970 | | Дата окончания срока действия: | 01.09.1974 | | Разработан: | Союзводоканалпроект
| | Утверждён: | 21.04.1970 Союзводоканалпроект (Soyuzvodokanalproject 67)
| | Чем заменён: | |
                                                     
|