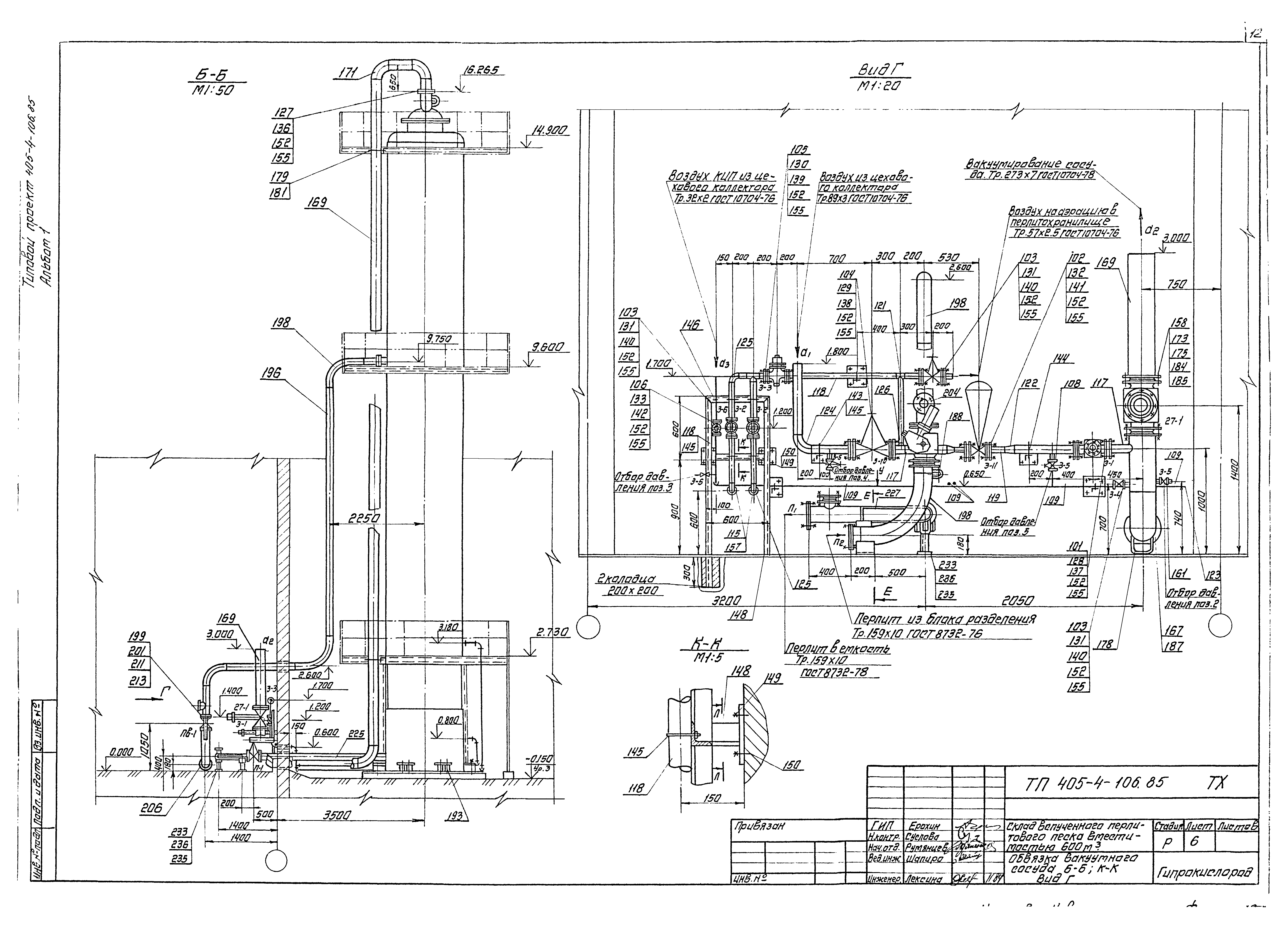
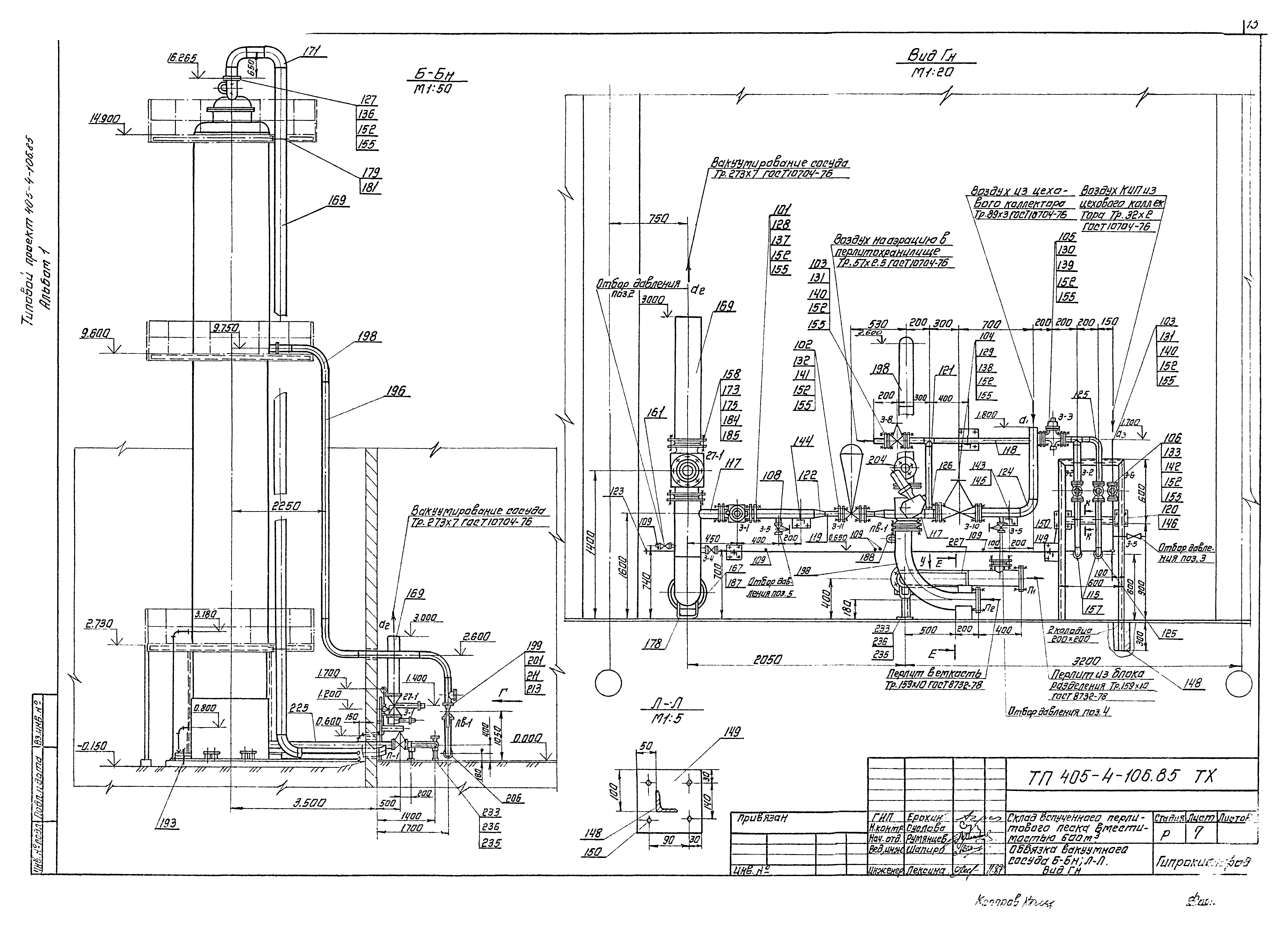
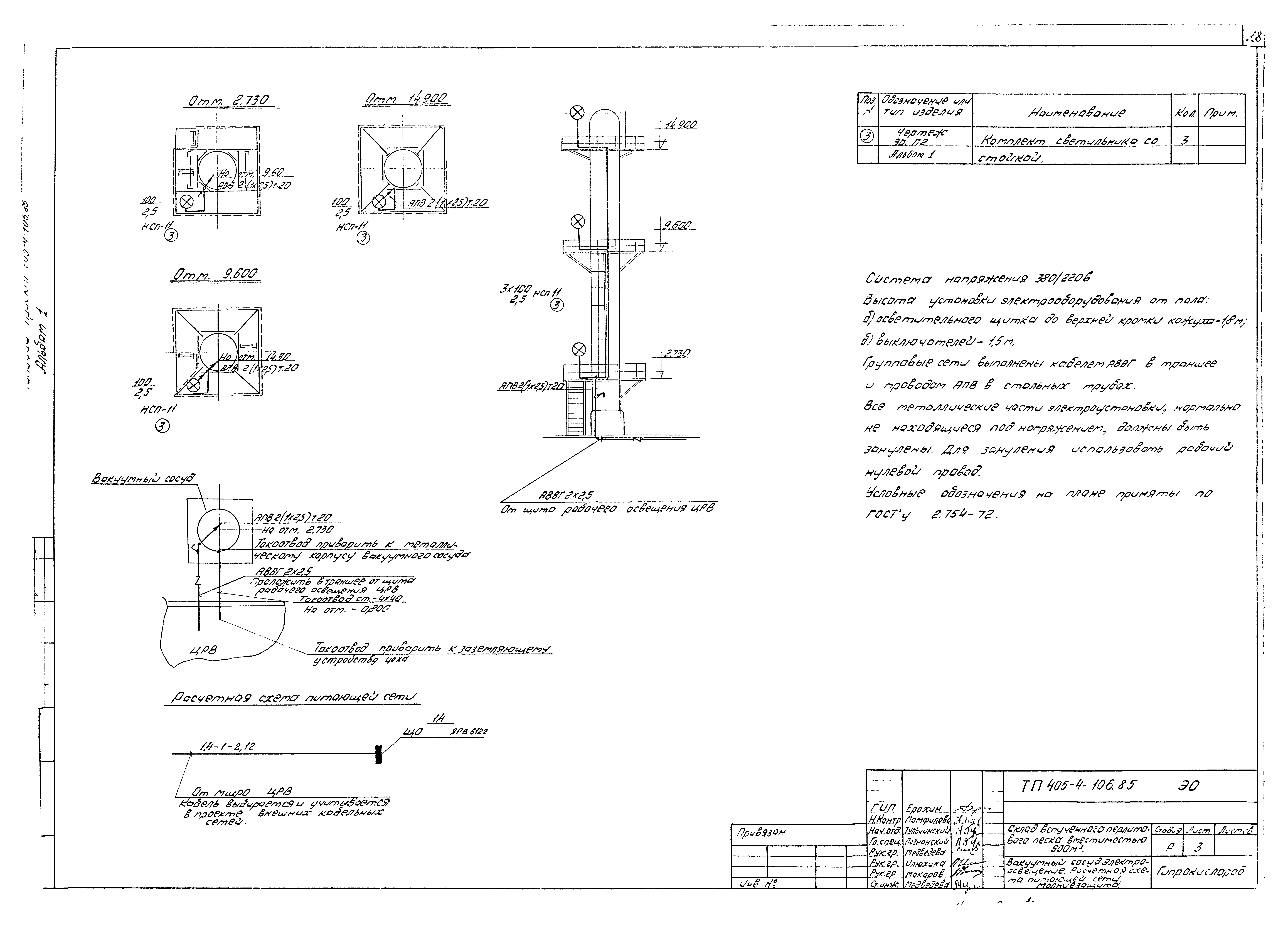
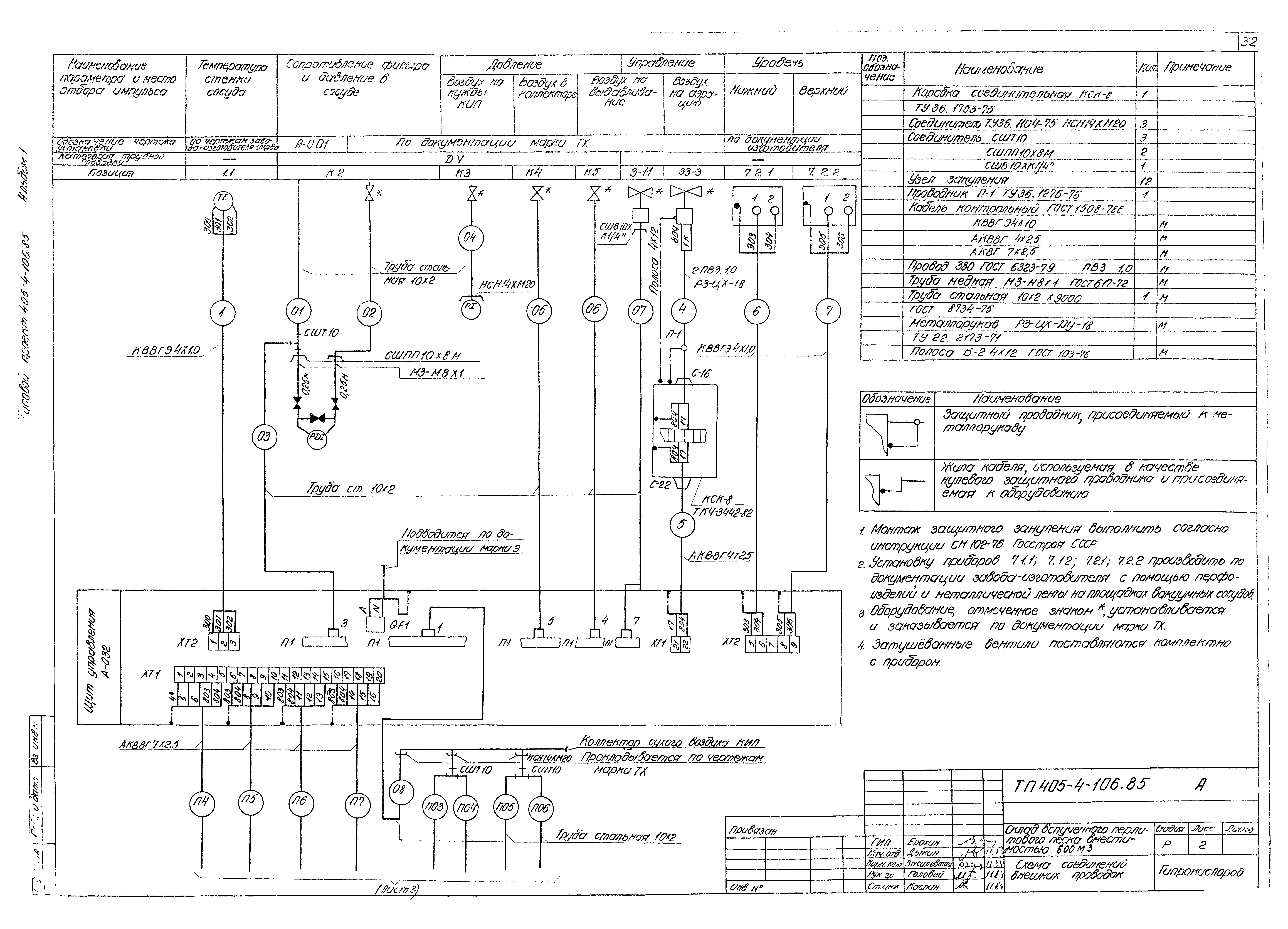
Скачать Типовой проект 405-4-106.85 Альбом 1. Технология производства. Электроосвещение. Молниезащита. Автоматизация технологических процессовДата актуализации: 01.01.2021 Типовой проект 405-4-106.85
Альбом 1. Технология производства. Электроосвещение. Молниезащита. Автоматизация технологических процессов| Обозначение: | Типовой проект 405-4-106.85 | | Обозначение англ: | 405-4-106.85 | | Статус: | действует | | Название рус.: | Альбом 1. Технология производства. Электроосвещение. Молниезащита. Автоматизация технологических процессов | | Дата добавления в базу: | 01.01.2019 | | Дата актуализации: | 01.01.2021 | | Дата введения: | 27.02.1985 | | Разработан: | Гипрокислород Минхимпрома СССР
| | Утверждён: | 26.11.1984 Минхимпром (47/4-4973)
| | Заменяет собой: | |
                                    
|