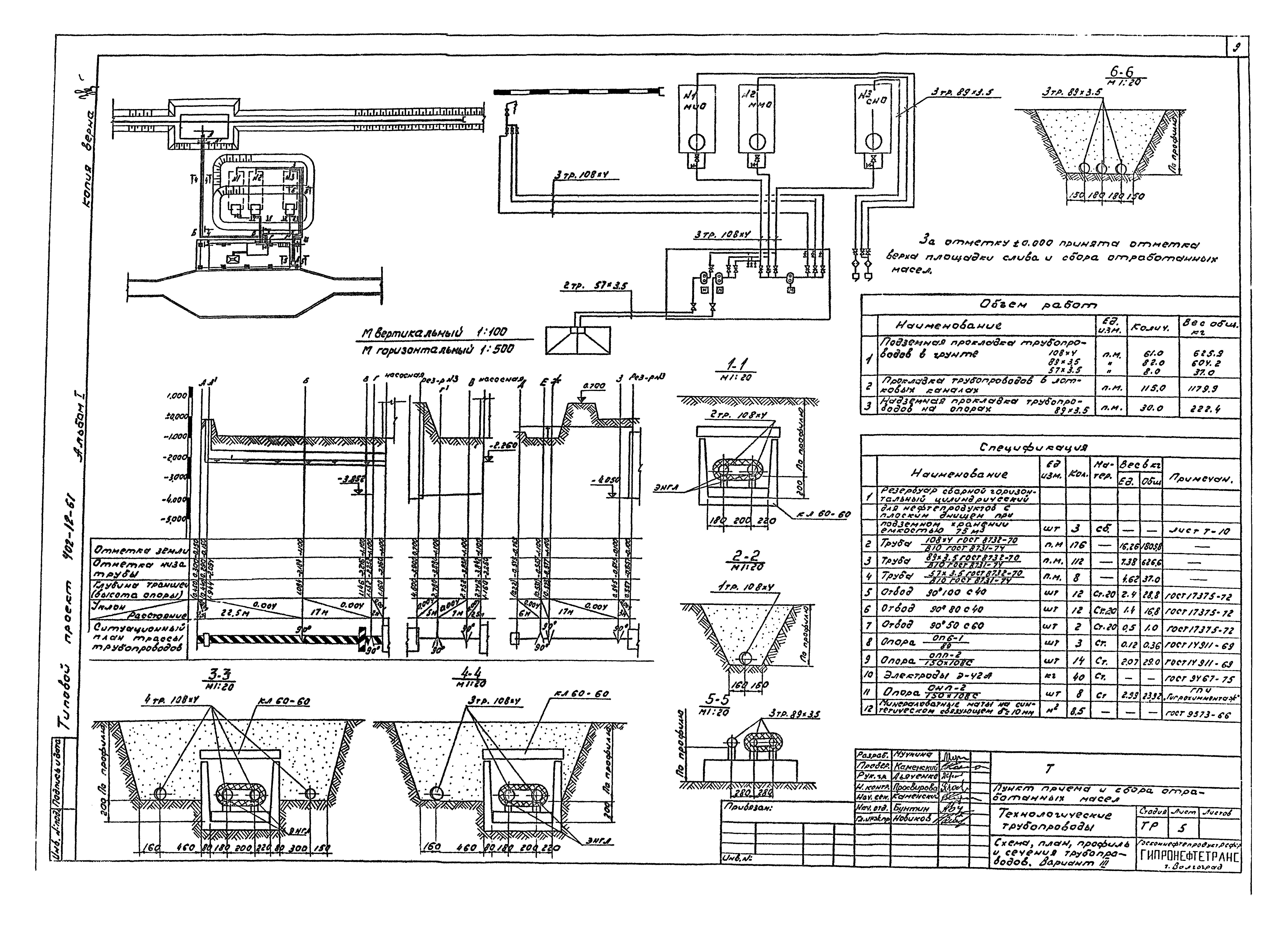
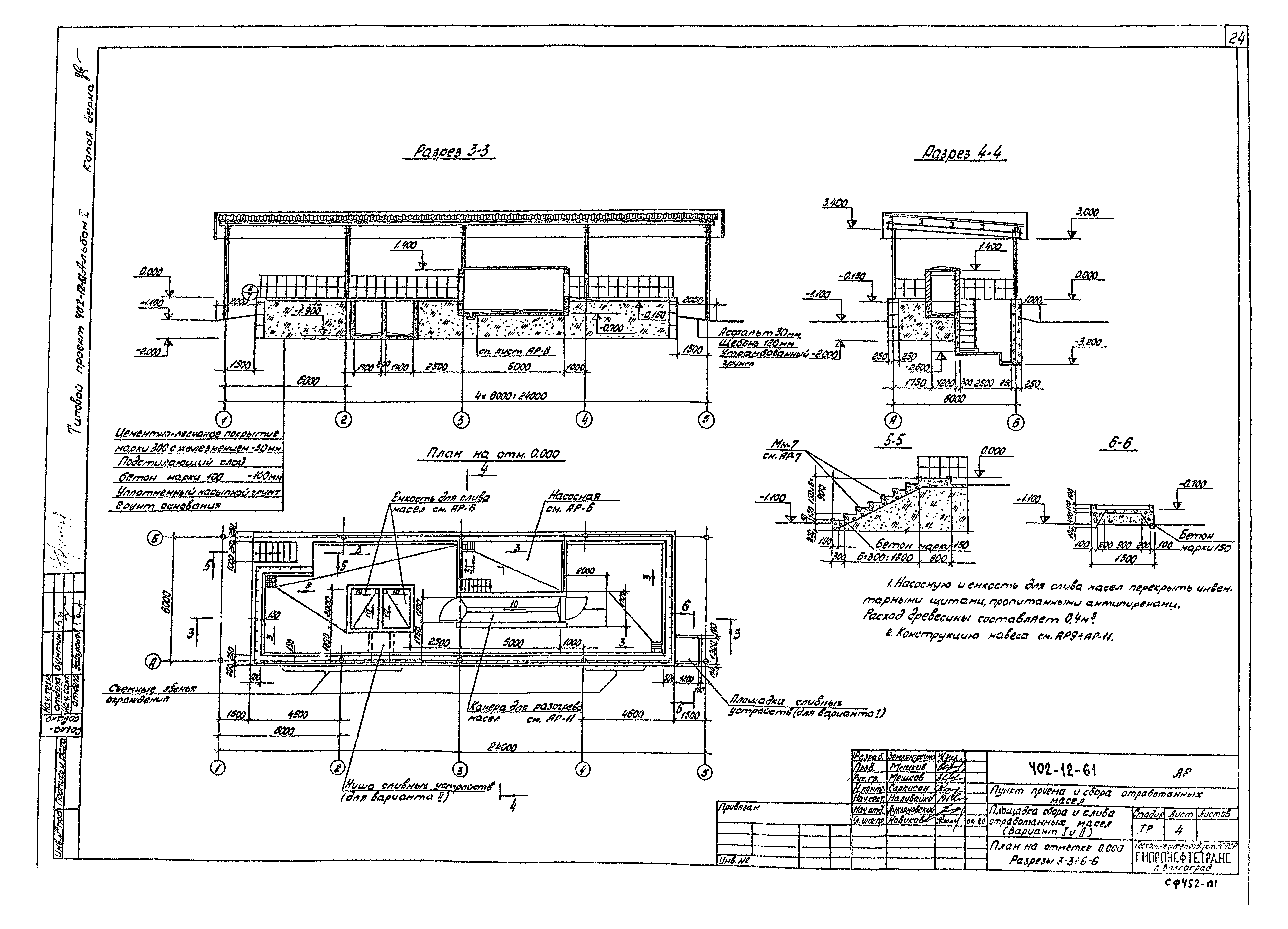
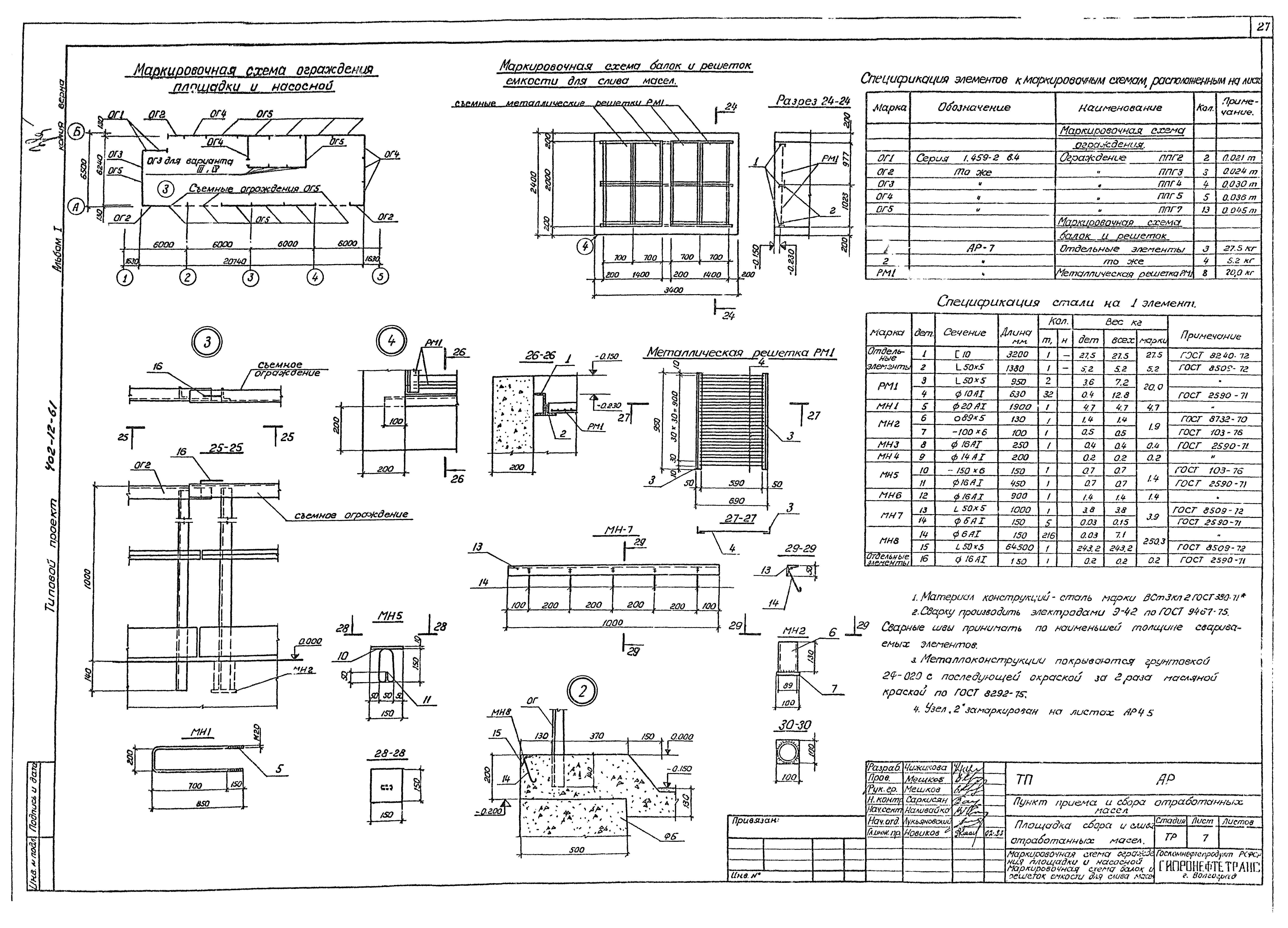
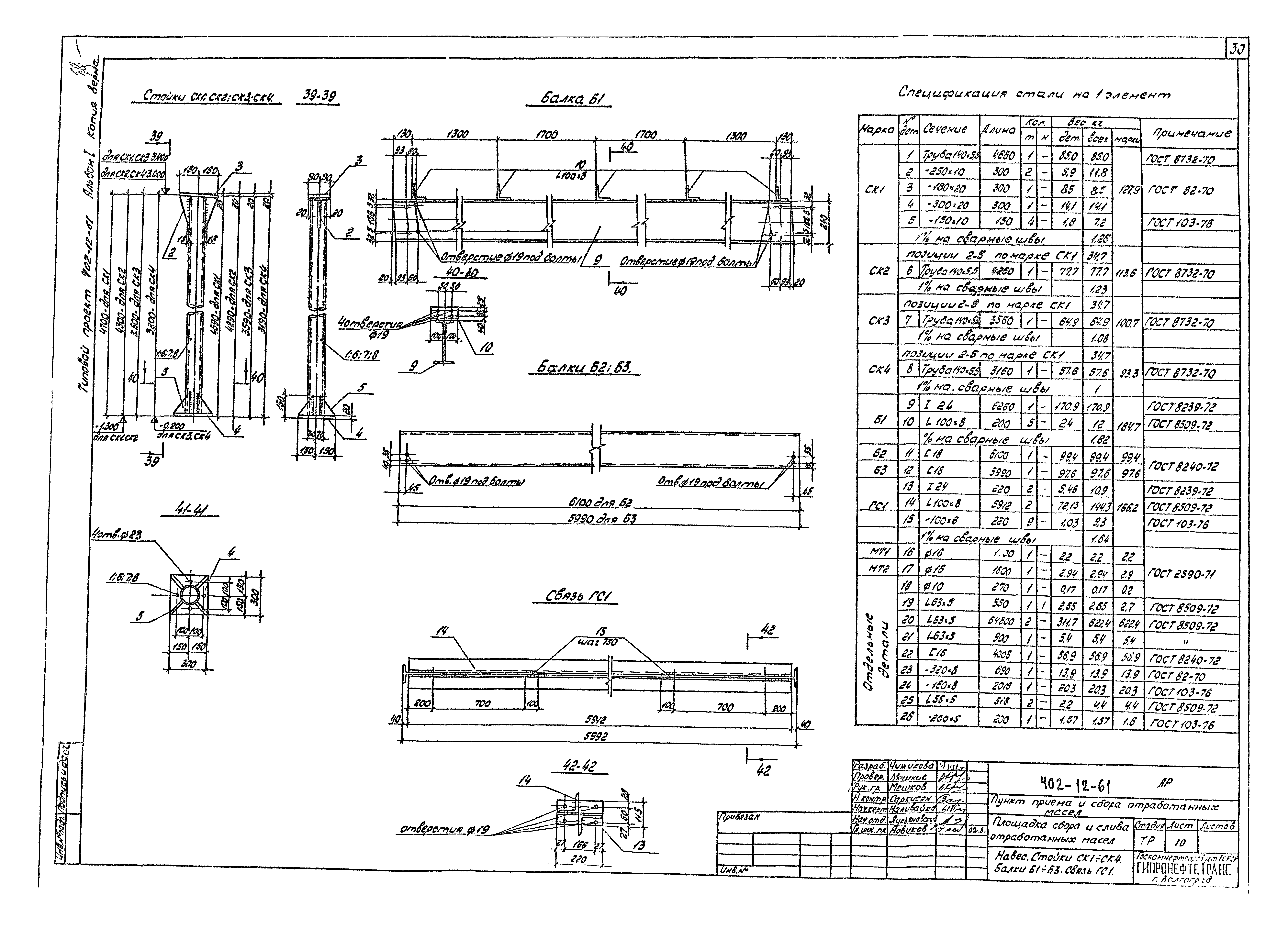
Скачать Типовой проект 402-12-61 Альбом I. Технологическая, архитектурно-строительная, санитарно-техническая, электротехническая частиДата актуализации: 01.01.2021 Типовой проект 402-12-61
Альбом I. Технологическая, архитектурно-строительная, санитарно-техническая, электротехническая части| Обозначение: | Типовой проект 402-12-61 | | Обозначение англ: | 402-12-61 | | Статус: | действует | | Название рус.: | Альбом I. Технологическая, архитектурно-строительная, санитарно-техническая, электротехническая части | | Дата добавления в базу: | 01.01.2019 | | Дата актуализации: | 01.01.2021 | | Дата введения: | 29.02.1980 | | Разработан: | Гипронефтетранс
| | Утверждён: | 28.04.1978 Главнефтеснаб РСФСР (124)
| | Издан: | ЦИТП Госстроя СССР (CITP, Gosstroy (USSR) 1983 г. )
| | Нормативные ссылки: | |
                                                      
|