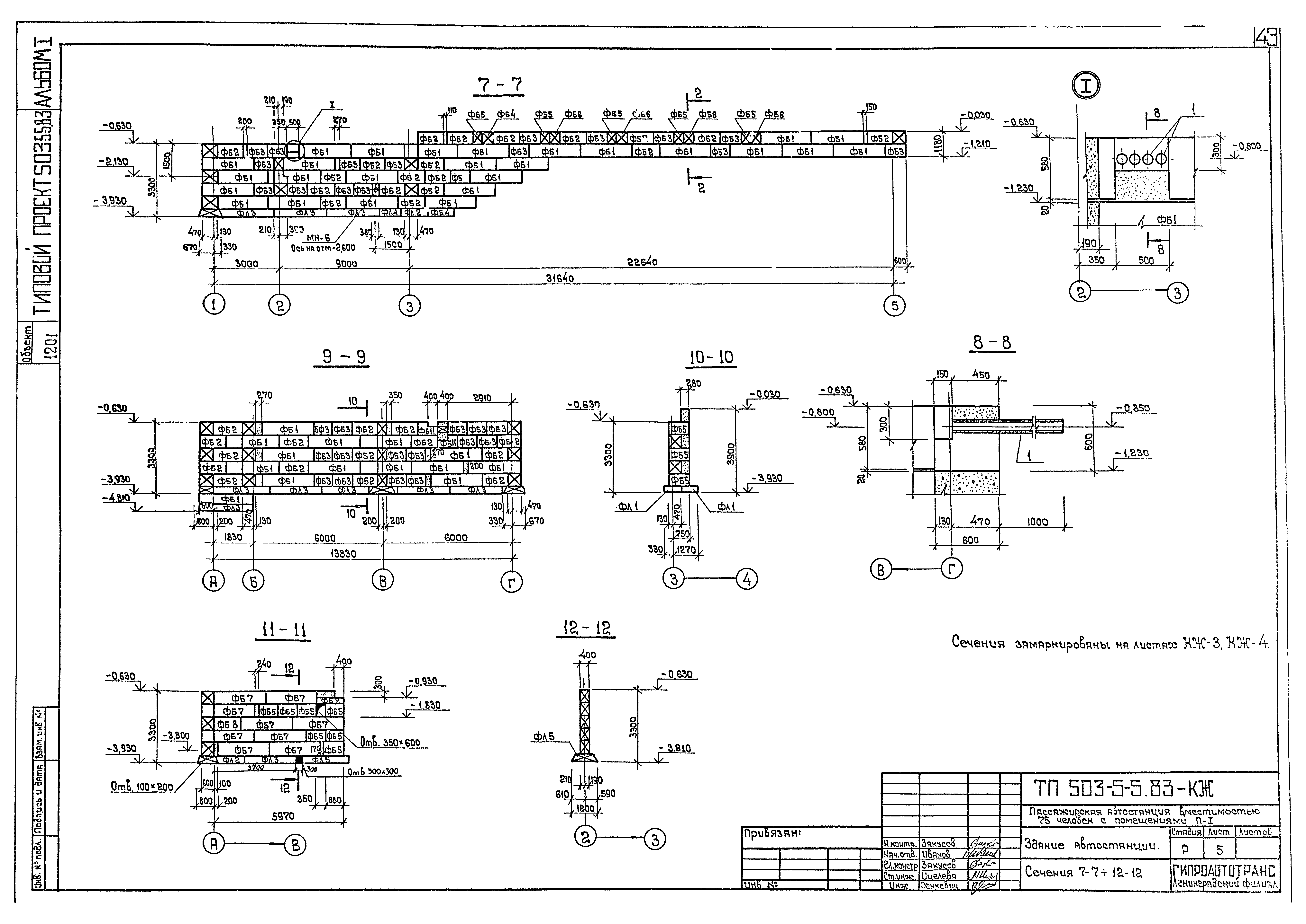
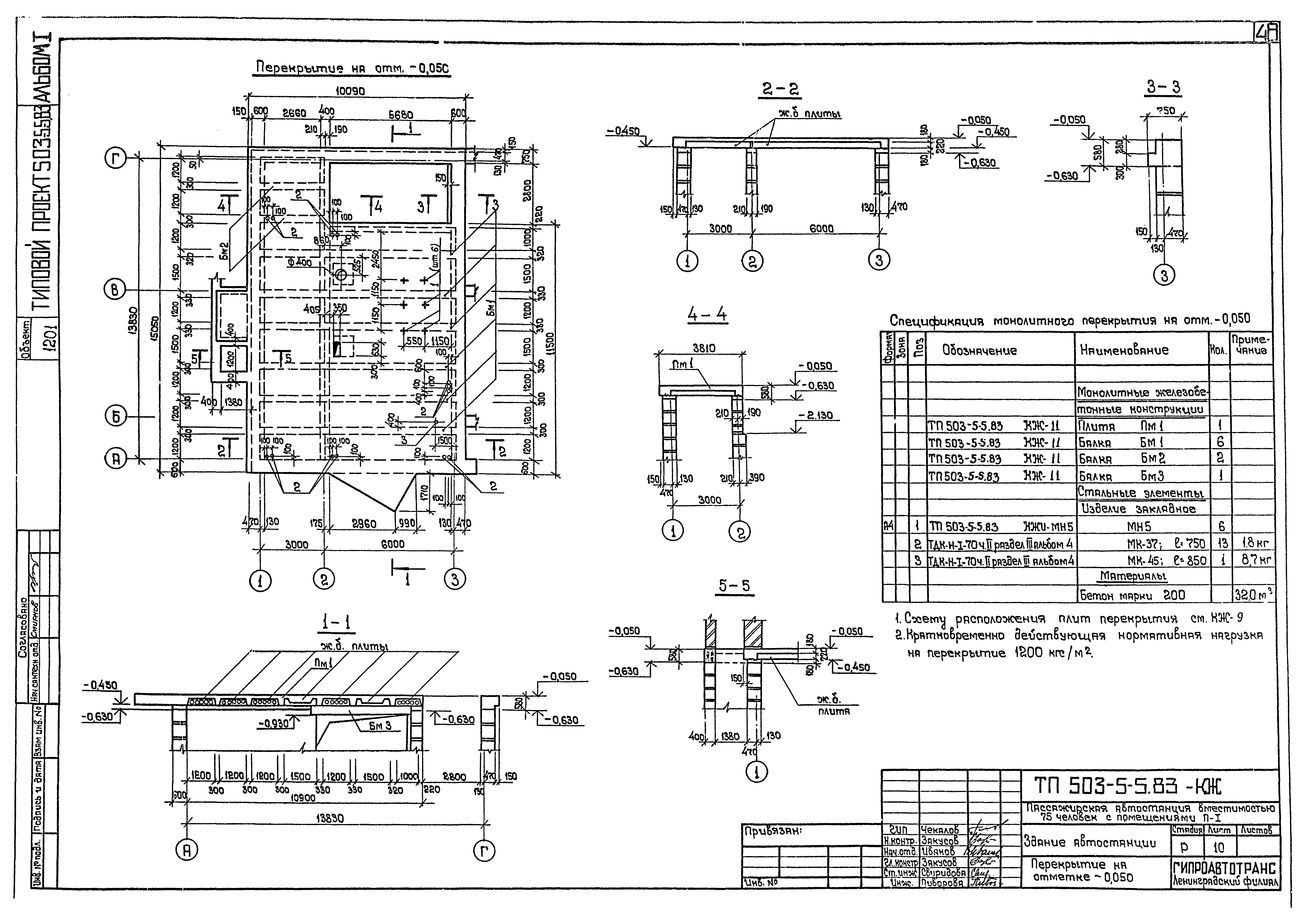
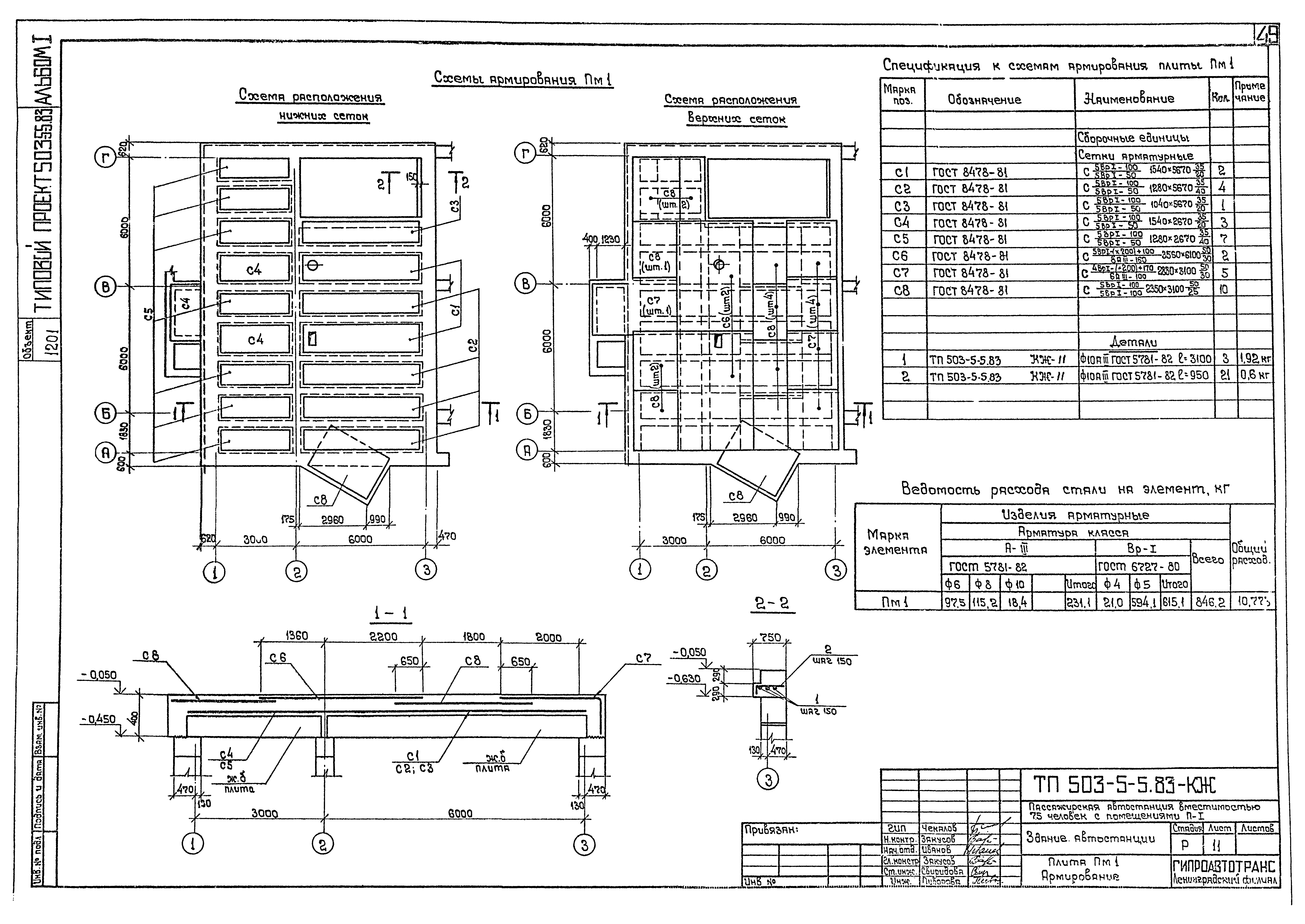
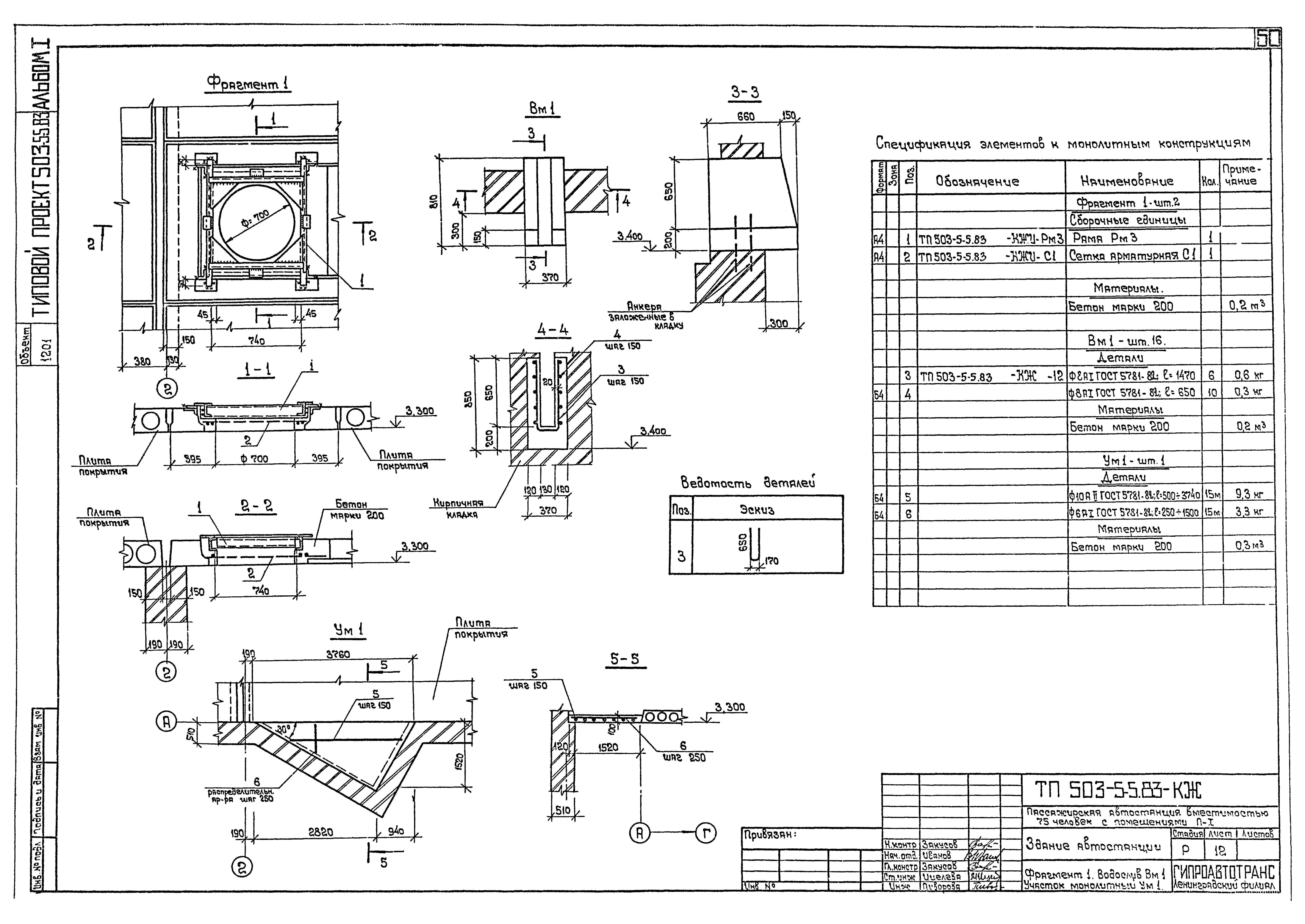
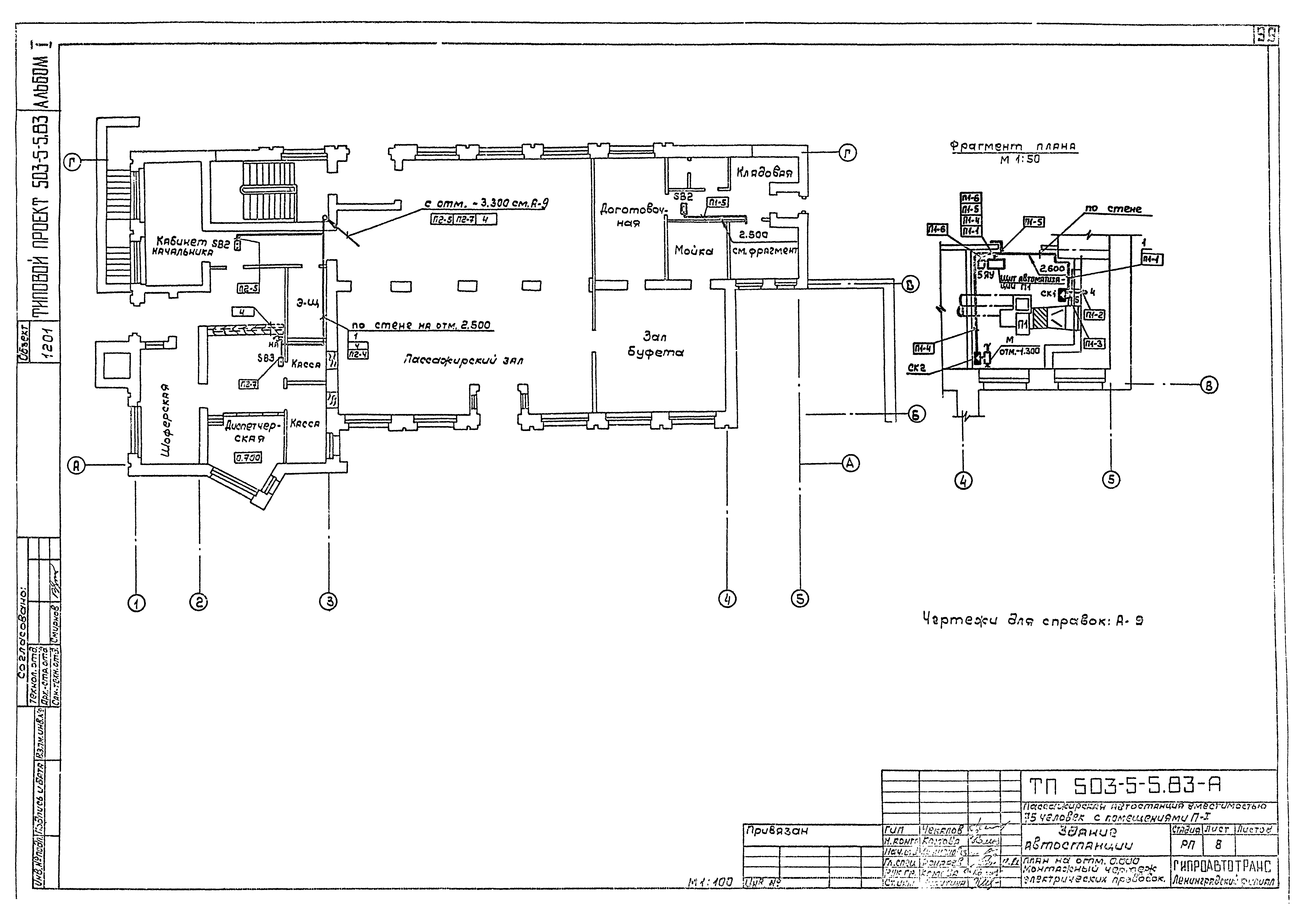
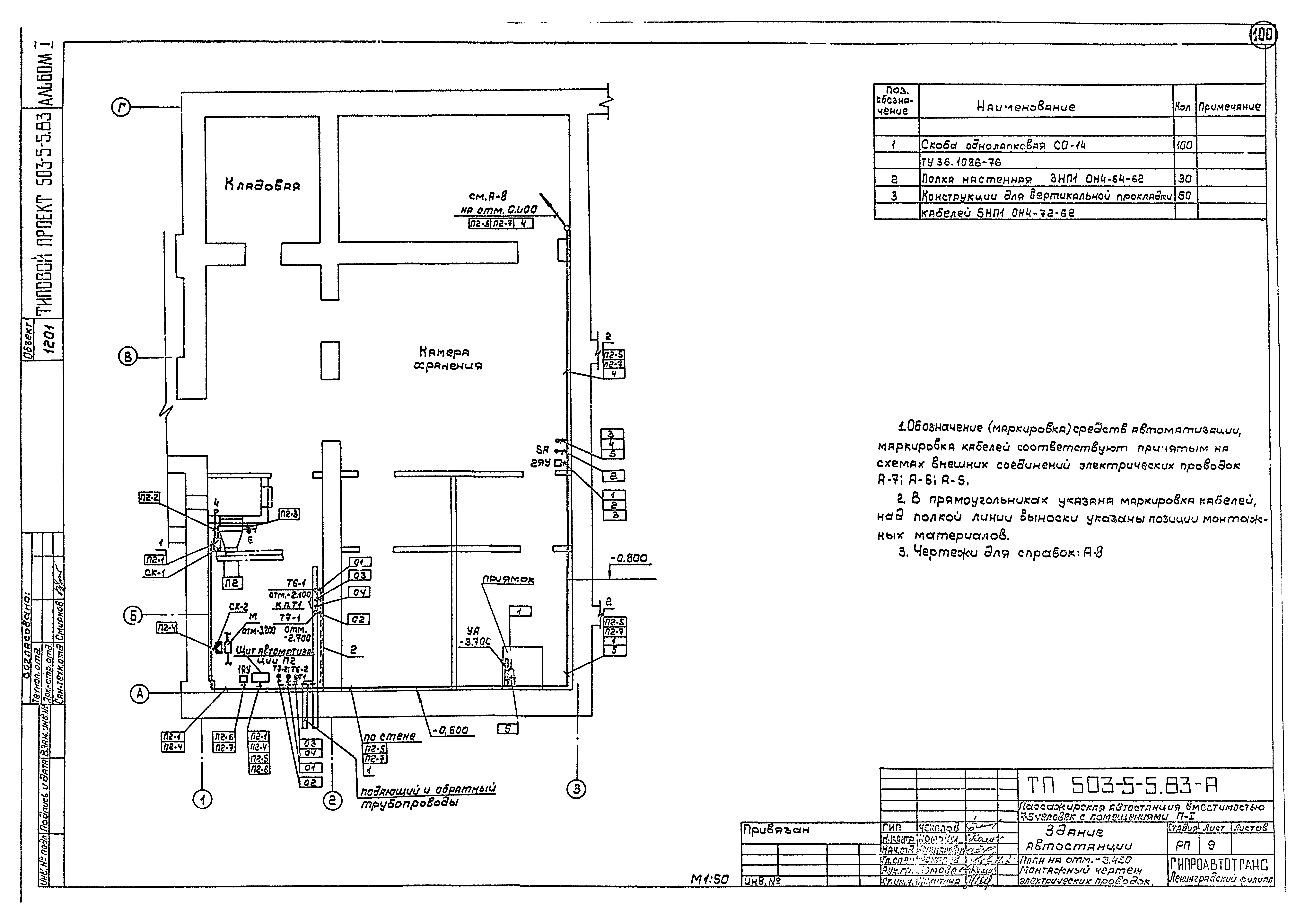
Скачать Типовой проект 503-5-5.83 Альбом I. Пояснительная записка. Архитектурные решения. Конструкции железобетонные. Конструкции металлические. Отопление и вентиляция. Водоснабжение и канализация. Электрическое освещение. Силовое электрооборудование. Связь и сигнализация. АвтоматизацияДата актуализации: 01.01.2021 Типовой проект 503-5-5.83
Альбом I. Пояснительная записка. Архитектурные решения. Конструкции железобетонные. Конструкции металлические. Отопление и вентиляция. Водоснабжение и канализация. Электрическое освещение. Силовое электрооборудование. Связь и сигнализация. Автоматизация| Обозначение: | Типовой проект 503-5-5.83 | | Обозначение англ: | 503-5-5.83 | | Статус: | действует | | Название рус.: | Альбом I. Пояснительная записка. Архитектурные решения. Конструкции железобетонные. Конструкции металлические. Отопление и вентиляция. Водоснабжение и канализация. Электрическое освещение. Силовое электрооборудование. Связь и сигнализация. Автоматизация | | Дата добавления в базу: | 01.01.2019 | | Дата актуализации: | 01.01.2021 | | Дата введения: | 04.02.1983 | | Разработан: | Гипроавтотранс
| | Утверждён: | 04.02.1983 Минавтотранс РСФСР (Russian Federation Minavtotrans 10)
| | Издан: | ЦИТП Госстроя СССР (CITP, Gosstroy (USSR) 1984 г. )
| | Нормативные ссылки: | |
                                                                                                    
|