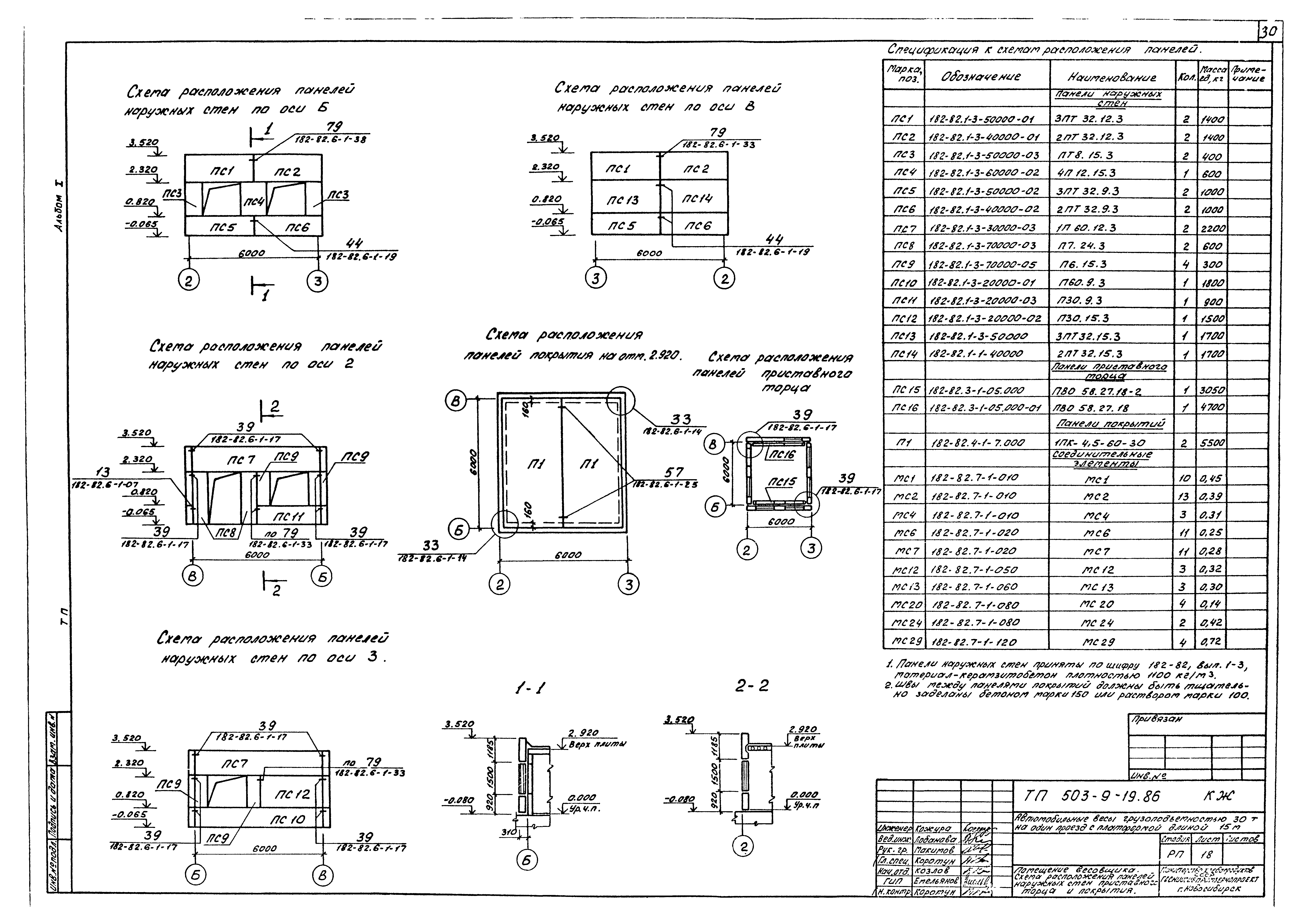
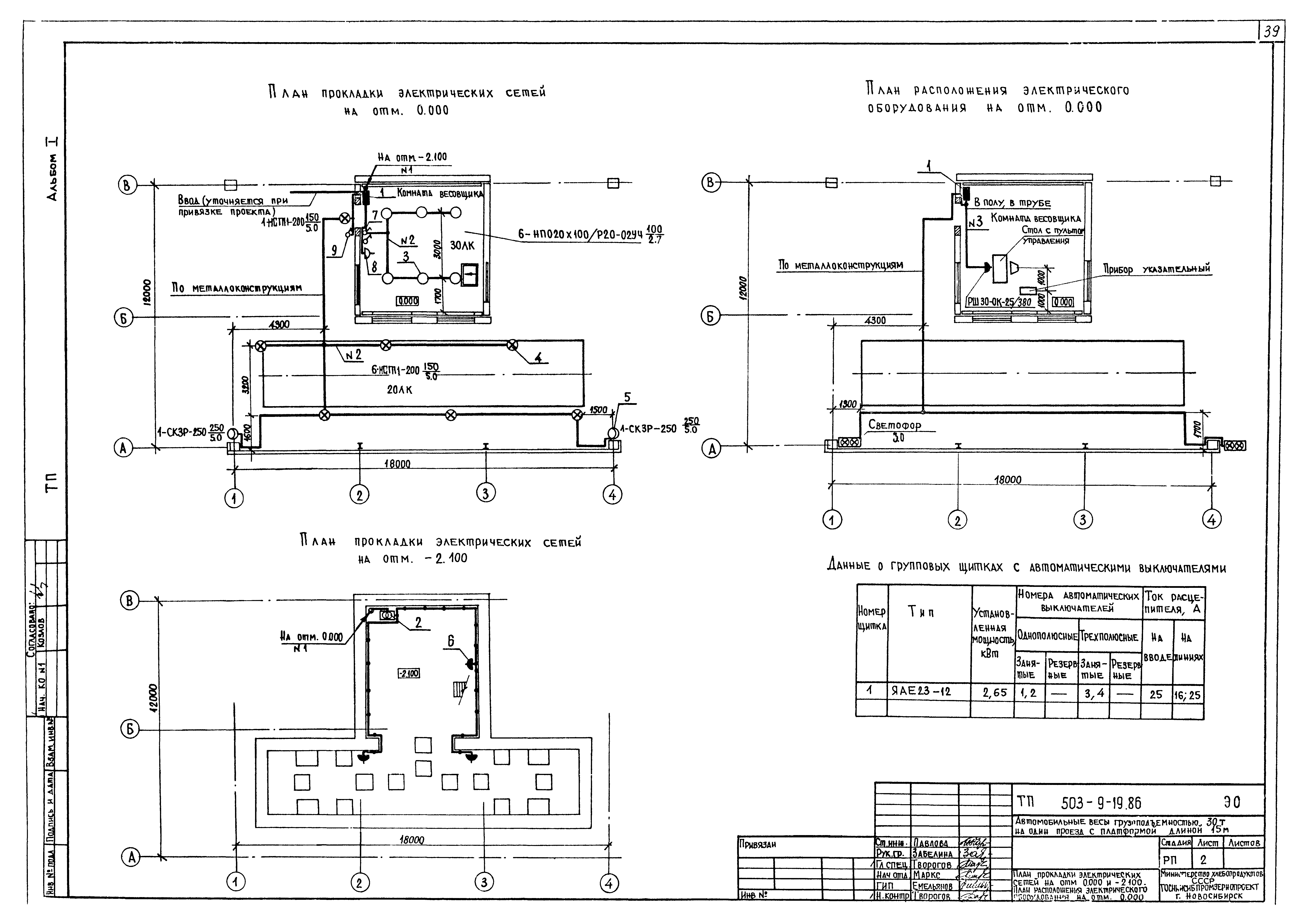
Скачать Типовой проект 503-9-19.86 Альбом I. Общая пояснительная записка. Схема генерального плана. Архитектурные решения. Конструкции железобетонные. Конструкции металлические. Отопление и вентиляция. Электрическое освещение. Связь и сигнализацияДата актуализации: 01.01.2021 Типовой проект 503-9-19.86
Альбом I. Общая пояснительная записка. Схема генерального плана. Архитектурные решения. Конструкции железобетонные. Конструкции металлические. Отопление и вентиляция. Электрическое освещение. Связь и сигнализация| Обозначение: | Типовой проект 503-9-19.86 | | Обозначение англ: | 503-9-19.86 | | Статус: | действует | | Название рус.: | Альбом I. Общая пояснительная записка. Схема генерального плана. Архитектурные решения. Конструкции железобетонные. Конструкции металлические. Отопление и вентиляция. Электрическое освещение. Связь и сигнализация | | Дата добавления в базу: | 01.01.2019 | | Дата актуализации: | 01.01.2021 | | Дата введения: | 05.09.1986 | | Разработан: | Госниисибпромзернопроект
| | Утверждён: | 10.07.1986 ГлавУПКС Минхлебопродуктов СССР (25-2-9/399)
| | Заменяет собой: | |
                                        
|