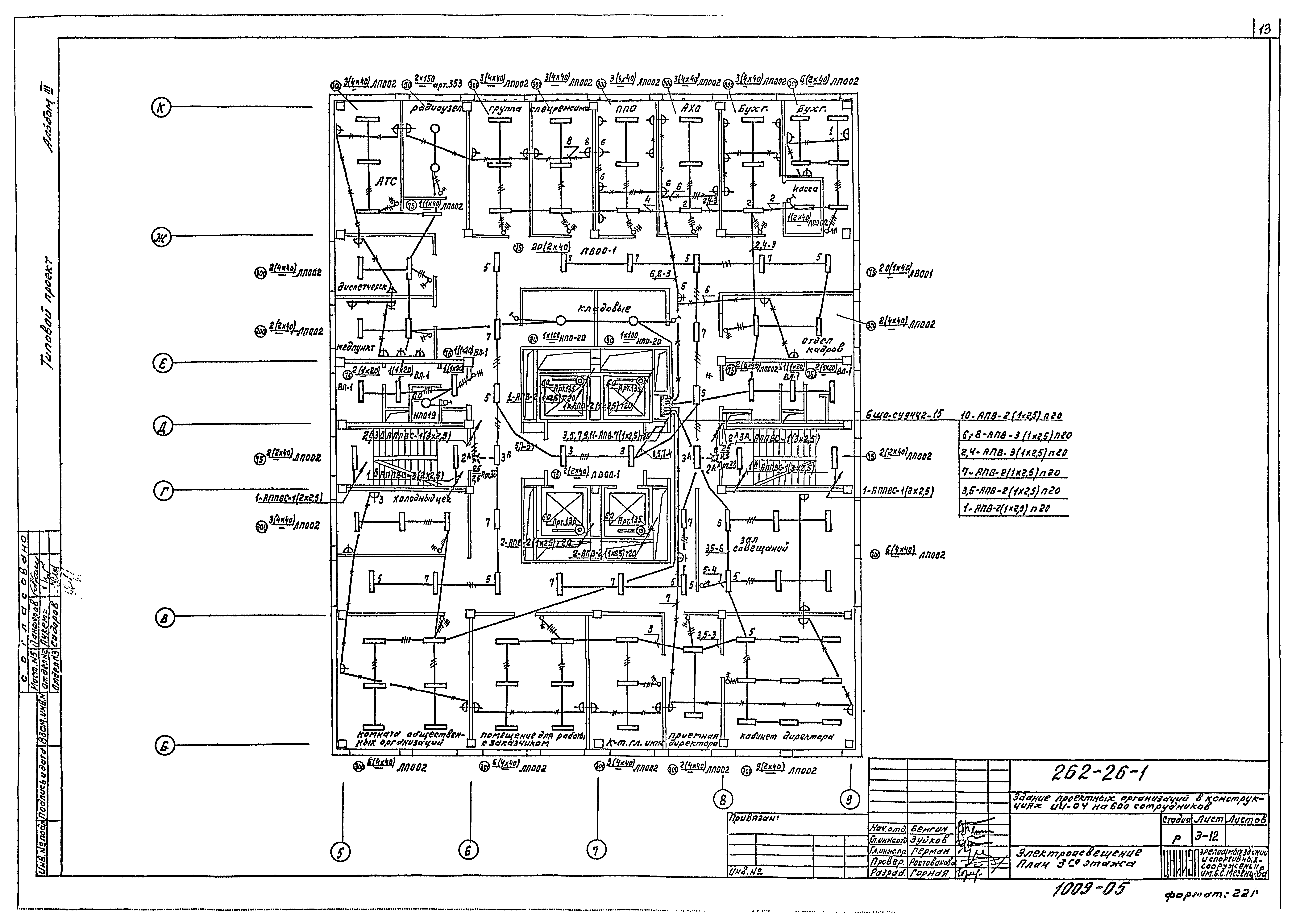
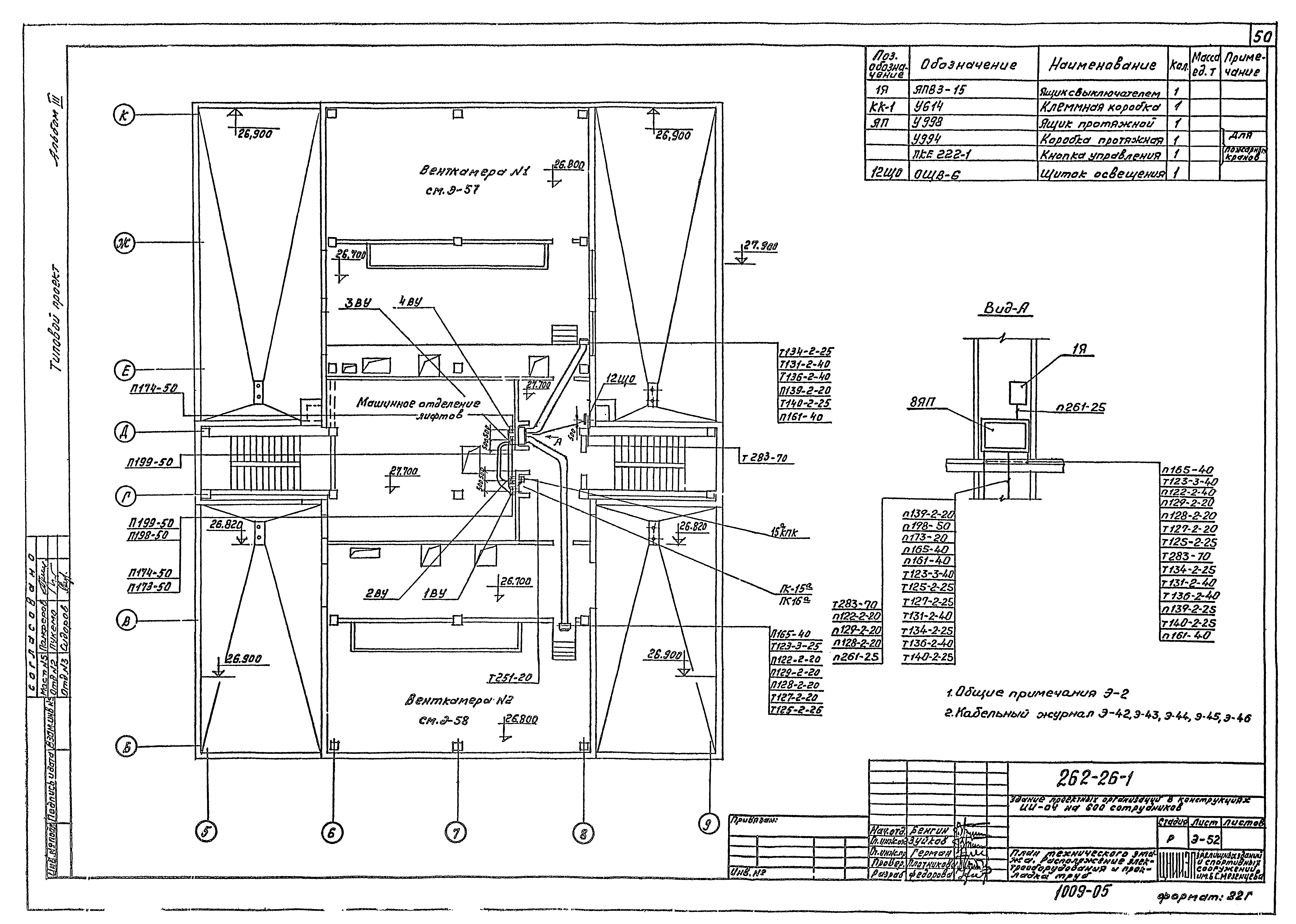
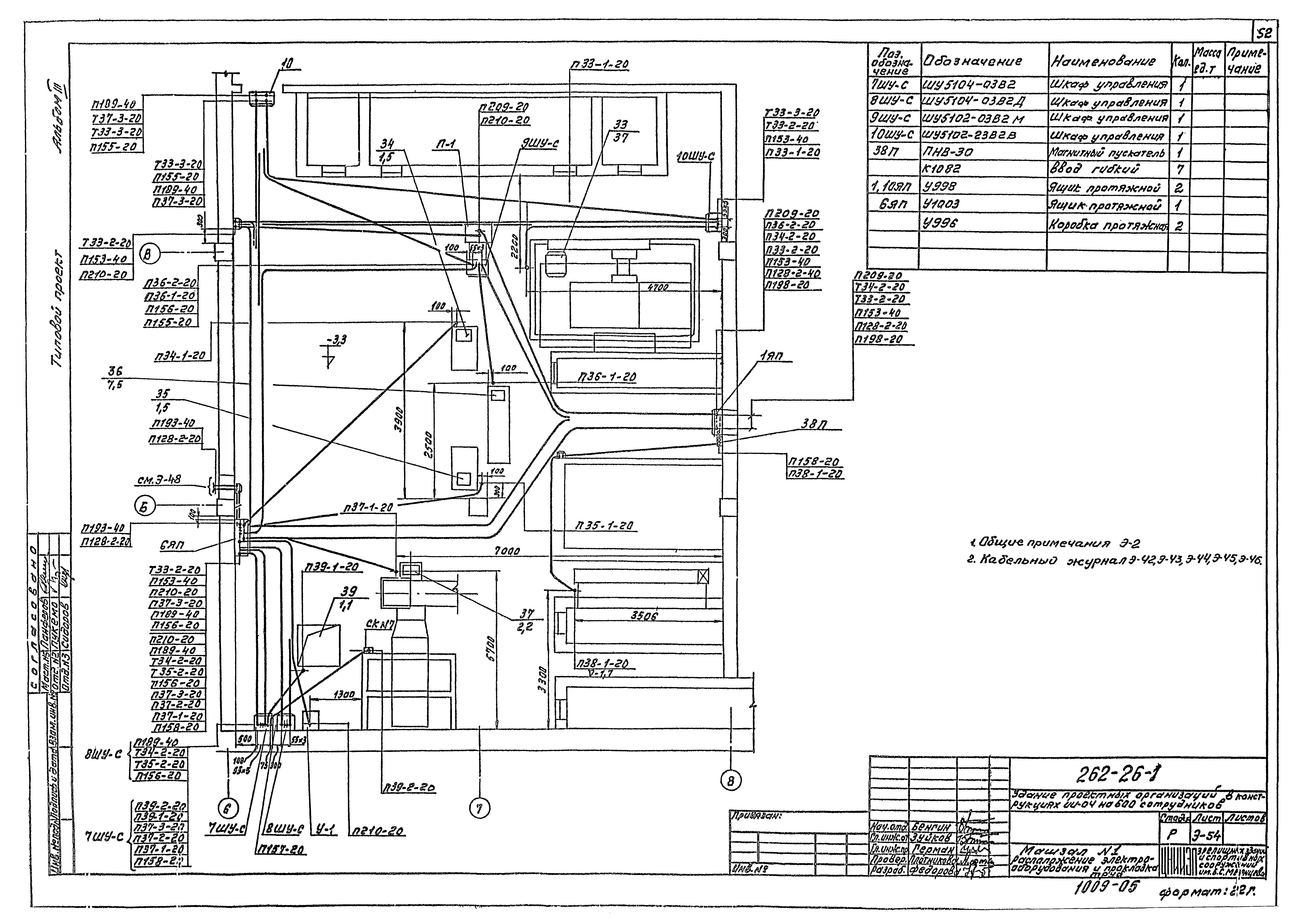
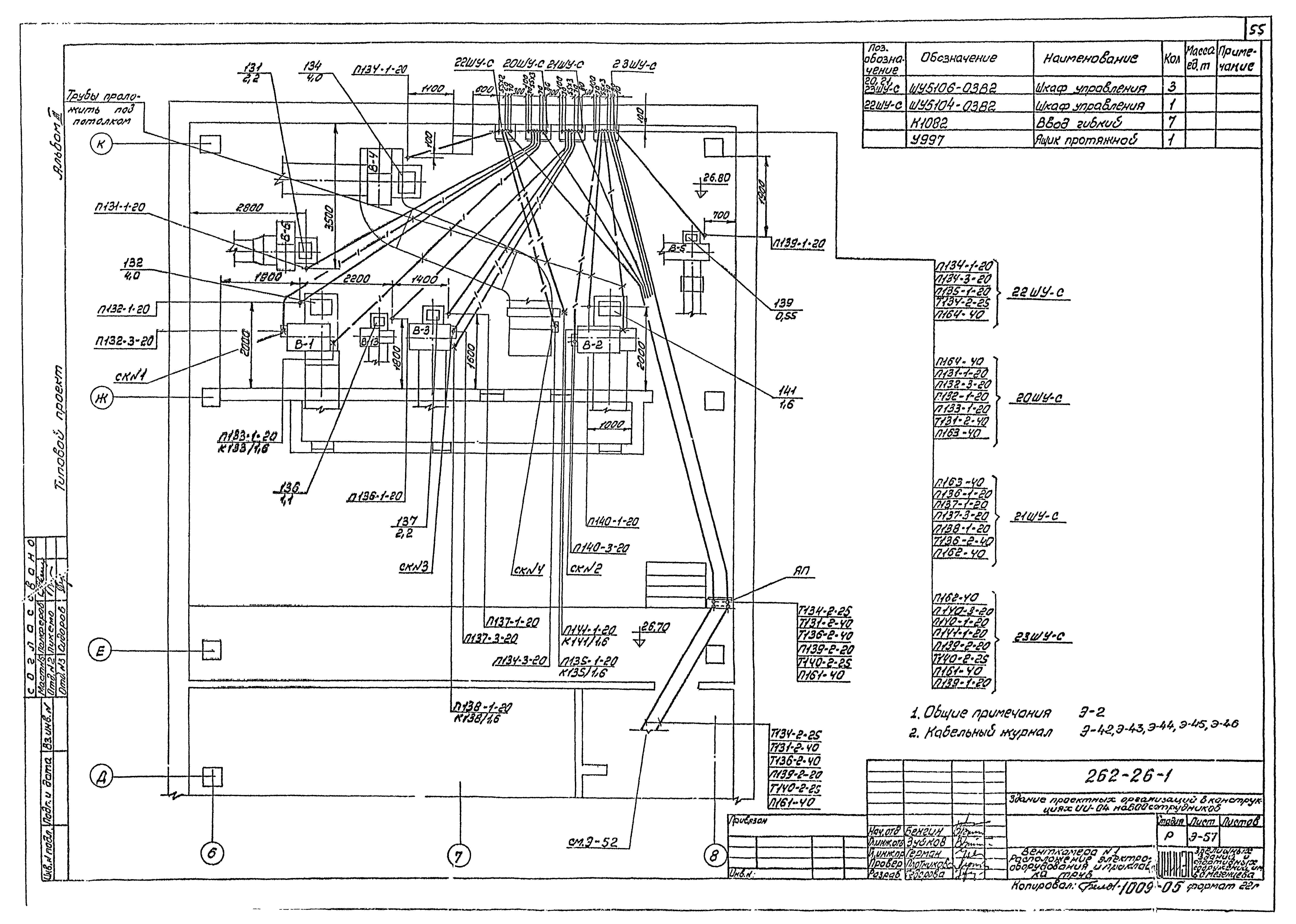
Скачать Типовой проект 262-26-1 Альбом III. ЭлектрооборудованиеДата актуализации: 01.01.2021 Типовой проект 262-26-1
Альбом III. Электрооборудование| Обозначение: | Типовой проект 262-26-1 | | Обозначение англ: | 262-26-1 | | Статус: | отменен | | Название рус.: | Альбом III. Электрооборудование | | Дата добавления в базу: | 01.01.2019 | | Дата актуализации: | 01.01.2021 | | Дата введения: | 14.07.1981 | | Дата окончания срока действия: | 01.07.1988 | | Разработан: | ЦНИИЭП зрелищных зданий и спортивных сооружений им. Б.С. Мезенцева
| | Утверждён: | 25.01.1980 Госгражданстрой (Gosgrazhdanstroy 23)
|
                                                       
|