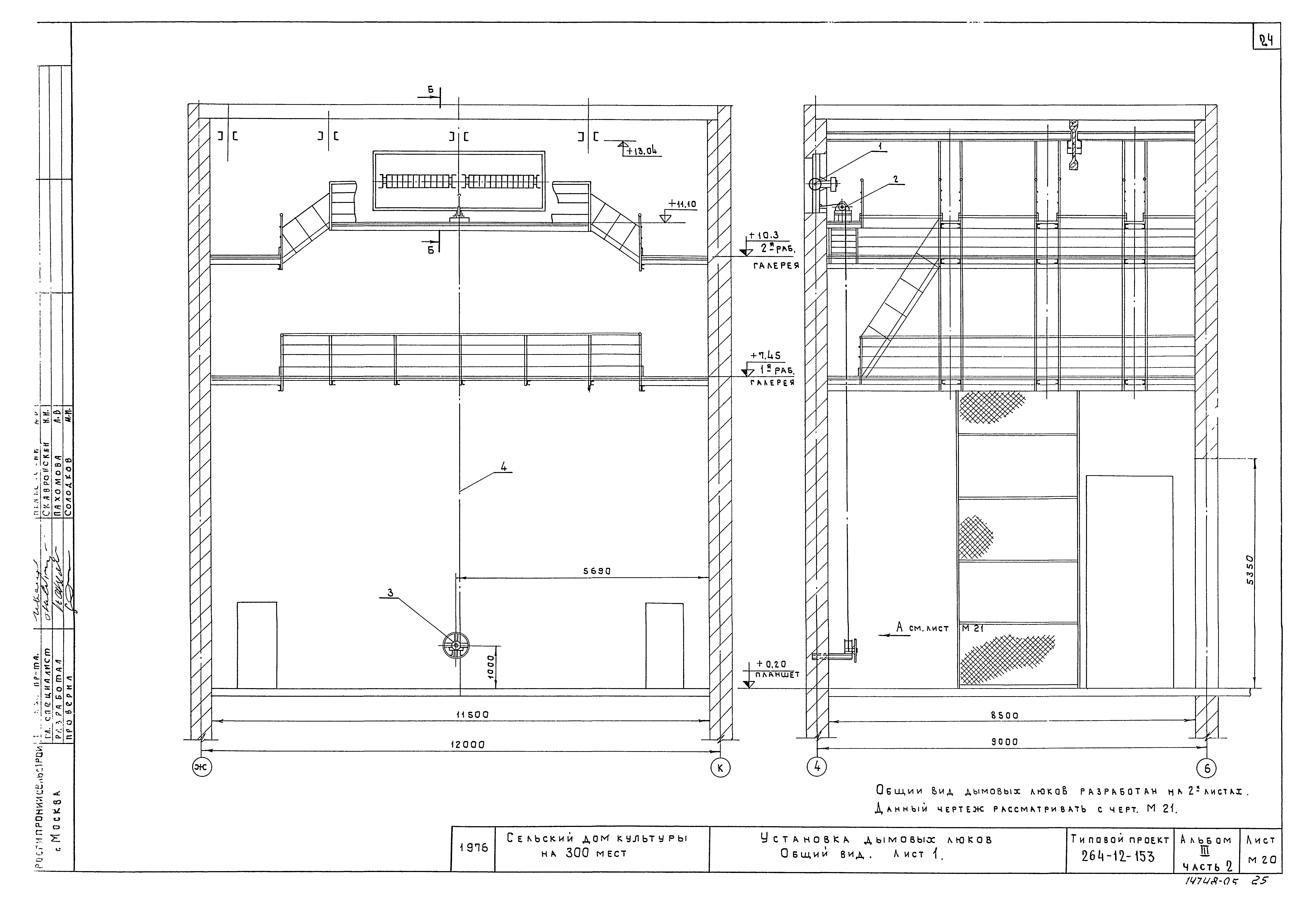
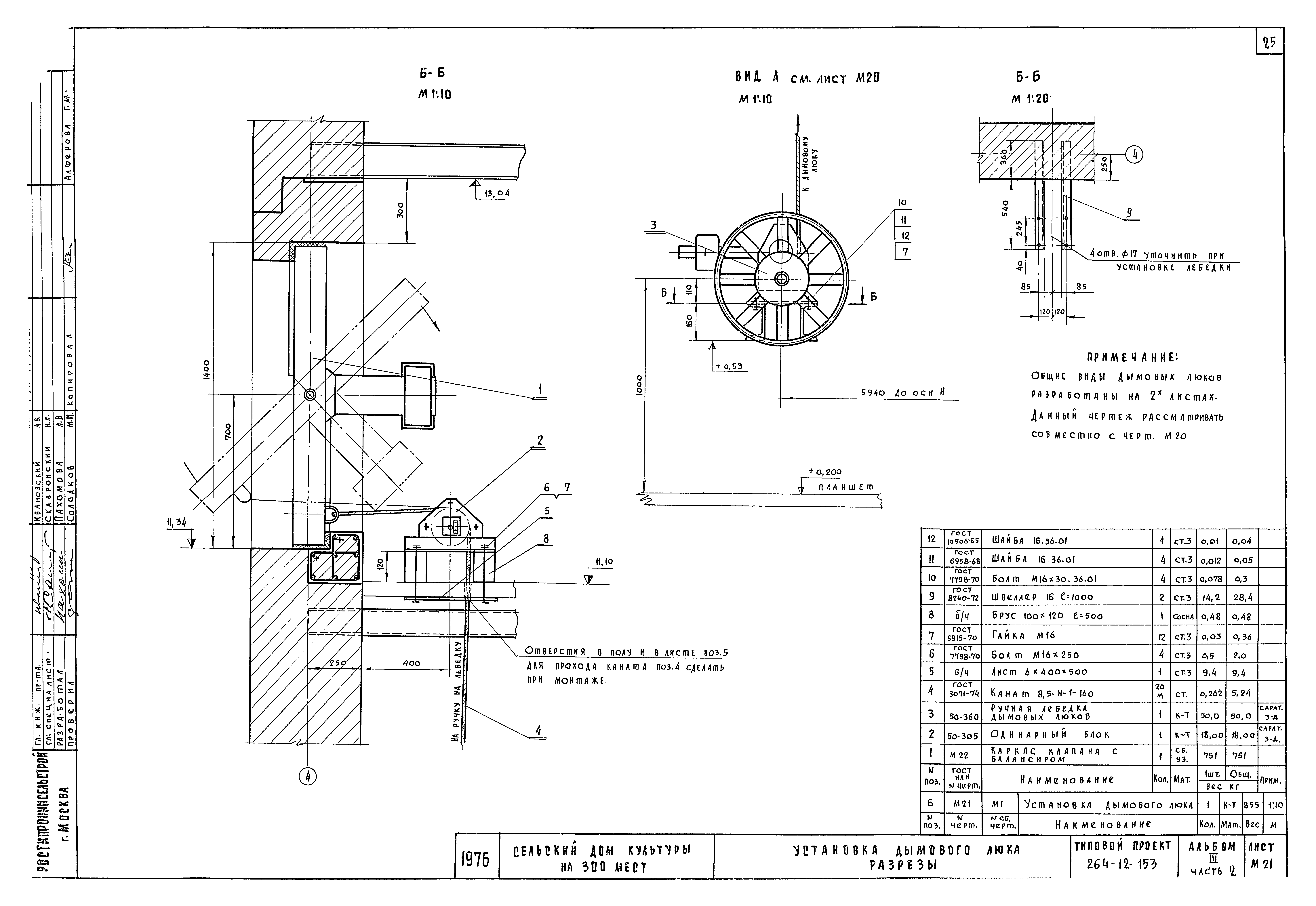
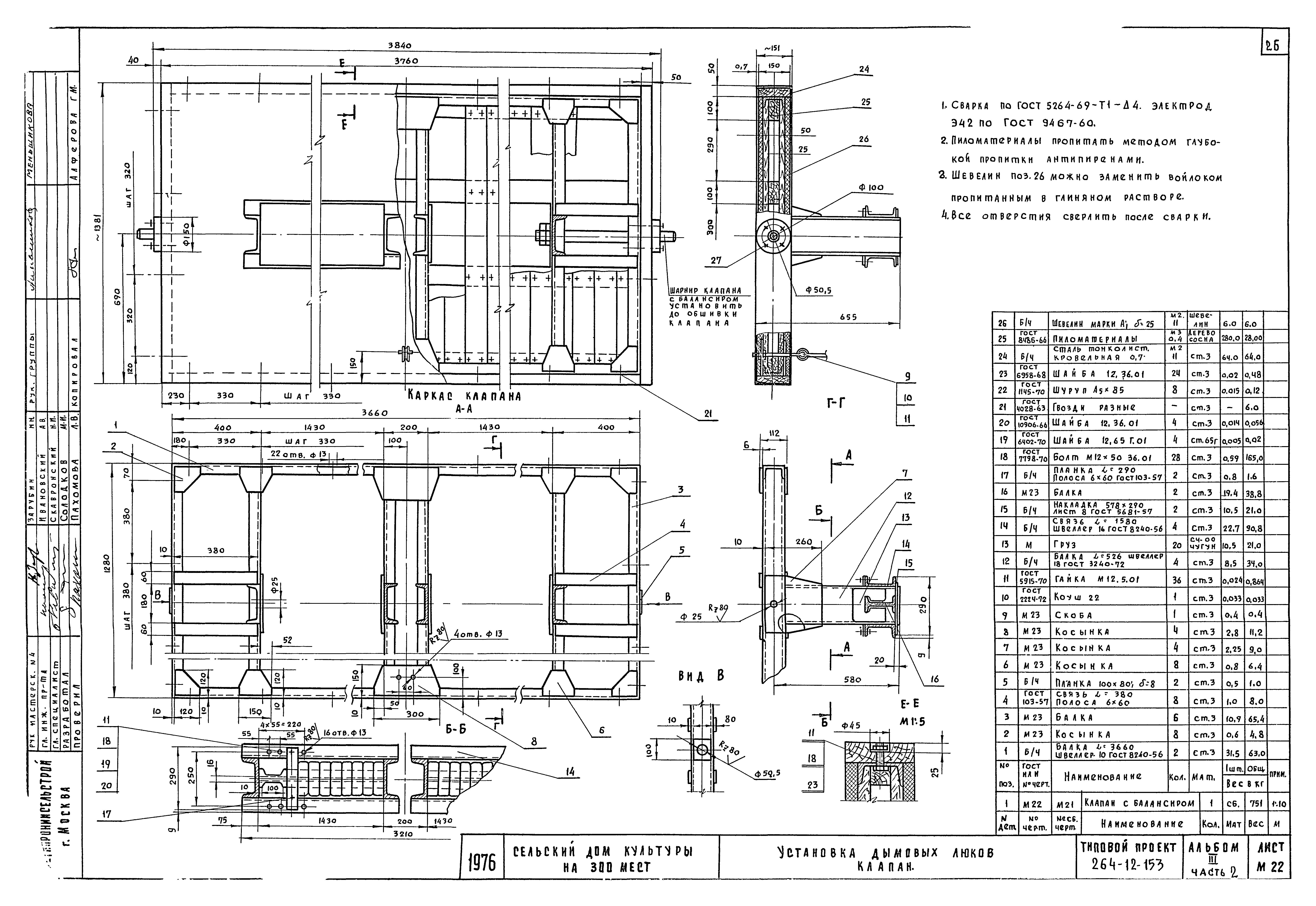
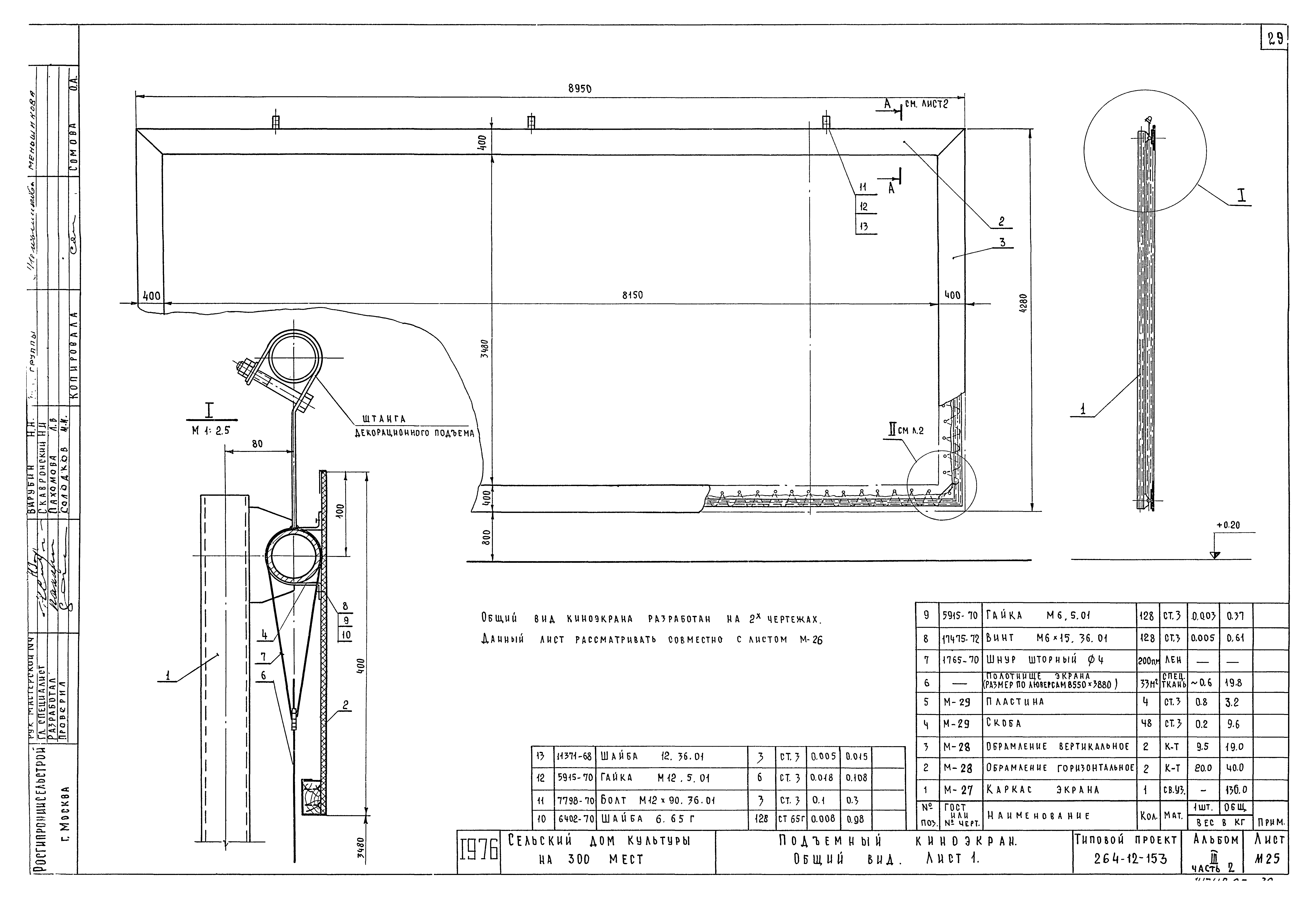
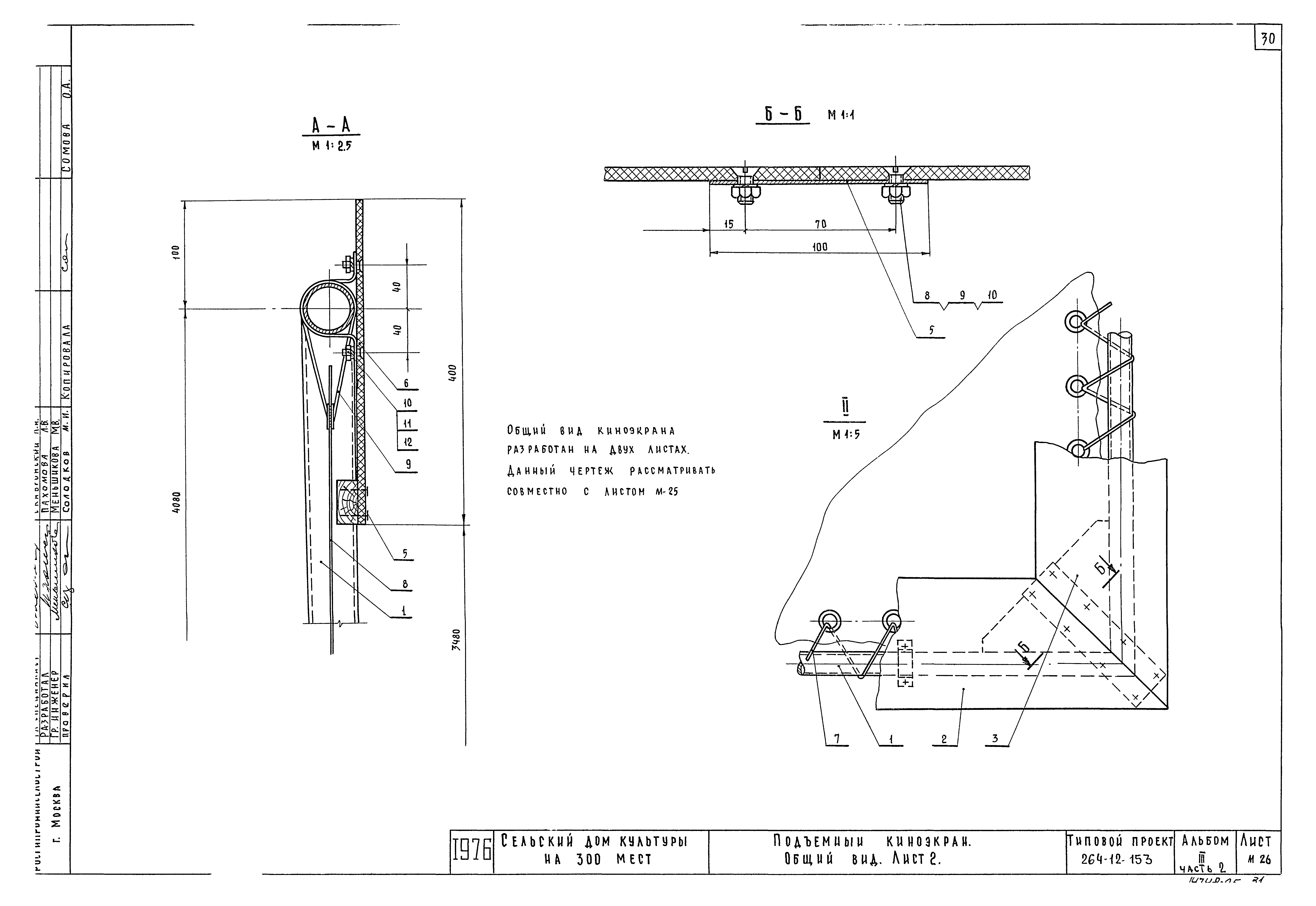
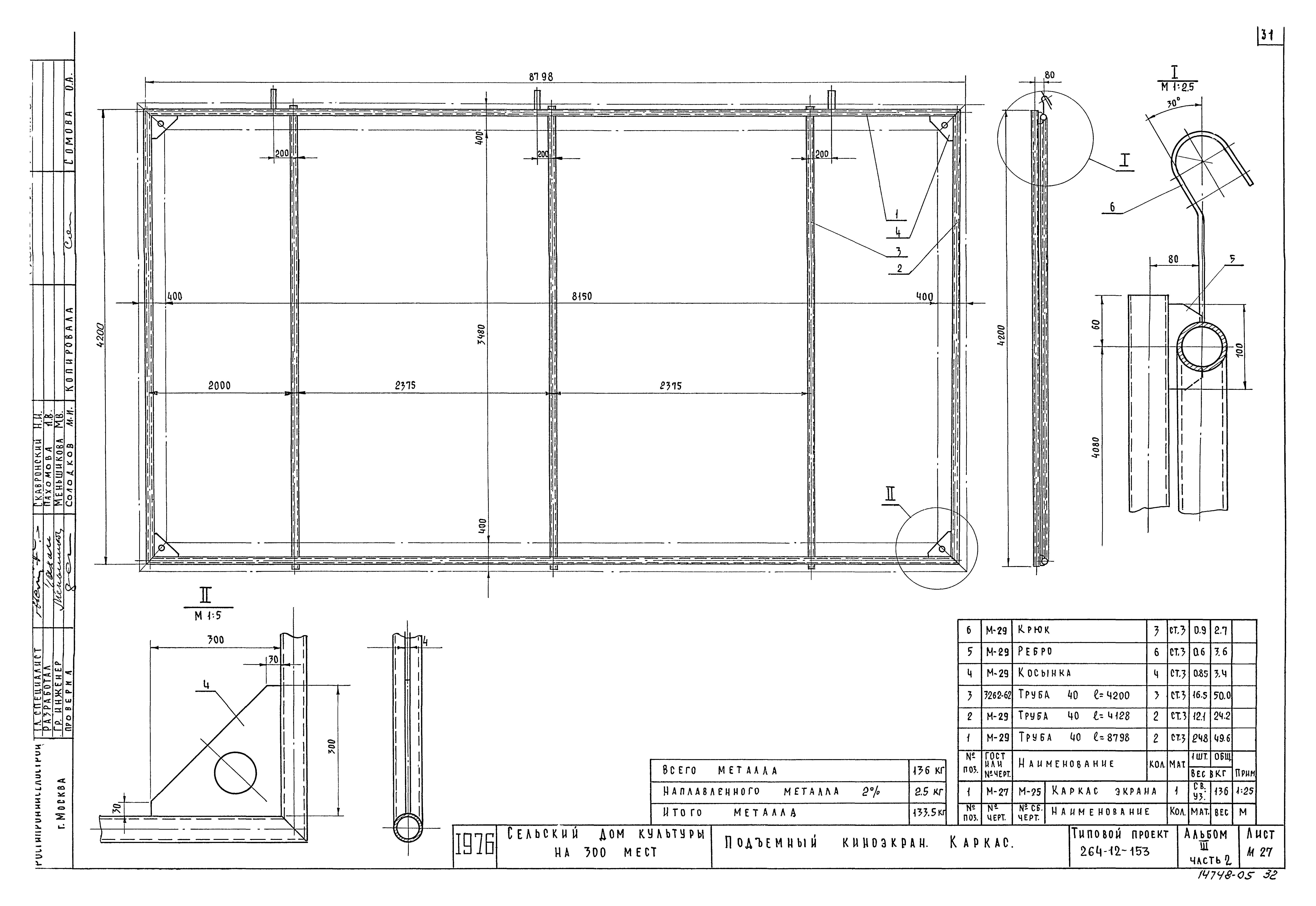
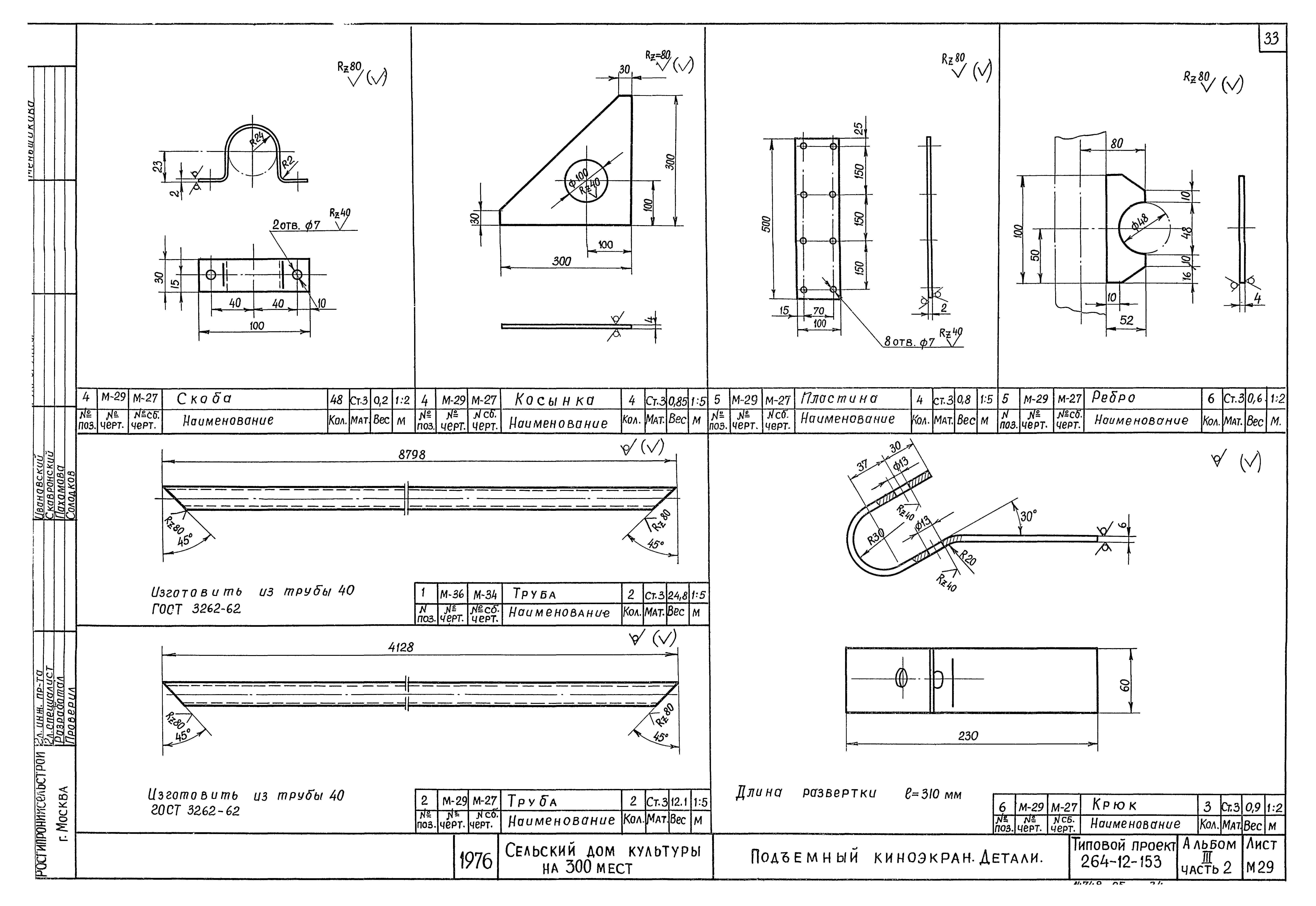
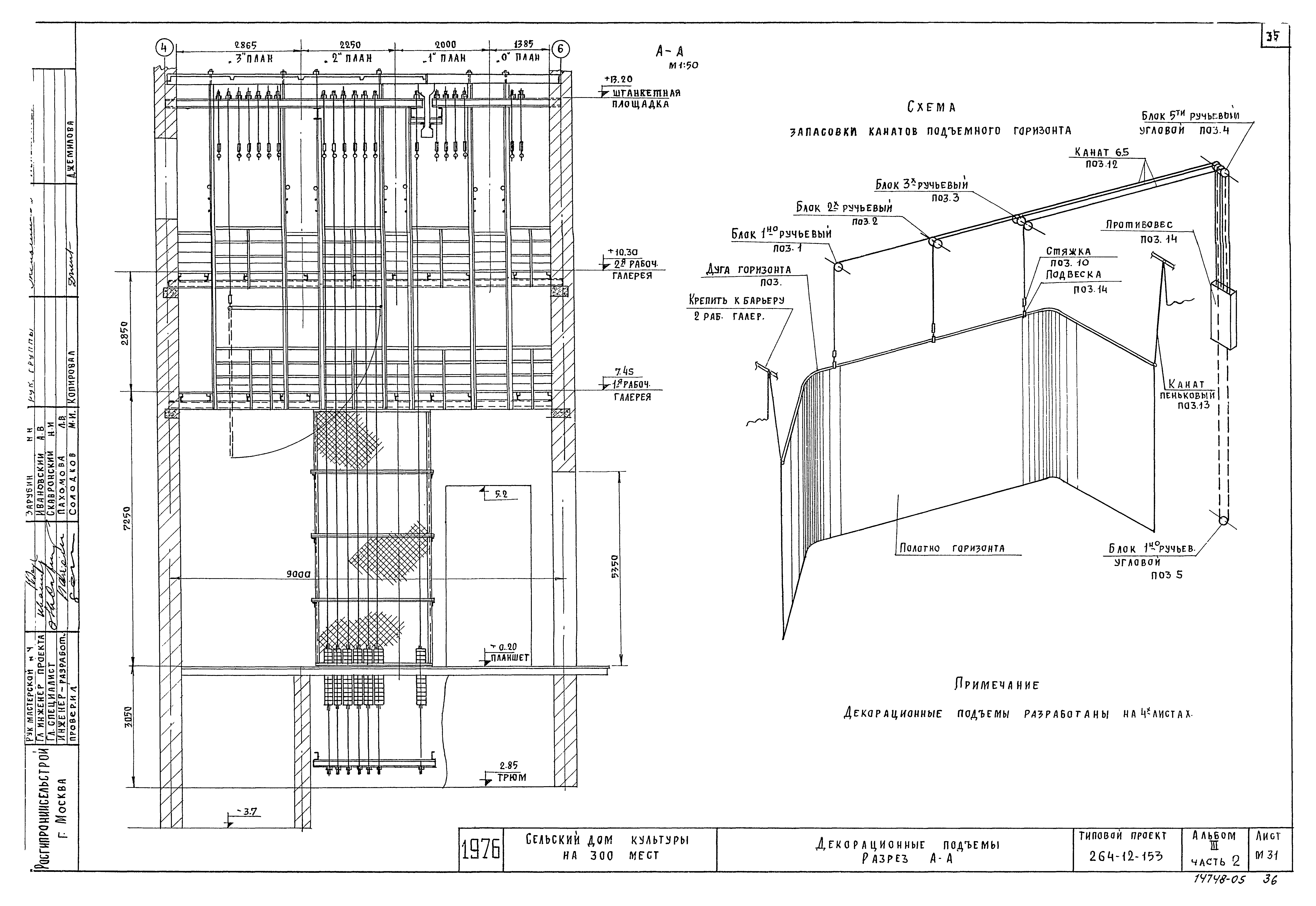
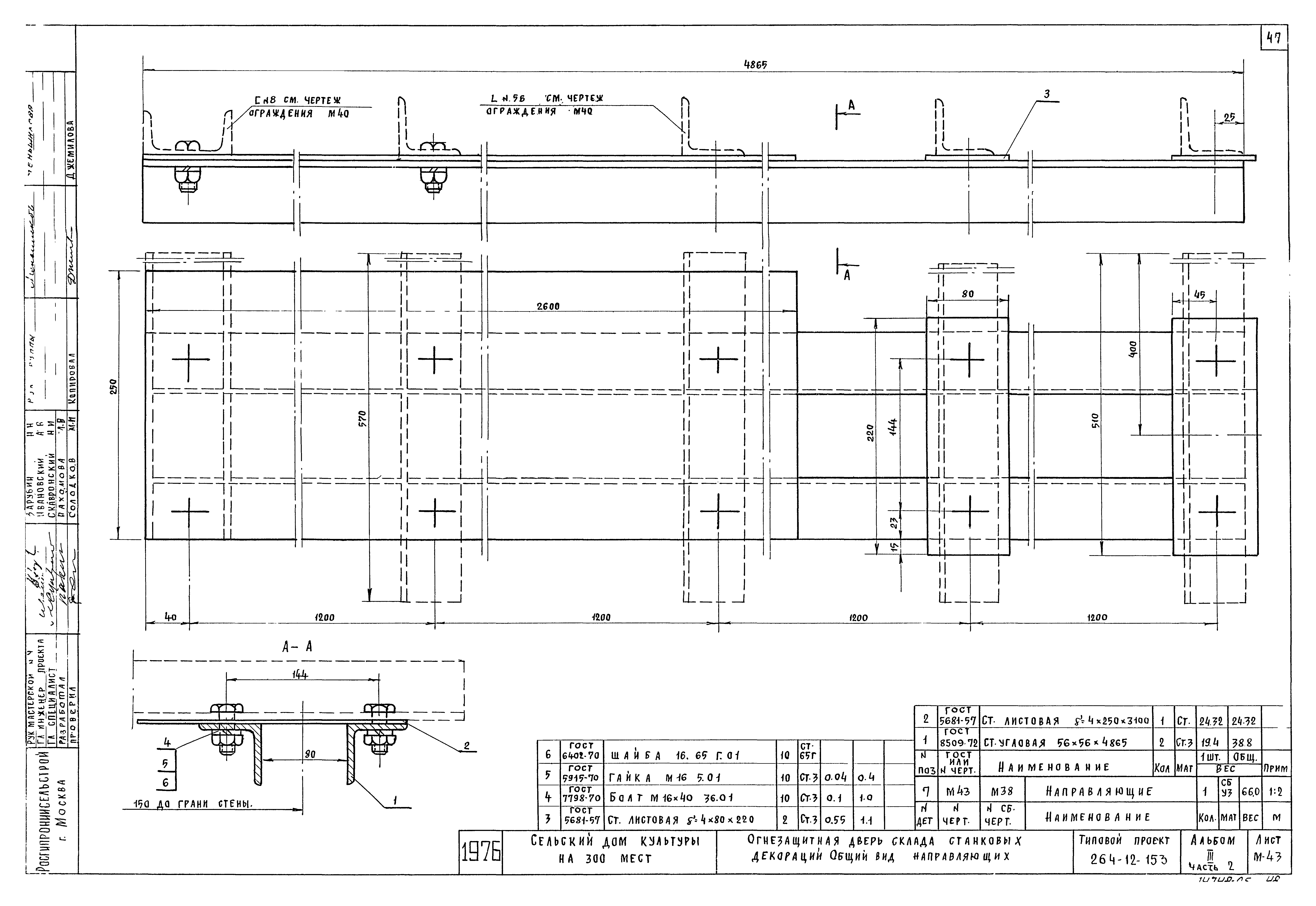
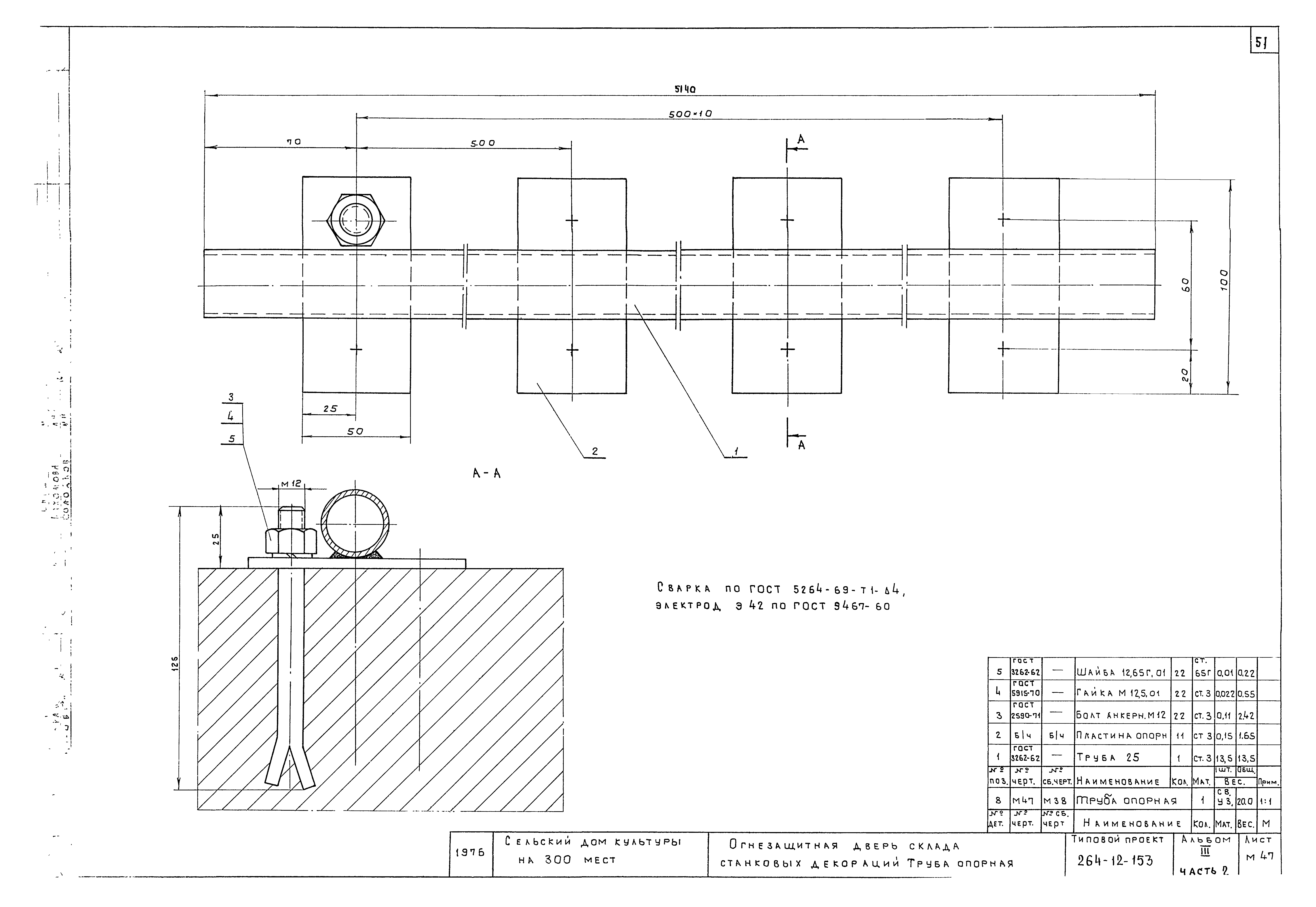
Скачать Типовой проект 264-12-153 Альбом III. Часть II. Механическое оборудованиеДата актуализации: 01.01.2021 Типовой проект 264-12-153
Альбом III. Часть II. Механическое оборудование| Обозначение: | Типовой проект 264-12-153 | | Обозначение англ: | 264-12-153 | | Статус: | действует | | Название рус.: | Альбом III. Часть II. Механическое оборудование | | Дата добавления в базу: | 01.01.2019 | | Дата актуализации: | 01.01.2021 | | Дата введения: | 04.11.1977 | | Разработан: | Росгипрониисельстрой
| | Утверждён: | 29.04.1977 Госстрой РСФСР (Russian Federation Gosstroy 39)
| | Издан: | ЦИТП Госстроя СССР (CITP, Gosstroy (USSR) 1985 г. )
| | Заменяет собой: | |
                                                     
|