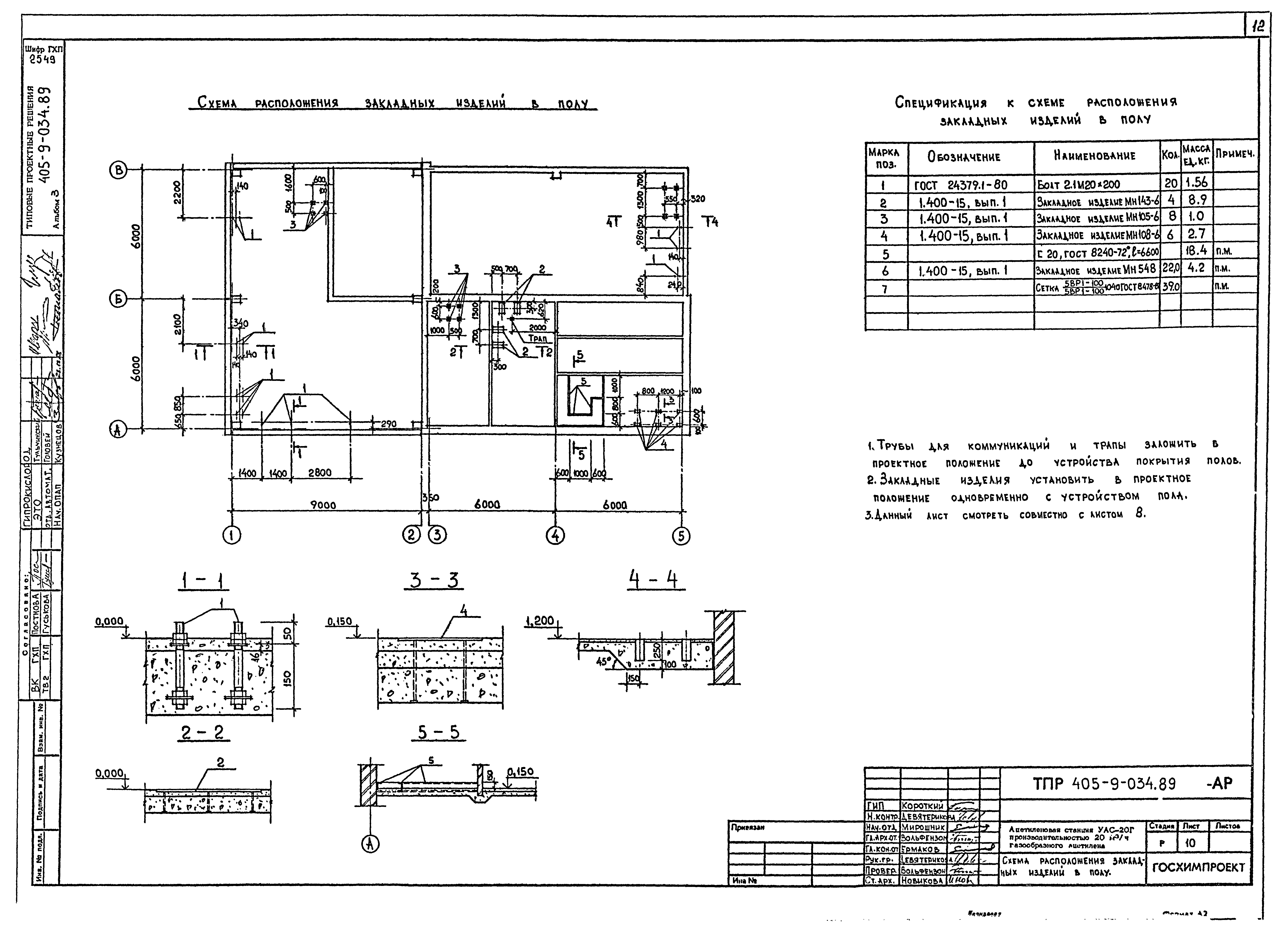
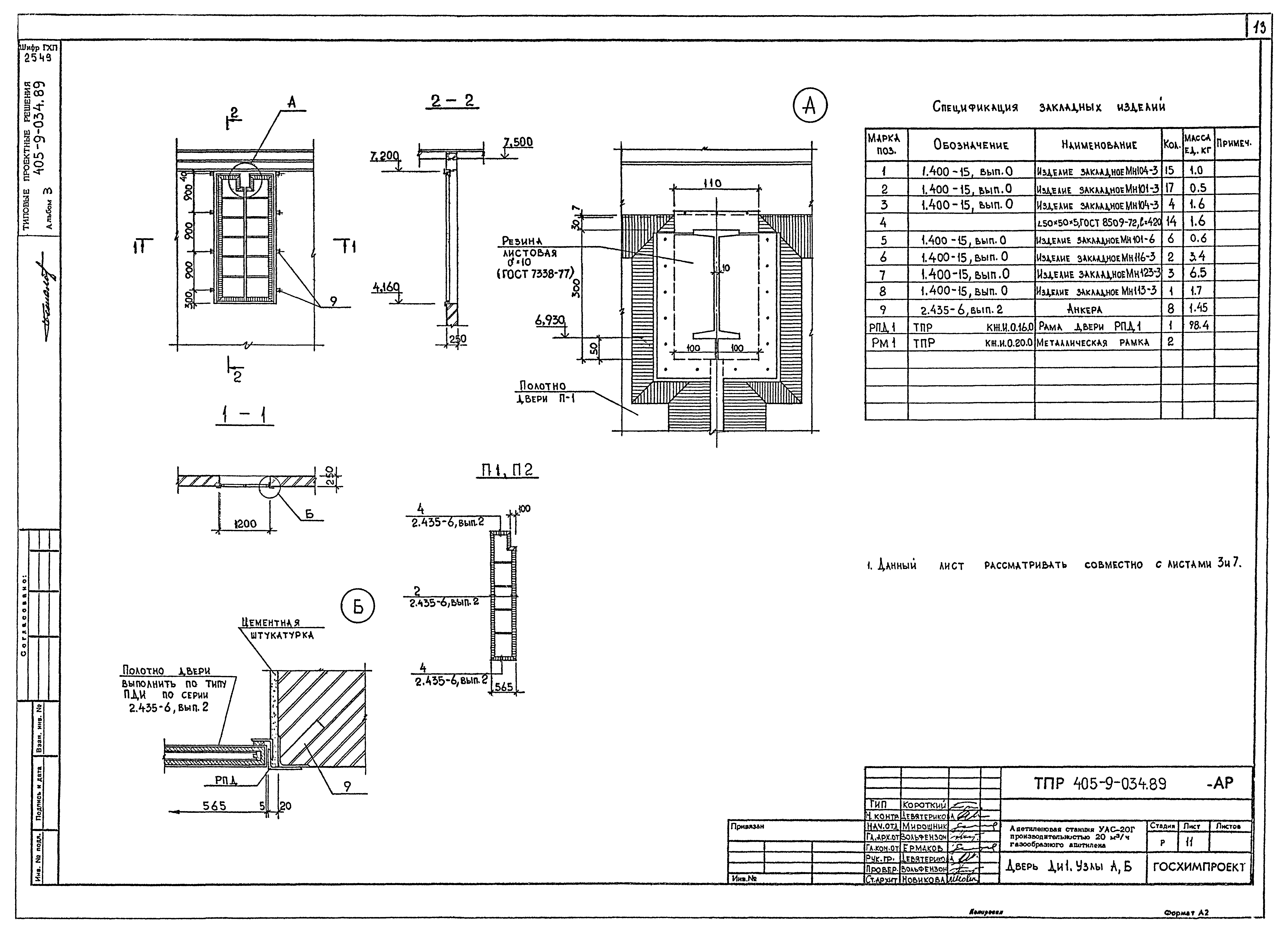
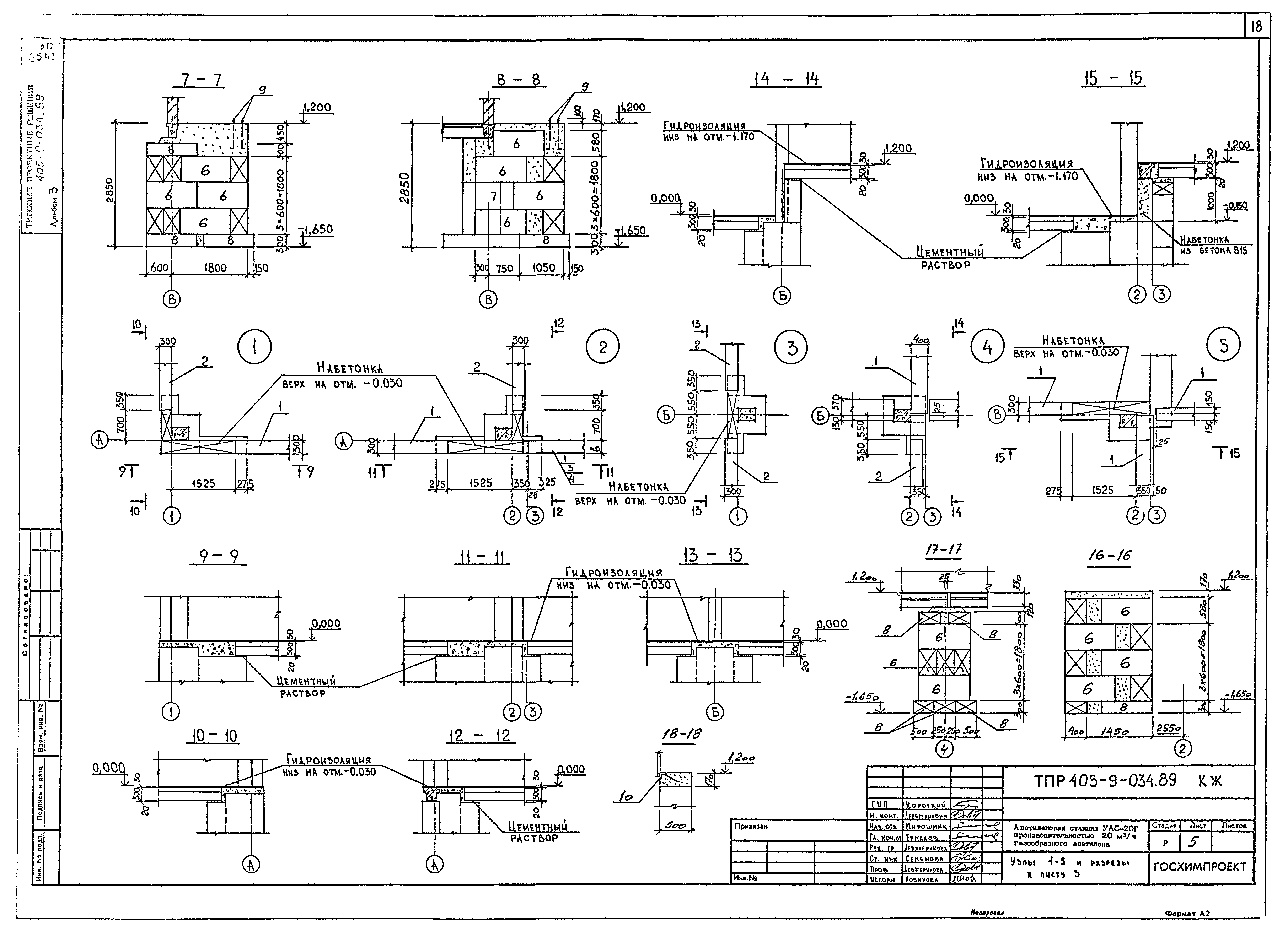
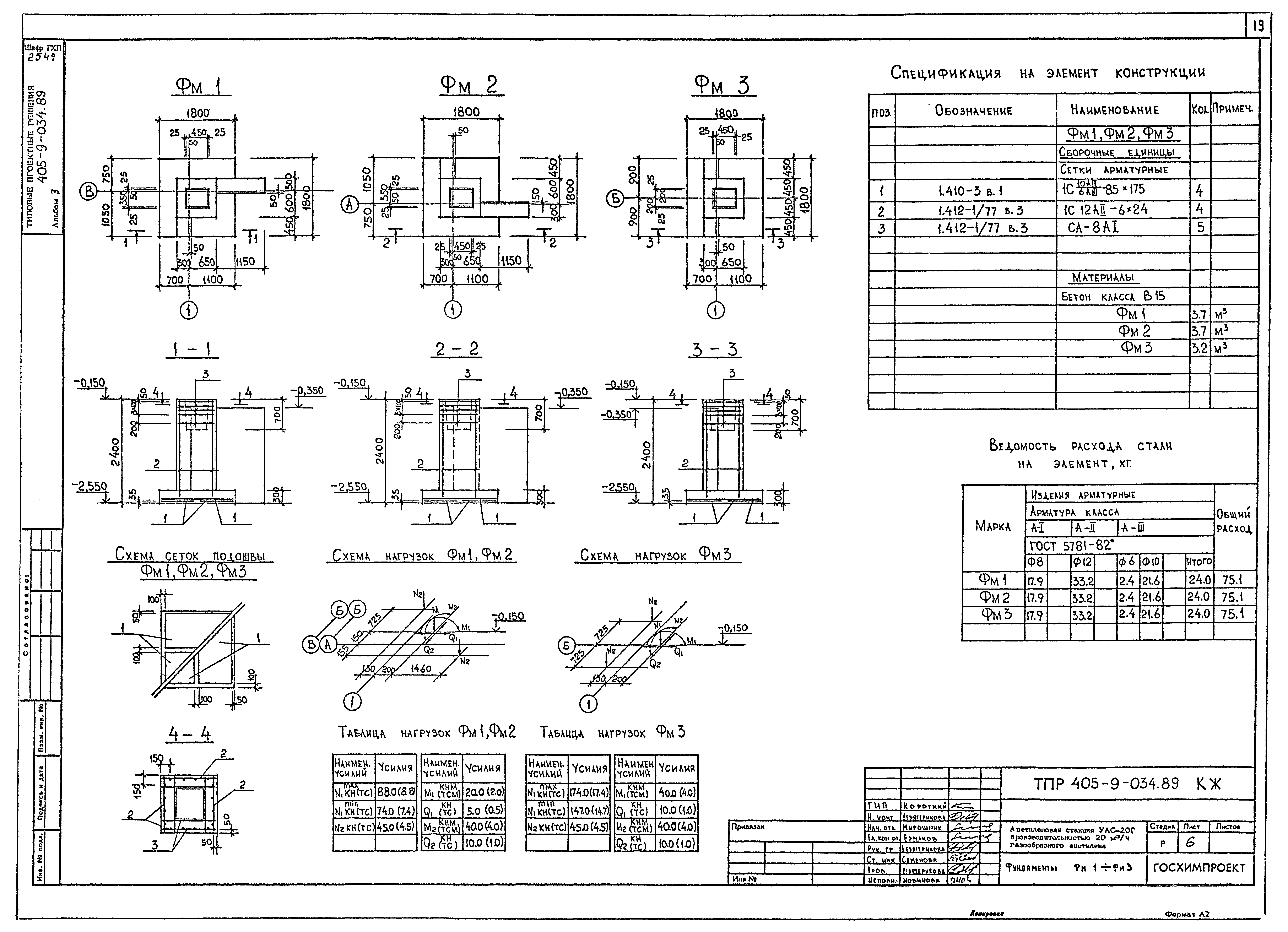
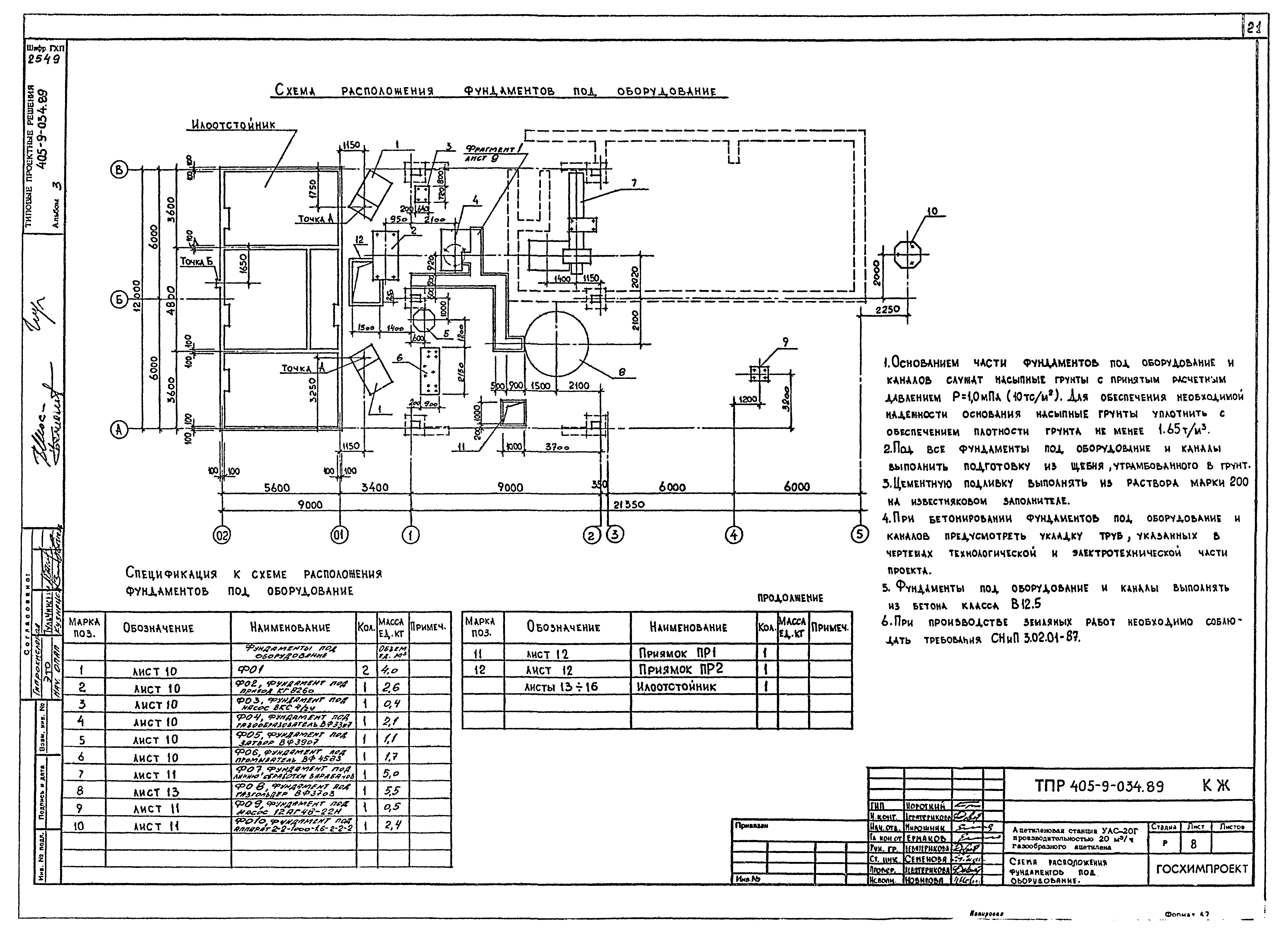
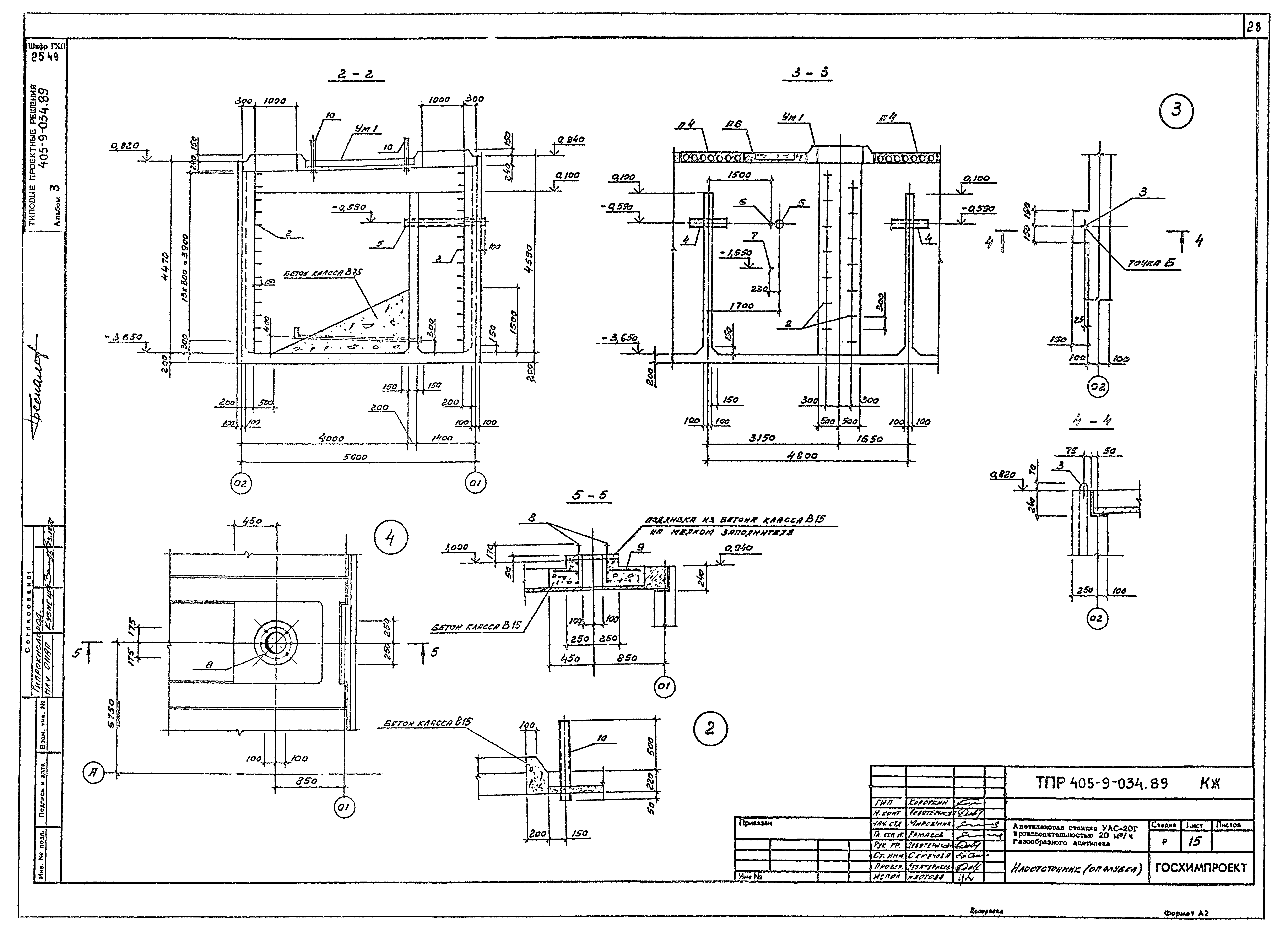
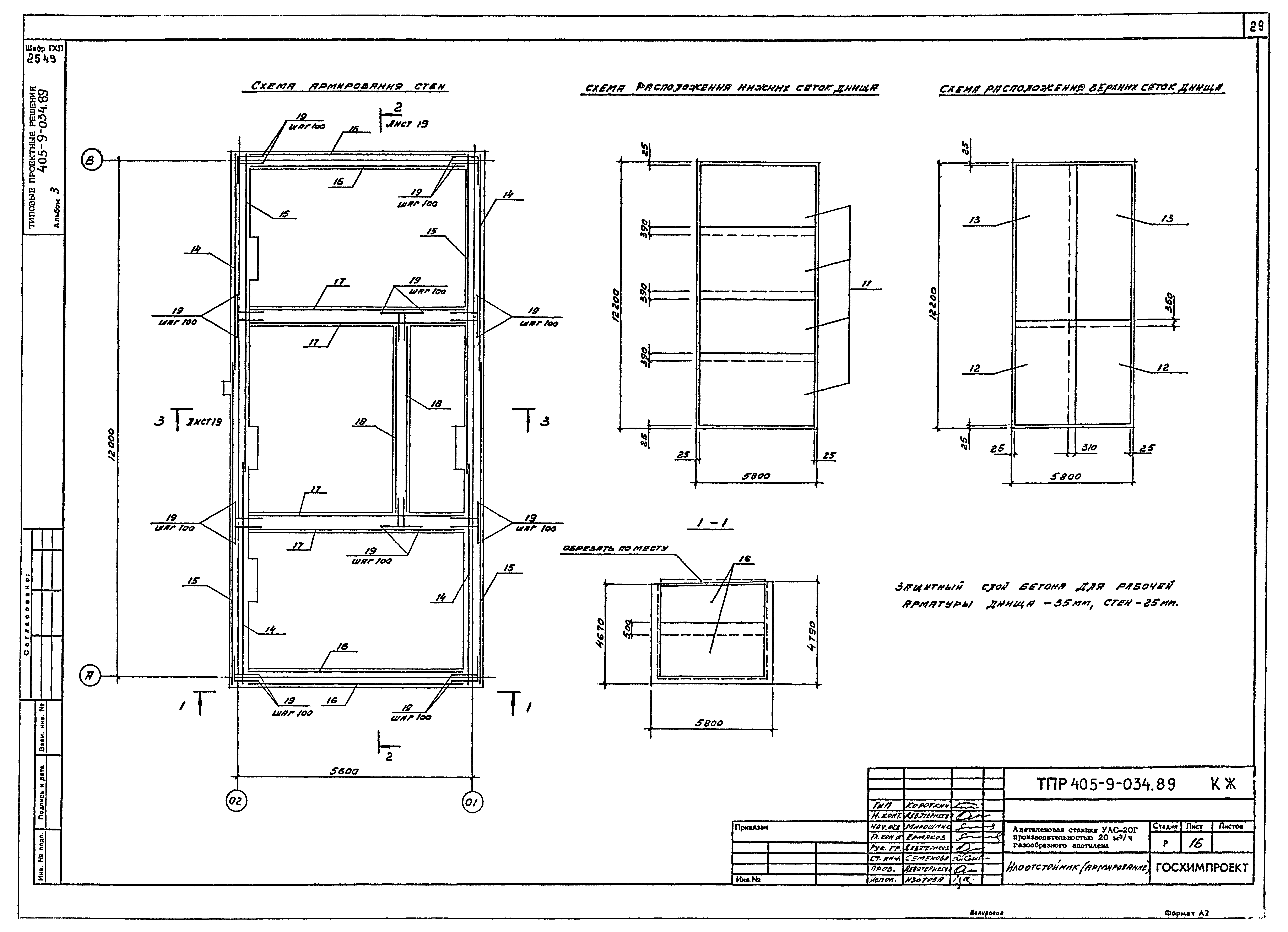
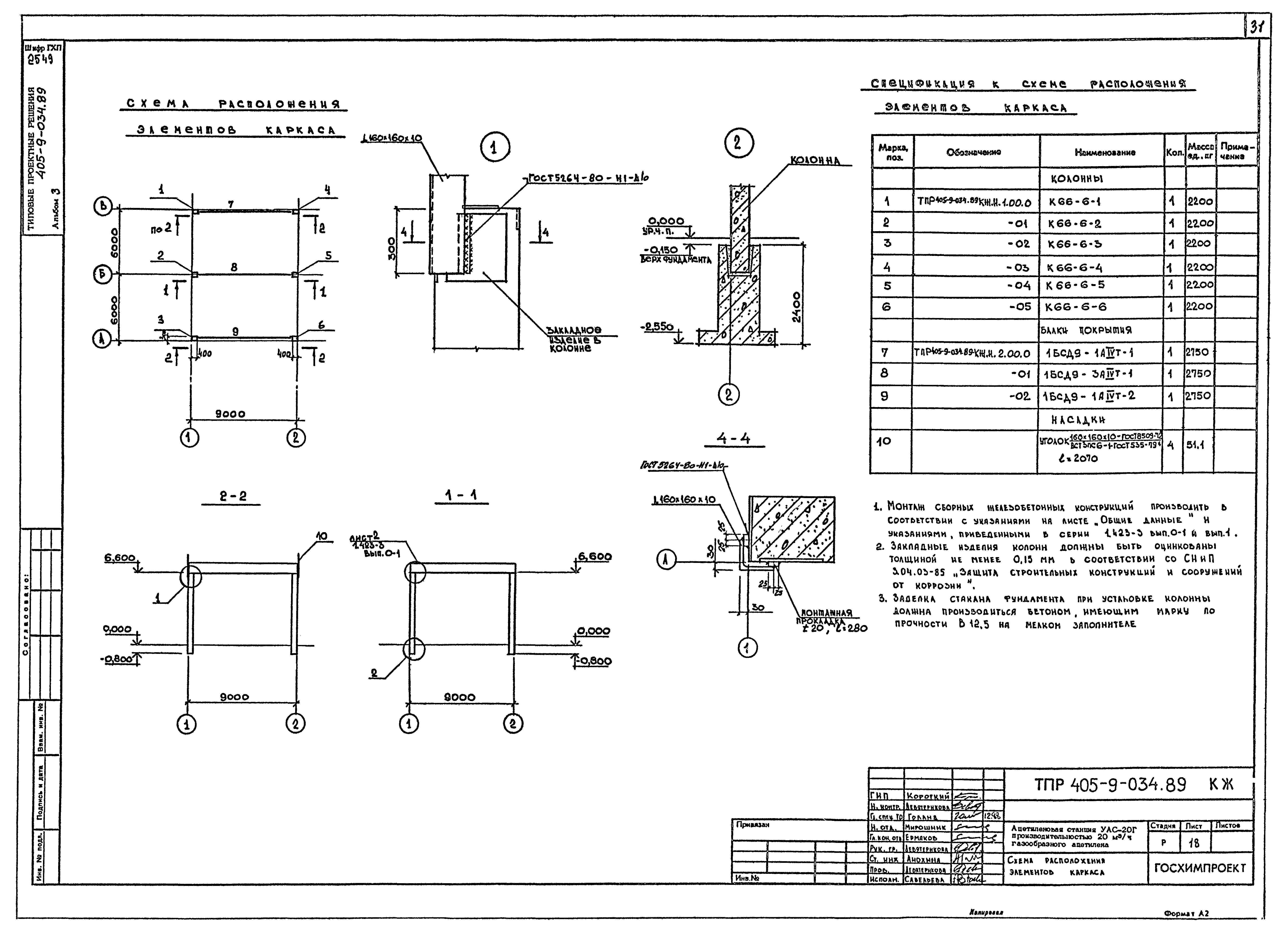
Скачать Типовые проектные решения 405-9-034.89 Альбом 3. Архитектурные решения. Конструкции железобетонные. Конструкции металлическиеДата актуализации: 01.01.2021
|
| Обозначение: | Типовые проектные решения 405-9-034.89 |
| Обозначение англ: | 405-9-034.89 |
| Статус: | действует |
| Название рус.: | Альбом 3. Архитектурные решения. Конструкции железобетонные. Конструкции металлические |
| Дата добавления в базу: | 01.01.2019 |
| Дата актуализации: | 01.01.2021 |
| Дата введения: | 19.04.1989 |
| Разработан: | Гипрокислород Минхимпрома СССР |
| Утверждён: | 19.04.1989 Минхимпром СССР (USSR Minkhimprom 14/11-966) |
| Издан: | ЦИТП Госстроя СССР (CITP, Gosstroy (USSR) 1990 г. ) |
| Заменяет собой: |





















































