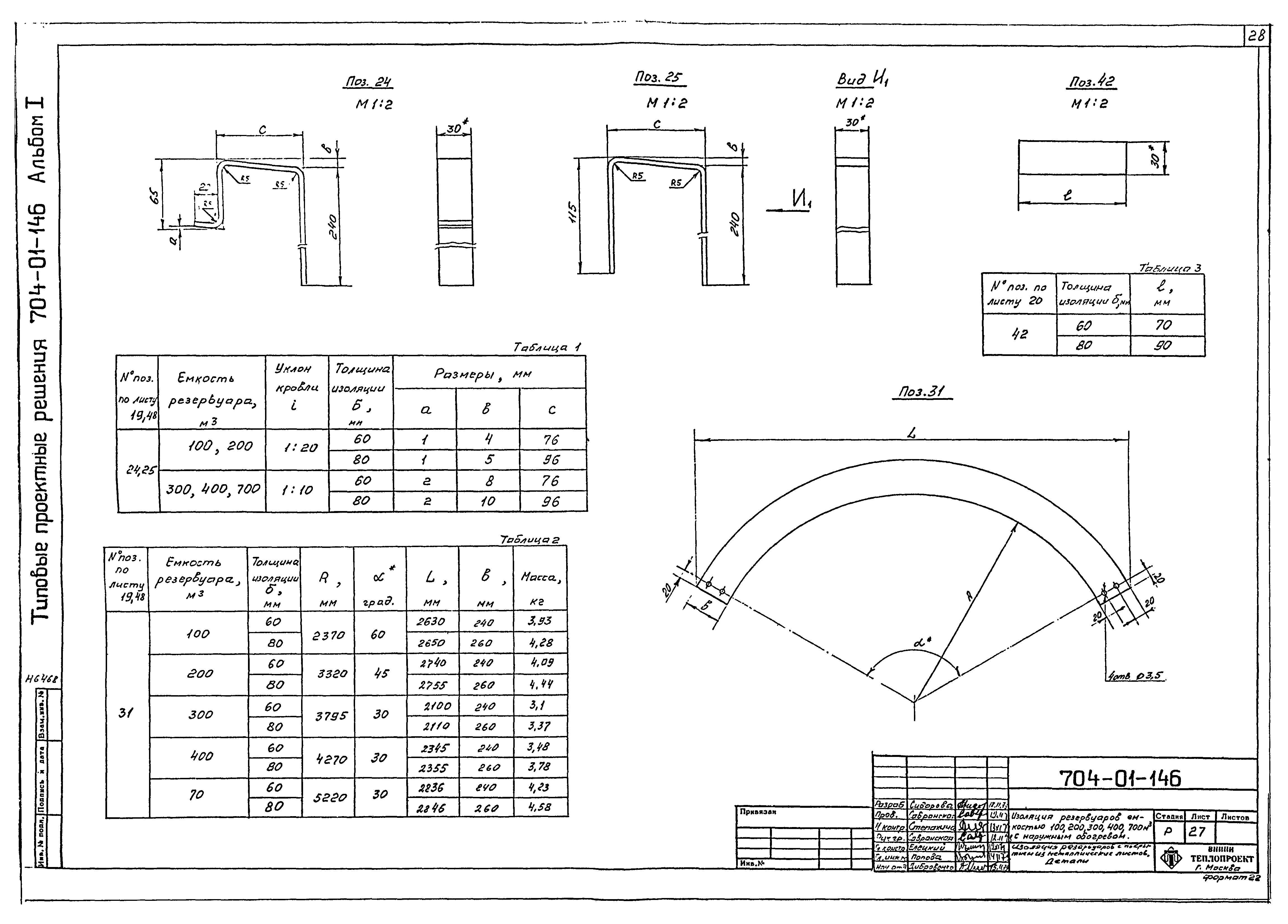
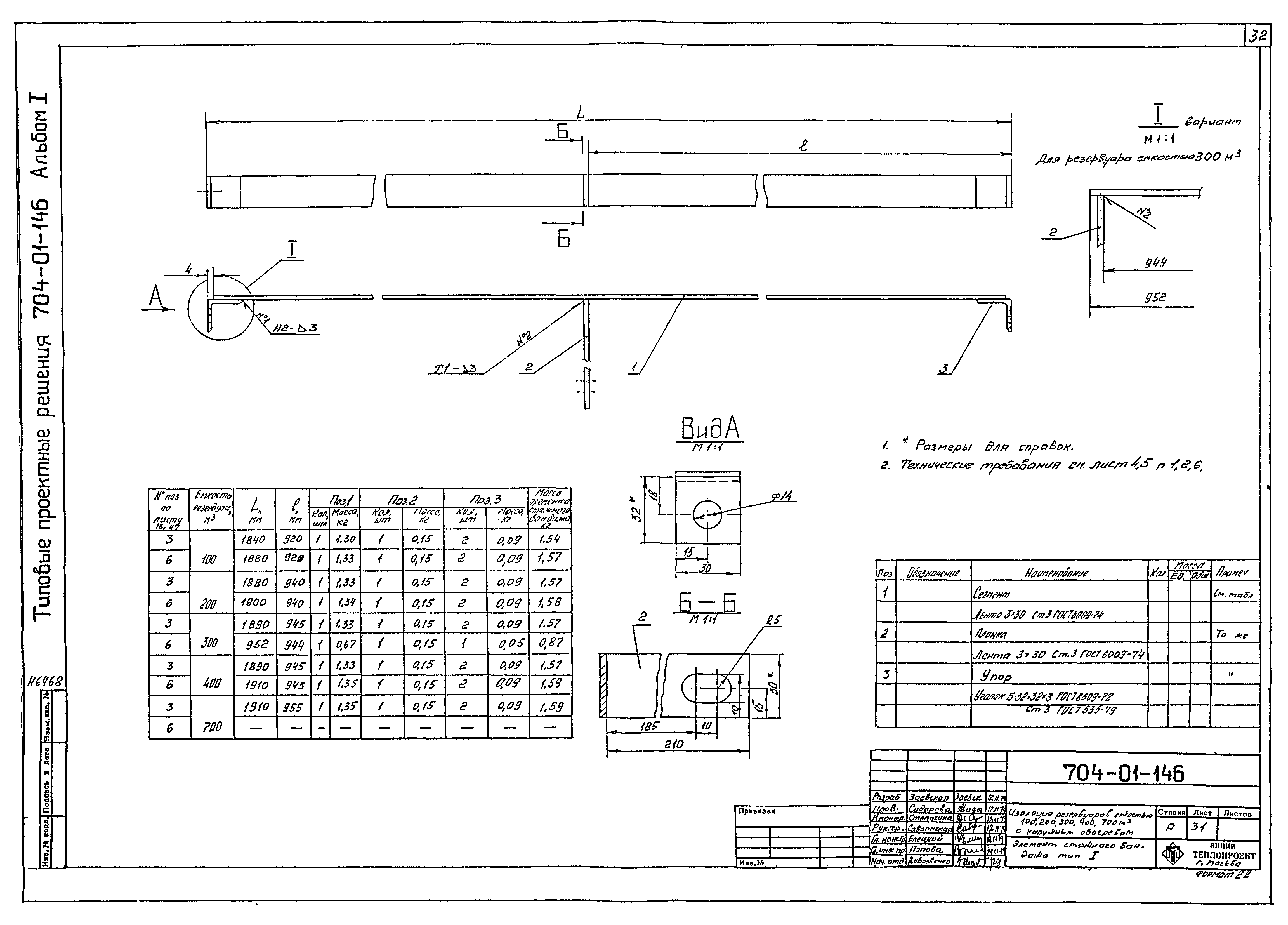
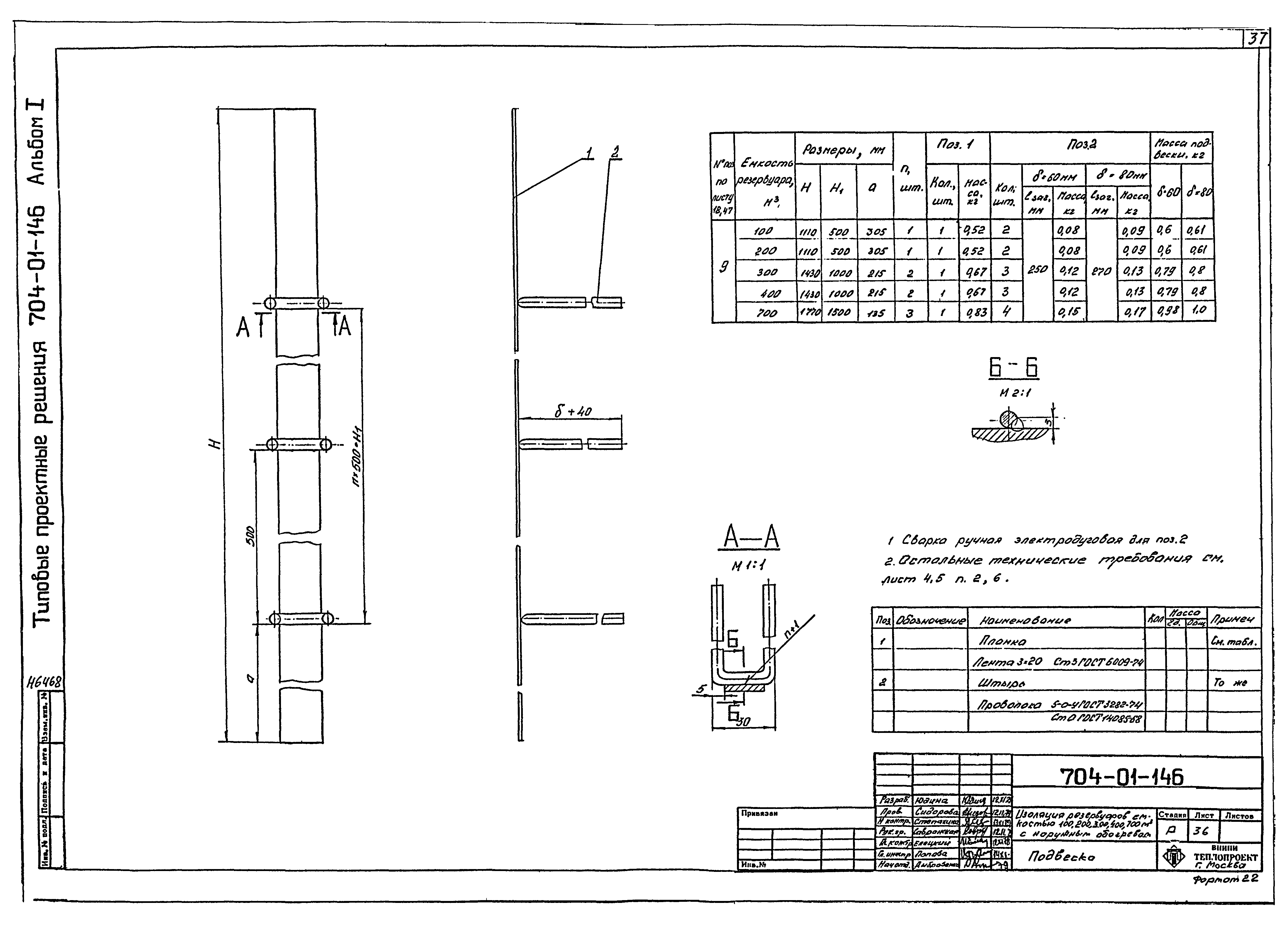
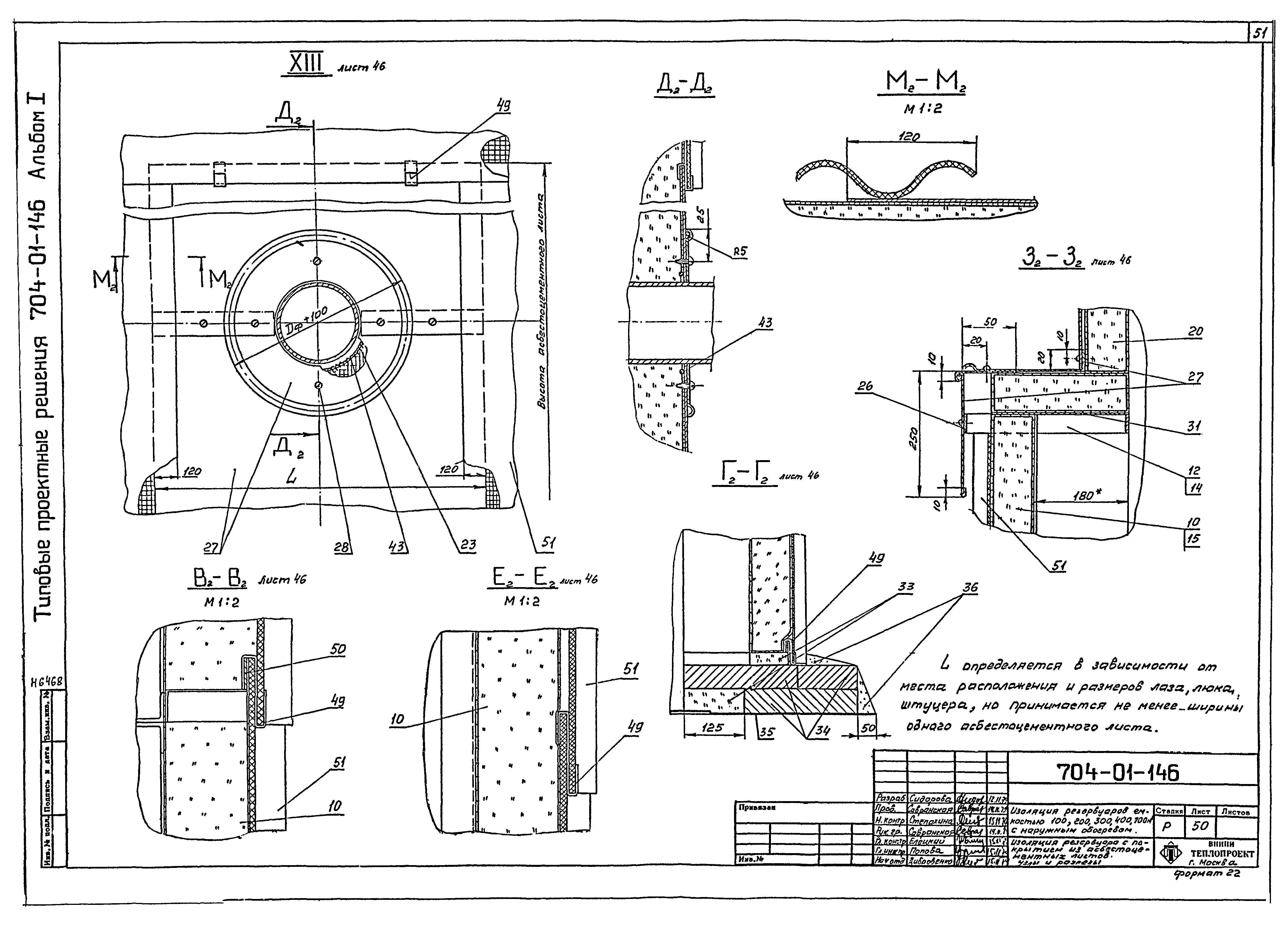
Скачать Типовые проектные решения 704-01-146 Альбом I. Рабочие чертежиДата актуализации: 01.01.2021
|
| Обозначение: | Типовые проектные решения 704-01-146 |
| Обозначение англ: | 704-01-146 |
| Статус: | справочные материалы, мп, тпр |
| Название рус.: | Альбом I. Рабочие чертежи |
| Дата добавления в базу: | 01.01.2019 |
| Дата актуализации: | 01.01.2021 |
| Дата окончания срока действия: | 01.02.1981 |
| Разработан: | ВНИПИтеплопроект Минмонтажспецстроя СССР |
| Утверждён: | 10.12.1979 Минмонтажспецстрой СССР (USSR Minmontazhspetsstroy ) |

























































