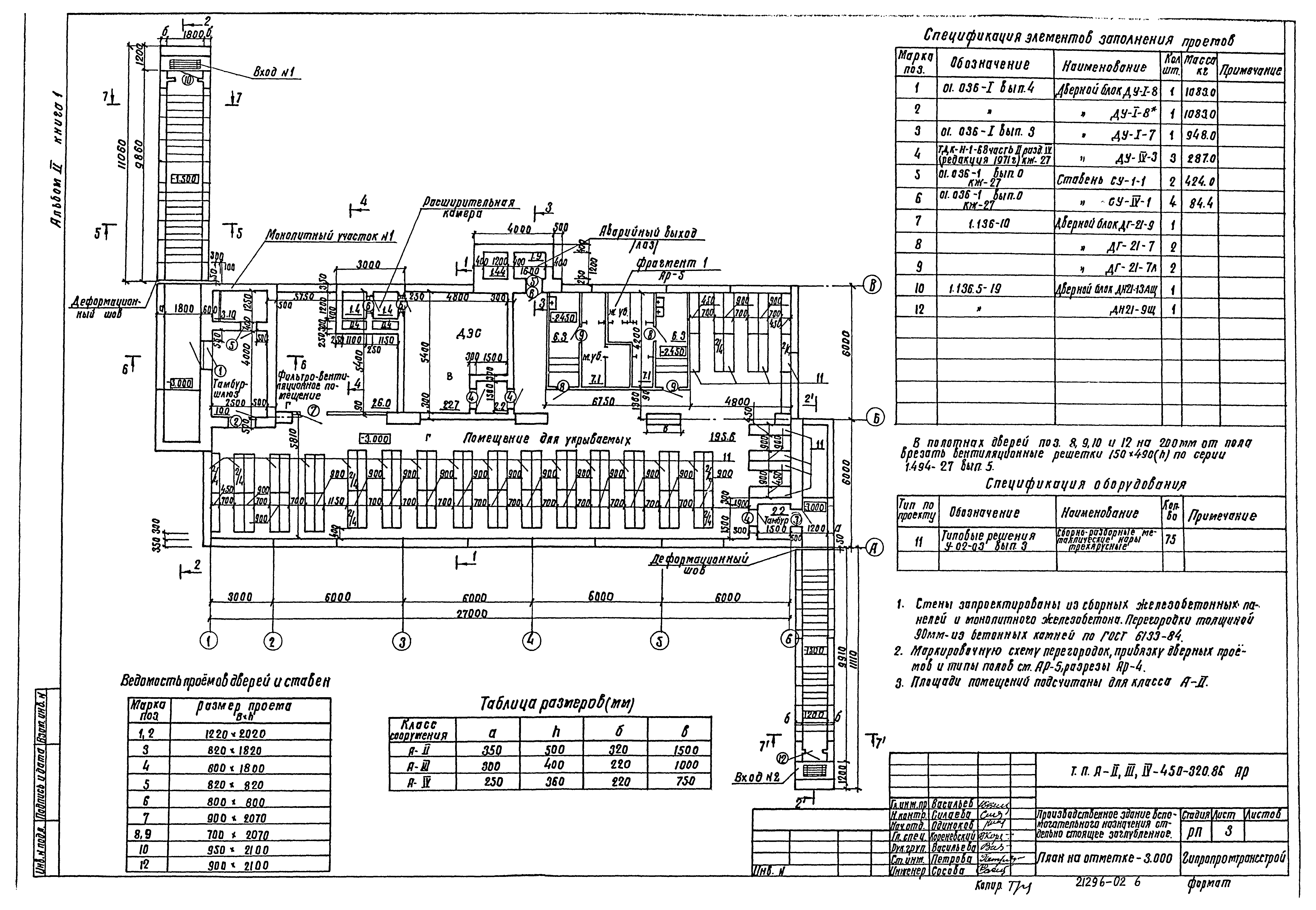
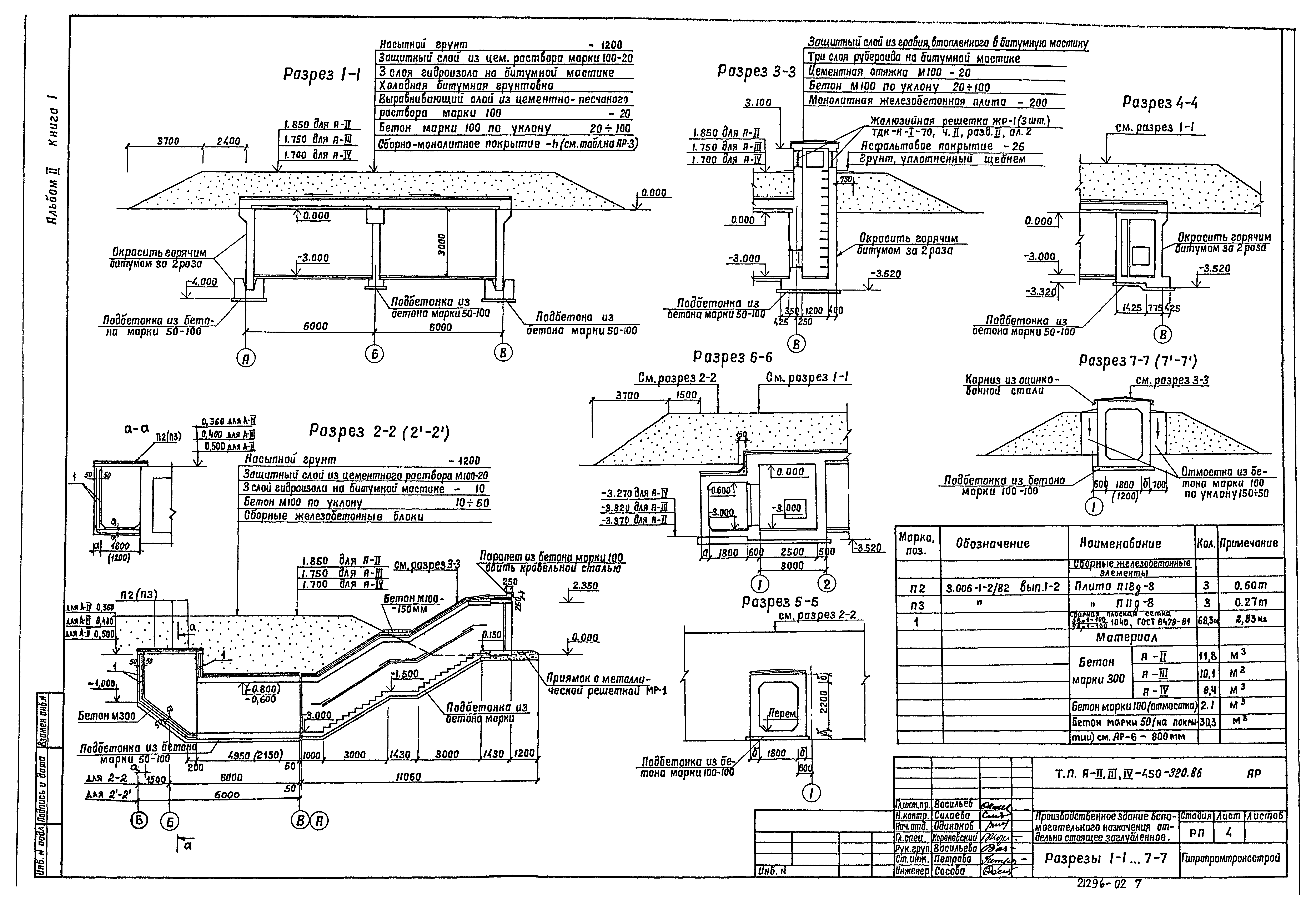
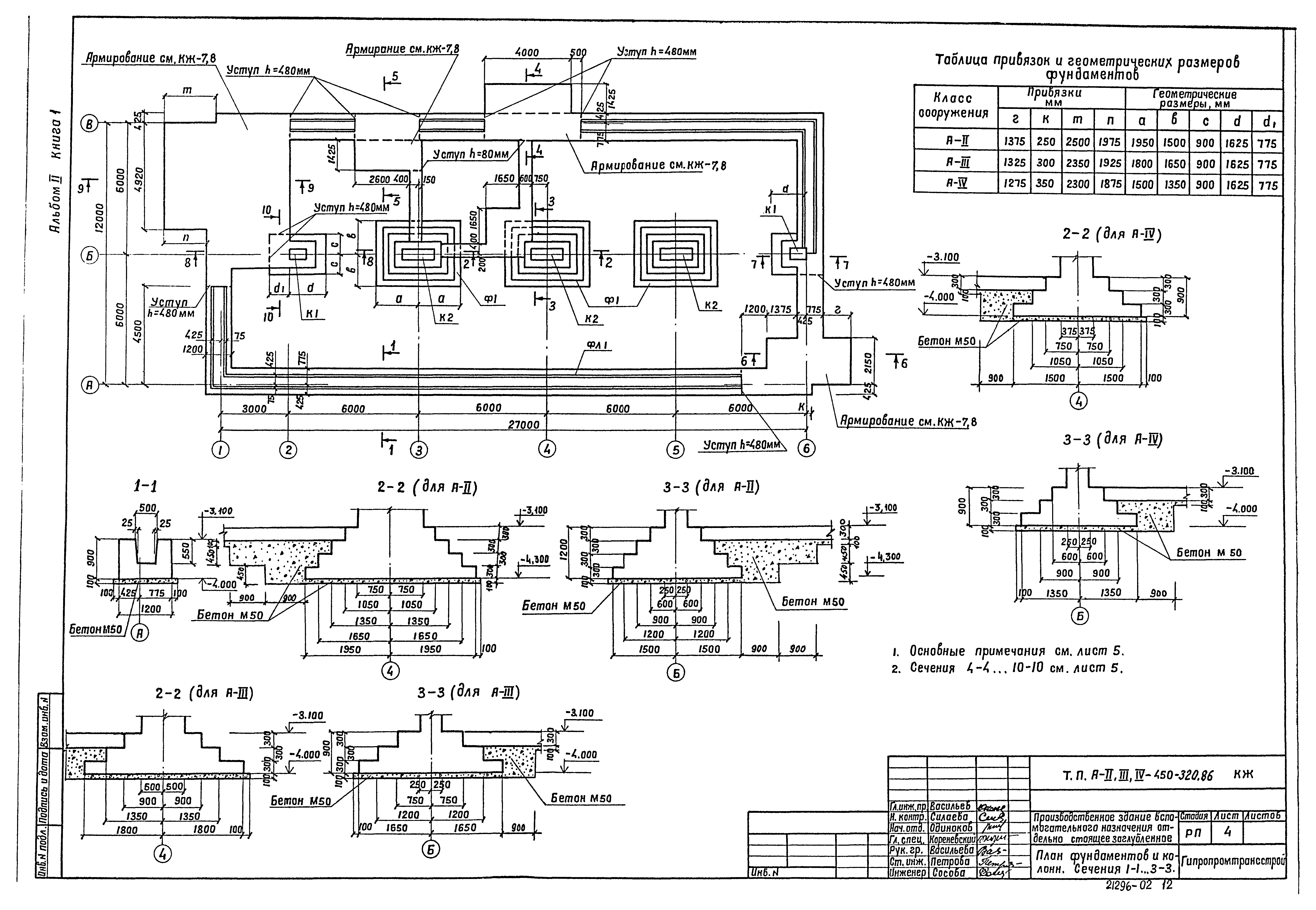
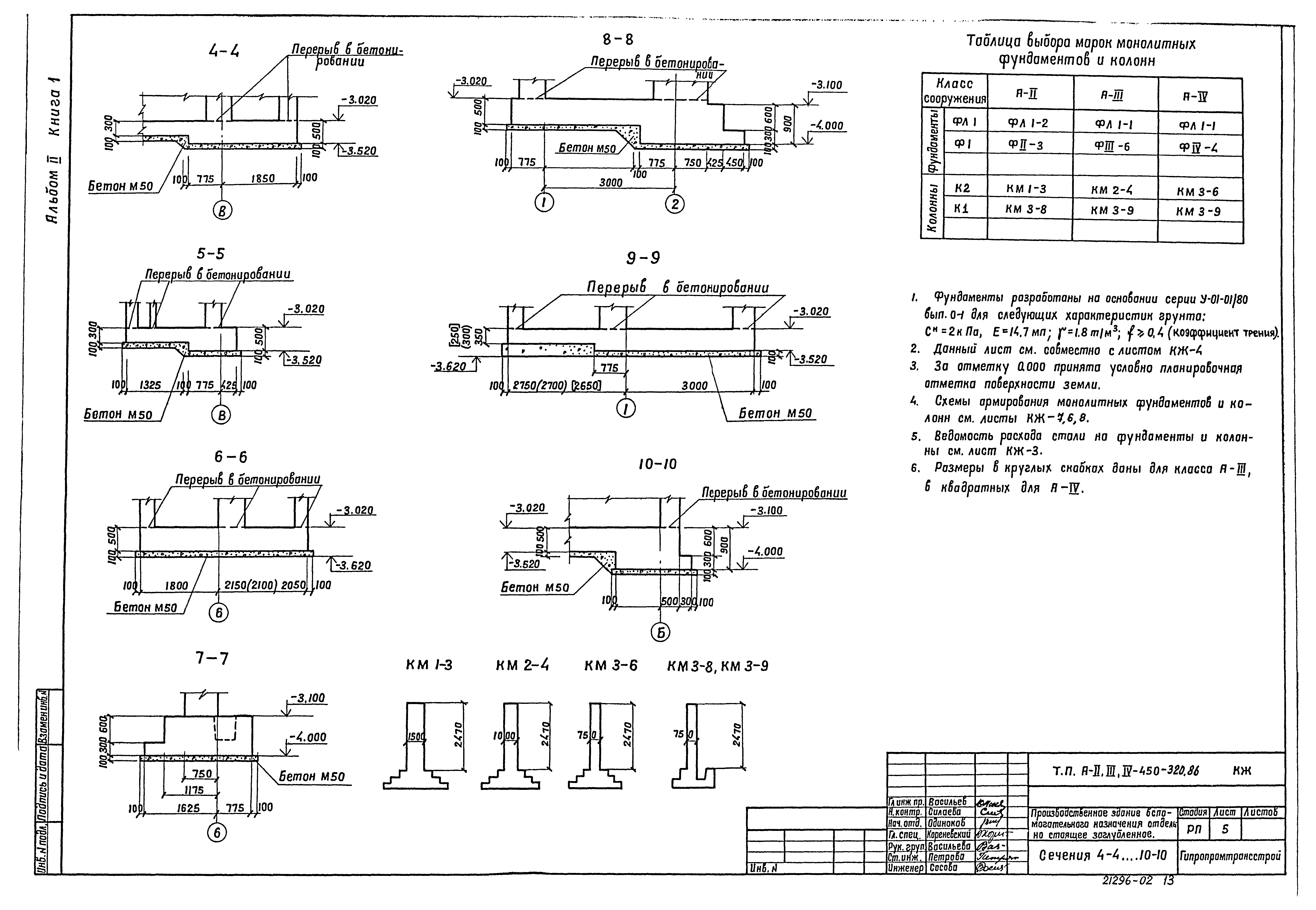
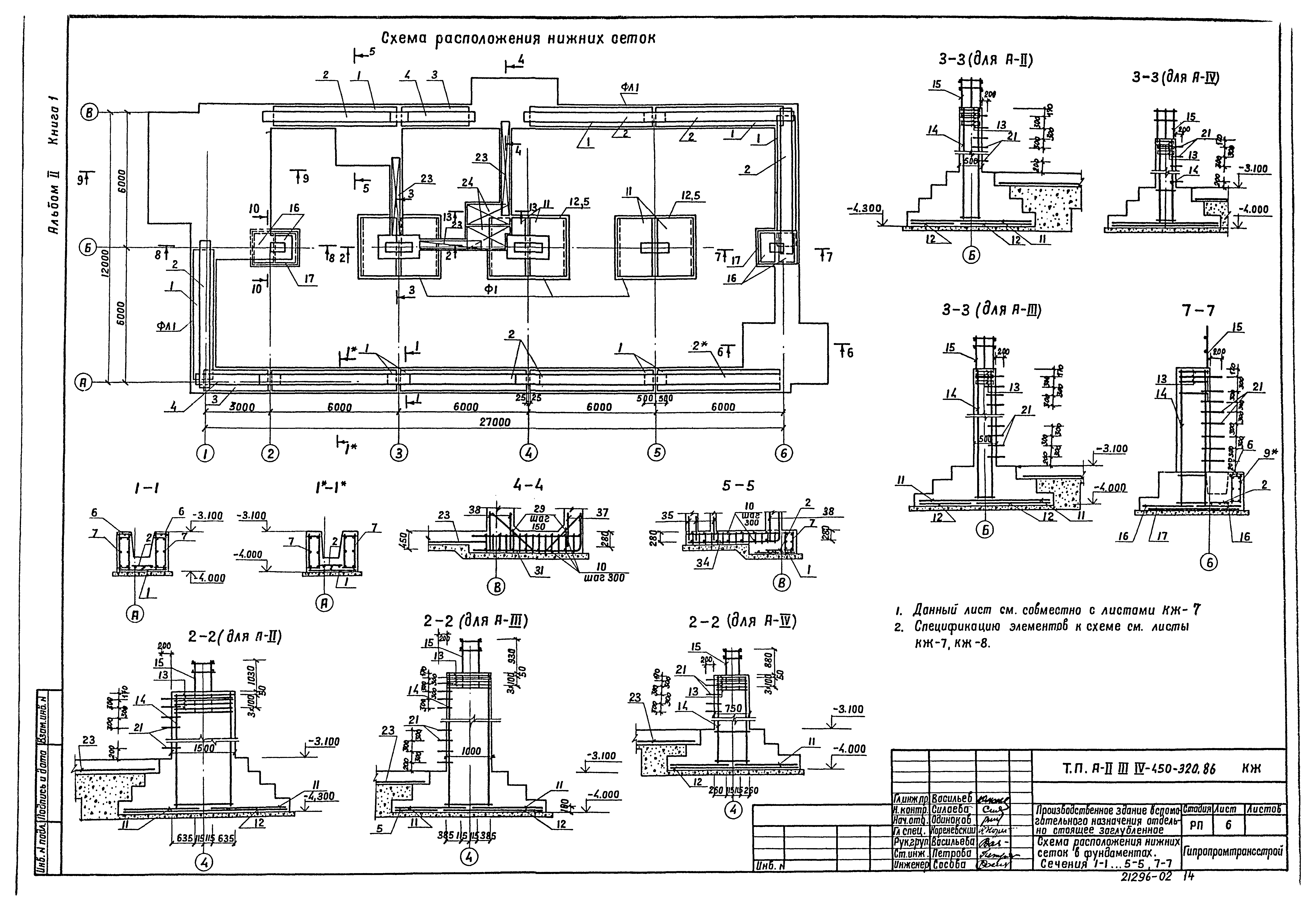
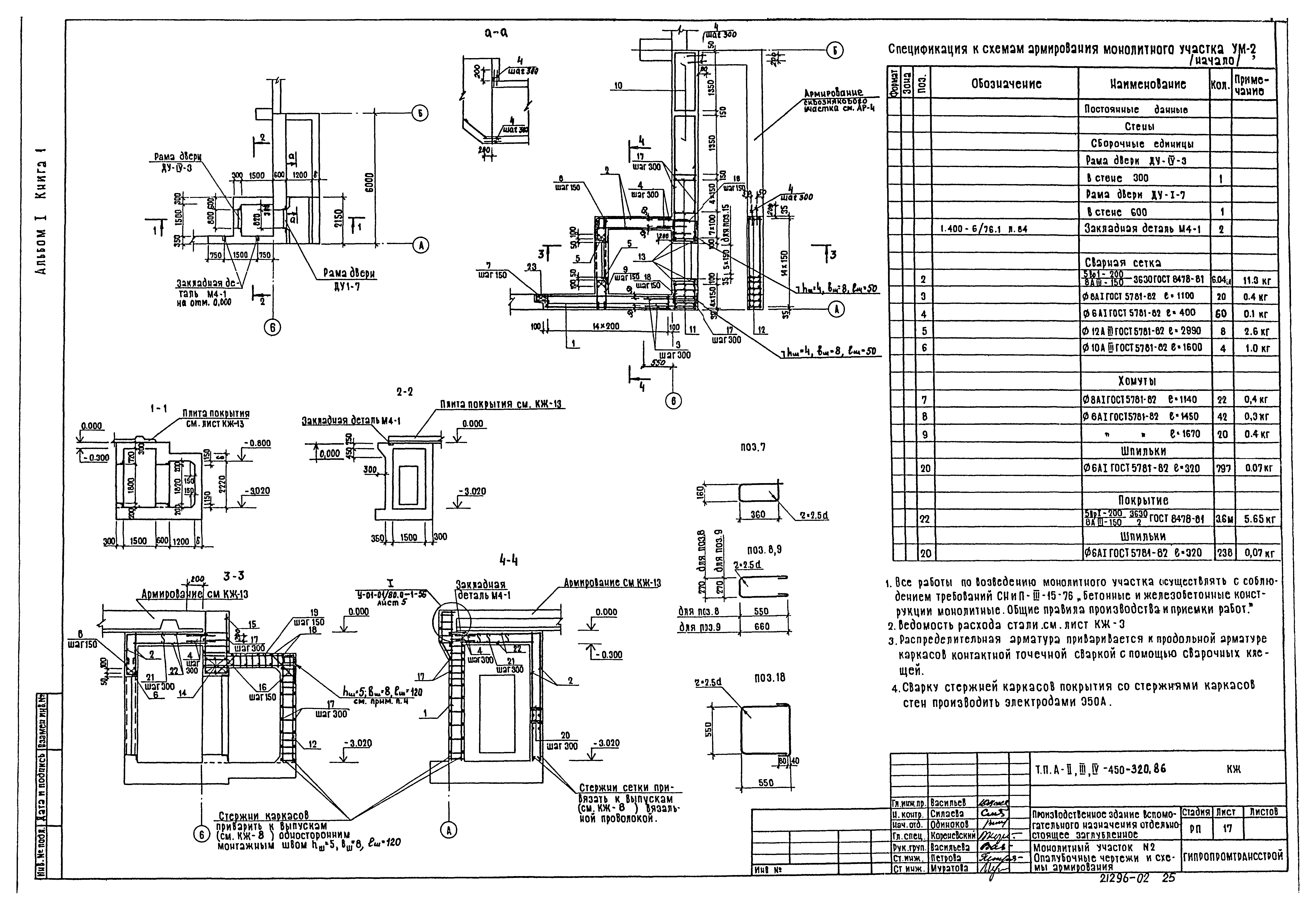
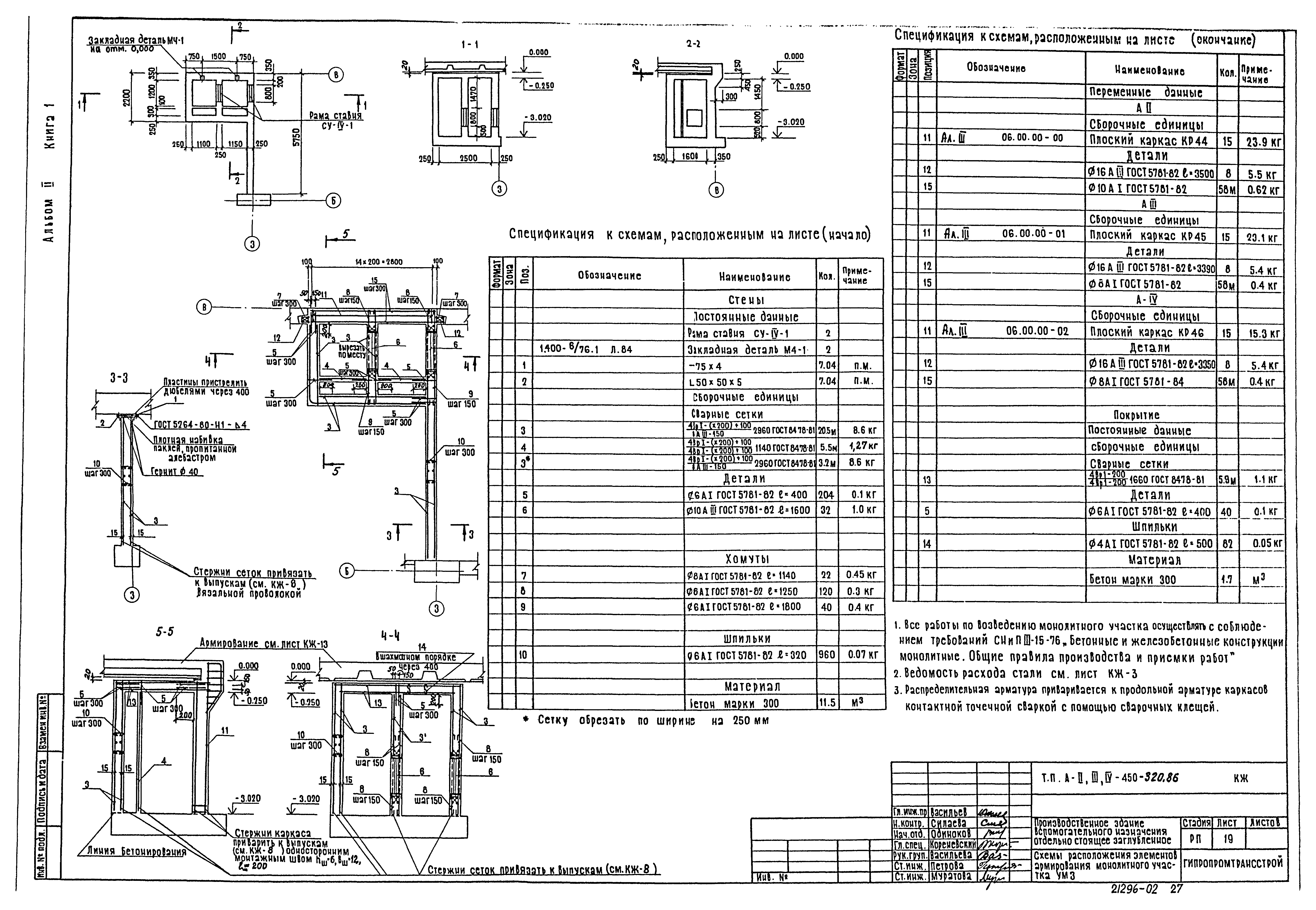
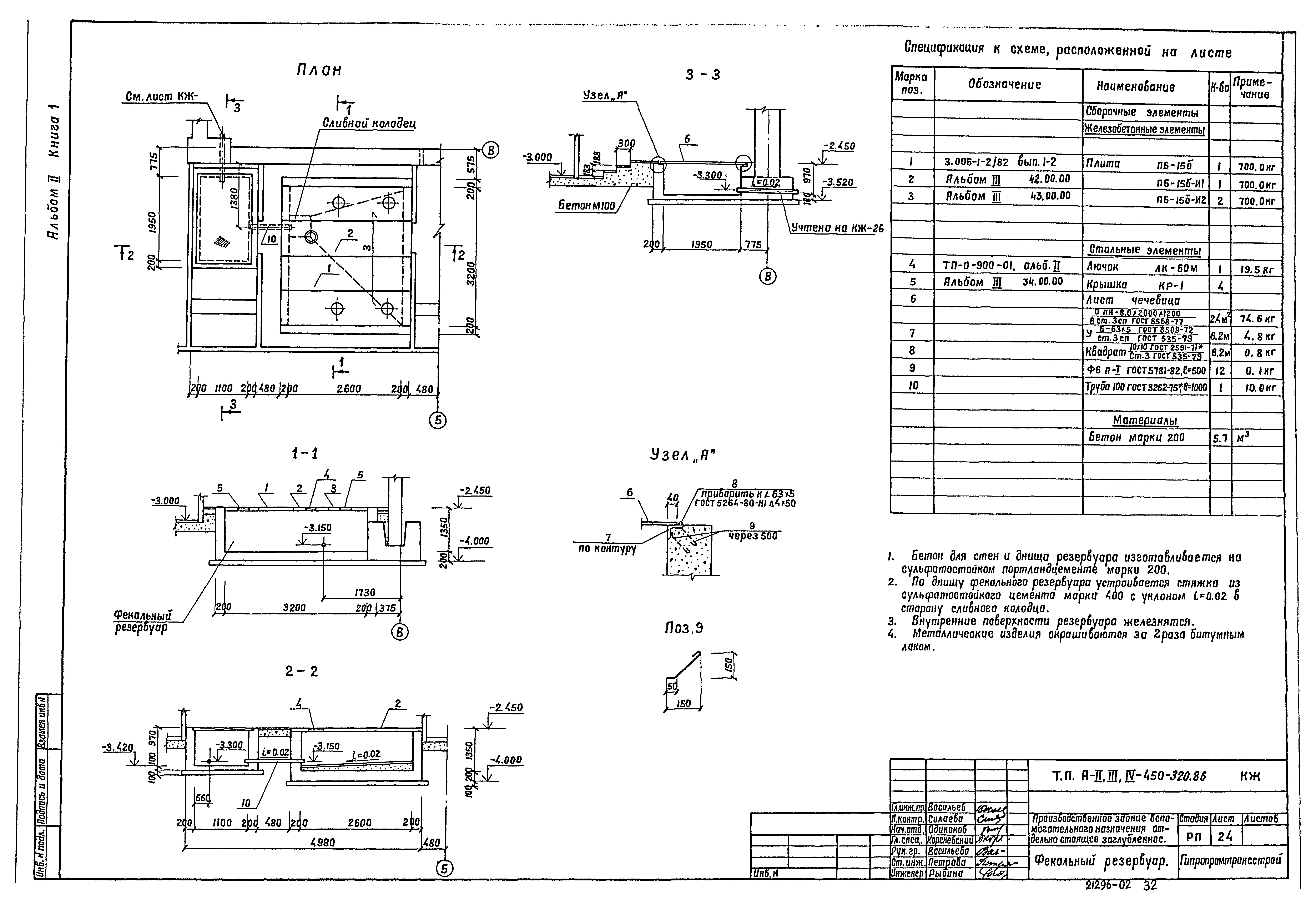
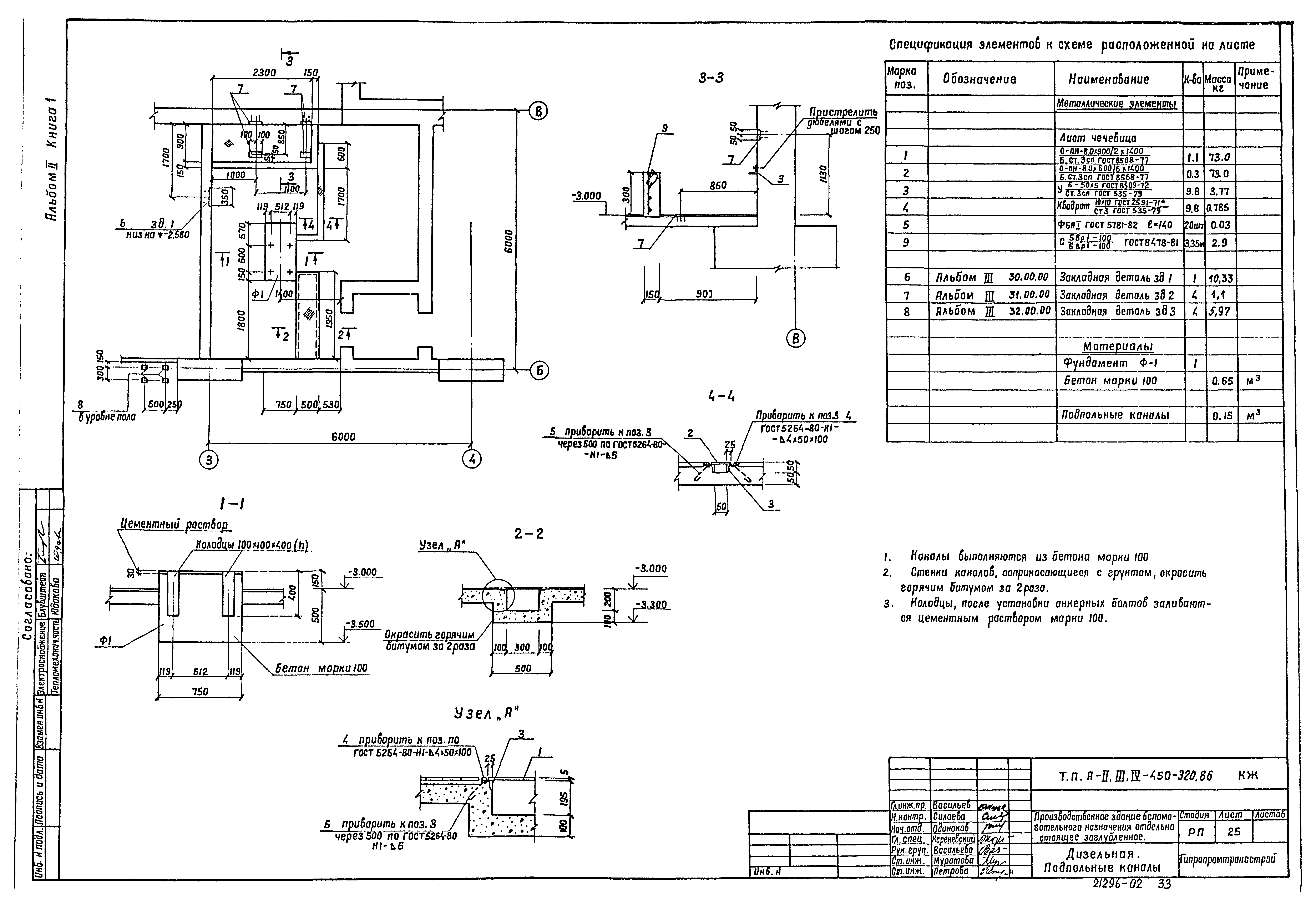
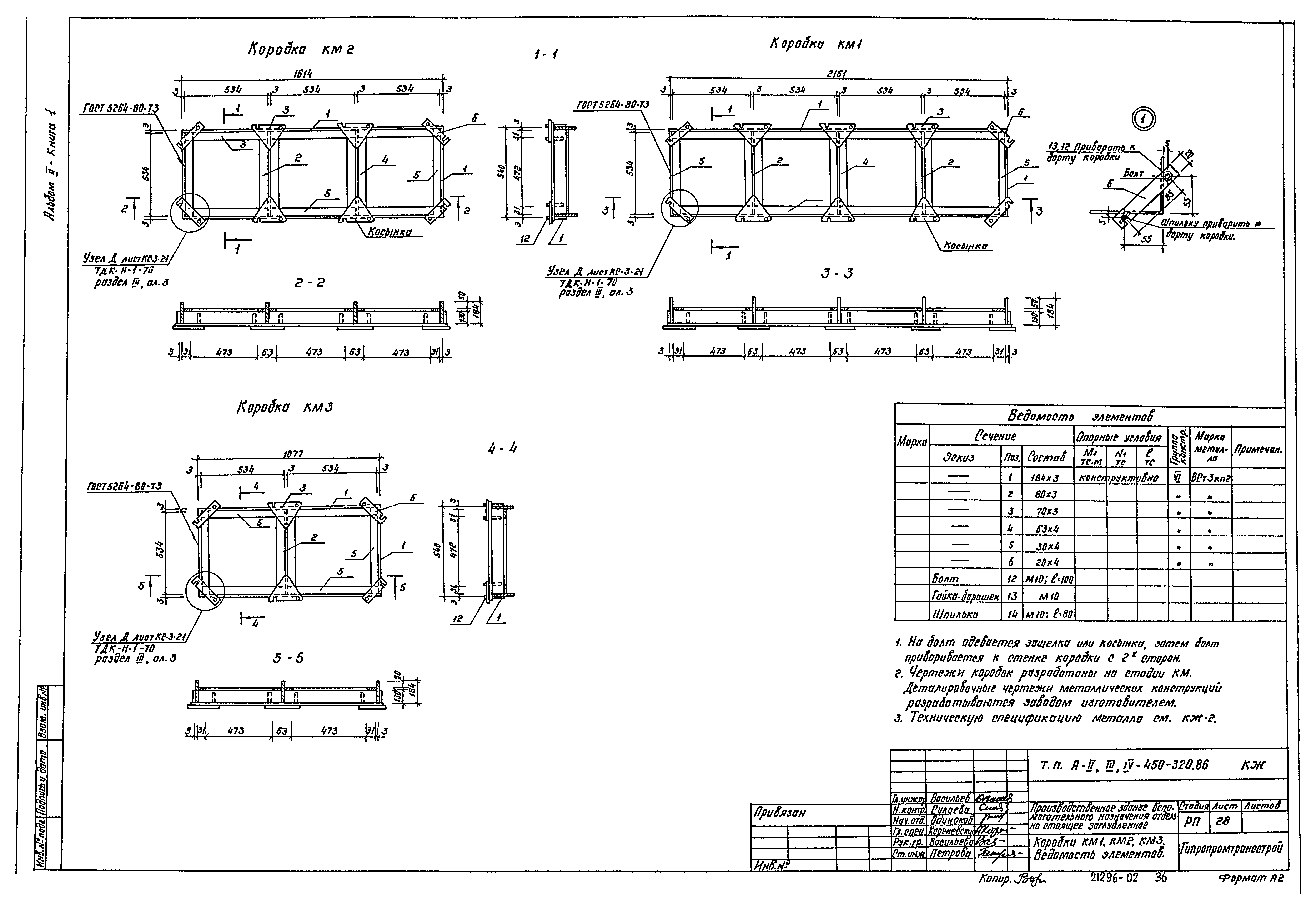
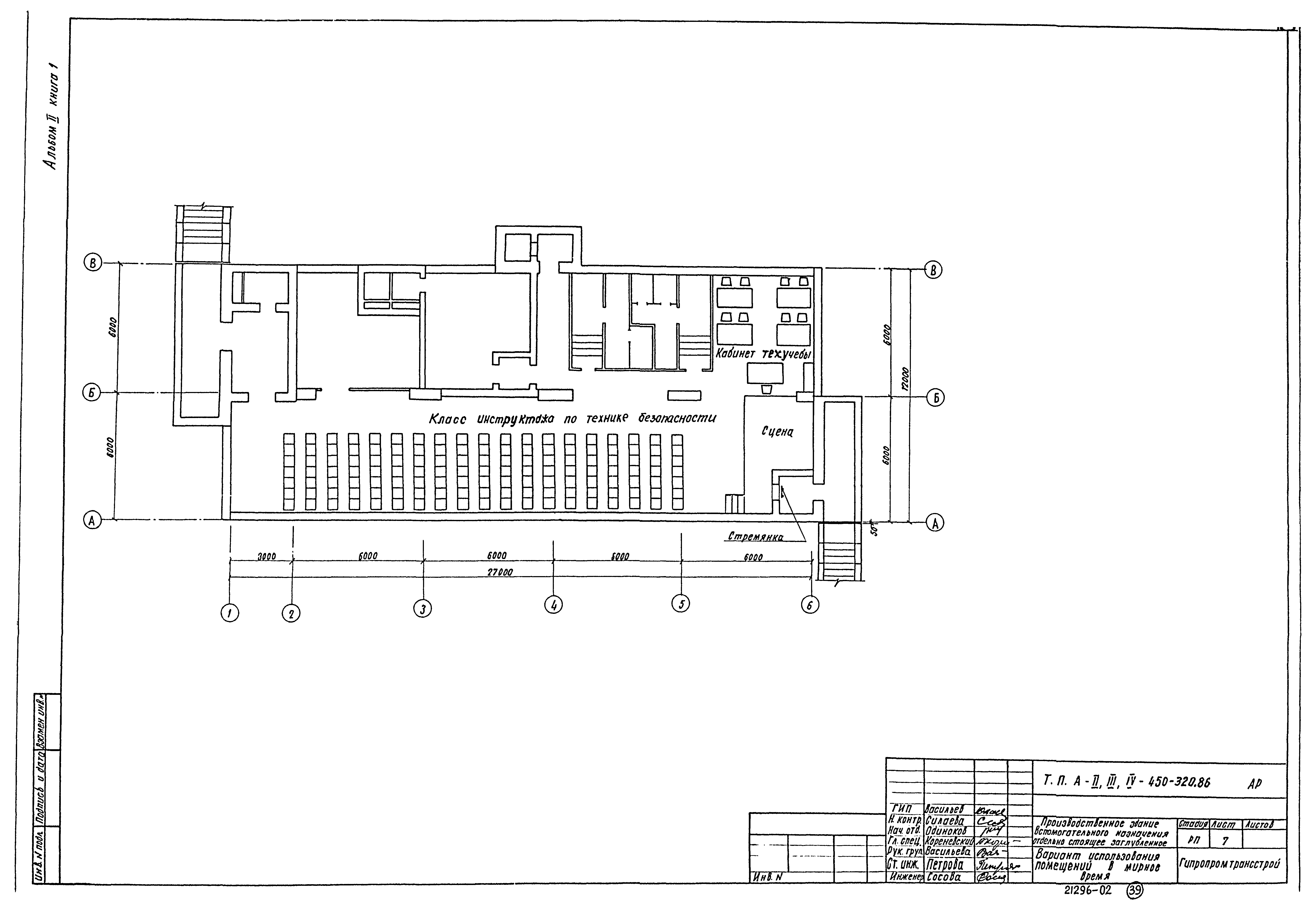
Скачать Типовой проект А-II,III,IV-450-320.86 Альбом II. Книга 1. Архитектурно-строительные решения. Конструкции железобетонные. (Сухие грунты)Дата актуализации: 01.01.2021 Типовой проект А-II,III,IV-450-320.86
Альбом II. Книга 1. Архитектурно-строительные решения. Конструкции железобетонные. (Сухие грунты)| Обозначение: | Типовой проект А-II,III,IV-450-320.86 | | Обозначение англ: | А-II,III,IV-450-320.86 | | Статус: | не определен законодательством | | Название рус.: | Альбом II. Книга 1. Архитектурно-строительные решения. Конструкции железобетонные. (Сухие грунты) | | Дата добавления в базу: | 01.01.2019 | | Дата актуализации: | 01.01.2021 | | Дата введения: | 14.02.1986 | | Дата окончания срока действия: | 30.06.2003 | | Разработан: | Гипропромтрансстрой
| | Утверждён: | 06.02.1986 НГО СССР
| | Издан: | ЦИТП Госстроя СССР (CITP, Gosstroy (USSR) 1987 г. )
|
                                      
|