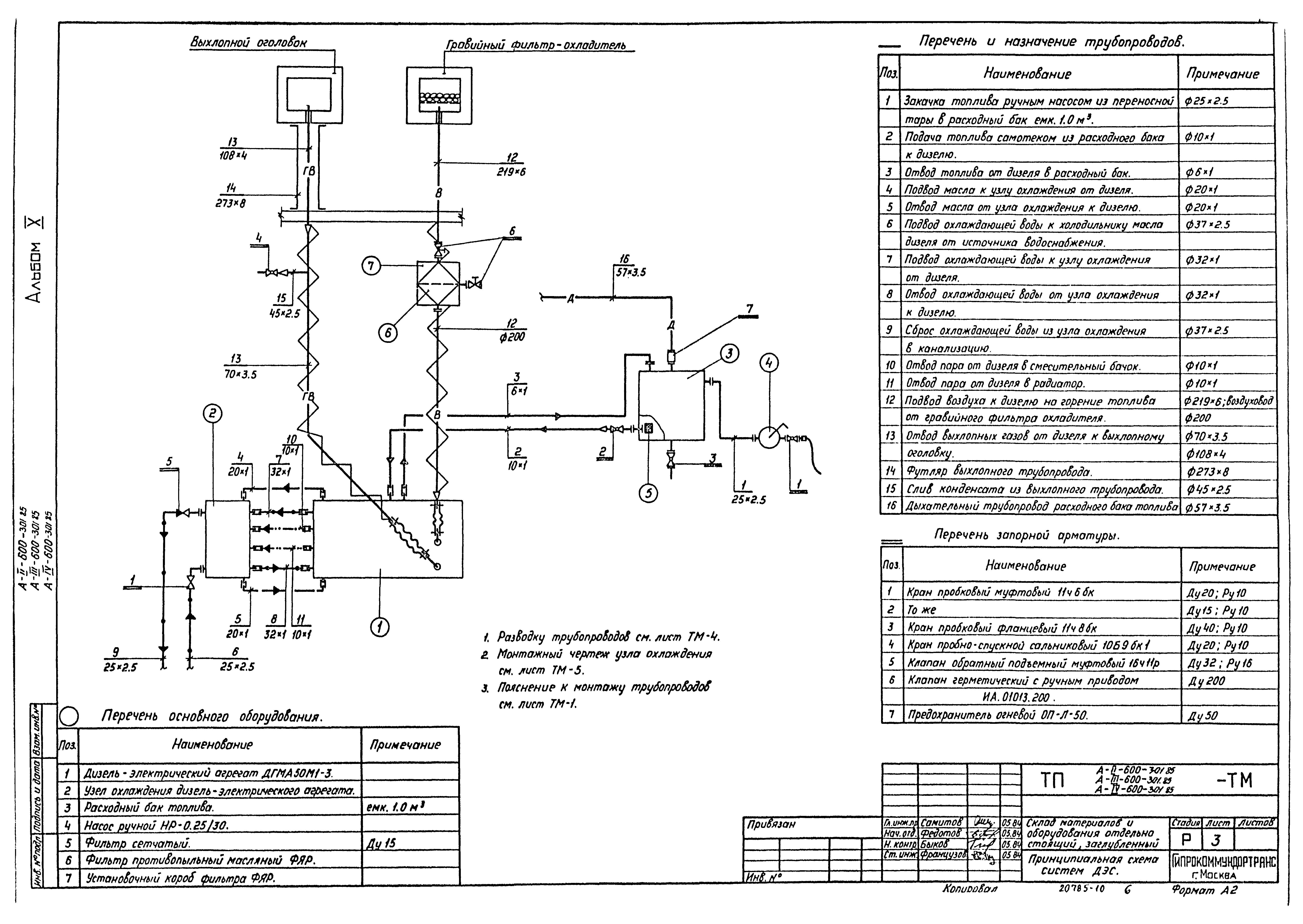
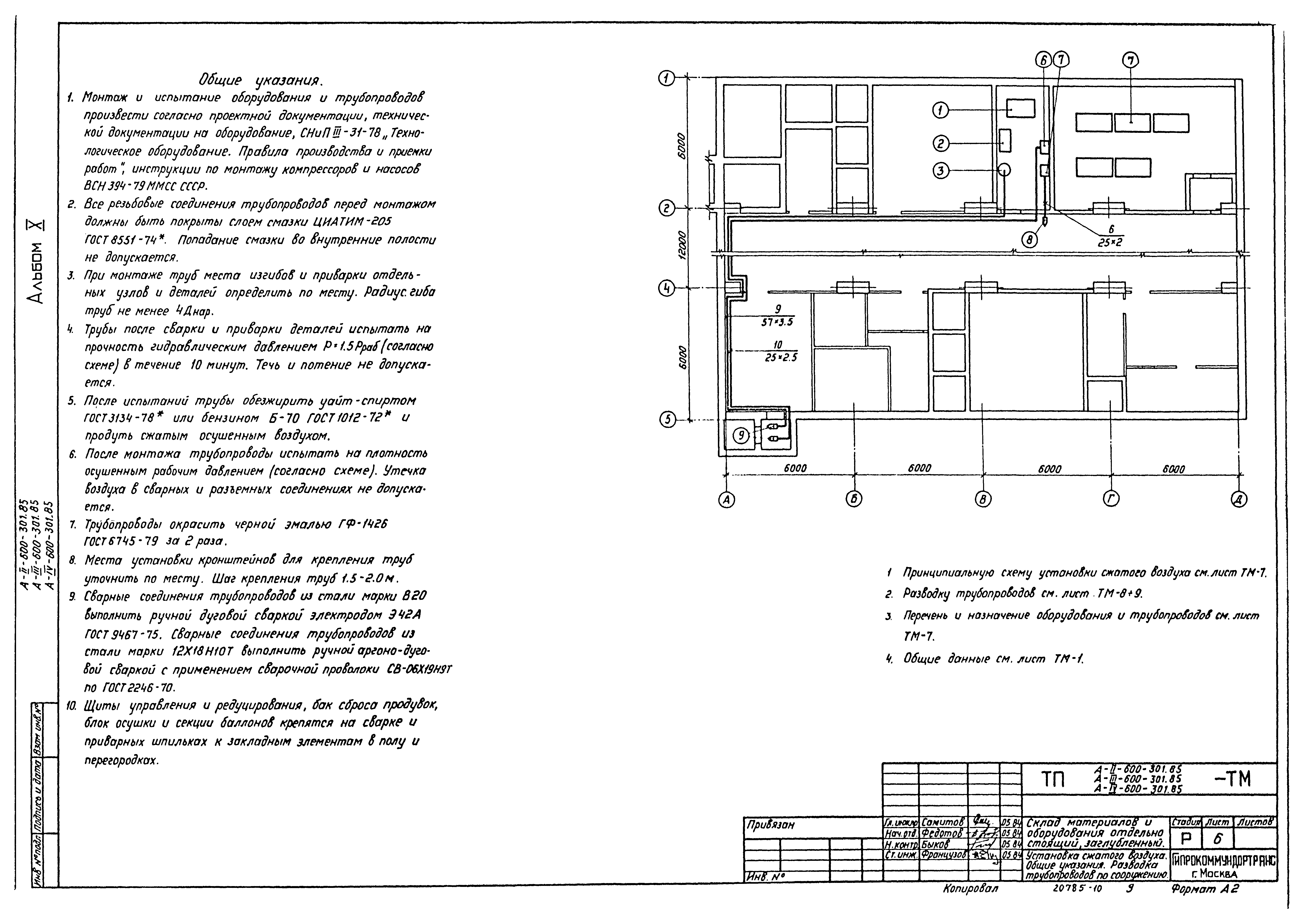
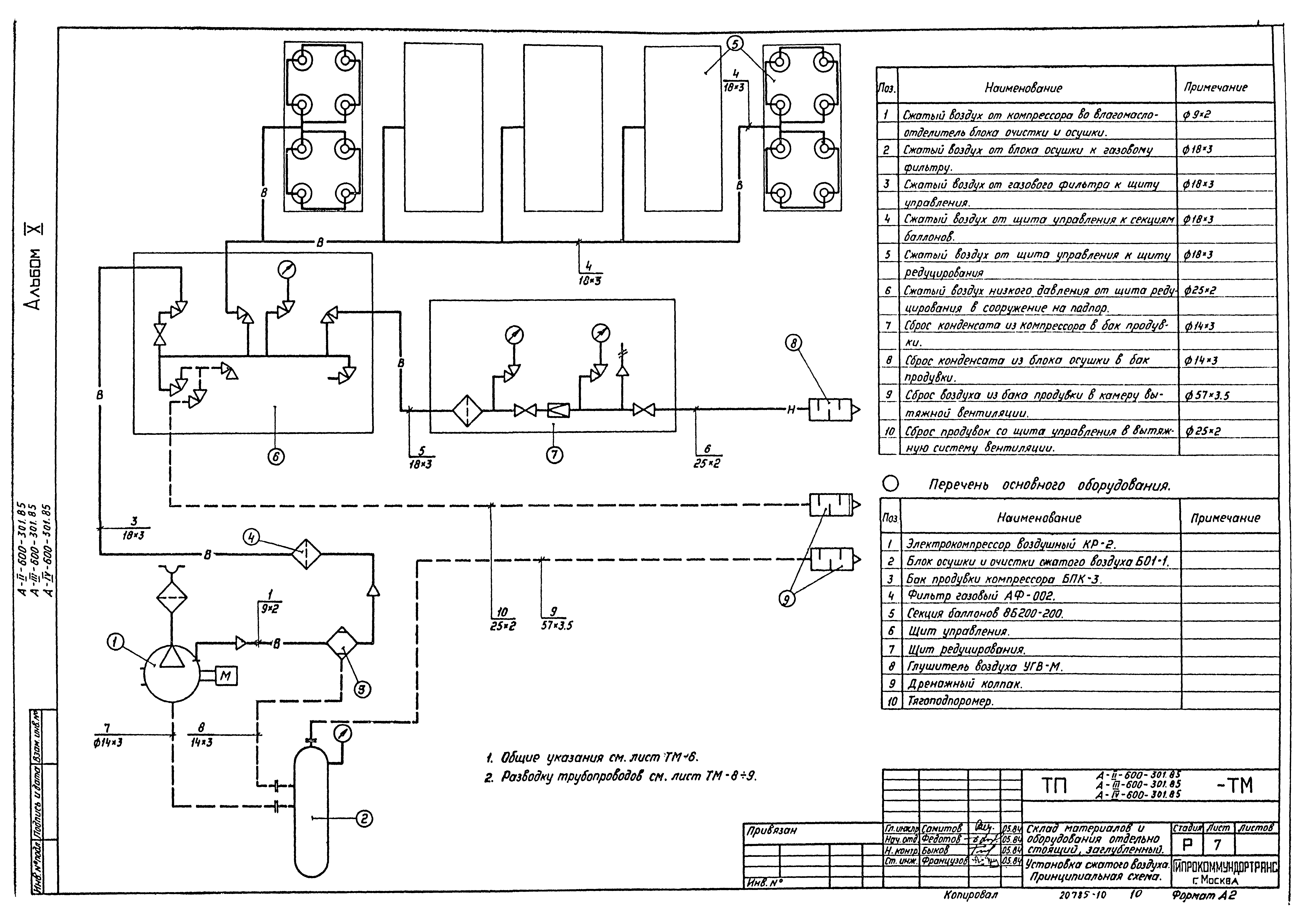
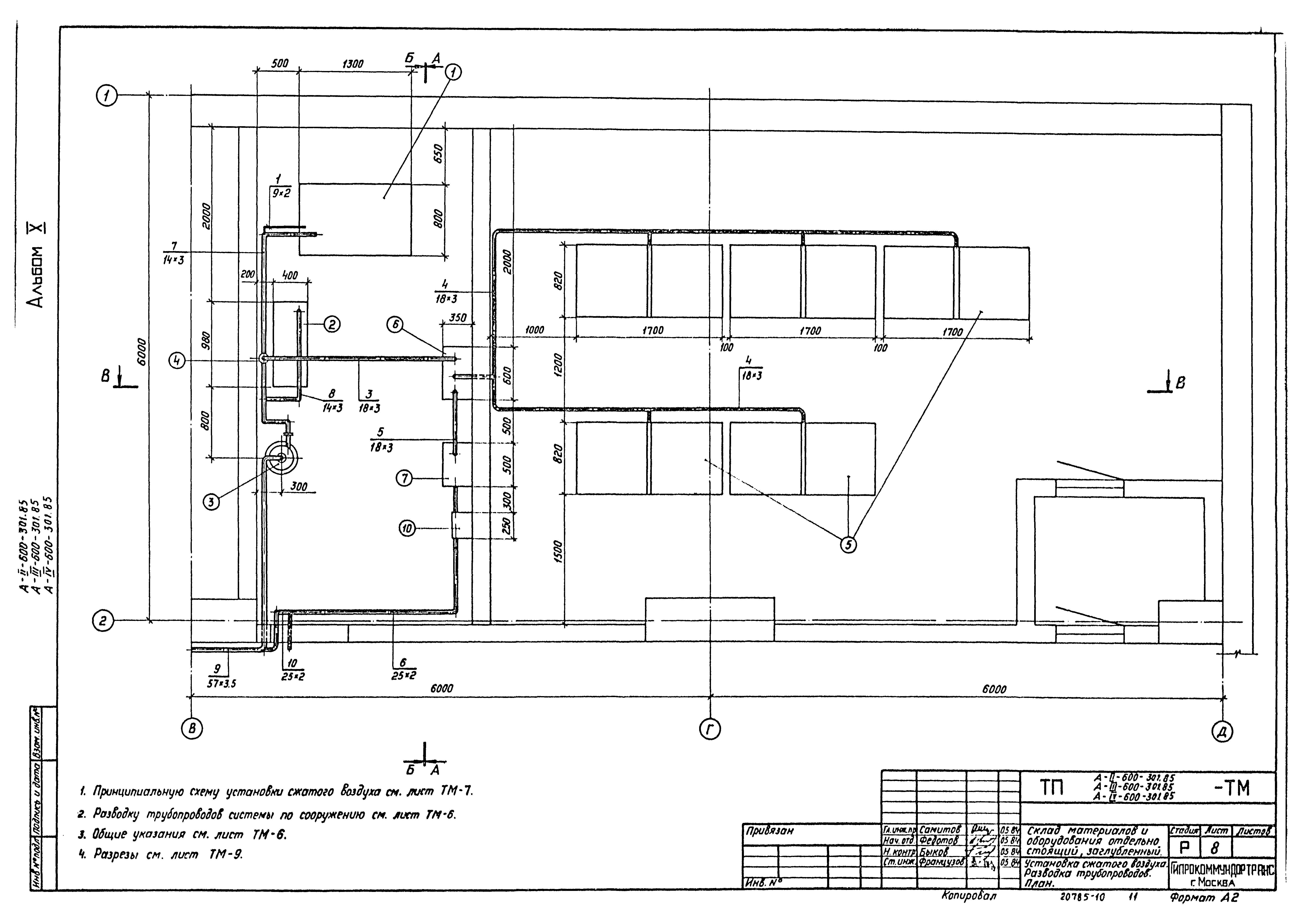
Скачать Типовой проект А-II,III,IV-600-301.85 Альбом X. Тепломеханическая часть. Спецификация оборудования. Ведомости потребности в материалах. Эскизные чертежи общих видов нетиповых конструкцийДата актуализации: 01.01.2021 Типовой проект А-II,III,IV-600-301.85
Альбом X. Тепломеханическая часть. Спецификация оборудования. Ведомости потребности в материалах. Эскизные чертежи общих видов нетиповых конструкций| Обозначение: | Типовой проект А-II,III,IV-600-301.85 | | Обозначение англ: | А-II,III,IV-600-301.85 | | Статус: | действует | | Название рус.: | Альбом X. Тепломеханическая часть. Спецификация оборудования. Ведомости потребности в материалах. Эскизные чертежи общих видов нетиповых конструкций | | Дата добавления в базу: | 01.01.2019 | | Дата актуализации: | 01.01.2021 | | Дата введения: | 30.04.1985 | | Разработан: | Гипрокоммундортранс
| | Утверждён: | 19.04.1985 Госстрой СССР (А4-7)
| | Издан: | ЦИТП Госстроя СССР (CITP, Gosstroy (USSR) 1987 г. )
| | Нормативные ссылки: | |
                    
|