Скачать Типовой проект А-II,III,IV-600-301.85 Альбом XIV. Установка автоматического пожаротушения и пожарной сигнализации. Спецификация оборудования. Ведомость потребности в материалахДата актуализации: 01.01.2021 Типовой проект А-II,III,IV-600-301.85
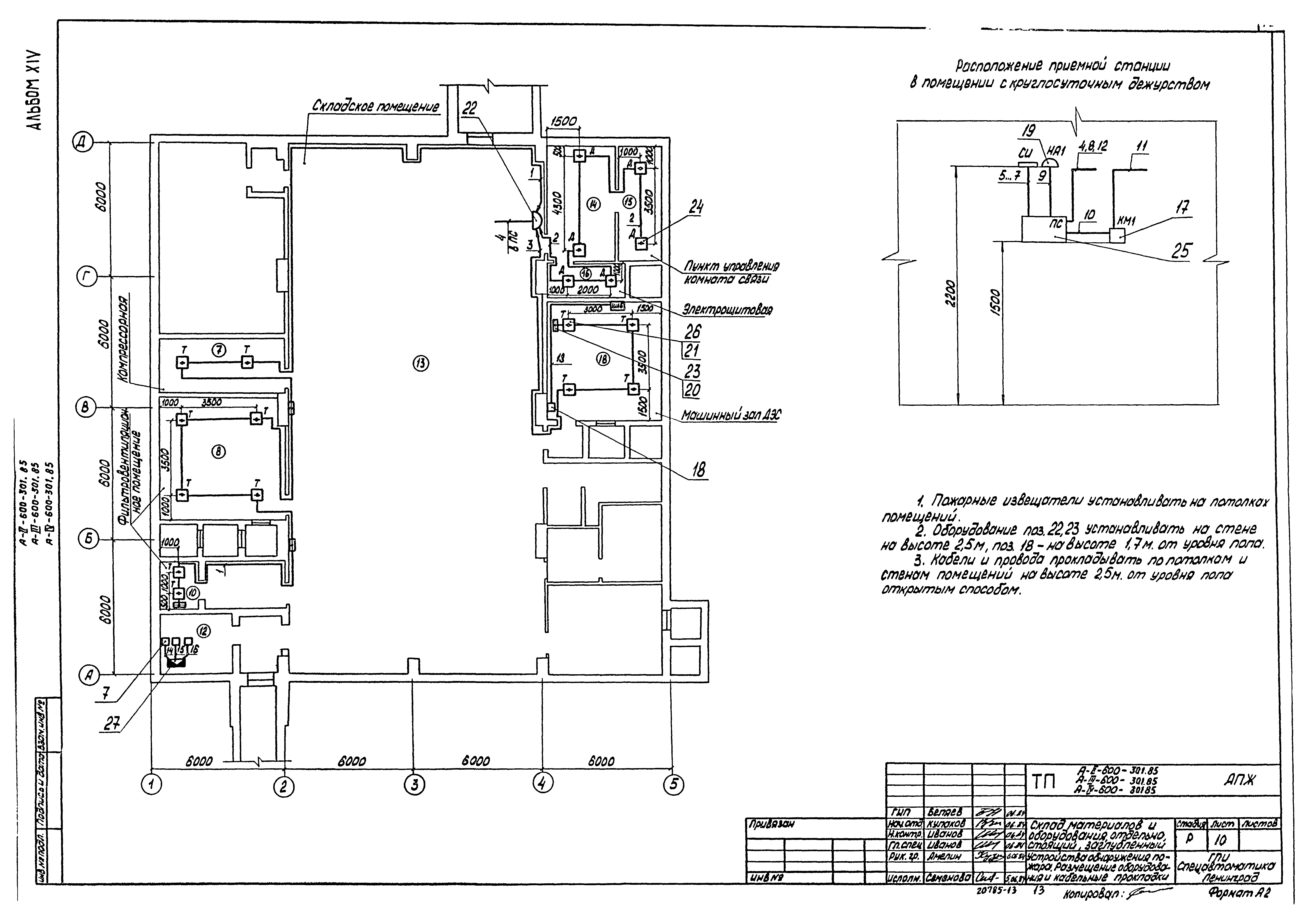
Альбом XIV. Установка автоматического пожаротушения и пожарной сигнализации. Спецификация оборудования. Ведомость потребности в материалах| Обозначение: | Типовой проект А-II,III,IV-600-301.85 | | Обозначение англ: | А-II,III,IV-600-301.85 | | Статус: | действует | | Название рус.: | Альбом XIV. Установка автоматического пожаротушения и пожарной сигнализации. Спецификация оборудования. Ведомость потребности в материалах | | Дата добавления в базу: | 01.01.2019 | | Дата актуализации: | 01.01.2021 | | Дата введения: | 30.04.1985 | | Разработан: | Гипрокоммундортранс
| | Утверждён: | 19.04.1985 Госстрой СССР (А4-7)
| | Издан: | ЦИТП Госстроя СССР (CITP, Gosstroy (USSR) 1986 г. )
| | Нормативные ссылки: | |
                  
|