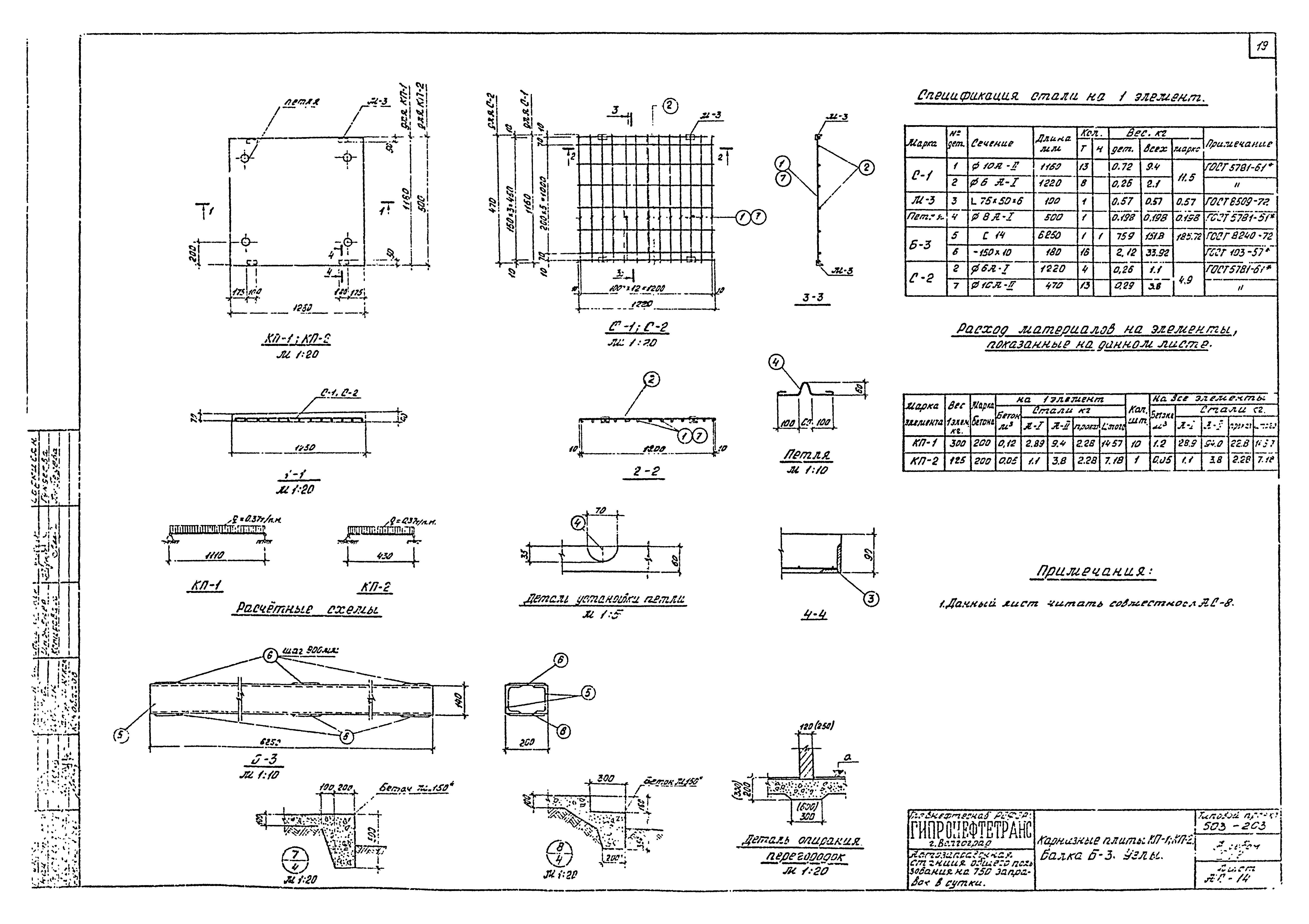
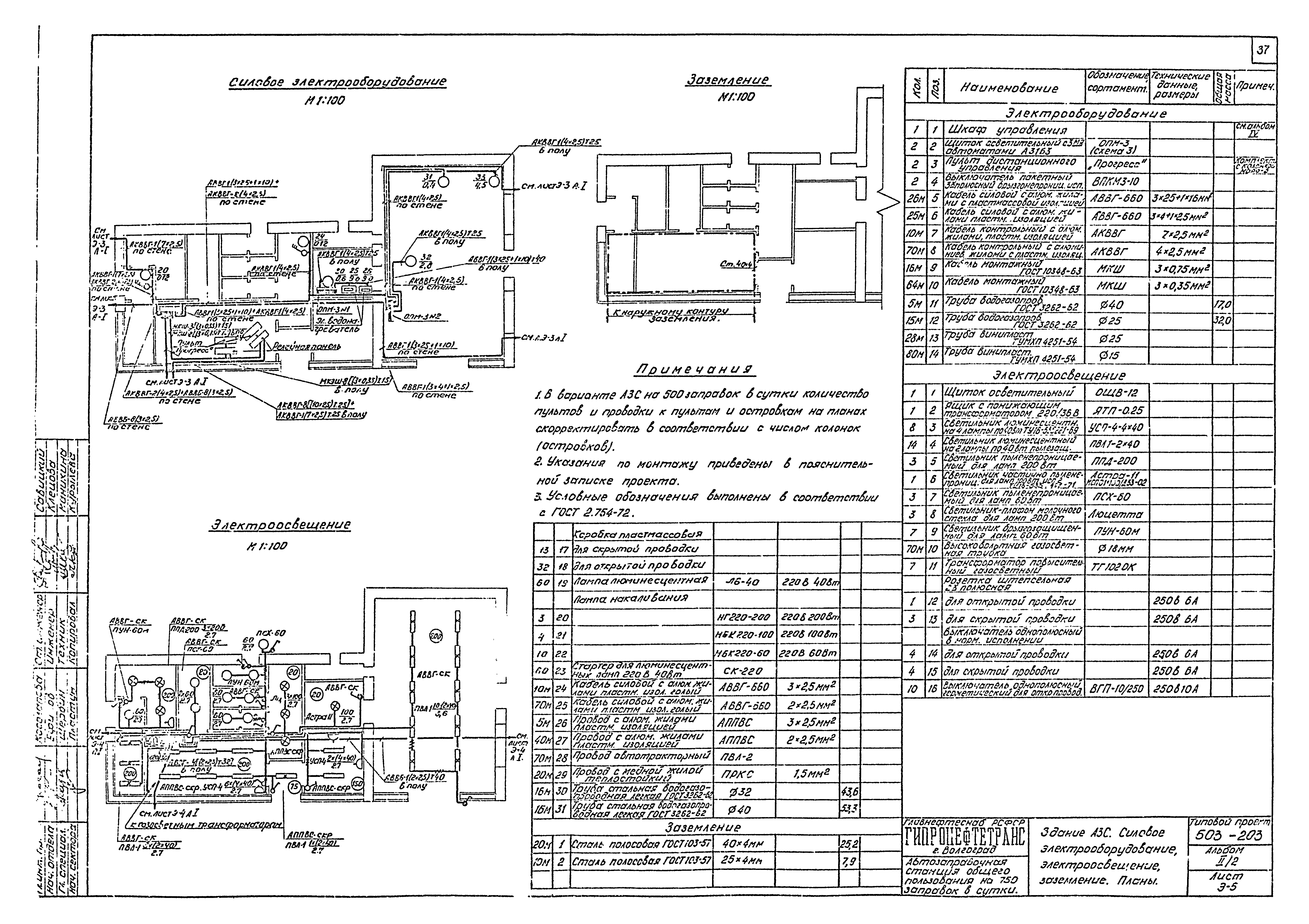
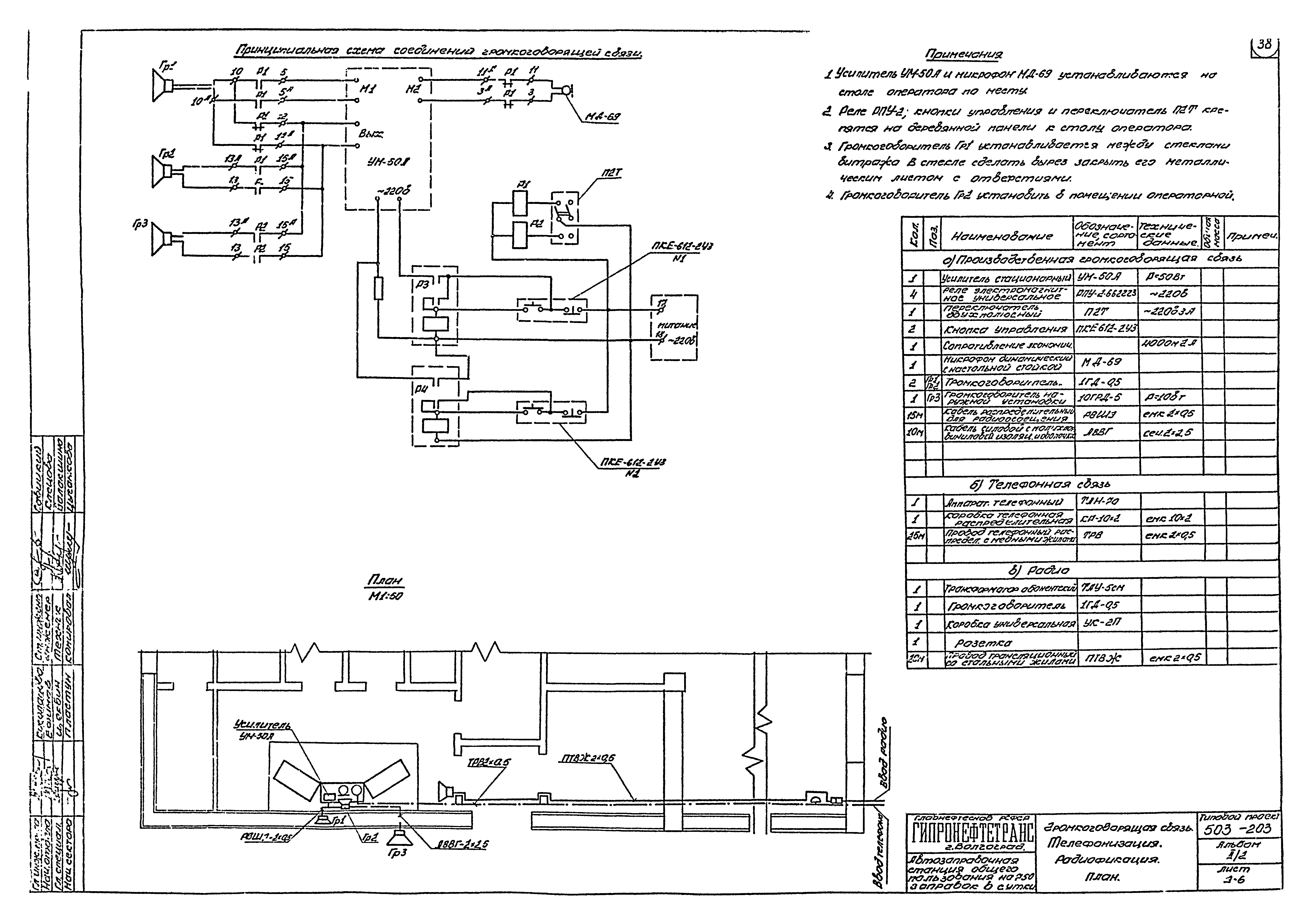
Скачать Типовой проект 503-203 Альбом II/2. Здание станции. Технологическая, архитектурно-строительная, санитарно-техническая, электротехническая части (с постом технического обслуживания)Дата актуализации: 01.01.2021 Типовой проект 503-203
Альбом II/2. Здание станции. Технологическая, архитектурно-строительная, санитарно-техническая, электротехническая части (с постом технического обслуживания)| Обозначение: | Типовой проект 503-203 | | Обозначение англ: | 503-203 | | Статус: | отменен | | Название рус.: | Альбом II/2. Здание станции. Технологическая, архитектурно-строительная, санитарно-техническая, электротехническая части (с постом технического обслуживания) | | Дата добавления в базу: | 01.01.2019 | | Дата актуализации: | 01.01.2021 | | Дата введения: | 18.04.1974 | | Дата окончания срока действия: | 01.02.1987 | | Разработан: | Гипронефтетранс
| | Утверждён: | 18.04.1974 Главнефтеснаб РСФСР (89)
| | Издан: | ЦИТП Госстроя СССР (CITP, Gosstroy (USSR) 1975 г. )
|
                                     
|