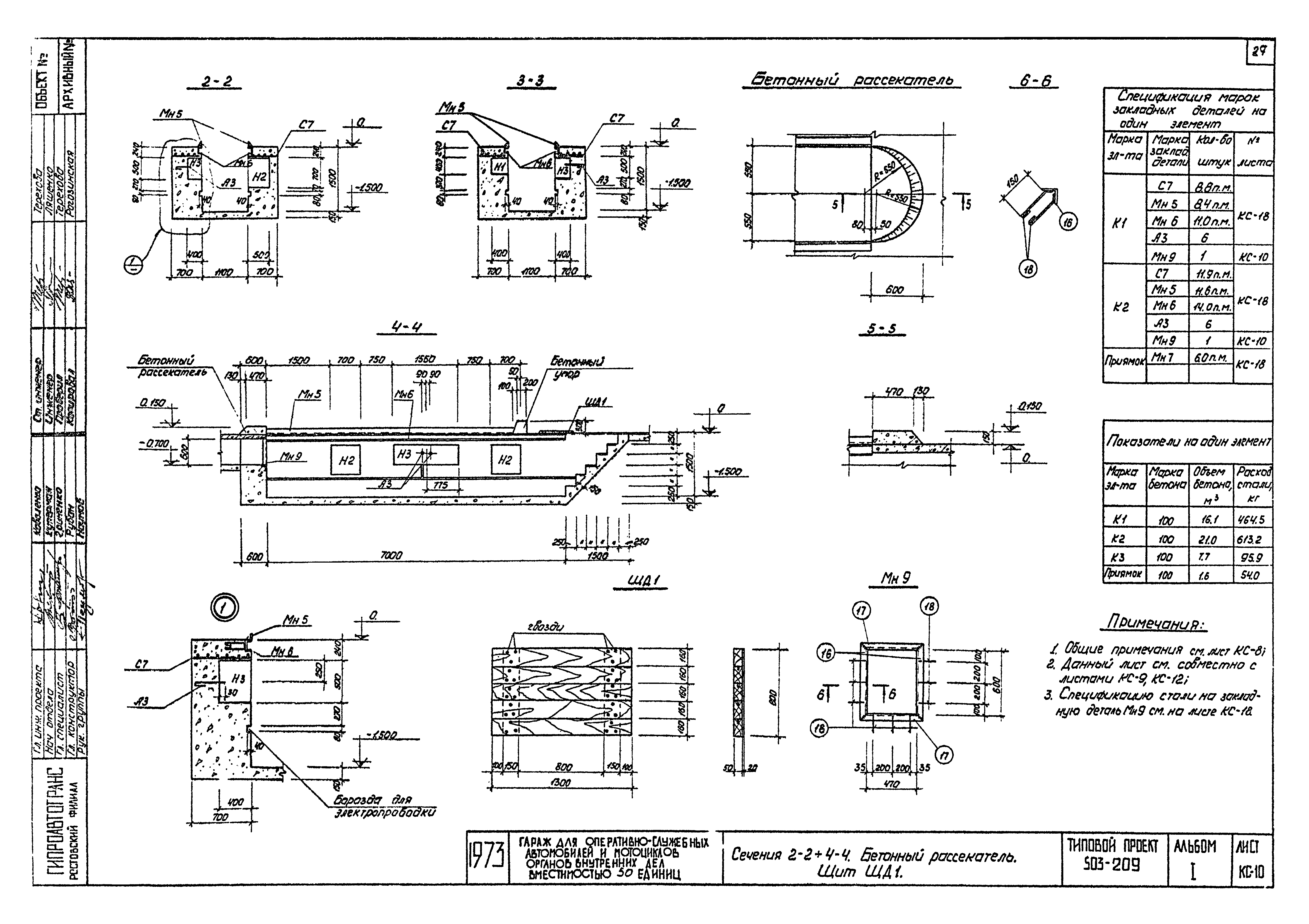
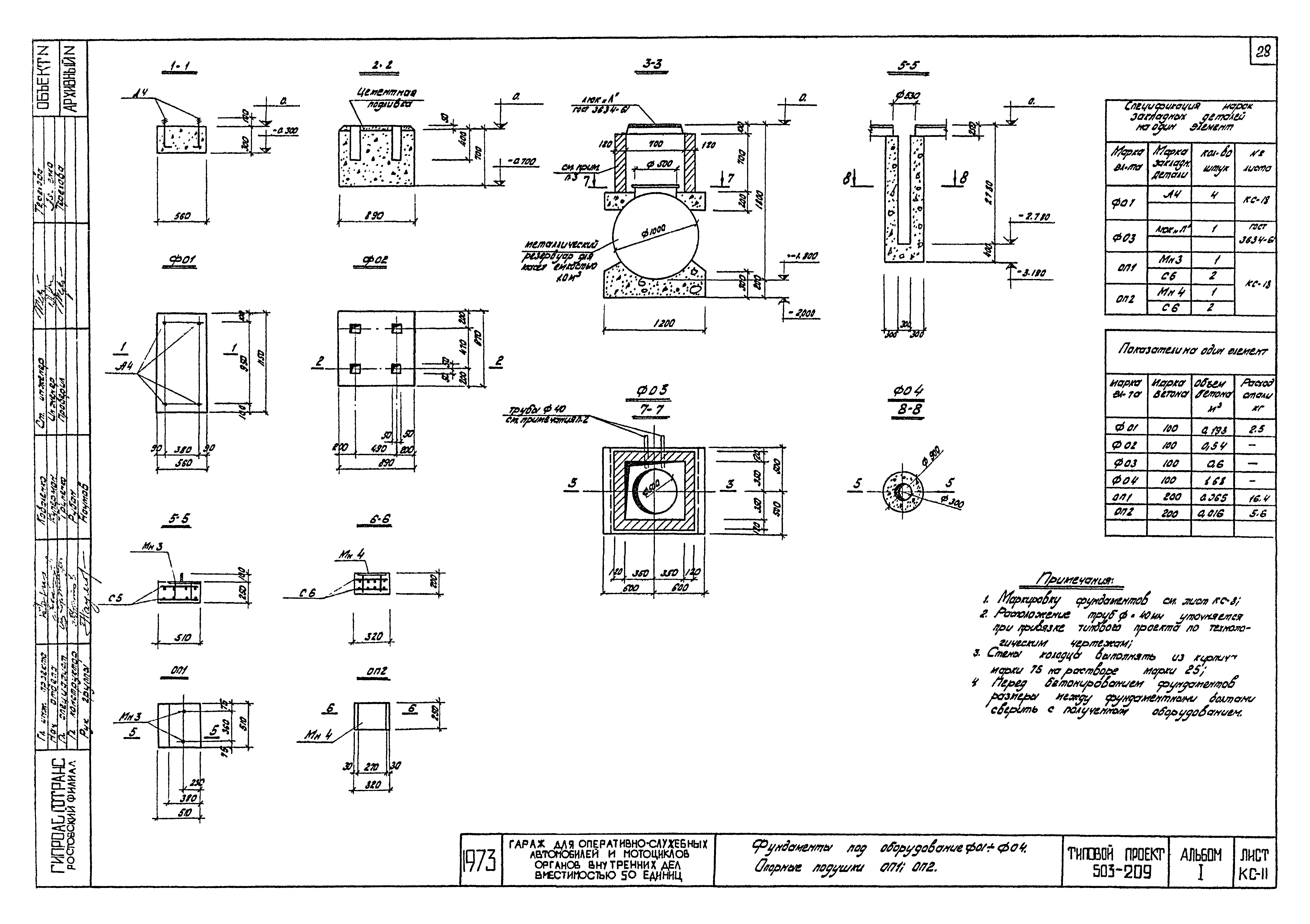
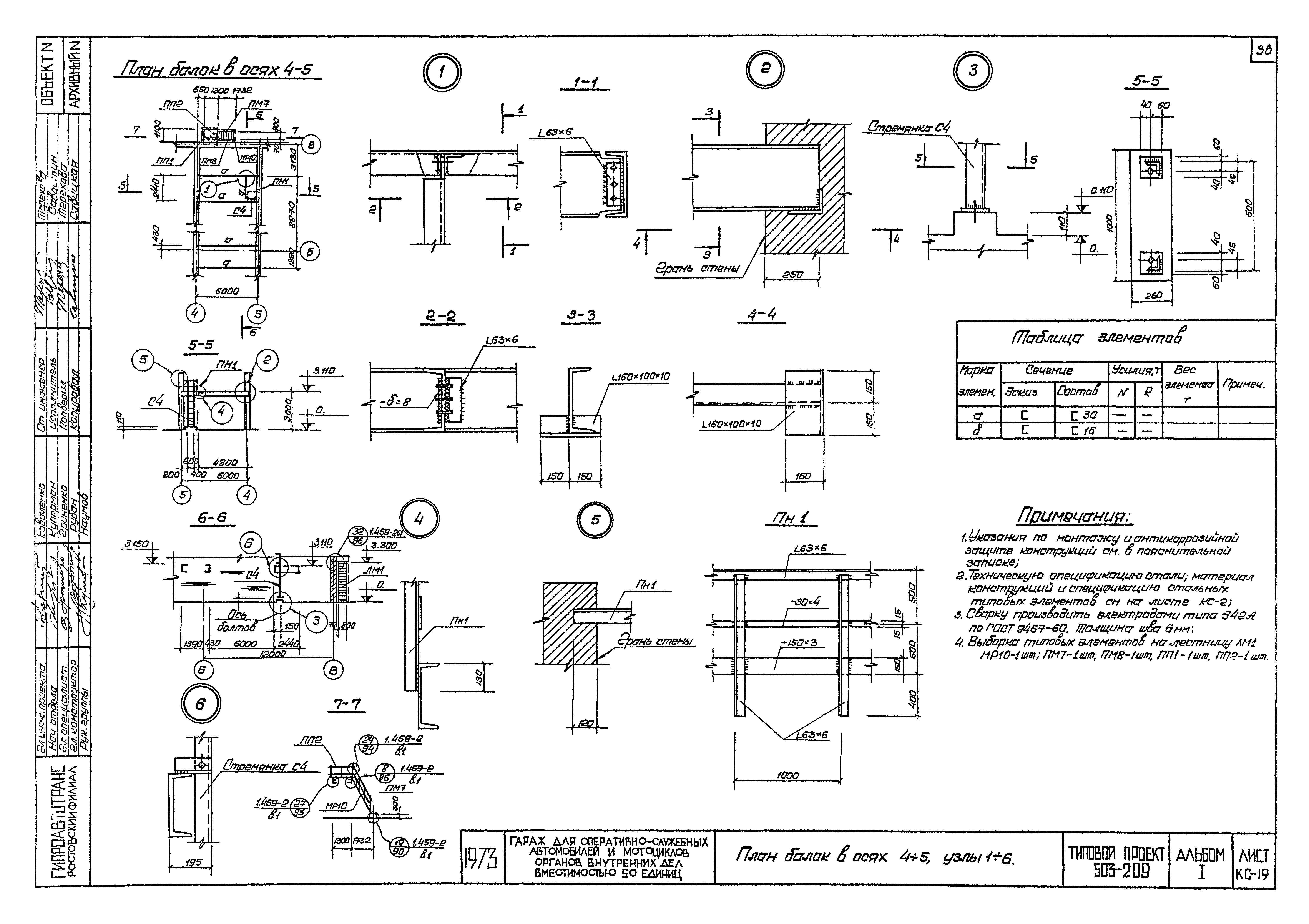
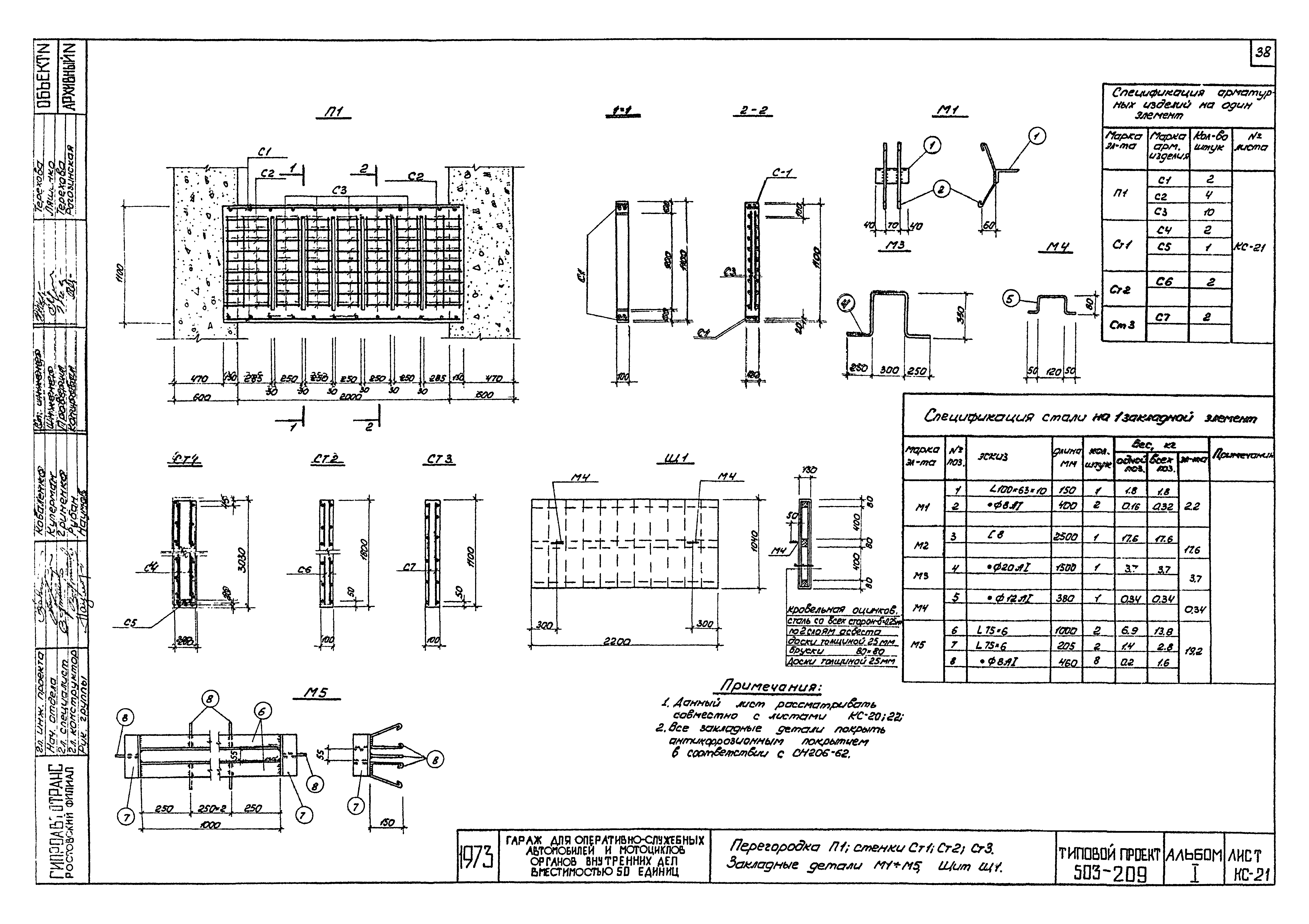
Скачать Типовой проект 503-209 Альбом I. Пояснительная записка, схема генплана, технологические чертежи. Архитектурно-строительные чертежиДата актуализации: 01.01.2021 Типовой проект 503-209
Альбом I. Пояснительная записка, схема генплана, технологические чертежи. Архитектурно-строительные чертежи| Обозначение: | Типовой проект 503-209 | | Обозначение англ: | 503-209 | | Статус: | действует | | Название рус.: | Альбом I. Пояснительная записка, схема генплана, технологические чертежи. Архитектурно-строительные чертежи | | Дата добавления в базу: | 01.01.2019 | | Дата актуализации: | 01.01.2021 | | Дата введения: | 13.02.1974 | | Разработан: | Гипроавтотранс
| | Утверждён: | 13.02.1974 Министерство внутренних дел СССР (USSR Ministry of Internal Affairs 48-74)
| | Издан: | ЦИТП Госстроя СССР (CITP, Gosstroy (USSR) 1974 г. )
|
                                       
|