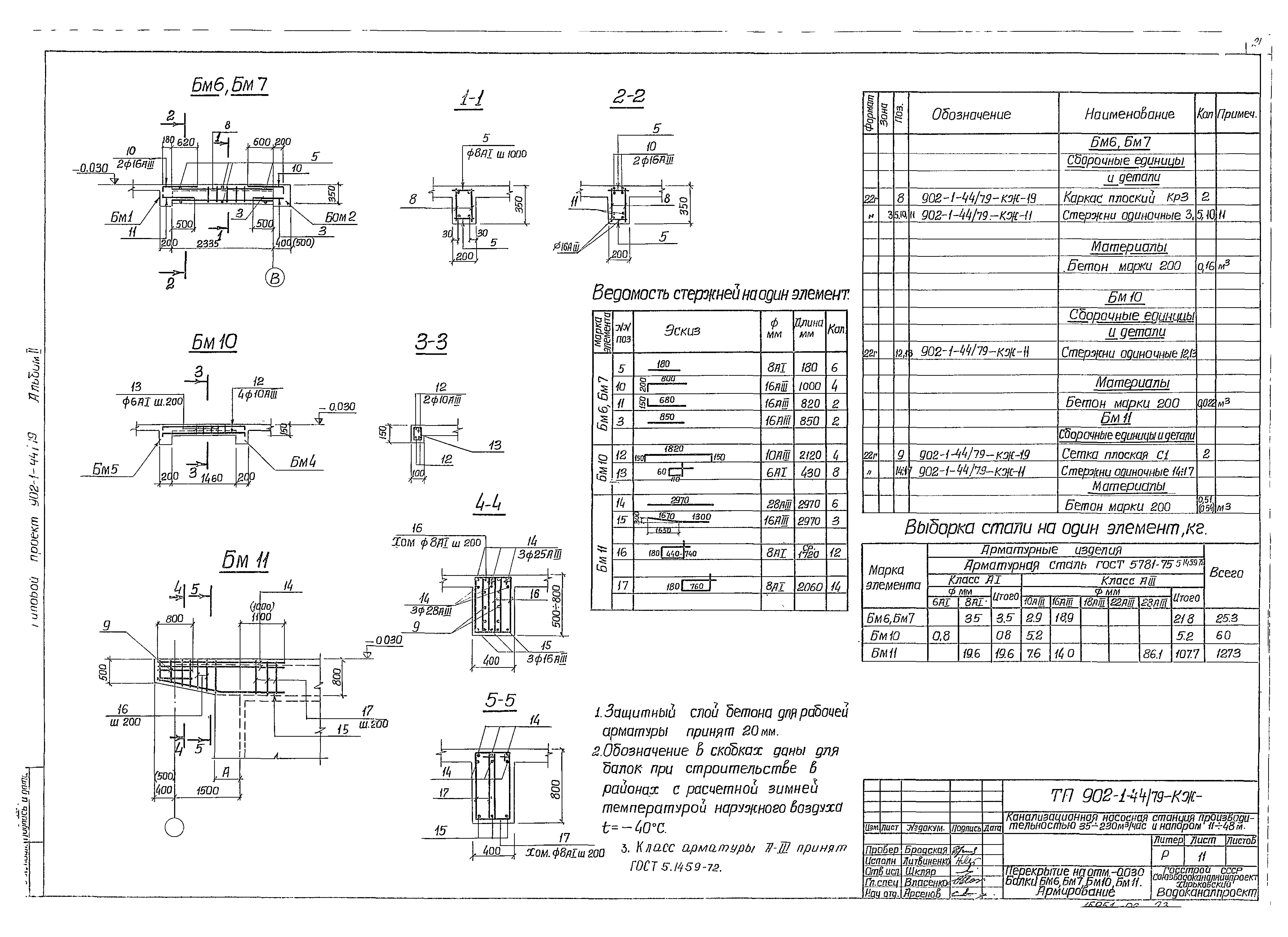
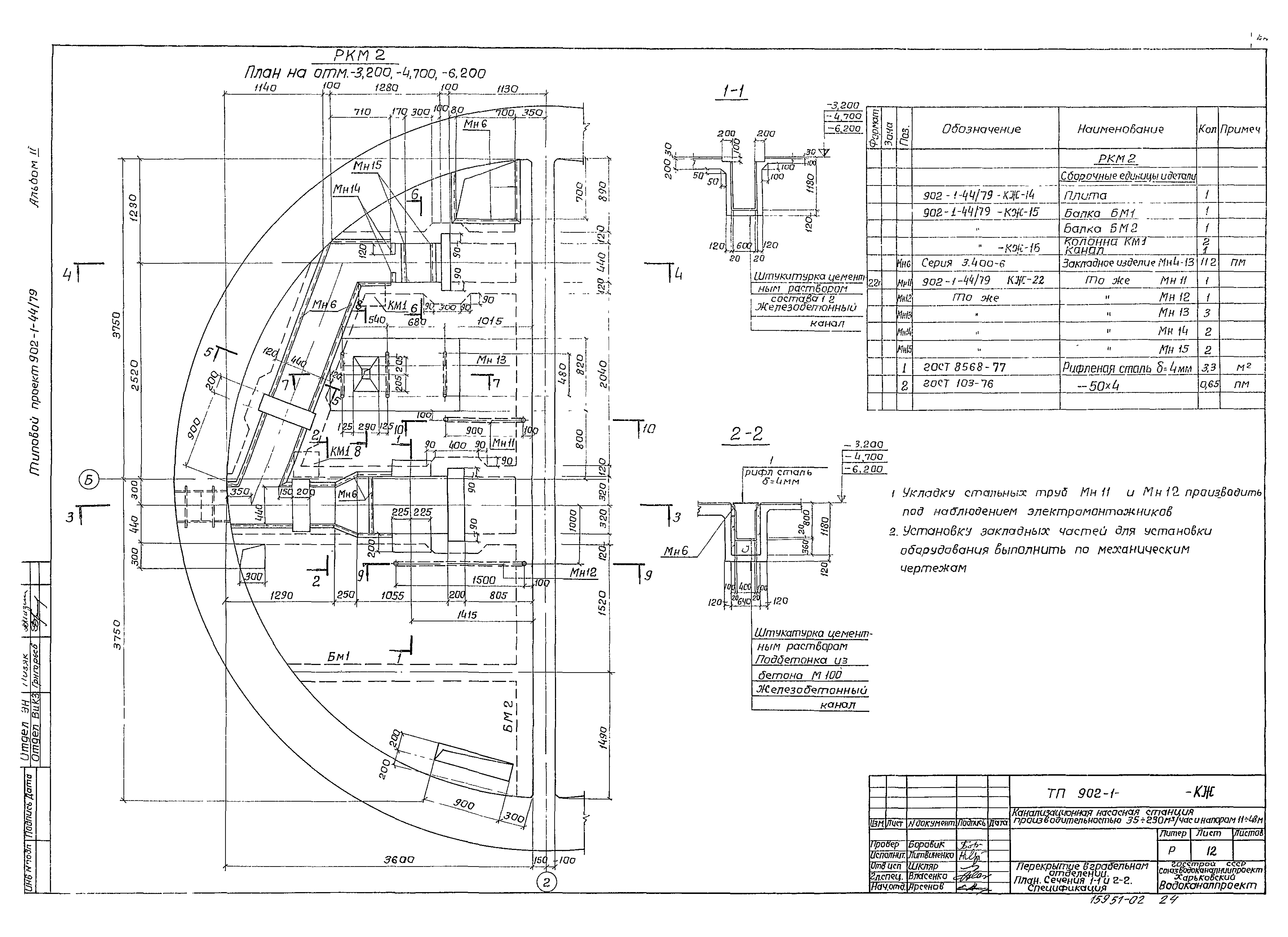
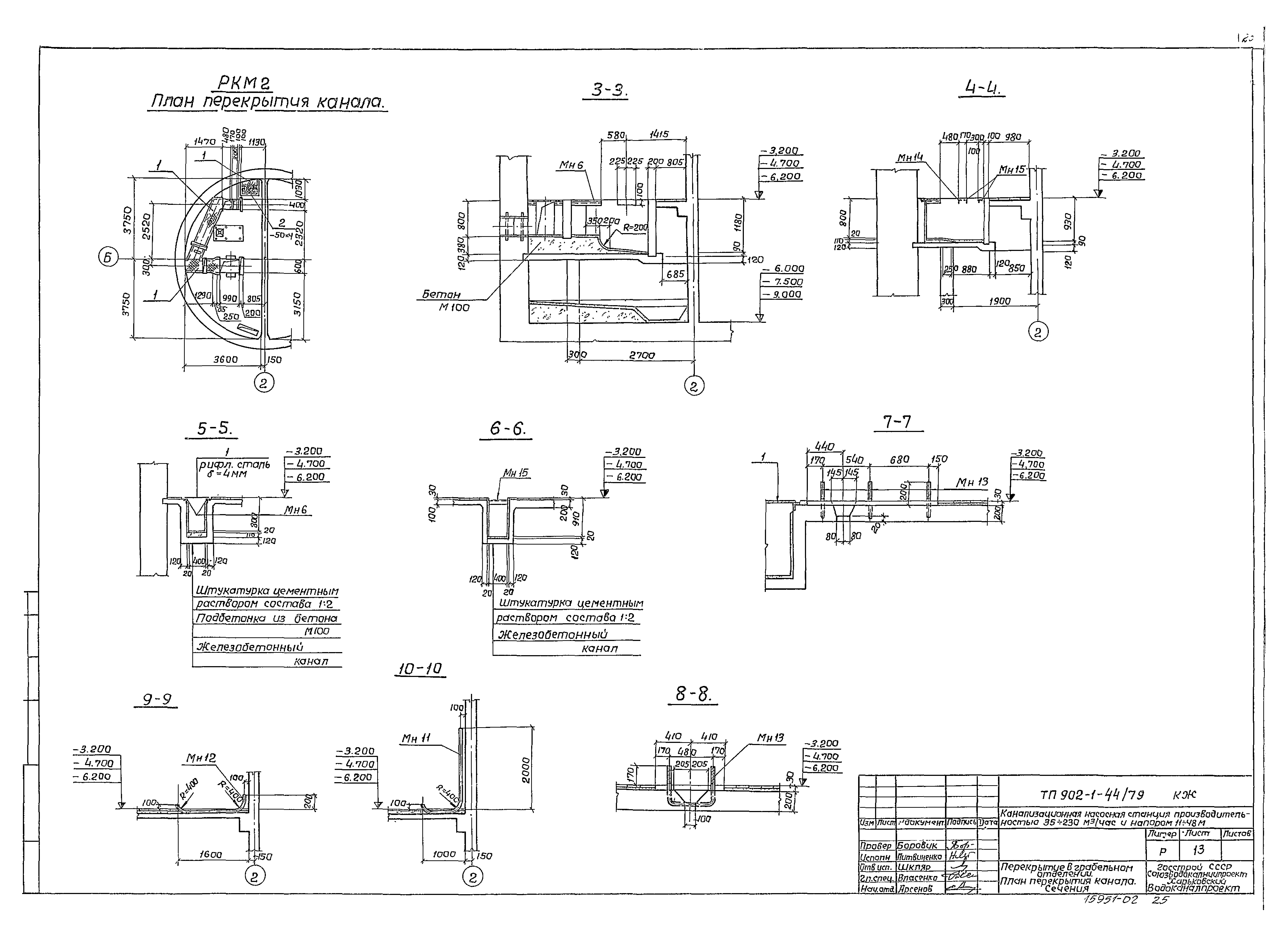
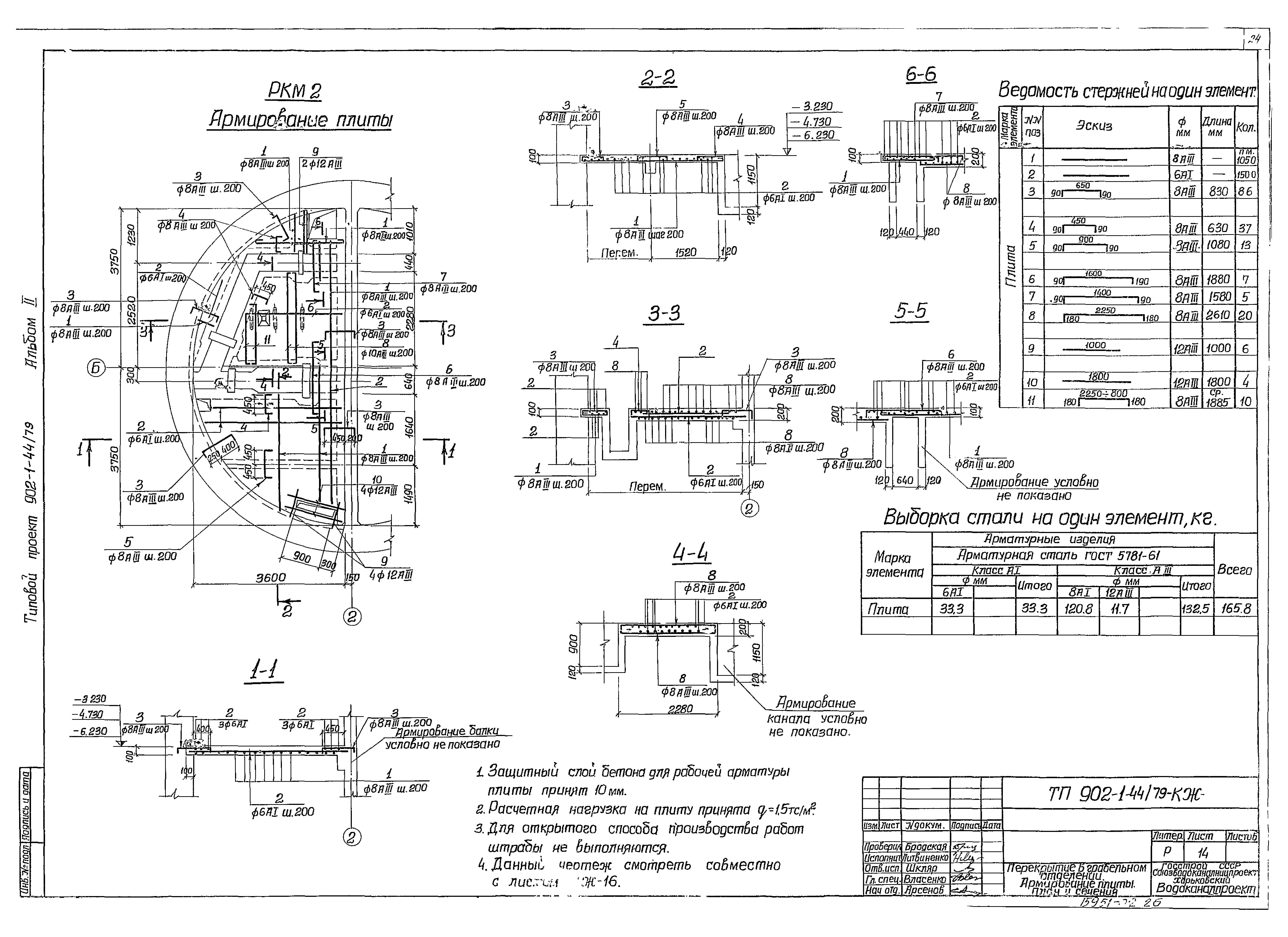
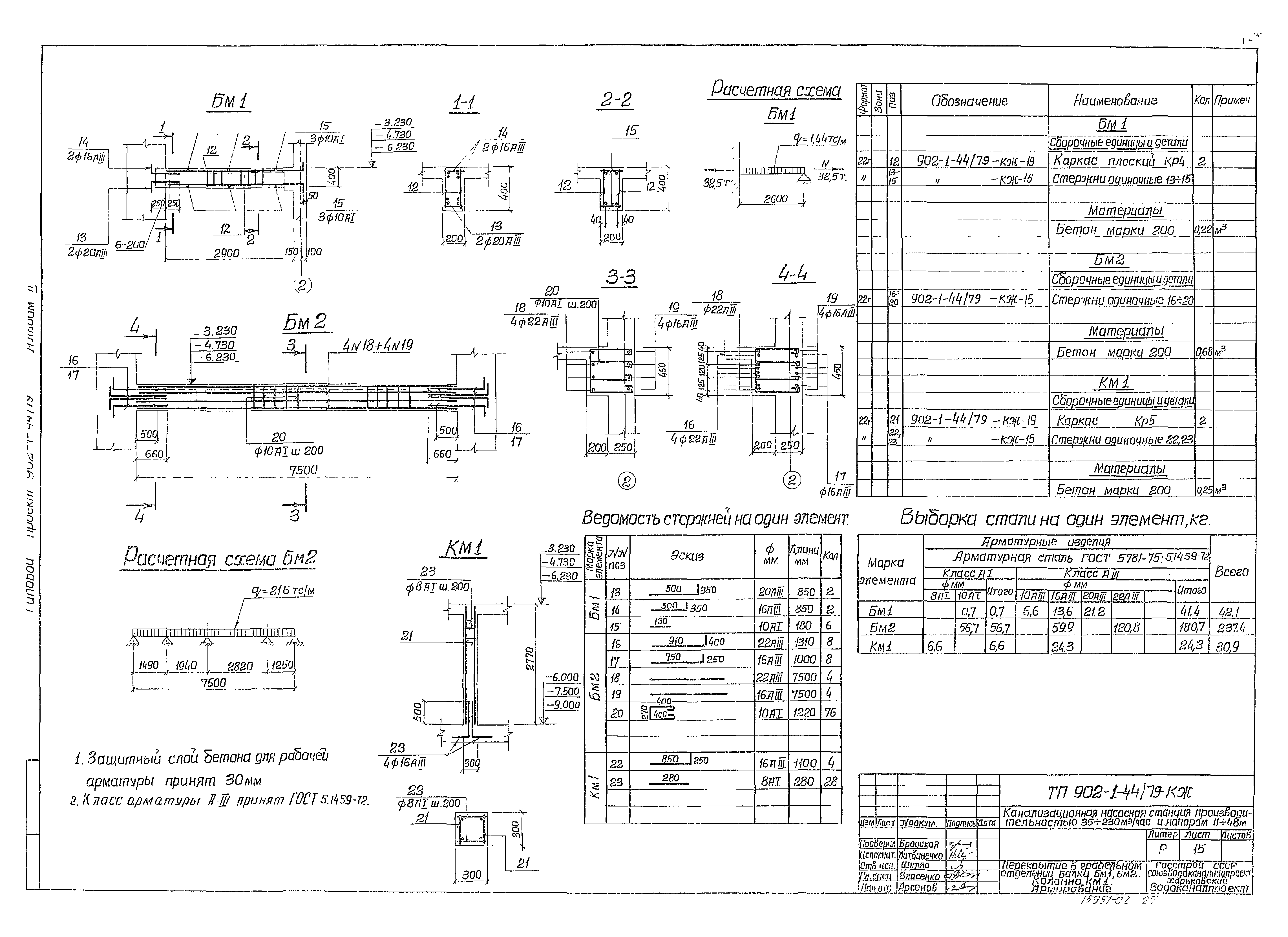
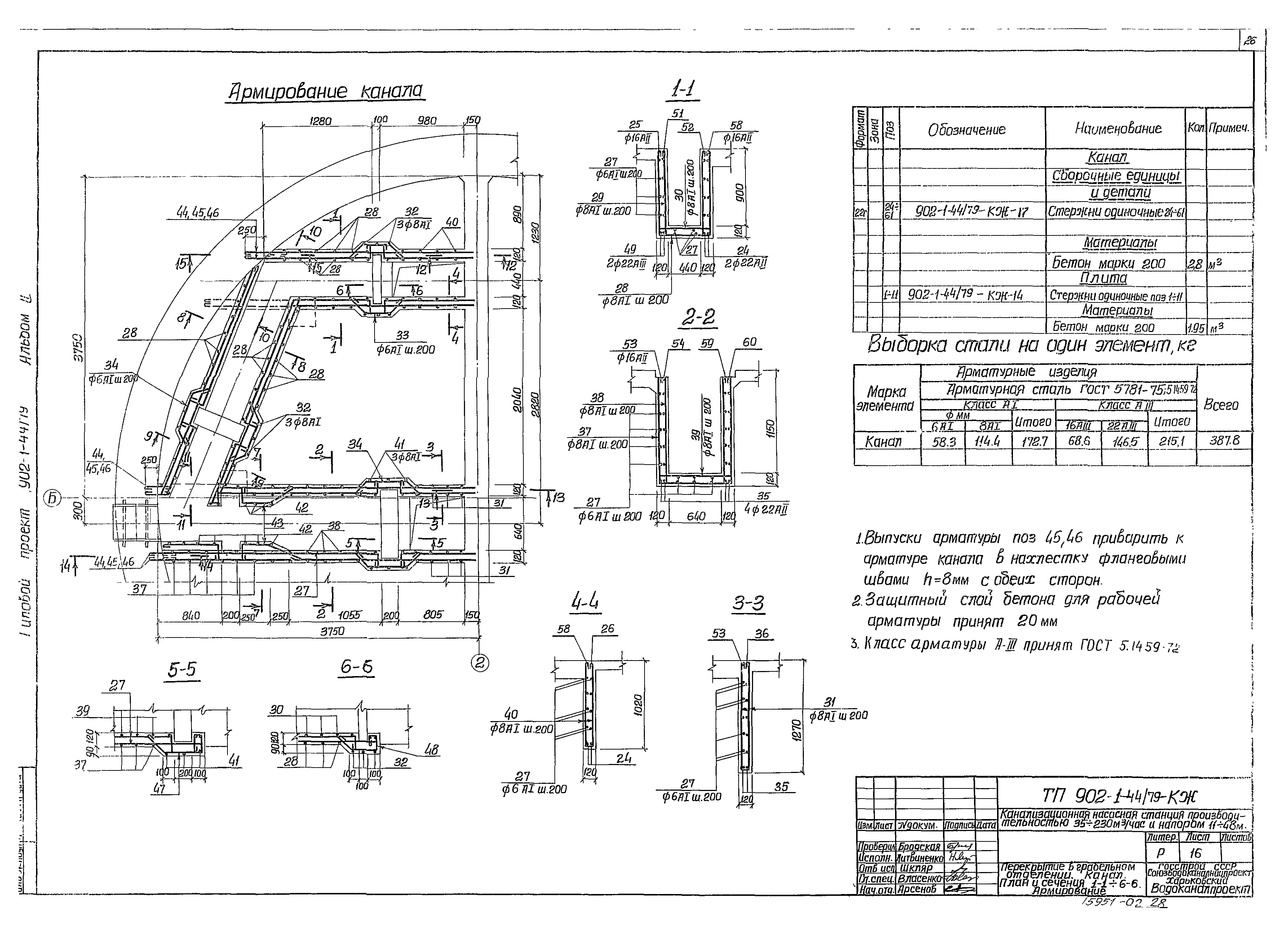
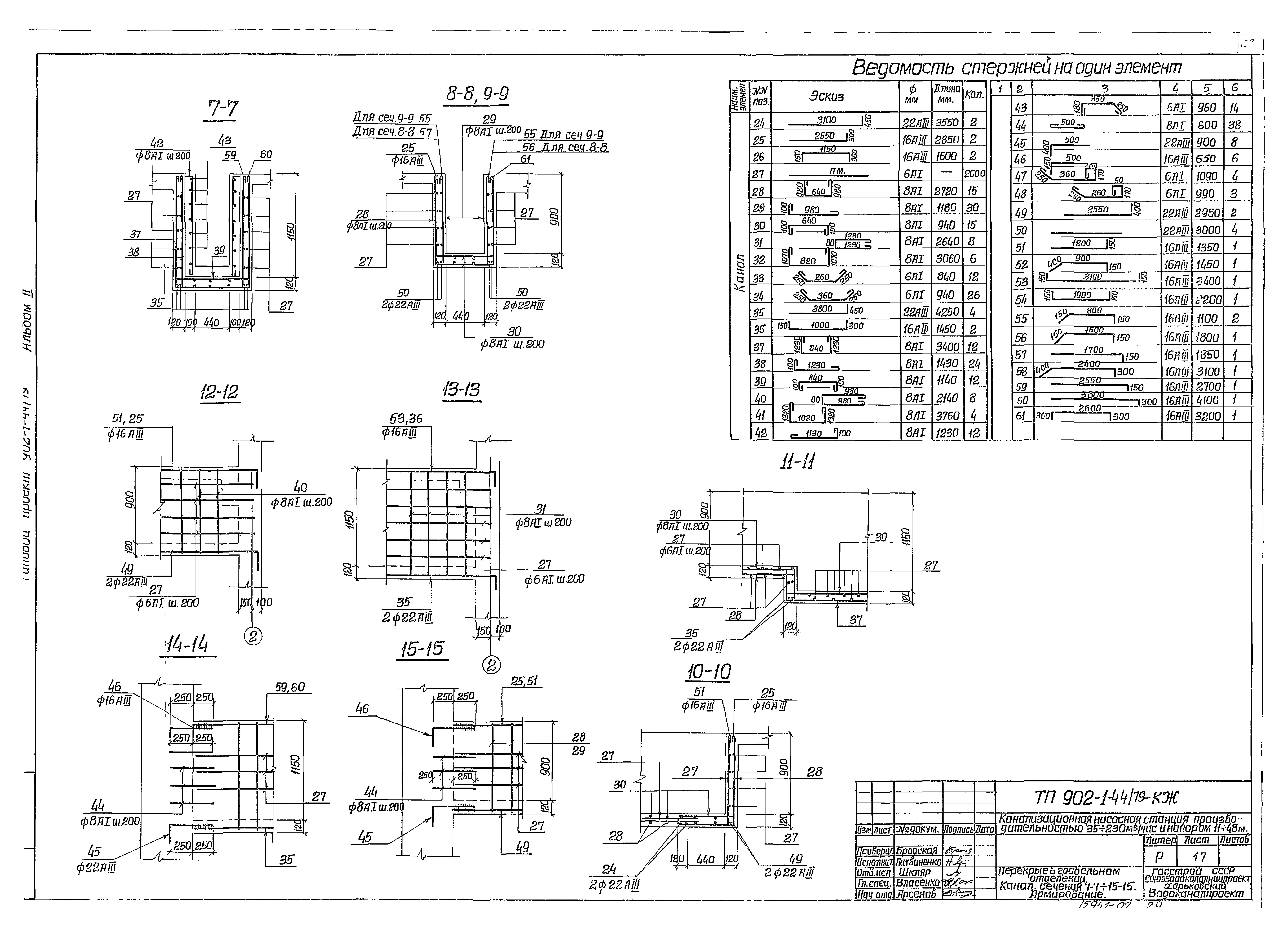
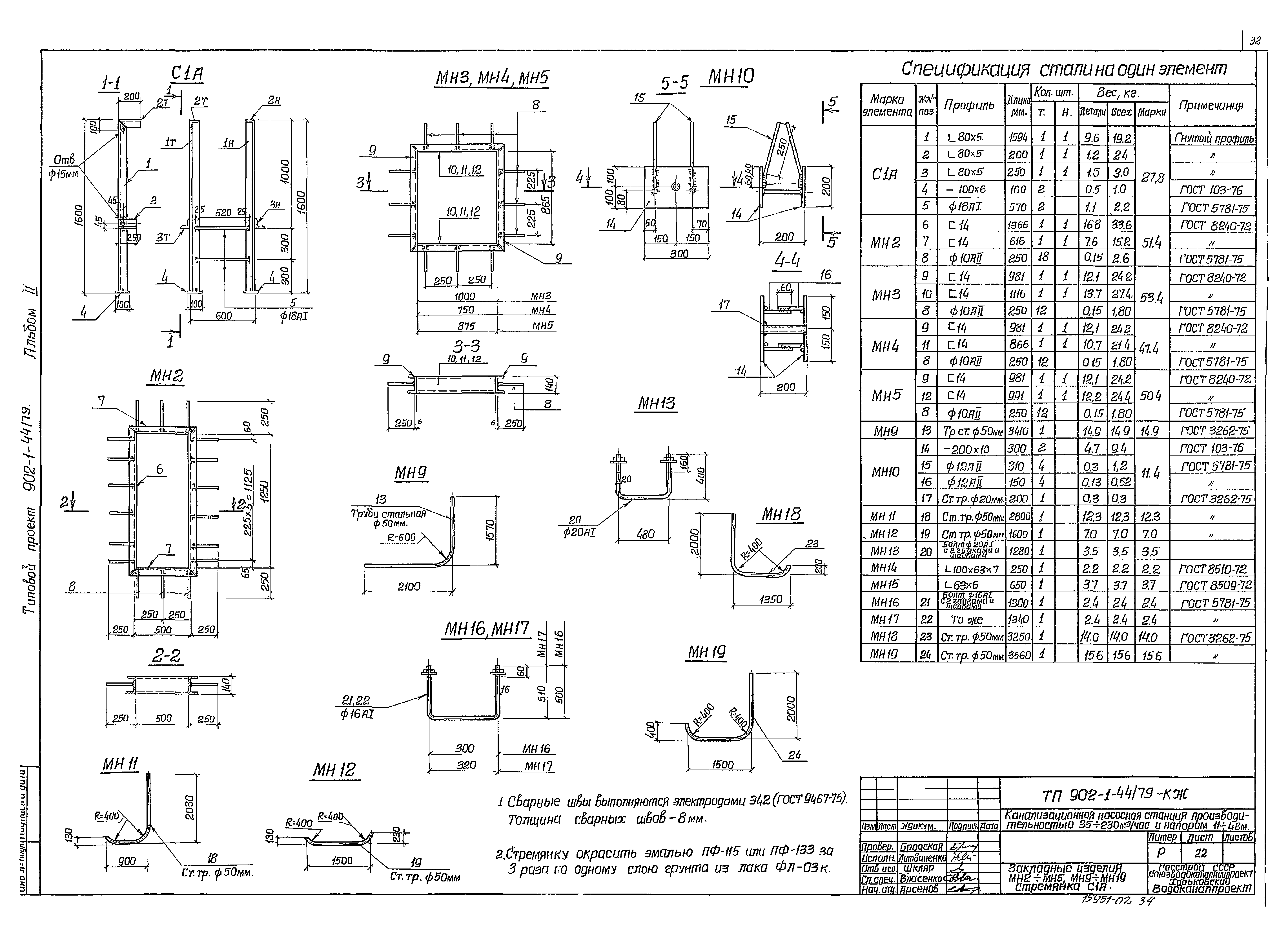
Скачать Типовой проект 902-1-44/79 Альбом II. Архитектурно-строительные решения. Надземная часть и общие чертежи. Узлы и деталиДата актуализации: 01.01.2021
|
| Обозначение: | Типовой проект 902-1-44/79 |
| Обозначение англ: | 902-1-44/79 |
| Статус: | не действует |
| Название рус.: | Альбом II. Архитектурно-строительные решения. Надземная часть и общие чертежи. Узлы и детали |
| Дата добавления в базу: | 01.01.2019 |
| Дата актуализации: | 01.01.2021 |
| Дата введения: | 25.03.1979 |
| Дата окончания срока действия: | 01.07.1984 |
| Разработан: | Харьковский Водоканалпроект |
| Утверждён: | 05.08.1976 Главпромстройпроект Госстроя СССР (50) |
| Заменяет собой: |
|

































