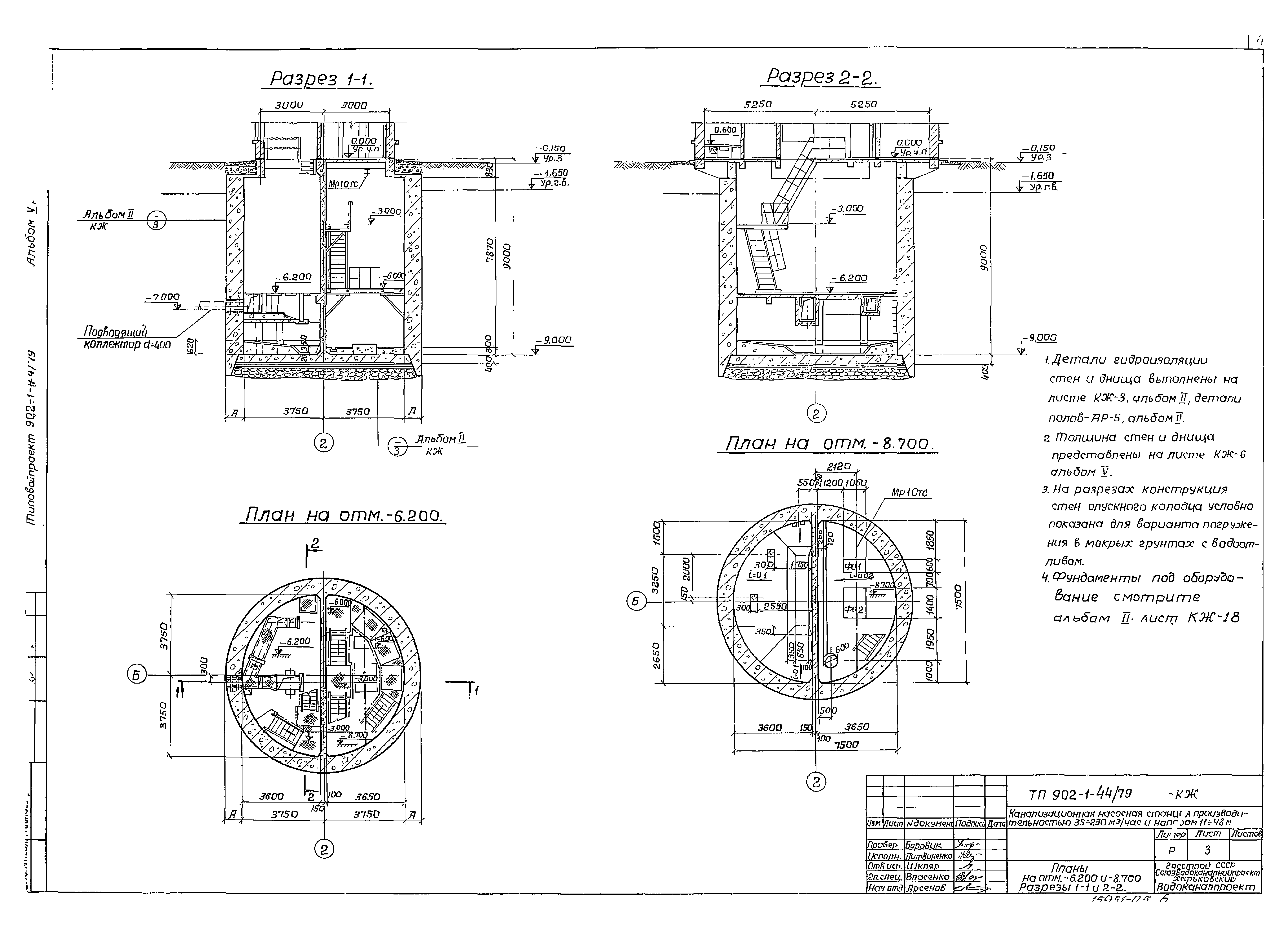
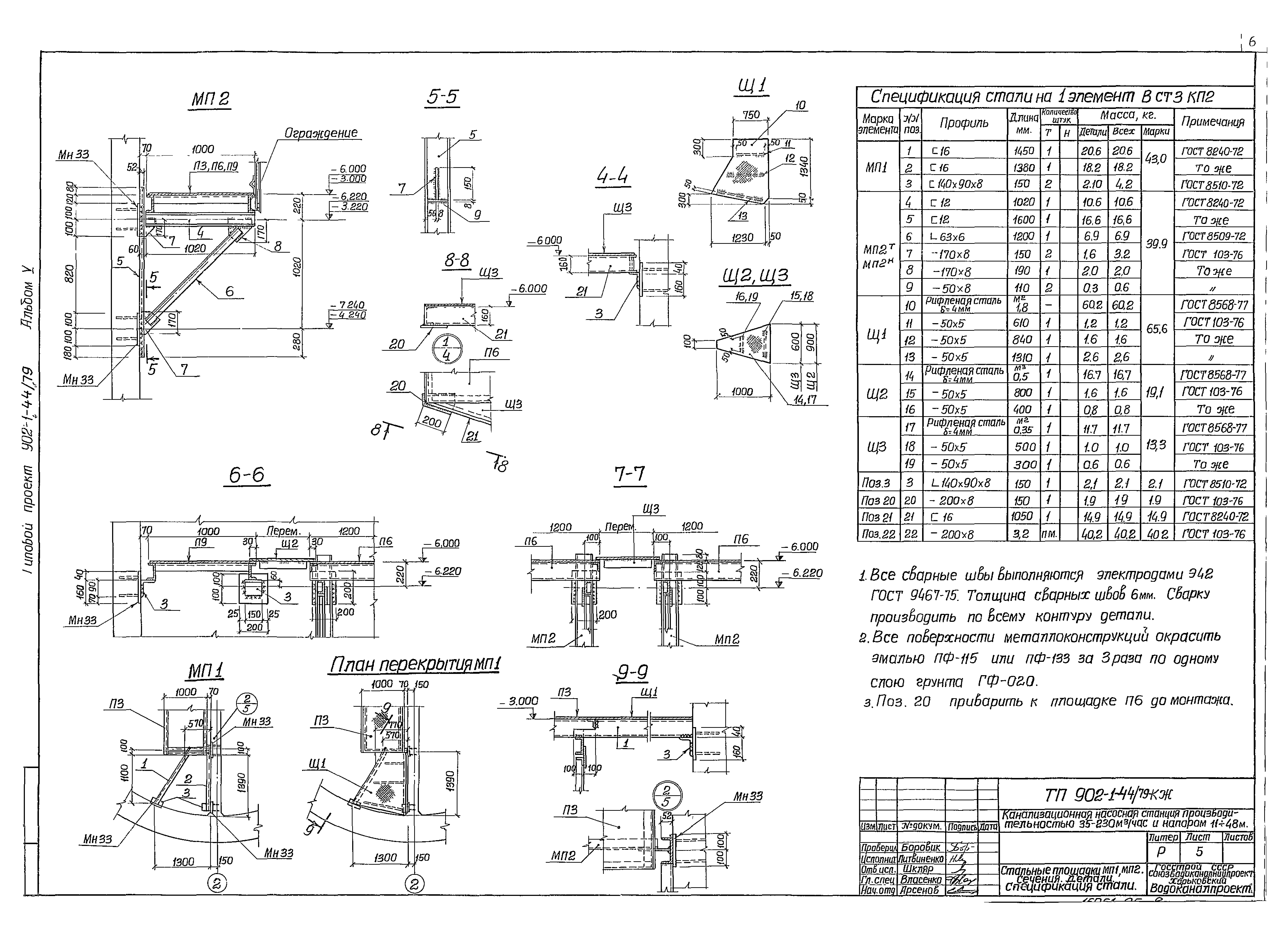
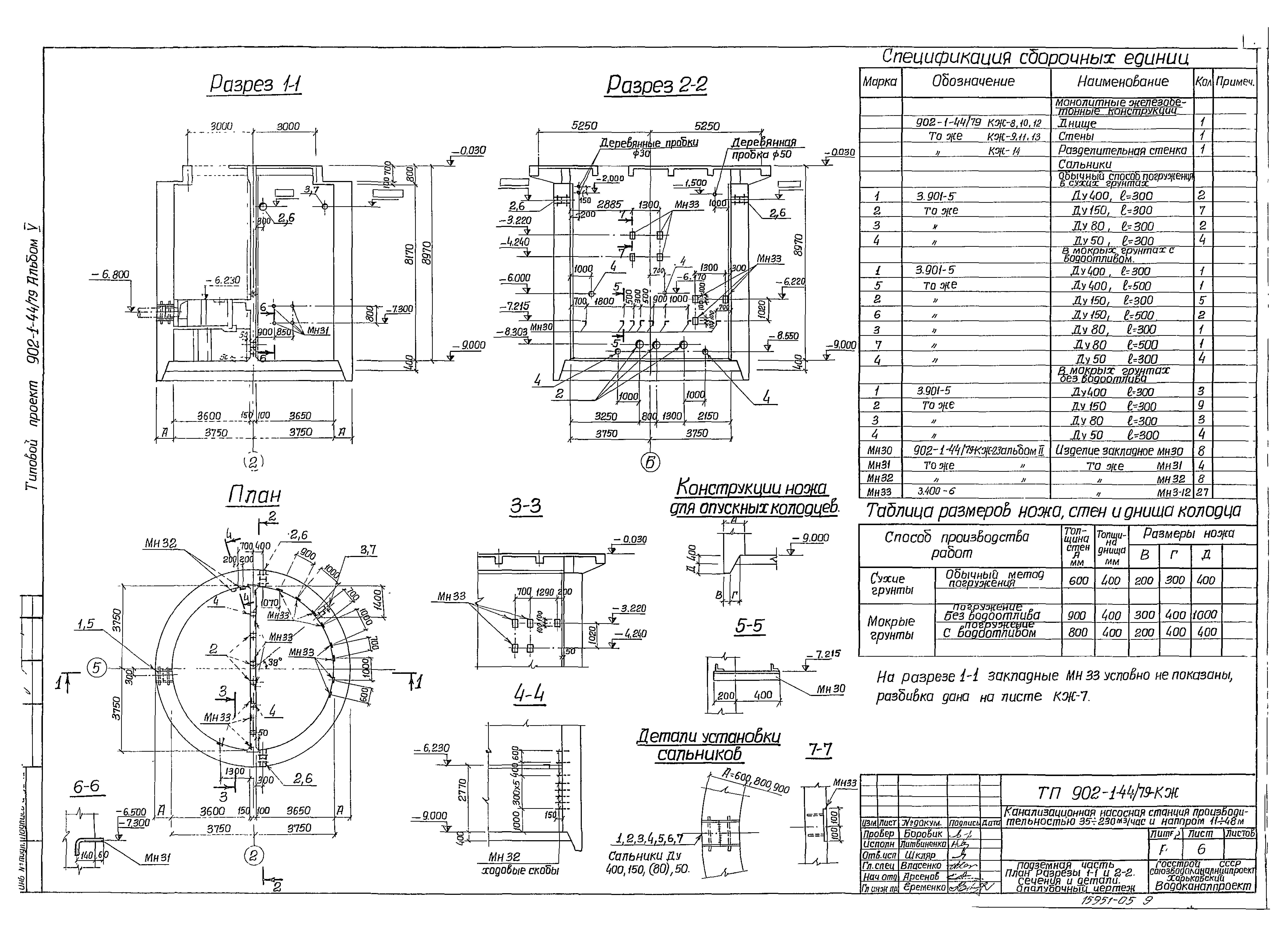
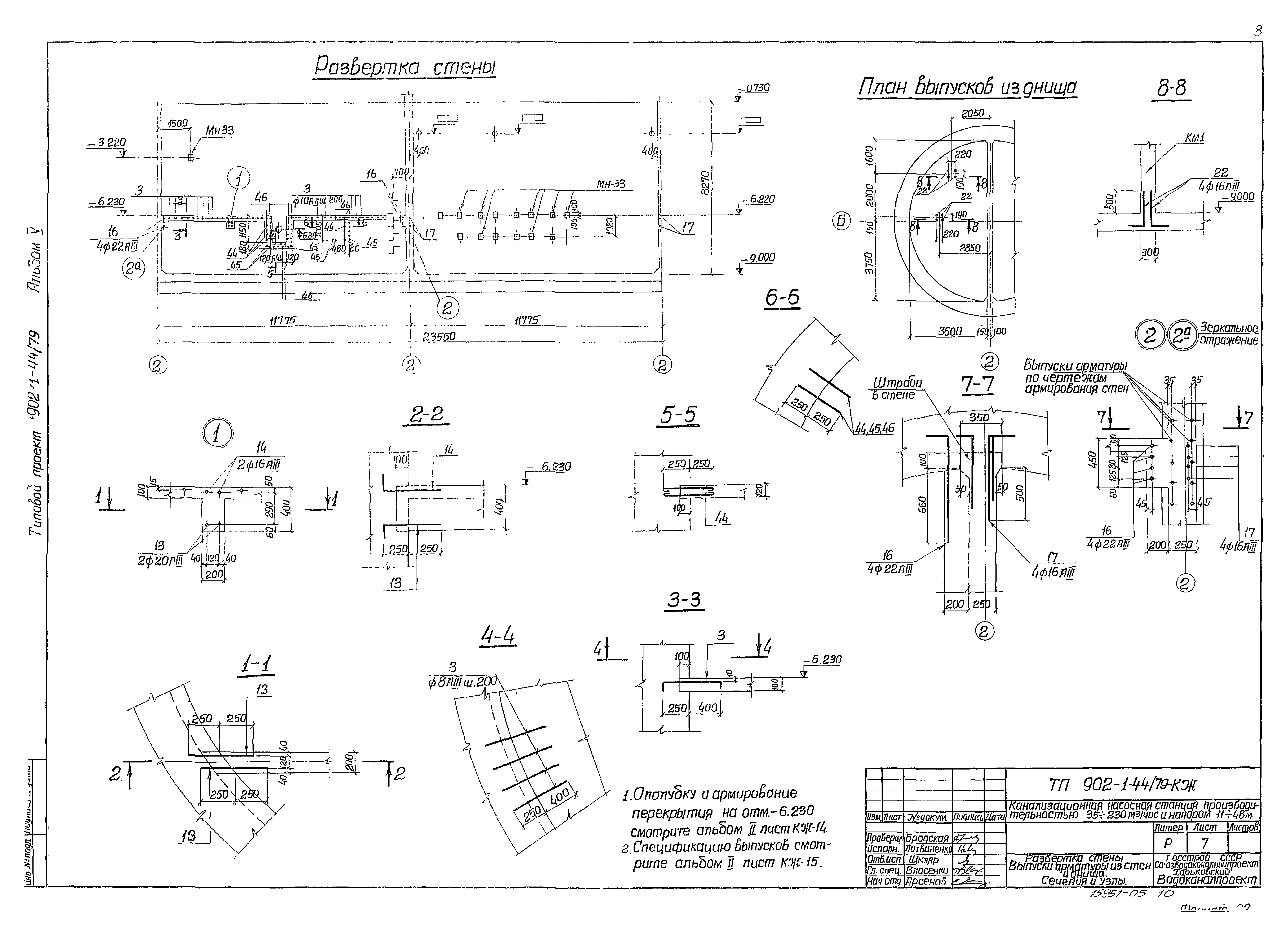
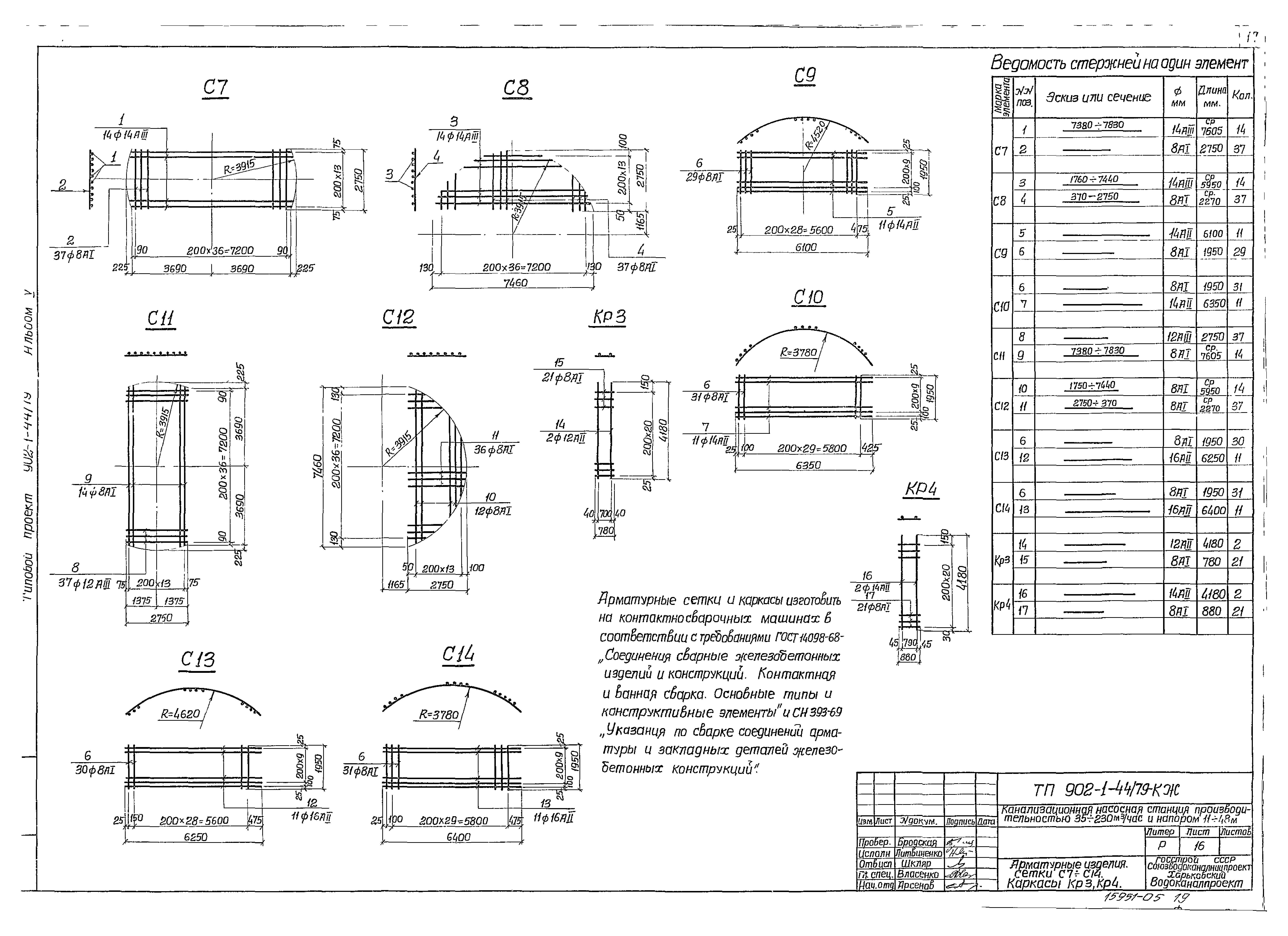
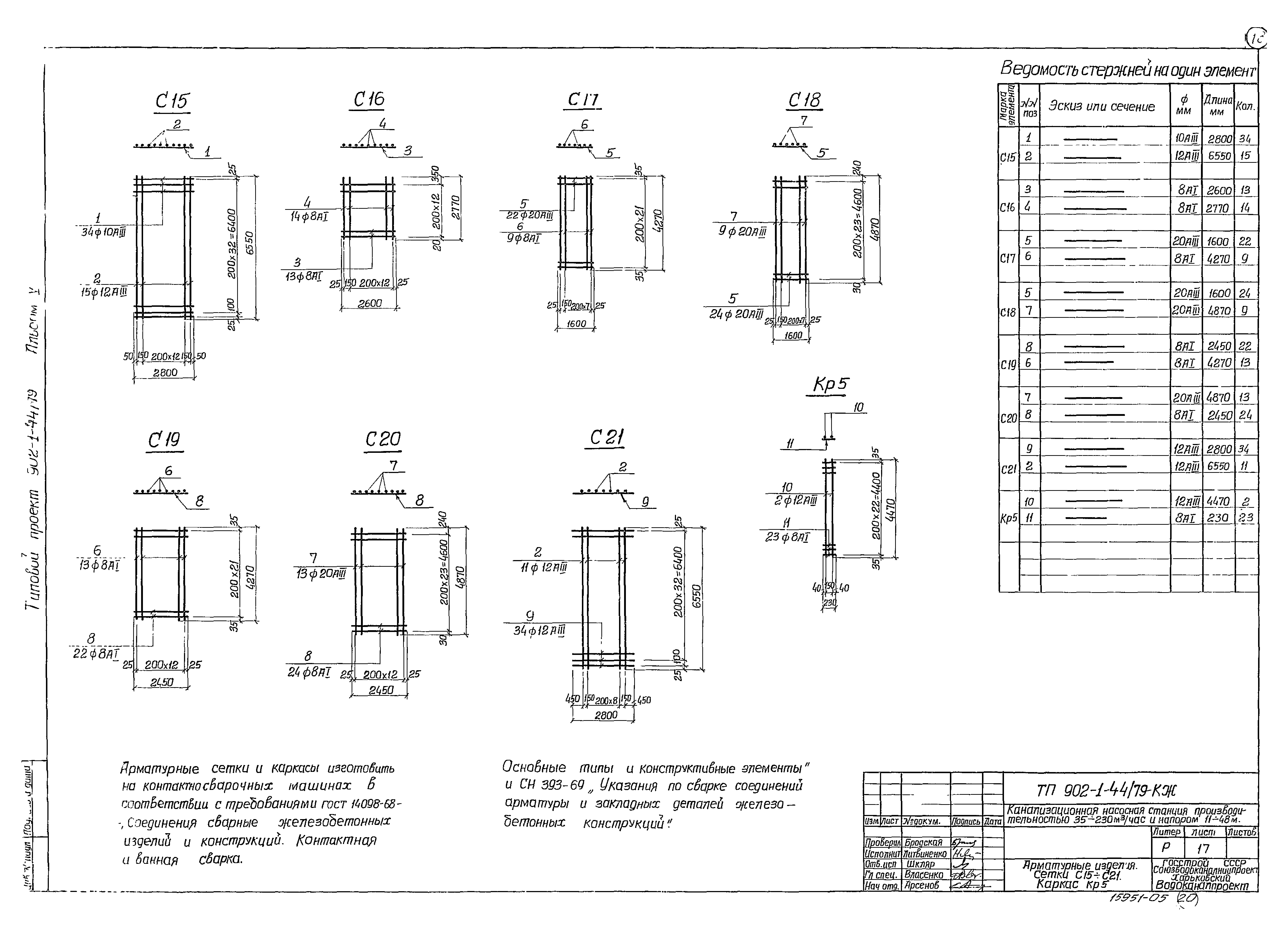
Скачать Типовой проект 902-1-44/79 Альбом V. Архитектурно-строительные решения (глубина заложения подводящего коллектора 7,0 м). Подземная частьДата актуализации: 01.01.2021 Типовой проект 902-1-44/79
Альбом V. Архитектурно-строительные решения (глубина заложения подводящего коллектора 7,0 м). Подземная часть| Обозначение: | Типовой проект 902-1-44/79 | | Обозначение англ: | 902-1-44/79 | | Статус: | не действует | | Название рус.: | Альбом V. Архитектурно-строительные решения (глубина заложения подводящего коллектора 7,0 м). Подземная часть | | Дата добавления в базу: | 01.01.2019 | | Дата актуализации: | 01.01.2021 | | Дата введения: | 25.03.1979 | | Дата окончания срока действия: | 01.07.1984 | | Разработан: | Харьковский Водоканалпроект
| | Утверждён: | 05.08.1976 Главпромстройпроект Госстроя СССР (50)
| | Заменяет собой: | |
                 
|